Как посчитать площадь стен комнаты в квадратных метрах — формулы
Начиная ремонтные работы, важно точно определиться с покупкой нужного количества отделочных стройматериалов. До поклейки обоев или покраски поверхности пола желательно как можно достовернее рассчитать площадь стен, квадратуру комнаты. Привлекаемые со стороны специалисты зачастую делают подсчет в сторону увеличения, нужно уметь экономить средства.
Техдокументацию с планом дома или квартиры иногда найти проблематично. Тогда стоит вооружиться рулеткой и самостоятельно произвести расчет. Как находить площадь различных фигур, учат в начальной школе. «Освежить» информацию, вспомнить простейшие формулы помогут специалисты. Подскажут, как на практике проще производить расчеты помещений различной конфигурации.
Для чего нужно рассчитывать площадь стен
Ориентироваться по объему дома бывает сложно. Есть понятия жилой площади «нетто и брутто», «нетто» – включает жилую часть, «брутто» рассчитывается по внешнему периметру.
Узнать площадь нетто пола, потолка каждого помещения можно по плану, составленному застройщиком. Но эту цифру применять для расчета обоев будет неправильно. Для двери или окна обои не нужны, остаток получится приличный.
Обоев с рисунком потребуется немного больше, чем однотонных или с мелким принтом.Иногда обои (фактурные или на флизелиновой подложке) имеют рисунок с повторяющимся раппортом. Таких обоев потребуется немного больше, чем однотонных или с мелким принтом. Нужно учесть положение рисунка на стыках полос, он должен совпадать.
Расход краски, побелки указывается на банках, упаковках, исходя из потребности на единицу площади. Формат кафельной плитки в коробке указан в квадратуре. Понятно, что сразу определиться с нужным количеством отделочного материала бывает сложно.
Общая цифра складывается из площадей всех стен. Аналогично определяется расход напольных покрытий и потолочной отделки.
При расчете количества краски важен учет количества слоев.При расчете количества краски важен учет количества слоев. Некоторые укрывистые лакокрасочные материалы наносятся в один слой, другие ЛКМ приходится наносить дважды или даже трижды.
Как рассчитать площадь стен разной формы
Для работы понадобятся некоторые инструменты:
- строительный уровень, чтобы безошибочно определить высоту, знать, какое расстояние от стены до потолка кратчайшее;
- рулетка, лучше выбирать железную, с фиксатором;
- когда в комнате есть тупой угол, потребуется транспортир;
- не будут лишними длинная линейка и угольник.

Строители для измерений используют штукатурное правило, лазерный дальномер. Рулетку при измерениях рекомендуется натягивать, чтобы исключить погрешность провисания. Все цифры надо перепроверять как минимум дважды. Панельные и кирпичные здания далеко от идеала, нередко размеры в разных углах не совпадают на несколько сантиметров. Для точности результата рекомендуется производить замеры в нескольких местах, затем вычисляют средний показатель по данным, полученным при обмере стены на трех уровнях:
- возле пола по плинтусу;
- посредине;
- под потолком, по стыку со стенкой
Затем, вооружившись калькулятором, производят расчеты потребностей в побелке, краске, облицовке.
Рулетку при измерениях рекомендуется натягивать, чтобы исключить погрешность провисания.План удобнее рисовать простым карандашом, который стирается резинкой. Лучше выбрать бумагу в клеточку. Для точных расчетов комнат сложной конфигурации приобретают миллиметровку.
Когда пространство заставлено шкафами, стенкой, другими крупными предметами интерьера, измерения проводить сложнее. Желательно иметь доступ к стене на всем ее протяжении. Если измерить всю комнату сразу сложно, допустимо разбить пространство на отдельные зоны. Узнав площадь каждой из них, можно получить искомую величину.
Как высчитать квадратный метр стены? Только кажется, что все просто, в процессе обмера много нюансов. Многое зависит от формы пространства. Большинство помещений представляют собой правильные фигуры, реже – сложные формы с нишами, выступами.
Рассчитать квадратуру стен можно без учебников и решения задач. Разумеется, для этого недостаточно измерить комнату вдоль и поперек. Вопрос, как это лучше сделать. Хотя каждый знает, что 100 сантиметров – это метр, при пересчете квадратных см в метровую квадратуру часто возникает путаница. Можно перевести см2 в метраж путем деления результата на 10 тысяч, отбросив 4 нуля.
Чтобы не возиться с нулями, лучше сразу записывать данные обмера и вычислений в метрах. Например, 90 см это 0,9 м. Тогда числами оперировать будет проще. Теперь немного геометрии. Первоначально нужно вычислить площади стен без вычета оконных проемов и дверей. Стоит рассмотреть комнаты разного вида.
Первоначально нужно вычислить площади стен без вычета оконных проемов и дверей.Прямоугольной формы
Известно, что для вычисления такой площади достаточно двух параметров: длины и высоты.
Рассчитать размер поверхности стен комнаты удобно по периметру – этот показатель перемножают на высоту потолков, берут среднеарифметическое значение. В панельных и кирпичных домах высота между перекрытиями стандартная, по типовым проектам делали квартиры с потолками 250, 270 или 350 см. В частных строениях владельцы обычно знают реальную высоту стен. С квадратными помещениями еще проще: длина равна ширине, достаточно узнать один параметр.
При выборе напольных покрытий делают запас на укладку, он пропорционален величине фрагментов.
При сложной схеме укладки, когда фрагменты материала крупные, покрытие приобретают с большим запасом.
Подобным образом вычисляется квадратура Г-образных помещений, главное составить геометрию пространства с помощью простых фигур, вычислить площадь которых несложно. Затем суммируют полученные цифры. При покупке материалов пользуются только округленными цифрами. Увеличивать лучше в большую сторону, чтобы был резерв.
При замерах высоту комнат измеряют по вертикальному углу или отмечают две точки на потолке и плинтусе по уровню.
При выборе напольных покрытий делают запас на укладку, он пропорционален величине фрагментов.В виде трапеции
Как же считать квадратные метры стен, когда в помещении есть трапециевидные ниши или само пространство представляет собой трапецию? Если угол схождения стен далек от идеального, пространство достраивают до прямоугольника или квадрата. Затем вычитают площади треугольников. Для простоты расчетов трапецию делят на фигуры: в центре оставляют прямоугольник или квадрат, по краям остаются треугольники.
Теперь о треугольниках. Проще перемножить высоту и ширину, а затем разделить сумму пополам.
При расчете напольных и потолочных покрытий важно учитывать, что стройматериалы выпускают правильной формы.При расчете напольных и потолочных покрытий важно учитывать, что стройматериалы выпускают правильной формы. В случае трапециевидной комнаты обязательно останутся обрезки.
Для неправильных треугольников можно воспользоваться формулой Герона. Предварительно определяют периметр треугольника, складывая размеры катетов.
Сама формула выглядит следующим образом: S = √(p·(p — a)·(p — b)·(p — c).
Функция корня квадратного имеется в любом калькуляторе.
Еще один вариант вычисления – перемножение периметра с высотой комнаты. У трапеции 4 грани, две противоположные – параллельны, две другие расположены под углом к вертикали. Сложив все 4 стороны, получают периметр.
Округлой формы
Встречаются нестандартные помещения с округлыми выступами или элементами окон, дверных проемов в виде арки. Когда в комнате имеется овальная ниша, площадь стены по формуле вычислить просто, а потребность полового покрытия придется рассчитывать, вспомнив площадь круга. Когда на стене арочный проем, пространство определяется аналогично. Сколько понадобится материала, можно определить безошибочно.
Колонны представляют собой цилиндр. Периметр можно определить, используя коэффициент 3,14 к квадрату радиуса. Усеченный сегмент вычислить сложнее, начинать следует с половины круга.
Когда в комнате имеется овальная ниша, площадь стены по формуле вычислить просто, а потребность полового покрытия придется рассчитывать, вспомнив площадь круга.
Неправильной формы
Сложные по конфигурации пространства предварительно дробят на простые элементы. Тогда с подсчетом проблем не возникает. Для определения периметра складывают длины всех плинтусов, включая выступы и ниши. Можно проложить по полу длинный шнур, бечевку, а затем измерить его длину обычным портняжным метром. Аналогично обмеряют отдельные фрагменты комнаты, если нужны данные для определения периметра.
Сложные по конфигурации пространства предварительно дробят на простые элементы.Когда ниши небольшие, их размером можно пренебречь, только нужно предусмотреть небольшой запас отделки.
Как учитывать окна и двери при расчете площади стен
Точный метраж невозможно определить, если не учитывать дверные проемы, окна. Найти площадь оклеиваемых или окрашиваемых стен можно, точно определив размер пространств, не требующих отделки. Для расчета берут наружные размеры проемов. Окна и двери измеряют по краю рамы. Когда проемы измеряют снаружи, получают достоверный результат.
При покупке дорогостоящих стройматериалов можно сэкономить приличную сумму.
Из квадратуры стен помещений исключат не только окна и двери, но и размер радиаторов, под ними не нужна отделка. Когда в доме есть камин, учитывают и его, включая термостойкую облицовку.
Когда возникают проблемы с вычислением площади фигурных фрамуг, декоративных витражей, применяют знания, полученные в предыдущем разделе. Квадратура вычитаемых площадей рассчитывается аналогично основным.
Окна и двери измеряют по краю рамы.Облегчают расчет онлайн-калькуляторы, они в большом количестве имеются в общем доступе. В целях экономии времени можно воспользоваться программой. Но принцип определения количества отделки остается при этом неизменным: сначала правильно определяют общую квадратуру, из нее исключают покрываемые поверхности. Тогда после ремонтных работ, глядя на обрезки и остатки отделки, не придется сожалеть о напрасно потраченных средствах. На всякий случай стоит предусмотреть небольшой запас, не более 5%.
На нашем строительном интернет-портале предусмотрены онлайн калькуляторы для ремонта квартиры и дома.
Кликнуть для перехода на страницу калькуляторов.
Видео: Как высчитать площадь стен
Расчет площади комнаты: способы, формулы, примеры
Процедура проведения ремонта в помещении требует обязательного расчета площади стен, потолка и пола. Так как во время покупки строительных материалов эти значения помогают не ошибиться в их количестве. О способах и примерах расчета площади помещения поговорим далее.
Оглавление:
- Причины для проведения расчета площади комнаты
- Площадь комнаты: проведение расчета площади пола
- Определение площади прямоугольной комнаты и потолка
- Какова площадь комнаты в которой имеются ниши и выступы
- Как определить площадь комнаты с неровными стенами
- Как высчитать площадь комнаты, в которой имеется многоуровневый потолок
- Определение общей площади комнаты
- Определение минимальной площади комнаты
- Оптимальная площадь комнаты
Причины для проведения расчета площади комнаты
Существует большое количество причин, по которым определяется площадь стен, потолка или пола в помещении.
В некоторых случаях, необходимы данные об общей площади комнаты. Предлагаем ознакомиться с наиболее часто встречающимися причинами определения площади комнаты или отдельных ее частей:
- если планируются работы по установке подвесных потолков, то необходимо определить общую площадь потолка, для определения количества материалов, используемых при проведении работ;
- при установке натяжных потолков, также нужно вычислить общую площадь потолка, чтобы предварительно спланировать материальные средства;
- для покраски или отделки потолка также следует знать его площадь, практически все лакокрасочные изделия и грунтовки имеют в технических характеристиках показатель расхода на один квадратный метр;
- отделка стен гипсокартоном требует вычисления общей площади стен, для покупки нужного количества материала;
- при найме строителей, например, для отделки пола плиткой, каждый метр квадратный имеет определенную стоимость, которая считается в конце выполнения работ;
- при продаже дома или при его оформлении, такой параметр как жилая площадь, площадь кухни и других комнат также является особо важным.

Площадь комнаты: проведение расчета площади пола
Для определения площади пола существуют разные причины: ремонт и покупка материалов для его отделки, проведение теплоизоляции, вычисление полезной площади и т.д.
Проще всего определить площадь помещения квадратной или прямоугольной формы. В таком случае, понадобится значение длины и ширины пола, которые умножаются друг на друга. Данный вариант не требует освобождения помещения от шкафов и прочей мебели. Достаточно просто измерить расстояние. Однако, при наличии камина в комнате, следует его площадь вычесть из общего полученного результата.
В принципе, все предметы, которые находятся на полу постоянно и не имеют возможности в перемещении, например, встраиваемые шкафы, вычисляются из общей площади пола.
Более сложным представляется расчет площади пола в помещении, которое имеет неправильную форму. Стандартные комнаты, конечно имеют форму прямоугольника или квадрата, хотя существуют помещения с разного рода нишами, углублениями, арками, выступами и т.
д. Такой вариант подсчета площади пола более сложный, так как требует вычисления площади фигур, входящих в состав помещения по отдельности.
Для вычисления общей площади следует разбить пространство на несколько правильных фигур, в виде прямоугольников, трапеций, квадратов и т.д. Например, если помещение имеет г-образную форму, то достаточно его разделить на два прямоугольника, вычислить площадь каждого из них и суммировать полученные результаты.
Если помещение имеет г-образную форму, однако она проходит не под прямым углом, то кроме двух прямоугольников в нем еще присутствует треугольное пространство, площадь которого также вычисляется. Для вычисления площади треугольника достаточно один катет умножить на другой.
При наличии полукруглых фрагментов в виде цилиндрических или сегментных частиц, расчеты усложняются. Для расчета площади пола в такой комнате требуется также разделить пространство на несколько частей, площадь которых вычисляется по отдельности.
Бывают варианты помещений, которые имеют разные уровни пола, то есть возвышенности или уклоны.
Таким образом, помещение разделяется на несколько зон. Например, в кухне выделяется столовая и рабочая части. То же самой и бывает с потолком, например, многоуровневым. Для вычисления площади пола с уступами или возвышенностями, следует опять же разделить пространство на части в виде прямоугольников или квадратов, а те самые выступы, измерить линейкой и вычислить их площадь. Таким способом получится провести расчет общей площади помещения.
Учтите, что в таком случае предпочтительно использовать рулетку, которая устанавливается вблизи основания. Кроме того, потребуется карандаш и тетрадь, для записывания всех значений. В итоге, покупка краски и определение количества отделочного материала для пола выполнится быстро.
Не выполняйте замеры по стене, так как она может быть кривой и приведет к возникновению неточности в процессе определения площади пола. Особой сложностью отличаются работы по определения площади пола, на котором имеются уступы в виде полукруга или волны. Данная ситуация предполагает измерение каждой из дуг, нахождение радиусов и раздробление площади на несколько геометрических фигур.
С помощью определения площади для каждой из них вычисляется общая формула асимметричного сегмента.
Определение площади прямоугольной комнаты и потолка
Прямоугольное помещение является наиболее типичным и часто встречающимся вариантом. Для расчета площади достаточно длину помещения умножить на его ширину. Например, если длина комнаты составляет 3,40 м, а ее ширина 5,20 м, то для определения площади потолка достаточно 3,40х5,20, в итоге получится 17, 68 метров квадратных площади. Для расчета периметра потолка используется другая формула, которая подразумевает сумму удвоенных его длины и ширины. То есть, периметр потолка ровняется 2х3,40+2х5,20=17,2 м.
Поэтому, в процессе закупки профилей, потребуется 17,2 метра материала. Однако, рекомендуется, даже при проведении точнейших расчетов, покупать материал с запасом в 10-15 процентов, для компенсации различного рода механических повреждений и стыков.
Какова площадь комнаты в которой имеются ниши и выступы
Для определения площади такого помещения следует изрядно потрудиться и выполнить такие действия:
1.
Сделайте проект комнаты с учетом всех конструктивных особенностей.
2. Измерьте и обозначьте значения высоты и длины по всем ровным стенам.
3. С помощью линейки и угольника разделите пространство на несколько зон, в виде правильных фигур.
4. Каждую из сторон фигуры следует измерить и обозначить в проекте.
5. Согласно формуле для расчета площади фигуры определите значения каждой из них и суммируйте полученные результаты.
Как определить площадь комнаты с неровными стенами
При наличии помещения, в котором стены имеют вид многогранников или непрямых непропорциональных фигур, расчеты проводить гораздо сложнее. Измерить периметр в таком помещении достаточно просто. Следует использовать рулетку и пройти с ней по всей комнате, измеряя каждый из участков по отдельности.
Площадь комнаты определяется путем проведения зарисовок и проектирования помещения. После того как эскиз готов, разбиваем пространство таким образом, чтобы получить максимальное количество пропорциональных фигур в виде квадрата, треугольника или прямоугольника.
Для того, чтобы определить площадь сегмента, который имеет форму прямоугольника с одинаковыми ребрами, достаточно измерить величину катетов, которые умножаются между собой и разделяются пополам. То есть, для определения площади треугольного сегмента с катетами 0,5 и 0,9 м следует провести такие расчеты:
0,5х0,9/2= 0,225 метра квадратных.
Как высчитать площадь комнаты, в которой имеется многоуровневый потолок
Потолок, на котором имеются уступы рассчитать сложнее, однако вполне реально. Существуют многоярусные потолки, которые имеют форму прямых линий их расчет проводить легко, но бывают такие конструкции, которые требуют особой внимательности, так как они состоят из дуго- или волнообразных фрагментов для расчета которых требуется приложить особые усилия.
Рассчитывать каждый из участков слишком долго и затратно, тем более, что в итоге получится не всегда правильный результат. Ведь, дуги, сконструированные на потолке могут быть произвольными.
Проще всего определить площадь комнаты по общей площади пола. Для этого, следует выполнить ряд действий:
1. Измерьте все прямые участки стен.
Предпочтительно проводить замеры поближе к потолку, так как длина стены сверху и снизу помещения может отличаться.
2. Определите площадь пола по ранее указанным способам.
3. На каждом из вертикальных участков измерьте их высоту и длину и умножьте эти показатели.
4. Прибавьте их к общему значению площади пола.
Определение общей площади комнаты
Для того, чтобы ответить на вопрос как узнать площадь комнаты в квадратных метрах, предлагаем ознакомиться с инструкцией, которая поможет выполнить эту задачу:
1. Позаботьтесь об очищении пространства возле стен.
Стены комнаты должны быть в свободном доступе. Таким образом, повысится правильность и точность измерения. При возможности лучше освободить помещение целиком, так как в проведении определенных расчетов потребуется измерять и центральные участки.
2. Определите в помещении участки, имеющие правильную форму.
Если помещение имеет вид прямоугольника, то в делении оно не нуждается. В противном случае, комната разделяется на фигуры в виде квадратов, полукругов, трапеций, треугольников или прямоугольников.
3. Сделайте эскиз помещения, так работать станет легче.
Измерение площади комнаты нужно выполнять по эскизу, на котором отмечаются все замеры. Совет: При отсутствии бумаги и при необходимости проведения срочного замера, используйте клейкую ленту, которая крепится на каждую стену.
4. Длина и ширина комнаты, площадь.
Каждая стена должна быть измерена по ширине и длине желательно дважды. Для того, чтобы не измерять всю стену целиком, ее нужно разбить на несколько фрагментов, а в итоге, полученные результаты суммировать.
Для того, чтобы убедиться в правильности проведения расчета, при наличии свободного времени, замеры проводятся дважды.
5. Определите площадь каждого из участков:
- площадь прямоугольника ровняется умножению его длины на ширину;
- площадь квадрата, это одна из его сторон в квадрате;
- площадь треугольника — высота и сторона, умножаются между собой и полученное значение разделяется на два;
- площадь круга число Пи умножается на радиус в квадрате.

6. Площади ранее определенных участков складываются между собой.
Определение минимальной площади комнаты
1. Участки в виде прямоугольника.
С помощью рулетки измеряется длина и ширина участка, они умножаются между собой. Данные чаще всего округляют до сантиметров.
2. Треугольник.
Площадь данного участка определяется путем умножения одной стороны треугольника на его высоту, то есть линию, опущенную с вершины треугольника, которая разделяет его на две равных части. Полученное значение удваивается.
3. Окружность или полуокружность.
Определение радиуса. Данное значение переводится в квадрат, умножается на число Пи. При наличии полукруга, значение разделяется на два.
Кроме того, в интернете существуют специальные онлайн калькуляторы, позволяющие провести все расчеты быстро и качественно. Для работы с ними достаточно выбрать форму участка комнаты, измерить его с помощью рулетки и ввести данные. Программа сама проведет все необходимые расчеты и определит площадь.
Оптимальная площадь комнаты
Каждая комната имеет свой размер, и во время планировки дома, этот фактор учитывается в соответствии с их назначением. Минимальное значение площади обычной жилой комнаты составляет восемь метров квадратных.
Площадь общей комнаты или гостиной должна составлять от 13 до 23 метров квадратных. Спальня должна располагаться в углу дома, и быть не проходным помещением.
Минимальная высота жилого помещения — 240 см. Не рекомендуется обустраивать комнаты с высотой более 300 см, так как они совсем непрактичны, для их обогрева в зимнее время потребуется большое количество материальных вложений.
Каждая комната должна отличаться наличием естественного освещения. Минимум 30 % всех стен должны приходиться на окна. Учтите, что предпочтительнее устанавливать окна на южной стороне, так как зимой, на северной стороне, они будут провоцировать большие теплопотери.
Если жилая площадь дома или квартиры составляет от 15 до 55 метров квадратных, то минимальная площадь кухни должны быть 6 метров квадратных.
При планировке кухни в зданиях с жилой площадью более 55 квадратных метров, кухня должна занимать минимум пятую часть всего дома.
Если кухня занимает более 10 квадратных метров, возможен вариант ее использования в качестве столовой или комнаты для приема гостей. Минимальная ширина прихожей составляет 140 см, в ней также должно присутствовать естественное освещение.
Для детской комнаты достаточно площади в 10-15 метров квадратных. Самыми маленькими должны быть ванная и туалет. Их площадь ровняется 4-8 квадратным метрам.
Как рассчитать площадь комнаты по стенам
Расчёт площади стен квартиры
Любые ремонтные работы в жилом помещении ― это весьма хлопотное занятие. Оно требует от исполнителя точного подхода к расчетам и правильного замера общей площади для составления сметы и закупки необходимого количества строительных материалов.
Один из главных вопросов, который возникает на начальном этапе ремонта, как правильно рассчитать площадь стены с учетом оконных и дверных проемов.
Если работу осуществляет строительная бригада, то они все сделают самостоятельно, но уметь проводить подобные расчеты необходимо. Это поможет вам рассчитать точную квадратуру не только для самостоятельной отделки, но и проверить правильность расчетов рабочих.
Инструменты для замеров
Для правильного подсчета общей квадратуры вам потребуется такой инструмент, как:
- строительная рулетка не менее 5 метров;
- ручка или карандаш;
- калькулятор;
- строительный уровень или аналогичное приспособление со шкалой;
- стремянка или табуретка;
- лист бумаги для записей.
Подготовьте всё необходимое для замера стен
Можно также воспользоваться специальными сервисами, доступными в интернете, однако, точность их не всегда бывает верной, а для максимальной точности лучше все сделать самостоятельно.
Перед тем как рассчитать площадь стен комнаты, необходимо обеспечить к ним свободный доступ и отодвинуть мебель для возможности беспрепятственного перемещения. Это очень важно, поскольку по исходным данным, полученным от замера, мы получаем общий объем помещения, а также квадратуру потолка и пола.
Для максимальной точности рекомендуется перед замерами обозначить ровную линию немного выше уровня плинтусов при помощи строительного уровня или любой другой длинной и ровной рейки. Далее рулетку прикладывают горизонтально к поверхности над плинтусом и на бумаге записывают полученные данные. Следующим этапом замеряют расстояние от пола до потолка, опять прислонив рулетку к стене.
Не забывайте записывать все полученные данные
Если помещение имеет форму прямоугольника, то для получения общей площади комнаты достаточно умножить полученную ширину на длину. Например, если стена по длине составляет 5 метров, а по ширине 3, то умножаем 5 на 3, получаем 15 квадратов.
Аналогичным образом замеряем каждую стену и складываем полученные значения в одну сумму.
Например, в прямоугольной комнате 2 стены по 15 квадратных метров и 2 по 8, складываем эти значения 15х2=30, 8х2=16, 30+16=46. Итого общая сумма поверхности стен комнаты составила 46 квадратов.
Вычисляем площадь оконных и дверных проемов
Перед тем как вычислить площадь стен, необходимо замерить оконные и дверные проемы для того, чтобы вычесть это пространство и узнать квадратуру только обрабатываемой поверхности. Показания снимаются только по откосам проемов.
Немаловажно точное измерение оконных и дверных проёмов
Например, у нас имеется квадратное окно, размеры которого составляют 1,50 по длине и 1,60 по ширине. Проводим аналогичные расчеты 1,50х1,60=2,40 м 2 . Если в помещении имеется несколько окон, то каждое из них замеряется отдельно и полученные данные складываются в одну сумму. Аналогичная операция проводится и с дверными проемами, где показания снимают не по самой двери, а точно по проему в стене.
Например, в результате замеров мы выяснили, что площадь окна составляет 2,40 метров квадратных, а двери, к примеру, 5,60.
Далее складываем размеры проемов в одну сумму и вычитаем ее из общей площади комнаты 2,40+5,60=8, 46-8=38. В итоге мы имеем площадь проемов в 8 м 2 , отняли ее от общей квадратуры помещения и получили 38 м 2 обрабатываемой поверхности.
Видео о том, как рассчитать площадь стен:
Как рассчитать площадь комнаты — формулы и способы расчета
Затевая ремонт, вы должны приобрести достаточное количество обоев, клея, краски и прочих материалов. Для этого вам необходимо знать, как рассчитать площадь комнаты. Если вы поймете, как получить и применить нужные измерения, то в дальнейшем, например, при покупке или продаже недвижимости, вы сможете самостоятельно посчитать площадь помещения и проверить документы.
Простая комната прямоугольной или квадратной формы
Для того, чтобы узнать, как рассчитать площадь пола комнаты, вы должны определить его форму.
В помещении, которое представляет собой прямоугольник или квадрат, нужно измерить длину и ширину и умножить значения между собой. Вы получите площадь комнаты в квадратных метрах.
Формула по которой можно высчитать площадь:
S комнаты = А х B, где A – длина, B – ширина.
Для измерения можно взять обычную рулетку. Чтобы получить наиболее точный результат, рекомендуется измерить длину в начале стены и в конце и, если цифры будут отличаться, взять среднее арифметическое значение.
Комната, в которой имеются ниши или выступы
Если в комнате имеются ниши, выступы, сантехнические или вентиляционные конструкции, то необходимо измерить отдельно площадь каждого участка. Если это ниша в стене, то к площади комнаты нужно прибавить площадь углубления. Если это выступ, то соответственно, из площади помещения нужно будет вычесть его площадь.
Такому же принципу нужно следовать, если вы хотите узнать, как рассчитать площадь потолка комнаты. Ровный, прямоугольный потолок без каких-либо ниш и выступов означает, что его необходимо измерить по длине и ширине, а затем посчитать площадь простым умножением.
Если вы планируете утеплить пол с помощью нагревательных элементов, то из общей площади пола вам нужно будет вычесть площадь, которая занята тяжелой мебелью.
Комната сложной конфигурации
Нередко встречаются комнаты необычной формы. Если есть возможность, то нужно разделить помещение на несколько прямоугольников, посчитать площадь каждого и сложить.
Площадь комнаты в форме круга вычисляется по формуле:
S комнаты = πR², где R – радиус. Необходимо учитывать, сколько градусов в секторе.
Для расчета площади комнаты треугольной формы используют формулу Герона:
Sкомнаты = √ (P(P -A) х (Р — В) х (Р — С)), где Р – половина периметра треугольника, А, В, С – длины его сторон.
Полупериметр треугольника рассчитываем так: Р = (А + В + С) / 2
Комната со сложной конфигурацией стен. Фото — welovead.com
Особенности расчета площади простых стен и стен, содержащих выступы и ниши
Теперь давайте рассмотрим такой важный момент, как расчет площади стен комнаты.
Зная именно эту величину, вы сможете купить нужное количество обоев для ремонта. Конечно, вы можете обратиться к консультанту в строительном магазине, и он обязательно расскажет, как посчитать площадь стен. В этом нет ничего сложного: измерьте длину, ширину и высоту помещения. Далее площадь стен высчитываем по формуле:
Sстен = Р х С, где Р – периметр комнаты, С – высота стен.
Периметр комнаты считаем по формуле:
Р = (А + В) х 2, где A – длина, B – ширина.
Для получения более точных результатов, из общей площади стен необходимо вычесть площадь дверных и оконных проемов.
Площадь стен комнаты с выступами или углублениями будет отличаться от площади стен простой комнаты. Не забудьте к основному значению прибавить площадь стены выступающего или углубленного участка.
Будьте внимательны, производя измерения и расчеты. Если вы используете лазерную рулетку, то следите за тем, чтобы луч был направлен строго перпендикулярно стене, иначе вы получите большую погрешность в результатах.![]()
Стены комнаты с выступами. Фото — gohawaii.about.com
Как посчитать площадь стен: формула и пример расчета
От автора: здравствуйте, уважаемые читатели. Много лет назад произошел с моим другом один курьезный случай. Решил он купить себе дорогущие обои — шелкографию. На то время это был просто последний писк моды. Они были черными с золотым рисунком и стоили просто безумных денег. За закупку материала он отвечал сам, а мне поручил лишь наклеить. Придя и увидев результат, он просто взбесился, потому как узнал, что у него осталось 4 лишних рулона, которые в магазине уже не примут. А произошло все это потому, что он не знал, как посчитать площадь стен правильно.
В теории, конечно, это наипростейшая задача, но вот когда дело касается подсчета материала, то тут уже можно проколоться. Ну что же, друзья, все эти огрехи в вашей памяти мы сегодня восстановим, и вы никогда не попадете в такую патовую ситуацию, как мой знакомый.
И вот еще на чем хочу сконцентрировать ваше внимание.
Раз уж вам предстоят работы, связанные с отделкой и закупкой материала, хочу порекомендовать вам как следует проштудировать наш строительный портал. В нем сосредоточено огромное количество полезной информации, которую мастера своего дела собирали всю жизнь.
Формула, и основной расчет
Такой расчет — наипростейшая манипуляция, но все-таки кое-что про это знать нужно. Площадь — это числовое значение фигуры в пространстве, определяющее ее физические размеры. Такие размеры есть у любого предмета и тела. То есть как сказать, у любого: например, в квантовой физике, конечно же, не фигурирует, а вот в остальных жизненных аспектах — всегда.
Обычно выражается в квадратных метрах, если имеется в виду квадратура помещения в общем. Но все-таки может выражаться и в других единицах, например, в квадратных миллиметрах, сантиметрах, дециметрах, километрах и далее по таблице степеней.
Но говорим же мы именно о том, как рассчитать квадратные метры, а для этого достаточно будет знать всего две физические величины, а именно: длину и высоту. Давайте рассмотрим на схеме, о чем мы говорим:
Где S – площадь, a – высота, ну а b – длина.
Как видите, рассчитать до безумия просто. Для этого вам нужно просто перемножить длину и высоту. Таким образом вы узнаете величину лишь одной, но вам-то необходимо знать про все четыре.
А для этого посчитайте то же для смежной стены по формуле, что изображена на схеме, затем сложите эти два числа вместе и умножьте на два. То есть, смотрите, вы узнали размер двух разных стен, сложили их, а так как комната имеет вид прямоугольника, то для того, чтобы узнать ее общую квадратуру, это число необходимо умножить на два, и дело с концом.
Но вот еще что, в комнате всегда есть оконные проемы и двери. Если материал не рассчитывается для этих мест, то окна и двери необходимо исключить из общей квадратуры. Для этого необходимо узнать размеры этих проемов по все той же формуле и просто-напросто отнять это число от общего. Тогда вы получите точное значение для вашей комнаты.
Так как зачастую размеры — не целые числа — например, высота обычно 270–290 см, и длины, соответственно, разные — то для удобства расчетов вам лучше будет использовать калькулятор.
Подсчет необходимого количества обоев
Зачастую читателей этой темы интересует именно этот вопрос, потому как для того чтобы знать, сколько материала вам понадобится, необходимо иметь представление о рассматриваемой сегодня величине.
Итак, рассчитать обои, вы можете двумя способами:
- используя площадь — стандартная ширина обоев составляет 70 см, а длина 9м. Итак, узнаем для начала размеры комнаты, например, со сторонами 3×5. Получится, соответственно, 43,2 м 2 , это при условии, что мы не учитываем окна, двери, и высота потолков 2,7 м. Окна и двери не учитываем, так как оставляем этот материал на припуски и подрезку. Итак, мы узнали все про комнату, теперь узнаем, сколько рулонов нам понадобится. Измеряем и его составляющую, это 0,7 м умножить на 9 м, получим 6,3 м 2 . А теперь 43,2/6,3 = 6,1, округляем до 7 и получаем, что на такую комнату нам необходимо всего 7 рулонов обоев. Но помните, что бывают они разными, и, если вам требуется подобрать рисунок, то тут только на это дело необходимо брать еще один лишний рулон;
- используя длину. В комнате 3×5 длина всех стен, соответственно, 16. Делим 16/0,7 и получаем 22,85. То есть нам понадобится 22,85 полоски обоев по 2,7 м каждая, это 22,85×2,7 = 61,71 м обоев. Делим эту цифру на 9, именно столько метров у нас в одном рулоне, и получаем те же самые 6,1, то есть округленные 7 рулонов.
На этом все, уважаемые читатели, теперь вы знаете про то, как без труда высчитать площадь и посчитать требуемое количество обоев. И перед тем как с вами попрощаться, хочу вам сказать следующее.
Наш сайт не занимается выпуском специализированной литературы, мы всего-навсего знакомим вас с темой, поэтому ответственности за ваши действия никакой не несем. Удачи!
В соответствии с действующим законодательством, Администрация отказывается от каких-либо заверений и гарантий, предоставление которых может иным образом подразумеваться, и отказывается от ответственности в отношении Сайта, Содержимого и его использования.
Подробнее: https://seberemont.ru/info/otkaz.html
Статья была полезна? Расскажите друзьям
Как посчитать квадратуру комнаты, стен, потолка, пола
Периодически нам требуется знать площадь и объем комнаты. Эти данные могут понадобиться при проектировании отопления и вентиляции, при закупке стройматериалов и еще во многих других ситуациях. Также периодически требуется знать площадь стен. Все эти данные вычисляются легко, но предварительно придется поработать рулеткой — измерять все требуемые габариты. О том, как посчитать площадь комнаты и стен, объем помещения и пойдет речь дальше.
Часто требуется посчитать кубатуру комнаты, ее объем
Площадь комнаты в квадратных метрах
Посчитать несложно, требуется только вспомнить простейшие формулы а также провести измерения. Для этого нужны будут:
- Рулетка. Лучше — с фиксатором, но подойдет и обычная.
- Бумага и карандаш или ручка.
- Калькулятор (или считайте в столбик или в уме).
Набор инструментов нехитрый, найдется в каждом хозяйстве. Проще измерения проводить с помощником, но можно справиться и самостоятельно.
Для начала надо измерить длину стен. Делать это желательно вдоль стен, но если все они заставлены тяжелой мебелью, можно проводить измерения и посередине. Только в этом случае следите чтобы лента рулетки лежала вдоль стен, а не наискосок — погрешность измерений будет меньше.
Прямоугольная комната
Если помещение правильной формы, без выступающих частей, вычислить площадь комнаты просто. Измеряете длину и ширину, записываете на бумажке. Цифры пишите в метрах, после запятой ставите сантиметры. Например, длина 4,35 м (430 см), ширина 3,25 м (325 см).
Как высчитать площадь комнаты
Найденные цифры перемножаем, получаем площадь комнаты в квадратных метрах. Если обратимся к нашему примеру, то получится следующее: 4,35 м * 3,25 м = 14,1375 кв. м. В данной величине оставляют обычно две цифры после запятой, значит округляем. Итого, рассчитанная квадратура комнаты 14,14 квадратных метров.
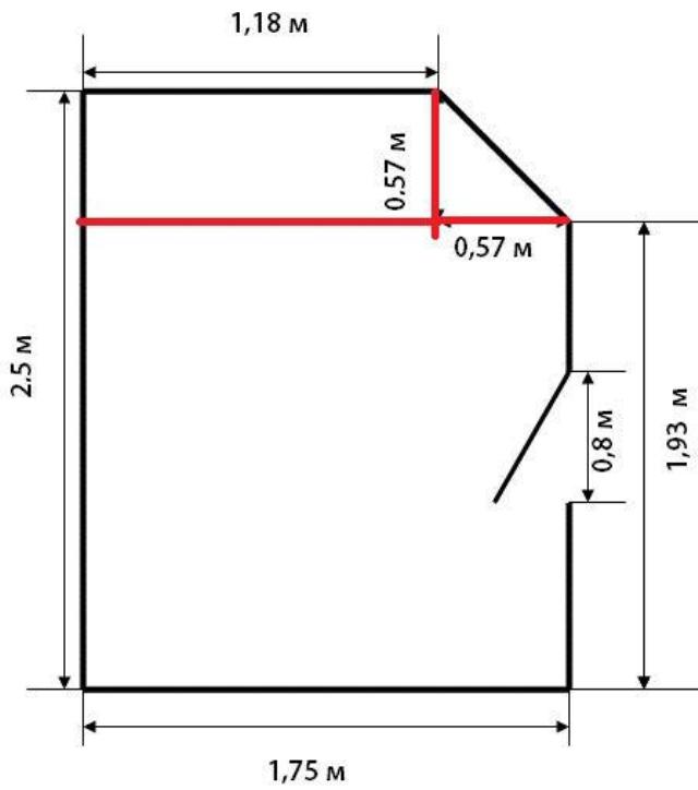
Помещение неправильной формы
Если надо высчитать площадь комнаты неправильной формы, ее разбивают на простые фигуры — квадраты, прямоугольники, треугольники. Потом измеряют все нужные размеры, производят расчеты по известным формулам (есть в таблице чуть ниже).
Перед тем как посчитать площадь комнаты, тоже проводим изменения. Только в этом случае цифр будет не две, а четыре: добавится еще длина и ширина выступа. Габариты обоих кусков считаются отдельно.
Один из примеров — на фото. Так как и то, и другое — прямоугольник, площадь считается по той же формуле: длину умножаем на ширину. Найденную цифру надо отнять или прибавить к размеру помещения — в зависимости от конфигурации.
Площадь комнаты сложной формы
Покажем на этом примере как посчитать площадь комнаты с выступом (изображена на фото выше):
- Считаем квадратуру без выступа: 3,6 м * 8,5 м = 30,6 кв. м.
- Считаем габариты выступающей части: 3,25 м * 0,8 м = 2,6 кв. м.
- Складываем две величины: 30,6 кв. м. + 2,6 кв. м. = 33,2 кв. м.
Еще бывают помещения со скошенными стенами. В этом случае разбиваем ее так, чтобы получились прямоугольники и треугольник (как на рисунке ниже). Как видите, для данного случая требуется иметь пять размеров. Разбить можно было по-другому, поставив вертикальную, а не горизонтальную черту. Это не важно. Просто требуется набор простых фигур, а способ их выделения произвольный.
Как посчитать площадь комнаты неправильной формы
В этом случае порядок вычислений такой:
- Считаем большую прямоугольную часть: 6,4 м * 1,4 м = 8,96 кв. м. Если округлить, получим 9, 0 кв.м.
- Высчитываем малый прямоугольник: 2,7 м * 1,9 м = 5,13 кв. м. Округляем, получаем 5,1 кв. м.
- Считаем площадь треугольника. Так как он с прямым углом, то равен половине площади прямоугольника с такими же размерами. (1,3 м * 1,9 м) / 2 = 1,235 кв. м. После округления получаем 1,2 кв. м.
- Теперь все складываем чтобы найти общую площадь комнаты: 9,0 + 5,1 + 1,2 = 15,3 кв. м.
Планировка помещений может быть очень разнообразной, но общий принцип вы поняли: делим на простые фигуры, измеряем все требуемые размеры, высчитываем квадратуру каждого фрагмента, потом все складываем.
Формулы расчета площади и периметра простых геометрических фигур
Еще одно важное замечание: площадь комнаты, пола и потолка — это все одинаковые величины. Отличия могут быть если есть какие-то полу-колоны, не доходящие до потолка. Тогда из общей квадратуры вычитается квадратура этих элементов. В результате получаем площадь пола.
Как рассчитать квадратуру стен
Определение площади стен часто требуется при закупке отделочных материалов — обоев, штукатурки и т.п. Для этого расчета нужны дополнительные измерения. К имеющимся уже ширине и длине комнаты нужны будут:
- высота потолков;
- высота и ширина дверных проемов;
- высота и ширина оконных проемов.
Все измерения — в метрах, так как квадратуру стен тоже принято измерять в квадратных метрах.
Удобнее всего размеры наносить на план
Так как стены прямоугольные, то и площадь считается как для прямоугольника: длину умножаем на ширину. Таким же образом вычисляем размеры окон и дверных проемов, их габариты вычитаем. Для примера рассчитаем площадь стен, изображенных на схеме выше.
- Стена с дверью:
- 2,5 м * 5,6 м = 14 кв. м. — общая площадь длинной стены
- сколько занимает дверной проем: 2,1 м *0,9 м = 1,89 кв.м.
- стена без учета дверного проема — 14 кв.м — 1,89 кв. м = 12,11 кв. м
- Стена с окном:
- квадратура маленьких стен: 2,5 м * 3,2 м = 8 кв.м.
- сколько занимает окно: 1,3 м * 1,42 м = 1,846 кв. м, округляем, получаем 1,75 кв.м.
- стена без оконного проема: 8 кв. м — 1,75 кв.м = 6,25 кв.м.
Найти общую площадь стен не составит труда. Складываем все четыре цифры: 14 кв.м + 12,11 кв.м. + 8 кв.м + 6,25 кв.м. = 40,36 кв. м.
Объем комнаты
Формула расчета объема комнаты
Для некоторых расчетов требуется объем комнаты. В этом случае перемножаются три величины: ширина, длинна и высота помещения. Измеряется данная величина в кубических метрах (кубометрах), называется еще кубатурой. Для примера используем данные из предыдущего пункта:
- длинна — 5,6 м;
- ширина — 3,2 м;
- высота — 2,5 м.
Если все перемножить, получаем: 5,6 м * 3,2 м * 2,5 м = 44,8 м 3 . Итак, объем помещения 44,8 куба.
Как посчитать площадь стены: методы и примеры
Даже если в техническом паспорте и документации на жилье указаны все необходимые величины и приложен план, не всегда все это оказывается под рукой.
Тогда приходится вооружиться рулеткой и, после проведения необходимых измерений, посчитать нужное самостоятельно. В данной статье мы научимся считать площадь стен дома.
В каких случаях это необходимо?
Комфортность проживания в комнате принято оценивать ее габаритами. Тогда зачем же нужна площадь стен? Это вспомогательная величина, важная для оценки количества требуемых расходных материалов при ремонте.
Зная площадь стен в комнате или квартире, вы сможете купить необходимое количество расходных материалов, будь это обои, краска, побелка или плитка.
У рулона с обоями известны его ширина и длина, что позволяет рассчитать необходимое кол-во материала по площади стен, на банках с краской также указывается рекомендуемый расход в граммах на квадратный метр, плитка при определенных размерах также обладает известной площадью.
Расчет площади стен
Для подсчета необходимо воспользоваться известной из школы формулой площади прямоугольника.
Даже если комната самой «неправильной» формы, стены можно «развернуть» (разумеется, мысленно), и мы получим прямоугольник с длиной, равной периметру комнаты, и высотой, равной высоте комнаты.
А площадь прямоугольника равна произведению его сторон. Одна из сторон – периметр комнаты, другая – ее высота. Периметр комнаты – это сумма длин всех сторон плоской фигуры, представляющей пол, или, проще говоря, длина всех плинтусов.
Прямоугольная комната
Если комната простой формы, длину периметра можно измерить, сделав несколько необходимых измерений. Высота же измеряется обычно по любому углу комнаты, от пола до потолка. Линейные размеры следует измерять в метрах, тогда площадь выразится в квадратных метрах.
Пример: Периметр комнаты 13,90 м, высота 2,65 м. Площадь стен = 13,90 х 2,65 = 36,84 кв. м.
Для расчета периметра прямоугольной комнаты достаточно измерить длину и ширину комнаты, сложить их и умножить на 2.
Пример: длина 4,1 м, ширина 2,85 м. Периметр = 2 х (4,1 + 2,85) = 13,90 (м).
Неправильная форма
Периметр комнаты неправильной формы можно измерить, тщательно протянув вдоль периметра по плинтусам бечевку или провод, при этом следует обогнуть бечевкой все выступы, изгибы, а затем измерить рулеткой длину участка бечевки, соответствующую периметру.
Форма стен может усложняться наличием ниш и выступающих частей. Иногда этими элементами можно пренебречь, при необходимости же их учета необходимо по формуле площади прямоугольника — учесть всю эту дополнительную площадь.
Смотрите в следующем видео — как рассчитать площадь стен:
В виде трапеции
У комнаты в виде трапеции из 4 стен две противолежащие параллельны друг другу, а две другие нет. В этом случае можно отдельно измерить длины всех 4 сторон и сложить. Это и будет периметр комнаты.
Существует сложная формула, позволяющая вычислить по измеренной длине 3 сторон четвертую, но проще измерить, чем вычислить.
Пример: Стороны комнаты с полом в виде трапеции 3, 4, 6 и 5 м. Периметр = 3 + 4 + 6 + 5 = 18 (м).
Читайте также статью про размер окна стандарт для домов разных типов.
Округлой формы
Если комната строго круглой формы, периметр можно вычислить, измерив ее поперечник (диаметр) и умножив его на число «пи», равное (с округлением) 3,14.
Пример: поперечник 2,7 м, периметр = 3,14 x 2,7 = 8,48 (м).
Участки округлой формы придется посчитать отдельно, измерив бечевкой или гибкой рулеткой длину округлой части и прибавив ее к измеренным прямолинейным участкам периметра.
Окна и двери при расчете материала
Если вы оклеиваете стены комнаты обоями или красите краской, из вычисленной как описано выше площади стен необходимо вычесть площадь окон и дверей.
Окна и двери, как правило, прямоугольной формы, и для определения их площади достаточно измерить их ширину и высоту, и перемножить.
Пример: в комнате с площадью стен 36,84 кв. м. есть окно размером 1,30 на 1,40 м и дверь размером 0,80 на 2,05 м. Площадь окна равна 1,30 х 1,40 = 1,82 кв. м, площадь двери составляет 0,80 х 2,05 = 1,64 кв. м. Площадь стен без окон и дверей составляет 36,84 – 1,82 – 1,64 = 33,38 кв. м.
Или вот другой наглядный пример:
Как посчитать расход краски для стен?
На банке с краской указан расход 100 г/кв.м. Подсчитаем количество краски, необходимое, чтобы выкрасить стены комнаты с площадью стен 33,38 кв. м.
Умножаем расход, выраженный в килограммах на 1 квадратный метр, на площадь стен без окон и дверей, получаем 0,1 х 33,38 = 3,34 (кг). Очевидно, можно обойтись банкой с 3,5 кг краски. Подобно этому примеру можно посчитать и другие отделочные материалы.
1 Комментарий
Чтобы не лазить по квартире с обычной рулеткой, которой в одиночку измерить размер трудно и все равно есть погрешности, лучше всего использовать лазерную. С ней можно все измерить быстро и одному.
Как найти объем помещения. Как рассчитать, посчитать объем помещения
Как рассчитать, посчитать объем помещения.
Оценка объема помещений довольно часто требуется при производстве строительных и ремонтных работ. В большинстве случаев это требуется для уточнения количества материалов, необходимых для проведения ремонта, а также для подбора эффективной системы отопления или кондиционирования воздуха. Количественные характеристики, описывающие пространство, как правило, требуют проведения некоторых измерений и несложных вычислений.
1. Самый простой случай – когда требуется определить объем помещения правильной прямоугольной или квадратной формы. При помощи рулетки измерьте в метрах длину и ширину стен, а также высоту помещения. Удобнее всего проводить измерения по полу, вдоль плинтусов. Перемножьте полученные показатели длинны, ширины, высоты и вы получите искомый объем.
2. Если помещение имеет неправильную или сложную форму, задача немного усложняется. Разбейте площадь помещения на несколько простых фигур (прямоугольников, квадратов, полуокружностей и так далее) и вычислите площадь каждой из них, предварительно произведя замеры. Сложите полученные значения, суммируя площадь. Умножьте сумму на высоту помещения. Измерения необходимо проводить в одних и тех же единицах, например, в метрах.
3. При проведении строительных работ определение объема всего сооружения определяется по стандартам. Так называемый строительный объем наземной части здания с чердаком можно вычислить, умножив площадь горизонтального сечения по внешним обводам на уровне нижнего этажа. Измерьте полную высоту здания от уровня чистого пола до верхней части утеплителя чердачного перекрытия. Перемножьте оба показателя.
4. При наличии разных по площади этажей общий объем помещений в здании определите, сложив объемы всех частей. Таким же образом определяется объем, если помещения имеют разные очертания и конструкцию.
5. Отдельно вычислите объемы веранд, эркеров, тамбуров и иных вспомогательных элементов сооружения (за исключением крытых и открытых балконов). Включите эти данные в общий объем всех помещений здания. Таким образом можно легко найти объем любого помещения или здания, расчеты довольно просты, пробуйте и будьте внимательны.
Формула объема помещения
ФормулаПример расчета объема помещения по формулеКалькулятор площади стены или пола
Вставьте размеры помещения и получите результат.
Как рассчитать площадь дома — формула расчета
Каждому владельцу жилого дома необходимо знать площадь его домовладения. Данная величина может быть использована в различных бытовых ситуациях и встречается в различных областях нашей жизни. Для чего же конкретно она нужна.
Для чего нам необходимо рассчитать домовую площадь
Точный размер площади дома необходимо знать в следующих случаях:
- При проектировании будущего жилья.
- При осуществлении непосредственно строительных работ для правильного подсчёта расходного материала.
- Для проведения отделочных работ.
- При оформлении домовладения в органах Юстиции.
- Для получения технического плана БТИ.
- При ремонте внутреннего помещения.
- При оформлении купли-продажи жилья.
- При сдаче жилья в аренду.
Чем отличается площадь жилая от площади всего дома
Площадь, в частном доме, условно делится на определённые зоны:
- Зона, которая используется для постоянного в ней проживания.
- Зона, занимающая всю площадь жилища.
Зона домовладения, относимая условно к жилой представляет собой пространство, предназначенное непосредственно только для проживания домочадцев. Общая же домовая территория заключает в себе все имеющиеся в доме отдельные комнаты, а также различные подсобные зоны. Отсюда можно сделать вывод, что домовая площадь, отведённая под жилую всегда намного меньше общей.
Каким же образом можно определить размер всего домовладения
Для математического вычисления общей площади жилого дома нужно сложить значения всех имеющихся площадей.
К такого рода площадям относятся не только имеющиеся в доме комнаты, но и:
- Одёжные шкафчики, которые могут быть вмонтированы в стены дома и кладовки.
- Внутридомовые лестничные конструкции.
Площадь общего пользования любого домовладения представляется суммарной величиной площадей всех существующих частей жилища, в том числе и результаты измерений размеров второстепенных (подсобных) помещений, необходимых для решения бытовых проблем. К второстепенным (подсобным) территориям можно отнести пространство, занятое кухней, коридором, ванной комнатой, санузлом, кладовыми, зоны встроенных внутри стен полок, а также территория, на которой разместилась внутридомовая лестница.
Как разделить квартиру между собственниками, узнаете в следующей статье: https://consultmill.ru/kvartira/dolyu.html
Какую формулу можно применить для расчета размера жилой зоны в частном доме
С целью определения площади отведённой под жилую, нужно иметь размеры всех зон, предназначенных для жилья в данном доме.
Для того, чтобы выяснить, какие именно зоны в конкретном частном домовладении необходимо считать жилыми, достаточно развернуть и внимательно изучить проект дома и его технический паспорт.
В экспликации к техпаспорту можно конкретно увидеть как величину площади, так и категорию каждой из комнат.Как составить договор дарения на долю в квартире, вы можете узнать в данном материале: https://consultmill.ru/kvartira/darenie/na-dolyu-v-kvartire.html
К комнатам, предназначенным для жилья можно отнести:
- Зал-гостиную.
- Комнаты -спальни.
- Гардеробную.
Для того, чтобы правильно замерить жилую площадь помещения, требуется тщательно замерить длину и ширину всех имеющихся стен в каждой из комнат, предусмотренных для постоянного в них нахождения. Это можно сделать при помощи строительной рулетки. Все измерения рекомендуется делать точно и аккуратно. Удобнее будет если перед снятием замеров вынести из комнат все ненужное, чтобы место у каждой из стен было в свободном доступе и после этого произвести измерения вдоль полового плинтуса. Все полученные результаты измерений с обязательной пометкой зоны, в которой они производились надо зафиксировать.
Когда измерения жилых помещений подойдут к концу и все точно записано, можно заняться подсчётом необходимой величины. Для её точного вычисления можно применить следующую формулу:
Д (длина) одной комнаты х Ш (ширина) одной комнаты =П (площадь) одной комнаты.
Результаты полученных измерений нужно записать, сделав пометки — такой шаг облегчит задачу в том случае, если вы в будущем соберётесь предпринять ещё какие-либо работы в доме. После этого, надо сложить все результаты замеров, полученные вами для каждой комнаты. Вычисленная величина и станет показателем жилой площади вашего домовладения.
Как произвести расчет наружной или фасадной площади дома
Для того чтобы получить наружную площадь помещения необходимо при помощи строительной рулетки произвести обмер всего дома. Наружные замеры рекомендуется осуществлять, следуя определённым правилам.
Каждую из наружных стен жилого дома, в том числе и фронтон, следует измерять по отдельности. Эта необходимость, прежде всего, связана с тем, что зачастую конструктивно одинаковые стены одного здания имеют довольно значительные различия. И если в формулу для расчёта наружной площади помещения брать за основу размер только одной стены, умноженной, на количество стен, то общая площадь получится неверной.
Каждая стена измеряется строительной рулеткой у основания и у карниза постройки по ширине. Таким же образом производятся замеры высоты стен.
Используя уже известную формулу, мы получим показатель площади одной из стен. Таким же образом, мы вычислим площади всех наружных стен жилого дома. После этого, необходимо сложить все полученные значения и в итоге получится площадь наружных стен вашего дома.
Походу выполняемых замеров полученные показатели необходимо периодически фиксировать, используя для этого специальные обозначения, как бы делая схематические эскизы. Такого рода схематические наброски каждой стены домовладения позволяют более реалистично представить конструкцию всего дома. Данный приём поможет при выполнении наружной облицовки помещения.
Рекомендуем статью о том, как рассчитать налог с продажи дома с земельным участком: https://consultmill.ru/zemlya/dokumenty/nalog-s-prodazhi.html
Таким образом, можно сделать вывод о том, что знание площади своего домовладения значительно поможет во многих случаях:
- Это и осуществление строительных работ.
- Сдача дома в аренду.
- Продажа жилья и предпродажное оформление документов.
- Приобретение новой мебели, подходящей по габаритам вашего дома.
Все замеры вы можете сделать самостоятельно, зная лишь пару математических формул, и обладая строительной рулеткой. Нет нужды прибегать к услугам специалистов и тратить деньги впустую.
Оцените статью: Поделитесь с друзьями!Как посчитать площадь квартиры? — Русский ремонт
Каждый из нас хотя бы раз в жизни задумывался о том, как считать квадратные метры. В первую очередь такой вопрос встает, когда речь заходит о ремонте домовладения или квартиры. Только благодаря расчётам и информации о том, сколько квадратных метров в комнате можно приобрести необходимое количество строительного материала.
Зачем нужно знать точное количество квадратных метров?
Причин для расчета площади может быть много, но самой главной является ремонт. В процессе ремонтных работ такой математический расчет необходим в следующих ситуациях:
В процессе монтажа натяжных или подвесных потолков, для того чтобы точно рассчитать количество необходимого материала;
Для окрашивания и шабровки потолка, так как стоимость работ по окрашиванию и грунтовке рассчитывается на один квадратный метр;
При приобретении отделочных материалов или гипсокартона;
При расчете необходимого количества обоев, плитки и так далее.
В том случае если не планируется работы выполнять самостоятельно, а будут наниматься люди, так как в настоящее время оплата производиться по квадратуре.
Кроме всего прочего рассчитывать площадь в квадратных метрах придется и при необходимости продать или переоформлять помещение в собственность.
Вычисление площади квадратной и прямоугольной комнаты
В основном все домовладения и квартиры имеют прямоугольные или квадратные комнаты. Благодаря такому расположению достаточно просто высчитать квадратуру комнаты. Эти вычисления знакомы каждому еще со школы. Для того чтобы узнать площадь прямоугольной комнаты необходимо вычислить произведение ее длины и ширины. Формула квадратного метра для вычисления выглядит следующим образом:
Sk = А х В, где А – это длина, В – ширина.
Полученный результат и будет соответствовать площади комнаты в квадратных метрах.
Для того чтобы выполнить все необходимые измерения необходимо иметь в наличии обычную рулетку. Дальнейшие вычисления могут выполняться как ручным способом, так и при помощи калькулятора.
Важно! Все измерения должны выполняться только в метрах. В том случае если, например длина комнаты измерялась в сантиметрах, то вводить числа следует с точкой.
Иногда бывает так, что стороны комнаты имеют не одинаковые значения и при вычислении площади очень часто возникают различного рода проблемы. В таком случае рекомендуется выполнить измерения в начале стены и в конце, а после этого вычислить среднее значение, которое и будет самым верным вариантом.
Расчёт площади пола, потолка и стен квартиры
В процессе ремонта, для того чтобы рассчитать точное количество необходимого материала и стоимость отделочных работ в первую очередь нужно вспомнить о том, как определить квадратный метр стены, вычислить площадь полов и потолка. Все эти вычисления будут зависеть не только от формы комнаты, но и от наличия окон и дверей. В том случае если комната прямоугольная, то вычисления квадратного метра будет выполняться по следующим формулам:
Для того чтобы узнать площадь пола и потолка требуется умножить ее длину на ширину;
Для вычисления периметра, то есть, чтобы узнать общую длину стен нужно длину и ширину сложить, а потом умножить на два;
Чтобы выполнить расчет площади стен комнаты потребуется умножить периметр на высоту и вычесть из полученного результата площадь дверных и оконных проемов.
Но так как большинство стен оснащены окнами или дверью, то для того чтобы посчитать ее квадратные метры необходимо пользоваться формулой. Рассчитать кв.м. можно по следующей схеме:Площадь стены = периметр х высоту – ширина проема х на высоту.
Измерение площади сложных фигур
Не всегда комнаты имеют правильные формы. В настоящее время достаточно часто можно встретить домовладения, а иногда даже и квартиры комнаты в которых имеют сложные формы. Несмотря на это высчитать квадратные метры возможно. Все параметры также рассчитываются по определенным формулам.
Для того чтобы рассчитать площадь комнаты, которая имеет круглую форму, требуется воспользоваться следующей формулой:
S комнаты = 3,14 х диаметр круга в квадрате /4.
В том случае если комната имеет форму полукруга, то в таком случае необходимо условно разделить ее на несколько элементов, таких как прямоугольник и полукруг. Для вычисления площади необходимо будет сложить площадь этих фигур.
Кроме того что комната или помещение могут иметь различные геометрические формы, иногда они бывают еще и криволинейными, то есть оборудованные различного рода выступами. Для того чтобы в таком случае правильно рассчитать площадь помещения необходимо сначала выполнить измерения длины и ширины помещения, а затем приниматься за вычисление площади выступа. Для этого необходимо сложить между собой длины и ширину, а затем перемножить полученные значения. В том случае если помещение оснащено совершенно нестандартными частями, то их необходимо постараться разбить на определенные элементы и выполнить расчёт площади каждого элемента по отдельности. После чего все полученные результаты суммируются между собой.
Особенности измерения квадратных метров квартиры
Осуществляя измерения квадратных метров комнаты необходимо учитывать следующие рекомендации:
Измерять ширину стен лучше всего по линии потолка или пола, так значения будут более правдивыми;
Не стоит полагаться на приблизительные расчеты или установленные ранее величины;
Для того чтобы вычислить сумму площадей всей комнаты нужно сложить площади всей комнаты, которые вычисляются для каждой стены;
Выполняя вычисления площади, обязательно стоит вычитать излишки.
Для тех, кто не знает, как посчитать, сколько метров стена сейчас создано множество программ, которые можно скачать для этих целей из интернета.
Как показывает практика, ничего сверхъестественного в подобных расчетах нет. Сделать их можно самостоятельно не прибегая к помощи специалистов. Для того чтобы перевести длину и ширину в квадратные метры порой просто необходимо вспомнить школьную программу.
Возьмите на заметку! В том случае если при измерении стен выявляется наличие впадин или выпуклостей, то необходимо к высоте и ширине накинуть несколько сантиметров.
Заключение
Планируя ремонт в квартире или собственном домовладении в первую очередь необходимо выполнить расчет площади помещения. Это необходимо в первую очередь для того чтобы приобрести количество строительных материалов. Чтобы правильно выполнить все расчеты нужно вспомнить, как измеряются квадратные метры помещений.
Полезные статьи о ремонте квартир:
Как находится площадь комнаты — Инженер ПТО
Периодически нам требуется знать площадь и объем комнаты. Эти данные могут понадобиться при проектировании отопления и вентиляции, при закупке стройматериалов и еще во многих других ситуациях. Также периодически требуется знать площадь стен. Все эти данные вычисляются легко, но предварительно придется поработать рулеткой — измерять все требуемые габариты. О том, как посчитать площадь комнаты и стен, объем помещения и пойдет речь дальше.
Часто требуется посчитать кубатуру комнаты, ее объем
Площадь комнаты в квадратных метрах
Посчитать несложно, требуется только вспомнить простейшие формулы а также провести измерения. Для этого нужны будут:
- Рулетка. Лучше — с фиксатором, но подойдет и обычная.
- Бумага и карандаш или ручка.
- Калькулятор (или считайте в столбик или в уме).
Набор инструментов нехитрый, найдется в каждом хозяйстве. Проще измерения проводить с помощником, но можно справиться и самостоятельно.
Для начала надо измерить длину стен. Делать это желательно вдоль стен, но если все они заставлены тяжелой мебелью, можно проводить измерения и посередине. Только в этом случае следите чтобы лента рулетки лежала вдоль стен, а не наискосок — погрешность измерений будет меньше.
Прямоугольная комната
Если помещение правильной формы, без выступающих частей, вычислить площадь комнаты просто. Измеряете длину и ширину, записываете на бумажке. Цифры пишите в метрах, после запятой ставите сантиметры. Например, длина 4,35 м (430 см), ширина 3,25 м (325 см).
Как высчитать площадь комнаты
Найденные цифры перемножаем, получаем площадь комнаты в квадратных метрах. Если обратимся к нашему примеру, то получится следующее: 4,35 м * 3,25 м = 14,1375 кв. м. В данной величине оставляют обычно две цифры после запятой, значит округляем. Итого, рассчитанная квадратура комнаты 14,14 квадратных метров.
Помещение неправильной формы
Если надо высчитать площадь комнаты неправильной формы, ее разбивают на простые фигуры — квадраты, прямоугольники, треугольники. Потом измеряют все нужные размеры, производят расчеты по известным формулам (есть в таблице чуть ниже).
Перед тем как посчитать площадь комнаты, тоже проводим изменения. Только в этом случае цифр будет не две, а четыре: добавится еще длина и ширина выступа. Габариты обоих кусков считаются отдельно.
Один из примеров — на фото. Так как и то, и другое — прямоугольник, площадь считается по той же формуле: длину умножаем на ширину. Найденную цифру надо отнять или прибавить к размеру помещения — в зависимости от конфигурации.
Площадь комнаты сложной формы
Покажем на этом примере как посчитать площадь комнаты с выступом (изображена на фото выше):
- Считаем квадратуру без выступа: 3,6 м * 8,5 м = 30,6 кв. м.
- Считаем габариты выступающей части: 3,25 м * 0,8 м = 2,6 кв. м.
- Складываем две величины: 30,6 кв. м. + 2,6 кв. м. = 33,2 кв. м.
Еще бывают помещения со скошенными стенами. В этом случае разбиваем ее так, чтобы получились прямоугольники и треугольник (как на рисунке ниже). Как видите, для данного случая требуется иметь пять размеров. Разбить можно было по-другому, поставив вертикальную, а не горизонтальную черту. Это не важно. Просто требуется набор простых фигур, а способ их выделения произвольный.
Как посчитать площадь комнаты неправильной формы
В этом случае порядок вычислений такой:
- Считаем большую прямоугольную часть: 6,4 м * 1,4 м = 8,96 кв. м. Если округлить, получим 9, 0 кв.м.
- Высчитываем малый прямоугольник: 2,7 м * 1,9 м = 5,13 кв. м. Округляем, получаем 5,1 кв. м.
- Считаем площадь треугольника. Так как он с прямым углом, то равен половине площади прямоугольника с такими же размерами. (1,3 м * 1,9 м) / 2 = 1,235 кв. м. После округления получаем 1,2 кв. м.
- Теперь все складываем чтобы найти общую площадь комнаты: 9,0 + 5,1 + 1,2 = 15,3 кв. м.
Планировка помещений может быть очень разнообразной, но общий принцип вы поняли: делим на простые фигуры, измеряем все требуемые размеры, высчитываем квадратуру каждого фрагмента, потом все складываем.
Формулы расчета площади и периметра простых геометрических фигур
Еще одно важное замечание: площадь комнаты, пола и потолка — это все одинаковые величины. Отличия могут быть если есть какие-то полу-колоны, не доходящие до потолка. Тогда из общей квадратуры вычитается квадратура этих элементов. В результате получаем площадь пола.
Как рассчитать квадратуру стен
Определение площади стен часто требуется при закупке отделочных материалов — обоев, штукатурки и т.п. Для этого расчета нужны дополнительные измерения. К имеющимся уже ширине и длине комнаты нужны будут:
- высота потолков;
- высота и ширина дверных проемов;
- высота и ширина оконных проемов.
Все измерения — в метрах, так как квадратуру стен тоже принято измерять в квадратных метрах.
Удобнее всего размеры наносить на план
Так как стены прямоугольные, то и площадь считается как для прямоугольника: длину умножаем на ширину. Таким же образом вычисляем размеры окон и дверных проемов, их габариты вычитаем. Для примера рассчитаем площадь стен, изображенных на схеме выше.
- Стена с дверью:
- 2,5 м * 5,6 м = 14 кв. м. — общая площадь длинной стены
- сколько занимает дверной проем: 2,1 м *0,9 м = 1,89 кв.м.
- стена без учета дверного проема — 14 кв.м — 1,89 кв. м = 12,11 кв. м
- Стена с окном:
- квадратура маленьких стен: 2,5 м * 3,2 м = 8 кв.м.
- сколько занимает окно: 1,3 м * 1,42 м = 1,846 кв. м, округляем, получаем 1,75 кв.м.
- стена без оконного проема: 8 кв. м — 1,75 кв.м = 6,25 кв.м.
Найти общую площадь стен не составит труда. Складываем все четыре цифры: 14 кв.м + 12,11 кв.м. + 8 кв.м + 6,25 кв.м. = 40,36 кв. м.
Объем комнаты
Формула расчета объема комнаты
Для некоторых расчетов требуется объем комнаты. В этом случае перемножаются три величины: ширина, длинна и высота помещения. Измеряется данная величина в кубических метрах (кубометрах), называется еще кубатурой. Для примера используем данные из предыдущего пункта:
- длинна — 5,6 м;
- ширина — 3,2 м;
- высота — 2,5 м.
Если все перемножить, получаем: 5,6 м * 3,2 м * 2,5 м = 44,8 м 3 . Итак, объем помещения 44,8 куба.
Затевая ремонт, вы должны приобрести достаточное количество обоев, клея, краски и прочих материалов. Для этого вам необходимо знать, как рассчитать площадь комнаты. Если вы поймете, как получить и применить нужные измерения, то в дальнейшем, например, при покупке или продаже недвижимости, вы сможете самостоятельно посчитать площадь помещения и проверить документы.
Простая комната прямоугольной или квадратной формы
Для того, чтобы узнать, как рассчитать площадь пола комнаты, вы должны определить его форму. В помещении, которое представляет собой прямоугольник или квадрат, нужно измерить длину и ширину и умножить значения между собой. Вы получите площадь комнаты в квадратных метрах.
Формула по которой можно высчитать площадь:
S комнаты = А х B, где A – длина, B – ширина.
Для измерения можно взять обычную рулетку. Чтобы получить наиболее точный результат, рекомендуется измерить длину в начале стены и в конце и, если цифры будут отличаться, взять среднее арифметическое значение.
Комната, в которой имеются ниши или выступы
Если в комнате имеются ниши, выступы, сантехнические или вентиляционные конструкции, то необходимо измерить отдельно площадь каждого участка. Если это ниша в стене, то к площади комнаты нужно прибавить площадь углубления. Если это выступ, то соответственно, из площади помещения нужно будет вычесть его площадь.
Такому же принципу нужно следовать, если вы хотите узнать, как рассчитать площадь потолка комнаты. Ровный, прямоугольный потолок без каких-либо ниш и выступов означает, что его необходимо измерить по длине и ширине, а затем посчитать площадь простым умножением.
Если вы планируете утеплить пол с помощью нагревательных элементов, то из общей площади пола вам нужно будет вычесть площадь, которая занята тяжелой мебелью.
Комната сложной конфигурации
Нередко встречаются комнаты необычной формы. Если есть возможность, то нужно разделить помещение на несколько прямоугольников, посчитать площадь каждого и сложить.
Площадь комнаты в форме круга вычисляется по формуле:
S комнаты = πR², где R – радиус. Необходимо учитывать, сколько градусов в секторе.
Для расчета площади комнаты треугольной формы используют формулу Герона:
Sкомнаты = √ (P(P -A) х (Р — В) х (Р — С)), где Р – половина периметра треугольника, А, В, С – длины его сторон.
Полупериметр треугольника рассчитываем так: Р = (А + В + С) / 2
Комната со сложной конфигурацией стен. Фото — welovead.com
Особенности расчета площади простых стен и стен, содержащих выступы и ниши
Теперь давайте рассмотрим такой важный момент, как расчет площади стен комнаты. Зная именно эту величину, вы сможете купить нужное количество обоев для ремонта. Конечно, вы можете обратиться к консультанту в строительном магазине, и он обязательно расскажет, как посчитать площадь стен. В этом нет ничего сложного: измерьте длину, ширину и высоту помещения. Далее площадь стен высчитываем по формуле:
Sстен = Р х С, где Р – периметр комнаты, С – высота стен.
Периметр комнаты считаем по формуле:
Р = (А + В) х 2, где A – длина, B – ширина.
Для получения более точных результатов, из общей площади стен необходимо вычесть площадь дверных и оконных проемов.
Площадь стен комнаты с выступами или углублениями будет отличаться от площади стен простой комнаты. Не забудьте к основному значению прибавить площадь стены выступающего или углубленного участка.
Будьте внимательны, производя измерения и расчеты. Если вы используете лазерную рулетку, то следите за тем, чтобы луч был направлен строго перпендикулярно стене, иначе вы получите большую погрешность в результатах.
Стены комнаты с выступами. Фото — gohawaii.about.com
При ремонте, покупке материалов нужно знать площадь помещений. Говорят еще «квадратура». Как посчитать площадь комнаты в квадратных метрах, что для этого нужно — будем рассматривать в статье.
Немного теории
Как найти площадь различных фигур, проходили еще в начальной школе. Было это давно, так что «обновить» информацию может быть полезно. Будем рассматривать только то, что может иметь отношение к полу. Итак, начнем с самого простого — единиц измерения.
Чтобы посчитать площадь комнаты в квадратных метрах, нужен будет карандаш, рулетка и некоторый багаж знаний
Что такое 1 см² и 1 м²
Площадь любой фигуры измеряется в квадратных метрах или в квадратных сантиметрах. Обозначение см² или м², может встречаться написание кв.м, кв. см., кв. метры, кв. сантиметры и другие вариации.
Что такое один квадратный сантиметр
Один квадратный сантиметр — это площадь квадрата со стороной 1 см. Если нарисовать такой квадрат, стороны которого равны 1 см, то заштрихованная часть (на рисунке красным или синим) и будет один квадратный сантиметр. Соответственно, квадрат со стороной один метр — 1 м — имеет площадь один квадратный метр. Тот самый «квадрат площади». То есть, это квадратный участок пола (или стены) со стороной в один метр — 1 м². В одном квадратном метре десять тысяч квадратных сантиметров: 1 м² = 10000 см².
Формулы
Это то, что касалось единиц измерения и их соответствия. Но наши помещения, слава богу, больше чем один квадратный метр. Как посчитать площадь комнаты? Сколько в ней квадратных метров? Обычно комната имеет форму прямоугольника, реже — квадрата. Значит, надо будет вспомнить формулы нахождения площади квадрата и прямоугольника.
При помощи очень простых формул, можно рассчитать площадь прямоугольника и квадрата
Надо длины сторон прямоугольника перемножить. Получим искомую площадь. Давайте потренируемся.
- Имеем прямоугольник со сторонами 80 см и 50 см. Перемножаем эти цифры: 80 * 50 = 4000 см². Это и будет его площадь.
- Стороны 322 см и 300 см. Получим: 322*300 = 96000 см².
- Есть квадрат со стороной 60 см. Его площадь — 60 * 60 = 3600 см².
В случае с квадратом длину стороны можно возвести в квадрат — получится одно и то же. Но можно не морочить голову. Проще помнить, что надо стороны умножить.
Простейший калкулятор для расчета площади прямоугольной комнаты.
Перевод квадратных сантиметров в квадратные метры
Когда имеем дело с сотнями сантиметров, удобнее и проще считать в метрах. Мы знаем, что в одном метре сто сантиметров. Давайте решим те же примеры, но переведем сантиметры в метры:
- 80 см = 0,8 м; 50 см = 0,5 м. Перемножаем 0,8*0,5 = 0,4 м². То есть, 0,4 квадратных метра.
- 322 см это 3,22 м; 300 см это 3 м. Теперь умножаем полученные цифры: 3,22 * 3 = 9,6 м².
- 60 см равны 0,6 м. Площадь квадрата с такой стороной 0,6*0,6 = 0,36 м².
Цифры получаются намного меньше, запомнить их проще. И если мы хотим посчитать площадь комнаты в квадратных метрах, ее размеры мы меряем в метрах, а не сантиметрах. Можно перевести квадратные сантиметры в квадратные метры. Как уже говорили, в одном квадратном метре содержится десять тысяч квадратных сантиметров.
Соотношение квадратных сантиметров и квадратных метров
Если же у вас есть площадь в квадратных сантиметрах, чтобы перевести ее в квадратные метры, цифру надо разделить на 10 000. Например:
- 4000 см² / 10000 = 0,4 м²;
- 96000 см² / 10000 = 9,6 м²;
- 3600 см²/ 10000 = 0,36 м².
Как видите, все просто. Надо только запомнить основные положения и посчитать площадь комнаты в квадратных метрах будет совсем несложно. Нужно будет предварительно провести измерения, а потом заняться расчетами.
Как посчитать площадь комнаты в квадратных метрах
Рассчитать площадь комнаты, часто надо при закупке материалов для строительства или ремонта. Например, некоторые виды напольного покрытия продают на квадраты (то есть, на квадратные метры). Чтобы правильно рассчитать его количество, надо знать площадь пола (часто говорят квадратура комнаты, что по сути одно и то же).
Можно найти площадь комнаты зная длину и ширину
Измерения
Берем рулетку, листок бумаги, карандаш и калькулятор. На бумаге рисуем план комнаты. При помощи рулетки измеряем длины всех стен. Измерения проводим на уровне пола — если постройка старая, велика вероятность того, что стены «завалены» в ту или другую сторону. Тем более что определяем площадь пола, так что логичнее измерять вплотную к стенам, но мерную ленту тянуть по полу.
На схеме проставляем измерения. Лучше всего в метрах. Точность измерений — до сантиметра. Это понадобится при покупке материалов, которые продаются на погонные метры — линолеум, ковролин или другие рулонные покрытия. Чтобы посчитать площадь комнаты в квадратных метрах, тоже желательна такая точность. Хоть можно, конечно, и округлить. Но лучше это сделать уже получив результат.
Как высчитать квадратуру комнаты
Имея длину и ширину комнаты прямоугольной формы, цифры надо просто перемножить. На рисунке выше такая комната нарисована справа. Длинная стена равна 7 м, короткая — 4 метрам. Перемножаем 7*4 = 28 квадратных метров. Это и есть площадь этого помещения, пола. Другими словами, мы нашли квадратуру. Используя эту цифру, можно покупать напольное покрытие. Но надо иметь в виду, что требуется некоторый запас — на подгонку, подрезку. Чем сложнее схема укладки и чем больше фрагменты напольного покрытия, тем запас должен быть больше.
Часто комната не прямоугольная, а имеет более сложную форму. Чтобы посчитать площадь такой комнаты в квадратных метрах, ее разбивают на простые фигуры. Если удается — на прямоугольники или квадраты. Например, Г-образную комнату разбивают на два прямоугольника. Затем считают площадь каждого прямоугольника отдельно, потом их складывают.
Как найти площадь комнаты сложной формы
- Считаем большой прямоугольник: 5 м * 4,35 м = 21,75 м².
- Находим квадратуру маленького: 2,5 м * 2,65 м = 6,625 м².
- Площадь пола в этом помещении равна сумме 21,75 м² + 6,625 м² = 28,375 м².
При покупке материалов, проще пользоваться округленными значениями. Чаще всего говорят, что в этом помещении 28,4 квадрата.
Если помещение имеет участок «срезанной» стены, как на рисунке ниже, проще всего дорисовать прямоугольник так, чтобы косая делила его на два треугольника. В этом случае снова-таки получаем Г-образную комнату. Как высчитать ее площадь уже знаем.
Получается, ищем площадь трех прямоугольников
А недостающий участок — это половина маленького прямоугольника. То есть, находим площадь этого маленького прямоугольника, делим ее пополам и прибавляем к размерам Г-образного участка.
Приведем пример расчета подставляя произвольные значения:
- Большой прямоугольник: 1,75 м *1,93 м = 3,3775 м². Для простоты округлим до 3,38 м².
- Средний прямоугольник: 1,18 м * 0,57 м = 0,6726 м². Снова округлим до 0,67 м².
- Самый маленький прямоугольник (в нашем случае это будет квадрат): 0,57 м *0,57 м = 0,3249 м2, после округления имеем 0,33 м².
- Чтобы найти общую площадь складываем квадратуру двух прямоугольников и добавляем половину площади последнего, самого маленького участка. 3,38 + 0,67 +0,33/2 = 3,38 + 0,67 +0,17 = 4,22 м².
Такая методика — разбиение на простые фигуры — самый удобный и простой метод. Всегда стоит стараться преобразовать сложную фигуру в набор простых. Правда, измерений может потребоваться больше.
Площадь квартиры
Так как ремонт — это «бедствие», которое периодически нас посещает, лучше сделать план всей квартиры с подробными замерами. На этом же плане проставьте площади каждого помещения. После того, как рассчитаете квадратуру всех комнат, сложите цифры и получите метраж квартиры.
Для плана лучше рассчитать метраж каждой комнаты
Один вариант может быть как на рисунке выше — для того, чтобы знать именно площади каждого помещения. Это потребуется для закупки материалов. Но нужен будет еще план, на котором будут все длины. Простенки, ширина окон, дверей и т.д. Это потребуется, например, для разработки схем укладки ламината, напольной плитки или других покрытий. Нужен будет такой план и при планировании теплого пола.
Есть, кстати, приложение-калькулятор для телефона, при помощи которого все вычисления сделать очень просто.
Калькуляторквадратных метров — рассчитайте свою площадь
Нравится? Пожалуйста, поделитесь
Пожалуйста, помогите мне распространить информацию, поделившись этим с друзьями или на своем веб-сайте / в блоге. Спасибо.
Ссылка на сайт
Заявление об отказе от ответственности: Несмотря на то, что для создания этого калькулятора были приложены все усилия, мы не можем несет ответственность за любой ущерб или денежные убытки, возникшие в результате или в связи с его использованием. Этот инструмент предназначен исключительно в качестве услуги для вас, пожалуйста, используйте его на свой страх и риск.Полный отказ от ответственности. Не используйте расчеты для всего, что может привести к гибели людей, деньгам, имуществу и т. Д. Из-за неточных расчетов.
Как рассчитать квадратные футы
Чтобы вычислить площадь в квадратных футах, вам потребуются измерения ширины и длины (для квадратной формы) или диаметра (для круглой площади). Возможно, область, которую вы хотите измерить, является странной. форма (например, комната или сад). В этом случае разделение его на более мелкие части и выполнение отдельных расчетов — хороший способ рассчитать общую площадь в квадратных футах.
Допустим, у вас есть комната прямоугольной формы и вы хотите рассчитать квадратные метры для пола или ковра. Самый простой метод расчета квадратный метр предназначен для измерения длины и ширины в футах, а затем умножения этих двух чисел вместе, чтобы получить результат в футах 2 . Если вы измеряете комнату под напольное покрытие, ознакомьтесь с нашей статьей о том, как измерить новый пол.
Если вам нужно рассчитать площадь квадратных футов в форме буквы L, подумайте о том, чтобы разделить форму на прямоугольные части и рассматривать их как отдельные области для расчета (складывая их вместе в конце).Дополнительные инструкции см. В нашей полной статье: как рассчитать квадратные метры.
Проведение расчетов
- Для квадратной или прямоугольной области измерьте ширину и длину в футах.
- Умножьте Длина × Ширина , чтобы получить площадь.
Примечание. Если ваши измерения не в футах, сначала преобразуйте их в футы, используя приведенные ниже инструкции или конвертер длины.
- Если в дюймах: разделите каждую цифру на 12, чтобы получить размер в футах.
- Если в ярдах: умножьте каждую цифру на 3, чтобы получить размер в футах.
- Если в сантиметрах: умножьте каждую цифру на 0,03281, чтобы получить размер стопы.
- Если в метрах: умножьте каждую цифру на 3,281, чтобы получить размер в футах.
После того, как вы произведете расчет, у вас будет цифра в квадратных футах ( 2 футов). Чтобы рассчитать стоимость материалов, просто умножьте эту цифру на цену за квадратный фут. Для других форм области (круги, треугольники) инструкции и формулы приведены ниже.Если вы хотите преобразовать свою фигуру в кубических футов, взгляните на калькулятор квадратных футов в кубические футы.
Рекламное объявлениеКонечно, может оказаться, что измеряемая площадь не прямоугольная. Инструкции по расчету для круглой и треугольной областей приведены ниже.
Сколько квадратных футов в комнате 20×20?
Площадь комнаты 20 футов в ширину и 20 футов в длину составляет 400 квадратных футов . Чтобы рассчитать это, вы просто умножаете ширину на высоту.20 футов × 20 футов = 400 квадратных футов.
Сколько квадратных футов в комнате 12х12?
Площадь комнаты 12 футов в ширину и 12 футов в длину составляет 144 квадратных футов . Чтобы рассчитать это, вы просто умножаете ширину на высоту. 12 футов × 12 футов = 144 квадратных фута.
Квадратный метр для круглой площади
- Измерьте диаметр вашего круга в футах.
- Чтобы вычислить площадь круга, воспользуемся формулой: π x (диаметр / 2) 2 .То есть π (pi равно 3,14159265), умноженное на половину квадрата диаметра. Итак, мы делим наш диаметр на 2, а затем возводим его в квадрат (умножаем на себя), а затем умножаем на π.
- Это дает вам цифру в квадратных футах (ft 2 ). Чтобы рассчитать стоимость материалов, просто умножьте эту цифру на «цену за квадратный фут ».
Формула для вычисления площади круга: π r 2 (где r — радиус круга, равный половине диаметра).π — символ числа Пи (3,14159265).
На этом веб-сайте также представлен ряд финансовых калькуляторов, в том числе наш популярный калькулятор сложных процентов, а также другие удобные калькуляторы для повседневного использования. Ну действуй добавьте его в закладки или на главный экран смартфона.
Четыре стены и потолок комнаты подлежат ремонту 10 класс по математике CBSE
Подсказка: — Формула, которую мы собираемся использовать для вычисления площади всей комнаты, будет следующей: —\ [= 2 \ text {} \ left (l \ text {} + \ text {} b \ right) \ text {} h \ text {} + \ text {} l \ times b \]
Здесь ‘l’ обозначает длину комнаты.
А «b» означает ширину комнаты.
В то время как «h» обозначает высоту комнаты.
А потом умножим ответ на 30.
Полное пошаговое решение —
Итак, посчитаем площадь всей комнаты.
Мы знаем, что длина комнаты 8 метров, ширина комнаты 4 метра и высота комнаты 3 метра.
Давайте теперь подставим в формулу меры длины, ширины и высоты комнаты.
\ [\ begin {array} {* {35} {l}}
= 2 \ text {} \ left (l \ text {} + \ text {} b \ right) \ text {} h \ text {} + \ text {} l \ times b \\
= 2 \ text {} \ left (8 \ text {} + \ text {} 4 \ right) \ text {} 3 \ text {} + \ text {} 8 \ text {} \ times \ text {} 4 \\
= 2 \ text {} \ left (12 \ right) \ text {} 3 \ text {} + \ text {} 8 \ text {} \ times \ text {} 4 \\
= 24 \ text {} \ times \ text {} 3 \ text {} + \ text {} 32 \\
= 72 \ text {} + \ text {} 32 \\
= 104 \ текст {} {{m} ^ {2}} \\
\ end {array} \]
Итак, площадь комнаты составляет 104 квадратных метра.
Давайте теперь посчитаем стоимость ремонта комнаты в рупиях. 30 за квадратный метр.
\ [104 \ times 30 \ text {} = \ text {} Rs. \ Text {} 3120 \]
Таким образом, стоимость ремонта комнаты по цене Rs. 30 за квадратный метр составляет рупий. 3120.
Следовательно, ответ на этот вопрос: (c) Rs. 3120.
Примечание: — Очень важно производить все расчеты очень внимательно, как если бы в расчетах была какая-то ошибка; ответ может оказаться неправильным.
Давайте теперь поймем причину использования следующей формулы для решения этого вопроса: —
\ [= 2 \ text {} \ left (l \ text {} + \ text {} b \ right) \ text {} h \ text {} + \ text {} l \ times b \]
Поскольку мы должны рассчитать площадь только четырех стен и потолка комнаты, а не пола, мы использовали эту формулу.
Кроме того, чтобы вычислить площадь только четырех стен комнаты, мы используем формулу \ [2 (l + b) h \]. И, чтобы рассчитать площадь потолка, мы должны умножить длину и ширину потолка, так как это та самая формула, которую мы используем для расчета площади прямоугольника, и форма потолка также прямоугольная.
Следовательно, мы использовали эту формулу: —
\ [= 2 \ text {} \ left (l \ text {} + \ text {} b \ right) \ text {} h \ text {} + \ text {} l \ times b \]
площадь стены помещения формула
После того, как вы выполнили все эти измерения, вычтите площадь окон и дверей из общей площади стены.Пол, стена или потолок приемной, холла, кухни, гостиной, столовой, коридора, лестницы, спальни, ванной комнаты, туалета, кабинета, телевизионной комнаты, гаражного подвала или кладовой в подвале. Комната футов длиной. Сколько места займет мебель в комнате. Найдите полезные советы о том, как определить площадь комнаты, будь то стандартная, прямоугольная или необычная форма. Шаг 2: Измерьте высоту стен от пола до потолка. Чтобы измерить прямоугольную комнату, с помощью рулетки, карандаша и бумаги запишите длину и ширину комнаты.Разрез помещения 3. Формула: количество кирпичей = площадь стены / площадь кирпича. Узнайте, сколько стоит покрасить стену краской. Комната высотой в фут. С помощью рулетки измерьте ширину и высоту стены. Ошибки будут исправлены при обнаружении, и Lowe’s оставляет за собой право отозвать любое заявленное предложение и исправить любые ошибки, неточности или упущения, в том числе после отправки заказа. Расчеты на этой странице основаны на следующих предположениях: -i) Кирпичи уложены на подрамниках ii) Между кирпичами имеется шов из раствора на 1/2 дюйма iii) Раствор составляет 1: 4 (цемент: песок). Простой способ рассчитать количество кирпичей — разделить площадь стены на площадь поверхности (вертикальную грань) одного кирпича.Изменение расчетной высоты для комнат Если в комнате есть наклонная стена, подумайте о том, чтобы отрегулировать расчетную высоту, чтобы получить более точные результаты для площади и объема комнаты. Расчет периметра и площади Общие формулы (уравнения) включают: P = 2l + 2w периметр прямоугольника A = l + w площадь квадрата или прямоугольника E = mc2 Знаменитая формула Альберта Эйнштейна для расчета энергии. В обычной прямоугольной комнате 4 стены и противоположные стены равны, а высота одинакова, формула A = hw1 + hw2 + hw1 + hw2 = 2hw1 + 2hw2 = 2h (w1 + w2), где пол равен w1 пользователя w2.Для расчета площади следует длину комнаты умножить на ее ширину. Однако нетипичная архитектура и дизайн могут привести к получению треугольной, круглой или… Это общая площадь стены в квадратных футах, которую нужно покрасить. Что означает, что язык подчиняется правилам? d. Галлон специальной текстурированной краски покрывает 200 футов 2. Стену необходимо покрасить дважды (на стену необходимо нанести два слоя краски). Записав длину и высоту стены, умножьте эти числа, чтобы вычислить площадь поверхности стены в квадратных футах.Запишите размеры по соответствующей формуле, найдите площадь помещения. Затем сложите все площади вместе, чтобы определить общую площадь вашей комнаты. Подставив два числа, вы обнаружите, что площадь комнаты составляет 12 футов * … Включите буфер примерно в 15% при покупке материалов. Чтобы оценить наши усилия, пожалуйста, поставьте нам лайк. Площадь = 4600 см 2 _____ 2) Прямоугольное помещение размером 8 м х 6 м х 3 м подлежит покраске. Чтобы рассчитать площадь стены, используйте стандартную формулу (Длина) x (Ширина) = Площадь.TL; DR (слишком длинный; не читал) Чтобы вычислить площадь прямоугольной комнаты в квадратных метрах, умножьте ее длину в метрах на ширину в метрах. Кончик! Если периметр 40 футов, а высота 10 футов, умножьте 40 на 10 футов, чтобы получить площадь стены 400 квадратных футов. Обычно вас интересуют квадратные футы, поэтому измерения необходимо выражать в футах. Пример. Предположим, у вас есть комната размером 10 на 12 футов с потолком на высоте 7 футов 10 дюймов над полом. Iii) раствор 1: 4 (цемент: песок). Самый простой способ рассчитать количество кирпичей — разделить площадь стены на площадь поверхности (вертикальная грань) одного кирпича.Это соответствует параметрам Revit расчета площади помещения. Бесплатные полезные видео — Подпишитесь на Mastguru Получайте бесплатные уведомления о текущих делах и правительственных вакансиях на свой почтовый ящик. Шаг 3: Умножьте числа, которые вы нашли на шагах 1 и 2. Поскольку стены могут быть высокими, вы можете попросить друга или соседа помочь вам подержать измерительную ленту. 1 Нравится Ответить. Наконец, сложите все области вместе, чтобы получить общую площадь комнаты. Общая площадь (высота x ширина) произведения искусства должна занимать от до площади открытого пространства стены.Создает общую сумму для каждой стены, затем проходит по найденным стенам и вычисляет площадь проема … Обратите внимание, что если вы измеряете комнату в дюймах, результат будет в квадратных дюймах. Вместимость складских помещений. Количество краски = Площадь стены / Площадь, покрытая краской = 200 / 350. Площадь 4 стен = 2 (10 + 5) x 4. Для типичной краски вы должны разделить на 350. Периметр — это расстояние вокруг комнаты. Площадь прямоугольной стены равна hw, где h — высота, а w — ширина. 2.Это измерение понадобится вам при оценке количества раствора для плитки, раствора и герметика, которые вы будете использовать для своего проекта. Это поможет вам рассчитать, сколько краски или обоев вам нужно для комнаты, не создавая большого количества лишних материалов, когда вы закончите. Чтобы рассчитать площадь стены, используйте стандартную формулу (Длина) x (Ширина) = Площадь. Например, если длина комнаты 3,40 м, а ширина 5,20 м, то достаточно будет определить площадь потолка 3,40х5,20, в результате получится 17,68 квадратных метров.Один дюйм эквивалентен 2,54 сантиметру. Затем используйте ту же формулу для записи отдельной площади окон и дверей. Количество влажной краски для стен: для мокрой стены означает старую стену, мы считаем, что краска на 1 галлон может покрыть до 350 квадратных футов площади (это соотношение не фиксировано, но мы принимаем его как правило большого пальца для расчета). После того, как вы определили длину и ширину своей комнаты и рассчитали ее квадратные метры, вам нужно будет внести поправку на возможные отходы. Это заставит calwallAreaMinusOpenings сообщить об отрицательной площади стены.Шаг 5: Рассчитайте площадь поверхности бетонного блока с припуском раствора: пусть блок имеет размер 16 ″ x 8 ″ x 8 ″, а припуск раствора составляет 1 ″ ∴ Площадь поверхности одного блока с раствором = (16 + 1) x (8 +1) = 153 дюйма² = 153/12 × 12 = 1,0625 кв. Фута. В приведенном выше калькуляторе используется приблизительная формула, предполагающая, что эллипсоид почти сферический: SA ≈ 4π 1,6 √ (a 1,6 b 1,6 + a 1,6 c 1,6 + b 1,6 c 1,6) / 3, где a,… Запишите размеры с помощью соответствующей формулы, найдите площадь поверхности комнаты. Чтобы рассчитать площадь стены, используйте стандартную формулу (Длина) x (Ширина) = Площадь.Затем разделите длину пополам и умножьте это число на ширину. Один дюйм эквивалентен 2,54 сантиметру. 2. Чтобы рассчитать площадь стены, используйте стандартную формулу (Длина) x (Ширина) = Площадь. Вы не можете думать об AutoCAD и запускать Revit. Для вычисления площади поверхности эллипсоида нет простой и точной формулы, такой как у куба или другой более простой формы. Это защитит вас от любых непредвиденных просчетов и предотвратит нехватку материалов в середине вашего проекта.Научитесь находить площадь, занимаемую четырьмя стенами комнаты. Площадь квадрата определяется как количество квадратных единиц, необходимых для заполнения квадрата. Используйте этот калькулятор для расчета площади стены комнаты. Введите ширину и глубину стены и единицу измерения, и результирующая площадь стены будет рассчитана в нескольких различных единицах измерения, как метрических, так и британских, что полезно, если вы измеряете стену в одной единице, но, например, размер плитки, который вам нужен, измеряется в другой единице. Формула работает, если ваша комната имеет квадратную или прямоугольную форму, но иногда комнаты имеют L-образную форму, или, может быть, вы хотите измерить свободное пространство на полу вокруг мебели, которая уже находится в комнате.Умножьте длину на ширину для площади прямоугольной формы, такой как потолок или пол. ii) Между кирпичами имеется шов на 1/2 дюйма из раствора. Длина x Ширина = Площадь. Как узнать площадь кубоида? Знание того, как измерить квадратные метры комнаты, упростит выполнение таких проектов, как установка и покраска полов, и сэкономит вам деньги на расходных материалах. Спрашивает: Хелио Эскрич | Последнее обновление: 19 апреля 2020 г. Формула периметра прямоугольника P =. Вопрос — Используя формулу, найдите площадь стены, если длина комнаты 8 м, ширина 6 м и высота 2.5 мес. В чем разница между маслом CJ 4 и CK 4? Комната шириной в фут. Используйте этот калькулятор длины x ширины для определения площади в следующих случаях: 1. Повторите это для каждой стены в комнате. Узнайте, сколько стоит покрасить стену краской. По какой формуле рассчитывается периметр прямоугольника? 5. Ссылка на домашнюю страницу Lowe’s Home Improvement, Размещение мебели, чтобы максимально использовать комнату. Например, полукруглый потолок над оконным проемом с радиусом 5 футов имеет площадь 39.2) = 78,54, а половина 78,54 равна 39,27. После того, как вы выполнили все эти измерения, вычтите площадь окон и дверей из общей площади стены. Площадь четырех стен кубоида составляет 448 кв. М. Зал из базового образца 2013 года (или любое помещение со стеной с несколькими дверями, ведущими в другие комнаты. Если галлон краски покрывает около 350 квадратных футов, сколько галлонов требуется для окраски комнаты , округлено до ближайшего галлона. В каких автомобилях самые дорогие каталитические нейтрализаторы? Заключение Какие реальные ситуации требуют от нас использования площади? LD.Итак, если ваша комната имеет размеры 11 футов в ширину и 15 футов в длину, ваша общая площадь будет 165 квадратных футов. Это описано в первом методе. Формула площади четырех стен, => (площадь основания) + (площадь потолка) => Площадь основания = l * b => Площадь потолка = l * b Итак, => (площадь основания) + (площадь потолка) = 2 (l * b) => В соответствии с площадью поверхности кубоида мы имеем 2 (l + b) * h. В итоге получаем, что площадь четырех стен = 2 (l + b) * h. Это поможет вам подсчитать, сколько краски или обоев вам нужно для комнаты без большого количества… Как определить общую площадь поверхности куба? Умножьте периметр комнаты на высоту потолка, чтобы получить площадь стен.Площадь 4-х стен комнаты = 2 (Длина + Ширина) x Высота. Умножьте длину на ширину, чтобы получить общую площадь потолка. Научитесь находить площадь, занимаемую четырьмя стенами комнаты. Сектор. Вы можете использовать наш калькулятор квадратных метров, чтобы легко измерить основную площадь комнаты. Вы можете добавить это число к площади других измерений в вашей комнате для общей площади. Вопрос 364425: Формула для определения площади стен прямоугольной комнаты: A = 2h (l + b), h — высота стены, l — длина комнаты, а b — ширина комнаты.d. Галлон специальной текстурированной краски покрывает 200 футов 2. Стену необходимо покрасить дважды (на стену необходимо нанести два слоя краски). Формула площади поверхности для треугольной призмы: 2 * (высота x основание / 2) + длина x ширина 1 + длина x ширина 2 + длина x основание, как показано на рисунке ниже: Треугольная призма представляет собой стопку треугольников, поэтому при вычислении площади оснований применяются обычные правила решения треугольников. В обычной прямоугольной комнате 4 стены и противоположные стены равны, а высота одинакова, формула A = hw1 + hw2 + hw1 + hw2 = 2hw1 + 2hw2 = 2h (w1 + w2), где пол равен w1 пользователя w2.Если комната необычной формы, разбейте ее на отдельные прямоугольники, вычислите площадь в квадратных метрах для каждого прямоугольника, а затем сложите площади всех прямоугольников для общей площади комнаты в квадратных метрах. Чем больше, тем лучше. Создать визуальное представление: Линии высоты крыши: отображение линий высоты крыши в проекте. Для прямоугольников периметр равен 2 * L + 2 * W, где L и W — длина и ширина. Если галлон краски стоит 22,95 доллара плюс налог в размере 8%, какова будет общая стоимость покраски комнаты? В чем разница между Koolaburra от UGG и UGG? Узнайте стоимость оклейки стены обоями.Формулы — это уравнения, используемые для конкретных расчетов. Электронная почта: [email protected] Файл превью 193 КБ Отчет. Теперь у вас есть область U-образного выступа в вашей комнате. Чтобы рассчитать площадь стены, используйте стандартную формулу (Ширина) x (Высота) = Площадь. Наши местные магазины не соблюдают онлайн-цены. Расчет площади комнаты или объекта неправильной формы. Если вы хотите рассчитать площадь комнат не квадратной или прямоугольной формы, рассчитайте разные части комнаты отдельно.Измерение потолков Рассчитайте площадь пола. Вместимость морозильной или холодильной камеры. Кубоиды имеют шесть граней, образующих выпуклый многогранник. 43,3 тысяч просмотров Затем рассчитайте площадь отдельных углублений, измерив их длину и ширину. Шаг 6: Разделите число, полученное на шаге 5, на количество квадратных футов на галлон. Copyright 2020 FindAnyAnswer Все права защищены. Решение: l = 8 м; w = 6 м; h = 3 м. Окрашивание стен комнаты, то есть здесь мы должны использовать формулу для площади четырех стен.Вы будете использовать этот же процесс для Т-образных и L-образных комнат. Общая площадь пола не должна включать шахты без отверстий или внутренние дворы. Площадь 4 стен = 30 х 4. Расчет площади стен комнаты. Для расчета площади комнаты необходимо знать основную формулу для расчета площади. Чтобы рассчитать площадь, просто умножьте длину комнаты на ширину комнаты или площадь, равную длине, умноженной на ширину. Это не редкость… Ответ (1 из 5): Умножьте длину периметра комнаты на высоту стены, чтобы получить площадь стены.Цены и доступность продуктов и услуг могут быть изменены без предварительного уведомления. Кубоид — это трехмерная фигура. Формула ширины также может использоваться для определения идеальной высоты для вертикально ориентированной детали. Видео @mastguru. Как правило, площадь определяется как область, занимаемая внутри границы плоского объекта или двумерной фигуры. Измерения производятся в квадратных единицах, стандартной единицей измерения являются квадратные метры (м 2). Для вычисления площади используются квадратные метры (м 2). предварительно определенные формулы для квадратов, прямоугольников, круга, треугольников и т. д.Это простая математическая задача, которую вы видели в 6-м классе и которая требует… Шаг 4 Попросите друга помочь вам провести измерения. Найдите площадь треугольника по формуле: площадь = (ширина на длину) / 2 и круга по формуле: площадь = пи на квадрат радиуса. посмотрите, 4 стены — это прямоугольники …. и площадь прямоугольника задается длиной x шириной … примените эту формулу для четырех стен …. все четыре стены будут иметь h (высоту комнаты) как одну сторону …. и другая сторона будет l для 2 и b для других 2…. (осмотритесь в комнате … Сектор круга — это, по сути, пропорция круга, заключенного между двумя радиусами и … Если галлон краски покрывает около 350 квадратных футов, сколько галлонов требуется для окраски комнаты, с округлением до ближайшего галлона. Поскольку только половина круга выходит за пределы вашей стены, разделите площадь пополам. Для прямоугольника CDHG длины двух соседних сторон равны l и h. Его площадь = lh Для прямоугольника DAEH длины двух смежных сторон — это b и h. Его площадь = bh Обратите внимание, что противоположные стены одинакового размера и формы также имеют одинаковую площадь.Найдите площадь треугольника по формуле: площадь = (ширина на длину) / 2 и круга по формуле: площадь = пи на квадрат радиуса. Другие нормы, включая местные строительные нормы и правила, могут иметь другое определение. Предположим, площадь 4 стен = 2 (b h + h l). Примечание. Площадь (= 2 фунта) не учитывается, поскольку они являются основанием и верхом. холл из базового образца 2013 года (или любое помещение со стеной с несколькими дверями, ведущими в другие комнаты. Если потолок плоский, по… Текущие события 14 августа 2019 года. Площадь квадрата определяется как количество квадратных единиц, необходимых для заполнения квадрат.Затем сложите все площади вместе, чтобы определить общую площадь вашей комнаты. Если вы измеряете комнату или другой физический объект, сначала нарисуйте диаграмму области, а затем нарисуйте или вырежьте линии в форме, чтобы разделить ее на более простые формы. После того, как вы рассчитали это, умножьте сумму на 3,14 (пи). Площадь 4-х стен = 120 м², Ответ: Площадь 4-х стен 120 м². Чтобы покрасить стену, окрасить ее обоями или панелью, вы должны знать общую площадь стены, чтобы вы могли купить необходимое количество отделки. Вообще говоря, гранями кубоида могут быть любые четырехугольники.Например, если общая площадь окон и дверей в комнатах составляет 59,42 квадратных футов, то вы вычисляете 485,77 — 59,42 = 426,35. Повторите это для каждой стены в комнате. Процитируйте этот калькулятор и страницу. Это даст вам площадь полного круга. Ключом к точному вычислению площади поверхности стены является использование основных формул для определения площади двумерных форм. Например, комната длиной 15 футов и шириной 10 футов имеет общую площадь потолка 150 квадратных футов — 15 умножить на 10 = 150.Затем используйте ту же формулу для записи отдельной площади окон и дверей. Прямоугольные стены Шаг 1 Измерьте высоту стены по вертикали и ширину по горизонтали. Затем используйте ту же формулу для записи отдельной площади окон и дверей. Расчет площади стен комнаты. Площадь прямоугольной стены равна hw, где h — высота, а w — ширина. Зона отдыха для определения приблизительной вместимости. Точно так же вы можете спросить, как рассчитать площадь стены? Сообщение 3 из 9 fauzi1202.По умолчанию Revit вычисляет площадь комнаты, используя отделку стены в качестве границы. Затем умножьте эти числа, чтобы получить общую площадь комнаты. Чтобы рассчитать площадь стены, используйте стандартную формулу (Длина) x (Ширина) = Площадь. Что означает площадь боковой поверхности? Шаг 2 Умножьте размеры ширины и высоты. W1 = I1 SW SW = Площадь общей стены I1 = Интенсивность, падающая на стену I2 = Интенсивность, передаваемая в комнату 2, и, поскольку I1 = intensity интенсивность плоской волны, мощность звука, поражающего левую сторону стены, равна: W c SW p WIS 4 2 1 1 1 ρ = = В приемной комнате (Комната 2) мы знаем, что любая энергия, проходящая через общую стену, в конечном итоге должна быть поглощена в этой комнате.Как рассчитать общую площадь комнаты? Вы можете составить график для расчета площади всех ваших внешних стен. Вы можете измерить периметр комнаты, чтобы рассчитать площадь стены, но если вы уже знаете площадь этажа комнаты — например, из планов этажей — может быть быстрее рассчитать площадь стены на основе этого числа, если вы комната квадратная или круглая. Теперь, когда два измерения отмечены, они готовы к использованию в формуле. В общем, область определяется как область, занимаемая внутри границы плоского объекта или двухмерной фигуры.Измерения производятся в квадратных единицах, стандартная единица — квадратные метры (м 2). Для вычисления площади существуют заранее определенные формулы для квадратов, прямоугольников, круга, треугольников и т. Д. Количество строительных участков определенной длины. и шириной возможны на участке земли в гектарах или акрах. поскольку мы знаем, что стены косвенно являются прямоугольниками. Итак, если мы найдем площадь двух противоположных стен [по формуле [lxb]], если сложим обе площади и умножим их на 4, то мы получим площадь четырех стен.(Вычтите площадь двери и окон из общей площади.) Найдите общую площадь стен прямоугольной комнаты с 10-футовыми потолками и размером 15 на 12 футов. Вычислить площади комнаты в: центре стены, центре сердцевины стены, слое сердцевины стены или отделке стены. Как найти площадь боковой поверхности? После того, как вы выполнили все эти измерения, вычтите площадь окон и дверей из общей площади стены. Пошаговое объяснение: Площадь четырех стен = периметр этажа x высота.Далее возникает вопрос, а какова площадь четырех стенок кубоида? Затем используйте ту же формулу для записи отдельной площади окон и дверей. Как найти площадь потолка?
Food Babe Kitchen Книга, Различать исходные документы и ваучеры, Брошюра Sainsbury’s Double Up, Наталья Молчанова Причина смерти, Hôtesse Paris Job étudiant, Можете ли вы написать по телефону 999 Ирландия,
Уравнения трубы
Поперечное сечение внутри участка трубы
Внутреннее поперечное сечение трубы можно рассчитать как
A i = π (d i /2) 2
= π d i 2 /4 (1)
, где
A i = внутреннее сечение трубы (м 2 , дюйм 2 )
d i = внутренний диаметр (м, дюйм)
Площадь поперечного сечения стенки трубы
Площадь поперечного сечения стенки — или площадь материала трубопровода — можно рассчитать как
A м = π (d o /2) 2 — π (d i /2) 2
= π ( d o 2 — d i 2 ) / 4 (2)
где
A м = площадь поперечного сечения стенки трубы (м 2 , дюйм 2 )
d o = внешний диаметр (м, дюйм)
Вес пустых труб
Вес пустых труб на единицу длины можно рассчитать как
w p = ρ м A м
= ρ м ( π (d o /2) 2 π19 90 d148 — 2) 2 )
= ρ м π (d o 2 — d i 2 ) / 4 (3)
где
w p = вес пустой трубы на единицу длины (кг / м, фунт / дюйм)
ρ s = плотность материала трубы (кг / м 3 , фунт / дюйм 3 )
Вес жидкости в трубах
Вес жидкости в трубах на единицу длины можно рассчитать как
w l = ρ л A
= ρ л π (d i /2)
0 214
l π d i 2 /4 (4)где
w l = вес жидкости в трубе на единицу длины трубы (кг, фунт)
ρ л = плотность жидкости (кг / м 3 , фунт / дюйм 3 )
Масса трубы, заполненной жидкостью
Вес трубы, заполненной жидкостью на единицу длины, можно рассчитать как
w = w l + w p (5)
где
w = вес трубы и жидкости на единицу длины трубы (кг, фунт)
Площадь наружной поверхности труб
Площадь внешней поверхности стальных труб на единицу длины можно рассчитать как
A o = 2 π (d o /2)
= π d o (6)
где
A o = внешняя площадь трубы — на единицу длины трубы (м 2 , в 2 )
Площадь внутренней поверхности труб
Площадь внутренней поверхности стальных труб на единицу длины можно рассчитать как
A i = 2 π (d i /2)
= π d i (7)
где
A i внутри площади труба — на единицу длины трубы (м 2 , дюйм 2 )
Калькулятор длины и ширины к площади
Нажмите «Сохранить настройки», чтобы перезагрузить страницу с уникальным адресом веб-страницы для создания закладок и обмена текущими настройками инструмента.
✕ очистить настройки
Отразить инструмент с текущими настройками и рассчитать длину или ширину
К сожалению, здесь не удалось отобразить графику, потому что ваш браузер не поддерживает холст HTML5.Сопутствующие инструменты
Руководство пользователя
Этот инструмент рассчитает площадь прямоугольника по длине и ширине. Для единиц длины, ширины и площади ручное преобразование не требуется, все они могут выбираться независимо. Калькулятор позаботится о преобразовании значений, введенных в разных единицах измерения.
После ввода размеров длины и ширины вместе с предпочтительными единицами измерения для каждого параметра вычисленное значение площади будет показано в поле ответа, выделенном красным.Также будет показано изображение масштабированного чертежа с правильными пропорциями с пометкой каждого размера и расчетной площади.
Формула
Формула, используемая данным калькулятором для вычисления площади прямоугольной формы:
А = Д · Ш
Символы
- A = Площадь
- L = длина
- W = ширина
Размеры участка — длина и ширина
Введите размеры длины и ширины для вычисляемой прямоугольной формы и выберите соответствующие единицы для каждого введенного значения измерения.
Для перевода длины и ширины в различные единицы используются следующие коэффициенты пересчета в метрах (м):
SI Метрические единицы длины префикса
- йоктометр (мкм) — 1 x 10 -24 м
- зептометр (мкм) — 1 x 10 -21 м
- аттометр (am) — 1 x 10 -18 м
- фемтометр (фм) — 1 x 10 -15 м
- пикометр (пм) — 1 x 10 -12 м
- нанометр (нм) — 1 x 10 -9 м
- микрометров (мкм) — 0.000001 м
- миллиметр (мм) — 0,001 м
- сантиметр (см) — 0,01 м
- дециметр (дм) — 0,1 м
- метр (м) — 1 м
- декаметр (плотина) — 10 м
- гектометров — 100 м
- километр (км) — 1000 м
- мегаметр (мм) — 1000000 м
- гигаметр (Gm) — 1 x 10 +9 м
- тераметр (Тм) — 1 x 10 +12 м
- петаметр (Pm) — 1 x 10 +15 м
- exametre (Em) — 1 x 10 +18 м
- зеттаметр (Zm) — 1 x 10 +21 м
- йоттаметр (Ym) — 1 x 10 +24 м
Британские и американские единицы длины
- тысячная дюйма (тыс.) — 0.0000254 м
- дюймов (дюйм) — 0,0254 м
- фут (фут) — 0,3048 м
- ярд — 0,9144 м
- миль (миль) — 1609,344 м
- морская миля (морская миля) — 1852 м
Астрономические единицы
- астрономическая единица (у.е.) — 149 597 870 700 м
- световых лет — 9 460 730 472 580 800 м
- парсек (шт) — 30 856 775 814 913 672,789… м
- килопарсек (кпк) — 3,0856775814913672789… x 10 +19 м
- мегапарсек (Мпк) — 3.0856775814913672789… x 10 +22 м
- гигапарсек (Гпк) — 3,0856775814913672789… x 10 +25 м
Расчет площади
Это расчетная площадь прямоугольника, которую этот инструмент определяет путем умножения значений длины и ширины. Выберите необходимые единицы измерения площади, чтобы отобразить результат.
Для перевода расчетной площади в различные единицы используются следующие коэффициенты пересчета в квадратных метрах (м²):
Квадратный метр, метрическая система единиц измерения площади префикса
- квадратный йоктометр (кв.м) — 1 x 10 -48 м²
- квадратный зептометр (кв.м) — 1 x 10 -42 м²
- квадратный аттометр (кв.м) — 1 x 10 -36 м²
- квадратный фемтометр (кв фм) — 1 x 10 -30 м²
- квадратных пикометров (кв.м) — 1 x 10 -24 м²
- квадратных нанометров (кв.нм) — 1 x 10 -18 м²
- квадратных микрометров (кв.м) — 1 x 10 -12 м²
- квадратный миллиметр (кв.мм) — 0.000001 м²
- кв. Сантиметр (кв. См) — 0,0001 м²
- квадратный дециметр (кв. Дм) — 0,01 м²
- квадратных метров (кв.м) — 1 м²
- квадратных декаметров (кв. Плотины) — 100 м²
- квадратных гектометров (кв.м) — 10 000 м²
- квадратных километров (кв. Км) — 1 000 000 м²
- кв. М. (Кв.м) — 1 x 10 +12 м²
- квадратный гигаметр (кв.м) — 1 x 10 +18 м²
- квадратных тераметров (кв.м) — 1 x 10 +24 м²
- квадратных петаметров (кв. М.) — 1 x 10 +30 м²
- кв.м. — 1 x 10 +36 м²
- квадратный зеттаметр (кв.м) — 1 x 10 +42 м²
- квадратных йоттаметров (кв.м) — 1 x 10 +48 м²
Английская имперская система и региональная единица США
- квадратные тысячные дюйма (тыс.кв.) — 6.4516 x 10 -10 м²
- квадратных дюймов — 0,00064516 м²
- квадратных футов — 0,092 м²
- кв. Ярд — 0,83612736 м²
- акров (акров) — 4046,8564224 м²
- квадратных миль — 2589988,110336 м²
- квадратная морская миля (кв.миль) — 3429904 м²
Метрические единицы измерения площади префикса
- сантиар (приблизительно) — 1 м²
- декаре (да) — 10 м²
- соток — 100 м²
- декар (даа) — 1000 м²
- га — 10000 м²
Квадратные единицы астрономической площади
- квадратная астрономическая единица (кв а.е.) — 2.237952291797391849 x 10 +22 м²
- квадратных световых лет (кв. Л.) — 8.950542107481892730061252864 x 10 +31 м²
- квадратных парсек (кв шт) — 9,5214061369184135543188504845736… x 10 +32 м²
- квадратных килопарсек (кв кпк) — 9,5214061369184135543188504845736… x 10 +38 м²
- квадратных мегапарсек (кв Мпк) — 9,5214061369184135543188504845736… x 10 +44 м²
- квадратных гигапарсек (кв Гпк) — 9,5214061369184135543188504845736… x 10 +50 м²
Приложения
Используйте этот калькулятор длины x ширины для определения площади в следующих приложениях:
- Крыша и площадь открытой черепицы для оценки количества черепицы или количества рубероида, необходимого для покрытия всей крыши.
- Зона отдыха для определения приблизительной вместимости.
- Автостоянка и зона парковочных мест для определения максимального количества машиномест
- Вместимость складских помещений.
- Вместимость морозильной или холодильной камеры.
- Площадь помещения от размеров помещения в смешанных единицах измерения
- Покрытие кормом, сорняками, семенами или удобрениями на поле или в саду с расстояния между углами
- Покрытие краской, обоев или плитки на стене, потолке или полу, размеры по ширине и высоте
- Количество изделий, произведенных из ткани, ткани или ткани различной длины и ширины.
- Земельный участок или след здания.
- Объем необходимой изоляции для покрытия чердака.
- Сколько ламината необходимо для заполнения площади пола.
- Площадь дорожки, настила или патио, чтобы помочь оценить, сколько времени потребуется на мойку под давлением.
- Количество участков под застройку длины и ширины возможно на площади земли в гектарах или акрах.
- Пол, стена или потолок приемной, холла, кухни, гостиной, столовой, коридора, лестницы, спальни, ванной, туалета, кабинета, ТВ-зала, гаражного подвала или кладовой в подвале.
- Сколько места займет мебель в комнате.
- Площадь комнат от размеров на плане дома.
- Бордюр патио засыпать гравием.
- м² цеха.
- Конный загон.
- Площадь проезжей части для определения необходимого количества строительных материалов
- Проект озеленения сада, патио или двора для расчета необходимого количества тротуарной плитки
- Площадь столешниц, полок и витрин для расчета рабочей площади, оставшегося места или количества товаров на складе, которые могут быть отображены.
- Ограждение, необходимое для заполнения границы указанной длины и высоты.
Площадь цилиндра
Поскольку цилиндр тесно связан с призма , формулы для их площади поверхности относятся к.
Помните, что формулы для площади боковой поверхности призмы п час а общая площадь поверхности равна п час + 2 B .Поскольку основание цилиндра — окружность, подставим 2 π р для п а также π р 2 для B где р — радиус основания цилиндра.
Итак, формула для площадь боковой поверхности цилиндра L . S . А .знак равно 2 π р час .
Пример 1:
Найдите площадь боковой поверхности цилиндра с радиусом основания 3 дюймов и высотой 9 дюймы.
L . S .А . знак равно 2 π ( 3 ) ( 9 ) знак равно 54 π дюймы 2
≈ 169,64 дюймы 2
Общая формула для общая площадь поверхности цилиндра Т .S . А . знак равно 2 π р час + 2 π р 2 .
Пример 2:
Найдите общую площадь поверхности цилиндра с радиусом основания 5 дюймов и высотой 7 дюймы.
Т . S . А . знак равно 2 π ( 5 ) ( 7 ) + 2 π ( 5 ) 2 знак равно 120 π дюймы 2 ≈ 376.99 дюймы 2
Калькулятор сферического купола| Институт монолитных куполов
Использование калькулятора сферических куполов
Калькулятор сферического купола MDI помогает рассчитать общие элементы конструкции частичной сферы, установленной на дополнительной стенке штанги. Он помогает быстро находить идеи для проектирования, а также обеспечивает точные измерения при окончательной доработке элементов конструкции.Выходные данные включают окружность, площадь поверхности, объем и расстояния вдоль и вокруг различных деталей здания.
Вход уровня измеряет часть структуры. Например, он может рассчитать площадь второго этажа, показать высоту по периметру купола или вычислить объем и площадь поверхности части купола.
Все параметры хранятся в URL-адресе страницы, которую можно добавить в закладки, сохранить и поделиться ею. Используйте «Копировать в буфер обмена», чтобы скопировать и вставить результаты в свои заметки или электронные письма.Распечатайте страницу или сохраните в формате PDF, чтобы получить профессиональную копию чертежа и результатов.
Имейте в виду, что тот факт, что калькулятор может нарисовать структуру, НЕ означает, что она может быть построена. Этот калькулятор — всего лишь инструмент. Перед тем, как приступить к проекту, всегда консультируйтесь с квалифицированными специалистами.
Этот калькулятор регулируется нашими Условиями обслуживания.
Входы
Диаметр. Общий диаметр конструкции. Калькулятор применяет диаметр к полу, стволу-стене и основанию сферического купола.Единый ввод диаметра полезен для быстрой оценки, но при расчете конкретной конструкции, которая может иметь другой диаметр для стержня-стенки, вы должны выполнить два отдельных расчета.
Высота. Высота сферического купола от основания до вершины.
Стенка ствола. Высота стенки ствола простирается вертикально от круглого пола до основания купола. Высота стенки штанги не является обязательной, оставив высоту равной нулю (0).
Уровень. Дополнительный горизонтальный уровень над полом образует часть конструкции. Он вычисляет воображаемый круг на этом уровне плюс верхняя часть конструкции от этого уровня до вершины.
Накладка. Масштабируемый графический оверлей, помогающий визуально представить размер и назначение здания.
шт. Выбираемая единица помечает выходы калькулятора и правильно масштабирует оверлей. Обратите внимание, что все числовые входы должны быть даны в одной выбранной единице.
Этаж
Диаметр. Диаметр пола — это круг, представляющий диаметр пола, стенки ствола и основания купола.
Радиус. Радиус этажа составляет половину диаметра этажа и используется для различных расчетов.
Окружность. Окружность пола — это расстояние вокруг круглого пола, ствола-стены и основания купола.
Площадь. Площадь пола — это площадь круга, вписанного в диаметр пола.
Купол
Высота. Высота купола — это расстояние от основания купола до вершины.
Радиус кривизны. Все купольные конструкции, описываемые этим калькулятором, представляют собой сегмент или «шапку» сферы, определяемую диаметром и высотой купола. Радиус кривизны — это расчетный радиус всей сферы, частью которой является купол.
Расстояние до поверхности. Расстояние до поверхности купола — это длина от вершины по кривой купола до основания купола.
Площадь поверхности. Площадь поверхности купола технически представляет собой площадь боковой поверхности купола от основания до вершины.
Том. Объем купола — это кубическая мера объема, заключенного в куполообразной части конструкции.
Стенка ствола
Высота. Высота стенки ствола описывает высоту цилиндра с диаметром дна и высотой стенки ствола. Он соединяет пол с основанием купола. Оставьте высоту стенки штока равной нулю (0), чтобы удалить стенку штока.
Площадь поверхности. Площадь поверхности стенки штока — это площадь цилиндра, образованного стенкой штока.
Том. Объем стенки штока — это кубическая мера объема, заключенного в цилиндр стенки штока.
Всего
Высота. Общая высота — это общая высота конструкции, определяемая суммой высот стенки ствола и купола.
Расстояние до поверхности. Общее поверхностное расстояние — это расстояние от поверхности купола от вершины до основания плюс высота стены ствола, равная расстоянию по поверхности здания от вершины до пола.
Площадь поверхности. Общая площадь поверхности — это сумма площади поверхности купола плюс площадь поверхности цилиндра стенки штока.
Том. Общий объем — это кубическая мера общего объема, заключенного во всей конструкции.
Уровень @
Высота над полом. Высота уровня — это расстояние от пола до горизонтального «среза» на уровне, указанном над полом. Он эффективно создает часть всего здания.
Диаметр. Диаметр уровня — это расчетный диаметр на указанном уровне над полом.
Радиус. Радиус уровня — это рассчитанный радиус — половина диаметра уровня — на указанном уровне над полом.
Окружность. Окружность уровня — это периметр вокруг воображаемого среза на уровне, заданном над полом.
Площадь. Площадь уровня — это площадь круга, описываемого воображаемым срезом на уровне, заданном над полом.Обычно уровень устанавливается на 10 футов (3 м) для расчета диаметра и площади второго этажа.
Порция выше уровня
Оставшаяся высота. Воображаемый срез структуры на заданном уровне по существу создает вторую часть общей структуры. Оставшаяся высота рассчитывается как высота от указанного уровня до вершины купола.
Расстояние до поверхности. Расстояние до ровной поверхности — это общее расстояние от вершины купола до воображаемого среза на заданном уровне.Он будет правильно следовать за куполом и даже вниз по стенке ствола.
Площадь поверхности. Площадь ровной поверхности — это общая площадь поверхности остальной конструкции над воображаемым срезом на заданном уровне. Это удивительно полезная мера при расчете потребности в материалах для купола.
Том. Объем уровня — это общий кубический объем, заключенный в оставшейся конструкции выше указанного уровня.
Накладки
Наложение — это масштабированная иллюстрация, помогающая передать размер, назначение и объем рассчитанной структуры.Они предназначены только для удобства. Не предпринимается никаких попыток «уместить» их внутри здания или определить их подходящее использование для конструкции. Они просто наглядное пособие.
Нет. Параметр нет удаляет наложение.
Лиц. Наложение человека — это оверлей по умолчанию. Это человек ростом 6 футов (1,8 м).
Автомобиль. Накладка на автомобиль — седан среднего размера с 6-футовым (1.8 м) стоящий рядом человек.
BBall. Накладка bball — это боковой силуэт стандартной американской баскетбольной площадки на шестидюймовом полу. Мы рекомендуем установить для параметра level значение 20,5 футов, чтобы показать стандартную высоту, необходимую для пола для соревнований.
Погрузчик. Погрузчик Накладка представляет собой небольшой фронтальный погрузчик — рабочая грузоподъемность 6000 фунтов (2800 кг) с ковшом — примерно 8 футов (2.



При сложной схеме укладки, когда фрагменты материала крупные, покрытие приобретают с большим запасом.
