Узлы крепления стропильной системы кровли
Стропильная система — это скелет крыши. Именно она отвечает за прочность кровли, ее надежность и сопротивление нагрузкам. При самостоятельном строительстве дома необходимо знать, как правильно сделать узлы крепления стропильной системы, чтобы крыша была надежной и безопасной.
Устройство стропильной системы
Стропильная система состоит из многих элементов, каждый из которых выполняет свою задачу.
- За распределение нагрузок на стены отвечают мауэрлаты. Эти балки принимают на себя вес всей кровли и лежат на стенах.
- Стропильные ноги — это наклонные балки, который и создают необходимый угол наклона крыши.
- Прогоны — это горизонтальные балки, которые скрепляют ноги между собой. Есть коньковый прогон, располагающийся вверху, и боковые, находящиеся с скатах.
- Затяжки расположены горизонтально и не дают стропильным ногам разъехаться, образуя с ними жесткие треугольники.
- Стойки и подкосы (подстропильные ноги) — дополнительные элементы, на которые опираются стропильные ноги.
Они упираются в лежни. - Лежень — горизонтальная балка, находящаяся под коньком, на нее опираются стойки и подкосы. Задача лежня — перераспределить точечную нагрузку от стоек.
- Конек — место соединения скатов кровли.
- Обрешетка — бруски или доски, которые набивают перпендикулярно стропилам. На нее укладывают кровельный материал. Задача обрешетки — распределить его вес.
- Свес — удлиненный край ската, защищающий стены от осадков. Если длины стропильных ног недостаточно для создания свеса, используются дополнительные элементы — кобылки.
Устройство стропильной системы показано на рисунке.
Также в устройстве крыши выделяют стропильные фермы. Это сплошной узел, состоящий из стропильных ног, растяжек, стоек и подкосов (раскосов, укосин). Ферма может быть не только треугольной, но и трапециевидной, сегментной или многоугольной. То, какой тип фермы выбрать, зависит от размеров дома. Если расстояние между стенами составляет 9-18 м, то подойдет треугольная ферма.
Для домов шириной от 12 до 24 м используют трапециевидные или сегментные фермы. Если ширина здания больше (до 36 м), то используют многоугольные фермы.
Основными узлами крепления стропильной систему кровли являются это балочный, коньковый и мауэрлатный.
Виды стропильных систем
Стропила могут быть висячими и наслонными.
Висячие опираются на стены и создают распор. Чтобы уменьшить его, в основании стропил делают затяжки, которые соединяют стропила и образуют с ними треугольники. Висячие системы различных типов используются для домов шириной не более 17 м. В зависимости от ширины строения, устраивают их по-разному.
Если ширина дома не больше 9 м, то стропила поддерживаются вертикальным брусом — так называемой бабкой. Она находится под коньком.
Если ширина дома от 9 до 13 м, дополнительно устанавливают подкосы, которые одним концом упираются в стропильные ноги, а другим — в бабку.
При ширине дома 13-17 м используются две вертикальные стойки, соединяющиеся в верхней ригелем (подгоном), как на рисунке.
Наслонные стропила опираются на несущую стену или колонны внутри здания. При таком способе стропило имеет три или больше точек опоры. Наслонный тип стропильной системы создает меньшую нагрузку на стены здания и более прочен, его используют для зданий большей ширины. Такие крыши могут быть устроены по-разному, в зависимости от расположения внутренних стен, они могут быть симметричными или асимметричными.
Как соединяют части стропильной системы
Для соединения деревянных элементов между собой используются гвозди, болты, шпильки, а также металлические пластины и уголки для укрепления узлов. Дополнительно применяются деревянные бруски или пластины.
Методы крепления:
- зубья в шип,
- зубья в упор,
- упор в конец перекладины.
Использование металлического крепежа не уменьшает несущую способность, так как не требуется их врезка, в отличие от крепления, например, методом зубья в шип.
Стропила могут быть не только деревянными, но и металлическими.
Для крепления металлических стропил применяют различные уголки, кронштейны, монтажную перфорированную ленту, пластины, болты с гайками или саморезы.
Крепление к мауэрлату
Если стена бетонная, то в ее верхней части делают армированный пояс жесткости, в котором предусматривают шпильки. К ним и будет крепиться мауэрлат.
Стропила к мауэрлату можно крепить двумя способами: жестким и скользящим.
Первый способ более популярен. Для крепления используют специальные уголки с опорным бруском. Есть несколько способов крепления стропилины к мауэрлату.
- Прибивают каждое стропило тремя гвоздями: два их них должны быть перекрещены, а третий расположен вертикально.

- Крепление с помощью скобы: один ее конец забивается примерно в середину опорного бруса, а другой поворачивают на 90 градусов и забивают в стропило.
- Крепление проволокой-катанкой: из сложенной в 4 ряда проволоки делают хомут, которым прикручивают стропило к брусу. Вместо проволоки используют также специальную перфорированную ленту. Иногда такой способ используют в дополнение к другим методам крепления.
- С помощью уголков: уголок прикручивают шурупами к мауэрлату и стропильной ноге. Лучше применять уголки с двумя рядами отверстий и ребром жесткости.
Недостаток жесткого способа — при оседании здания возможно повреждение стен. Поэтому жесткое крепление применяют в кирпичных зданиях.
Скользящий способ подразумевает, что стропила соединены с мауэрлатом такими крепежными элементами, которые не препятствуют их движению в некоторых пределах. Этот способ используют в деревянных зданиях, которые могут оседать. С помощью особых способов крепления можно достичь того, что стропило будет иметь одну, две или три степени свободы.
В последнем случае применяется специальный шарнир.
Одна степень свободы подразумевает, что стропило может поворачиваться по кругу. В этом случае они крепится одним гвоздем или шурупом. Две степени свободы — это поворот по кругу и смещение по горизонтали. Для этого стропила к мауэрлату крепятся металлическими скобами. Используются также специальные уголки-салазки.
При скользящем соединении в небольших зданиях с не очень тяжелой кровлей крепление делается без запилов. Если здание большое, рекомендуется этот узел делать с запилом на стропильной ноге.
Важно! Запил вырезают именно на стропиле, а не на мауэрлате, чтобы не повредить и не ослабить балку.
При этом фиксация может быть как жесткой (с упором в балку), так и подвижной (с зубом на внешней стороне). Иногда вместо выпиливания зуба применяют дополнительный брусок.
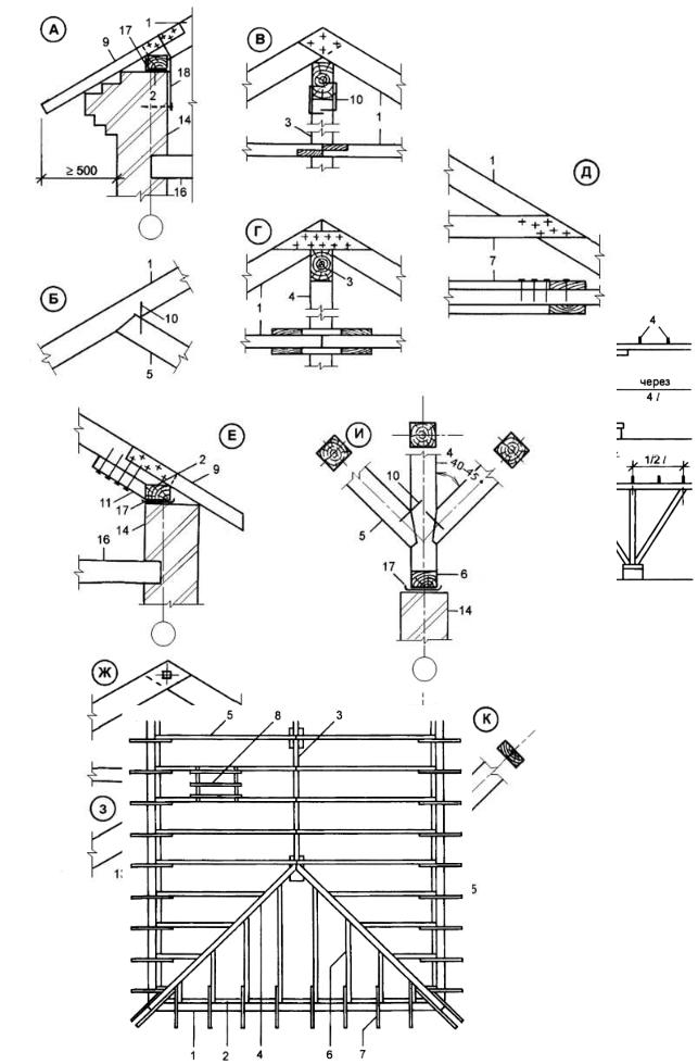
Коньковое соединение
После того, как стропильная нога укреплена на мауэрлате, переходят к коньковому узлу крепления. Это соединение можно сделать тремя способами: встык, к коньковому прогону и внахлест.
Для крепления встык стропила спиливают в верхней части под углом, равным наклону крыши, и соединяют гвоздями (150 мм), вбивая их в верхние плоскости стропил, так, чтобы гвозди вошли в торец противоположного стропила. Для прочности прикрепляют металлическую пластину или деревянную накладку, которую также прибивают гвоздями или прикрепляют с помощью болтов..
При креплении к коньковому прогону между стропилами дополнительно укладывается коньковая балка (прогон), этот способ более трудоемкий.
При креплении внахест стропила, находящиеся с противоположных сторон, заходят друг на друга и соприкасаются боковыми поверхностями. Их соединяют болтами, гвоздями или шпильками.
Балочный узел
К балкам стропила прикрепляются следующим образом. Главная задача крепления — не допустить скольжения стропила по балке, поэтому используются различные приемы.
- В пятке стропила необходимо вырезать зуб и шип, в балке вырезают соответствующего размера упор.
- От свисающего края балки место крепления должно отстоять на 25-40 см.

- Гнездо для крепления должно быть глубиной 1/4 — 1/3 толщины балки.
- Вместе с зубом вырезают шип, который не дает стропилу сдвинуться вбок. Такое соединение называют «зубом с шипом и упором».
Если крыша более пологая (угол ее наклона меньше 35 градусов), то стропила крепят таким образом, чтобы площадь их соприкосновения с балкой увеличилась. Тогда используют следующие способы:
- два шипа с двумя зубами,
- упором с шипом или без него,
- два шипа в замок.
Общие рекомендации
При создании стропильной системы для крыши важно помнить следующее.
- Все деревянные элементы перед установкой обрабатывают антисептиком и огнеупорным составом.
- Толщина любой деревянной части не должна быть меньше 5 см.
- Стропила без стоек и подкосов не делают длиннее 4,5 м.
- Мауэрлат должен располагаться строго горизонтально.
- Стойки и подкосы рекомендуется делать максимально симметрично.
- Нельзя добавлять элементы в рассчитанную стропильную систему — это может привести к появлению нагрузок там, где они не нужны.

- В местах стыка дерева с каменной (кирпичной) кладкой нужна гидроизоляция.
Правильно сделанная стропильная система — это залог надежности кровли. Именно стропила принимают на себя весь вес материалов кровли и противостоят ветровым нагрузкам. Поэтому очень важно построить стропильную систему с соблюдением технологии.
Принципы крепления узлов стропильной системы
Узлы крепления стропил должны обеспечивать необходимую прочность каркаса кровли. Важно правильно выбрать технологию монтажа элементов стропильной системы между собой и их крепления к несущему контуру, чтобы готовая крыша была способна выдержать расчетные нагрузки.
Особенности кровельных конструкций
Задача наслонных и висячих стропильных систем кровли – максимально равномерная передача нагрузки подстропильной конструкции, которая, в свою очередь, распределяет нагрузку на несущие стены и фундамент постройки. Подстропильная конструкция обычно является мауэрлатом (балкой, уложенной вдоль на каждой несущей стене).
Также это могут быть опоры перекрытия (укладываются на стене поперек) или верхний венец сруба из бруса или бревна.
Выбор способа крепления стропил к мауэрлату зависит от их типа. Наслонная конструкция заставляет мауэрлат работать на срез, в то время, как висячие фермы – на сжатие, направление которого совпадает с ориентацией несущих стен.
Установка затяжки
Монтаж двускатной кровли требует установки стропильной системы наслонного или висячего типа. Чтобы смонтировать жесткую висячую стропильную ферму, не передающую распорные нагрузки на стены, требуется правильно выполнить узлы крепления горизонтальных перемычек – затяжек и ригелей.
В зависимости от того, какая была выбрана конструкция крыши, затяжка может монтироваться у основания стропил и выполнять функцию балки перекрытия. Стропильную ферму, которая крепится к мауэрлату, для придания жесткости оснащают ригелем – перемычкой, расположенной ближе к коньку. В мансардных крышах ригели служат основой для обшивки потолка.
Узел соединения при установке затяжки рекомендуется выполнять методом «врубки в стропило полусковороднем» с использованием крепежного винта. Данный способ монтажа требует точной подгонки элементов, так как при больших зазорах, в местах сопряжения, узел крепления под нагрузкой может разрушиться.
Более простой способ – монтаж внахлест. В этом случае перемычка выполняется из доски либо двух досок, установленных с обеих сторон стропильной ноги. В качестве крепления используются гвозди. Узел может представлять собой и болтовое соединение, но это снизит несущую способность стропил на 20%.
Еще один вариант – установка ригеля враспор. Монтаж узла такого типа стал возможен после изобретения гвоздевых пластин. Конструкция способна выдержать высокие нагрузки – надежность обеспечивается за счет плотного примыкания деталей и прочной фиксации с двух сторон благодаря большому количеству зубьев на пластине.
Сечение бруса или доски для изготовления распорного ригеля должно совпадать с сечением стропила.
Мауэрлат: узлы крепления стропильных ног
Опирание деревянных стропил на мауэрлат может выполняться по двум технологиям:
- жесткое крепление к мауэрлату;
- скользящее крепление к мауэрлату.
При жестком креплении полностью исключаются любые виды смещения стропильной ноги, которая упирается в мауэрлат (изгибы, сдвиги, кручение). С этой целью при монтаже стропильной системы кровли установка стропил может выполняться с применением подшивного бруска, который предотвращает соскальзывание стропильной ноги в месте опирания. Боковые сдвиги при этом методе соединения исключаются благодаря установке металлических уголков.
Во втором варианте жесткого крепления стропильной ноги на мауэрлат необходимо выполнить запил (седло) в нижней части стропильного бруса или доски. Плоскость опирания должна быть горизонтальной, для этого запил в стропилах производится под углом, соответствующим наклону ската. Для фиксации узла с обеих сторон стропила под углом вбивается по гвоздю (внутри мауэрлата они должны быть скрещенными), сверху вертикально через стропило в мауэрлат вбивается третий гвоздь.
Скользящее крепление обычно используется при возведении стропильной системы на доме из бруса или бревна. Основанием для опирания стропильных ног в этом случае служит не мауэрлат, а верхний венец сруба. Чтобы избежать деформации крыши при усадке дома, необходимо выполнить узел с определенной степенью свободы для стропильной ноги. Нередко с этой целью используется специальный крепежный элемент из металла – скользящая опора («салазки»). Его верхняя часть представляет собой петлю, которая смещается по направляющей, закрепленной на стропильной ноге, при изменении геометрии сруба.
Используются и другие методы монтажа скользящего узла. В стропильной ноге выполняется запил, балка устанавливается срезом на верхний венец, после чего закрепляется одним из способов
- посредством одного вертикально забитого гвоздя;
- с помощью забитых с двух сторон гвоздей, скрещивающихся в мауэрлате;
- посредством скобы;
- выполнив единичную фиксацию стальными крепежными пластинами.

Такой метод крепления оставляет возможность элементам системы смещаться друг относительно друга при изменении геометрии строительных конструкций.
Коньковые соединения
Устройство стропильной системы кровли с двумя скатами подразумевает наличие в верхней части крыши горизонтального ребра, образованного в результате примыкания скатов – конька. Коньковый узел может выполняться несколькими способами, выбор зависит от типа стропильной системы и особенностей самого здания.
Наслонная конструкция подразумевает крепление стропильных ног на коньковый прогон – горизонтальную балку, расположенную на стойках параллельно длинным стенам дома. Верхние концы стропильных ног следует запилить под углом, соответствующим углу наклона скатов. Примыкания срезанных торцов стропил к коньку должны быть максимально плотными. В качестве крепежных элементов используются гвозди. Наслонные стропила применяются, если есть возможность установить на внутренней стене или столбчатых опорах стойки для крепления конькового прогона.
Сборка стропильной фермы висячего типа требует соединить верхние концы пары стропильных ног. Для этого торец каждого из стропил подрезается под углом, равным углу наклона крыши, балки соединяются плоскостями срезов — требуется обеспечить плотность их примыкания. Фиксируются при помощи двух гвоздей, забитых под углом в верхние плоскости стропил. Затем с каждой стороны прибивается по деревянной накладке или металлической пластине, которые закрывают место стыка.
Чтобы обеспечить коньку необходимую прочность, может выполняться врубка в полдерева: в этом случае вместо плоскости сопряжения соединения встык, стропила соединяются уступом. Далее сверлится сквозное отверстие под шпильку или болт диаметром 12 или 14 мм, для крепления используются гайки с широкими шайбами.
Если на стене сруба предстоит установить скользящие опоры или создать примыкания (сопряжения стропила с мауэрлатом) с некоторой степенью свободы, коньку следует уделить особое внимание.
Рекомендуется выполнить подвижный узел соединения, чтобы крыша не деформировалась при неравномерной усадке сооружения. С этой целью концы стропил соединяются металлическим пластинчатым шарниром.
Узлы стропильной системы вальмовой крыши
Особенностью вальмовой кровли является форма ее скатов: длинные скаты имеют трапециевидную форму, торцевые скаты (вальмы) – треугольную. Монтаж такой стропильной системы требует установки диагональных (накосных) стропильных ног, которые формируют треугольные скаты. Принцип крепления диагональных стропил в верхней части зависит от особенности конструкций основной части крыши. Она может быть сформирована из стропильных ферм висячего типа, либо представлять собой каркас с коньковым прогоном и наслонными стропилами, прикрепленными к мауэрлату.
Если наслонные стропильные ноги трапециевидных скатов опираются на коньковый брус (прогон), то накосные стропила требуется опереть на консоли конькового прогона. Выпуски консоли за подстропильную раму должны составлять 100-150 мм.
Нижней частью диагональные стропильные ноги крепятся к мауэрлату или балке, закрепленной на стене.
Если накосные стропила необходимо опереть на крайнюю висячую ферму, то принцип создания узла крепления зависит от сечения боковых стропильных ног. Шпренгель со стойкой монтируется в случае, если стропильные ноги выполнены из доски. На шпренгель опираются диагональные стропила. В ситуации, когда для изготовления стропильных ног был использован брус, накосные стропила можно крепить к прибоине — доске толщиной от 5 мм, закрепленной на стропильной ферме.
На накосных стропилах выполняется запил под углом, соответствующим углу наклона вальмового ската, чтобы обеспечить плотное соединение со шпренгелем или прибоиной. Для прочности гвоздевого соединения дополнительно могут применяться хомуты и проволочные скрутки.
Укороченные стропильные ноги (нарожники) верхней частью опираются на накосное стропило, нижней крепятся к мауэрлату на стене. Узел крепления к диагональной балке может выполняться:
- методом запила с гвоздевым креплением;
- посредством гнездового соединения;
- с помощью крепления брусков сечением 50х50 мм с обеих сторон и по всей длине диагональных стропил и нарожников.
Вспомогательные элементы
Для усиления жесткости и надежности стропильных конструкций нередко требуется установка подкоса, дополнительного прогона или опорных стоек. Прогоны для наслонных стропил позволяют обеспечить стропильной ноге дополнительную точку опоры. Прогон представляет собой горизонтальную балку, закрепленную на вертикальных стойках, расположенную параллельно коньку. Узел крепления выполняется с помощью металлических угловых пластин либо внутреннего металлического стержня и внешней прямой скобы.
Подкосы деревянных стропил позволяют уменьшить пролет стропильных ног (включая накосные стропила). Угол наклона подкоса к горизонтальной плоскости должен составлять не менее 45°. Если стропило изготовлено из бревна или бруса, выполняется врубка подкоса с установкой стального нагеля под углом 90° к площадке примыкания, либо стык снаружи закрывается пластиной.
При необходимости усилить каркас крыши требуется установка подкоса под каждую стойку, на которую опирается наслонное стропило.
Особого внимания требуют подкосы крайних пролетов, на которые воздействует максимальная снеговая и ветровая нагрузка. Узлы крепления при монтаже подкоса к стойке или прогону выполняются с использованием накладок и болтов.
аналитика, советы, помощь с выбором материалов.
[Error] Maximum function nesting level of '256' reached, aborting! (0) /home/bitrix/www/bitrix/modules/main/lib/config/option.php:430 #0: Bitrix\Main\Config\Option::getDefaultSite() /home/bitrix/www/bitrix/modules/main/lib/config/option.php:43 #1: Bitrix\Main\Config\Option::get(string, string, string, boolean) /home/bitrix/www/bitrix/modules/main/classes/general/option.php:30 #2: CAllOption::GetOptionString(string, string, string) /home/bitrix/www/bitrix/modules/main/classes/general/main.php:2699 #3: CAllMain->get_cookie(string) /home/bitrix/www/bitrix/modules/main/lib/composite/engine.php:1321 #4: Bitrix\Main\Composite\Engine::onEpilog() /home/bitrix/www/bitrix/modules/main/classes/general/module.php:480 #5: ExecuteModuleEventEx(array) /home/bitrix/www/bitrix/modules/main/tools.php:3880 #6: LocalRedirect(string, string) /home/bitrix/www/bitrix/php_interface/init.php:644 #7: CYakusHandlers::OnAfterEpilog() /home/bitrix/www/bitrix/modules/main/classes/general/module.php:465 #8: ExecuteModuleEventEx(array) /home/bitrix/www/bitrix/modules/main/classes/general/main.php:3487 #9: CAllMain::RunFinalActionsInternal() /home/bitrix/www/bitrix/modules/main/lib/application.php:187 #10: Bitrix\Main\Application->terminate(integer) /home/bitrix/www/bitrix/modules/main/lib/application.php:174 #11: Bitrix\Main\Application->end() /home/bitrix/www/bitrix/modules/main/tools.php:3885 #12: LocalRedirect(string, string) /home/bitrix/www/bitrix/php_interface/init.php:644 #13: CYakusHandlers::OnAfterEpilog() /home/bitrix/www/bitrix/modules/main/classes/general/module.php:465 #14: ExecuteModuleEventEx(array) /home/bitrix/www/bitrix/modules/main/classes/general/main.
php:3487 #15: CAllMain::RunFinalActionsInternal() /home/bitrix/www/bitrix/modules/main/lib/application.php:187 #16: Bitrix\Main\Application->terminate(integer) /home/bitrix/www/bitrix/modules/main/lib/application.php:174 #17: Bitrix\Main\Application->end() /home/bitrix/www/bitrix/modules/main/tools.php:3885 #18: LocalRedirect(string, string) /home/bitrix/www/bitrix/php_interface/init.php:644 #19: CYakusHandlers::OnAfterEpilog() /home/bitrix/www/bitrix/modules/main/classes/general/module.php:465 #20: ExecuteModuleEventEx(array) /home/bitrix/www/bitrix/modules/main/classes/general/main.php:3487 #21: CAllMain::RunFinalActionsInternal() /home/bitrix/www/bitrix/modules/main/lib/application.php:187 #22: Bitrix\Main\Application->terminate(integer) /home/bitrix/www/bitrix/modules/main/lib/application.php:174 #23: Bitrix\Main\Application->end() /home/bitrix/www/bitrix/modules/main/tools.php:3885 #24: LocalRedirect(string, string) /home/bitrix/www/bitrix/php_interface/init.php:644 #25: CYakusHandlers::OnAfterEpilog() /home/bitrix/www/bitrix/modules/main/classes/general/module.
php:465 #26: ExecuteModuleEventEx(array) /home/bitrix/www/bitrix/modules/main/classes/general/main.php:3487 #27: CAllMain::RunFinalActionsInternal() /home/bitrix/www/bitrix/modules/main/lib/application.php:187 #28: Bitrix\Main\Application->terminate(integer) /home/bitrix/www/bitrix/modules/main/lib/application.php:174 #29: Bitrix\Main\Application->end() /home/bitrix/www/bitrix/modules/main/tools.php:3885 #30: LocalRedirect(string, string) /home/bitrix/www/bitrix/php_interface/init.php:644 #31: CYakusHandlers::OnAfterEpilog() /home/bitrix/www/bitrix/modules/main/classes/general/module.php:465 #32: ExecuteModuleEventEx(array) /home/bitrix/www/bitrix/modules/main/classes/general/main.php:3487 #33: CAllMain::RunFinalActionsInternal() /home/bitrix/www/bitrix/modules/main/lib/application.php:187 #34: Bitrix\Main\Application->terminate(integer) /home/bitrix/www/bitrix/modules/main/lib/application.php:174 #35: Bitrix\Main\Application->end() /home/bitrix/www/bitrix/modules/main/tools.
php:3885 #36: LocalRedirect(string, string) /home/bitrix/www/bitrix/php_interface/init.php:644 #37: CYakusHandlers::OnAfterEpilog() /home/bitrix/www/bitrix/modules/main/classes/general/module.php:465 #38: ExecuteModuleEventEx(array) /home/bitrix/www/bitrix/modules/main/classes/general/main.php:3487 #39: CAllMain::RunFinalActionsInternal() /home/bitrix/www/bitrix/modules/main/lib/application.php:187 #40: Bitrix\Main\Application->terminate(integer) /home/bitrix/www/bitrix/modules/main/lib/application.php:174 #41: Bitrix\Main\Application->end() /home/bitrix/www/bitrix/modules/main/tools.php:3885 #42: LocalRedirect(string, string) /home/bitrix/www/bitrix/php_interface/init.php:644 #43: CYakusHandlers::OnAfterEpilog() /home/bitrix/www/bitrix/modules/main/classes/general/module.php:465 #44: ExecuteModuleEventEx(array) /home/bitrix/www/bitrix/modules/main/classes/general/main.php:3487 #45: CAllMain::RunFinalActionsInternal() /home/bitrix/www/bitrix/modules/main/lib/application.
php:187 #46: Bitrix\Main\Application->terminate(integer) /home/bitrix/www/bitrix/modules/main/lib/application.php:174 #47: Bitrix\Main\Application->end() /home/bitrix/www/bitrix/modules/main/tools.php:3885 #48: LocalRedirect(string, string) /home/bitrix/www/bitrix/php_interface/init.php:644 #49: CYakusHandlers::OnAfterEpilog() /home/bitrix/www/bitrix/modules/main/classes/general/module.php:465 #50: ExecuteModuleEventEx(array) /home/bitrix/www/bitrix/modules/main/classes/general/main.php:3487 #51: CAllMain::RunFinalActionsInternal() /home/bitrix/www/bitrix/modules/main/lib/application.php:187 #52: Bitrix\Main\Application->terminate(integer) /home/bitrix/www/bitrix/modules/main/lib/application.php:174 #53: Bitrix\Main\Application->end() /home/bitrix/www/bitrix/modules/main/tools.php:3885 #54: LocalRedirect(string, string) /home/bitrix/www/bitrix/php_interface/init.php:644 #55: CYakusHandlers::OnAfterEpilog() /home/bitrix/www/bitrix/modules/main/classes/general/module.
php:465 #56: ExecuteModuleEventEx(array) /home/bitrix/www/bitrix/modules/main/classes/general/main.php:3487 #57: CAllMain::RunFinalActionsInternal() /home/bitrix/www/bitrix/modules/main/lib/application.php:187 #58: Bitrix\Main\Application->terminate(integer) /home/bitrix/www/bitrix/modules/main/lib/application.php:174 #59: Bitrix\Main\Application->end() /home/bitrix/www/bitrix/modules/main/tools.php:3885 #60: LocalRedirect(string, string) /home/bitrix/www/bitrix/php_interface/init.php:644 #61: CYakusHandlers::OnAfterEpilog() /home/bitrix/www/bitrix/modules/main/classes/general/module.php:465 #62: ExecuteModuleEventEx(array) /home/bitrix/www/bitrix/modules/main/classes/general/main.php:3487 #63: CAllMain::RunFinalActionsInternal() /home/bitrix/www/bitrix/modules/main/lib/application.php:187 #64: Bitrix\Main\Application->terminate(integer) /home/bitrix/www/bitrix/modules/main/lib/application.php:174 #65: Bitrix\Main\Application->end() /home/bitrix/www/bitrix/modules/main/tools.
php:3885 #66: LocalRedirect(string, string) /home/bitrix/www/bitrix/php_interface/init.php:644 #67: CYakusHandlers::OnAfterEpilog() /home/bitrix/www/bitrix/modules/main/classes/general/module.php:465 #68: ExecuteModuleEventEx(array) /home/bitrix/www/bitrix/modules/main/classes/general/main.php:3487 #69: CAllMain::RunFinalActionsInternal() /home/bitrix/www/bitrix/modules/main/lib/application.php:187 #70: Bitrix\Main\Application->terminate(integer) /home/bitrix/www/bitrix/modules/main/lib/application.php:174 #71: Bitrix\Main\Application->end() /home/bitrix/www/bitrix/modules/main/tools.php:3885 #72: LocalRedirect(string, string) /home/bitrix/www/bitrix/php_interface/init.php:644 #73: CYakusHandlers::OnAfterEpilog() /home/bitrix/www/bitrix/modules/main/classes/general/module.php:465 #74: ExecuteModuleEventEx(array) /home/bitrix/www/bitrix/modules/main/classes/general/main.php:3487 #75: CAllMain::RunFinalActionsInternal() /home/bitrix/www/bitrix/modules/main/lib/application.
php:187 #76: Bitrix\Main\Application->terminate(integer) /home/bitrix/www/bitrix/modules/main/lib/application.php:174 #77: Bitrix\Main\Application->end() /home/bitrix/www/bitrix/modules/main/tools.php:3885 #78: LocalRedirect(string, string) /home/bitrix/www/bitrix/php_interface/init.php:644 #79: CYakusHandlers::OnAfterEpilog() /home/bitrix/www/bitrix/modules/main/classes/general/module.php:465 #80: ExecuteModuleEventEx(array) /home/bitrix/www/bitrix/modules/main/classes/general/main.php:3487 #81: CAllMain::RunFinalActionsInternal() /home/bitrix/www/bitrix/modules/main/lib/application.php:187 #82: Bitrix\Main\Application->terminate(integer) /home/bitrix/www/bitrix/modules/main/lib/application.php:174 #83: Bitrix\Main\Application->end() /home/bitrix/www/bitrix/modules/main/tools.php:3885 #84: LocalRedirect(string, string) /home/bitrix/www/bitrix/php_interface/init.php:644 #85: CYakusHandlers::OnAfterEpilog() /home/bitrix/www/bitrix/modules/main/classes/general/module.
php:465 #86: ExecuteModuleEventEx(array) /home/bitrix/www/bitrix/modules/main/classes/general/main.php:3487 #87: CAllMain::RunFinalActionsInternal() /home/bitrix/www/bitrix/modules/main/lib/application.php:187 #88: Bitrix\Main\Application->terminate(integer) /home/bitrix/www/bitrix/modules/main/lib/application.php:174 #89: Bitrix\Main\Application->end() /home/bitrix/www/bitrix/modules/main/tools.php:3885 #90: LocalRedirect(string, string) /home/bitrix/www/bitrix/php_interface/init.php:644 #91: CYakusHandlers::OnAfterEpilog() /home/bitrix/www/bitrix/modules/main/classes/general/module.php:465 #92: ExecuteModuleEventEx(array) /home/bitrix/www/bitrix/modules/main/classes/general/main.php:3487 #93: CAllMain::RunFinalActionsInternal() /home/bitrix/www/bitrix/modules/main/lib/application.php:187 #94: Bitrix\Main\Application->terminate(integer) /home/bitrix/www/bitrix/modules/main/lib/application.php:174 #95: Bitrix\Main\Application->end() /home/bitrix/www/bitrix/modules/main/tools.
php:3885 #96: LocalRedirect(string, string) /home/bitrix/www/bitrix/php_interface/init.php:644 #97: CYakusHandlers::OnAfterEpilog() /home/bitrix/www/bitrix/modules/main/classes/general/module.php:465 #98: ExecuteModuleEventEx(array) /home/bitrix/www/bitrix/modules/main/classes/general/main.php:3487 #99: CAllMain::RunFinalActionsInternal() /home/bitrix/www/bitrix/modules/main/lib/application.php:187 #100: Bitrix\Main\Application->terminate(integer) /home/bitrix/www/bitrix/modules/main/lib/application.php:174 #101: Bitrix\Main\Application->end() /home/bitrix/www/bitrix/modules/main/tools.php:3885 #102: LocalRedirect(string, string) /home/bitrix/www/bitrix/php_interface/init.php:644 #103: CYakusHandlers::OnAfterEpilog() /home/bitrix/www/bitrix/modules/main/classes/general/module.php:465 #104: ExecuteModuleEventEx(array) /home/bitrix/www/bitrix/modules/main/classes/general/main.php:3487 #105: CAllMain::RunFinalActionsInternal() /home/bitrix/www/bitrix/modules/main/lib/application.
php:187 #106: Bitrix\Main\Application->terminate(integer) /home/bitrix/www/bitrix/modules/main/lib/application.php:174 #107: Bitrix\Main\Application->end() /home/bitrix/www/bitrix/modules/main/tools.php:3885 #108: LocalRedirect(string, string) /home/bitrix/www/bitrix/php_interface/init.php:644 #109: CYakusHandlers::OnAfterEpilog() /home/bitrix/www/bitrix/modules/main/classes/general/module.php:465 #110: ExecuteModuleEventEx(array) /home/bitrix/www/bitrix/modules/main/classes/general/main.php:3487 #111: CAllMain::RunFinalActionsInternal() /home/bitrix/www/bitrix/modules/main/lib/application.php:187 #112: Bitrix\Main\Application->terminate(integer) /home/bitrix/www/bitrix/modules/main/lib/application.php:174 #113: Bitrix\Main\Application->end() /home/bitrix/www/bitrix/modules/main/tools.php:3885 #114: LocalRedirect(string, string) /home/bitrix/www/bitrix/php_interface/init.php:644 #115: CYakusHandlers::OnAfterEpilog() /home/bitrix/www/bitrix/modules/main/classes/general/module.
php:465 #116: ExecuteModuleEventEx(array) /home/bitrix/www/bitrix/modules/main/classes/general/main.php:3487 #117: CAllMain::RunFinalActionsInternal() /home/bitrix/www/bitrix/modules/main/lib/application.php:187 #118: Bitrix\Main\Application->terminate(integer) /home/bitrix/www/bitrix/modules/main/lib/application.php:174 #119: Bitrix\Main\Application->end() /home/bitrix/www/bitrix/modules/main/tools.php:3885 #120: LocalRedirect(string, string) /home/bitrix/www/bitrix/php_interface/init.php:644 #121: CYakusHandlers::OnAfterEpilog() /home/bitrix/www/bitrix/modules/main/classes/general/module.php:465 #122: ExecuteModuleEventEx(array) /home/bitrix/www/bitrix/modules/main/classes/general/main.php:3487 #123: CAllMain::RunFinalActionsInternal() /home/bitrix/www/bitrix/modules/main/lib/application.php:187 #124: Bitrix\Main\Application->terminate(integer) /home/bitrix/www/bitrix/modules/main/lib/application.php:174 #125: Bitrix\Main\Application->end() /home/bitrix/www/bitrix/modules/main/tools.
php:3885 #126: LocalRedirect(string, string) /home/bitrix/www/bitrix/php_interface/init.php:644 #127: CYakusHandlers::OnAfterEpilog() /home/bitrix/www/bitrix/modules/main/classes/general/module.php:465 #128: ExecuteModuleEventEx(array) /home/bitrix/www/bitrix/modules/main/classes/general/main.php:3487 #129: CAllMain::RunFinalActionsInternal() /home/bitrix/www/bitrix/modules/main/lib/application.php:187 #130: Bitrix\Main\Application->terminate(integer) /home/bitrix/www/bitrix/modules/main/lib/application.php:174 #131: Bitrix\Main\Application->end() /home/bitrix/www/bitrix/modules/main/tools.php:3885 #132: LocalRedirect(string, string) /home/bitrix/www/bitrix/php_interface/init.php:644 #133: CYakusHandlers::OnAfterEpilog() /home/bitrix/www/bitrix/modules/main/classes/general/module.php:465 #134: ExecuteModuleEventEx(array) /home/bitrix/www/bitrix/modules/main/classes/general/main.php:3487 #135: CAllMain::RunFinalActionsInternal() /home/bitrix/www/bitrix/modules/main/lib/application.
php:187 #136: Bitrix\Main\Application->terminate(integer) /home/bitrix/www/bitrix/modules/main/lib/application.php:174 #137: Bitrix\Main\Application->end() /home/bitrix/www/bitrix/modules/main/tools.php:3885 #138: LocalRedirect(string, string) /home/bitrix/www/bitrix/php_interface/init.php:644 #139: CYakusHandlers::OnAfterEpilog() /home/bitrix/www/bitrix/modules/main/classes/general/module.php:465 #140: ExecuteModuleEventEx(array) /home/bitrix/www/bitrix/modules/main/classes/general/main.php:3487 #141: CAllMain::RunFinalActionsInternal() /home/bitrix/www/bitrix/modules/main/lib/application.php:187 #142: Bitrix\Main\Application->terminate(integer) /home/bitrix/www/bitrix/modules/main/lib/application.php:174 #143: Bitrix\Main\Application->end() /home/bitrix/www/bitrix/modules/main/tools.php:3885 #144: LocalRedirect(string, string) /home/bitrix/www/bitrix/php_interface/init.php:644 #145: CYakusHandlers::OnAfterEpilog() /home/bitrix/www/bitrix/modules/main/classes/general/module.
php:465 #146: ExecuteModuleEventEx(array) /home/bitrix/www/bitrix/modules/main/classes/general/main.php:3487 #147: CAllMain::RunFinalActionsInternal() /home/bitrix/www/bitrix/modules/main/lib/application.php:187 #148: Bitrix\Main\Application->terminate(integer) /home/bitrix/www/bitrix/modules/main/lib/application.php:174 #149: Bitrix\Main\Application->end() /home/bitrix/www/bitrix/modules/main/tools.php:3885 #150: LocalRedirect(string, string) /home/bitrix/www/bitrix/php_interface/init.php:644 #151: CYakusHandlers::OnAfterEpilog() /home/bitrix/www/bitrix/modules/main/classes/general/module.php:465 #152: ExecuteModuleEventEx(array) /home/bitrix/www/bitrix/modules/main/classes/general/main.php:3487 #153: CAllMain::RunFinalActionsInternal() /home/bitrix/www/bitrix/modules/main/lib/application.php:187 #154: Bitrix\Main\Application->terminate(integer) /home/bitrix/www/bitrix/modules/main/lib/application.php:174 #155: Bitrix\Main\Application->end() /home/bitrix/www/bitrix/modules/main/tools.
php:3885 #156: LocalRedirect(string, string) /home/bitrix/www/bitrix/php_interface/init.php:644 #157: CYakusHandlers::OnAfterEpilog() /home/bitrix/www/bitrix/modules/main/classes/general/module.php:465 #158: ExecuteModuleEventEx(array) /home/bitrix/www/bitrix/modules/main/classes/general/main.php:3487 #159: CAllMain::RunFinalActionsInternal() /home/bitrix/www/bitrix/modules/main/lib/application.php:187 #160: Bitrix\Main\Application->terminate(integer) /home/bitrix/www/bitrix/modules/main/lib/application.php:174 #161: Bitrix\Main\Application->end() /home/bitrix/www/bitrix/modules/main/tools.php:3885 #162: LocalRedirect(string, string) /home/bitrix/www/bitrix/php_interface/init.php:644 #163: CYakusHandlers::OnAfterEpilog() /home/bitrix/www/bitrix/modules/main/classes/general/module.php:465 #164: ExecuteModuleEventEx(array) /home/bitrix/www/bitrix/modules/main/classes/general/main.php:3487 #165: CAllMain::RunFinalActionsInternal() /home/bitrix/www/bitrix/modules/main/lib/application.
php:187 #166: Bitrix\Main\Application->terminate(integer) /home/bitrix/www/bitrix/modules/main/lib/application.php:174 #167: Bitrix\Main\Application->end() /home/bitrix/www/bitrix/modules/main/tools.php:3885 #168: LocalRedirect(string, string) /home/bitrix/www/bitrix/php_interface/init.php:644 #169: CYakusHandlers::OnAfterEpilog() /home/bitrix/www/bitrix/modules/main/classes/general/module.php:465 #170: ExecuteModuleEventEx(array) /home/bitrix/www/bitrix/modules/main/classes/general/main.php:3487 #171: CAllMain::RunFinalActionsInternal() /home/bitrix/www/bitrix/modules/main/lib/application.php:187 #172: Bitrix\Main\Application->terminate(integer) /home/bitrix/www/bitrix/modules/main/lib/application.php:174 #173: Bitrix\Main\Application->end() /home/bitrix/www/bitrix/modules/main/tools.php:3885 #174: LocalRedirect(string, string) /home/bitrix/www/bitrix/php_interface/init.php:644 #175: CYakusHandlers::OnAfterEpilog() /home/bitrix/www/bitrix/modules/main/classes/general/module.
php:465 #176: ExecuteModuleEventEx(array) /home/bitrix/www/bitrix/modules/main/classes/general/main.php:3487 #177: CAllMain::RunFinalActionsInternal() /home/bitrix/www/bitrix/modules/main/lib/application.php:187 #178: Bitrix\Main\Application->terminate(integer) /home/bitrix/www/bitrix/modules/main/lib/application.php:174 #179: Bitrix\Main\Application->end() /home/bitrix/www/bitrix/modules/main/tools.php:3885 #180: LocalRedirect(string, string) /home/bitrix/www/bitrix/php_interface/init.php:644 #181: CYakusHandlers::OnAfterEpilog() /home/bitrix/www/bitrix/modules/main/classes/general/module.php:465 #182: ExecuteModuleEventEx(array) /home/bitrix/www/bitrix/modules/main/classes/general/main.php:3487 #183: CAllMain::RunFinalActionsInternal() /home/bitrix/www/bitrix/modules/main/lib/application.php:187 #184: Bitrix\Main\Application->terminate(integer) /home/bitrix/www/bitrix/modules/main/lib/application.php:174 #185: Bitrix\Main\Application->end() /home/bitrix/www/bitrix/modules/main/tools.
php:3885 #186: LocalRedirect(string, string) /home/bitrix/www/bitrix/php_interface/init.php:644 #187: CYakusHandlers::OnAfterEpilog() /home/bitrix/www/bitrix/modules/main/classes/general/module.php:465 #188: ExecuteModuleEventEx(array) /home/bitrix/www/bitrix/modules/main/classes/general/main.php:3487 #189: CAllMain::RunFinalActionsInternal() /home/bitrix/www/bitrix/modules/main/lib/application.php:187 #190: Bitrix\Main\Application->terminate(integer) /home/bitrix/www/bitrix/modules/main/lib/application.php:174 #191: Bitrix\Main\Application->end() /home/bitrix/www/bitrix/modules/main/tools.php:3885 #192: LocalRedirect(string, string) /home/bitrix/www/bitrix/php_interface/init.php:644 #193: CYakusHandlers::OnAfterEpilog() /home/bitrix/www/bitrix/modules/main/classes/general/module.php:465 #194: ExecuteModuleEventEx(array) /home/bitrix/www/bitrix/modules/main/classes/general/main.php:3487 #195: CAllMain::RunFinalActionsInternal() /home/bitrix/www/bitrix/modules/main/lib/application.
php:187 #196: Bitrix\Main\Application->terminate(integer) /home/bitrix/www/bitrix/modules/main/lib/application.php:174 #197: Bitrix\Main\Application->end() /home/bitrix/www/bitrix/modules/main/tools.php:3885 #198: LocalRedirect(string, string) /home/bitrix/www/bitrix/php_interface/init.php:644 #199: CYakusHandlers::OnAfterEpilog() /home/bitrix/www/bitrix/modules/main/classes/general/module.php:465 #200: ExecuteModuleEventEx(array) /home/bitrix/www/bitrix/modules/main/classes/general/main.php:3487 #201: CAllMain::RunFinalActionsInternal() /home/bitrix/www/bitrix/modules/main/lib/application.php:187 #202: Bitrix\Main\Application->terminate(integer) /home/bitrix/www/bitrix/modules/main/lib/application.php:174 #203: Bitrix\Main\Application->end() /home/bitrix/www/bitrix/modules/main/tools.php:3885 #204: LocalRedirect(string, string) /home/bitrix/www/bitrix/php_interface/init.php:644 #205: CYakusHandlers::OnAfterEpilog() /home/bitrix/www/bitrix/modules/main/classes/general/module.
php:465 #206: ExecuteModuleEventEx(array) /home/bitrix/www/bitrix/modules/main/classes/general/main.php:3487 #207: CAllMain::RunFinalActionsInternal() /home/bitrix/www/bitrix/modules/main/lib/application.php:187 #208: Bitrix\Main\Application->terminate(integer) /home/bitrix/www/bitrix/modules/main/lib/application.php:174 #209: Bitrix\Main\Application->end() /home/bitrix/www/bitrix/modules/main/tools.php:3885 #210: LocalRedirect(string, string) /home/bitrix/www/bitrix/php_interface/init.php:644 #211: CYakusHandlers::OnAfterEpilog() /home/bitrix/www/bitrix/modules/main/classes/general/module.php:465 #212: ExecuteModuleEventEx(array) /home/bitrix/www/bitrix/modules/main/classes/general/main.php:3487 #213: CAllMain::RunFinalActionsInternal() /home/bitrix/www/bitrix/modules/main/lib/application.php:187 #214: Bitrix\Main\Application->terminate(integer) /home/bitrix/www/bitrix/modules/main/lib/application.php:174 #215: Bitrix\Main\Application->end() /home/bitrix/www/bitrix/modules/main/tools.
php:3885 #216: LocalRedirect(string, string) /home/bitrix/www/bitrix/php_interface/init.php:644 #217: CYakusHandlers::OnAfterEpilog() /home/bitrix/www/bitrix/modules/main/classes/general/module.php:465 #218: ExecuteModuleEventEx(array) /home/bitrix/www/bitrix/modules/main/classes/general/main.php:3487 #219: CAllMain::RunFinalActionsInternal() /home/bitrix/www/bitrix/modules/main/lib/application.php:187 #220: Bitrix\Main\Application->terminate(integer) /home/bitrix/www/bitrix/modules/main/lib/application.php:174 #221: Bitrix\Main\Application->end() /home/bitrix/www/bitrix/modules/main/tools.php:3885 #222: LocalRedirect(string, string) /home/bitrix/www/bitrix/php_interface/init.php:644 #223: CYakusHandlers::OnAfterEpilog() /home/bitrix/www/bitrix/modules/main/classes/general/module.php:465 #224: ExecuteModuleEventEx(array) /home/bitrix/www/bitrix/modules/main/classes/general/main.php:3487 #225: CAllMain::RunFinalActionsInternal() /home/bitrix/www/bitrix/modules/main/lib/application.
php:187 #226: Bitrix\Main\Application->terminate(integer) /home/bitrix/www/bitrix/modules/main/lib/application.php:174 #227: Bitrix\Main\Application->end() /home/bitrix/www/bitrix/modules/main/tools.php:3885 #228: LocalRedirect(string, string) /home/bitrix/www/bitrix/php_interface/init.php:644 #229: CYakusHandlers::OnAfterEpilog() /home/bitrix/www/bitrix/modules/main/classes/general/module.php:465 #230: ExecuteModuleEventEx(array) /home/bitrix/www/bitrix/modules/main/classes/general/main.php:3487 #231: CAllMain::RunFinalActionsInternal() /home/bitrix/www/bitrix/modules/main/lib/application.php:187 #232: Bitrix\Main\Application->terminate(integer) /home/bitrix/www/bitrix/modules/main/lib/application.php:174 #233: Bitrix\Main\Application->end() /home/bitrix/www/bitrix/modules/main/tools.php:3885 #234: LocalRedirect(string, string) /home/bitrix/www/bitrix/php_interface/init.php:644 #235: CYakusHandlers::OnAfterEpilog() /home/bitrix/www/bitrix/modules/main/classes/general/module.
php:465 #236: ExecuteModuleEventEx(array) /home/bitrix/www/bitrix/modules/main/classes/general/main.php:3487 #237: CAllMain::RunFinalActionsInternal() /home/bitrix/www/bitrix/modules/main/lib/application.php:187 #238: Bitrix\Main\Application->terminate(integer) /home/bitrix/www/bitrix/modules/main/lib/application.php:174 #239: Bitrix\Main\Application->end() /home/bitrix/www/bitrix/modules/main/tools.php:3885 #240: LocalRedirect(string, string) /home/bitrix/www/bitrix/php_interface/init.php:644 #241: CYakusHandlers::OnAfterEpilog() /home/bitrix/www/bitrix/modules/main/classes/general/module.php:465 #242: ExecuteModuleEventEx(array) /home/bitrix/www/bitrix/modules/main/classes/general/main.php:3487 #243: CAllMain::RunFinalActionsInternal() /home/bitrix/www/bitrix/modules/main/classes/general/main.php:3465 #244: CAllMain::FinalActions(string) /home/bitrix/www/bitrix/modules/main/include/epilog_after.php:54 #245: require(string) /home/bitrix/www/bitrix/modules/main/include/epilog.
php:3 #246: require_once(string) /home/bitrix/www/bitrix/footer.php:4 #247: require(string) /home/bitrix/www/404.php:53 #248: require(string) /home/bitrix/www/bitrix/modules/iblock/lib/component/tools.php:66 #249: Bitrix\Iblock\Component\Tools::process404(string, boolean, boolean, boolean, string) /home/bitrix/www/bitrix/components/bitrix/news/component.php:145 #250: include(string) /home/bitrix/www/bitrix/modules/main/classes/general/component.php:605 #251: CBitrixComponent->__includeComponent() /home/bitrix/www/bitrix/modules/main/classes/general/component.php:680 #252: CBitrixComponent->includeComponent(string, array, boolean, boolean) /home/bitrix/www/bitrix/modules/main/classes/general/main.php:1039 #253: CAllMain->IncludeComponent(string, string, array, boolean) /home/bitrix/www/articles/index.php:133 #254: include_once(string) /home/bitrix/www/bitrix/modules/main/include/urlrewrite.php:159 #255: include_once(string) /home/bitrix/www/bitrix/urlrewrite.php:2
аналитика, советы, помощь с выбором материалов.
[Error] Maximum function nesting level of '256' reached, aborting! (0) /home/bitrix/www/bitrix/modules/main/lib/config/option.php:430 #0: Bitrix\Main\Config\Option::getDefaultSite() /home/bitrix/www/bitrix/modules/main/lib/config/option.php:43 #1: Bitrix\Main\Config\Option::get(string, string, string, boolean) /home/bitrix/www/bitrix/modules/main/classes/general/option.php:30 #2: CAllOption::GetOptionString(string, string, string) /home/bitrix/www/bitrix/modules/main/classes/general/main.php:2699 #3: CAllMain->get_cookie(string) /home/bitrix/www/bitrix/modules/main/lib/composite/engine.php:1321 #4: Bitrix\Main\Composite\Engine::onEpilog() /home/bitrix/www/bitrix/modules/main/classes/general/module.php:480 #5: ExecuteModuleEventEx(array) /home/bitrix/www/bitrix/modules/main/tools.php:3880 #6: LocalRedirect(string, string) /home/bitrix/www/bitrix/php_interface/init.php:644 #7: CYakusHandlers::OnAfterEpilog() /home/bitrix/www/bitrix/modules/main/classes/general/module.php:465 #8: ExecuteModuleEventEx(array) /home/bitrix/www/bitrix/modules/main/classes/general/main.php:3487 #9: CAllMain::RunFinalActionsInternal() /home/bitrix/www/bitrix/modules/main/lib/application.php:187 #10: Bitrix\Main\Application->terminate(integer) /home/bitrix/www/bitrix/modules/main/lib/application.php:174 #11: Bitrix\Main\Application->end() /home/bitrix/www/bitrix/modules/main/tools.php:3885 #12: LocalRedirect(string, string) /home/bitrix/www/bitrix/php_interface/init.php:644 #13: CYakusHandlers::OnAfterEpilog() /home/bitrix/www/bitrix/modules/main/classes/general/module.php:465 #14: ExecuteModuleEventEx(array) /home/bitrix/www/bitrix/modules/main/classes/general/main.php:3487 #15: CAllMain::RunFinalActionsInternal() /home/bitrix/www/bitrix/modules/main/lib/application.php:187 #16: Bitrix\Main\Application->terminate(integer) /home/bitrix/www/bitrix/modules/main/lib/application.php:174 #17: Bitrix\Main\Application->end() /home/bitrix/www/bitrix/modules/main/tools.php:3885 #18: LocalRedirect(string, string) /home/bitrix/www/bitrix/php_interface/init.php:644 #19: CYakusHandlers::OnAfterEpilog() /home/bitrix/www/bitrix/modules/main/classes/general/module.php:465 #20: ExecuteModuleEventEx(array) /home/bitrix/www/bitrix/modules/main/classes/general/main.php:3487 #21: CAllMain::RunFinalActionsInternal() /home/bitrix/www/bitrix/modules/main/lib/application.php:187 #22: Bitrix\Main\Application->terminate(integer) /home/bitrix/www/bitrix/modules/main/lib/application.php:174 #23: Bitrix\Main\Application->end() /home/bitrix/www/bitrix/modules/main/tools.php:3885 #24: LocalRedirect(string, string) /home/bitrix/www/bitrix/php_interface/init.php:644 #25: CYakusHandlers::OnAfterEpilog() /home/bitrix/www/bitrix/modules/main/classes/general/module.php:465 #26: ExecuteModuleEventEx(array) /home/bitrix/www/bitrix/modules/main/classes/general/main.php:3487 #27: CAllMain::RunFinalActionsInternal() /home/bitrix/www/bitrix/modules/main/lib/application.php:187 #28: Bitrix\Main\Application->terminate(integer) /home/bitrix/www/bitrix/modules/main/lib/application.php:174 #29: Bitrix\Main\Application->end() /home/bitrix/www/bitrix/modules/main/tools.php:3885 #30: LocalRedirect(string, string) /home/bitrix/www/bitrix/php_interface/init.php:644 #31: CYakusHandlers::OnAfterEpilog() /home/bitrix/www/bitrix/modules/main/classes/general/module.php:465 #32: ExecuteModuleEventEx(array) /home/bitrix/www/bitrix/modules/main/classes/general/main.php:3487 #33: CAllMain::RunFinalActionsInternal() /home/bitrix/www/bitrix/modules/main/lib/application.php:187 #34: Bitrix\Main\Application->terminate(integer) /home/bitrix/www/bitrix/modules/main/lib/application.php:174 #35: Bitrix\Main\Application->end() /home/bitrix/www/bitrix/modules/main/tools.php:3885 #36: LocalRedirect(string, string) /home/bitrix/www/bitrix/php_interface/init.php:644 #37: CYakusHandlers::OnAfterEpilog() /home/bitrix/www/bitrix/modules/main/classes/general/module.php:465 #38: ExecuteModuleEventEx(array) /home/bitrix/www/bitrix/modules/main/classes/general/main.php:3487 #39: CAllMain::RunFinalActionsInternal() /home/bitrix/www/bitrix/modules/main/lib/application.php:187 #40: Bitrix\Main\Application->terminate(integer) /home/bitrix/www/bitrix/modules/main/lib/application.php:174 #41: Bitrix\Main\Application->end() /home/bitrix/www/bitrix/modules/main/tools.php:3885 #42: LocalRedirect(string, string) /home/bitrix/www/bitrix/php_interface/init.php:644 #43: CYakusHandlers::OnAfterEpilog() /home/bitrix/www/bitrix/modules/main/classes/general/module.php:465 #44: ExecuteModuleEventEx(array) /home/bitrix/www/bitrix/modules/main/classes/general/main.php:3487 #45: CAllMain::RunFinalActionsInternal() /home/bitrix/www/bitrix/modules/main/lib/application.php:187 #46: Bitrix\Main\Application->terminate(integer) /home/bitrix/www/bitrix/modules/main/lib/application.php:174 #47: Bitrix\Main\Application->end() /home/bitrix/www/bitrix/modules/main/tools.php:3885 #48: LocalRedirect(string, string) /home/bitrix/www/bitrix/php_interface/init.php:644 #49: CYakusHandlers::OnAfterEpilog() /home/bitrix/www/bitrix/modules/main/classes/general/module.php:465 #50: ExecuteModuleEventEx(array) /home/bitrix/www/bitrix/modules/main/classes/general/main.php:3487 #51: CAllMain::RunFinalActionsInternal() /home/bitrix/www/bitrix/modules/main/lib/application.php:187 #52: Bitrix\Main\Application->terminate(integer) /home/bitrix/www/bitrix/modules/main/lib/application.php:174 #53: Bitrix\Main\Application->end() /home/bitrix/www/bitrix/modules/main/tools.php:3885 #54: LocalRedirect(string, string) /home/bitrix/www/bitrix/php_interface/init.php:644 #55: CYakusHandlers::OnAfterEpilog() /home/bitrix/www/bitrix/modules/main/classes/general/module.php:465 #56: ExecuteModuleEventEx(array) /home/bitrix/www/bitrix/modules/main/classes/general/main.php:3487 #57: CAllMain::RunFinalActionsInternal() /home/bitrix/www/bitrix/modules/main/lib/application.php:187 #58: Bitrix\Main\Application->terminate(integer) /home/bitrix/www/bitrix/modules/main/lib/application.php:174 #59: Bitrix\Main\Application->end() /home/bitrix/www/bitrix/modules/main/tools.php:3885 #60: LocalRedirect(string, string) /home/bitrix/www/bitrix/php_interface/init.php:644 #61: CYakusHandlers::OnAfterEpilog() /home/bitrix/www/bitrix/modules/main/classes/general/module.php:465 #62: ExecuteModuleEventEx(array) /home/bitrix/www/bitrix/modules/main/classes/general/main.php:3487 #63: CAllMain::RunFinalActionsInternal() /home/bitrix/www/bitrix/modules/main/lib/application.php:187 #64: Bitrix\Main\Application->terminate(integer) /home/bitrix/www/bitrix/modules/main/lib/application.php:174 #65: Bitrix\Main\Application->end() /home/bitrix/www/bitrix/modules/main/tools.php:3885 #66: LocalRedirect(string, string) /home/bitrix/www/bitrix/php_interface/init.php:644 #67: CYakusHandlers::OnAfterEpilog() /home/bitrix/www/bitrix/modules/main/classes/general/module.php:465 #68: ExecuteModuleEventEx(array) /home/bitrix/www/bitrix/modules/main/classes/general/main.php:3487 #69: CAllMain::RunFinalActionsInternal() /home/bitrix/www/bitrix/modules/main/lib/application.php:187 #70: Bitrix\Main\Application->terminate(integer) /home/bitrix/www/bitrix/modules/main/lib/application.php:174 #71: Bitrix\Main\Application->end() /home/bitrix/www/bitrix/modules/main/tools.php:3885 #72: LocalRedirect(string, string) /home/bitrix/www/bitrix/php_interface/init.php:644 #73: CYakusHandlers::OnAfterEpilog() /home/bitrix/www/bitrix/modules/main/classes/general/module.php:465 #74: ExecuteModuleEventEx(array) /home/bitrix/www/bitrix/modules/main/classes/general/main.php:3487 #75: CAllMain::RunFinalActionsInternal() /home/bitrix/www/bitrix/modules/main/lib/application.php:187 #76: Bitrix\Main\Application->terminate(integer) /home/bitrix/www/bitrix/modules/main/lib/application.php:174 #77: Bitrix\Main\Application->end() /home/bitrix/www/bitrix/modules/main/tools.php:3885 #78: LocalRedirect(string, string) /home/bitrix/www/bitrix/php_interface/init.php:644 #79: CYakusHandlers::OnAfterEpilog() /home/bitrix/www/bitrix/modules/main/classes/general/module.php:465 #80: ExecuteModuleEventEx(array) /home/bitrix/www/bitrix/modules/main/classes/general/main.php:3487 #81: CAllMain::RunFinalActionsInternal() /home/bitrix/www/bitrix/modules/main/lib/application.php:187 #82: Bitrix\Main\Application->terminate(integer) /home/bitrix/www/bitrix/modules/main/lib/application.php:174 #83: Bitrix\Main\Application->end() /home/bitrix/www/bitrix/modules/main/tools.php:3885 #84: LocalRedirect(string, string) /home/bitrix/www/bitrix/php_interface/init.php:644 #85: CYakusHandlers::OnAfterEpilog() /home/bitrix/www/bitrix/modules/main/classes/general/module.php:465 #86: ExecuteModuleEventEx(array) /home/bitrix/www/bitrix/modules/main/classes/general/main.php:3487 #87: CAllMain::RunFinalActionsInternal() /home/bitrix/www/bitrix/modules/main/lib/application.php:187 #88: Bitrix\Main\Application->terminate(integer) /home/bitrix/www/bitrix/modules/main/lib/application.php:174 #89: Bitrix\Main\Application->end() /home/bitrix/www/bitrix/modules/main/tools.php:3885 #90: LocalRedirect(string, string) /home/bitrix/www/bitrix/php_interface/init.php:644 #91: CYakusHandlers::OnAfterEpilog() /home/bitrix/www/bitrix/modules/main/classes/general/module.php:465 #92: ExecuteModuleEventEx(array) /home/bitrix/www/bitrix/modules/main/classes/general/main.php:3487 #93: CAllMain::RunFinalActionsInternal() /home/bitrix/www/bitrix/modules/main/lib/application.php:187 #94: Bitrix\Main\Application->terminate(integer) /home/bitrix/www/bitrix/modules/main/lib/application.php:174 #95: Bitrix\Main\Application->end() /home/bitrix/www/bitrix/modules/main/tools.php:3885 #96: LocalRedirect(string, string) /home/bitrix/www/bitrix/php_interface/init.php:644 #97: CYakusHandlers::OnAfterEpilog() /home/bitrix/www/bitrix/modules/main/classes/general/module.php:465 #98: ExecuteModuleEventEx(array) /home/bitrix/www/bitrix/modules/main/classes/general/main.php:3487 #99: CAllMain::RunFinalActionsInternal() /home/bitrix/www/bitrix/modules/main/lib/application.php:187 #100: Bitrix\Main\Application->terminate(integer) /home/bitrix/www/bitrix/modules/main/lib/application.php:174 #101: Bitrix\Main\Application->end() /home/bitrix/www/bitrix/modules/main/tools.php:3885 #102: LocalRedirect(string, string) /home/bitrix/www/bitrix/php_interface/init.php:644 #103: CYakusHandlers::OnAfterEpilog() /home/bitrix/www/bitrix/modules/main/classes/general/module.php:465 #104: ExecuteModuleEventEx(array) /home/bitrix/www/bitrix/modules/main/classes/general/main.php:3487 #105: CAllMain::RunFinalActionsInternal() /home/bitrix/www/bitrix/modules/main/lib/application.php:187 #106: Bitrix\Main\Application->terminate(integer) /home/bitrix/www/bitrix/modules/main/lib/application.php:174 #107: Bitrix\Main\Application->end() /home/bitrix/www/bitrix/modules/main/tools.php:3885 #108: LocalRedirect(string, string) /home/bitrix/www/bitrix/php_interface/init.php:644 #109: CYakusHandlers::OnAfterEpilog() /home/bitrix/www/bitrix/modules/main/classes/general/module.php:465 #110: ExecuteModuleEventEx(array) /home/bitrix/www/bitrix/modules/main/classes/general/main.php:3487 #111: CAllMain::RunFinalActionsInternal() /home/bitrix/www/bitrix/modules/main/lib/application.php:187 #112: Bitrix\Main\Application->terminate(integer) /home/bitrix/www/bitrix/modules/main/lib/application.php:174 #113: Bitrix\Main\Application->end() /home/bitrix/www/bitrix/modules/main/tools.php:3885 #114: LocalRedirect(string, string) /home/bitrix/www/bitrix/php_interface/init.php:644 #115: CYakusHandlers::OnAfterEpilog() /home/bitrix/www/bitrix/modules/main/classes/general/module.php:465 #116: ExecuteModuleEventEx(array) /home/bitrix/www/bitrix/modules/main/classes/general/main.php:3487 #117: CAllMain::RunFinalActionsInternal() /home/bitrix/www/bitrix/modules/main/lib/application.php:187 #118: Bitrix\Main\Application->terminate(integer) /home/bitrix/www/bitrix/modules/main/lib/application.php:174 #119: Bitrix\Main\Application->end() /home/bitrix/www/bitrix/modules/main/tools.php:3885 #120: LocalRedirect(string, string) /home/bitrix/www/bitrix/php_interface/init.php:644 #121: CYakusHandlers::OnAfterEpilog() /home/bitrix/www/bitrix/modules/main/classes/general/module.php:465 #122: ExecuteModuleEventEx(array) /home/bitrix/www/bitrix/modules/main/classes/general/main.php:3487 #123: CAllMain::RunFinalActionsInternal() /home/bitrix/www/bitrix/modules/main/lib/application.php:187 #124: Bitrix\Main\Application->terminate(integer) /home/bitrix/www/bitrix/modules/main/lib/application.php:174 #125: Bitrix\Main\Application->end() /home/bitrix/www/bitrix/modules/main/tools.php:3885 #126: LocalRedirect(string, string) /home/bitrix/www/bitrix/php_interface/init.php:644 #127: CYakusHandlers::OnAfterEpilog() /home/bitrix/www/bitrix/modules/main/classes/general/module.php:465 #128: ExecuteModuleEventEx(array) /home/bitrix/www/bitrix/modules/main/classes/general/main.php:3487 #129: CAllMain::RunFinalActionsInternal() /home/bitrix/www/bitrix/modules/main/lib/application.php:187 #130: Bitrix\Main\Application->terminate(integer) /home/bitrix/www/bitrix/modules/main/lib/application.php:174 #131: Bitrix\Main\Application->end() /home/bitrix/www/bitrix/modules/main/tools.php:3885 #132: LocalRedirect(string, string) /home/bitrix/www/bitrix/php_interface/init.php:644 #133: CYakusHandlers::OnAfterEpilog() /home/bitrix/www/bitrix/modules/main/classes/general/module.php:465 #134: ExecuteModuleEventEx(array) /home/bitrix/www/bitrix/modules/main/classes/general/main.php:3487 #135: CAllMain::RunFinalActionsInternal() /home/bitrix/www/bitrix/modules/main/lib/application.php:187 #136: Bitrix\Main\Application->terminate(integer) /home/bitrix/www/bitrix/modules/main/lib/application.php:174 #137: Bitrix\Main\Application->end() /home/bitrix/www/bitrix/modules/main/tools.php:3885 #138: LocalRedirect(string, string) /home/bitrix/www/bitrix/php_interface/init.php:644 #139: CYakusHandlers::OnAfterEpilog() /home/bitrix/www/bitrix/modules/main/classes/general/module.php:465 #140: ExecuteModuleEventEx(array) /home/bitrix/www/bitrix/modules/main/classes/general/main.php:3487 #141: CAllMain::RunFinalActionsInternal() /home/bitrix/www/bitrix/modules/main/lib/application.php:187 #142: Bitrix\Main\Application->terminate(integer) /home/bitrix/www/bitrix/modules/main/lib/application.php:174 #143: Bitrix\Main\Application->end() /home/bitrix/www/bitrix/modules/main/tools.php:3885 #144: LocalRedirect(string, string) /home/bitrix/www/bitrix/php_interface/init.php:644 #145: CYakusHandlers::OnAfterEpilog() /home/bitrix/www/bitrix/modules/main/classes/general/module.php:465 #146: ExecuteModuleEventEx(array) /home/bitrix/www/bitrix/modules/main/classes/general/main.php:3487 #147: CAllMain::RunFinalActionsInternal() /home/bitrix/www/bitrix/modules/main/lib/application.php:187 #148: Bitrix\Main\Application->terminate(integer) /home/bitrix/www/bitrix/modules/main/lib/application.php:174 #149: Bitrix\Main\Application->end() /home/bitrix/www/bitrix/modules/main/tools.php:3885 #150: LocalRedirect(string, string) /home/bitrix/www/bitrix/php_interface/init.php:644 #151: CYakusHandlers::OnAfterEpilog() /home/bitrix/www/bitrix/modules/main/classes/general/module.php:465 #152: ExecuteModuleEventEx(array) /home/bitrix/www/bitrix/modules/main/classes/general/main.php:3487 #153: CAllMain::RunFinalActionsInternal() /home/bitrix/www/bitrix/modules/main/lib/application.php:187 #154: Bitrix\Main\Application->terminate(integer) /home/bitrix/www/bitrix/modules/main/lib/application.php:174 #155: Bitrix\Main\Application->end() /home/bitrix/www/bitrix/modules/main/tools.php:3885 #156: LocalRedirect(string, string) /home/bitrix/www/bitrix/php_interface/init.php:644 #157: CYakusHandlers::OnAfterEpilog() /home/bitrix/www/bitrix/modules/main/classes/general/module.php:465 #158: ExecuteModuleEventEx(array) /home/bitrix/www/bitrix/modules/main/classes/general/main.php:3487 #159: CAllMain::RunFinalActionsInternal() /home/bitrix/www/bitrix/modules/main/lib/application.php:187 #160: Bitrix\Main\Application->terminate(integer) /home/bitrix/www/bitrix/modules/main/lib/application.php:174 #161: Bitrix\Main\Application->end() /home/bitrix/www/bitrix/modules/main/tools.php:3885 #162: LocalRedirect(string, string) /home/bitrix/www/bitrix/php_interface/init.php:644 #163: CYakusHandlers::OnAfterEpilog() /home/bitrix/www/bitrix/modules/main/classes/general/module.php:465 #164: ExecuteModuleEventEx(array) /home/bitrix/www/bitrix/modules/main/classes/general/main.php:3487 #165: CAllMain::RunFinalActionsInternal() /home/bitrix/www/bitrix/modules/main/lib/application.php:187 #166: Bitrix\Main\Application->terminate(integer) /home/bitrix/www/bitrix/modules/main/lib/application.php:174 #167: Bitrix\Main\Application->end() /home/bitrix/www/bitrix/modules/main/tools.php:3885 #168: LocalRedirect(string, string) /home/bitrix/www/bitrix/php_interface/init.php:644 #169: CYakusHandlers::OnAfterEpilog() /home/bitrix/www/bitrix/modules/main/classes/general/module.php:465 #170: ExecuteModuleEventEx(array) /home/bitrix/www/bitrix/modules/main/classes/general/main.php:3487 #171: CAllMain::RunFinalActionsInternal() /home/bitrix/www/bitrix/modules/main/lib/application.php:187 #172: Bitrix\Main\Application->terminate(integer) /home/bitrix/www/bitrix/modules/main/lib/application.php:174 #173: Bitrix\Main\Application->end() /home/bitrix/www/bitrix/modules/main/tools.php:3885 #174: LocalRedirect(string, string) /home/bitrix/www/bitrix/php_interface/init.php:644 #175: CYakusHandlers::OnAfterEpilog() /home/bitrix/www/bitrix/modules/main/classes/general/module.php:465 #176: ExecuteModuleEventEx(array) /home/bitrix/www/bitrix/modules/main/classes/general/main.php:3487 #177: CAllMain::RunFinalActionsInternal() /home/bitrix/www/bitrix/modules/main/lib/application.php:187 #178: Bitrix\Main\Application->terminate(integer) /home/bitrix/www/bitrix/modules/main/lib/application.php:174 #179: Bitrix\Main\Application->end() /home/bitrix/www/bitrix/modules/main/tools.php:3885 #180: LocalRedirect(string, string) /home/bitrix/www/bitrix/php_interface/init.php:644 #181: CYakusHandlers::OnAfterEpilog() /home/bitrix/www/bitrix/modules/main/classes/general/module.php:465 #182: ExecuteModuleEventEx(array) /home/bitrix/www/bitrix/modules/main/classes/general/main.php:3487 #183: CAllMain::RunFinalActionsInternal() /home/bitrix/www/bitrix/modules/main/lib/application.php:187 #184: Bitrix\Main\Application->terminate(integer) /home/bitrix/www/bitrix/modules/main/lib/application.php:174 #185: Bitrix\Main\Application->end() /home/bitrix/www/bitrix/modules/main/tools.php:3885 #186: LocalRedirect(string, string) /home/bitrix/www/bitrix/php_interface/init.php:644 #187: CYakusHandlers::OnAfterEpilog() /home/bitrix/www/bitrix/modules/main/classes/general/module.php:465 #188: ExecuteModuleEventEx(array) /home/bitrix/www/bitrix/modules/main/classes/general/main.php:3487 #189: CAllMain::RunFinalActionsInternal() /home/bitrix/www/bitrix/modules/main/lib/application.php:187 #190: Bitrix\Main\Application->terminate(integer) /home/bitrix/www/bitrix/modules/main/lib/application.php:174 #191: Bitrix\Main\Application->end() /home/bitrix/www/bitrix/modules/main/tools.php:3885 #192: LocalRedirect(string, string) /home/bitrix/www/bitrix/php_interface/init.php:644 #193: CYakusHandlers::OnAfterEpilog() /home/bitrix/www/bitrix/modules/main/classes/general/module.php:465 #194: ExecuteModuleEventEx(array) /home/bitrix/www/bitrix/modules/main/classes/general/main.php:3487 #195: CAllMain::RunFinalActionsInternal() /home/bitrix/www/bitrix/modules/main/lib/application.php:187 #196: Bitrix\Main\Application->terminate(integer) /home/bitrix/www/bitrix/modules/main/lib/application.php:174 #197: Bitrix\Main\Application->end() /home/bitrix/www/bitrix/modules/main/tools.php:3885 #198: LocalRedirect(string, string) /home/bitrix/www/bitrix/php_interface/init.php:644 #199: CYakusHandlers::OnAfterEpilog() /home/bitrix/www/bitrix/modules/main/classes/general/module.php:465 #200: ExecuteModuleEventEx(array) /home/bitrix/www/bitrix/modules/main/classes/general/main.php:3487 #201: CAllMain::RunFinalActionsInternal() /home/bitrix/www/bitrix/modules/main/lib/application.php:187 #202: Bitrix\Main\Application->terminate(integer) /home/bitrix/www/bitrix/modules/main/lib/application.php:174 #203: Bitrix\Main\Application->end() /home/bitrix/www/bitrix/modules/main/tools.php:3885 #204: LocalRedirect(string, string) /home/bitrix/www/bitrix/php_interface/init.php:644 #205: CYakusHandlers::OnAfterEpilog() /home/bitrix/www/bitrix/modules/main/classes/general/module.php:465 #206: ExecuteModuleEventEx(array) /home/bitrix/www/bitrix/modules/main/classes/general/main.php:3487 #207: CAllMain::RunFinalActionsInternal() /home/bitrix/www/bitrix/modules/main/lib/application.php:187 #208: Bitrix\Main\Application->terminate(integer) /home/bitrix/www/bitrix/modules/main/lib/application.php:174 #209: Bitrix\Main\Application->end() /home/bitrix/www/bitrix/modules/main/tools.php:3885 #210: LocalRedirect(string, string) /home/bitrix/www/bitrix/php_interface/init.php:644 #211: CYakusHandlers::OnAfterEpilog() /home/bitrix/www/bitrix/modules/main/classes/general/module.php:465 #212: ExecuteModuleEventEx(array) /home/bitrix/www/bitrix/modules/main/classes/general/main.php:3487 #213: CAllMain::RunFinalActionsInternal() /home/bitrix/www/bitrix/modules/main/lib/application.php:187 #214: Bitrix\Main\Application->terminate(integer) /home/bitrix/www/bitrix/modules/main/lib/application.php:174 #215: Bitrix\Main\Application->end() /home/bitrix/www/bitrix/modules/main/tools.php:3885 #216: LocalRedirect(string, string) /home/bitrix/www/bitrix/php_interface/init.php:644 #217: CYakusHandlers::OnAfterEpilog() /home/bitrix/www/bitrix/modules/main/classes/general/module.php:465 #218: ExecuteModuleEventEx(array) /home/bitrix/www/bitrix/modules/main/classes/general/main.php:3487 #219: CAllMain::RunFinalActionsInternal() /home/bitrix/www/bitrix/modules/main/lib/application.php:187 #220: Bitrix\Main\Application->terminate(integer) /home/bitrix/www/bitrix/modules/main/lib/application.php:174 #221: Bitrix\Main\Application->end() /home/bitrix/www/bitrix/modules/main/tools.php:3885 #222: LocalRedirect(string, string) /home/bitrix/www/bitrix/php_interface/init.php:644 #223: CYakusHandlers::OnAfterEpilog() /home/bitrix/www/bitrix/modules/main/classes/general/module.php:465 #224: ExecuteModuleEventEx(array) /home/bitrix/www/bitrix/modules/main/classes/general/main.php:3487 #225: CAllMain::RunFinalActionsInternal() /home/bitrix/www/bitrix/modules/main/lib/application.php:187 #226: Bitrix\Main\Application->terminate(integer) /home/bitrix/www/bitrix/modules/main/lib/application.php:174 #227: Bitrix\Main\Application->end() /home/bitrix/www/bitrix/modules/main/tools.php:3885 #228: LocalRedirect(string, string) /home/bitrix/www/bitrix/php_interface/init.php:644 #229: CYakusHandlers::OnAfterEpilog() /home/bitrix/www/bitrix/modules/main/classes/general/module.php:465 #230: ExecuteModuleEventEx(array) /home/bitrix/www/bitrix/modules/main/classes/general/main.php:3487 #231: CAllMain::RunFinalActionsInternal() /home/bitrix/www/bitrix/modules/main/lib/application.php:187 #232: Bitrix\Main\Application->terminate(integer) /home/bitrix/www/bitrix/modules/main/lib/application.php:174 #233: Bitrix\Main\Application->end() /home/bitrix/www/bitrix/modules/main/tools.php:3885 #234: LocalRedirect(string, string) /home/bitrix/www/bitrix/php_interface/init.php:644 #235: CYakusHandlers::OnAfterEpilog() /home/bitrix/www/bitrix/modules/main/classes/general/module.php:465 #236: ExecuteModuleEventEx(array) /home/bitrix/www/bitrix/modules/main/classes/general/main.php:3487 #237: CAllMain::RunFinalActionsInternal() /home/bitrix/www/bitrix/modules/main/lib/application.php:187 #238: Bitrix\Main\Application->terminate(integer) /home/bitrix/www/bitrix/modules/main/lib/application.php:174 #239: Bitrix\Main\Application->end() /home/bitrix/www/bitrix/modules/main/tools.php:3885 #240: LocalRedirect(string, string) /home/bitrix/www/bitrix/php_interface/init.php:644 #241: CYakusHandlers::OnAfterEpilog() /home/bitrix/www/bitrix/modules/main/classes/general/module.php:465 #242: ExecuteModuleEventEx(array) /home/bitrix/www/bitrix/modules/main/classes/general/main.php:3487 #243: CAllMain::RunFinalActionsInternal() /home/bitrix/www/bitrix/modules/main/classes/general/main.php:3465 #244: CAllMain::FinalActions(string) /home/bitrix/www/bitrix/modules/main/include/epilog_after.php:54 #245: require(string) /home/bitrix/www/bitrix/modules/main/include/epilog.php:3 #246: require_once(string) /home/bitrix/www/bitrix/footer.php:4 #247: require(string) /home/bitrix/www/404.php:53 #248: require(string) /home/bitrix/www/bitrix/modules/iblock/lib/component/tools.php:66 #249: Bitrix\Iblock\Component\Tools::process404(string, boolean, boolean, boolean, string) /home/bitrix/www/bitrix/components/bitrix/news/component.php:145 #250: include(string) /home/bitrix/www/bitrix/modules/main/classes/general/component.php:605 #251: CBitrixComponent->__includeComponent() /home/bitrix/www/bitrix/modules/main/classes/general/component.php:680 #252: CBitrixComponent->includeComponent(string, array, boolean, boolean) /home/bitrix/www/bitrix/modules/main/classes/general/main.php:1039 #253: CAllMain->IncludeComponent(string, string, array, boolean) /home/bitrix/www/articles/index.php:133 #254: include_once(string) /home/bitrix/www/bitrix/modules/main/include/urlrewrite.php:159 #255: include_once(string) /home/bitrix/www/bitrix/urlrewrite.php:2
аналитика, советы, помощь с выбором материалов.
[Error] Maximum function nesting level of '256' reached, aborting! (0) /home/bitrix/www/bitrix/modules/main/lib/config/option.php:430 #0: Bitrix\Main\Config\Option::getDefaultSite() /home/bitrix/www/bitrix/modules/main/lib/config/option.php:43 #1: Bitrix\Main\Config\Option::get(string, string, string, boolean) /home/bitrix/www/bitrix/modules/main/classes/general/option.php:30 #2: CAllOption::GetOptionString(string, string, string) /home/bitrix/www/bitrix/modules/main/classes/general/main.php:2699 #3: CAllMain->get_cookie(string) /home/bitrix/www/bitrix/modules/main/lib/composite/engine.php:1321 #4: Bitrix\Main\Composite\Engine::onEpilog() /home/bitrix/www/bitrix/modules/main/classes/general/module.php:480 #5: ExecuteModuleEventEx(array) /home/bitrix/www/bitrix/modules/main/tools.php:3880 #6: LocalRedirect(string, string) /home/bitrix/www/bitrix/php_interface/init.php:644 #7: CYakusHandlers::OnAfterEpilog() /home/bitrix/www/bitrix/modules/main/classes/general/module.php:465 #8: ExecuteModuleEventEx(array) /home/bitrix/www/bitrix/modules/main/classes/general/main.php:3487 #9: CAllMain::RunFinalActionsInternal() /home/bitrix/www/bitrix/modules/main/lib/application.php:187 #10: Bitrix\Main\Application->terminate(integer) /home/bitrix/www/bitrix/modules/main/lib/application.php:174 #11: Bitrix\Main\Application->end() /home/bitrix/www/bitrix/modules/main/tools.php:3885 #12: LocalRedirect(string, string) /home/bitrix/www/bitrix/php_interface/init.php:644 #13: CYakusHandlers::OnAfterEpilog() /home/bitrix/www/bitrix/modules/main/classes/general/module.php:465 #14: ExecuteModuleEventEx(array) /home/bitrix/www/bitrix/modules/main/classes/general/main.php:3487 #15: CAllMain::RunFinalActionsInternal() /home/bitrix/www/bitrix/modules/main/lib/application.php:187 #16: Bitrix\Main\Application->terminate(integer) /home/bitrix/www/bitrix/modules/main/lib/application.php:174 #17: Bitrix\Main\Application->end() /home/bitrix/www/bitrix/modules/main/tools.php:3885 #18: LocalRedirect(string, string) /home/bitrix/www/bitrix/php_interface/init.php:644 #19: CYakusHandlers::OnAfterEpilog() /home/bitrix/www/bitrix/modules/main/classes/general/module.php:465 #20: ExecuteModuleEventEx(array) /home/bitrix/www/bitrix/modules/main/classes/general/main.php:3487 #21: CAllMain::RunFinalActionsInternal() /home/bitrix/www/bitrix/modules/main/lib/application.php:187 #22: Bitrix\Main\Application->terminate(integer) /home/bitrix/www/bitrix/modules/main/lib/application.php:174 #23: Bitrix\Main\Application->end() /home/bitrix/www/bitrix/modules/main/tools.php:3885 #24: LocalRedirect(string, string) /home/bitrix/www/bitrix/php_interface/init.php:644 #25: CYakusHandlers::OnAfterEpilog() /home/bitrix/www/bitrix/modules/main/classes/general/module.php:465 #26: ExecuteModuleEventEx(array) /home/bitrix/www/bitrix/modules/main/classes/general/main.php:3487 #27: CAllMain::RunFinalActionsInternal() /home/bitrix/www/bitrix/modules/main/lib/application.php:187 #28: Bitrix\Main\Application->terminate(integer) /home/bitrix/www/bitrix/modules/main/lib/application.php:174 #29: Bitrix\Main\Application->end() /home/bitrix/www/bitrix/modules/main/tools.php:3885 #30: LocalRedirect(string, string) /home/bitrix/www/bitrix/php_interface/init.php:644 #31: CYakusHandlers::OnAfterEpilog() /home/bitrix/www/bitrix/modules/main/classes/general/module.php:465 #32: ExecuteModuleEventEx(array) /home/bitrix/www/bitrix/modules/main/classes/general/main.php:3487 #33: CAllMain::RunFinalActionsInternal() /home/bitrix/www/bitrix/modules/main/lib/application.php:187 #34: Bitrix\Main\Application->terminate(integer) /home/bitrix/www/bitrix/modules/main/lib/application.php:174 #35: Bitrix\Main\Application->end() /home/bitrix/www/bitrix/modules/main/tools.php:3885 #36: LocalRedirect(string, string) /home/bitrix/www/bitrix/php_interface/init.php:644 #37: CYakusHandlers::OnAfterEpilog() /home/bitrix/www/bitrix/modules/main/classes/general/module.php:465 #38: ExecuteModuleEventEx(array) /home/bitrix/www/bitrix/modules/main/classes/general/main.php:3487 #39: CAllMain::RunFinalActionsInternal() /home/bitrix/www/bitrix/modules/main/lib/application.php:187 #40: Bitrix\Main\Application->terminate(integer) /home/bitrix/www/bitrix/modules/main/lib/application.php:174 #41: Bitrix\Main\Application->end() /home/bitrix/www/bitrix/modules/main/tools.php:3885 #42: LocalRedirect(string, string) /home/bitrix/www/bitrix/php_interface/init.php:644 #43: CYakusHandlers::OnAfterEpilog() /home/bitrix/www/bitrix/modules/main/classes/general/module.php:465 #44: ExecuteModuleEventEx(array) /home/bitrix/www/bitrix/modules/main/classes/general/main.php:3487 #45: CAllMain::RunFinalActionsInternal() /home/bitrix/www/bitrix/modules/main/lib/application.php:187 #46: Bitrix\Main\Application->terminate(integer) /home/bitrix/www/bitrix/modules/main/lib/application.php:174 #47: Bitrix\Main\Application->end() /home/bitrix/www/bitrix/modules/main/tools.php:3885 #48: LocalRedirect(string, string) /home/bitrix/www/bitrix/php_interface/init.php:644 #49: CYakusHandlers::OnAfterEpilog() /home/bitrix/www/bitrix/modules/main/classes/general/module.php:465 #50: ExecuteModuleEventEx(array) /home/bitrix/www/bitrix/modules/main/classes/general/main.php:3487 #51: CAllMain::RunFinalActionsInternal() /home/bitrix/www/bitrix/modules/main/lib/application.php:187 #52: Bitrix\Main\Application->terminate(integer) /home/bitrix/www/bitrix/modules/main/lib/application.php:174 #53: Bitrix\Main\Application->end() /home/bitrix/www/bitrix/modules/main/tools.php:3885 #54: LocalRedirect(string, string) /home/bitrix/www/bitrix/php_interface/init.php:644 #55: CYakusHandlers::OnAfterEpilog() /home/bitrix/www/bitrix/modules/main/classes/general/module.php:465 #56: ExecuteModuleEventEx(array) /home/bitrix/www/bitrix/modules/main/classes/general/main.php:3487 #57: CAllMain::RunFinalActionsInternal() /home/bitrix/www/bitrix/modules/main/lib/application.php:187 #58: Bitrix\Main\Application->terminate(integer) /home/bitrix/www/bitrix/modules/main/lib/application.php:174 #59: Bitrix\Main\Application->end() /home/bitrix/www/bitrix/modules/main/tools.php:3885 #60: LocalRedirect(string, string) /home/bitrix/www/bitrix/php_interface/init.php:644 #61: CYakusHandlers::OnAfterEpilog() /home/bitrix/www/bitrix/modules/main/classes/general/module.php:465 #62: ExecuteModuleEventEx(array) /home/bitrix/www/bitrix/modules/main/classes/general/main.php:3487 #63: CAllMain::RunFinalActionsInternal() /home/bitrix/www/bitrix/modules/main/lib/application.php:187 #64: Bitrix\Main\Application->terminate(integer) /home/bitrix/www/bitrix/modules/main/lib/application.php:174 #65: Bitrix\Main\Application->end() /home/bitrix/www/bitrix/modules/main/tools.php:3885 #66: LocalRedirect(string, string) /home/bitrix/www/bitrix/php_interface/init.php:644 #67: CYakusHandlers::OnAfterEpilog() /home/bitrix/www/bitrix/modules/main/classes/general/module.php:465 #68: ExecuteModuleEventEx(array) /home/bitrix/www/bitrix/modules/main/classes/general/main.php:3487 #69: CAllMain::RunFinalActionsInternal() /home/bitrix/www/bitrix/modules/main/lib/application.php:187 #70: Bitrix\Main\Application->terminate(integer) /home/bitrix/www/bitrix/modules/main/lib/application.php:174 #71: Bitrix\Main\Application->end() /home/bitrix/www/bitrix/modules/main/tools.php:3885 #72: LocalRedirect(string, string) /home/bitrix/www/bitrix/php_interface/init.php:644 #73: CYakusHandlers::OnAfterEpilog() /home/bitrix/www/bitrix/modules/main/classes/general/module.php:465 #74: ExecuteModuleEventEx(array) /home/bitrix/www/bitrix/modules/main/classes/general/main.php:3487 #75: CAllMain::RunFinalActionsInternal() /home/bitrix/www/bitrix/modules/main/lib/application.php:187 #76: Bitrix\Main\Application->terminate(integer) /home/bitrix/www/bitrix/modules/main/lib/application.php:174 #77: Bitrix\Main\Application->end() /home/bitrix/www/bitrix/modules/main/tools.php:3885 #78: LocalRedirect(string, string) /home/bitrix/www/bitrix/php_interface/init.php:644 #79: CYakusHandlers::OnAfterEpilog() /home/bitrix/www/bitrix/modules/main/classes/general/module.php:465 #80: ExecuteModuleEventEx(array) /home/bitrix/www/bitrix/modules/main/classes/general/main.php:3487 #81: CAllMain::RunFinalActionsInternal() /home/bitrix/www/bitrix/modules/main/lib/application.php:187 #82: Bitrix\Main\Application->terminate(integer) /home/bitrix/www/bitrix/modules/main/lib/application.php:174 #83: Bitrix\Main\Application->end() /home/bitrix/www/bitrix/modules/main/tools.php:3885 #84: LocalRedirect(string, string) /home/bitrix/www/bitrix/php_interface/init.php:644 #85: CYakusHandlers::OnAfterEpilog() /home/bitrix/www/bitrix/modules/main/classes/general/module.php:465 #86: ExecuteModuleEventEx(array) /home/bitrix/www/bitrix/modules/main/classes/general/main.php:3487 #87: CAllMain::RunFinalActionsInternal() /home/bitrix/www/bitrix/modules/main/lib/application.php:187 #88: Bitrix\Main\Application->terminate(integer) /home/bitrix/www/bitrix/modules/main/lib/application.php:174 #89: Bitrix\Main\Application->end() /home/bitrix/www/bitrix/modules/main/tools.php:3885 #90: LocalRedirect(string, string) /home/bitrix/www/bitrix/php_interface/init.php:644 #91: CYakusHandlers::OnAfterEpilog() /home/bitrix/www/bitrix/modules/main/classes/general/module.php:465 #92: ExecuteModuleEventEx(array) /home/bitrix/www/bitrix/modules/main/classes/general/main.php:3487 #93: CAllMain::RunFinalActionsInternal() /home/bitrix/www/bitrix/modules/main/lib/application.php:187 #94: Bitrix\Main\Application->terminate(integer) /home/bitrix/www/bitrix/modules/main/lib/application.php:174 #95: Bitrix\Main\Application->end() /home/bitrix/www/bitrix/modules/main/tools.php:3885 #96: LocalRedirect(string, string) /home/bitrix/www/bitrix/php_interface/init.php:644 #97: CYakusHandlers::OnAfterEpilog() /home/bitrix/www/bitrix/modules/main/classes/general/module.php:465 #98: ExecuteModuleEventEx(array) /home/bitrix/www/bitrix/modules/main/classes/general/main.php:3487 #99: CAllMain::RunFinalActionsInternal() /home/bitrix/www/bitrix/modules/main/lib/application.php:187 #100: Bitrix\Main\Application->terminate(integer) /home/bitrix/www/bitrix/modules/main/lib/application.php:174 #101: Bitrix\Main\Application->end() /home/bitrix/www/bitrix/modules/main/tools.php:3885 #102: LocalRedirect(string, string) /home/bitrix/www/bitrix/php_interface/init.php:644 #103: CYakusHandlers::OnAfterEpilog() /home/bitrix/www/bitrix/modules/main/classes/general/module.php:465 #104: ExecuteModuleEventEx(array) /home/bitrix/www/bitrix/modules/main/classes/general/main.php:3487 #105: CAllMain::RunFinalActionsInternal() /home/bitrix/www/bitrix/modules/main/lib/application.php:187 #106: Bitrix\Main\Application->terminate(integer) /home/bitrix/www/bitrix/modules/main/lib/application.php:174 #107: Bitrix\Main\Application->end() /home/bitrix/www/bitrix/modules/main/tools.php:3885 #108: LocalRedirect(string, string) /home/bitrix/www/bitrix/php_interface/init.php:644 #109: CYakusHandlers::OnAfterEpilog() /home/bitrix/www/bitrix/modules/main/classes/general/module.php:465 #110: ExecuteModuleEventEx(array) /home/bitrix/www/bitrix/modules/main/classes/general/main.php:3487 #111: CAllMain::RunFinalActionsInternal() /home/bitrix/www/bitrix/modules/main/lib/application.php:187 #112: Bitrix\Main\Application->terminate(integer) /home/bitrix/www/bitrix/modules/main/lib/application.php:174 #113: Bitrix\Main\Application->end() /home/bitrix/www/bitrix/modules/main/tools.php:3885 #114: LocalRedirect(string, string) /home/bitrix/www/bitrix/php_interface/init.php:644 #115: CYakusHandlers::OnAfterEpilog() /home/bitrix/www/bitrix/modules/main/classes/general/module.php:465 #116: ExecuteModuleEventEx(array) /home/bitrix/www/bitrix/modules/main/classes/general/main.php:3487 #117: CAllMain::RunFinalActionsInternal() /home/bitrix/www/bitrix/modules/main/lib/application.php:187 #118: Bitrix\Main\Application->terminate(integer) /home/bitrix/www/bitrix/modules/main/lib/application.php:174 #119: Bitrix\Main\Application->end() /home/bitrix/www/bitrix/modules/main/tools.php:3885 #120: LocalRedirect(string, string) /home/bitrix/www/bitrix/php_interface/init.php:644 #121: CYakusHandlers::OnAfterEpilog() /home/bitrix/www/bitrix/modules/main/classes/general/module.php:465 #122: ExecuteModuleEventEx(array) /home/bitrix/www/bitrix/modules/main/classes/general/main.php:3487 #123: CAllMain::RunFinalActionsInternal() /home/bitrix/www/bitrix/modules/main/lib/application.php:187 #124: Bitrix\Main\Application->terminate(integer) /home/bitrix/www/bitrix/modules/main/lib/application.php:174 #125: Bitrix\Main\Application->end() /home/bitrix/www/bitrix/modules/main/tools.php:3885 #126: LocalRedirect(string, string) /home/bitrix/www/bitrix/php_interface/init.php:644 #127: CYakusHandlers::OnAfterEpilog() /home/bitrix/www/bitrix/modules/main/classes/general/module.php:465 #128: ExecuteModuleEventEx(array) /home/bitrix/www/bitrix/modules/main/classes/general/main.php:3487 #129: CAllMain::RunFinalActionsInternal() /home/bitrix/www/bitrix/modules/main/lib/application.php:187 #130: Bitrix\Main\Application->terminate(integer) /home/bitrix/www/bitrix/modules/main/lib/application.php:174 #131: Bitrix\Main\Application->end() /home/bitrix/www/bitrix/modules/main/tools.php:3885 #132: LocalRedirect(string, string) /home/bitrix/www/bitrix/php_interface/init.php:644 #133: CYakusHandlers::OnAfterEpilog() /home/bitrix/www/bitrix/modules/main/classes/general/module.php:465 #134: ExecuteModuleEventEx(array) /home/bitrix/www/bitrix/modules/main/classes/general/main.php:3487 #135: CAllMain::RunFinalActionsInternal() /home/bitrix/www/bitrix/modules/main/lib/application.php:187 #136: Bitrix\Main\Application->terminate(integer) /home/bitrix/www/bitrix/modules/main/lib/application.php:174 #137: Bitrix\Main\Application->end() /home/bitrix/www/bitrix/modules/main/tools.php:3885 #138: LocalRedirect(string, string) /home/bitrix/www/bitrix/php_interface/init.php:644 #139: CYakusHandlers::OnAfterEpilog() /home/bitrix/www/bitrix/modules/main/classes/general/module.php:465 #140: ExecuteModuleEventEx(array) /home/bitrix/www/bitrix/modules/main/classes/general/main.php:3487 #141: CAllMain::RunFinalActionsInternal() /home/bitrix/www/bitrix/modules/main/lib/application.php:187 #142: Bitrix\Main\Application->terminate(integer) /home/bitrix/www/bitrix/modules/main/lib/application.php:174 #143: Bitrix\Main\Application->end() /home/bitrix/www/bitrix/modules/main/tools.php:3885 #144: LocalRedirect(string, string) /home/bitrix/www/bitrix/php_interface/init.php:644 #145: CYakusHandlers::OnAfterEpilog() /home/bitrix/www/bitrix/modules/main/classes/general/module.php:465 #146: ExecuteModuleEventEx(array) /home/bitrix/www/bitrix/modules/main/classes/general/main.php:3487 #147: CAllMain::RunFinalActionsInternal() /home/bitrix/www/bitrix/modules/main/lib/application.php:187 #148: Bitrix\Main\Application->terminate(integer) /home/bitrix/www/bitrix/modules/main/lib/application.php:174 #149: Bitrix\Main\Application->end() /home/bitrix/www/bitrix/modules/main/tools.php:3885 #150: LocalRedirect(string, string) /home/bitrix/www/bitrix/php_interface/init.php:644 #151: CYakusHandlers::OnAfterEpilog() /home/bitrix/www/bitrix/modules/main/classes/general/module.php:465 #152: ExecuteModuleEventEx(array) /home/bitrix/www/bitrix/modules/main/classes/general/main.php:3487 #153: CAllMain::RunFinalActionsInternal() /home/bitrix/www/bitrix/modules/main/lib/application.php:187 #154: Bitrix\Main\Application->terminate(integer) /home/bitrix/www/bitrix/modules/main/lib/application.php:174 #155: Bitrix\Main\Application->end() /home/bitrix/www/bitrix/modules/main/tools.php:3885 #156: LocalRedirect(string, string) /home/bitrix/www/bitrix/php_interface/init.php:644 #157: CYakusHandlers::OnAfterEpilog() /home/bitrix/www/bitrix/modules/main/classes/general/module.php:465 #158: ExecuteModuleEventEx(array) /home/bitrix/www/bitrix/modules/main/classes/general/main.php:3487 #159: CAllMain::RunFinalActionsInternal() /home/bitrix/www/bitrix/modules/main/lib/application.php:187 #160: Bitrix\Main\Application->terminate(integer) /home/bitrix/www/bitrix/modules/main/lib/application.php:174 #161: Bitrix\Main\Application->end() /home/bitrix/www/bitrix/modules/main/tools.php:3885 #162: LocalRedirect(string, string) /home/bitrix/www/bitrix/php_interface/init.php:644 #163: CYakusHandlers::OnAfterEpilog() /home/bitrix/www/bitrix/modules/main/classes/general/module.php:465 #164: ExecuteModuleEventEx(array) /home/bitrix/www/bitrix/modules/main/classes/general/main.php:3487 #165: CAllMain::RunFinalActionsInternal() /home/bitrix/www/bitrix/modules/main/lib/application.php:187 #166: Bitrix\Main\Application->terminate(integer) /home/bitrix/www/bitrix/modules/main/lib/application.php:174 #167: Bitrix\Main\Application->end() /home/bitrix/www/bitrix/modules/main/tools.php:3885 #168: LocalRedirect(string, string) /home/bitrix/www/bitrix/php_interface/init.php:644 #169: CYakusHandlers::OnAfterEpilog() /home/bitrix/www/bitrix/modules/main/classes/general/module.php:465 #170: ExecuteModuleEventEx(array) /home/bitrix/www/bitrix/modules/main/classes/general/main.php:3487 #171: CAllMain::RunFinalActionsInternal() /home/bitrix/www/bitrix/modules/main/lib/application.php:187 #172: Bitrix\Main\Application->terminate(integer) /home/bitrix/www/bitrix/modules/main/lib/application.php:174 #173: Bitrix\Main\Application->end() /home/bitrix/www/bitrix/modules/main/tools.php:3885 #174: LocalRedirect(string, string) /home/bitrix/www/bitrix/php_interface/init.php:644 #175: CYakusHandlers::OnAfterEpilog() /home/bitrix/www/bitrix/modules/main/classes/general/module.php:465 #176: ExecuteModuleEventEx(array) /home/bitrix/www/bitrix/modules/main/classes/general/main.php:3487 #177: CAllMain::RunFinalActionsInternal() /home/bitrix/www/bitrix/modules/main/lib/application.php:187 #178: Bitrix\Main\Application->terminate(integer) /home/bitrix/www/bitrix/modules/main/lib/application.php:174 #179: Bitrix\Main\Application->end() /home/bitrix/www/bitrix/modules/main/tools.php:3885 #180: LocalRedirect(string, string) /home/bitrix/www/bitrix/php_interface/init.php:644 #181: CYakusHandlers::OnAfterEpilog() /home/bitrix/www/bitrix/modules/main/classes/general/module.php:465 #182: ExecuteModuleEventEx(array) /home/bitrix/www/bitrix/modules/main/classes/general/main.php:3487 #183: CAllMain::RunFinalActionsInternal() /home/bitrix/www/bitrix/modules/main/lib/application.php:187 #184: Bitrix\Main\Application->terminate(integer) /home/bitrix/www/bitrix/modules/main/lib/application.php:174 #185: Bitrix\Main\Application->end() /home/bitrix/www/bitrix/modules/main/tools.php:3885 #186: LocalRedirect(string, string) /home/bitrix/www/bitrix/php_interface/init.php:644 #187: CYakusHandlers::OnAfterEpilog() /home/bitrix/www/bitrix/modules/main/classes/general/module.php:465 #188: ExecuteModuleEventEx(array) /home/bitrix/www/bitrix/modules/main/classes/general/main.php:3487 #189: CAllMain::RunFinalActionsInternal() /home/bitrix/www/bitrix/modules/main/lib/application.php:187 #190: Bitrix\Main\Application->terminate(integer) /home/bitrix/www/bitrix/modules/main/lib/application.php:174 #191: Bitrix\Main\Application->end() /home/bitrix/www/bitrix/modules/main/tools.php:3885 #192: LocalRedirect(string, string) /home/bitrix/www/bitrix/php_interface/init.php:644 #193: CYakusHandlers::OnAfterEpilog() /home/bitrix/www/bitrix/modules/main/classes/general/module.php:465 #194: ExecuteModuleEventEx(array) /home/bitrix/www/bitrix/modules/main/classes/general/main.php:3487 #195: CAllMain::RunFinalActionsInternal() /home/bitrix/www/bitrix/modules/main/lib/application.php:187 #196: Bitrix\Main\Application->terminate(integer) /home/bitrix/www/bitrix/modules/main/lib/application.php:174 #197: Bitrix\Main\Application->end() /home/bitrix/www/bitrix/modules/main/tools.php:3885 #198: LocalRedirect(string, string) /home/bitrix/www/bitrix/php_interface/init.php:644 #199: CYakusHandlers::OnAfterEpilog() /home/bitrix/www/bitrix/modules/main/classes/general/module.php:465 #200: ExecuteModuleEventEx(array) /home/bitrix/www/bitrix/modules/main/classes/general/main.php:3487 #201: CAllMain::RunFinalActionsInternal() /home/bitrix/www/bitrix/modules/main/lib/application.php:187 #202: Bitrix\Main\Application->terminate(integer) /home/bitrix/www/bitrix/modules/main/lib/application.php:174 #203: Bitrix\Main\Application->end() /home/bitrix/www/bitrix/modules/main/tools.php:3885 #204: LocalRedirect(string, string) /home/bitrix/www/bitrix/php_interface/init.php:644 #205: CYakusHandlers::OnAfterEpilog() /home/bitrix/www/bitrix/modules/main/classes/general/module.php:465 #206: ExecuteModuleEventEx(array) /home/bitrix/www/bitrix/modules/main/classes/general/main.php:3487 #207: CAllMain::RunFinalActionsInternal() /home/bitrix/www/bitrix/modules/main/lib/application.php:187 #208: Bitrix\Main\Application->terminate(integer) /home/bitrix/www/bitrix/modules/main/lib/application.php:174 #209: Bitrix\Main\Application->end() /home/bitrix/www/bitrix/modules/main/tools.php:3885 #210: LocalRedirect(string, string) /home/bitrix/www/bitrix/php_interface/init.php:644 #211: CYakusHandlers::OnAfterEpilog() /home/bitrix/www/bitrix/modules/main/classes/general/module.php:465 #212: ExecuteModuleEventEx(array) /home/bitrix/www/bitrix/modules/main/classes/general/main.php:3487 #213: CAllMain::RunFinalActionsInternal() /home/bitrix/www/bitrix/modules/main/lib/application.php:187 #214: Bitrix\Main\Application->terminate(integer) /home/bitrix/www/bitrix/modules/main/lib/application.php:174 #215: Bitrix\Main\Application->end() /home/bitrix/www/bitrix/modules/main/tools.php:3885 #216: LocalRedirect(string, string) /home/bitrix/www/bitrix/php_interface/init.php:644 #217: CYakusHandlers::OnAfterEpilog() /home/bitrix/www/bitrix/modules/main/classes/general/module.php:465 #218: ExecuteModuleEventEx(array) /home/bitrix/www/bitrix/modules/main/classes/general/main.php:3487 #219: CAllMain::RunFinalActionsInternal() /home/bitrix/www/bitrix/modules/main/lib/application.php:187 #220: Bitrix\Main\Application->terminate(integer) /home/bitrix/www/bitrix/modules/main/lib/application.php:174 #221: Bitrix\Main\Application->end() /home/bitrix/www/bitrix/modules/main/tools.php:3885 #222: LocalRedirect(string, string) /home/bitrix/www/bitrix/php_interface/init.php:644 #223: CYakusHandlers::OnAfterEpilog() /home/bitrix/www/bitrix/modules/main/classes/general/module.php:465 #224: ExecuteModuleEventEx(array) /home/bitrix/www/bitrix/modules/main/classes/general/main.php:3487 #225: CAllMain::RunFinalActionsInternal() /home/bitrix/www/bitrix/modules/main/lib/application.php:187 #226: Bitrix\Main\Application->terminate(integer) /home/bitrix/www/bitrix/modules/main/lib/application.php:174 #227: Bitrix\Main\Application->end() /home/bitrix/www/bitrix/modules/main/tools.php:3885 #228: LocalRedirect(string, string) /home/bitrix/www/bitrix/php_interface/init.php:644 #229: CYakusHandlers::OnAfterEpilog() /home/bitrix/www/bitrix/modules/main/classes/general/module.php:465 #230: ExecuteModuleEventEx(array) /home/bitrix/www/bitrix/modules/main/classes/general/main.php:3487 #231: CAllMain::RunFinalActionsInternal() /home/bitrix/www/bitrix/modules/main/lib/application.php:187 #232: Bitrix\Main\Application->terminate(integer) /home/bitrix/www/bitrix/modules/main/lib/application.php:174 #233: Bitrix\Main\Application->end() /home/bitrix/www/bitrix/modules/main/tools.php:3885 #234: LocalRedirect(string, string) /home/bitrix/www/bitrix/php_interface/init.php:644 #235: CYakusHandlers::OnAfterEpilog() /home/bitrix/www/bitrix/modules/main/classes/general/module.php:465 #236: ExecuteModuleEventEx(array) /home/bitrix/www/bitrix/modules/main/classes/general/main.php:3487 #237: CAllMain::RunFinalActionsInternal() /home/bitrix/www/bitrix/modules/main/lib/application.php:187 #238: Bitrix\Main\Application->terminate(integer) /home/bitrix/www/bitrix/modules/main/lib/application.php:174 #239: Bitrix\Main\Application->end() /home/bitrix/www/bitrix/modules/main/tools.php:3885 #240: LocalRedirect(string, string) /home/bitrix/www/bitrix/php_interface/init.php:644 #241: CYakusHandlers::OnAfterEpilog() /home/bitrix/www/bitrix/modules/main/classes/general/module.php:465 #242: ExecuteModuleEventEx(array) /home/bitrix/www/bitrix/modules/main/classes/general/main.php:3487 #243: CAllMain::RunFinalActionsInternal() /home/bitrix/www/bitrix/modules/main/classes/general/main.php:3465 #244: CAllMain::FinalActions(string) /home/bitrix/www/bitrix/modules/main/include/epilog_after.php:54 #245: require(string) /home/bitrix/www/bitrix/modules/main/include/epilog.php:3 #246: require_once(string) /home/bitrix/www/bitrix/footer.php:4 #247: require(string) /home/bitrix/www/404.php:53 #248: require(string) /home/bitrix/www/bitrix/modules/iblock/lib/component/tools.php:66 #249: Bitrix\Iblock\Component\Tools::process404(string, boolean, boolean, boolean, string) /home/bitrix/www/bitrix/components/bitrix/news/component.php:145 #250: include(string) /home/bitrix/www/bitrix/modules/main/classes/general/component.php:605 #251: CBitrixComponent->__includeComponent() /home/bitrix/www/bitrix/modules/main/classes/general/component.php:680 #252: CBitrixComponent->includeComponent(string, array, boolean, boolean) /home/bitrix/www/bitrix/modules/main/classes/general/main.php:1039 #253: CAllMain->IncludeComponent(string, string, array, boolean) /home/bitrix/www/articles/index.php:133 #254: include_once(string) /home/bitrix/www/bitrix/modules/main/include/urlrewrite.php:159 #255: include_once(string) /home/bitrix/www/bitrix/urlrewrite.php:2
Узлы деревянной кровли
В любом здании основные элементы, на которые выпадает максимальная нагрузка – это фундамент, стены и крыша. Качество монтажа кровли во многом зависит от того, правильно или нет, выполнено устройство стропильной системы. Если узлы крепления стропильной системы не отвечают определенным требованиям, то такая крыша не прослужит даже минимального эксплуатационного срока без ремонтных работ.
Блок: 1/5 | Кол-во символов: 389
Источник: http://ProRoofer.ru/montaz/stropilnye-sistemy/uzly-krepleniya-stropilnoj-sistemy.html
Как придать прочности стропильной системе?
Идеально, когда вы построили загородный коттедж собственноручно. Вы сможете выбрать проект дома и планировку комнат такие, какие по душе. Лично выберете и закажете качественный материал и поучаствуете во всех этапах строительства, а потом обустройства своего жилища. В таком доме, где знаком каждый уголок, будет приятно жить.
Блок: 2/15 | Кол-во символов: 374
Источник: https://sdelaydom.guru/stroitelstvo-doma/krysha-i-krovlya/uzly-krepleniya-dlya-stropilnoj-sistemy-krovli.html
Требования к стропильной системе
Стропильная система любой кровли должна соответствовать таким важным требованиям, как:
- Максимальная жесткость. Любой узел каркаса должен выдерживать нагрузки, не подвергаясь при этом деформации или смещению. Получаемый при обустройстве стропильной системы треугольник должен обеспечивать жесткость конструкции, и ее максимальную устойчивость;
- Оптимальный вес. В зависимости от кровельного материала выбирают материал, используемый для стропил. Обычно выбирают деревянный брус, но для тяжелых крыш может быть использован и металл.
Важно! Чтобы предотвратить повреждение стропил, их гниение и образование грибка на древесине, ее обрабатывают антисептиком, а металлические конструкции – антикоррозионными составами.
- Высокое качество используемых материалов. Древесина, используемая в качестве стропильных ног должна не иметь трещин и сколов.
Блок: 2/5 | Кол-во символов: 873
Источник: http://ProRoofer.ru/montaz/stropilnye-sistemy/uzly-krepleniya-stropilnoj-sistemy.html
О стропильных ногах
На стропила падает большая нагрузка — тяжесть кровли. Они должны быть качественными, надёжными и хорошо крепиться.
В стропила наслонные входят такие материалы:
- Лежни;
- Ноги стропильные;
- Стойки;
- Подкосы.
Ноги стропильные ноги — это средней толщины бруски. Их устанавливают вдоль от скатов. Именно стропила удерживают кровлю от прогибов в том или ином месте. Нагрузка веса покрытия распределяется и на другие детали кровли.
Конструкции делают наслонными тогда, когда между столбами, расположенными вертикально, слишком большие прогоны. Когда вам предоставят проект, то там будет уже рассчитан шаг между стропилами. Крепление стропил на двухскатной крыше должно быть таким, чтобы кровля после монтажа оставалась прочной и служила долго. Здесь предусмотрены стойки, которые аналогично поддерживают крышу.
Блок: 3/15 | Кол-во символов: 821
Источник: https://sdelaydom.guru/stroitelstvo-doma/krysha-i-krovlya/uzly-krepleniya-dlya-stropilnoj-sistemy-krovli.html
Узлы каркасного дома от фундамента до кровли
Конструкция каркасного дома состоит из основных и вспомогательных узлов. Все они требуют к себе повышенного внимания при строительстве. Если произвести неправильную стыковку и крепление элементов, то проживание в таком доме будет опасно для жизни, так как он может распасться «на запчасти», когда этого совсем не ждешь.
Блок: 3/7 | Кол-во символов: 366
Источник: https://astgift.ru/uzly-derevjannoj-krovli/
Виды стропил
Стропила входят в каркас кровли и могут быть по своим тех. характеристикам наклонными и висячими. Рассмотрим подробнее каждый вид:
- У наслонных под 2 пятками есть опоры и они надёжные. Крепление стропил к мауэрлату такое, что нижний конец упирается в мауэрлат или в верхний венец сруба, расположенный на потолке. Нижний может опираться на ещё одну стропилу, расположенную в прогоне. Эта балка находится горизонтально и лежит под коньком. В первом случае стропильная система распорная, во втором — безраспорная.
- Висячие стропила своим верхом упираются одна в другую. А низ расположен на ещё одной балке, которая называется затяжкой. Она соединяет пятки, расположенные внизу от 2 стропильных ног. Получается треугольник, который называют стропильной фермой. Благодаря затяжке не происходит сильного растяжения материалов. А это значит, что нагрузка на стены будет идти только сверху вниз. Такая конструкция стропил называется распорной. Преимущество её в том, что она не создаёт дополнительной нагрузки на стены дома.
Когда будете приобретать балки под стропила, не поленитесь подъехать на склад. Дерево должно быть выдержанным, не мокрым, ровным и не выщербленным, без признаков плесени или того, что его поточил жучок. Покупайте только качественный материал, от плохого откажитесь. Потом обработаете брусья антисептическим составом, чтобы они не покрылись плесенью или их не испортили насекомые.
Блок: 4/15 | Кол-во символов: 1415
Источник: https://sdelaydom.guru/stroitelstvo-doma/krysha-i-krovlya/uzly-krepleniya-dlya-stropilnoj-sistemy-krovli.html
Чтобы стропильная система была надежной и прочной, кроме оптимального способа соединения нужно выбрать правильный шаг расположения стропильных ног. Этот параметр выбирается в зависимости от размеров стропил (их сечения и длины между точками опоры), а также – от конструкции крыши.
В данной таблице можно получить информацию о необходимых параметрах для монтажа надежной стропильной системы.
| Шаг установки стропильных ног в мм | Длина стропильных ног в мм | ||||||
|---|---|---|---|---|---|---|---|
| 3000 | 3500 | 4000 | 4500 | 5000 | 5500 | 6000 | |
| 600 | 40×150 | 40×175 | 50×150 | 50×150 | 50×175 | 50×200 | 50×200 |
| 900 | 50×150 | 50×175 | 50×200 | 75×175 | 75×175 | 75×200 | 75×200 |
| 1100 | 75×125 | 75×150 | 75×175 | 75×175 | 75×200 | 75×200 | 100×200 |
| 1400 | 75×150 | 75×175 | 75×200 | 75×200 | 75×200 | 100×200 | 100×200 |
| 1750 | 100×150 | 75×200 | 75×200 | 100×200 | 100×200 | 100×250 | 100×250 |
| 2150 | 100×150 | 100×175 | 100×200 | 100×200 | 100×250 | 100×250 | — |
Воспользуйтесь калькулятором расчета длины стропильных ног для разных типов крыш, в статье на нашем портале.
Блок: 4/5 | Кол-во символов: 904
Источник: https://stroyday.ru/stroitelstvo-doma/krysha-i-krovlya/kreplenie-stropil-k-mauerlatu.html
Прежде всего, существуют скользящие и жесткие крепления стропил к мауэрлату.
1. Скользящие крепления состоят из двух отдельных элементов, один из которых имеет возможность перемещаться относительно другого.
Эти крепления могут быть разными по конструкции — закрытыми и съемными.
Закрытое скользящее крепление
- Закрытое крепление состоит из уголка, который крепится одной стороной к мауэрлату, а на другой стороне имеет специальную щелевидную проушину. В ней устанавливается металлическая петля с отверстиями для креплений к стропилу. Благодаря свободной, не закрепленной вертикальной стороне уголка, крепление дает возможность стропилу при необходимости несколько смещаться, не оказывая деформирующего воздействия на стены здания.
Подвижное скользящее крепление открытого типа
- Открытое крепление устроено по тому же принципу, и отличается лишь тем, что металлическая петля не вставляется в проушину, а просто верхняя часть вертикальной полки уголка после монтажа загибается вниз, фиксируя тем самым соединение.
2. Видов жестких креплений — гораздо больше. Они выбираются в зависимости от массивности деревянных элементов конструкции и способа установки стропила на мауэрлат.
Разнообразные жесткие крепления
Сюда можно отнести металлические уголки разных размеров, крепления LK, которые надежно зафиксируют стропило, устанавливаемое с помощью запила, не повредив его крепежными саморезами или гвоздями.
Крепление ЛК1
- Крепления LK производится в нескольких размерных вариантах, поэтому их можно подобрать под любую толщину бруска или доски. Толщина металла, из которого изготавливаются это крепежные элементы, составляет 2 мм, какой бы размер они ни имели. В зависимости от величины, крепежные детали имеют разное обозначение.
| Обозначение | Размер в мм |
|---|---|
| LK-1L | 40 × 170 |
| LK-2P | 40 × 170 |
| LK-3L | 40 × 210 |
| LK-4P | 40 × 210 |
| LK-5L | 40 × 250 |
| LK-6P | 40 × 250 |
Необходимо отметить, что эти крепления подходят не только для соединения стропил на мауэрлате – их используют и для фиксации узлов «балки перекрытия – мауэрлат».
Крепления ЛК в деле
Главное преимущество этой крепежной детали — это максимальная жесткость и надежность соединения деревянных элементов.
- Закрепление стропил с запилом на мауэрлате с помощью уголков осуществляется с двух сторон, что обеспечивает требуемую жесткость.
Уголок с усиленным ребром жесткости на изгибе
Существуют уголки, предназначенные для крепления стропил без запилов. Они имеют более высокие полки и прикручиваются большим количеством саморезов. Их производят из металла толщиной в 2; 2,5 или 3 мм.
Крепление стропил к мауэрлату уголками
| Обозначение | Размер (длина, высота, ширина, толщина металла) в мм | Обозначение | Размер (длина, высота, ширина, толщина металла) в мм |
|---|---|---|---|
| Усиленный уголок | 105 × 105 × 90 × 2 | Усиленный уголок KP5 | 140 × 140 × 65 × 2,5 |
| Усиленный уголок | 130 × 130 × 100 × 2 | Усиленный уголок KP6 | 105 × 172 × 90 × 3,0 |
| Усиленный уголок | 105 × 105 × 90 × 2 | Усиленный уголок KP7 | 145 × 145 × 90 × 2,5 |
| Усиленный уголок | 50 × 50 × 35 × 2 | Усиленный уголок KP8 | 145 × 70 × 90 × 2,5 |
| Усиленный уголок | 70 × 70 × 55 × 2 | Усиленный уголок KPL1 | 90 × 90 × 65 × 2 |
| Усиленный уголок | 90 × 90 × 40 × 2 | Усиленный уголок KPL11 | 90 × 90 × 65 × 2 |
| Усиленный уголок KP1 | 90 × 90 × 65 × 2,5 | Усиленный уголок KPL2 | 105 × 105 × 90 × 2 |
| Усиленный уголок KP11 | 90 × 90 × 65 × 2,5 | Усиленный уголок KPL21 | 105 × 105 × 90 × 2 |
| Усиленный уголок KP2 | 105 × 105 × 90 × 2,5 | Усиленный уголок KPL3 | 90 × 50 × 55 × 2 |
| Усиленный уголок KP21 | 105 × 105 × 90 × 2,5 | Усиленный уголок KPL4 | 70 × 70 × 55 × 2 |
| Усиленный уголок KP3 | 90 × 50 × 55 × 2,5 | Усиленный уголок KPL5 | 50 × 50 × 35 × 2 |
| Усиленный уголок KP4 | 70 × 70 × 55 × 2,5 | Усиленный уголок KPL6 | 60 × 60 × 45 × 2 |
О некоторых уголках, приведенных в таблице, нужно сказать несколько слов дополнительно, так как их описание требует уточнений:
— КР11 и КР21 — это усовершенствованные уголки, маркированные часто, как КР1 и КР2. В этих элементах имеется отверстие для анкерного крепления, имеющее овальную форму, которое снижает риск срыва болта в случае усадки конструкции.
Уголки серии КР
— КР5 и КР6 — это уголки, применяемые для крепления элементов, на которые выпадает большая несущая нагрузка. Уголок КР6 тоже снабжен овальным отверстием, и его рекомендовано использовать при создании стропильной системы на новом доме, который будет еще давать усадку. Эти модели востребованы при монтаже конструкций, имеющих большой вес.
Уголок КМ
— Уголок КМ произведен из перфорированной стали и используется для крепления стропил с большим сечением. Особенно он хорошо подходит для деревянных строений. Этот уголок закрепляет элементы конструкции очень надежно, и при его использовании не требуется врезки стропила в мауэрлат — достаточно на первом выпилить правильный угол.
Усиленный уголок серии KMRP
— Уголок KMRP используется для скрепления деталей стропильной системы под прямым углом, в том числе и стропила с мауэрлатом. Он также отличается от обычных уголков своим вытянутым отверстием, с помощью которого возможно смещение при усадке без повреждения крепежного болта. Его можно использовать в конструкции, где нельзя сделать врезку одного элемента к другому.
Производятся уголки KMRP из стали толщиной в 2 мм. Выпускаются три разновидности:
| Обозначение уголка | Размеры в мм | ||
|---|---|---|---|
| a | b | c | |
| KMRP1 | 60 | 60 | 60 |
| KMRP2 | 80 | 80 | 80 |
| KMRP3 | 100 | 100 | 100 |
- Другим вариантом закрепления стропил на мауэрлате является установка их между двумя досками, спиленными под определенным углом, и дополнительно в нижней части зафиксированных с помощью металлических уголков или креплений LK.
Крепление стропила между двумя дощатыми накладками
Такое закрепление стропил дает хорошую жесткость и надежность. Этот способ хорошо подходит в тех случаях, когда стропило нужно закрепить под нужным углом, приподняв его над горизонтальной плоскостью мауэрлата, но закрепив его на вертикальную внешнюю сторону.
- Способ крепления стропил на мауэрлат, сделанный из бруса не слишком большого сечения. Осуществляется путем усиления бруска с помощью деревянных подкладок, имеющих необходимую толщину.
Крепление с применением усиливающей подкладки
Отрезки досок прикрепляются к мауэрлату с помощью гвоздей или саморезов, в тех местах, где будут установлены стропильные ноги.
В этом случае в стропилах делаются вырезы нужной конфигурации и глубины. Надежно фиксируются стропильные ноги к стене с помощью стальной проволоки, которую закрепляют на вбитый стальной костыль.
Фиксация с помощью проволочной скрутки
- Кроме вышеописанных способов крепления, стропила прибиваются к мауэрлату с помощью скоб. Нужно отметить, что этот метод достаточно распространен и используется уже очень давно. При правильном закреплении этих элементов, стропильная система прослужит долгие годы.
Крепление «по-старинке» — скобами
Скобы могут иметь различный размер, вбиваются в разных местах соединения.
- Еще один крепежный элемент, который применяется как вспомогательный — это перфорированная лента ТМ. Ее используют для усиления крепежного узла при необходимости дополнительной его фиксации.
Часто на помощь приходит металлическая перфорированная лента
В некоторых случаях этот элемент может быть незаменим, поэтому его тоже нельзя исключать при установке стропильных ног на мауэрлат.
Далее целесообразно рассмотреть устройство стропильных систем – так проще будет понять, какие крепления для них больше подходят и почему.
Блок: 2/5 | Кол-во символов: 7350
Источник: https://stroyday.ru/stroitelstvo-doma/krysha-i-krovlya/kreplenie-stropil-k-mauerlatu.html
Крепим бруски кровли
Лежни служат опорой для брусков и так поддерживается прогон. Ноги стропильный упрутся в мауэрлат одним из концов, а вторым в прогоны. К последним они и крепятся.
Подкосы делают для того, чтобы ноги стропильные стали ещё более устойчивыми.
Следите за тем, чтобы соединения между деталями были прочными и надёжными. Крепят детали друг с другом:
- Методом врезки;
- Гвоздями;
- Анкерными болтами;
- Используются саморезы.
Блок: 5/15 | Кол-во символов: 436
Источник: https://sdelaydom.guru/stroitelstvo-doma/krysha-i-krovlya/uzly-krepleniya-dlya-stropilnoj-sistemy-krovli.html
Заключение
Выполняя работы по монтажу крыши, обустройству стропильной системы следует уделить тщательное внимание, не допуская нарушения технологических процессов. Это обеспечит конструкции прочность, долговечность и надежность.
:
Сергей Новожилов — эксперт по кровельным материалам с 9-летним опытом практической работы в области инженерных решений в строительстве.
Блок: 5/5 | Кол-во символов: 372
Источник: http://ProRoofer.ru/montaz/stropilnye-sistemy/uzly-krepleniya-stropilnoj-sistemy.html
Разновидности стропильных систем
Крыша может быть обустроена одним из видов стропильной системы, которых существует всего два:
- Висячие стропила;
- Наслонные стропила.
Висячая стропильная система
Такая система оптимальна в случае двускатной кровли, когда величина пролета между стенами составляет не более 6-ти метров, но при установке дополнительных элементов применима и для более широких вариантов проемов. Нижней основой для опоры служит мауэрлат, верхняя же часть конструкции упирается друг в друга. Такая конструкция содержит и затяжку – необходимую для снятия нагрузки со стен, за счет уменьшения распора стропил. Балочные затяжки устанавливаются снизу стропильных ног и могут выполнять функции балок перекрытия.
Внимание! Роль затяжки необязательно может выполнять деревянный брус, им может стать и перекрытие из железобетонных конструкций, которым в некоторых домах оборудуется верхний этаж.
Если затяжка расположена выше нижней части стропильной системы, то она называется ригелем. К важным моментам обустройства стропильной системы такого типа можно отнести:
- Не следует допускать, чтобы кровельный свес опирался на нижнюю часть стропильных ног, которые выводятся за пределы стенки. В такой ситуации лучше всего использовать кобылку (ширина свеса при этом устанавливается в пределах одного метра). При таком обустройстве стропило будет опираться на мауэрлат. Сечение бруса для кобылки выбирается меньшим, чем для стропил;
- Чтобы придать крыше дополнительной жесткости, и не допустить ее шатания и разрушения сильными порывами ветра, на скате прибивается ветровая доска, к мауэрлату от конька;
- При влажности материала, используемого для обустройства стропильной системы более 18%, следует предусмотреть шаткость, которую будет вызывать постепенное высыхания древесины. Именно поэтому крепеж должен осуществляться болтами или винтами, а не гвоздями.
Наслонная стропильная система
Такое обустройство применимо для кровель с расстояниями между стен от 10 метров (максимум 16 метров). Уклон может быть выполнен под любым углом, а внутри здания находятся несущие стены или поддерживающие колонны. Сверху для стропил основной опорой служит коньковый прогон, а снизу эту функцию выполняет мауэрлат. Поддержку внутреннего прогона осуществляет или внутренняя стена, или стойки. За счет наличия только вертикального типа нагрузок, отпадает необходимость в монтаже затяжки.
При 16-ти метровом пролете замена прогона конька выполняется двумя боковыми конструкциями, опорой для которых будут служить стойки.
Важно! Отсутствие изгибов стропильных ног обеспечивается такими узлами, как подкосы и ригели.
Особое внимание на обустройство крыши с использованием стропильной системы наслонного типа следует обратить на такие нюансы:
- Толщина всех деревянных элементов должна составлять как минимум 5 см;
- Бруски должны иметь гладкую поверхность, а также требуют обработки антисептическим средством, для предотвращения развития гниения и образования грибка;
- Следует строго соблюдать правила обустройства стропильной системы, не выполняя монтаж дополнительных элементов по своему усмотрению, так как это может привести к нарушению прочности и целостности всей конструкции;
- Расположение мауэрлата относительно стен должно быть строго горизонтально, чтобы предотвратить опрокидывание опор;
- Расположение стоек и откосов стараться делать максимально симметрично;
- Обязательно следует предусмотреть техническую вентиляцию, которая будет позволять воздуху беспрепятственно циркулировать и высушивать воздух;
- Обязательно следует выполнять качественную гидроизоляцию кровли;
- Если опора, подкос или нога стропил не имеет опоры, то ее длина не должна превышать 4,5 метров.
Особенности расчетов стропильной системы двускатной крыши показаны в видео:
Блок: 3/5 | Кол-во символов: 3727
Источник: http://ProRoofer.ru/montaz/stropilnye-sistemy/uzly-krepleniya-stropilnoj-sistemy.html
Устанавливаем стропила на двухскатной крыше самостоятельно
Многие делают такую конструкцию, когда стропильные ноги свисают. Система хороша как для дома, так и для бани. Некоторые работы можно произвести на земле, а потом поднять, скреплённый материал на место установки. Пиломатериалов на такую конструкцию идёт сравнительно немного, что позволит вам сэкономить.
Требуется 1 треугольник из стропил, который изготавливают по чётким размерам и придерживаясь правил. Сделанные стропила, у которых будут хорошо вымеренные и скреплённые ригели с затяжками, подтягивают на кровлю. Здесь их нужно ставить в определённых местах вертикально и очень ровно. Крепят их к коньку с мауэрлатом.
Сделайте так и неважно, какие стропила вы установили: наслонные или висячие. Когда в конструкцию добавляют уклоны, она становится жёстче. Не забывайте, что стропила чаще всего крепятся к брусу коньковому с мауэрлатом. Выйдет надёжная двускатный дом.
Блок: 7/15 | Кол-во символов: 936
Источник: https://sdelaydom.guru/stroitelstvo-doma/krysha-i-krovlya/uzly-krepleniya-dlya-stropilnoj-sistemy-krovli.html
Как избежать дополнительных расчётов?
Создавать проект дома поручите профессионалу. Он подскажет какого диаметра в сечении нужны балки, длину планок и прочих деталей. Ведь специалист знает, что крышу удерживает стропильная система. На неё идёт самая большая нагрузка и нужны верные расчёты, качественные стройматериалы.
Советов у таких домостроев, как вы сам, лучше не спрашивать. Да, они построили свой дом, но насколько он крепкий? Не известно.
Лучше всего обратиться к знакомому прорабу и просить у него дельных советов. Ведь он владеет документацией. Существуют чёткие нормы, допустимой нагрузки на 1 м2, которых нужно придерживаться при возведении дома. В документации прописано, какая нагрузка даётся и какой материал с ней справится.
Возьмите на встречу с прорабом блокнот с ручкой и сразу запишите его советы. Так, вы точно ничего не забудете, не перепутаете. Построите так, как он, со знанием дела, рекомендует.
Блок: 8/15 | Кол-во символов: 930
Источник: https://sdelaydom.guru/stroitelstvo-doma/krysha-i-krovlya/uzly-krepleniya-dlya-stropilnoj-sistemy-krovli.html
Советы малоопытным
Для двухскатных крыш стропила большинство владельцев делают из дерева. Выбирайте то, которое вылежалось. Теперь обрабатывайте его тщательно, чтобы не завелась плесень, не мог подточить жучок.
Стропильные детали можно крепить друг с другом не только кронштейнами, но и уголками. Приобретайте подходящего размера уголки из металла, чтобы к мауэрлату прикрепить стропила. Последние в любой из частей должны быть крепкими и надёжными. Части системы можно соединять между собой гвоздями с вырезами, уголками с шурупами, иными приспособлениями.
Когда будете возводить кровлю, не суетитесь. Всё нужно сделать добротно и обстоятельно. Ведь даже деревянные каркасные дома стоят минимум по 50 лет, а срубы и по 100.
Ваша задача придерживаться технологий, нигде не допускать ошибок, чтобы крышу после года или 5 не перекосило. Советуйтесь с мастерами и опытными товарищами, которые уже делали крыши для себя или на заказ и понемногу возводите кровлю.
Полезная видео-инструкция:
Блок: 9/15 | Кол-во символов: 997
Источник: https://sdelaydom.guru/stroitelstvo-doma/krysha-i-krovlya/uzly-krepleniya-dlya-stropilnoj-sistemy-krovli.html
Что собой представляет конек крыши?
Итак, для начала немного разберемся с понятиями.
Так, прогон – это дополнительная балка, которая ставится параллельно коньку крыши и мауэрлату. Говоря простым языком, этот тот же мауэрлат, только поднятый по уровню. И в итоге конек должен располагаться на определенном расстоянии от прогона – смотря какой угол крыши был выбран.
Конек – это горизонтальный элемент крыши, который соединяет в верхней точке оба ската крыши.
А главная задача соединительных элементов в коньке – создание надежной жесткости и прочности всей конструкции крыши. О чем сейчас и будет идти речь.
Блок: 10/15 | Кол-во символов: 607
Источник: https://sdelaydom.guru/stroitelstvo-doma/krysha-i-krovlya/uzly-krepleniya-dlya-stropilnoj-sistemy-krovli.html
Чем сращивать? Выбор крепежных элементов
Стропильные ноги формируют контур крыши и передают точечную нагрузку от крыши на мауэрлат, а мауэрлат в свою очередь равномерно распределяет ее на несущие стены.
Издавна для крепления стропил использовались такие элементы:
- Накладки.
- Бруски.
- Деревянные штыри.
- Клинья.
- Нагели.
- Металлические скобы.
А вот современный рынок предлагает более функциональные крепления, которые позволяют сращивать стропила в области конька намного проще и надежнее. Под любым углом получается нужная жесткость и прочность. Это:
- Гвоздевые и перфорированные пластины.
- Саморезы.
- Болты и шурупы.
- И многое другое.
Но выбор того или иного крепежного элемента зависит больше не от того, сколько он стоит и насколько окажется прочным, а от того, какова нагрузка на конкретный коньковый узел и что его него требуется.
Итак, вот как, например, сращивают стропила в коньке саморезами:
А вот так гвоздевыми и перфорированными пластинами:
Но для того, чтобы эти пластины применить, вам придется поработать с прессом:
А теперь – от простого к сложному.
Блок: 12/15 | Кол-во символов: 1064
Источник: https://sdelaydom.guru/stroitelstvo-doma/krysha-i-krovlya/uzly-krepleniya-dlya-stropilnoj-sistemy-krovli.html
Сращивание стропил в коньке вальмовой крыши
Сращивание стропил у вальмовой крыши происходит совсем по другому сценарию, чем у двускатной. Так, здесь уже есть новые элементы – накосные стропила, которые нужно ставить по определенной технологии. А к коньковому брусу эти детали нужно крепить методом врубки с дополнительной фиксацией верхними стяжками и ригелями. Еще своих сложностей придает то, что у вальмовой крыши наклонные скаты содержат в себе мансардные окна и вентиляционные отверстия, которые нередко располагаются прямо под коньком.
Если в вальмовой крыше – всего один прогон, его диагональную стропильную ногу опирают на консоль прогона. Сами консоли нужно выпустить на 10-15 см за подстропильную раму. Причем сделайте так, чтобы отпилить лишнее, а не наращивать недостающее.
Если же прогонов два, тогда в коньке прямо к стропилам нужно пришить короткую доску, толщиной до 5 см – прибоину. На нее как раз и будем опирать накосные стропила и диагональные стропильные ноги.
А теперь давайте разберемся с внешней ендовой. Стропильные ноги, которые опираются на нее, также называются накосными и диагональными. Причем диагональные стропила длиннее, чем обычные, и на них опираются укороченные стропила со скатов – нарожники. По-другому их еще называют стропильными полуногами. В этом случае накосные стропила уже несут нагрузку, которая в полтора раза больше, чем у обычных стропил.
Такие диагональные стропила сами по себе длиннее обычных досок, а потому делать их следует спаренными. Это сходу решает три задачи:
- Удвоенное сечение несет удвоенную нагрузку.
- Балка получается длинной и не разрезанной.
- Размеры применяемых деталей становятся унифицированными.
- Для устройства накосных стропил можно применять те же доски, что и для обычных.
Подытоживая и говоря простым языком, применение досок одной высоты для конькового узла значительноу прощает все конструктивные решения вальмовой крыши.
Идем далее. Для обеспечения многопролетности, под накосные ноги нужно установить одну-две опоры. Ведь накосные стропила по своей сути – это наклонившийся и раздвоившийся коньковый прогон, его некое продолжение. А потому сращивать по длине эти доски нужно так, чтобы все стыки были на расстоянии 15 м от центра опоры. А длину стропильной ноги подбирайте в зависимости от того, какова длина пролетов и какое количество опор.
Технически этот узел выполняется так:
Пару технических моментов:
- Если вы делаете опорный узел крепления стропил в коньке вальмовой крыши прямо над мансардным оконном, тогда опирание диагональных стропильных ног должно приходиться на боковые подкосы и ригель.
- Если же стропильные ноги вальмовой крышей сращиваются прямо над вентиляционной отдушиной, тогда центрального упора на подкосы делать не нужно.
- У вальмовой крыши обязательно убедитесь в том, что стыкуемые поверхности в коньковых узлах примыкаются плотно, почти идеально. А потому куда проще изготавливать нужную конфигурацию всех коньковых элементов еще на земле, и только потом монтировать на крыше каждую стропильную ногу по отдельности.
Вот наглядный мастер-класс:
Блок: 14/15 | Кол-во символов: 3049
Источник: https://sdelaydom.guru/stroitelstvo-doma/krysha-i-krovlya/uzly-krepleniya-dlya-stropilnoj-sistemy-krovli.html
Сращивание стропил в коньке арочной крыши
У арочной крыши почти те же технологии, что и у двускатной, разве что угол соединения стропил немного другой:
Блок: 15/15 | Кол-во символов: 161
Источник: https://sdelaydom.guru/stroitelstvo-doma/krysha-i-krovlya/uzly-krepleniya-dlya-stropilnoj-sistemy-krovli.html
Количество использованных доноров: 4
Информация по каждому донору:
- https://sdelaydom.guru/stroitelstvo-doma/krysha-i-krovlya/uzly-krepleniya-dlya-stropilnoj-sistemy-krovli.html: использовано 11 блоков из 15, кол-во символов 10790 (44%)
- https://stroyday.ru/stroitelstvo-doma/krysha-i-krovlya/kreplenie-stropil-k-mauerlatu.html: использовано 2 блоков из 5, кол-во символов 8254 (33%)
- http://ProRoofer.ru/montaz/stropilnye-sistemy/uzly-krepleniya-stropilnoj-sistemy.html: использовано 4 блоков из 5, кол-во символов 5361 (22%)
- https://astgift.ru/uzly-derevjannoj-krovli/: использовано 1 блоков из 7, кол-во символов 366 (1%)
Источник: m-strana.ru
Узлы крепления стропил — элементы конструкции
Строительство крыши вне зависимости от ее типа начинают с проектирования стропильной системы. Ее надежность обеспечивает долгий срок эксплуатации кровли, а соответственно и здания, на котором ее надо создать.
Исходя из вышесказанного, можно сделать вывод, что создание стропильной системы, такой как на фото, требует наличие проекта и соответствующих расчетов, а у сотрудников компании, выполняющей монтаж, должна быть высокая квалификация и наличие опыта. Выполнить эту работу собственными силами возможно, но вряд ли конструкция стропил получится настолько прочной, как требуется.
Основные элементы стропильной системы подбирают на основании следующих факторов:
В тех случаях, когда длина пролета между стенами не превышает 6 метров, специалисты советуют создать конструкцию наслонных стропил таким образом, что проблема, как крепить стропила из древесины, решится путем установки их на расположенный по периметру строения опорный брус (называется мауэрлат).Данный метод позволяет не только решить проблему как правильно крепить стропила, но существенно сокращает расход материалов, используемых при строительстве каркаса крыши. В том случае, когда между несущими стенами расстояние не превышает 8 метров, противоположные стропила связывают с использованием ригеля.
Имеется другой вариант, как закрепить стропила при применении конструкции наслонных элементов, он заключается в том, что используются промежуточные стойки, которые опираются на стены или расположенные внутри дома столбы. Подобные системы
легко перекрывают 12-метровое промежуток между стенками при условии дополнительной установки одной опоры, или 16-метровое расстояние при монтаже еще двух опор.
Когда промежуток составляет до 12 метров между опорными точками, тогда проблему как крепить стропила к стене при отсутствии внутренних опор специалисты рекомендуют решить путем выбора системы висячих стропил: в этой ситуации их точка опоры располагается на сплошной затяжке, которая находится на мауэрлате.
При использовании такого метода, конструкция стропил из брусьев, досок и бревен имеет такие типовые узлы стропильной системы:
- узел конька;
- узлы «стойка-подкос-стропило» и «подкосы-стойка-балка»;
- узел опирания стропил.
Возможно использование и других узлов, если в стропильной системе среди ее элементов имеются ригель, затяжка и т.д. После завершения проектирования конструкции кровли и ее основных узлов, необходимо составить план и схему системы стропил.
Элементы опирания наслонных стропил
Наслонные стропильные конструкции, опирающиеся на прогон и мауэрлат, бывают распорными и безраспорными. От того, насколько правильно выбраны узлы крепления стропильной системы кровли, зависит, как долго прослужит она без ремонта. При составлении расчетных схем, чтобы обозначить в конструкционных узлах шарнирные соединения используют значок-кружок.Шарниры, благодаря имеющимся лапкам, соединяют с условными опорами, позволяющими визуально представить степень свободного движения какого-либо узла:
- вделанные в опору 2 лапки шарнира, предполагающие неподвижность узла, одновременно допускают вращение балки в шарнире. У такого узла имеется единственная степень свободы – поворот;
- если лапки шарнира располагаются на скользящей опоре для стропил или ползуне, такой узел насчитывает две степени свободы – кроме поворота балки, есть возможность горизонтального смещения;
- при наличии трех степеней свободы – поворот, вертикальное и горизонтальное смещение, на схеме узел отмечают кружком. Его можно врезать в стержень, обозначающий балку.
При наличии врезки узла в балку, ее называют разрезной, а участки, расположенные по обе стороны от шарнира условно рассматривают в качестве отдельных элементов. Если обозначение шарнира (кружок) изображен ниже балки, то она считается неразрезной.
Когда в балку врезают шарнир с тремя степенями свободы, подобная конструкция является неустойчивой и представляет собой мгновенно изменяющуюся систему. Также существуют узлы, у которых степень свободы равна нулю: конец балки защепляют так, что становятся невозможными ее смещение относительно горизонтали и вертикали.
Понятие поворота или горизонтального смещения не подразумевает произвольного передвижения ползуна (узел, имеющий 2 степени свободы) по горизонтали. Этот узел, несмотря на то, что закреплен надежно, предоставляет возможность концу балки перемещаться в случае воздействия влажности и температурных изменений. При этом в самом элементе повышенные внутренние напряжения не возникают. Данный узел допускает изгиб балки, но поворот осуществляется в пределах нормативов, он может поползти только в случае, когда нагрузки на него превысят допустимые пределы.
В ряде случаев не следует термин «шарнир» понимать буквально. Решая вопрос, как скрепить стропила, для соединения концов балок используют не только болты, но и специально сконструированный шарнир. Следует отметить, что в большинстве случаев шарниром называют соединение, выполненное с использованием гвоздей. В качестве примера можно привести следующую ситуацию: доску, прибитую одним концом несколькими гвоздями к стене, можно повернуть на небольшой угол, нажав на другой ее конец. В данном случае роль шарнира играют гвозди. Но, если увеличить количество гвоздей до такой степени, что поворот будет невозможен, тогда эта доска является балкой, у которой защемлен конец. Поэтому заранее рассчитывают, с какой степенью нагрузки будут эксплуатировать систему и каким именно образом выполнить крепление стропил к балкам.Узлы соединения стропил в зависимости от конкретного проекта дома и крыши могут отличаться. В соединениях с двумя степенями свободы важно спроектировать поворот, который возникает при изгибе стропил и сдвиг, направленный по горизонтали. В узлах, допускающих одну степень свободы, проектируют поворот стропила (читайте: «Узлы деревянных крыш: особенности крепления»). Для обеспечения у стропила возможности сдвига нижней или верхней части создают горизонтальные врубки. Чтобы решить задачу, как укрепить стропильную систему и тем самым ограничить сдвиг — стропила либо упирают друг в друга, либо в деталь, с которой их стыкуют (мауэрлат или прогон). Читайте: «Чем и как крепить стропила к мауэрлату».
Как крепить стропила к мауэрлату, детали на видео:
Чтобы пояснить принцип, согласно которому крепят стропила, следует рассмотреть такую ситуацию. Если стандартную лестницу, состоящую из 2-х жердей и поперечных планок приставить к стене, а затем пол и стену залить маслом, чтобы минимизировать трение, тогда при попытке встать на нее, лестница будет падать.
Объясняется это наличием двух степеней свободы в каждой точке опоры, а конкретнее:
- в нижней точке имеется смещение по горизонтали и поворот;
- в верхней точке присутствует смещение по вертикали и поворот.
Чтобы придать лестнице устойчивость, и она могла выдержать вес человека, необходимо лишить ее одной степени свободы из имеющихся у нее четырех. Например, можно устранить вертикальное смещение в верхней точке или горизонтальное смещение в нижней. Другими словами, достаточно укрепить верх или низ данной лестницы, и система станет устойчивой и стабильной.
Приведенный пример поможет лучше понять принцип функционирования наслонной стропильной конструкции и разные способы опирания. Если задача, как крепить стропила к срубу, выполнена неправильно, это не может не повлиять на способность крыши выдерживать оказываемые на нее нагрузки. Поэтому, чтобы избежать таких неприятностей как повреждение или даже разрушение кровли, надо правильно произвести расчеты и спроектировать создание системы стропил. Не важно, решается проблема, как крепить стропила к коньку или мауэрлату, такую работу желательно доверить квалифицированным специалистам, имеющим большой опыт выполнения подобных проектов.
3 типа точек крепления для работы на наклонной крыше
Также можно использовать твердый объект внутри здания, например колонну винтовой лестницы.
Стропа НИКОГДА не должна быть привязана к следующим объектам:
- Рама оконная
- Колесо автомобиля
- А фонарный столб
Когда дело доходит до работы на наклонной крыше, использование стропы часто предпочтительнее других методов, упомянутых здесь. Это самый простой метод, который не оставляет никаких повреждений.
К сожалению, не всегда будет в наличии крепкое дерево, и не всегда можно будет припарковать фургон в непосредственной близости от крыши. К счастью, петля — не единственный вариант.
Использование анкера-косяка
Анкерыпредназначены для установки в дверную или оконную раму. Их лучше всего описать как трубы с проушиной и двумя зажимами, которые можно установить на разную ширину. Трос, проходящий по наклонной крыше, можно прикрепить к петле безопасности с помощью предохранительного крюка.
Анкер для косяка может быть зажат между рамой окна или дверными стойками. Однако анкер косяка всегда шире, чем рама или косяк, а это значит, что его нельзя установить, если нет места для торчащего конца.
Если анкер косяка не может быть установлен ни на передней, ни на задней двери здания, то можно также использовать внутреннюю дверь при условии, что дверной косяк находится в опорной стене. Если есть люк для доступа в лазейку за входной дверью, то этот люк также можно использовать для установки якоря косяка.
Использование фиксированной точки крепления
Если использование вышеуказанных временных анкерных точек невозможно, то всегда есть возможность просверлить анкерную точку в стене. Фиксированную анкерную точку также можно было удалить после использования, чтобы оставались видимыми только просверленные отверстия.
Сегодня на рынке представлено множество различных фиксированных анкерных точек, которые подходят для различных типов поверхностей, таких как бетон, кирпич или сталь. Если для доступа к наклонным крышам используется фиксированная анкерная точка, ее всегда следует устанавливать рядом с центром крыши.
В большинстве случаев клиенту, вероятно, потребуется одобрить установку фиксированной анкерной точки, прежде чем кто-то просверлит отверстие в стене. В случае необходимости пользователь может указать, что владелец здания несет ответственность за безопасную работу на высоте в своем здании, а работодатель несет ответственность за обеспечение безопасных условий труда для своих сотрудников.
Приведенные выше методы являются лишь общим описанием общих приложений. Перед использованием любых средств индивидуальной защиты, обсуждаемых в этом посте, всегда обращайтесь к руководству пользователя!
Дополнительная информация
Если вам нужна дополнительная информация о наших решениях по защите от падения, запросите нашу брошюру по защите от падения .Чтобы получить совет о наиболее подходящем решении для защиты от падения для вашего здания или проекта, лучше всего по телефону связаться с нами напрямую по телефону .
Защитные анкеры для крыш — защита от падения
Анкеры по типу крыши
Торговые анкеры для крыш из асфальтовой черепицы, ребристых металлических крыш, крыш из ПВХ / ТПО / этиленпропиленового каучука, битумных крыш и многого другого!
Продукция 1-48 из 174
Показать 48 на страницу 96 на страницу 144 на страницу 192 на страницу 240 на страницу
Новинка!
Якорь с вращающейся площадкой
Разработан для максимальной универсальности и безопасности благодаря самоориентирующемуся D-образному кольцу на 360 °
Цена: 74 доллара.95
Наличие: Есть в наличии
FallTech Номер товара: FALLTECH-7452AC — Поворотный якорьFallTech разработан для обеспечения максимальной универсальности и безопасности благодаря самоориентирующемуся D-образному кольцу на 360 ° для использования во временных системах защиты от падения или сдерживания.Многоразовый анкер с вращающейся площадкой разработан для установки на открытый арматурный стержень № 10 и резьбовой стержень и закрепляется с помощью поставляемой пользователем гайки-барашка для арматуры или шестигранной гайки. Предназначен для установки на открытый резьбовой стержень диаметром 1 дюйм или открытый арматурный стержень №10. Особенности: Для использования в системах защиты от падения и защиты от падения. Характеристики …
DBI-SALA Анкер для кровли, металлические / бетонные / деревянные крыши
Постоянный анкер для металлических, бетонных и деревянных крыш
Цена: 429 долларов.25
Наличие: Есть в наличии
DBI-SALA Номер товара: 342-2100133 —Предназначен для установки на плоские или пологие крыши из алюминия, стали или нержавеющей стали со стоячими фальцами.Этот анкер может устанавливаться на широкий спектр листовых материалов и профилей шва, включая гофрированные и гнутые типы. Нет необходимости прикреплять к конструктивному элементу! Доступные комплекты болтов (6 дюймов и 12 дюймов) позволяют устанавливать анкер поверх изоляции.
DBI-SALA Анкер для крыши со стоячим фальцем
Плоские или пологие крыши со стоячим фальцем из алюминия, стали или нержавеющей стали
Цена: 599 долларов.95
Наличие: Есть в наличии
DBI-SALA Номер товара: 342-2100138 —Предназначен для установки на плоские или пологие крыши из алюминия, стали или нержавеющей стали со стоячими фальцами.Этот анкер можно установить на широкий спектр листовых материалов и профилей шва, включая гофрированные и гнутые типы
.FallTech 7348 Проходной анкер 4 фута с 2 D и 3 дюйма …
Анкерная анкерная стропа для прохода через полотно с 2 D-образными кольцами и износной накладкой 3 дюйма.
Всего: $ 29.20
Наличие: Есть в наличии
FallTech Номер товара: FALLTECH-7348 —Прочная полиэфирная лента толщиной 1 3/4 дюйма с прочной кованой фурнитурой из легированной стали.Износостойкая прокладка 3 дюйма защищает основную лямку от порезов и истирания. Идеально подходит для двутавровых балок и других конструктивных элементов с соответствующими номинальными характеристиками. Экономичный и легкий. Может использоваться повторно. Соответствует требованиям OSHA 1926 и ANSI Z359
Бесплатная доставка!
Новинка!
Вращающийся анкер FallTech 7395C Premium SRL для наклонных…
Вращающийся якорь поддерживает правильный угол ориентации SRL по отношению к подключенному пользователю
Всего: $ 314.95
Наличие: Есть в наличии
FallTech Номер товара: FALLTECH-7395C —Характеристики: Вращающийся анкер поддерживает правильный угол ориентации SRL по отношению к подключенному пользователю. Имеет регулируемую подставку для SRL DuraTech и других марок SRL до 60 футов.Люлька SRL включает в себя D-образное кольцо для крепления вторичных удерживающих устройств Включает гвозди 16D и 2-1 / 2-дюймовые шурупы для установки над коньком Для временного многоразового использования на скатных деревянных фермах крыши с обшивкой Соответствует требованиям OSHA 1926.502 Подножки: углеродистая сталь с покрытием стальD-кольцо: легированная сталь с покрытием; …
Анкер FallTech Pass-Thru с 2 D и 3 дюймами.износная накладка
Анкерный строп с проходным отверстием для полотна с 2 D-образными кольцами и износной накладкой 3 дюйма.
Всего: $ 26.00
Наличие: Есть в наличии
FallTechПрочная полиэфирная лента толщиной 1 3/4 дюйма с прочной кованой фурнитурой из легированной стали.Износостойкая прокладка 3 дюйма защищает основную лямку от порезов и истирания. Идеально подходит для двутавровых балок и других конструктивных элементов с соответствующими номинальными характеристиками. Экономичный и легкий. Может использоваться повторно. Соответствует требованиям OSHA 1926 и ANSI Z359
Анкер с кольцевой пластиной FallTech 7493B1
Однопользовательская точка для персональной системы защиты от падения и удержания
Цена: 38 долларов.40
Наличие: Есть в наличии
FallTech Номер товара: FALLTECH-7493B1 — Кольцевой пластинчатый анкерFallTech обеспечивает временное решение для безопасности рабочих, выполняющих работы на фасадах зданий и крышах.Устанавливаемый на ферму на поле деревянных каркасных конструкций, кольцевой пластинчатый анкер служит единой точкой пользователя для индивидуальных систем защиты от падения и удержания. Пластинчатый анкер fallTech идеально подходит для таких задач, как покраска, облицовка сайдингом, кровля, мойка окон или общее строительство.
Новинка!
Guardian 00142 Вертикальный проектор 3000
Легко устанавливается одним человеком без каких-либо инструментов или специального оборудования
Цена: 389 долларов.85
Наличие: Есть в наличии
Защита от падения Guardian Номер товара: GUA-00142 —Guardian Vertical Beamer 3000 подходит для установки на вертикальные или горизонтальные двутавровые балки, совместимые с балками с широким диапазоном ширины и толщины фланцев, этот вертикальный луч устанавливается в фиксированном положении на балке и подходит для соединения любого соединительное устройство или горизонтальный спасательный трос.Вертикальный проектор 3000 может быть легко установлен одним человеком без использования каких-либо инструментов или специального оборудования, а его прочные компоненты позволяют ему стоять …
Guardian 01300 Якорь для веревки Hold Me
Удобная точка подключения Lifeline
Цена: 33 доллара.95
Наличие: Есть в наличии
Защита от падения Guardian Номер позиции: GUA-01300 —Веревочный анкер «Держи меня» для защиты от падения Guardian, объединяет крепежный соединитель с вертикальной системой страховочного троса.Якорь сертифицирован, чтобы выдерживать нагрузки до 5000 фунтов. Он сделан из легкого и устойчивого к коррозии алюминия. Для использования протяните веревку через анкер и либо подсоедините его с помощью совместимого карабина к отдельному соединителю анкерного крепления, либо оберните вокруг совместимой анкерной точки и протяните через анкер и создайте автономную систему. Это быстро и …
Malta Dynamics A6001 Анкер для бетона, съемный, 10K, 1 дюйм
Бетонный анкер, съемный, 10K, 1 дюйм.Соответствует ANSI Z359.1-2007, ANSI A10.32-12 и CE-EN …
Всего: $ 179.95
Наличие: Есть в наличии
Мальта Динамика Номер позиции: MD-A6001 —1-дюймовый съемный анкер для бетона 10K разработан для использования в затвердевшем бетоне толщиной 10 дюймов с прочностью на сжатие не менее 3000 p.s.i. Он подходит для защиты от падения и падения, а также в качестве устройства для позиционирования на рабочем месте. ● Соответствует ANSI Z359.1-2007, ANSI A10.32-12 и CE-EN 795 ● Соответствует OSHA 1926.502 и OSHA 1910.66 ● Размер: 1 ″ ● Вес: 0,9 фунта ● Используется только в бетонном основании ● Прочность на разрыв: 10 000 фунтов / 44 кН ● Применения включают: защиту от падения, удержание, рабочее положение …
Malta Dynamics A6002 Анкер для бетона, съемный, 5K, 3/4 «
Бетонный анкер, съемный, 5K, 3/4 дюйма.Соответствует ANSI Z359.1-2007, ANSI A10.32-12 и CE-EN …
Всего: $ 84.95
Наличие: Есть в наличии
Мальта Динамика Номер позиции: MD-A6002 —Съемный анкер 5K для бетона 3/4 дюйма (деталь № A6002) разработан для использования в затвердевшем бетоне толщиной 12 дюймов с прочностью на сжатие не менее 3000 p.s.i. Его легко установить (просто сожмите его пружину и вставьте вал кабеля в отверстие). Этот многофункциональный анкер можно использовать на вертикальных и потолочных поверхностях, а также в сочетании с горизонтальными страховочными тросами. Он подходит для защиты от падения, удержания и в качестве устройства для позиционирования на рабочем месте. Он имеет максимальную грузоподъемность 400 фунтов при …
Malta Dynamics A6004 Анкер для сборного железобетона, Toggle Lok ,…
Анкер для бетона, Toggle Lok, 5K, 7/8 «. Соответствует ANSI Z359.1-2007, ANSI A10.32-12 и CE-EN …
Всего: $ 90.95
Наличие: Есть в наличии
Мальта Динамика Номер позиции: MD-A6004 —Анкер 5K для сборного железобетона 7/8 ″ представляет собой универсальный переносной анкерный соединитель из сборного железобетона / стали, используемый исключительно для защиты от падения.Его легко установить (просто сожмите пружину и вставьте вал кабеля в отверстие, и его можно вставить внутрь сборного железобетона и стальных фланцев. Предназначен для использования в твердом сборном железобетоне толщиной 12 дюймов с прочностью на сжатие не менее 3000 фунтов на квадратный дюйм ● Соответствует ANSI Z359.1-2007, ANSI A10.32-12 и CE-EN 795 ● Соответствует OSHA 1926.502 …
Malta Dynamics A6005 Анкер для сборного железобетона, Toggle Lok ,…
Анкер для бетона, Toggle Lok, 5K, 3/4 «. Соответствует ANSI Z359.1-2007, ANSI A10.32-12 и CE-EN …
Всего: $ 83.95
Наличие: Есть в наличии
Мальта Динамика Номер позиции: MD-A6005 —3/4 ″ Анкер-защелка для сборного железобетона 5K — это универсальный переносной фиксатор для анкеровки из сборного железобетона и стали, используемый исключительно для защиты от падения.Его легко установить (просто сожмите пружину и вставьте кабельный вал в отверстие), и его можно вставить внутрь сборных железобетонных и стальных фланцев. Разработан для использования в твердом сборном железобетоне толщиной 12 дюймов с прочностью на сжатие не менее 3000 фунтов на квадратный дюйм ● Соответствует ANSI Z359.1-2007, ANSI A10.32-12 и CE-EN 795 ● Соответствует OSHA 1926.502 …
Malta Dynamics A6101 Анкер для тележки двутавровой балки, 3–10 дюймов, 5K
? Соответствует ANSI Z359.1-2007, ANSI A10.32-12 и CE-EN 795
Всего: $ 349.95
Наличие: Есть в наличии
Мальта Динамика Номер позиции: MD-A6101 —Якорь для тележки с двутавровой балкой (деталь № A6101) — это якорь с ограничением падения, предназначенный для использования в сочетании с амортизирующим шнуром или SRL.Его также можно использовать для защиты от падения и в качестве устройства для позиционирования на рабочем месте. Его свободно движущиеся ролики позволяют плавно перемещаться по рабочей зоне, всегда оставаясь подключенными. Рычаги с предохранительной блокировкой позволяют легко регулировать, а также исключают риск случайного соскальзывания зажима. Для использования одним рабочим общей массой до 310 …
Malta Dynamics A6102 Beam Walker Super Slider, 3–12 дюймов
? Соответствует ANSI Z359.1-2007, ANSI A10.32-12 и CE-EN 795
Всего: $ 153.65
Наличие: Есть в наличии
Мальта Динамика Номер позиции: MD-A6102 —Beam Walker Super Slider 3 ″ — 12 ″ — анкер для защиты от падения, разработанный для использования на верхнем фланце стальной двутавровой балки.Легкие, гладкие и простые в использовании, Beam Walker Super Slider 3 ″ — 12 ″ разработаны для защиты от падения, доступа к веревке и позиционирования на рабочем месте. ● Отвечает ANSI Z359.1-2007, ANSI A10.32-12 и CE-EN 795 ● Соответствует OSHA 1926.502 и OSHA 1910.66 ● Диапазон: от 3 ″ до 12 ″ ● Разрывная нагрузка: 5000 фунтов / 22 кН ● Вес: 3,4 фунта / 1,58 кг
Malta Dynamics A6103 Beam Walker Super Slider, 3–14 дюймов
? Соответствует ANSI Z359.1-2007, ANSI A10.32-12 и CE-EN 795
Всего: $ 139.95
Наличие: Есть в наличии
Мальта Динамика Номер позиции: MD-A6103 —Beam Walker Super Slider 3 ″ — 14 ″ — анкер для защиты от падения, разработанный для использования на верхнем фланце стальной двутавровой балки.Более легкий, плавный и простой в использовании Beam Walker Super Slider 3 ″ — 14 ″ разработан для защиты от падения, доступа к веревке и рабочего позиционирования. ● Соответствует ANSI Z359.1-2007, ANSI A10.32-12 и CE-EN 795 ● Соответствует OSHA 1926.502 и OSHA 1910.66 ● Диапазон ширины полки балки: от 3,5 ″ до 14 ″ ● Толщина полки балки: от 0,25 ″ до 1,25 ″ ● Прочность на разрыв: 5000 фунтов / 22 кН ● Вес продукта: 3,3 …
Malta Dynamics A6104 Beam Walker Super Slider, 12–30 дюймов
? Соответствует ANSI Z359.1-2007, ANSI A10.32-12 и CE-EN 795
Всего: $ 289.95
Наличие: Есть в наличии
Мальта Динамика Номер позиции: MD-A6104 —Beam Walker Super Slider 12 ″ — 30 ″ — это большая версия (грузоподъемность 30 дюймов) анкер для защиты от падения, разработанный для использования на верхнем фланце стальной двутавровой балки.Легкие, гладкие и простые в использовании, Beam Walker Super Slider 12 ″ — 30 ″ разработаны для защиты от падений, веревочного доступа и рабочего позиционирования. ● Соответствует ANSI Z359.1-2007, ANSI A10.32-12 и CE-EN 795 ● Соответствует OSHA 1926.502 и OSHA 1910.66 ● Диапазон ширины полки балки: от 12 ″ до 30 ″ ● Толщина полки балки: от 0,25 ″ до 2,5 ″ ● Прочность на разрыв: 5000 фунтов / …
Malta Dynamics A6105 Вертикальный / фиксированный анкер с балкой, 3–14 дюймов
? Соответствует ANSI Z359.1-2007 и ANSI A10.32-12
Всего: $ 239.95
Наличие: Есть в наличии
Мальта Динамика Номер позиции: MD-A6105 —● Соответствует ANSI Z359.1-2007 и ANSI A10.32-12 ● Соответствует OSHA 1926.502 и OSHA 1910.66 ● Диапазон ширины полки балки: от 4 ″ до 14 ″ ● Толщина полки балки: от 0,25 ″ до 1,25 ″ ● Прочность на разрыв: 5000 фунтов / 22 кН ● Продукт Вес: 7 фунтов.
Мальта Dynamics A6203 Чокер с тросом, 6 футов, 5K
? Соответствует ANSI Z359.1-2007 и ANSI A10.32-12
Всего: $ 27.95
Наличие: Есть в наличии
Мальта Динамика Номер товара: MD-A6203 —Стропа 5K Wire Rope Sling — 6 футов — это сертифицированный ANSI Z359 фиксирующий соединитель с переливающейся синей трубкой для облегчения проверки кабеля.Стропу можно использовать в конфигурации корзины. Кабельные стропы — отличные временные и полупостоянные анкеры, сертифицированные ANSI. Доступны модели длиной 3 и 6 футов с различными выводами для универсальности в работе или в составе спасательного комплекта. ● Соответствует ANSI Z359.1-2007 и ANSI A10.32-12 ● Соответствует OSHA 1926.502 и OSHA 1910.66 ● Вес продукта: 1,3 фунта ● …
Новинка!
Malta Dynamics A6302 Постоянный кровельный анкер
Эти предохранительные анкеры специально разработаны для постоянного использования на деревянных крышах…
Всего: $ 19.95
Наличие: Есть в наличии
Мальта Динамика Номер товара: MD-46302 —Специально разработанные для постоянного использования на деревянных крышах, эти предохранительные анкеры для крыш производятся с двумя концами D-образных колец из сплава, имеют длину 18 дюймов и состоят из нержавеющей стали для исключительно длительного срока службы.Как и все наши продукты, постоянный кровельный анкер Malta Dynamics на 100% соответствует всем применимым нормам OSHA и ANSI. Постоянный кровельный анкер обеспечивает простоту установки и идеально подходит как для жилищного строительства, так и для ремонтных работ. Основные характеристики: • Легкость …
Новинка!
Malta Dynamics A6303 Многоразовый кровельный анкер
Многоразовый кровельный анкер Malta Dynamics — это многоразовый анкерный соединитель, предназначенный для…
Всего: $ 21.95
Наличие: Есть в наличии
Номер позиции: MD-A6303 —Многоразовый кровельный анкер Malta Dynamics — это многоразовый анкерный соединитель, предназначенный для временного использования на деревянных крышах.Наши кровельные анкеры подходят для всех уклонов крыши от плоской до 12/12, а их толстая стальная конструкция означает более длительный срок службы продукта. Поставляется со всеми необходимыми крепежными деталями. Основные характеристики: ● Соответствует OSHA 1910, OSHA 1926 Subpart M и ANSI A10.32-12 ● Может устанавливаться винтами или гвоздями ● Подходит для уклона крыши до 12/12 ● Крепежные детали входят в комплект ● Для временного использования на деревянных крышах ● Рабочий …
Новинка!
Malta Dynamics A6316 Парапетный якорь
Анкер для настенного парапета непроникающий
Цена: 269 долларов.95
Наличие: Есть в наличии
Мальта Динамика Номер позиции: MD-A6316 —Анкер Malta Dynamics Parapet Wall был разработан для использования на плоских крышах, окруженных парапетной стеной.Этот анкер полностью регулируется и может быть установлен на стенах толщиной от 2,36 дюйма до 14,1 дюйма. Это анкерное устройство является непроникающим и не требует инструментов для установки. Основные характеристики: Непроникающая конструкция для устранения повреждения стены парапета. Не требуются инструменты для установки. — Двойные зажимные ручки для равномерного распределения усилия. Резиновые защитные прокладки для устранения повреждений.
Новинка!
Malta Dynamics A6317 Анкер для крыши со стоячим фальцем
Кровельный анкер со стоячим фальцем Malta Dynamics разработан для защиты от падения на 360 градусов…
Всего: $ 160.95
Наличие: Есть в наличии
Мальта Динамика Номер товара: MD-A6317 —Анкер для крыши со стоячим фальцем Malta Dynamics разработан для защиты от падения на 360 градусов при установке на металлическую крышу со стоячим фальцем.Этот анкер имеет шарнирную анкерную точку наверху, которая обеспечивает универсальное соединение и может использоваться в качестве точки крепления. Анкер может быть прикреплен к крыше с помощью установочного винта и набора торцевых головок. Основные характеристики: Предназначен для крепления на металлической фальцевой кровле Поворотная анкерная точка для движения на 360 градусов Соответствует ANSI Z359.1: 2007Материалы: алюминиевый сплав и нержавеющая сталь
Новинка!
Malta Dynamics A6318 Анкер для крыши с регулируемым шагом
Кровельный анкер с регулируемым шагом Malta Dynamics можно легко согнуть, чтобы он соответствовал высоте…
Всего: $ 10.95
Наличие: Есть в наличии
Мальта Динамика Номер товара: MD-A6318 —Анкер для крыши с регулируемым шагом Malta Dynamics можно легко согнуть в соответствии с уклоном вашей крыши.Этот якорь дает каждому, кто имеет доступ к крыше, надежную точку крепления без длительного повреждения вашей крыши. Эти анкерные точки легко устанавливаются с помощью 8 гвоздей 16d, не входящих в комплект. Крышный анкер с регулируемым шагом разработан для восстановления кровли, реконструкции и строительства нового здания. Основные характеристики: ● Легко наклоняется над пиком крыши. ● Легкий. ● Простота установки. ● Максимальная грузоподъемность 310 фунтов. ● …
Новинка!
Мальта динамика EC9002 DoorFix
DoorFix — это мобильная анкерная точка, предлагающая интеллектуальное и мобильное решение в местах, где…
Всего: $ 655.00
Наличие: Есть в наличии
Мальта Динамика Номер позиции: MD-EC9002 —DoorFix — это мобильная анкерная точка, которая предлагает интеллектуальное и мобильное решение в местах, где есть отверстия и есть риск падения с высоты.Мобильная анкерная точка DoorFix регулируется и легко фиксируется в проеме или между дверными коробками с помощью поворотной ножки. DoorFix имеет две точки крепления и сертифицирован как защита от падения для двух (2) человек. Две точки крепления из нержавеющей стали можно заменить между отверстиями, поэтому DoorFix также можно использовать в случае небольшого …
Анкер Pitch Pro, черный
PitchPro — это ведущий анкер для защиты от падения, разработанный для асфальта с наклонной крышей…
Всего: $ 15.95
Наличие: Есть в наличии
Защита от падения Guardian Номер товара: GUA-10540 —PitchPro — это ведущий анкер для защиты от падения, разработанный для строительства из битумной черепицы с наклонной крышей.PitchPro — идеальное решение как для нового, так и для существующего строительства, а его низкопрофильная установка делает его отличным выбором для постоянного использования. Его крупногабаритная точка подключения упрощает прикрепление и отсоединение. Изготовленный из прочной стали с порошковым покрытием, PitchPro устойчив к повреждениям при многократных установках и обеспечивает максимально долгий срок службы. Подвиг …
Pitch Pro Anchor Коричневый
PitchPro — это ведущий анкер для защиты от падения, разработанный для асфальта с наклонной крышей…
Всего: $ 15.95
Наличие: Есть в наличии
Защита от падения Guardian Номер товара: GUA-10541 —PitchPro — это ведущий анкер для защиты от падения, разработанный для строительства из битумной черепицы с наклонной крышей.PitchPro — идеальное решение как для нового, так и для существующего строительства, а его низкопрофильная установка делает его отличным выбором для постоянного использования. Его крупногабаритная точка подключения упрощает прикрепление и отсоединение. PitchPro, изготовленный из прочной стали с порошковым покрытием, устойчив к повреждениям при многократных установках и обеспечивает максимально долгий срок службы ….
Анкер Pitch Pro серый
PitchPro — это ведущий анкер для защиты от падения, разработанный для асфальта с наклонной крышей…
Всего: $ 15.95
Наличие: Есть в наличии
Защита от падения Guardian Номер товара: GUA-10542 —PitchPro — это ведущий анкер для защиты от падения, разработанный для строительства из битумной черепицы с наклонной крышей.PitchPro — идеальное решение как для нового, так и для существующего строительства, а его низкопрофильная установка делает его отличным выбором для постоянного использования. Его крупногабаритная точка подключения упрощает прикрепление и отсоединение. PitchPro, изготовленный из прочной стали с порошковым покрытием, устойчив к повреждениям при многократных установках и обеспечивает максимально долгий срок службы ….
Бесплатная доставка!
Мобильное устройство защиты от падения 2 + 2 для зоны крыши
Цена: 2795 долларов.00
Наличие: Есть в наличии
Зона крыши Номер товара: TDE-60050 — Мобильная система защиты от паденияPenetrator 2 + 2 предлагает непревзойденную портативность и компактный дизайн.Строительная площадка поставляется готовой на стандартном поддоне, ручки выдвигаются и фиксируются штифтами. Дополнительная крышка доступна для хранения на крыше, когда она не используется. Снимите крышку для обеспечения защиты от падения в любой момент для любых рабочих, которым требуется доступ на крышу. Penetrator 2 + 2 обеспечивает защиту от падения для 2-х и 2-х страховочных устройств, или всего 4 рабочих. Когда происходит падение, мощный …
Бесплатная доставка!
Новинка!
Мобильное устройство защиты от падения с проникновением в зону крыши с тележкой…
Позволяет максимальную защиту 5 работникам
Цена: $ 3195.00
Наличие: Есть в наличии
Зона крыши Номер товара: TDE-65033 —Новая мобильная система защиты от падения с проникновением в зону крыши обеспечивает защиту от падения для 3-х и 2-х ограничителей падения, в общей сложности 5 защищаемых рабочих.Как это работает?: Когда происходит падение, мощный проникающий шип входит в зацепление, проникая в настил крыши, создавая надежный и надежный якорь. Penetrator соответствует требованиям OSHA по защите от падения с высоты 1926.502. Эта система может использоваться на большинстве оснований, ЗА ИСКЛЮЧЕНИЕМ легкого бетона. Пенетратор испытан на сборных, TPO, …
Новинка!
Мобильное устройство защиты от падения Safety Bull
Лучшая мобильная защита от падения
Цена: 3410 долларов.00
Наличие: Есть в наличии
Передовая безопасность Номер товара: AES-EU-000-18-ASM —Наличие точки крепления на колесах произвело революцию в защите от падения с высоты.Мы знаем, что промышленность давно искала более компактное решение для защиты от падения, и поэтому мы чрезвычайно гордимся тем, что представляем Safety Bull. Меньше, чем оригинальный TriRex, и легче, чем Stinger, Safety Bull — это наша самая универсальная мобильная защита от падения с высоты. Когда Safety Bull находится на крыше, двое рабочих могут прикрепиться к точке крепления, поставить инструменты на …
Новинка!
SafeWaze 019-4005 Временная и многоразовая крыша FrogLink…
Временный анкер 019-4005, идеально подходящий для деревянных крыш, имеет специальный встроенный источник энергии …
Всего: $ 149.95
Наличие: Есть в наличии
SafeWaze Номер товара: SAFEWAZE-019-4005 —Временный анкер 019-4005, идеально подходящий для деревянных крыш, имеет специальный встроенный поглотитель энергии и обеспечивает рабочий радиус 360 °.Анкер можно использовать в качестве одиночной точки анкера или как часть горизонтальной системы жизнеобеспечения. ХАРАКТЕРИСТИКИ: Конструкция из нержавеющей стали, рабочий радиус 360 °, Встроенный поглотитель энергии снижает напряжение и повреждение конструкции. Легко крепится с помощью кровельных саморезов 7, 14 калибра 75 мм ( (не входит в комплект поставки) для одного пользователя Грузоподъемность 310 фунтов Соответствует: ANSI Z359.18 Тип D — OSHA 1926.502, …
Новинка!
SafeWaze 019-4006 Временная и многоразовая крыша FrogLink…
Постоянный анкер 019-4006, идеально подходящий для металлических и стальных крыш, оснащен специальным …
Всего: $ 159.95
Наличие: Есть в наличии
SafeWaze Номер товара: SAFEWAZE-019-4006 —Постоянный анкер 019-4006, идеально подходящий для металлических и стальных крыш, имеет специальный встроенный поглотитель энергии и обеспечивает рабочий радиус 360 °.Анкер можно использовать как одиночную точку анкера или как часть горизонтальной системы жизненного пути. ОСОБЕННОСТИ: Конструкция из нержавеющей стали, рабочий радиус 360 °. Встроенный поглотитель энергии снижает напряжение и повреждение конструкции. Устанавливается с заклепками Gesipa Bulb 7,8 мм (в комплекте). Вес пользователя: 310 фунтов Соответствует: OSHA 1926.502, 1910.66 Материал: нержавеющая сталь …
Новинка!
Якорь SafeWaze EX400, 15 дюймов, с храповым ремнем
Этот 15-футовый анкер с храповым механизмом, предназначенный для использования вокруг колонн и столбов….
Всего: $ 99.95
Наличие: Есть в наличии
SafeWaze Номер позиции: SAFEWAZE-FS-EX400-15 —Этот 15-футовый анкер с храповым механизмом, предназначенный для использования вокруг колонн и столбов.Храповик позволяет анкеру оставаться в правильном положении на колонне. ХАРАКТЕРИСТИКИ Натяжитель с храповым механизмом, длина 15 футов Для использования вокруг стрел, колонн и стоек Точки крепления: D-образное кольцо Материалы: 2-дюймовая трещоточная пряжка с двойной блокировкой, прочность на разрыв> 10 000 фунтов 2-дюймовая полиэфирная тесьма, прочность на разрыв> 5000 фунтов Высокопрочные полиэфирные стежки, прочность на разрыв> 40 фунтов Термообработанная легированная сталь …
Новинка!
Поперечные ремни SafeWaze FS810
SafeWaze Ремешок через плечо из усиленной тесьмы и двух D-образных колец индивидуального размера…
Всего: $ 44.95
Наличие: Есть в наличии
SafeWazeSafeWaze Ремешок через плечо с усиленной тесьмой и двумя D-образными кольцами индивидуального размера для удобной установки.ОСОБЕННОСТИ Длина 6 ‘- 20’ 3 Сквозные D-образные кольца Высокопрочная полиэфирная строчка 3-дюймовая полиэфирная тесьма с усиленной тесьмой 1,75 дюйма (44,45 мм) Точки крепления: 2 сквозных D-образных кольца Материалы: 1,75 дюйма (44,45 мм) полиэфирная тесьма с 3-дюймовая усиленная тесьма; Отстрочка из высокопрочного полиэстера; D-образные кольца из кованой стали Вес Допустимая нагрузка / максимальная рабочая нагрузка: 310 фунтов (140,61 кг) Применимо …
Новинка!
SafeWaze FS861 Доступный балочный анкер
Анкер-балка скользящая рассчитана на 3 1/2? до 13 1/4? балки с полкой до 1…
Всего: $ 159.95
Наличие: Есть в наличии
SafeWaze Номер позиции: SAFEWAZE-FS861 —Анкер для скользящей балки предназначен для балок от 3 1/2 ″ до 13 1/4 ″ с фланцем до 1 1/4 ″.Он имеет центральное D-образное кольцо и запатентованную одноручную быстросъемную защелку двойного действия. ХАРАКТЕРИСТИКИ Самый доступный качественный анкер Запатентованная одноручная быстросъемная защелка двойного действия Центрированное D-образное кольцо предотвращает заклинивание на фланце балки для более плавного скольжения. От 3 1/2 до 13 1/4 дюйма Общая длина 18,50 дюйма Допустимая толщина полки балки 1 1/4 дюйма Материалы: перекладина из нержавеющей стали, зажимы, …
Новинка!
SafeWaze FS870 Многоразовые кровельные анкеры
Этот многоразовый кровельный анкер изготовлен из оцинкованной стали и предназначен для использования на дереве или металле…
Всего: $ 20.95
Наличие: Есть в наличии
SafeWaze Номер позиции: SAFEWAZE-FS870 —Этот многоразовый кровельный анкер изготовлен из оцинкованной стали и предназначен для деревянных или металлических крыш.Анкер можно привинтить или прибить гвоздями. ХАРАКТЕРИСТИКИ: Многоразовый кровельный анкер Оцинкованная сталь Материалы: Стальной лист Вес: 2,44 фунта (1,11 кг) Длина: 11 дюймов (279,4 мм) Применимые стандарты: Соответствует OSHA 1926.502, ANSI Z359.1, ANSI A10.32 …
Новинка!
SafeWaze FS876 5K Съемный анкер-клин для бетона
Этот съемный бетонный анкер имеет эксклюзивную функцию «Easy Button», которая обязательно должна быть…
Всего: $ 89.95
Наличие: Есть в наличии
SafeWaze Пункт №: SAFEWAZE-FS876 —Этот съемный бетонный анкер имеет эксклюзивную функцию «Easy Button», которая, несомненно, повысит производительность, обеспечивая немедленное снятие анкера и мгновенную мобильность пользователя.Анкер можно установить с любой жесткостью, не опасаясь, что он застрянет. ХАРАКТЕРИСТИКИ Съемный бетонный клиновой анкер с рейтингом 5K, рассчитанный на отверстие 3/4 на 3 дюйма Включает простой спусковой крючок для многократного использования Максимальная нагрузка 5000 фунтов Общая длина 10,75 дюйма / Требуется Для размещения просверлено отверстие 3/4 ″. Материалы: стальной корпус; Трос из нержавеющей стали …
Новинка!
SafeWaze FS888 Болт на анкере с D-образным кольцом
Этот анкер с D-образным кольцом рассчитан на 5K и может крепиться болтами или привариваться.Этот якорь одинарный …
Всего: $ 23.95
Наличие: Есть в наличии
SafeWaze Пункт №: SAFEWAZE-FS888 —Этот анкер с D-образным кольцом рассчитан на 5K и может крепиться болтами или привариваться.Этот анкер является точечным анкерным креплением для стальных конструкций. Конструкция обеспечивает свободное перемещение D-образного кольца после установки. ХАРАКТЕРИСТИКИ Предназначен для свободного перемещения Минимальный предел прочности на растяжение 5 000 фунтов D-образное кольцо из оцинкованной сталиГабаритные размеры .25 ″ x 2,00 ″ x 4,50 ″ Болт на свободно движущемся анкере с D-образным кольцом для стали Применение Материалы: D-образное кольцо из оцинкованной стали; Кованая стальная пластина Вес: 0,54 кг (1,20 фунта) Вес …
SafeWaze SW900 Настенный анкер для парапета
Анкер стены парапета легко устанавливается на существующие стены парапета без необходимости в них…
Всего: $ 230.00
Наличие: Есть в наличии
SafeWaze Номер позиции: SW-SW900 —Анкер стены парапета легко устанавливается на существующие стены парапета без необходимости использования каких-либо дополнительных инструментов или проникновения в поверхность стены.Подходящее соединение анкерной точки для рабочего позиционирования или спуска с крыши здания или в качестве анкерной точки в вашей личной системе защиты от падения. Характеристики: Подходит для бетонных парапетов от 2,36 ″ (6 см) до 14,17 ″ (36 см). Простой метод установки для высокой производительности. Высокопрочная стальная конструкция. Портативная и многоразовая. Встроенное D-образное крепление.
Новинка!
Временный кровельный анкер SafeWaze на 360 °
Многоразовый временный анкер для крыши с углом поворота 360 градусов
Цена: 45 долларов.95
Наличие: Есть в наличии
SafeWaze Номер товара: SAFEWAZE-019-4010 —SafeWaze 360 ° Roof Anchor — это временная и многоразовая анкерная точка для защиты от падения, обеспечивающая полный рабочий радиус 360 °.Создан для использования на деревянных крышах и устанавливается за считанные секунды с помощью прилагаемого крепежа. • Рабочий радиус 360 ° • Оцинкованная сталь (основание), окрашенная сталь (точка соединения) • (6) винты с шестигранной головкой из нержавеющей стали 1/4 дюйма x 3 дюйма для установки на дереве • Грузоподъемность: один человек — 310 фунтов (включая человека) , инструменты и материалы) • Минимальная прочность 5 000 фунтов • Соответствует: OSHA …
Новинка!
Анкер SAS с поворотом на 360 градусов
Универсальный анкер с шарнирным соединением 360
Цена: 45 долларов.95
Наличие: Есть в наличии
Супер безопасность якоря Номер позиции: SAS-1028-SMD —Анкер Swivel-D — это полностью шарнирный анкер, который вращается на 360 градусов и поворачивается на 180 градусов.Его можно прикрепить практически к любой конструкции, включая сталь, дерево и бетон. Он изготовлен с прочной дужкой из нержавеющей стали и оцинкованным D-образным кольцом из кованой стали с внутренним диаметром 2,0 дюйма. Это очень прочный анкер, который можно использовать как для временной, так и для постоянной установки внутри или снаружи вашего здания или сооружения. Этот анкер очень универсален по своему …
Анкер HitchClip 65087 — Черный
Отвечает всем стандартам OSHA, легкий и простой в установке! Цвет: черный
Цена: 8 долларов.99
HitchClip, изготовленный из алюминия 6061-T6, очень легкий: 2 дюйма в ширину и 11-1 / 2 дюйма в длину.Его легкая конструкция делает его легко транспортируемым. HitchClip может быть быстро установлен с помощью четырех внешних винтов PrimeGuard 3-1 / 2 дюйма (8,89 см) или эквивалентных внешних винтов в любом месте, где можно прикрепить каркасный элемент. И стандарты Управления здравоохранения (OSHA). HitchClip выделяется среди остальных на рынке пятью …
Super Anchor Safety 1075 Кровельный анкер D-Minus
Защита от падения для одного человека, макс.вес 310 фунтов.
Цена: $ 7.00
Для установки большинства анкерных крыш требуется удаление черепицы.Это может стать проблемой, особенно на старых крышах с хрупкой черепицей. Нет необходимости снимать коньковый колпак для установки анкеров для защиты от падения, потому что эта планка позволяет вам устанавливать анкеры непосредственно над существующим кровельным материалом. Анкер D-Minus может быть установлен непосредственно над существующими крышами из битумной черепицы, не снимая никакой черепицы. Чтобы закрыть анкер и крепеж и защитить его от элементов, которые мы изобрели …
Защита от падения Guardian 00484 Якорь с кольцом Bull
Стыковые якоряподходят для индивидуальной защиты от падения, фиксации или рабочего положения…
Цена: $ 41.95
Анкерные кольца Guardian для защиты от падения подходят для индивидуальной защиты от падения, удержания или позиционирования на рабочем месте.Для всех применений диапазон грузоподъемности рабочего (включая всю одежду, инструменты и оборудование) составляет от 130 до 310 фунтов. Сам якорь изготовлен из 100% оцинкованной стали. Основание должно представлять собой ферму крыши или опорную балку толщиной не менее 3 дюймов CDX или лучше. Все крепежные детали (используйте либо шесть гвоздей 8 калибра длиной 16d, 3 дюйма, либо три оцинкованных стали 1/4 «x 3» …
Guardian 00455 Анкер многоразовый для крыши Temper
Временное использование на деревянных крышах.Шарнирное соединение с D-образным кольцом. Крепеж в комплекте
Цена: 21,50 долларов
Для использования на кровлях от плоских до уклона 12/12, деревянных или металлических.5000 фунтов анкерная точка. Крепеж в комплекте. Испытано и одобрено для использования с металлической кровлей толщиной не менее 20 мм, крепится непосредственно к поверхности. Для металлической установки: используйте (16) винтов (по 8 с каждой стороны), 6 в центральной колонке отверстий для установки крепежа, в 1 отверстие слева от центра и 1 отверстие справа от центра. Guardian рекомендует саморезы HILTI Kwik-Pro. Технические данные Применимые стандарты: OSHA 1910, OSHA …
Как использовать ремни безопасности на крыше и установить фиксатор ремня
Отказ от ответственности: Следующая информация не является сертифицированным учебным материалом, не одобрена учебными или сертификационными органами и предоставляется только для общих информационных целей.Чтение этой статьи НЕ заменяет надлежащего обучения технике безопасности перед работой на высоте. IKO не несет ответственности за предоставленную информацию.
Ремни безопасности — лучший друг кровельщика. Правильный выбор ремня для защиты от падения с высоты и его правильное использование защитят вас от падений и серьезных травм при правильном использовании.
Ремни для защиты от падения — лишь один вариант среди многих систем защиты от падения. Однако они широко используются кровельщиками жилых домов.Обычно кровельщики не хотят тратить время на установку системы ограждений в жилом доме. Ремни для защиты от падения — удобная и безопасная альтернатива.
Хотя ремни для защиты от падения с высоты в последние годы стали удобными в использовании, не все кровельщики относятся к ним так серьезно, как следовало бы. Неспособность использовать систему защиты от падений должным образом приводит к множеству падений в год и в среднем 37 смертельным исходам в год в Соединенных Штатах. Таким образом, очень важно быть в курсе того, как использовать страховочную привязь, и проводить другие тренинги по технике безопасности.
Это руководство познакомит вас с основами того, как должна выглядеть одобренная система индивидуальной защиты от падения (PFAS) и как ее правильно использовать. Мы рассмотрим стандарты Управления по безопасности и гигиене труда (OSHA) по безопасности падения для американцев, а также канадские стандарты безопасности Закона о безопасности и гигиене труда (OHSA). Мы также расскажем о последних изменениях в стандартах канатных грейферов CSA Group.
На какой высоте требуется защита от падения?
Во-первых, вам нужно знать, когда следует использовать привязные ремни безопасности на крыше.Как профессиональный кровельщик, вы обязательно должны использовать PFAS при работе с определенной высоты. В большинстве юрисдикций в Соединенных Штатах OSHA требует, чтобы вы использовали PFAS, если вы работаете на наклонной крыше на высоте шести или более футов от земли и не используете ограждения и защитные сетки. Или, если вы работаете на плоской крыше с уклоном 4:12 или меньше, которая также находится на высоте 6 футов от земли, у вас есть возможность использовать PFAS или несколько различных комбинаций систем ограждений и предупреждающих линий.Тем не менее, вы всегда должны сверяться с местными правилами, которые могут отличаться от этого национального стандарта.
А если вы канадский кровельщик? Правила безопасности различаются в Канаде в зависимости от провинции. Однако в большинстве провинций, включая Онтарио, Британскую Колумбию и Альберту, рабочий должен носить индивидуальную систему защиты от падения, если он или она может упасть с высоты 3 метра или более и не имеет ограждений.
В чем разница между персональной системой защиты от падения и системой защиты от падения?
Прежде чем броситься покупать обвязку, вы должны знать, что существует два основных типа привязи.И в Канаде, и в Соединенных Штатах правила безопасности проводят различие между PFAS и ограничителями для путешествий, которые в Соединенных Штатах чаще называют ограничителями для падения.
Ограничители падения или перемещения при правильном использовании не позволяют работать по краям крыши. Когда вы носите дорожный ограничитель, вы не можете дотянуться до края и упасть. Напротив, PFAS позволяет вам работать на краю крыши, но не дает вам удариться о землю при падении, если он используется правильно.
Кровельщик должен использовать PFAS, так как ему или ей часто приходится дотягиваться до края крыши, чтобы выполнить свою работу. Кроме того, удерживающая система для путешествий может не обеспечить достаточной защиты для удовлетворения ваших требований безопасности. В этой статье мы обсудим только то, как использовать PFAS.
Детали системы индивидуальной защиты от падения
Правильный PFAS состоит из пяти компонентов, каждый из которых должен быть в хорошем рабочем состоянии:
- Точка анкера: Это металлический анкер, в котором PFAS соединяется с крышей.В нем есть отверстия для гвоздей или шурупов. Вы должны позаботиться о том, чтобы закрепить анкер в соответствии с рекомендациями производителя, прежде чем закрепить его. Ниже мы обсудим, как прикрепить анкерную точку к крыше.
- Ремешок для всего тела (FBH): Ремень — это система ремней, которую вы носите, чтобы прикрепить себя к PFAS. Если вы находитесь в Канаде, эта привязь должна соответствовать требованиям CSA для всего тела класса А. Ремень должен удобно облегать обе ноги и центр груди, распределяя удар, если вы упадете.Он также должен иметь D-образное кольцо (класс A) для крепления на спине в центре между лопатками.
Если привязная привязь является частью дорожной удерживающей системы, в некоторых местах может быть допустимо наличие на ней защитного ремня. Тем не менее, когда как часть привязи PFAS, OSHA требует, чтобы она имела набедренные ремни вместо поясного ремня. Всегда сверяйтесь с местными правилами, чтобы убедиться, что ваша подвеска соответствует требованиям.
- Линия жизни: Линия жизни — это веревка, которая соединяет шнур и веревочный захват с привязью и точкой крепления.
- Веревочный захват: По сути, веревочные захваты представляют собой металлические зажимы, которые соединяют шнур и страховочный трос. Если вы находитесь в Соединенных Штатах, ваш комплект ремней безопасности на крыше, скорее всего, будет «интегрированной системой». Это означает, что веревочный захват уже подключен к вашему шнурку, и они обычно продаются вместе. Недавно стандарт CSA Group был изменен, чтобы соответствовать этому. Захваты и шнурки теперь сшиты вместе. Однако канадцы, возможно, узнали о канатных захватах как об отдельных устройствах.Фактически, ваш существующий канатный захват по-прежнему сертифицирован CSA Group, но вы можете приобрести систему со встроенным канатным захватом и шнуром, когда он вам понадобится в следующий раз.
- Ремешок: Ремешок является обязательным элементом безопасности, входящим во все комплекты ремней безопасности на крыше. Это амортизирующая система, которая помогает снизить тяжесть вашего падения. Если у вас нет шнурка, то ваш спасательный круг должен иметь устройство замедления, или у вас должен быть самовтягивающийся шнур (SRL).
Согласно местным нормам и стандартам, ваша точка крепления должна выдерживать определенное усилие.Согласно правилам OSHA, PFAS должен выдерживать 5000 фунтов силы на каждого прикрепленного человека. Конечно, ни один кровельщик не весит 5000 фунтов, но при падении любой может создать значительно большую силу, чем его вес. В соответствии с вашими правилами может потребоваться другой вес, поэтому обязательно проверьте.
Обратите внимание, что «грузоподъемность» — это другое измерение, чем величина силы, которую может выдержать анкер. Обвязки из PFAS имеют разную весовую категорию, поэтому проверьте этикетку.
Кроме того, при покупке ремня для защиты от падения помните, что разумно покупать полный комплект ремней безопасности на крыше вместо того, чтобы покупать ремень, страховочный трос, шнур, веревочный захват и точку крепления отдельно.Вы должны быть уверены, что каждая часть вашего ремня безопасности предназначена для совместной работы, так как веревка может крепиться к привязи и якорю по-разному, в зависимости от того, как система должна работать. Когда вы покупаете комплект ремней безопасности для крыши, вы знаете, что каждая деталь будет работать вместе.
Как пользоваться ремнями безопасности на крыше
Теперь, когда вы понимаете, что такое привязь для защиты от падения и когда ее следует использовать, мы можем подробно рассказать, как ее правильно использовать.
1.Подготовьте привязь
Перед тем, как подняться на крышу или надеть страховочную привязь, вам нужно сделать несколько вещей:
- Осмотрите привязь: Убедитесь, что привязь выглядит должным образом и не повреждена. Помните, что если ремень безопасности упал, его необходимо вывести из эксплуатации. Уточняйте у производителя, когда и нужно ли отправлять привязь
- Установите ремень безопасности: Убедитесь, что ремень плотно облегает обе ноги и грудь.Вы не хотите, чтобы ремни ограничивали ваше движение или дыхание, но и не хотите, чтобы они были настолько ослаблены, что они могут за что-то зацепиться. Надежная посадка также помогает предотвратить травмы, поскольку ослабленные ремни могут вызвать ортостатическую травму. Так как привязь должна подходить каждому человеку, лучше всего, если каждый кровельщик будет снабжен своей собственной привязью, и чтобы кровельщики не использовали общий
2. Расчет расстояния падения
Какое у вас общее расстояние падения? Это минимальное расстояние по вертикали между спинным D-образным кольцом на вашей привязи (металлическое кольцо на задней стороне ремня между лопатками) и нижним уровнем (крыши или земли), которое необходимо, чтобы избежать удара о земля.
Ваши местные правила ограничивают, насколько далеко ваш PFAS может позволить вам падать. Например, согласно правилам OSHA, ваш PFAS не должен позволять вам падать более чем на 6 футов без замедления вашего падения. Кроме того, он не должен допускать контакта с землей или нижним уровнем крыши. Если два уровня крыши находятся на расстоянии менее 6 футов друг от друга, вам необходимо укоротить шнурок или страховочный трос, чтобы вы не упали на нижний уровень, если упадете с верхнего уровня.
Перед тем, как приступить к работе, вам необходимо рассчитать общее расстояние падения и убедиться, что оно соответствует требованиям местного законодательства.Для этого вам необходимо сложить следующие измерения:
- Расстояние свободного падения: Расстояние, на которое вы можете упасть до того, как ваше устройство PFAS начнет замедлять ваше движение. Оно должно быть меньше 6 А устройство замедления может помочь сократить эту длину.
- Расстояние замедления: Несмотря на запутанное название, это длина, на которую тянется шнур, чтобы помочь остановить падение. Хотя OSHA требует, чтобы он был не более 3,5 футов, вам следует уточнить у местного
- Провисание ремня: Это расстояние, на которое ремень растягивается при натяжении D-образного кольца.Это расстояние будет зависеть от конструкции ремня безопасности, веса кровельщика и того, что он или она несет в данный момент. Кровельщики обычно предполагают, что это 1
- Высота заднего D-образного кольца: Это высота вашего рабочего от ступней до D-образного кольца. Вы должны измерить каждого рабочего, но для среднего человека ростом 6 футов D-образное кольцо на составляет 5 футов.
- Запас безопасности: Запас безопасности 2 фута является стандартным, но уточняйте его у местного
Сумма всех этих измерений и есть расстояние падения.
Перед падениемПосле падения — совокупные расстояния, используемые для расчета общего безопасного расстояния от падения.
Если ваше общее расстояние падения равно или превышает расстояние, на которое вы можете упасть, вам необходимо укоротить какой-либо элемент PFAS, обычно шнур, чтобы гарантировать, что вы не упадете на землю. Только не сокращайте запас прочности!
3. Как установить точку крепления ремня безопасности на крыше
Теперь вам нужно установить анкерную точку на крыше.Анкеры имеют маркировку с рекомендациями производителя по установке; прочтите эти инструкции и следуйте инструкциям. Обязательно выберите гвоздь или винт по спискам производителя, установите его в правильном месте (например, в ферму). Добавьте столько гвоздей или шурупов, сколько указано производителем, и не пропускайте никаких шагов.
Вы можете задаться вопросом, как безопасно добраться до конька крыши (где вы будете устанавливать анкер), если ваш PFAS еще не закреплен. Возможно, не существует единого безопасного способа достичь вершины крутой скатной крыши, чтобы правильно установить точку крепления.Мы рекомендуем вам связаться с местными органами безопасности, такими как представители OSHA или NRCA, чтобы получить от них лучший совет о том, как справиться с этой критически важной частью безопасности при падении в вашем конкретном регионе.
4. Подключите PFAS
После того, как вы правильно установите анкерную точку, вам необходимо прикрепить к ней остальную часть системы.
Как вы это подключаете, обычно зависит от того, используете ли вы систему PFAS или SRL. Однако вы всегда должны читать инструкции производителя и следовать им.
Если вы используете систему PFAS, вы обычно прикрепляете свой спасательный трос к якорю, как рекомендует производитель. Затем вы прикрепляете веревочный захват и шнур к страховочному тросу. Во-первых, осмотрите и наденьте ремни безопасности, чтобы убедиться, что они безопасны и удобны. Прикрепите шнурок (конец амортизатора) к D-образному кольцу, которое находится на задней части ремня безопасности. Вам может понадобиться помощь, так что делайте это на земле.
Если вы используете систему SRL, прикрепите ее непосредственно к анкеру, если она не имеет встроенной анкерной системы.Затем прикрепите конец карабина к спинному D-образному кольцу. Преимущество этой более сложной системы заключается в том, что SRL действует как ремень безопасности и исключает возможность падения при правильном использовании.
5. Держитесь ближе к своей якорной точке
Последний шаг к правильному использованию ремня защиты от падения — постоянное натяжение системы. Избегайте слишком большого расстояния, чтобы снизить вероятность возникновения эффекта маятника в случае падения. Обратитесь к своим расчетам расстояния падения и при необходимости пересчитайте.
Когда вам нужно перейти к другой части крыши, вам нужно переместить точку привязки вместе с вами. Чтобы сэкономить время и повысить безопасность, некоторые кровельщики устанавливают несколько точек крепления, а затем просто переключаются между ними при перемещении по крыше.
Сколько людей могут безопасно прикрепить якорь к одной крыше?
Никакие национальные правила кровли не ограничивают количество кровельщиков, которых можно прикрепить к одной крыше. Вместо этого вы должны руководствоваться здравым смыслом и понимать инженерные принципы самой крыши, чтобы убедиться, что кровельщики будут в безопасности.Однако производители кровельных ремней предлагают убедиться, что у каждого, кто работает на крыше, есть своя точка крепления.
Ремни для защиты от падения и безопасность для кровельщиков
Знание того, как правильно использовать PFAS, обеспечит соблюдение правил техники безопасности и избежание травм на работе. Целесообразно периодически проверять, не изменились ли правила техники безопасности. Все регулирующие органы время от времени обновляют свои правила, чтобы обеспечить безопасность вас и ваших сотрудников на крыше.
Сейчас, когда вы изучаете систему защиты от падения, самое время убедиться, что у вас есть достаточная страховка для вашей кровельной компании. Лучше всего быть защищенным.
Анкерный столб на крыше | Постоянный кровельный анкер
Постоянный анкер на крыше часто требуется, чтобы рабочие могли безопасно выполнять работы по техническому обслуживанию оборудования, установленного на крыше, такого как HVAC и оборудование, связанное с промышленными процессами. Мы предлагаем полную линейку постоянных анкерных столбов для крыш, специально разработанных для каждого типа конструкции крыши.
Анкер для кровли Guardian
| Арт. № | Тип крыши |
|---|---|
| 00645 | CB-12 Анкерная точка для дерева, стали и бетона |
| 00648 | CB-12 Анкерная точка для дерева, стали и бетона с проходной крышкой |
| 00656 | CB-18 Анкерная точка для бетона |
| 00657 | CB-18 Анкерная точка для дерева и стали |
| 00658 | CB-18 Анкерная точка для дерева, стали и бетона с проходной крышкой |
| 00690 | S-образный анкер для защиты от падения или подвески / крепления |
| 10645 | CB-12 Приварная стойка |
| 10655 | CB-18 Приварная стойка |
DBI-SALA Анкерные стойки на крыше
| Арт. | Тип крыши |
|---|---|
| 2100133 | Металл, бетон, деревянная крыша |
| 2100138 | Крыша со стоячим фальцем (хомуты в комплект не входят; хомуты продаются отдельно) |
| 2100139 | Мембрана / сборная крыша |
| 2100140 | Крыши ПВХ |
| 2100142 | Битум кровельный |
Документы для якорных столбов
Engineered Fall Protection (EFP) предоставляет анкерные стойки на крыше; обслуживание клиентов от побережья до побережья, Канады, Мексики и особенно сосредоточено в штатах Миссури, Иллинойс, Индиана, Канзас, Арканзас, Миссисипи, Небраска, Теннесси, Кентукки, Айова, Оклахома, Джорджия, Южная Каролина, Алабама и Флорида.
СертифицированнаяАнкерная система для крыши — Кровельные анкеры
Наши анкеры для защиты от падения соответствуют и превосходят стандарты защиты от падения OSHA. Анкеры разрабатываются нашей командой инженеров и изготавливаются нашими сертифицированными сварщиками. Хотя мы храним стандартные продукты на складе, анкеры могут быть адаптированы под конкретные нужды проекта. Конструкция из оцинкованной стали и точки подключения из нержавеющей стали используются для обеспечения коррозионной стойкости и долговременной совместимости.Когда условия окружающей среды требуют полностью конструкции из нержавеющей стали, мы можем спроектировать и изготовить ее в соответствии с вашими требованиями. Наши стандартные предложения продуктов приведены ниже, но если нужного вам приложения нет, свяжитесь с нами для получения дополнительной информации.
Для анкерных систем крыши
Клейкий кровельный анкер
Предназначен для последующей установки на конструкционные бетонные плиты с четырьмя высокопрочными крепежными элементами и высокопроизводительным инъекционным клеевым раствором.
Скачать спецификацию в PDF
Загрузить DWG
(щелкните правой кнопкой мыши и выберите «Сохранить ссылку как…»)
Анкер для литой крыши
Заливаемый в бетонную плиту во время укладки бетона, этот кровельный анкер обычно устанавливается как единый узел для простоты установки.
Скачать спецификацию в PDF
Загрузить DWG
(щелкните правой кнопкой мыши и выберите «Сохранить ссылку как…»)
Анкер для сквозного крепления кровли
В тех случаях, когда свойства бетонной плиты не позволяют обеспечить ее надлежащее прикрепление к плите, этот кровельный анкер позволяет прикреплять ее через плиту с помощью стальных арматурных элементов с нижней стороны.
Скачать спецификацию в PDF
Загрузить DWG
(щелкните правой кнопкой мыши и выберите «Сохранить ссылку как…»)
Анкер для бетонной балки
Предназначенный для крепления к односторонним или двусторонним бетонным плитам, этот кровельный анкер предназначен для зацепления балки / ребра с помощью болтов и нижней пластины.
Скачать спецификацию в PDF
Загрузить DWG
(щелкните правой кнопкой мыши и выберите «Сохранить ссылку как…»)
Сварной кровельный анкер с опорной плитой
Если узкие фланцевые балки не имеют достаточной ширины для опоры и сварки анкерной стойки крыши, этот анкер разработан со встроенной опорной плитой для облегчения надлежащего сварного соединения. Обычно это новое строительное приложение и используется только там, где практически возможны сварочные работы.
Скачать спецификацию в PDF
Загрузить DWG
(щелкните правой кнопкой мыши и выберите «Сохранить ссылку как…»)
Сварной кровельный анкер
Предназначен для приварки в полевых условиях к верхней полке стальной балки. Обычно это новое строительное приложение и используется только там, где практически возможны сварочные работы.
Скачать спецификацию в PDF
Загрузить DWG
(щелкните правой кнопкой мыши и выберите «Сохранить ссылку как…»)
Анкер для перекрытия балок
Этот универсальный кровельный анкер позволяет прикреплять его к стальным конструктивным элементам без необходимости проведения сварочных работ при модернизации.
Скачать спецификацию в PDF
Загрузить DWG
(щелкните правой кнопкой мыши и выберите «Сохранить ссылку как…»)
Анкер для перекрытия балок — Новое строительство
Стальные балки с открытой стенкой обычно представляют собой тонкие и легкие элементы, для которых требуются дополнительные элементы армирования. Кровельные анкеры фиксируются болтовым креплением и стальной пластиной с нижней стороны.
Скачать спецификацию в PDF
Загрузить DWG
(щелкните правой кнопкой мыши и выберите «Сохранить ссылку как…»)
Анкер для балки с оберткой — дооснащение
При модернизации существующие стальные балки с открытой стенкой могут быть усилены болтовым креплением, поскольку сварка обычно нецелесообразна.
Скачать спецификацию в PDF
Загрузить DWG
(щелкните правой кнопкой мыши и выберите «Сохранить ссылку как…»)
Анкер под крышей асфальтоукладчика
Указанный в иллюстративных целях как приложение для крепления к бетону, каждый из наших типов анкеров может быть изготовлен как низкопрофильный для установки под брусчаткой. Этот тип анкера может быть снабжен встроенной крышкой или располагаться непосредственно под съемным брусчаткой, этот тип анкера обеспечивает соответствующее соединение и бесшовную интеграцию с архитектурной отделкой.
Скачать спецификацию в PDF
Загрузить DWG
(щелкните правой кнопкой мыши и выберите «Сохранить ссылку как…»)
Анкер для крепления деревянных конструкций на крыше
Деревянная конструкция обычно требует армирования, чтобы выдерживать нагрузки защиты от падения, и этот анкер может быть рассчитан и спроектирован для интеграции с арматурными элементами различных размеров и типов. Сквозное болтовое соединение обеспечивает долгосрочное взаимодействие и безопасность.
Скачать спецификацию в PDF
Загрузить DWG
(щелкните правой кнопкой мыши и выберите «Сохранить ссылку как…»)
Клейкий анкер
Может использоваться для крепления к бетонным стенам, бетонным бордюрам и сборным панелям.Крепление осуществляется минимум двумя высокопрочными крепежными элементами и высокоэффективным клеевым раствором для инъекций.
Скачать спецификацию в PDF
Загрузить DWG
(щелкните правой кнопкой мыши и выберите «Сохранить ссылку как…»)
Сварной стеновой анкер
Этот анкер для скрытого монтажа, совместимый с различными конструкционными стальными конструкциями, предназначен для крепления при сварке в полевых условиях.
Скачать спецификацию в PDF
Загрузить DWG
(щелкните правой кнопкой мыши и выберите «Сохранить ссылку как…»)
Анкер для сквозной стальной стены
Обеспечивает безопасную точку обозначенного соединения, где незащищенная сталь способна выдерживать нагрузки якоря для защиты от падения.Это болтовое соединение является универсальным и идеально подходит для модернизации.
Скачать спецификацию в PDF
Загрузить DWG
(щелкните правой кнопкой мыши и выберите «Сохранить ссылку как…»)
Стеновой анкер для колонн
Этот анкер служит в качестве обозначенной точки крепления, соответствующей требованиям OSHA, и обеспечивает прямое соединение обычных типов шнурков. Доступны с размерами и крепежами, подходящими для различных размеров и типов структурных элементов.
Скачать спецификацию в PDF
Загрузить DWG
(щелкните правой кнопкой мыши и выберите «Сохранить ссылку как…»)
Литой анкер
Этот анкер, предназначенный для заливки в вертикальную бетонную поверхность, является эффективным, но недорогим решением. Как и все наши анкерные крепления, доступны из оцинкованной или нержавеющей стали.
Скачать спецификацию в PDF
Загрузить DWG
(щелкните правой кнопкой мыши и выберите «Сохранить ссылку как…»)
Загрузите бесплатные программы просмотра PDF, DXF и DWG ниже
Анкерные точки на крыше — оборудование для обеспечения безопасности и защита от падения для металла, плитки и бетона
ПРЕДОХРАНИТЕЛЬНОЕ ОБОРУДОВАНИЕ | МЕТАЛЛИЧЕСКАЯ КРЫША | ЧЕРЕПНАЯ КРЫША | БЕТОН | ВРЕМЕННЫЙ | ДИЗАЙН
Падения с высоты двух и более метров — одна из основных причин смертей на рабочем месте в Австралии.
Если вы или ваши сотрудники не используете соответствующее оборудование для обеспечения безопасности при работе на высоте, вы можете добавить к примерно 7000 смертей от падений, которые ежегодно происходят в Австралии.
И даже если эти падения не будут смертельными, затраты на простой на рабочем месте и восстановление после травм составляют около 104 000 долларов на человека.
Возьмите на себя ответственность за безопасность всех ваших сотрудников, работающих на высоте; это моральное и юридическое требование.
Необеспечение защиты ваших рабочих системами защиты от падения и работа на высоте оборудования для обеспечения безопасности может повлечь за собой ответственность в соответствии с австралийскими правилами техники безопасности и охраны труда.
Работа на высоте
Рабочие, работающие на высоте, должны быть защищены от падений сертифицированными системами защиты от падения; это закон.
Соответствующие и надежные точки крепления на крыше являются отправной точкой для любой системы безопасности на крыше.
Но не все точки крепления крыши созданы одинаковыми, и не все точки крепления предназначены для каждой ситуации. Важно выбрать правильную точку крепления, соответствующую типу крыши и конкретному риску падения.
Оборудование для обеспечения безопасности на высоте и системы безопасности
№1.Кровельные и строительные материалы с гордостью представляют инновационный ассортимент систем защиты от падения SafetyLink, в том числе:
- Анкерные точки для бетонных, стальных и черепичных крыш
- Анкеры для поверхностного монтажа — постоянные и фиксированные
- Тяги крепежные
- Специализированное оборудование для установки анкерных точек на крыше
SafetyLink — для максимальной надежности и безопасности при работе на высоте.
Система защиты от падения, защита от падения и защита от падения
Падение с высоты может происходить очень легко; скользкие поверхности, мгновенная невнимательность, чрезмерная балансировка при переноске грузов, а также неустойчивые и незакрепленные лестницы.
Запатентованное фиксированное звено лестницыSafetyLink — идеальное решение для стабилизации лестниц и предотвращения их бокового движения.
Фиксированное звено лестницы спроектировано как постоянное приспособление, незаметно прилегающее к водостоку. Кронштейн надежно удерживает лестницу, а также обеспечивает точки крепления для дополнительной безопасности.
Кронштейн можно закрепить под черепицей или стальными кровельными панелями, а конструкция из морского алюминия с порошковым покрытием не ржавеет и не вызовет процесс коррозии с несовместимыми кровельными материалами.
Порошковое покрытие также позволяет добавить верхний слой по вашему выбору или оставить его с существующим покрытием.
Фиксированная лестница SafetyLink — ваш первый шаг к обеспечению безопасности рабочего места на высоте.
FrogLink — анкер для поверхностного монтажа для стальных крыш. Для фиксации анкера используются семь бультитовых заклепок Gesipa.
Конструкция из нержавеющей стали и пружинная конструкция, поглощающая энергию, позволяют легко поглощать удар при падении 15 кН (приблизительно 1500 кг) одного человека с разных направлений.
SafetyLink RetroLink разработан как простой в установке постоянный спусковой анкер и система защиты от падения для стальных крыш со стальными прогонами.
RetroLink обладает невероятной прочностью благодаря стальному креплению для прогонов. Доступ из-под крыши не требуется, поскольку точку крепления можно вставить в прогон через единственное отверстие в кровельном листе.
Рым-болт RetroLink изготовлен из нержавеющей стали 316, протестирован в соответствии со стандартами AS NZS 5532-2013 и рассчитан на 15 кН (нагрузка 100 кг, падающая с 2 метров) в нескольких направлениях.
RetroLink спроектирован как одиночный рабочий анкер и не требует специальных инструментов для установки.
Способность рым-болта изгибаться, как удочка, снижает нагрузку на крышу и снижает риск внезапной остановки падения на человека.
Водонепроницаемая шайба и уплотнительное кольцо обеспечивают водонепроницаемость вокруг точки крепления.
Анкерные точки для черепичной крыши
TileLink — это запатентованный анкер для крепления на стропилах, который незаметно укладывается под плитку и защищает от разнонаправленных падений.
Монтажный блок аккуратно укладывается под плитку и крепится к деревянным стропилам. Ушко, которое находится снаружи плитки, практически не видно.
Анкер TileLink имеет особую амортизирующую конструкцию для снижения ударной нагрузки на крышу и рабочего.
Конструкция из нержавеющей стали 316 соответствует стандартам AS NZS 5532-2013 (номинальное усилие до 15 кН для анкерного крепления одного человека).
Установка проста, поэтому врезки в деревянную обрешетку совершенно не нужны.
Бетонные анкерные точки
ConcreteLink — это стационарный анкер для поверхностного монтажа для бетона, предлагающий различные варианты вставок анкерного крепления.
Стандартный якорь для падения спроектирован так, чтобы поглощать энергию падения одного человека. Рым-болт из нержавеющей стали 316 имеет коническую конструкцию для плавной передачи ударных сил и минимизации нагрузки на насадку и падающего человека.
Также можно использовать рым-болт для спуска; более короткая конструкция выдерживает динамическую нагрузку без прогиба более длинного стандартного рым-болта.
Рым-болт с буртиком — вариант 3 rd , который сочетает в себе превосходную защиту от падения с низким профилем для минимального видимого нарушения профиля поверхности.
Латунный колпачок защищает вставку ConcreteLink от грязи и мусора, когда рым-болт не используется.
ConcreteLink должен быть химически закреплен, и мы можем предоставить необходимые инструменты, а также испытательное оборудование, чтобы убедиться, что анкер подходит и безопасен для использования по назначению.
Точки крепления временной крыши
TempLink 3000 обеспечивает превосходную безопасность работы на высоте для черепичных и металлических крыш.
TempLink3000 спроектирован как простой в установке временный анкер от падения для настроек, которые могут не оправдывать установку постоянных анкеров.
Легкая конструкция для удобства переноски не идет вразрез с безопасностью крыши.
Инновационная конструкция поглощает максимальное количество энергии падения, снижая ударную нагрузку на крышу и падающего человека при разнонаправленном падении.
Он соответствует AS / NZS 1891.4 и легко поглощает 15 кН.
Проектирование и установка
Серьезные травмы вызывают не только падения с прямой линии; Падения маятникового типа (из-за плохо спроектированного или установленного предохранительного оборудования) также очень опасны.
Все анкеры SafetyLink спроектированы и испытаны на нагрузку при падении в разных направлениях.
Безопасность слишком важна, чтобы идти на компромисс из-за сложных процедур установки.
Одинарный ряд отверстий для крепления упрощает установку точек крепления на крыше SafetyLink и оборудования для обеспечения безопасности по высоте, а также снижает допустимую погрешность.
Мы также знаем, насколько важно не идти на компромисс в отношении водонепроницаемости крыши. Водонепроницаемые шайбы и уплотнительные кольца гарантируют сохранение целостности кровли.
Соответствие стандартам AS / NZS (1891/5532) и правиламСтандарт AS NZS 5532-2013 охватывает производственные требования к одноточечным анкерным устройствам для работы на высоте с привязью.
Стандарт привнес столь необходимую ясность и надежность в ряд устройств для защиты от падения.
Это гарантирует, что все одноточечные анкеры соответствуют допустимым уровням нагрузки. Анкеры должны быть испытаны и доказаны, что они способны поглощать и удерживать силу в 15 кН или удар весом 100 кг, падающий с двух метров.
Этот стандарт является частью большей группы стандартов ASNZS 1891, которые охватывают системы защиты от падения.
Все точки анкерного крепления на крыше SafetyLink соответствуют стандартам AS / NZ. Мы можем предоставить подробные результаты испытаний и спецификации продукции.
Минимизируйте риск!Падения могут случиться с кем угодно, и они случаются без предупреждения. Когда вы работаете на высоте, стоит свести к минимуму риск.
ПродуктыSafetyLink обеспечивают реальную гарантию безопасности для вас и ваших сотрудников.
SafetyLink предлагает широкий спектр оборудования для обеспечения безопасности при работе на высоте, в том числе:
- Лестницы стационарные
- Горизонтальные линии жизни
- Ремни
- Инструмент для обжима и установки
- Испытательное оборудование Hydrajaws (для бетонных анкеров).
Персонал №1. Кровельные и строительные материалы могут посоветовать вам правильную установку и использование всех устройств SafetyLink.
Индивидуальное обучение / обучение подрядчика может быть завершено путем сканирования QR-кода на дисплее магазина.
SAFETYLINK СКАЧАТЬ ПРОДУКТЕсли вам нужны технические характеристики любого из продуктов или оборудования SAFETYLINK , НАЖМИТЕ на указанные ссылки.
СПРАВОЧНАЯ ИНФОРМАЦИЯ
Окончательное руководство по точкам крепления на крыше для австралийской системы безопасности на высоте
08 сен. Полное руководство по точкам крепления на крыше
Отправлено в 06:44 в точках привязки австралийской службой безопасности на высотеЗачем нужны точки крепления на крыше при работе на высоте
Работа на высоте чревата опасностью.Ежегодно в Австралии при падении с высоты погибают около 26 рабочих и получают травмы еще 7700 человек. Если вам или вашим сотрудникам необходимо работать на высоте, важно иметь правильные точки крепления на крыше, чтобы предотвратить несчастные случаи при падении.
Все работники имеют право на безопасную рабочую среду — более того, как владелец бизнеса вы можете понести уголовную ответственность, если ваши системы безопасности не соответствуют требованиям. К сожалению, выбор точки привязки не так прост, как просто найти прочный на вид якорь и прикрепить к нему шнурок.Не все точки привязки крыши созданы равными, и выбор точки привязки не является делом, к которому следует относиться легкомысленно.
Что такое точка крепления на крыше?
Анкерная точка на крыше обычно используется в тандеме с другими средствами индивидуальной защиты (СИЗ) для обеспечения безопасности на высоте, такими как ремни безопасности или системы защиты от падения со шнуром. Доступны как постоянные, так и временные точки привязки. Правильно установленная анкерная точка защитит вас или ваших сотрудников от опасности падения.
Ключевые моменты при выборе точки привязки:
- Какие силы должны выдерживать точки крепления?
- К каким типам анкерных точек можно безопасно подключать ваш шнур?
- Какие работы вы собираетесь выполнять?
Еще одно важное соображение — это то, к какой части крыши вы собираетесь прикрепить точку крепления.В Австралийской службе безопасности на высоте мы можем вам в этом помочь. Наша команда опытных технических специалистов с радостью порекомендует различные точки крепления на крыше, которые будут соответствовать требованиям безопасности и соответствия вашим требованиям.
Какие бывают типы точек крепления крыши?
Анкерные точки на крыше могут использоваться для двух основных целей или систем.
Система защиты от падения разработана для случаев, когда рабочий свободно падает в пространстве. Он буквально «задерживает» их в воздухе и предотвращает столкновение на более низком уровне.
A веревка Система доступа разработана для защиты от падения там, где обычные методы не работают — например, на высоте. Он позволяет рабочим спускаться, подниматься и перемещаться по канатам, когда они подвешены на ремне безопасности или на рабочем сиденье.
В AHSS мы продаем точки привязки для этих двух основных целей по двум разным ценам.
Наши цены на точки крепления на крыше следующие:
- 200 долларов США за анкерную точку для проектирования и установки системы защиты от падения.
- 300–350 долларов за анкерную точку для проектирования и установки системы веревочного доступа.
Как уже говорилось, точки привязки могут быть постоянными или временными, но требования к обоим одинаковы.
Управление по охране труда и здоровья (OSHA) определяет параметры безопасной точки крепления следующим образом:
«Крепления, к которым крепится индивидуальное оборудование для защиты от падения, должны выдерживать не менее 5000 фунтов (22.2 кН) на каждого прикрепленного работника, или должны быть спроектированы, установлены и использованы как часть полной индивидуальной системы защиты от падения с коэффициентом безопасности не менее двух под наблюдением квалифицированного специалиста.
T Анкерное крепление должно быть жестким и не должно иметь прогиб более 0,04 дюйма (1 мм) при приложении силы 2250 фунтов (10 кН) ».
В конечном счете, выбор наилучшей точки крепления сводится к определению того, какой тип точки крепления наиболее подходит для работы, которую вам необходимо выполнить, а также какой вес она может выдержать.
Кто делает лучшие точки крепления на крыше?
Множество различных производителей делают точки анкерного крепления на крыше, но в AHSS мы используем исключительно продукцию Sayfa Group для всех наших установок.
Это потому, что анкеры Sayfa производятся, партии проходят испытания и пронумерованы, чтобы обеспечить полную прослеживаемость от производства до установки. Они также предлагают лучшее качество, стандарты безопасности и техническую поддержку.
Все точки крепления и системы крепления Sayfa имеют класс защиты от падения (22 кН), изготовлены из нержавеющей стали и идеально подходят для персонала, работающего на высоте.
Наши любимые точки привязки Сайфа:
Крепление Sayfa 3Sixty Top Mount. Якорь для поверхностного монтажа, он может поворачиваться на 360 градусов, что облегчает доступ и перемещение для человека в упряжке. Он также обеспечивает равномерное распределение нагрузки на анкерную плиту, что делает его идеальным для более легких конструкций и настилов крыши.
Крепление Sayfa Low-Pro Steel Purlin Mount. Этот анкер обеспечивает быструю и легкую установку на металлические конструкции прогонов и подходит для стандартных, гофрированных и пролетных профилей крыши, поскольку он может быть закреплен в конструкции крыши.Его также можно использовать в качестве основных опорных точек спуска.
Если вам необходимо крепление к бетону или твердому натуральному камню, то анкер Sayfa Xplora для бетонных конструкций — лучший вариант.
Как выбрать правильную точку крепления крыши?
При выборе точки привязки следует помнить следующее:
- Стальной стержень всегда предпочтительнее.
- Древесина должна быть сертифицирована инженером.
- Анкерные болты должны проверяться профессионалом.
- Как и стяжные болты и шайбы.
- Оборудование, включая рым-болты, талрепы, бетонные опоры и зажимы для балок, может использоваться вместе с точками крепления.
- Его также следует тщательно осмотреть и оценить на несущую способность.
Очень важно обращать внимание на неподходящие точки крепления и избегать их. Следует избегать любых предметов или конструкций, не способных соответствовать требованиям OSHA по нагрузке на конструкцию.
Вы также должны подумать о том, обладают ли точки крепления энергопоглощающими свойствами, если вам нужно что-то достаточно гибкое для использования в домашнем, коммерческом и промышленном строительстве.
В Австралийской службе безопасности высоты мы можем осмотреть ваши помещения, порекомендовать и установить соответствующее оборудование для обеспечения безопасности на высоте. Чтобы организовать осмотр объекта и составить предложение, позвоните нам по телефону 1300 854 217.
Почему выбирают AHSS?
Компания Australian Height Safety Services имеет более чем 25-летний опыт работы в области безопасности на высоте и предотвращения падений. Все наши специалисты по установке имеют лицензии и имеют большой опыт работы в отрасли. Мы гарантируем соответствие всех систем защиты от падений AHSS.
Благодаря квалифицированной установке высококачественной продукции Sayfa, мы можем помочь вам выполнить и превзойти австралийские стандарты и нормы безопасности роста. Продуманный дизайн и инженерные решения, лежащие в основе точек анкерного крепления на крыше Sayfa, не имеют себе равных, и наша команда может умело установить полный ассортимент анкерных изделий для обеспечения надлежащего соблюдения требований безопасности по высоте.
Если вам нужно крепление для защиты кромок крыши, очистки водосточных желобов, обслуживания оборудования на крыше, доступа к фасаду, очистки окон или спуска на спуск, наши конкурентоспособные цены на точки крепления на крыше могут обеспечить долгосрочную поддержку.

Они упираются в лежни.




php:1321
#4: Bitrix\Main\Composite\Engine::onEpilog()
/home/bitrix/www/bitrix/modules/main/classes/general/module.php:480
#5: ExecuteModuleEventEx(array)
/home/bitrix/www/bitrix/modules/main/tools.php:3880
#6: LocalRedirect(string, string)
/home/bitrix/www/bitrix/php_interface/init.php:644
#7: CYakusHandlers::OnAfterEpilog()
/home/bitrix/www/bitrix/modules/main/classes/general/module.php:465
#8: ExecuteModuleEventEx(array)
/home/bitrix/www/bitrix/modules/main/classes/general/main.php:3487
#9: CAllMain::RunFinalActionsInternal()
/home/bitrix/www/bitrix/modules/main/lib/application.php:187
#10: Bitrix\Main\Application->terminate(integer)
/home/bitrix/www/bitrix/modules/main/lib/application.php:174
#11: Bitrix\Main\Application->end()
/home/bitrix/www/bitrix/modules/main/tools.php:3885
#12: LocalRedirect(string, string)
/home/bitrix/www/bitrix/php_interface/init.php:644
#13: CYakusHandlers::OnAfterEpilog()
/home/bitrix/www/bitrix/modules/main/classes/general/module.php:465
#14: ExecuteModuleEventEx(array)
/home/bitrix/www/bitrix/modules/main/classes/general/main.
php:3487
#15: CAllMain::RunFinalActionsInternal()
/home/bitrix/www/bitrix/modules/main/lib/application.php:187
#16: Bitrix\Main\Application->terminate(integer)
/home/bitrix/www/bitrix/modules/main/lib/application.php:174
#17: Bitrix\Main\Application->end()
/home/bitrix/www/bitrix/modules/main/tools.php:3885
#18: LocalRedirect(string, string)
/home/bitrix/www/bitrix/php_interface/init.php:644
#19: CYakusHandlers::OnAfterEpilog()
/home/bitrix/www/bitrix/modules/main/classes/general/module.php:465
#20: ExecuteModuleEventEx(array)
/home/bitrix/www/bitrix/modules/main/classes/general/main.php:3487
#21: CAllMain::RunFinalActionsInternal()
/home/bitrix/www/bitrix/modules/main/lib/application.php:187
#22: Bitrix\Main\Application->terminate(integer)
/home/bitrix/www/bitrix/modules/main/lib/application.php:174
#23: Bitrix\Main\Application->end()
/home/bitrix/www/bitrix/modules/main/tools.php:3885
#24: LocalRedirect(string, string)
/home/bitrix/www/bitrix/php_interface/init.php:644
#25: CYakusHandlers::OnAfterEpilog()
/home/bitrix/www/bitrix/modules/main/classes/general/module.
php:465
#26: ExecuteModuleEventEx(array)
/home/bitrix/www/bitrix/modules/main/classes/general/main.php:3487
#27: CAllMain::RunFinalActionsInternal()
/home/bitrix/www/bitrix/modules/main/lib/application.php:187
#28: Bitrix\Main\Application->terminate(integer)
/home/bitrix/www/bitrix/modules/main/lib/application.php:174
#29: Bitrix\Main\Application->end()
/home/bitrix/www/bitrix/modules/main/tools.php:3885
#30: LocalRedirect(string, string)
/home/bitrix/www/bitrix/php_interface/init.php:644
#31: CYakusHandlers::OnAfterEpilog()
/home/bitrix/www/bitrix/modules/main/classes/general/module.php:465
#32: ExecuteModuleEventEx(array)
/home/bitrix/www/bitrix/modules/main/classes/general/main.php:3487
#33: CAllMain::RunFinalActionsInternal()
/home/bitrix/www/bitrix/modules/main/lib/application.php:187
#34: Bitrix\Main\Application->terminate(integer)
/home/bitrix/www/bitrix/modules/main/lib/application.php:174
#35: Bitrix\Main\Application->end()
/home/bitrix/www/bitrix/modules/main/tools.
php:3885
#36: LocalRedirect(string, string)
/home/bitrix/www/bitrix/php_interface/init.php:644
#37: CYakusHandlers::OnAfterEpilog()
/home/bitrix/www/bitrix/modules/main/classes/general/module.php:465
#38: ExecuteModuleEventEx(array)
/home/bitrix/www/bitrix/modules/main/classes/general/main.php:3487
#39: CAllMain::RunFinalActionsInternal()
/home/bitrix/www/bitrix/modules/main/lib/application.php:187
#40: Bitrix\Main\Application->terminate(integer)
/home/bitrix/www/bitrix/modules/main/lib/application.php:174
#41: Bitrix\Main\Application->end()
/home/bitrix/www/bitrix/modules/main/tools.php:3885
#42: LocalRedirect(string, string)
/home/bitrix/www/bitrix/php_interface/init.php:644
#43: CYakusHandlers::OnAfterEpilog()
/home/bitrix/www/bitrix/modules/main/classes/general/module.php:465
#44: ExecuteModuleEventEx(array)
/home/bitrix/www/bitrix/modules/main/classes/general/main.php:3487
#45: CAllMain::RunFinalActionsInternal()
/home/bitrix/www/bitrix/modules/main/lib/application.
php:187
#46: Bitrix\Main\Application->terminate(integer)
/home/bitrix/www/bitrix/modules/main/lib/application.php:174
#47: Bitrix\Main\Application->end()
/home/bitrix/www/bitrix/modules/main/tools.php:3885
#48: LocalRedirect(string, string)
/home/bitrix/www/bitrix/php_interface/init.php:644
#49: CYakusHandlers::OnAfterEpilog()
/home/bitrix/www/bitrix/modules/main/classes/general/module.php:465
#50: ExecuteModuleEventEx(array)
/home/bitrix/www/bitrix/modules/main/classes/general/main.php:3487
#51: CAllMain::RunFinalActionsInternal()
/home/bitrix/www/bitrix/modules/main/lib/application.php:187
#52: Bitrix\Main\Application->terminate(integer)
/home/bitrix/www/bitrix/modules/main/lib/application.php:174
#53: Bitrix\Main\Application->end()
/home/bitrix/www/bitrix/modules/main/tools.php:3885
#54: LocalRedirect(string, string)
/home/bitrix/www/bitrix/php_interface/init.php:644
#55: CYakusHandlers::OnAfterEpilog()
/home/bitrix/www/bitrix/modules/main/classes/general/module.
php:465
#56: ExecuteModuleEventEx(array)
/home/bitrix/www/bitrix/modules/main/classes/general/main.php:3487
#57: CAllMain::RunFinalActionsInternal()
/home/bitrix/www/bitrix/modules/main/lib/application.php:187
#58: Bitrix\Main\Application->terminate(integer)
/home/bitrix/www/bitrix/modules/main/lib/application.php:174
#59: Bitrix\Main\Application->end()
/home/bitrix/www/bitrix/modules/main/tools.php:3885
#60: LocalRedirect(string, string)
/home/bitrix/www/bitrix/php_interface/init.php:644
#61: CYakusHandlers::OnAfterEpilog()
/home/bitrix/www/bitrix/modules/main/classes/general/module.php:465
#62: ExecuteModuleEventEx(array)
/home/bitrix/www/bitrix/modules/main/classes/general/main.php:3487
#63: CAllMain::RunFinalActionsInternal()
/home/bitrix/www/bitrix/modules/main/lib/application.php:187
#64: Bitrix\Main\Application->terminate(integer)
/home/bitrix/www/bitrix/modules/main/lib/application.php:174
#65: Bitrix\Main\Application->end()
/home/bitrix/www/bitrix/modules/main/tools.
php:3885
#66: LocalRedirect(string, string)
/home/bitrix/www/bitrix/php_interface/init.php:644
#67: CYakusHandlers::OnAfterEpilog()
/home/bitrix/www/bitrix/modules/main/classes/general/module.php:465
#68: ExecuteModuleEventEx(array)
/home/bitrix/www/bitrix/modules/main/classes/general/main.php:3487
#69: CAllMain::RunFinalActionsInternal()
/home/bitrix/www/bitrix/modules/main/lib/application.php:187
#70: Bitrix\Main\Application->terminate(integer)
/home/bitrix/www/bitrix/modules/main/lib/application.php:174
#71: Bitrix\Main\Application->end()
/home/bitrix/www/bitrix/modules/main/tools.php:3885
#72: LocalRedirect(string, string)
/home/bitrix/www/bitrix/php_interface/init.php:644
#73: CYakusHandlers::OnAfterEpilog()
/home/bitrix/www/bitrix/modules/main/classes/general/module.php:465
#74: ExecuteModuleEventEx(array)
/home/bitrix/www/bitrix/modules/main/classes/general/main.php:3487
#75: CAllMain::RunFinalActionsInternal()
/home/bitrix/www/bitrix/modules/main/lib/application.
php:187
#76: Bitrix\Main\Application->terminate(integer)
/home/bitrix/www/bitrix/modules/main/lib/application.php:174
#77: Bitrix\Main\Application->end()
/home/bitrix/www/bitrix/modules/main/tools.php:3885
#78: LocalRedirect(string, string)
/home/bitrix/www/bitrix/php_interface/init.php:644
#79: CYakusHandlers::OnAfterEpilog()
/home/bitrix/www/bitrix/modules/main/classes/general/module.php:465
#80: ExecuteModuleEventEx(array)
/home/bitrix/www/bitrix/modules/main/classes/general/main.php:3487
#81: CAllMain::RunFinalActionsInternal()
/home/bitrix/www/bitrix/modules/main/lib/application.php:187
#82: Bitrix\Main\Application->terminate(integer)
/home/bitrix/www/bitrix/modules/main/lib/application.php:174
#83: Bitrix\Main\Application->end()
/home/bitrix/www/bitrix/modules/main/tools.php:3885
#84: LocalRedirect(string, string)
/home/bitrix/www/bitrix/php_interface/init.php:644
#85: CYakusHandlers::OnAfterEpilog()
/home/bitrix/www/bitrix/modules/main/classes/general/module.
php:465
#86: ExecuteModuleEventEx(array)
/home/bitrix/www/bitrix/modules/main/classes/general/main.php:3487
#87: CAllMain::RunFinalActionsInternal()
/home/bitrix/www/bitrix/modules/main/lib/application.php:187
#88: Bitrix\Main\Application->terminate(integer)
/home/bitrix/www/bitrix/modules/main/lib/application.php:174
#89: Bitrix\Main\Application->end()
/home/bitrix/www/bitrix/modules/main/tools.php:3885
#90: LocalRedirect(string, string)
/home/bitrix/www/bitrix/php_interface/init.php:644
#91: CYakusHandlers::OnAfterEpilog()
/home/bitrix/www/bitrix/modules/main/classes/general/module.php:465
#92: ExecuteModuleEventEx(array)
/home/bitrix/www/bitrix/modules/main/classes/general/main.php:3487
#93: CAllMain::RunFinalActionsInternal()
/home/bitrix/www/bitrix/modules/main/lib/application.php:187
#94: Bitrix\Main\Application->terminate(integer)
/home/bitrix/www/bitrix/modules/main/lib/application.php:174
#95: Bitrix\Main\Application->end()
/home/bitrix/www/bitrix/modules/main/tools.
php:3885
#96: LocalRedirect(string, string)
/home/bitrix/www/bitrix/php_interface/init.php:644
#97: CYakusHandlers::OnAfterEpilog()
/home/bitrix/www/bitrix/modules/main/classes/general/module.php:465
#98: ExecuteModuleEventEx(array)
/home/bitrix/www/bitrix/modules/main/classes/general/main.php:3487
#99: CAllMain::RunFinalActionsInternal()
/home/bitrix/www/bitrix/modules/main/lib/application.php:187
#100: Bitrix\Main\Application->terminate(integer)
/home/bitrix/www/bitrix/modules/main/lib/application.php:174
#101: Bitrix\Main\Application->end()
/home/bitrix/www/bitrix/modules/main/tools.php:3885
#102: LocalRedirect(string, string)
/home/bitrix/www/bitrix/php_interface/init.php:644
#103: CYakusHandlers::OnAfterEpilog()
/home/bitrix/www/bitrix/modules/main/classes/general/module.php:465
#104: ExecuteModuleEventEx(array)
/home/bitrix/www/bitrix/modules/main/classes/general/main.php:3487
#105: CAllMain::RunFinalActionsInternal()
/home/bitrix/www/bitrix/modules/main/lib/application.
php:187
#106: Bitrix\Main\Application->terminate(integer)
/home/bitrix/www/bitrix/modules/main/lib/application.php:174
#107: Bitrix\Main\Application->end()
/home/bitrix/www/bitrix/modules/main/tools.php:3885
#108: LocalRedirect(string, string)
/home/bitrix/www/bitrix/php_interface/init.php:644
#109: CYakusHandlers::OnAfterEpilog()
/home/bitrix/www/bitrix/modules/main/classes/general/module.php:465
#110: ExecuteModuleEventEx(array)
/home/bitrix/www/bitrix/modules/main/classes/general/main.php:3487
#111: CAllMain::RunFinalActionsInternal()
/home/bitrix/www/bitrix/modules/main/lib/application.php:187
#112: Bitrix\Main\Application->terminate(integer)
/home/bitrix/www/bitrix/modules/main/lib/application.php:174
#113: Bitrix\Main\Application->end()
/home/bitrix/www/bitrix/modules/main/tools.php:3885
#114: LocalRedirect(string, string)
/home/bitrix/www/bitrix/php_interface/init.php:644
#115: CYakusHandlers::OnAfterEpilog()
/home/bitrix/www/bitrix/modules/main/classes/general/module.
php:465
#116: ExecuteModuleEventEx(array)
/home/bitrix/www/bitrix/modules/main/classes/general/main.php:3487
#117: CAllMain::RunFinalActionsInternal()
/home/bitrix/www/bitrix/modules/main/lib/application.php:187
#118: Bitrix\Main\Application->terminate(integer)
/home/bitrix/www/bitrix/modules/main/lib/application.php:174
#119: Bitrix\Main\Application->end()
/home/bitrix/www/bitrix/modules/main/tools.php:3885
#120: LocalRedirect(string, string)
/home/bitrix/www/bitrix/php_interface/init.php:644
#121: CYakusHandlers::OnAfterEpilog()
/home/bitrix/www/bitrix/modules/main/classes/general/module.php:465
#122: ExecuteModuleEventEx(array)
/home/bitrix/www/bitrix/modules/main/classes/general/main.php:3487
#123: CAllMain::RunFinalActionsInternal()
/home/bitrix/www/bitrix/modules/main/lib/application.php:187
#124: Bitrix\Main\Application->terminate(integer)
/home/bitrix/www/bitrix/modules/main/lib/application.php:174
#125: Bitrix\Main\Application->end()
/home/bitrix/www/bitrix/modules/main/tools.
php:3885
#126: LocalRedirect(string, string)
/home/bitrix/www/bitrix/php_interface/init.php:644
#127: CYakusHandlers::OnAfterEpilog()
/home/bitrix/www/bitrix/modules/main/classes/general/module.php:465
#128: ExecuteModuleEventEx(array)
/home/bitrix/www/bitrix/modules/main/classes/general/main.php:3487
#129: CAllMain::RunFinalActionsInternal()
/home/bitrix/www/bitrix/modules/main/lib/application.php:187
#130: Bitrix\Main\Application->terminate(integer)
/home/bitrix/www/bitrix/modules/main/lib/application.php:174
#131: Bitrix\Main\Application->end()
/home/bitrix/www/bitrix/modules/main/tools.php:3885
#132: LocalRedirect(string, string)
/home/bitrix/www/bitrix/php_interface/init.php:644
#133: CYakusHandlers::OnAfterEpilog()
/home/bitrix/www/bitrix/modules/main/classes/general/module.php:465
#134: ExecuteModuleEventEx(array)
/home/bitrix/www/bitrix/modules/main/classes/general/main.php:3487
#135: CAllMain::RunFinalActionsInternal()
/home/bitrix/www/bitrix/modules/main/lib/application.
php:187
#136: Bitrix\Main\Application->terminate(integer)
/home/bitrix/www/bitrix/modules/main/lib/application.php:174
#137: Bitrix\Main\Application->end()
/home/bitrix/www/bitrix/modules/main/tools.php:3885
#138: LocalRedirect(string, string)
/home/bitrix/www/bitrix/php_interface/init.php:644
#139: CYakusHandlers::OnAfterEpilog()
/home/bitrix/www/bitrix/modules/main/classes/general/module.php:465
#140: ExecuteModuleEventEx(array)
/home/bitrix/www/bitrix/modules/main/classes/general/main.php:3487
#141: CAllMain::RunFinalActionsInternal()
/home/bitrix/www/bitrix/modules/main/lib/application.php:187
#142: Bitrix\Main\Application->terminate(integer)
/home/bitrix/www/bitrix/modules/main/lib/application.php:174
#143: Bitrix\Main\Application->end()
/home/bitrix/www/bitrix/modules/main/tools.php:3885
#144: LocalRedirect(string, string)
/home/bitrix/www/bitrix/php_interface/init.php:644
#145: CYakusHandlers::OnAfterEpilog()
/home/bitrix/www/bitrix/modules/main/classes/general/module.
php:465
#146: ExecuteModuleEventEx(array)
/home/bitrix/www/bitrix/modules/main/classes/general/main.php:3487
#147: CAllMain::RunFinalActionsInternal()
/home/bitrix/www/bitrix/modules/main/lib/application.php:187
#148: Bitrix\Main\Application->terminate(integer)
/home/bitrix/www/bitrix/modules/main/lib/application.php:174
#149: Bitrix\Main\Application->end()
/home/bitrix/www/bitrix/modules/main/tools.php:3885
#150: LocalRedirect(string, string)
/home/bitrix/www/bitrix/php_interface/init.php:644
#151: CYakusHandlers::OnAfterEpilog()
/home/bitrix/www/bitrix/modules/main/classes/general/module.php:465
#152: ExecuteModuleEventEx(array)
/home/bitrix/www/bitrix/modules/main/classes/general/main.php:3487
#153: CAllMain::RunFinalActionsInternal()
/home/bitrix/www/bitrix/modules/main/lib/application.php:187
#154: Bitrix\Main\Application->terminate(integer)
/home/bitrix/www/bitrix/modules/main/lib/application.php:174
#155: Bitrix\Main\Application->end()
/home/bitrix/www/bitrix/modules/main/tools.
php:3885
#156: LocalRedirect(string, string)
/home/bitrix/www/bitrix/php_interface/init.php:644
#157: CYakusHandlers::OnAfterEpilog()
/home/bitrix/www/bitrix/modules/main/classes/general/module.php:465
#158: ExecuteModuleEventEx(array)
/home/bitrix/www/bitrix/modules/main/classes/general/main.php:3487
#159: CAllMain::RunFinalActionsInternal()
/home/bitrix/www/bitrix/modules/main/lib/application.php:187
#160: Bitrix\Main\Application->terminate(integer)
/home/bitrix/www/bitrix/modules/main/lib/application.php:174
#161: Bitrix\Main\Application->end()
/home/bitrix/www/bitrix/modules/main/tools.php:3885
#162: LocalRedirect(string, string)
/home/bitrix/www/bitrix/php_interface/init.php:644
#163: CYakusHandlers::OnAfterEpilog()
/home/bitrix/www/bitrix/modules/main/classes/general/module.php:465
#164: ExecuteModuleEventEx(array)
/home/bitrix/www/bitrix/modules/main/classes/general/main.php:3487
#165: CAllMain::RunFinalActionsInternal()
/home/bitrix/www/bitrix/modules/main/lib/application.
php:187
#166: Bitrix\Main\Application->terminate(integer)
/home/bitrix/www/bitrix/modules/main/lib/application.php:174
#167: Bitrix\Main\Application->end()
/home/bitrix/www/bitrix/modules/main/tools.php:3885
#168: LocalRedirect(string, string)
/home/bitrix/www/bitrix/php_interface/init.php:644
#169: CYakusHandlers::OnAfterEpilog()
/home/bitrix/www/bitrix/modules/main/classes/general/module.php:465
#170: ExecuteModuleEventEx(array)
/home/bitrix/www/bitrix/modules/main/classes/general/main.php:3487
#171: CAllMain::RunFinalActionsInternal()
/home/bitrix/www/bitrix/modules/main/lib/application.php:187
#172: Bitrix\Main\Application->terminate(integer)
/home/bitrix/www/bitrix/modules/main/lib/application.php:174
#173: Bitrix\Main\Application->end()
/home/bitrix/www/bitrix/modules/main/tools.php:3885
#174: LocalRedirect(string, string)
/home/bitrix/www/bitrix/php_interface/init.php:644
#175: CYakusHandlers::OnAfterEpilog()
/home/bitrix/www/bitrix/modules/main/classes/general/module.
php:465
#176: ExecuteModuleEventEx(array)
/home/bitrix/www/bitrix/modules/main/classes/general/main.php:3487
#177: CAllMain::RunFinalActionsInternal()
/home/bitrix/www/bitrix/modules/main/lib/application.php:187
#178: Bitrix\Main\Application->terminate(integer)
/home/bitrix/www/bitrix/modules/main/lib/application.php:174
#179: Bitrix\Main\Application->end()
/home/bitrix/www/bitrix/modules/main/tools.php:3885
#180: LocalRedirect(string, string)
/home/bitrix/www/bitrix/php_interface/init.php:644
#181: CYakusHandlers::OnAfterEpilog()
/home/bitrix/www/bitrix/modules/main/classes/general/module.php:465
#182: ExecuteModuleEventEx(array)
/home/bitrix/www/bitrix/modules/main/classes/general/main.php:3487
#183: CAllMain::RunFinalActionsInternal()
/home/bitrix/www/bitrix/modules/main/lib/application.php:187
#184: Bitrix\Main\Application->terminate(integer)
/home/bitrix/www/bitrix/modules/main/lib/application.php:174
#185: Bitrix\Main\Application->end()
/home/bitrix/www/bitrix/modules/main/tools.
php:3885
#186: LocalRedirect(string, string)
/home/bitrix/www/bitrix/php_interface/init.php:644
#187: CYakusHandlers::OnAfterEpilog()
/home/bitrix/www/bitrix/modules/main/classes/general/module.php:465
#188: ExecuteModuleEventEx(array)
/home/bitrix/www/bitrix/modules/main/classes/general/main.php:3487
#189: CAllMain::RunFinalActionsInternal()
/home/bitrix/www/bitrix/modules/main/lib/application.php:187
#190: Bitrix\Main\Application->terminate(integer)
/home/bitrix/www/bitrix/modules/main/lib/application.php:174
#191: Bitrix\Main\Application->end()
/home/bitrix/www/bitrix/modules/main/tools.php:3885
#192: LocalRedirect(string, string)
/home/bitrix/www/bitrix/php_interface/init.php:644
#193: CYakusHandlers::OnAfterEpilog()
/home/bitrix/www/bitrix/modules/main/classes/general/module.php:465
#194: ExecuteModuleEventEx(array)
/home/bitrix/www/bitrix/modules/main/classes/general/main.php:3487
#195: CAllMain::RunFinalActionsInternal()
/home/bitrix/www/bitrix/modules/main/lib/application.
php:187
#196: Bitrix\Main\Application->terminate(integer)
/home/bitrix/www/bitrix/modules/main/lib/application.php:174
#197: Bitrix\Main\Application->end()
/home/bitrix/www/bitrix/modules/main/tools.php:3885
#198: LocalRedirect(string, string)
/home/bitrix/www/bitrix/php_interface/init.php:644
#199: CYakusHandlers::OnAfterEpilog()
/home/bitrix/www/bitrix/modules/main/classes/general/module.php:465
#200: ExecuteModuleEventEx(array)
/home/bitrix/www/bitrix/modules/main/classes/general/main.php:3487
#201: CAllMain::RunFinalActionsInternal()
/home/bitrix/www/bitrix/modules/main/lib/application.php:187
#202: Bitrix\Main\Application->terminate(integer)
/home/bitrix/www/bitrix/modules/main/lib/application.php:174
#203: Bitrix\Main\Application->end()
/home/bitrix/www/bitrix/modules/main/tools.php:3885
#204: LocalRedirect(string, string)
/home/bitrix/www/bitrix/php_interface/init.php:644
#205: CYakusHandlers::OnAfterEpilog()
/home/bitrix/www/bitrix/modules/main/classes/general/module.
php:465
#206: ExecuteModuleEventEx(array)
/home/bitrix/www/bitrix/modules/main/classes/general/main.php:3487
#207: CAllMain::RunFinalActionsInternal()
/home/bitrix/www/bitrix/modules/main/lib/application.php:187
#208: Bitrix\Main\Application->terminate(integer)
/home/bitrix/www/bitrix/modules/main/lib/application.php:174
#209: Bitrix\Main\Application->end()
/home/bitrix/www/bitrix/modules/main/tools.php:3885
#210: LocalRedirect(string, string)
/home/bitrix/www/bitrix/php_interface/init.php:644
#211: CYakusHandlers::OnAfterEpilog()
/home/bitrix/www/bitrix/modules/main/classes/general/module.php:465
#212: ExecuteModuleEventEx(array)
/home/bitrix/www/bitrix/modules/main/classes/general/main.php:3487
#213: CAllMain::RunFinalActionsInternal()
/home/bitrix/www/bitrix/modules/main/lib/application.php:187
#214: Bitrix\Main\Application->terminate(integer)
/home/bitrix/www/bitrix/modules/main/lib/application.php:174
#215: Bitrix\Main\Application->end()
/home/bitrix/www/bitrix/modules/main/tools.
php:3885
#216: LocalRedirect(string, string)
/home/bitrix/www/bitrix/php_interface/init.php:644
#217: CYakusHandlers::OnAfterEpilog()
/home/bitrix/www/bitrix/modules/main/classes/general/module.php:465
#218: ExecuteModuleEventEx(array)
/home/bitrix/www/bitrix/modules/main/classes/general/main.php:3487
#219: CAllMain::RunFinalActionsInternal()
/home/bitrix/www/bitrix/modules/main/lib/application.php:187
#220: Bitrix\Main\Application->terminate(integer)
/home/bitrix/www/bitrix/modules/main/lib/application.php:174
#221: Bitrix\Main\Application->end()
/home/bitrix/www/bitrix/modules/main/tools.php:3885
#222: LocalRedirect(string, string)
/home/bitrix/www/bitrix/php_interface/init.php:644
#223: CYakusHandlers::OnAfterEpilog()
/home/bitrix/www/bitrix/modules/main/classes/general/module.php:465
#224: ExecuteModuleEventEx(array)
/home/bitrix/www/bitrix/modules/main/classes/general/main.php:3487
#225: CAllMain::RunFinalActionsInternal()
/home/bitrix/www/bitrix/modules/main/lib/application.
php:187
#226: Bitrix\Main\Application->terminate(integer)
/home/bitrix/www/bitrix/modules/main/lib/application.php:174
#227: Bitrix\Main\Application->end()
/home/bitrix/www/bitrix/modules/main/tools.php:3885
#228: LocalRedirect(string, string)
/home/bitrix/www/bitrix/php_interface/init.php:644
#229: CYakusHandlers::OnAfterEpilog()
/home/bitrix/www/bitrix/modules/main/classes/general/module.php:465
#230: ExecuteModuleEventEx(array)
/home/bitrix/www/bitrix/modules/main/classes/general/main.php:3487
#231: CAllMain::RunFinalActionsInternal()
/home/bitrix/www/bitrix/modules/main/lib/application.php:187
#232: Bitrix\Main\Application->terminate(integer)
/home/bitrix/www/bitrix/modules/main/lib/application.php:174
#233: Bitrix\Main\Application->end()
/home/bitrix/www/bitrix/modules/main/tools.php:3885
#234: LocalRedirect(string, string)
/home/bitrix/www/bitrix/php_interface/init.php:644
#235: CYakusHandlers::OnAfterEpilog()
/home/bitrix/www/bitrix/modules/main/classes/general/module.
php:3
#246: require_once(string)
/home/bitrix/www/bitrix/footer.php:4
#247: require(string)
/home/bitrix/www/404.php:53
#248: require(string)
/home/bitrix/www/bitrix/modules/iblock/lib/component/tools.php:66
#249: Bitrix\Iblock\Component\Tools::process404(string, boolean, boolean, boolean, string)
/home/bitrix/www/bitrix/components/bitrix/news/component.php:145
#250: include(string)
/home/bitrix/www/bitrix/modules/main/classes/general/component.php:605
#251: CBitrixComponent->__includeComponent()
/home/bitrix/www/bitrix/modules/main/classes/general/component.php:680
#252: CBitrixComponent->includeComponent(string, array, boolean, boolean)
/home/bitrix/www/bitrix/modules/main/classes/general/main.php:1039
#253: CAllMain->IncludeComponent(string, string, array, boolean)
/home/bitrix/www/articles/index.php:133
#254: include_once(string)
/home/bitrix/www/bitrix/modules/main/include/urlrewrite.php:159
#255: include_once(string)
/home/bitrix/www/bitrix/urlrewrite.php:2