каким может быть размер у плит для строительства стен дома, в том числе СИП, сэндвич, железобетонных
Для строительства домов можно использовать не только блочный материал, но и стеновые панели.
Это сырье подойдет тем, кто мечтает возвести дом за короткие сроки, так как для установки некоторых видов панелей понадобится около месяца, хотя все зависит от размеров здания.
На первых этапах строительства обязательно проводят расчеты количества панелей, а вместе с тем и выясняют, какого размера необходимы плиты для коробки.
Содержание
- 1 Что означает понятие габаритов?
- 2 Какие существуют?
- 3 Почему важно правильно подобрать для стен?
- 4 Заключение
Что означает понятие габаритов?
Перед тем, как построить стены помещения из панелей, важно выбрать материал из изготовления.
На сегодня их существует несколько:
- СИП;
- сэндвич;
- деревянные;
- арболитовые;
- керамзитобетонные;
- железобетонные.

СИП-панели выпускаются в стандартных и нестандартных размерах, как и любые другие плиты для строительства. При этом, если владельцу будущего дома необходимо сделать плиту под заказ, он может предоставить свои размеры и производитель выполнит изделие по нужным габаритам.
Стоит учесть, что плиты, сделанные на заказ по нужным размерам, обойдутся в несколько раз дороже.
Под понятием «размеры стеновых панелей» понимают показатели:
- длины;
- ширины;
- толщины плиты, которая используется для возведения стен.
Разберем особенности размеров для каждого вида плит отдельно.
- СИП-панели. Размеры схожи с габаритами деревянных панелей, но толщина изделия будет варьироваться. Это зависит от наполнителя. В СИП в качестве прослойки выступает пенополистирол, в сэндвич панелях в виде наполнителя может быть минеральная вата, пенополистирол, пенопласт или пенополиизоцианурат.
- Арболитовые и керамзитобетонные. Панели изготавливают из стружечного материала, а керамзитобетонные, соответственно, из керамзита и бетона.
Это сырье устарело на сегодняшний день, найти в продаже его сложно, но некоторые используют керамзитобетонные плиты для строительства хозяйственных зданий, садовых домиков.Особенность таких плит в том, что в них нет проема под окно или дверь, поэтому приходится использовать дополнительно другие материалы.
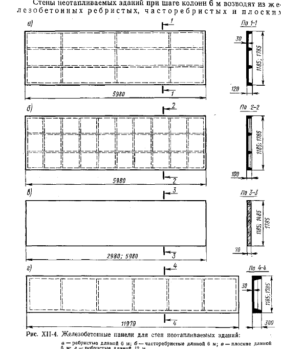
- Железобетонные плиты имеют очень большой вес и размер, поэтому они поставляются на строительный объект огромной транспортной техникой, а для разгрузки и установки требуется работа автокрана. Такой тип плит изготавливается как с проемами под окна и двери, так и в глухом исполнении.
Какие существуют?
В зависимости от материала изготовления панели, ее размер будет меняться. Некоторые виды плит, например, сэндвич или СИП, часто продаются квадратными метрами, но все же большинство материала имеет стабильные габариты.
| Тип панели | Длина, мм | Ширина, мм | Толщина, мм |
| СИП | 2500 2800 | 1250 | 68 118 124 168 174 218 224 |
| Сэндвич | От 2000 до 13500 | 1000 1200 | 50 80 100 120 150 200 250 |
| Керамзитобетонные | От 3000 до 7200 | От 3000 до 8100 | 250 300 350 |
| Арболитовые | 2600 2800 | 600 800 1000 | 200 300 400 |
| Железобетонные | 1200 2400 3600 4800 5400 6000 7200 12000 | 600 900 1200 1500 1800 2100 2800 3000 3300 3600 4200 | 200 225 250 275 300 325 350 375 400 |
Из перечисленных размеров можно сделать вывод, что самыми крупными являются железобетонные панели.
Это связано с тем, что большие по габаритам плиты используют для строительства многоэтажных домов. Там нет смысла укорачивать панель, поэтому перед поставкой на объект заказчик указывает размеры стен, которые ему необходимы.
Производитель изготавливает щиты согласно таким размерам, часто по ширине стены, которая захватывает сразу несколько квартир.
Отдельно можно выделить нестандартные размеры стеновых панелей. Например, в модельном ряду сэндвич-панелей можно встретить узкие плиты или те, которые не соответствуют традиционным параметрам ширины 1000-1200 мм. Такие щиты как раз подходят для особых случаев строительства.
Почему важно правильно подобрать для стен?
Подбор правильного размера панельного материала для возведения стен любого типа здания очень важен:
- Если неправильно выбрать толщину панели, то теплоизоляционные свойства стен будут нарушены.
Например, для строительства жилого дома в северном регионе нужно выбирать такой показатель толщины, который будет способствовать созданию комфортной температуры внутри помещения.

Если же этого не сделать, то придется переплачивать за отопление каждый раз, когда стены не будут сохранять тепловую энергию внутри помещения.
- Подбор нужной длины и ширины стеновых панелей влияет на количество остатков и обрезков. Это касается стеновых плит СИП или сэндвич, которые необходимо обрезать по факту в процессе строительства.
Например, если неправильно рассчитать длину и ширину щита, то строителям придется потратить массу времени на распил, подгонку панели под нужные размеры, не считая ее установку. Поэтому еще на этапе проектирования нужно определиться, каких габаритов будут эти щиты.
- От размеров панели зависит ее вес. Если основание для дома будет мелкозаглубленным, то нужны такие щиты, которые не будут оказывать чрезмерного давления на фундамент. При подборе же слишком крупных плит произойдет давление на основание, фундамент просядет и со временем здание придет в неисправность.
Знание размеров дает возможность сразу определиться, в каком направлении будут монтированы плиты.
Это касается сэндвич-панелей и СИП, которые можно устанавливать, как в вертикальном положении, так в горизонтальном.
Зная габариты заранее, можно грамотно рассчитать расход и схему монтажа данного строительного материала. Также будет проще самостоятельно вычислить общую стоимость строительства, если размеры будут известны заранее.
Заключение
Габариты стеновых панелей зависят от материала их изготовления, так как каждое сырье имеет свою толщину. Также показатели зависят от предназначения плит – для частного или многоэтажного строительства.
Все размеры щитов указаны на упаковке или в документации завода-производителя. Знание габаритов заранее позволяет уберечь владельца от возможных ошибок и просчетов.
Размер балкона в панельном доме: ширина, длина и высота
Все уже привыкли к тому, что балкон и лоджия являются прекрасным дополнением к жилой площади. На что же влияют размеры балкона в панельном доме, относится ли он официально к жилой площади квартиры, и кто обязан выполнять ремонт балконов и лоджий – ряд вопросов, часто возникающий у владельцев квартир при выполнении работ с приквартирным пространством.
Содержание
- Отличия между лоджией и балконом
- Входит ли площадь лоджии или балкона в жилую площадь?
- Кто отвечает за ремонт и перепланировку балконов
- Типовые размеры балконов и лоджий
- Виды лоджий и балконов
- Ремонт балкона
Отличия между лоджией и балконом
Плита лоджии – продолжение пола комнаты, а три стороны закрыты капитальными стенамиЛоджия в качестве основания имеет плиту, которая является продолжением пола комнаты, и три стены, являющиеся продолжением стен дома. Верхняя несущая плита служит крышей лоджии, парапет выполнен из бетонной плиты.
У лоджии три стороны закрыты капитальными плитами, и только фасадная часть открыта. Она может выдерживать значительные весовые нагрузки. Если на лоджию провести центральное отопление (для этого необходимо получить разрешение от местных властей), она будет считаться жилой площадью.
Балкон крепится на консолях и имеет всего одну общую стену со зданиемПри строительстве лоджии применяют пустотелые плиты перекрытий размером 1200х5800 мм.
Балкон выступает за несущую стену здания, чаще всего крепится на консолях, имеет одну общую стену со зданием, три стороны открыты. Если даже на нем нет парапета, но есть площадка в виде выступающей плиты, такое строение также считается балконом.
На балкон проводить центральное отопление не разрешается, он не выдерживает значительные весовые нагрузки. Бывали случаи, когда плиты, подверженные значительным нагрузкам в 9-этажных домах, обрывались.
Для строительства балконов используют плиту 800 х 3275 мм.
Входит ли площадь лоджии или балкона в жилую площадь?
Часто возникает вопрос, входит ли площадь балкона или лоджии в жилое пространство, начисляется ли плата за отопление на дополнительные квадратные метры и кто должен заниматься ремонтом этих помещений.
Общая площадь квартиры рассчитывается как сумма площадей всех комнат и дополнительных помещений, находящихся внутри квартиры, официально зарегистрированных пристроек.
Поэтому общая площадь считается с понижающим коэффициентом – для балконов равным 0,3, для лоджий – 0,5. Иногда агенты по недвижимости, чтобы привлечь внимание покупателей, озвучивают жилую площадь вместе с площадью балкона.
Если площадь лоджии официально присоединена к квартире, тогда она входит в общую площадь и включена в оплату за отопление и квартплату.
При совершении сделок купли-продажи не нужно верить на слово продавцам, а стоит внимательно изучать соответствующую документацию на жилье.
Кто отвечает за ремонт и перепланировку балконов
Согласно действующему законодательству, к общему домовому имуществу относятся все несущие конструкции (стены, потолок) и инженерные коммуникации, а все, что находится между стен, принадлежит хозяину, то есть является его индивидуальной собственностью.
В документы на право собственности должны быть занесены все пристройки и дополнительные, вспомогательные помещения, которые примыкают к площади жилья, иначе может дойти до судебных тяжб с соседями и ЖКХ за не оформленные должным образом в собственность пристройки.
По Жилищному Кодексу капитальный и текущий ремонт аварийных балконов должен осуществляться представителями жилищно-коммунальных хозяйств. Проведение ремонтных работ выполняется на основании составленного акта осмотра и письменного согласия 2/3 собственников жилья. Возможен вариант самостоятельного проведения ремонтных работ с сохранением всех чеков и сопутствующих документов, а потом можно потребовать возмещения потраченной суммы.
Типовые размеры балконов и лоджий
Согласно пункту 3.2 главы 2.08.01-89 СНиП, размеры балконов в 5- и 9-этажном панельном и кирпичном домах отличаются в зависимости от климатической зоны.
| Климатическая зона | Ширина балкона | Примечание |
|---|---|---|
| 1Б, 1Г, температура зимой от -14 до -28, летом до + 20 градусов | 600 мм | Крайние районы севера |
| 1, 2 | 900 мм | Ширина рассчитана с учетом возможности поставить стул на балконе |
| 3, 4 | 1200 мм | На такой ширине есть возможность оборудовать спальное место.![]() |
Типовые размеры
| Тип здания | Длина | Ширина | Высота перил |
|---|---|---|---|
| Блочные дома 12-16 этажей | 5640 мм | 750 мм | 1200 мм, при общей высоте помещения 2630 мм |
| Панельные дома до 9 этажей | Панельные дома до 9 этажей | 700 мм | 1200 мм, при общей высоте помещения 2632 мм |
| Длинные лоджии | 6000 мм | 1200 мм | Парапет 1000 мм |
| Обычные лоджии | 3000 мм | 1200 мм | Парапет 1000 мм |
| Брежневки | 2400 мм | 650-800 мм | 1000 мм |
| Хрущевки | 2800-3100 мм | 650-800 мм | 1000 мм |
Согласно технике безопасности и правил пожарной безопасности, высота парапета не может быть ниже 1000 мм.
Виды лоджий и балконов
Закругленный вариантСуществует множество видов лоджий, отличающихся своими геометрическими очертаниями: прямоугольные, закругленные, угловые, боковые.
В нестандартных зданиях типа П-44, лоджия может быть открытой с трех сторон.
Ремонт балкона
Многоэтажные дома выше 9 этажей возводятся как из кирпича, так и из панелей. При ремонте балкона в кирпичном и панельном доме имеются свои особенности. Рассмотрим особенности ремонтных работ в зависимости от этажности и материала, из которого построен дом.
Рассмотрим вариант, когда плита и обрешетка требуют серьезного ремонта.
Этапы выполнения работ:
- Производим ремонт плиты. Убираем весь мусор, расширяем все трещины в плите, чтобы добраться до арматуры. Зачищаем арматуру от ржавчины и покрываем ее антикоррозийным составом. Затем смачиваем трещины, предварительно зачистив их края, до тех пор, пока дойдем до крепкого слоя. Заливаем трещины бетоном с добавлением в смесь клея для плитки – раствор будет крепче держаться.
Выравниваем поверхность плиты. Иногда плита находится в таком состоянии, что требуется замена или усиление арматуры, тогда укладываем арматурную сетку, делаем опалубку и заливаем стяжку. - Производим ремонт перил. В идеале старые перила срезаются и устанавливаются новые. Это может быть простая металлическая или с красивыми коваными элементами конструкция. Как вариант, можно установить балконную раму от пола до потолка, если такое решение позволительно с точки зрения не превышения допустимой нагрузки на плиту.
- На первом этаже, оформив необходимые разрешения, можно обустроить выход на улицу через балкон. Для этого к плите подводятся ступеньки, со стороны ступенек устанавливается балконная дверь, а на остальные стороны устанавливаются металлопластиковые оконные конструкции от пола до потолка.
- На этажах выше первого балконная рама устанавливается или от перил или пола.
- Балкон утепляется, проводится укладка пола, отделка потолка и стен.
Вполне можно рассчитывать на возмещение суммы, потраченной на ремонт плиты. Работы по отделке являются личным желанием владельца, не являются обязательными, поэтому сумму, потраченную на отделочные работы, вряд ли получится возместить через ЖКХ полностью.
Расчет перекрытия — Портал гражданского строительства
ВВЕДЕНИЕ
Перекрытие — это конструктивный элемент, который используется для поддержки потолков и полов. Он сделан из бетона, и для его поддержки предусмотрена арматура. Его толщина составляет несколько дюймов, и он опирается на балки и колонны. Подсчитано, что бетонная плита служит от 30 до 100 лет, если она построена из бетона и стали хорошего качества. Обычно для жилых целей используется М20.
Существует два типа плит – односторонняя плита и двусторонняя плита. Двухсторонние плиты поддерживаются с четырех сторон, а односторонние плиты поддерживаются с двух противоположных сторон.
Двухсторонние плиты несут нагрузку в двух направлениях, поэтому армирование предусмотрено в обоих направлениях. Принимая во внимание, что в односторонней плите арматура предоставляется в одном направлении, поскольку она несет нагрузку в одном направлении. В односторонней плите отношение более длинного пролета к меньшему больше или равно 2, в то время как в двусторонней плите отношение более длинного пролета к меньшему меньше 2.
Здесь в этой задаче сначала показан план дома, затем панели перекрытия изображены в соответствии с планом дома. План, используемый для гравитационного анализа здания, также аналогичен панелям перекрытий. Здесь берутся первичные балки, а второстепенные балки не учитываются, чтобы сократить расчеты. Кроме того, отношение более длинного пролета к более короткому во всех панельных плитах составляет менее 2, поэтому все панели перекрытий являются двусторонними плитами. Метод проектирования соответствует Приложению D стандарта IS 456:2000.
КОНСТРУКЦИЯ ПЛИТЫ:
Конструкция типовой плиты перекрытия:
У нас толщина плиты 130 мм.
С учетом бетона марки М20 и стали Fe 500 диаметром 10 мм
Эффективная глубина: (130-15-10/2) = 110 мм.
Расчет нагрузки:
Фактическая нагрузка = 2 кН/м 2
Собственный вес плиты = 3,25 кН/м 2
Отделка пола = 1 кН/м 2 Всего = 6 кН/м 9 9 м 2
Определение моментов плит (плита с боковым защемлением):
Согласно стандарту IS 456:2000, пункт D-1.1, максимальный изгибающий момент на единицу ширины плиты определяется формулой: x 2
M Y = α Y WL Y 2
, где L x и L Y — это длина седл. , α y – моментные коэффициенты,
M x и M y представляют собой моменты на полосах единичной ширины, пролетающих l x и l y соответственно,
Вт = общая расчетная нагрузка на единицу площади.
Проверка толщины
Здесь максимальный момент взят из таблицы ниже.
Отсюда Safe
Расчет B.M. Коэффициент
| № панели | л x (м) | л у (м) | л у /л x | Тип | Негатив α x | Отрицательный α y | Положительный α x | Положительный α y | |
| 1 | 3,35 | 4,42 | 1,32 | Две смежные кромки прерывистые | 0,066 | 0,047 | 0,050 | 0,035 | |
| 2 | 3,35 | 3,73 | 1.11 | Одна длинная кромка прерывистая | 0,045 | 0,037 | 0,034 | 0,028 | |
| 3 | 3,35 | 3,73 | 1.11 | Одна длинная кромка прерывистая | 0,045 | 0,037 | 0,034 | 0,028 | |
| 4 | 3,35 | 4,42 | 1,32 | Две смежные кромки прерывистые | 0,066 | 0,047 | 0,050 | 0,035 | |
| 5 | 3,65 | 4,42 | 1,21 | Одна короткая кромка прерывистая | 0,048 | 0,037 | 0,036 | 0,028 | |
| 6 | 3,65 | 3,73 | 1,02 | Внутренняя панель | 0,033 | 0,032 | 0,025 | 0,024 | |
| 7 | 2,72 | 3,65 | 1,34 | Внутренняя панель | 0,049 | 0,032 | 0,037 | 0,024 | |
| 8 | 3,65 | 3,73 | 1,02 | Внутренняя панель | 0,033 | 0,032 | 0,025 | 0,024 | |
| 9 | 3,65 | 4,42 | 1,21 | Одна короткая кромка прерывистая | 0,048 | 0,037 | 0,036 | 0,028 | |
| 10 | 3,6 | 4,42 | 1,23 | Одна короткая кромка прерывистая | 0,049 | 0,037 | 0,037 | 0,028 | |
| 11 | 3,6 | 3,73 | 1,04 | Внутренняя панель | 0,034 | 0,032 | 0,025 | 0,024 | |
| 12 | 2,72 | 3,6 | 1,32 | Внутренняя панель | 0,048 | 0,032 | 0,037 | 0,024 | |
| 13 | 3,6 | 3,73 | 1,04 | Внутренняя панель | 0,034 | 0,032 | 0,025 | 0,024 | |
| 14 | 3,6 | 4,42 | 1,23 | Одна короткая кромка прерывистая | 0,049 | 0,037 | 0,037 | 0,028 | |
| 15 | 3,6 | 4,42 | 1,23 | Одна короткая кромка прерывистая | 0,049 | 0,037 | 0,037 | 0,028 | |
| 16 | 3,6 | 3,73 | 1,04 | Внутренняя панель | 0,034 | 0,032 | 0,025 | 0,024 | |
| 17 | 2,72 | 3,6 | 1,32 | Внутренняя панель | 0,048 | 0,032 | 0,037 | 0,024 | |
| 18 | 3,6 | 3,73 | 1,04 | Внутренняя панель | 0,034 | 0,032 | 0,025 | 0,024 | |
| 19 | 3,6 | 4,42 | 1,23 | Одна короткая кромка прерывистая | 0,049 | 0,037 | 0,037 | 0,028 | |
| 20 | 3,65 | 4,42 | 1,21 | Одна короткая кромка прерывистая | 0,048 | 0,037 | 0,036 | 0,028 | |
| 21 | 3,65 | 3,73 | 1,02 | Внутренняя панель | 0,033 | 0,032 | 0,025 | 0,024 | |
| 22 | 2,72 | 3,65 | 1,34 | Внутренняя панель | 0,049 | 0,032 | 0,037 | 0,024 | |
| 23 | 3,65 | 3,73 | 1,02 | Внутренняя панель | 0,033 | 0,032 | 0,025 | 0,024 | |
| 24 | 3,65 | 4,42 | 1,21 | Одна короткая кромка прерывистая | 0,048 | 0,037 | 0,036 | 0,028 | |
| 25 | 3,35 | 4,42 | 1,32 | Две смежные кромки прерывистые | 0,066 | 0,047 | 0,050 | 0,035 | |
| 26 | 3,35 | 3,73 | 1. 11 | Одна длинная кромка прерывистая | 0,045 | 0,037 | 0,034 | 0,028 | |
| 27 | 3,35 | 3,73 | 1.11 | Одна длинная кромка прерывистая | 0,045 | 0,037 | 0,034 | 0,028 | |
| 28 | 3,35 | 4,42 | 1,32 | Две смежные кромки прерывистые | 0,066 | 0,047 | 0,050 | 0,035 |
Расчет моментов
| Панель № | Коэффициент B.M для более короткого направления M x =α x wl x 2 x 1,5 | Коэффициент B.M для более длинного направления M y =α y wl y 2 x 1,5 | ||
| Рядом с опорой (-ve) | Рядом с опорой (+ve) | Рядом с опорой (-ve) | Рядом с опорой (+ve) | |
| 1 | 6,94 | 5,26 | 8,61 | 6,41 |
| 2 | 4,73 | 3,58 | 4,83 | 3,65 |
| 3 | 4,73 | 3,58 | 4,83 | 3,65 |
| 4 | 6,94 | 5,26 | 8,61 | 6,41 |
| 5 | 6,00 | 4,50 | 6,78 | 5. 13 |
| 6 | 4.12 | 3,12 | 4,17 | 3,13 |
| 7 | 3,40 | 2,57 | 4,00 | 3,00 |
| 8 | 4.12 | 3,12 | 4,17 | 3,13 |
| 9 | 6,00 | 4,50 | 6,78 | 5.13 |
| 10 | 5,95 | 4,50 | 6,78 | 5.13 |
| 11 | 4.13 | 3,04 | 4,17 | 3,13 |
| 12 | 3,33 | 2,57 | 3,89 | 2,92 |
| 13 | 4.13 | 3,04 | 4,17 | 3,13 |
| 14 | 5,95 | 4,50 | 6,78 | 5.13 |
| 15 | 5,95 | 4,50 | 6,78 | 5.13 |
| 16 | 4.13 | 3,04 | 4,17 | 3,13 |
| 17 | 3,33 | 2,57 | 3,89 | 2,92 |
| 18 | 4. 13 | 3,04 | 4.17 | 3,13 |
| 19 | 5,95 | 4,50 | 6,78 | 5.13 |
| 20 | 6,00 | 4,50 | 6,78 | 5.13 |
| 21 | 4.12 | 3,12 | 4,17 | 3,13 |
| 22 | 3,40 | 2,57 | 4,00 | 3,00 |
| 23 | 4,12 | 3,12 | 4,17 | 3,13 |
| 24 | 6,00 | 4,50 | 6,78 | 5.13 |
| 25 | 6,94 | 5,26 | 8,61 | 6,41 |
| 26 | 4,73 | 3,58 | 4,83 | 3,65 |
| 27 | 4,73 | 3,58 | 4,83 | 3,65 |
| 28 | 6,94 | 5,26 | 8,61 | 6,41 |
Расчет площади стали
| Пролет | Положение моментов | Моменты (кНм) | М и /шп 2 | Платина % | Ast в мм 2 (обязательно) | Ast в мм 2 (прилагается) | Расстояние между стержнями 10 мм @ c/c |
| Короткий | Рядом с опорой | 6,94 | 0,57 | 0,162 | 178,20 | 250 | 300 |
| Средний пролет | 5,26 | 0,43 | 0,121 | 133. 10 | 250 | 300 | |
| Длинный | Рядом с опорой | 8,61 | 0,71 | 0,204 | 224,40 | 250 | 300 |
| Средний пролет | 6,41 | 0,53 | 0,150 | 165,00 | 250 | 300 | |
| Короткий | Рядом с опорой | 4,73 | 0,39 | 0,110 | 121.00 | 250 | 300 |
| Средний пролет | 3,58 | 0,30 | 0,084 | 92,40 | 250 | 300 | |
| Длинный | Возле поддержки | 4,83 | 0,40 | 0,113 | 124,30 | 250 | 300 |
| Средний пролет | 3,65 | 0,30 | 0,084 | 92,40 | 250 | 300 | |
| Короткий | Рядом с опорой | 4,73 | 0,39 | 0,110 | 121. 00 | 250 | 300 |
| Средний пролет | 3,58 | 0,30 | 0,084 | 92,40 | 250 | 300 | |
| Длинный | Рядом с опорой | 4,83 | 0,40 | 0,113 | 124,30 | 250 | 300 |
| Средний пролет | 3,65 | 0,30 | 0,084 | 92,40 | 250 | 300 | |
| Короткий | Рядом с опорой | 6,94 | 0,57 | 0,162 | 178,20 | 250 | 300 |
| Средний пролет | 5,26 | 0,43 | 0,121 | 133.10 | 250 | 300 | |
| Длинный | Рядом с опорой | 8,61 | 0,71 | 0,204 | 224,40 | 250 | 300 |
| Средний пролет | 6,41 | 0,53 | 0,150 | 165,00 | 250 | 300 | |
| Короткий | Рядом с опорой | 6,00 | 0,50 | 0,142 | 156,20 | 250 | 300 |
| Средний пролет | 4,50 | 0,37 | 0,105 | 115,50 | 250 | 300 | |
| Длинный | Рядом с опорой | 6,78 | 0,56 | 0,159 | 174,90 | 250 | 300 |
| Средний пролет | 5. 13 | 0,42 | 0,119 | 130,90 | 250 | 300 | |
| Короткий | Рядом с опорой | 4.12 | 0,34 | 0,096 | 105,60 | 250 | 300 |
| Средний пролет | 3,12 | 0,26 | 0,084 | 92,40 | 250 | 300 | |
| Длинный | Рядом с опорой | 4,17 | 0,34 | 0,096 | 105,60 | 250 | 300 |
| Средний пролет | 3,13 | 0,26 | 0,084 | 92,40 | 250 | 300 | |
| Короткий | Рядом с опорой | 3,40 | 0,28 | 0,084 | 92,40 | 250 | 300 |
| Средний пролет | 2,57 | 0,21 | 0,084 | 92,40 | 250 | 300 | |
| Длинный | Рядом с опорой | 4,00 | 0,33 | 0,093 | 102. 30 | 250 | 300 |
| Средний пролет | 3,00 | 0,25 | 0,084 | 92,40 | 250 | 300 | |
| Короткий | Рядом с опорой | 4.12 | 0,34 | 0,096 | 105,60 | 250 | 300 |
| Средний пролет | 3,12 | 0,26 | 0,084 | 92,40 | 250 | 300 | |
| Длинный | Рядом с опорой | 4,17 | 0,34 | 0,096 | 105,60 | 250 | 300 |
| Средний пролет | 3,13 | 0,26 | 0,084 | 92,40 | 250 | 300 | |
| Короткий | Рядом с опорой | 6,00 | 0,50 | 0,142 | 156,20 | 250 | 300 |
| Средний пролет | 4,50 | 0,37 | 0,105 | 115,50 | 250 | 300 | |
| Длинный | Рядом с опорой | 6,78 | 0,56 | 0,145 | 159,50 | 250 | 300 |
| Средний пролет | 5. 13 | 0,42 | 0,119 | 130,90 | 250 | 300 | |
| Короткий | Рядом с опорой | 5,95 | 0,49 | 0,139 | 152,90 | 250 | 300 |
| Средний пролет | 4,50 | 0,37 | 0,105 | 115,50 | 250 | 300 | |
| Длинный | Рядом с опорой | 6,78 | 0,56 | 0,159 | 174,90 | 250 | 300 |
| Средний пролет | 5.13 | 0,42 | 0,119 | 130,90 | 250 | 300 | |
| Короткий | Рядом с опорой | 4.13 | 0,34 | 0,096 | 105,60 | 250 | 300 |
| Средний пролет | 3,04 | 0,25 | 0,084 | 92,40 | 250 | 300 | |
| Длинный | Рядом с опорой | 4,17 | 0,34 | 0,096 | 105,60 | 250 | 300 |
| Средний пролет | 3. 13 | 0,26 | 0,084 | 92,40 | 250 | 300 | |
| Короткий | Рядом с опорой | 3,33 | 0,28 | 0,084 | 92,40 | 250 | 300 |
| Средний пролет | 2,57 | 0,21 | 0,084 | 92,40 | 250 | 300 | |
| Длинный | Рядом с опорой | 3,89 | 0,32 | 0,090 | 99.00 | 250 | 300 |
| Средний пролет | 2,92 | 0,24 | 0,084 | 92,40 | 250 | 300 | |
| Короткий | Рядом с опорой | 4.13 | 0,34 | 0,096 | 105,60 | 250 | 300 |
| Средний пролет | 3,04 | 0,25 | 0,084 | 92,40 | 250 | 300 | |
| Длинный | Рядом с опорой | 4,17 | 0,34 | 0,096 | 105,60 | 250 | 300 |
| Средний пролет | 3,13 | 0,26 | 0,084 | 92,40 | 250 | 300 | |
| Короткий | Рядом с опорой | 5,95 | 0,49 | 0,139 | 152,90 | 250 | 300 |
| Средний пролет | 4,5 | 0,37 | 0,105 | 115,50 | 250 | 300 | |
| Длинный | Рядом с опорой | 6,78 | 0,56 | 0,159 | 174,90 | 250 | 300 |
| Средний пролет | 5. 13 | 0,42 | 0,119 | 130,90 | 250 | 300 | |
| Короткий | Рядом с опорой | 5,95 | 0,49 | 0,139 | 152,90 | 250 | 300 |
| Средний пролет | 4,5 | 0,37 | 0,105 | 115,50 | 250 | 300 | |
| Длинный | Рядом с опорой | 6,78 | 0,56 | 0,159 | 174,90 | 250 | 300 |
| Средний пролет | 5.13 | 0,42 | 0,119 | 130,90 | 250 | 300 | |
| Короткий | Рядом с опорой | 4.13 | 0,34 | 0,096 | 105,60 | 250 | 300 |
| Средний пролет | 3,04 | 0,25 | 0,084 | 92,40 | 250 | 300 | |
| Длинный | Рядом с опорой | 4,17 | 0,34 | 0,096 | 105,60 | 250 | 300 |
| Средний пролет | 3,13 | 0,26 | 0,084 | 92,40 | 250 | 300 | |
| Короткий | Рядом с опорой | 3,33 | 0,28 | 0,084 | 92,40 | 250 | 300 |
| Средний пролет | 2,57 | 0,21 | 0,084 | 92,40 | 250 | 300 | |
| Длинный | Рядом с опорой | 3,89 | 0,32 | 0,090 | 99. 00 | 250 | 300 |
| Средний пролет | 2,92 | 0,24 | 0,084 | 92,40 | 250 | 300 | |
| Короткий | Рядом с опорой | 4.13 | 0,34 | 0,096 | 105,60 | 250 | 300 |
| Средний пролет | 3,04 | 0,25 | 0,084 | 92,40 | 250 | 300 | |
| Длинный | Рядом с опорой | 4,17 | 0,34 | 0,096 | 105,60 | 250 | 300 |
| Средний пролет | 3,13 | 0,26 | 0,084 | 92,40 | 250 | 300 | |
| Короткий | Рядом с опорой | 5,95 | 0,49 | 0,139 | 152,90 | 250 | 300 |
| Средний пролет | 4,5 | 0,37 | 0,105 | 115,50 | 250 | 300 | |
| Длинный | Рядом с опорой | 6,78 | 0,56 | 0,159 | 174,90 | 250 | 300 |
| Средний пролет | 5. 13 | 0,42 | 0,119 | 130,90 | 250 | 300 | |
| Короткий | Рядом с опорой | 6 | 0,50 | 0,142 | 156,20 | 250 | 300 |
| Средний пролет | 4,5 | 0,37 | 0,105 | 115,50 | 250 | 300 | |
| Длинный | Рядом с опорой | 6,78 | 0,56 | 0,159 | 174,90 | 250 | 300 |
| Средний пролет | 5.13 | 0,42 | 0,119 | 130,90 | 250 | 300 | |
| Короткий | Рядом с опорой | 4.12 | 0,34 | 0,096 | 105,60 | 250 | 300 |
| Средний пролет | 3,12 | 0,26 | 0,084 | 92,40 | 250 | 300 | |
| Длинный | Рядом с опорой | 4,17 | 0,34 | 0,096 | 105,60 | 250 | 300 |
| Средний пролет | 3,13 | 0,26 | 0,084 | 92,40 | 250 | 300 | |
| Короткий | Рядом с опорой | 3,4 | 0,28 | 0,084 | 92,40 | 250 | 300 |
| Средний пролет | 2,57 | 0,21 | 0,084 | 92,40 | 250 | 300 | |
| Длинный | Рядом с опорой | 4 | 0,33 | 0,093 | 102. 30 | 250 | 300 |
| Средний пролет | 3 | 0,25 | 0,084 | 92,40 | 250 | 300 | |
| Короткий | Рядом с опорой | 4.12 | 0,34 | 0,096 | 105,60 | 250 | 300 |
| Средний пролет | 3,12 | 0,26 | 0,084 | 92.40 | 250 | 300 | |
| Длинный | Рядом с опорой | 4,17 | 0,34 | 0,096 | 105,60 | 250 | 300 |
| Средний пролет | 3,13 | 0,26 | 0,084 | 92,40 | 250 | 300 | |
| Короткий | Рядом с опорой | 6 | 0,50 | 0,142 | 156,20 | 250 | 300 |
| Средний пролет | 4,5 | 0,37 | 0,105 | 115,50 | 250 | 300 | |
| Длинный | Рядом с опорой | 6,78 | 0,56 | 0,159 | 174,90 | 250 | 300 |
| Средний пролет | 5. 13 | 0,42 | 0,119 | 130,90 | 250 | 300 | |
| Короткий | Рядом с опорой | 6,94 | 0,57 | 0,162 | 178,20 | 250 | 300 |
| Средний пролет | 5,26 | 0,43 | 0,121 | 133.10 | 250 | 300 | |
| Длинный | Рядом с опорой | 8,61 | 0,71 | 0,204 | 224,40 | 250 | 300 |
| Средний пролет | 6,41 | 0,53 | 0,150 | 165,00 | 250 | 300 | |
| Короткий | Рядом с опорой | 4,73 | 0,39 | 0,110 | 121.00 | 250 | 300 |
| Средний пролет | 3,58 | 0,30 | 0,084 | 92,40 | 250 | 300 | |
| Длинный | Рядом с опорой | 4,83 | 0,40 | 0,113 | 124,30 | 250 | 300 |
| Средний пролет | 3,65 | 0,30 | 0,084 | 92,40 | 250 | 300 | |
| Короткий | Рядом с опорой | 4,73 | 0,39 | 0,110 | 121. 00 | 250 | 300 |
| Средний пролет | 3,58 | 0,30 | 0,084 | 92,40 | 250 | 300 | |
| Длинный | Рядом с опорой | 4,83 | 0,40 | 0,113 | 124,30 | 250 | 300 |
| Средний пролет | 3,65 | 0,30 | 0,084 | 92,40 | 250 | 300 | |
| Короткий | Рядом с опорой | 6,94 | 0,57 | 0,162 | 178,20 | 250 | 300 |
| Средний пролет | 5,26 | 0,43 | 0,121 | 133.10 | 250 | 300 | |
| Длинный | Рядом с опорой | 8,61 | 0,71 | 0,204 | 224,40 | 250 | 300 |
| Средний пролет | 6. 41 | 0,53 | 0,150 | 165,00 | 250 | 300 |
| Панель | Площадь стали для максимального момента в середине пролета (мм 2 ) | (3/4) Аст (мм 2 ) | 0,5 (3/4) Аст (мм 2 ) | Угол 1 | Угол 2 | Угол 3 | Угол 4 |
| 1 | 224,4 | 168,3 | 84,15 | 8Φ@300 мм | 8Φ@300 мм | 8Φ@300 мм | 8Φ@300 мм |
| 2 | 224,4 | 168,3 | 84,15 | 8Φ@300 мм | 8Φ@300 мм | 8Φ@300 мм | 8Φ@300 мм |
| 3 | 224,4 | 168,3 | 84,15 | 8Φ@300 мм | 8Φ@300 мм | 8Φ@300 мм | 8Φ@300 мм |
| 4 | 224,4 | 168,3 | 84,15 | 8Φ@300 мм | 8Φ@300 мм | 8Φ@300 мм | 8Φ@300 мм |
| 5 | 224,4 | 168,3 | 84,15 | 8Φ@300 мм | 8Φ@300 мм | 8Φ@300 мм | 8Φ@300 мм |
| 6 | 224,4 | 168,3 | 84,15 | 8Φ@300 мм | 8Φ@300 мм | 8Φ@300 мм | 8Φ@300 мм |
| 7 | 224,4 | 168,3 | 84,15 | 8Φ@300 мм | 8Φ@300 мм | 8Φ@300 мм | 8Φ@300 мм |
| 8 | 224,4 | 168,3 | 84,15 | 8Φ@300 мм | 8Φ@300 мм | 8Φ@300 мм | 8Φ@300 мм |
| 9 | 224,4 | 168,3 | 84,15 | 8Φ@300 мм | 8Φ@300 мм | 8Φ@300 мм | 8Φ@300 мм |
| 10 | 224,4 | 168,3 | 84,15 | 8Φ@300 мм | 8Φ@300 мм | 8Φ@300 мм | 8Φ@300 мм |
| 11 | 224,4 | 168,3 | 84,15 | 8Φ@300 мм | 8Φ@300 мм | 8Φ@300 мм | 8Φ@300 мм |
| 12 | 224,4 | 168,3 | 84,15 | 8Φ@300 мм | 8Φ@300 мм | 8Φ@300 мм | 8Φ@300 мм |
| 13 | 224,4 | 168,3 | 84,15 | 8Φ@300 мм | 8Φ@300 мм | 8Φ@300 мм | 8Φ@300 мм |
| 14 | 224,4 | 168,3 | 84,15 | 8Φ@300 мм | 8Φ@300 мм | 8Φ@300 мм | 8Φ@300 мм |
| 15 | 224,4 | 168,3 | 84,15 | 8Φ@300 мм | 8Φ@300 мм | 8Φ@300 мм | 8Φ@300 мм |
| 16 | 224,4 | 168,3 | 84,15 | 8Φ@300 мм | 8Φ@300 мм | 8Φ@300 мм | 8Φ@300 мм |
| 17 | 224,4 | 168,3 | 84,15 | 8Φ@300 мм | 8Φ@300 мм | 8Φ@300 мм | 8Φ@300 мм |
| 18 | 224,4 | 168,3 | 84,15 | 8Φ@300 мм | 8Φ@300 мм | 8Φ@300 мм | 8Φ@300 мм |
| 19 | 224,4 | 168,3 | 84,15 | 8Φ@300 мм | 8Φ@300 мм | 8Φ@300 мм | 8Φ@300 мм |
| 20 | 224,4 | 168,3 | 84,15 | 8Φ@300 мм | 8Φ@300 мм | 8Φ@300 мм | 8Φ@300 мм |
| 21 | 224,4 | 168,3 | 84,15 | 8Φ@300 мм | 8Φ@300 мм | 8Φ@300 мм | 8Φ@300 мм |
| 22 | 224,4 | 168,3 | 84,15 | 8Φ@300 мм | 8Φ@300 мм | 8Φ@300 мм | 8Φ@300 мм |
| 23 | 224,4 | 168,3 | 84,15 | 8Φ@300 мм | 8Φ@300 мм | 8Φ@300 мм | 8Φ@300 мм |
| 24 | 224,4 | 168,3 | 84,15 | 8Φ@300 мм | 8Φ@300 мм | 8Φ@300 мм | 8Φ@300 мм |
| 25 | 224,4 | 168,3 | 84,15 | 8Φ@300 мм | 8Φ@300 мм | 8Φ@300 мм | 8Φ@300 мм |
| 26 | 224,4 | 168,3 | 84,15 | 8Φ@300 мм | 8Φ@300 мм | 8Φ@300 мм | 8Φ@300 мм |
| 27 | 224,4 | 168,3 | 84,15 | 8Φ@300 мм | 8Φ@300 мм | 8Φ@300 мм | 8Φ@300 мм |
| 28 | 224,4 | 168,3 | 84,15 | 8Φ@300 мм | 8Φ@300 мм | 8Φ@300 мм | 8Φ@300 мм |
ДЕТАЛИ УСИЛЕНИЯ ПЛИТЫ
ПОЛОЖЕНИЕ УСИЛЕНИЯ КРУТИ
Поделиться этим постом
Если у вас есть вопросы, вы можете задать вопрос здесь .
Как спроектировать плоскую плиту?
БЛОГ НОВОСТИ И ТЕНДЕНЦИИ
ОБЩИЕ СВЕДЕНИЯ
Плоская плита представляет собой двустороннюю железобетонную плиту, которая обычно не имеет балок и ферм, а нагрузки передаются непосредственно на несущие бетонные колонны.
Плоская плита представляет собой двустороннюю железобетонную каркасную систему, в которой используется плита одинаковой толщины, простейшая из конструктивных форм. Плоская плита представляет собой двухстороннюю армированную конструкционную систему, которая включает в себя либо откидные панели, либо капители колонн на колоннах, чтобы выдерживать более высокие нагрузки и, таким образом, обеспечивать более длинные пролеты.
1. Преимущества плоской плиты
1. Гибкость планировки помещения
— Перегородки можно разместить где угодно.
— Предлагает владельцу различные планировки комнат.
— Подвесные потолки можно не использовать.
2. Упрощение размещения армирования
— Поскольку детали армирования плоской плиты просты, его проще разместить
3. Простота установки каркаса.
— Каркас большого стола можно использовать в плоской плите
4. Высота здания может быть уменьшена.
— Высота этажа может быть уменьшена и, следовательно, высота здания будет уменьшена.
— Можно сохранить примерно 10 % вертикального элемента.
— Нагрузка на фундамент также уменьшится.
5. Меньше времени на строительство
— Использование каркаса большой таблицы помогает сократить время на строительство
2. Что такое заглавная часть столбца и откидная панель?
Использование оголовков колонн (капитальных):
⋅ Прочность плоской плиты на сдвиг увеличивается за счет использования оголовков колонн.
⋅ Оголовки колонн уменьшают чистый или эффективный пролет и, следовательно, уменьшают момент в плоском перекрытии.
Использование откидных панелей:
⋅ Откидные панели повышают прочность на сдвиг плоских плит перекрытия.
⋅ Откидные панели увеличивают устойчивость плоской плиты к отрицательному моменту.
⋅ Откидные панели уменьшают прогиб за счет придания жесткости плоским плитам.
3. Как создать плоскую плиту в nGen
3.1. Определить толщину плоской плиты
[ACI 318M-14]
fy=420 МПа,
В случае плоской плиты с откидной панелью, толщина плиты = L n /36 = 7,0 м/36 = 0,194 м → Применить 0,20 м
* В этом примере я установлю откидные панели
В случае плоской плиты без откидной панели толщина плиты = Ln/ 33 = 7,0 м / 33 = 0,212 м → Применить 0,22 м
3.2. Создайте плоскую плиту в nGen
Элемент > Плоская/пластинчатая конструкция > Плоская плита
❶ Выберите набор элементов.
❷ Выберите набор историй.
❸ Выберите Толщину 0,2 м.
❹ В качестве типа создания выберите «by Draw».
❺ Щелкните угловую точку целевой области.
❻ Нажмите «Применить» или нажмите клавишу Enter.
3.3. Как определить размер и толщину откидной панели.
- Как определить размер откидной панели
- Как определить толщину откидной панели
Должны быть выполнены два следующих условия.
i) Толщина нижней панели не должна превышать одной четверти поверхности колонны.
h d ≤d min /4=0,25 м
ii) Толщина откидной панели должна выступать из-под плиты не менее чем на одну четвертую толщины плиты.
h d ≥d s /4=0,05 м
Таким образом, толщина откидной панели принимается равной 0,40 м (≤ d s d + 6 h 904 Макс.




Выравниваем поверхность плиты. Иногда плита находится в таком состоянии, что требуется замена или усиление арматуры, тогда укладываем арматурную сетку, делаем опалубку и заливаем стяжку.
11
13
13
10
00
13
30
13
13
13
00
13
30
13
00
41