125 фото основных моделей и подбор материалов
Загородное поместье занимает особое место в жизни современного человека. Здесь можно отдохнуть от ежедневной суеты и постоянного напряжения. Большинство из нас часто задается вопросом: «Как построить баню на даче?». Современные инструменты и материалы, помогают справиться с поставленной задачей.

В нашем материале представлена подробная инструкция бани под ключ. Здесь учтены все нюансы рабочего процесса. Рекомендации опытных специалистов, помогут правильно выбрать материалы и комплектующие для идеальной постройки.

Первоначальным этапом любого строительства является:
- подробный проект строения;
- выбор местности;
- закупка строительного материала;
- строительство бани;
- внутренняя отделка и подключение коммуникации.

Как выбрать месторасположение бани?
Опытные специалисты, рекомендуют учитывать ряд критериев, которые играют немаловажную роль при строительстве данного объекта:
- выбирать лучше всего возвышенные участки. Здесь не возникнет проблем со сливом сточных вод;
- для эстетических целей, рекомендуется выбирать место где по близости располагается река или водоем;
- для экономии земельного участка делают пристройку к дому. Грамотная гидро и пароизоляция предотвратит появление плесени.

Проект и материалы для строительства для бани
Современные проекты бань помогают ознакомиться с типом конструкции и материалами из которых она изготовлена.

Каркасное строение
Основная часть постройки имеет каркас на котором в дальнейшем укрепляют доски или камень. Она имеет устойчивый фундамент, что делает её надежной постройкой.

Деревянное строение
Такие строения выполняют из натурального массива дерева. Поверхность стен и потолка обрабатывают специальным пожароустойчивым составом. Она защищает от возгорания и обладает защитным действием против атаки насекомых.

Как построить баню из бруса? Для этого используют плотные породы древесины. Они хорошо сохраняют тепло и обладают красивым внешним видом. Для строительства небольшой постройки понадобится более 150 брусьев разной длины.
Каменное строение
Эти строения выполняют из кирпича, пеноблоков или натурального камня. На строительство такой бани уходит в целом один или два года. На фото бани представлен подробный план каменного строения.

Арботлитное строение
Этот вид материала обладает хорошей тепло и гидроизоляцией. Для строительства используют блоки или монолитные плиты.

Готовое изделие получается аккуратным и прочным. Такая баня идеально подходит для небольшого дачного участка.

Этапы строительства бани
Как построить баню своими руками? Для этого здесь представлена подробная методика, которая позволяет выполнить самостоятельное строительство каменной постройки. Она включает в себя:

Разметка. Она необходима для точной визуализации размеров будущего строения. Для этого используют деревянный или металлический колышек длиной от 50 до 100 см.
Помимо этого понадобится прочная веревка или плотный жгут. Разметку выполняют исходя из параметров выбранного плана.

Выкапывание места под фундамент. В нашем материале представлен мелко заглубленный вид основания для строения. Ширина траншеи не должна превышать 50 см. Возможны небольшие отклонения от 10 до 15 см в каждую сторону.

Строение опалубки. Для этого понадобятся доски, длина которых равна размерам будущего строения. Боковые элементы деревянного каркаса необходимо плотно укрепить на поверхности земли.

Когда он надежно зафиксирован, можно переходить к заливке бетона. Здесь в составе раствора должны быть соблюдены четкие пропорции песка, цемента и мелкой гальки.

Готовая консистенция должна быть не слишком густой. Жидкий состав тщательно пропитает каменное основание внизу фундамента.

Когда весь периметр полностью залит строительным составом, его оставляют до полного высыхания. В среднем это составляет около 8 дней. Ежедневно бетонное основание опрыскивают водой для предотвращения трещин.

После того как фундамент полностью высохнет, переходят к укладке стен. Кладку начинают с возведения углов. Раствор для фиксации содержит в себе большое количества песка и цемента. Такой состав надежно зафиксирует каждый элемент.

Для сооружения дверных и оконных проёмов используют специальные перемычки. В качестве строительного уровня применяют натянутую веревку. Она предотвратит появление неровностей на стенах.
После того как постройка полностью закончена, переходят к сооружению крыши бани. Простым и быстрым вариантом является односкатная кровля с правильным углом наклона.

Как видите построить баню своими руками достаточно просто. Главное в этом деле, запастись терпением и всеми необходимыми материалами.

Фото советы как построить баню




































Также рекомендуем посетить:
strojka-gid.ru
8 этапов возведения и рекомендации как строить баню [+18 ФОТО]
Вопрос, как строить бани, становится все более актуальным.
И это неудивительно, так как одно дело — заказать строительство за большие деньги и совсем другое дело — справиться с поставленной задачей своими силами, и потратить деньги лишь на закупку стройматериалов.

Баня из бруса на дачном участке
Обратите внимание!
В данной публикации нет рассказа о том,как я строил баню, т.е. разового проекта, которыми заполнен интернет.
Напротив, приводятся сведения от опытных строителей, оберегающие от ошибок начинающих мастеров.
Строительство с применением пиломатериалов имеет немало преимуществ, среди которых:
- небольшой вес постройки и, как следствие, отсутствие необходимости в закладке массивного фундамента;
- возможность строительства без применения спецтехники;
- сжатые сороки возведения строительного объекта за счет небольшого времени, необходимого для усадки стен;
- невысокая цена готовой постройки, в сравнении с себестоимостью построек из традиционных материалов, таких как кирпич и бетон;
- экологическая безопасность стройматериалов;
- низкая теплопроводность древесины и благодаря этому энергоэффективность бани.
Постройки бань из бруса или оцилиндрованного бревна, при условии грамотного подхода к реализации строительного процесса, практически не имеют недостатков.
Этапы строительства

На фото- обрезной брус в штабелях
До того как начать строить баню, необходимо заготовить соответствующие материалы. Но следует учитывать, что при строительстве бань применяется широкий перечень пиломатериалов, которые отличаются как техническими, так и эксплуатационными характеристиками.
Разумеется,разные пиломатериалы предполагают то, что их цена также будет разной. Но выбирая строительный материал, в первую очередь, нужно думать не об экономии средств, а о том,что в большей степени подойдёт для строительства.

Оцилиндрованное бревно
По сути, все повсеместно используемые в гражданском строительстве пиломатериалы можно подразделить на следующие категории:
- бревно окоренное;
- лафет;
- бревно скобленное;
- бревно строганное;
- бревно калиброванное или оцилиндрованное;
- брус обрезной;
- брус профилированный;
- брус профилированный клееный.

Ассортимент клееных пиломатериалов
Выбор и заготовка стройматериала

Клееный брус
Почему именно брус, а не то же самое бревно? Дело в том, что клееный брус лишён целого ряда недостатков, присущих бревну.
Профилированные клееные пиломатериалы:
- не растрескиваются ни по всей длине, ни с торца;
- поступают в продажу с содержанием влаги не более 20%;
- оснащены соединительными элементами типа «шип в паз», за счет чего достигается оптимальная степень тепло- и звукоизоляции стен;
- обладают оптимальной точностью типоразмеров и форм, чего нельзя сказать о бревнах;
- не требуют дополнительной обработки и отделки, так как еще при производстве пропитываются антипиренами и антисептиками.
Независимо от того, как строит баню среднестатистический россиянин, первым делом выделяется площадка для складирования бруса. Пиломатериалы целесообразно хранить в штабелях, подложив под них шпалы и накрыв сверху полиэтиленовой плёнкой.
Итак, после того как материалы заготовлены, приступаем к строительству.
Выбор проекта

Проект бани 6х6
В качестве чертежа для строительства бани своими руками чаще других выбирается типовой проект 6 на 6с мансардой. Выбор проекта неслучаен, так как планируется всесезонное использование постройки не только в качестве парилки и моечного отделения, но и в качестве жилья для проведения выходных и отпусков.
Еще один важный момент:типоразмеры 6 на 6 — это оптимальное решение с точки зрения экономичного расходования стройматериалов. Дело в том, что длина бруса имеет кратное значение, например 6 метров. В результате,строительство будет практически безотходным. Если жилая площадь в бане вам не требуется, можно ограничиться возведением первого этажа и отказаться от мансарды.
Подготовка строительной площадки
Баня как строить которую, вы скоро узнаете — это несложная конструкция, возведение которой предъявляет повышенные требования к рельефу участка. Иначе говоря, перед началом строительства, рельеф на площадке выравниваем и снимаем верхний слой грунта с растительностью.
Фундамент
Инструкция закладки основания под деревянную баню предполагает использование бетона, камня или бутового камня.
В зависимости от особенностей грунта и в зависимости от климатических особенностей региона, могут сбыть применены два вида фундамента:
- столбчатый;
- монолитный ленточный.
Столбчатое основание укладывается на территории, где в холодное время года почва промерзает вглубь на большое расстояние и существует вероятность морозного пучения грунта.Монолитное основание, напротив,строится в тех местах,где почва промерзает в глубину не более чем на 1.5 м.
Глубина закладки фундамента определяется в соответствии с глубиной залегания тех слоёв грунта, которые выполняют функцию естественного основания. К примеру, на суглинистых и глинистых почвах, склонных к вспучиванию при промерзании, подошва основания должна быть заглублена на 25 см ниже уровня промерзания.
Если строительство ведется на песчаном грунте,закладка фундамента выполняется на полметра глубже уровня промерзания грунта. Основание под внутренние стены можно укладывать на меньшую глубину, чем под внешние стены,но не меньше, чем 0,5 м от поверхности земли.

Основа под внешние и внутренние стены
Ленточный фундамент делается следующим образом:
- По периметру будущей постройки выкапываем траншею ширина 400-500 мм в зависимости от толщины стенового материала.
- Дно траншеи уплотняем трамбовкой и выстилаем песчаную подушку толщиной 15 см.

Опалубка под заливку бетона
- Поверх песчаной подушки высыпаем слой щебня толщиной 10-15 см и уплотняем его трамбовкой.
- После этого из арматурных прутьев делается армирующая обвязка и поднимается опалубка высотой на 20 см выше поверхности почвы.
- Далее готовится бетон в пропорции 2 части сеяного песка, 1 часть цемента М400 и 2 части мелкоразмерного щебня.
- По мере высыхания поверхности фундамента, поверхность закладки выравнивается под единый уровень.
Столбчатый фундамент делается следующим образом:
- Определяется периметр здания в соответствии с проектом и через каждые два метра выкапывается яма глубиной в 1 метр под ширину столбов со стороной 0,5 метра.

Столбы в качестве основания
- На дно ям укладывается песчаная подушка толщиной в 15 см и уплотняется трамбовкой.
- Поверх подушки обустраивается кирпичная или каменная кладка на высоту не более 0,4 метра над поверхностью земли.

Столбчатый фундамент
- При необходимости, промежутки между столбами закладываются кирпичами.
Возведение стен

Монтаж нижнего венца
Стены из бруса строятся поэтапно:
- Сначала верхняя часть фундамента, к которой будет примыкать брус, покрывается слоем гидроизоляции для бани. Для этих целей используется рубероид и битумная мастика.
- Брус в нижнем венце обрабатывается очищенной отработкой для того чтобы устранить возможность гниения.
Способы углового соединения
- Устройство нижнего венца выполняется прямо на поверхность фундамента. Угловые соединения делаются «в лапу» или «в обло». Нижний венец крепится к основанию посредством металлического нагеля.
- На поверхности нижнего венца укладываем натуральный или искусственный уплотнитель, чаще всего, это джутовая лента.

Джутовый уплотнитель в межвенцовом зазоре
- Поверх уплотнителя кладется второй ряд бруса, так чтобы шип попал в паз и образовал максимально прочное соединение.
- Второй и последующие ряды фиксируем на месте деревянными нагелями, которые должны быть в полтора раза шире бруса. Нагели располагаем в шахматном порядке, так чтобы они не попадали друг на друга.

Стена из бруса
Важно: Баня из бруса строится под усадку, то есть стены должны простоять без полноценной кровли и внутренней отделки от нескольких месяцев до полугода.
Для этого строится временная кровля и внутри постройки ставятся перемычки для того чтобы стены не повело.
- После того как стены полностью готовы, вырезаем в них проемы под двери и окна. Для оптимального теплосбережения окна первого этажа делаются небольшими.
- Обсада (окосячка) проёмов делается под деревянные окна и под деревянную дверную раму в соответствии с инструкцией, приведенной на нашем портале.
- Внутренние стены выкладываются из кирпича. Вблизи места, на котором будет располагаться печь, стены поднимаются из огнеупорного полнотелого кирпича.
Кровля и потолочное перекрытие
До того как поставить стропила на баню, выжидаем время необходимое на усадку, после чего приступаем к возведению постоянной кровли.

Простая в плане строительства крыша
Представленный в статье проект хорош тем, что вместо традиционных стропил здесь применяется легкая обрешетка, которая монтируется на скосы торцевых стен. Обрешетка с двух сторон обшивается плитами ОСП, между которых размещается слой пароизоляции и утеплитель (стекловата или минеральная вата).
Крепление обрешетки к верхнему брусу
Верх кровельного пирога укрывается гибкой черепицей или оцинкованным профлистом. Изнутри постройки кровельный пирог обшивается деревянной вагонкой.
Потолочное перекрытие бани делается на основе бруса 50х50 мм. Брусья монтируются с шагом в полметра. С нижней стороны на брусе делается обрешетка, которая обшивается плитами ОСП или ламинированной фанерой.
В промежутки между брусом укладывается утеплитель, например минеральная вата в виде матов. Сверху конструкция обшивается ОСП.
Важно:Для большей сохранности слоя теплоизоляции все стыки между потолочным перекрытием и стенами конопатятся, а затем герметизируются акриловой шпатлевкой или промазываются жидкой битумной мастикой.
Изнутри первого этажа перекрытие обшивается слоем пароизоляции и деревянной вагонкой. Учитывая то, что облицовочный материал будет контактировать с влажной средой,целесообразно использовать вагонку из лиственницы или осины.
Важно: Поверхность древесины внутри парилки остается в чистом виде и не покрывается лакокрасочными материалами.
Это объясняется тем, что при нагревании поверхность обработанная лаком выделяет во внешнюю среду токсины и неприятный запах.
Пол
Схема пола на лагах
Наиболее эффективным и теплым пол можно сделать в бане,построенной на ленточном фундаменте. В этом случае пол настилается прямо на деревянные лаги.
Пол изготавливается следующим образом:
- По всему основанию внутри комнаты отдыха удаляется плодородный слой почвы с растительностью. Далее поверхность грунта смачивается водой,посыпается глиной и трамбуется вплоть до образования ровной твердой корки.
- Для изготовления лаг используется брус 50х50 мм,который укладывается с шагом в 50-60 см.
Важно: для большей сохранности брус нужно покрыть очищенной отработкой.
- Между лагами засыпается среднеразмерный керамзит.
- Сверху на лаги с нахлестом настилаются полосы пароизоляции.
- Поверх пароизоляции выкладываются плиты ламинированной фанеры.
- Второй слой укладывается на первый с некоторым смещением для обеспечения максимальной прочности покрытия.
- Стыки между плитами и стенами герметизируются шпатлевкой по дереву.
- Поверх чернового пола настилается ламинат или линолеум.
Совсем иной подход потребуется при организации пола в парном и моечном отделении. В данном случае потребуется обустроить протекающий пол.
Технология устройства пола такова:
- Сточная труба выводиться посреди помещения.
- На окончание трубы устанавливается сифон, с тем расчетом, чтобы он располагался на 10 см ниже порога дверного проема.
- После этого на 5 см ниже порога дверного проёма делается бетонная стяжка с уклоном в сторону сифона.
- На следующем этапе с шагом в полметра устанавливаются лаги из балок толщиной 3 см.
- Поперек балок набиваются доски с шириной 5 см и толщиной 2 см. Между досками оставляем зазор в 3 мм.
Важно: желательно сделать пол разборным для того чтобы была возможность проникнуть к сифону и при необходимости его почистить.
Установка печи-каменки

На фото — печь-каменка, смонтированная на металлической площадке
Печь-каменка — это неотъемлемый атрибут русской бани, поэтому об установке этого агрегата необходимо подумать еще на этапе проектирования. Дело в том, что печь нагревается до высоких температур, а кроме того она много весит. Таким образом до того как устанавливать каменку в парное отделение или в предбанник нужно сделать бетонный фундамент.
Фундамент делается на полметра шире, чем периметр печи. Нет необходимости существенно заглублять основание, поэтому котлован роем примерно на 20-30 см вглубь грунта. Землю на дне котлована нужно уплотнить трамбовкой, после чего,уложить на дно песчаную подушку толщиной 5 см. В котлован закладывается решетка из арматурного прута и заливается цемент-песчаный раствор вперемешку с щебнем.
Вывод
Построить баню непросто, но при желании вполне возможно. Главное следовать технологическим предписаниям и не работать в одиночку. Несколько помощников существенно ускорят достижение желаемого результата. Больше полезной и интересной информации вы сможете найти, посмотрев видео в этой статье.
9ban.ru
Баня своими руками — чертежи, фото, видео как построить баню своими силами
Как известно, настоящий мужчина должен построить дом, посадить дерево и вырастить сына. Вместо дома можно построить баню. Вместе с начинающими строителями мы разберемся, как построить баню своими руками.

Планирование бани
Баня своими руками начинается с планировки и составления чертежа. Планируем размеры помещений и коробки бани, устройство площадки под фундамент. Несмотря на индивидуальность каждого проекта бани, все современные постройки такого назначения имеют разделение на следующие помещения: парная, моечная, предбанник, который также может выполнять функционал комнаты отдыха, раздевалка.

К основному срубу бани уже после завершения всех работ могут быть пристроены помещения различного назначения, если такая необходимость возникнет. Ни одна русская баня не обходится без печи, также в плане должны быть предусмотрены слив и дымоход.
Фундамент бани рассчитывается, исходя из веса, высоты и устройства, которые имеют надстройки на банном срубе. Надстройка включает второй этаж любого назначения, а также устройство одно- или двускатной крыши.
Расчет высоты потолков осуществляется, исходя из того, чтобы взрослый мужчина мог поместиться в полный рост. При определении горизонтальных размеров парной нужно также учитывать рост взрослого человека при желании париться в положении лежа. Определяя размеры будущей постройки, необходимо учитываться планируемое количество одновременно находящихся в парилке и помывочной людей.
На заметку:Размеры бани напрямую зависят от скорости прогрева помещений и длительности сохранения тепла. Для возведения здания бани предпочтительно использовать брус с сечением 15х15 см. Исходя их этих соображений, строим чертежи и ориентируемся на них при строительстве.
На фото представлены типовые чертежи бани для ознакомления:
Баня 4х6
Баня 4х6 с крыльцом

Баня из профилированного бруса 4х6
Еще больше чертежей бань вы можете посмотреть перейдя по ссылке
Фундамент для бани и отмостка
Итак, строим баню своими руками. Начинаем с фундамента.
Совет мастера:Наиболее надежный тип фундамента – ленточный: нижний слой из крупного песка высотой 15-20 см, следующий слой из щебня или мелкого камня такой же высоты необходим для отведения влаги и амортизации температурных деформаций, которым подвергается бетонная лента фундамента бани.
Для грунтов каменного и глинистого типа высота фундамента может составлять 40-60 см, при этом над поверхностью фундамент выступает на 15-20 см. Для остальных типов грунтов высота фундамента может быть 60-80 см.

Ленту заливают бетоном в пропорции смеси 1:3, не забывая вставлять на каждую ленту по 2-3 вертикальных металлических стержня для обеспечения связки стены и фундамента. При этом обязательными условиями являются армирование, представляющее собой прокладку из различных кусков металла, связанного проволокой, примерно посредине слоя ленты, и бутование колотым камнем.
Если в проекте бани присутствует цоколь, то делается он также заливным с бутованием некрупным камнем. Между фундаментом и цоколем по всему периметру укладывается гидроизоляция – два-три слоя толи или рубероида. Цоколь также изолируется от стены двумя слоями рубероида.
При отсутствии цоколя фундамент нужно поднять над поверхностью земли на 20-60 см. При этом ширина фундамента должна быть больше толщины бруса на 10 см.
Совет мастера: Предотвратить гниение нижних брусьев древесины и избежать постороннего запаха можно, промазав на два раза два нижних бруса по всему периметру здания отработкой машинного масла. Дополнительной гарантией долговечности бани будут нижние венцы из лиственницы.
В цоколе, а при его отсутствии – в верхней части фундамента на противоположных стенах выполняются отверстия для вентиляции размером 15х15 см, которые должны находиться ниже уровня пола.
Отмостка играет огромную роль в сохранении здания и продолжительности его эксплуатации. Однако отмостка из бетона, которая используется в современном строительстве, через 2-3 года уже отходит от фундамента, а через 5-6 лет практически полностью разрушается.
В этом случае стоит обратить взгляд к опыту наших предков, которые для устройства отмостки пользовались глиной. Глиняная отмостка выполняется шириной 120-150 см, поверх слоя глины насыпается слой мелкого камня или щебня толщиной около 10 см, который защитит глину от вымывания капающей с крыши водой.
Об альтернативном варианте основания для бани смотрите видео:
ВидеоУстройство слива в парной
Внутри будущей ленты фундамента в центральной части помещения моечной копаем яму размером около 180х180 см, примерно 1.5 метра глубиной. Выполняем заливку стенок бетоном толщиной 20-25 см с армированием металлом и бутованием мелким колотым камнем. Сверху яма закрывается настилом из досок.

Примерно посередине устраивается водяной затвор, вся площадь армируется проволокой, используются также обрезки уголков, труб и др., прикрепив к настеленным доскам перекрытия, и затем бетонируем. В районе водяного затвора толщина слоя должна составлять не менее 20 см с плавным подъемом в сторону фундамента.
По всему периметру моечного помещения и парной на свежий бетон укладываем плоские камни. Яма с водяным затвором под полом помещения моечной обеспечивает комфортную температуру поверхности пола.
Если имеется достаточное количество досок для опалубки заливку стен сливной ямы можно выполнять одновременно с устройством и заливкой ленты фундамента. Водяной завтор может быть сварен из металла и установлен в любом удобном месте до заливки пола или забетонирован в виде ямки со вставленной в нее толстой жестяной пластиной, нижняя часть которой должна опускаться на полсантиметра-сантиметр ниже отводной трубы.
Настил пола под лагами выполняется плоским камнем на бетонный раствор, имеющим общую толщину слоя порядка 20 см. Под ним такой же толщины теплоизоляционная подушка из шлака, выдержанного не менее года на улице. Бетонный пол делается с уклоном к водяному затвору.
Лаги, для которых служат обрезные доски толщиной 40-50 см, составляют с настилом единое целое, вся конструкция стоит на бетонном полу, контакт со стенами бани отсутствует. Доски пола должны быть строганными, а их грани – заоваленными. Необходимо оставить между досками настила зазоры по 5 мм для стока воды.
Стены бани: собираем коробку
Стены бани могут быть выполнены из кирпича или пеноблоков, можно построить каркасную баню своими руками или поставить рубленую баню. Для возведения русской бани своими руками проще всего использовать профилированный брус, о размерах и обработке которого было сказано выше.

Для внутренней перегородки применяется брус-капиталка сечения 15х10 см. Если нижние 2-3 венца сруба бани выполняются из наименее подверженной гниению лиственницы, то следующие венцы можно укладывать из брусьев любых пород, желательно, хвойных.
Работы выполняются в следующем порядке: сначала укладывается ленточный фундамент, а затем можно приступать к строительству бани. Фундаменту необходимо дать просохнуть не менее трех суток, при сырой и прохладной погоде – не менее пяти.
Следующий этап – укладка рубероида, предварительно нарезанного на полосы, по всей длине ленты фундамента, при этом стыки первого и второго слоев рубероида не должны совпадать. Ширина полос рубероида должна быть больше ширины ленты фундамента не менее чем на 50 мм (20 мм дается снаружи и 30 мм – внутри). Щели между брусьями уплотняются мхом или паклей, вымоченной в отработанном машинном масле.
Основой всего сруба является оклад по периметру бани. Чтобы сделать разметку для отверстий, кладем брус на ленту фундамента вплотную к штырям. Высверливаем сквозные отверстия диаметром 25 мм. На концах брусьев в соответствии с выбранным типом строения зарезаем пазы или шипы. Каждый брус ставим на свое место, места шиповых соединений прокладываем утеплителем.
Ориентируясь на план, для каждой стены, в том числе, для перегородок, определяем длину и количество брусьев. Готовим мерки из дюймовой доски, распиленной пополам вдоль, и помечаем их, как удобно, учитывая нахлест соединений или глубину вруба (для внутренних перегородок). Заготовки делаются и на все угловые и продольные соединения.
По изготовленным меркам с помощью пилы делаем заготовки бруса примерно для 4-5 венцов. Во время сборки коробки бани из бруса своими руками любая погрешность от первоначально установленных зазоров будет заметна, что позволяет своевременно исправить ошибку. Вставлять дверные блоки желательно сразу на оклад, оконный – по достижении нужного уровня.
Совет мастера: Выполняя сборку любых соединений брусьев между собой, не надо подгонять их вплотную. Свободное пространство в пазах заполняется утеплителем неплотно.
Порядок соединения рядов брусьев между собой следующий:
- новый целый брус укладывается и подгоняется по месту;
- засверливаются отверстия: на отрезках бруса длиной свыше 2 метров – не менее двух, на прогонах – не менее трех, проходя насквозь вновь положенный брус и наполовину в нижележащий;
- снимаете брус, в получившиеся отверстия плотно забивается шкант, изготовленный из чурки бруса, длиной полторы высоты бруса;
- укладываете ровным слоем паклю по всей длине;
- ставите на место брус, совмещая отвестие со шкантом, и набиваете его, добиваясь плотной посадки на место;
- топором необходимо вырубить нагель на глубину не менее 2 см, чтобы после усадки бруса шканты не поднимали вышележащие брусья.
Когда сруб готов, можно приступать к устройству крыши, об устройстве которой мы поговорим в отдельной статье. На первый взгляд, может показаться сложно, но нет ничего невозможного, при желании можно возвести и хамам своими руками.
stroitelstvo.guru
Как построить баню правильно, проекты бань, полезные советы. Правильная баня, особенности ее проектирования и строительства, советы мастеров по сооружению и оборудованию современной бани с учетом традиций банного строительства
Перед тем, как приступить к строительству бани следует принять решение о том, какой она должна быть. Ведь только правильная баня позволит получить порцию оздоровления и релакса. Не следует полагаться на то, что такая небольшая постройка может быть выполнена без всякого плана и проекта — чтобы комфортно расположиться в парилке и получить качественный пар — потребуется рассчитать размеры комнаты и мощность печки для ее обогрева, также потребуется предусмотреть помещение для душевой и раздевалки — без них баня не будет в полной мере соответствовать современным требованиям к качественному отдыху. Так-что если решено, что на участке будет построена баня, как построить ее правильно, в соответствии с общепринятыми нормативами, застройщикам придется узнать обязательно.
В чем преимущества сооружения бани по типовому или индивидуальному проекту

Сооружение банного домика без проекта обычно приводит к нерациональным затратам средств на строительные материалы, которые покупаются с излишком, или наоборот, осуществляется завоз на участок недостаточного их количества, в результате — дополнительные закупки и повторная оплата транспортных расходов. В самом банном домике очень важно в правильной очередности разместить внутренние перегородки и помещения. Строительство без проекта часто заканчивается сооружением малопригодного для бани домика с ограниченной функциональностью.
Вместе с тем, грамотно составленный проект позволит:
- с большой точностью учесть все необходимые параметры банного помещения,
- максимально повысить функциональность бани,
- определиться с обустройством достаточно сложных инженерных систем холодного и горячего водоснабжения, стоков, дымоходов и печки, электропроводки,
- правильно определить место расположения оконных и дверных проемов,
- составить реальную смету расходов.
От владельцев будущей бани, их запросов и финансовых возможностей, зависит решение — использовать при строительстве типовый проект или прибегнуть к заказу индивидуального, в котором будет учитываться желаемая площадь строения, наличие мансардного этажа или веранды.

В процессе потребуется также определиться с материалом для строительства — специалисты рекомендуют использовать натуральную древесину, а именно — брус камерной сушки. Хоть стоит он недешево, зато приступить к водным процедурам в стенах такой бани можно будет через каких-то 3-4 недели, сооружению не грозит усадка, т.е. угроза изменения геометрии постройки и растрескивание стен практически исключаются.
Как правильно сделать баню — немого о душе бани, ее особенностях и главных отличиях от сауны

Поскольку традиции банного строительства формировались на протяжении многих столетий, то естественно, что они откорректированы временем и опытом многих поколений мастеров. Но в современном строительстве наблюдается внесение некоторых новшеств в и эту область, в основном за счет применения новых технологий и современных материалов. Но при этом обязательным условием остается сохранение главных принципов создания самого строения и его души — после посещения правильной бани у человека должно возникнуть непреодолимое желание посетить ее еще много раз.
Хотя человеку непосвященному кажется что и баня и сауна это примерно одно и то же — высокая температура и много пара, но на самом деле между ними существует немало отличий, основное из них — в способе приема процедуры. Если в сауне температура обычно превышает 100 С, при влажности воздуха порядка 2-25%, а для получения пара на камни плещут воду с добавками экстрактов пихты или эвкалипта, то температура в банном помещении не должна превышать 65-70 С, при влажности порядка 60-65%, т.е. человек в парилке русской бани чувствует себя намного комфортнее.

Следует вспомнить о самом важном и оригинальном атрибуте бани — венике, дающем возможность получить превосходный массаж. Исходящие от распаренных листьев частички масел,ароматы и фитонциды оздоравливающее воздействуют на весь организм, повышают иммунитет и укрепляют нервную систему. В сауне веник не используется — температура там слишком высокая.
Между сауной и парилкой существуют также некоторые архитектурные отличия — правильный потолок в бане намного выше, чем в сауне, сама парная обычно является помещением достаточно просторным.

Если в сауне традиционно используется металлическая открытая печь-каменка, то для бани более приемлема кирпичная дровяная печь с закрытой каменкой, сама печь и способ вентиляции предусматривают вариант создания помещения с разницей в температурах возле потолка и пола, с мягким паром. В русской бане принято держать дверцу печки закрытой, изредка открывая ее, в том случае если есть необходимость увеличить количество пара. Это позволяет поддерживать постоянную температуру внутри парной на протяжении более длительного времени.
Как правильнее париться в бане — по белому или по-черному

Каждому из нас приходилось слышать об этих двух методах парения в русской бане. Следует знать, в чем их отличия и преимущества. Разница заключается в наличии печной трубы в бане по-белому: дым от печки уходит через сооруженный над печкой кирпичный дымоход с трубой. Баня по-черному дымохода не имеет, полученный от печки жар поднимется к потолку, остывая он опускается вниз и удаляется из помещения через специальное отверстие в стенке.
Преимущества бани по-черному в быстром прогреве, а следовательно — в возможности получать экономию на топливе. Баню по-белому начинают растапливать за 5-6 часов до начала парения.

Знатоки подчеркивают, что баня по-черному позволяет обеспечить температуру парения от 40 С до 100 С, нахождение в такой парилке вызывает активное потоотделение, веник позволяет получить идеальный массаж, мытье производится зольным щелоком, для ополаскивания обычно применяют мягкую дождевую воду.
Как правильно построить баню — основные требования к внутренним помещениям и функциональности

Учитывая современные тенденции в строительстве и возможности, полученные с появлением новых строительных материалов специалисты рекомендуют:
- использовать для обустройства пола в бане кафельную плитку — она отличается гигиеничностью, простотой ухода,
- полы при строительстве следует хорошо утеплять — это позволит получить теплый лежак,
- продумать вариант подводки холодной воды и способ получения теплой — использовать банную печь для подогрева воды не рекомендуется,
- помывочную комнату следует оснастить тропическим или массажным душем,
- прокладку электрических коммуникаций следует выполнять с учетом требований по электробезопасности помещения с повышенной влажностью.
Критерии выбора места для строительства бани

В старые времена принято было сооружать бани вблизи от естественных водоемов — рек или озер. Но сегодня бани обычно сооружают на загородных участках, водоемы на них если и имеются, то в большинстве случаев — искусственно созданные пруды или бассейны. Если водоема нет вообще, то баню рекомендуют располагать в дальнем углу участка, подальше от дома — этого требуют правила пожарной безопасности.

Кроме того, таким образом банным процедурам придается некоторая приватность. На количество комнат в бане и их размеры окажут влияние размеры выделенной под строительство площадки, а также планируемое количество людей, которые будут одновременно принимать банные процедуры. Даже самый небольшой банный домик должен вмещать: моечную, парную и комнату отдыха или раздевалку.
Баня внутри — каким материалам отдать предпочтение

Поскольку в русской бане принято париться не спеша и с комфортом, то внутри баню также следует оборудовать согласно традициям. Полки в бане должны быть удобными, лучшими материалами для их изготовления являются:
- древесина осины, способная забирать отрицательные энергии,
- липа, источающая изумительный аромат и не обжигающая тело при высоких температурах,
- толстая березовая доска.
Одной из особенностей русской бани является горизонтальный температурный режим в помещении, паровые процедуры в ней принято принимать лежа на полках, поэтому лавки должны иметь достаточную длину и ширину, позволяющую принять удобное горизонтальное положение.

Потолки в парной принято делать высокие, не менее 2 м. Именно под потолком скапливается наибольшее количество пара. Для проветривания парной открывают дверь, поэтому не следует проектировать помещения так, чтобы парная имела дверь в моечную, являющуюся местом скопления влажного воздуха.
В качестве обшивочного материала для стен лучше всего использовать натуральную сухую древесину, к примеру — кедровую. Она отличается ярким хвойным ароматом, ее испарения обладают лечебными свойствами. Можно также применять пиломатериал из других деревьев лиственных пород. Не следует отделывать стены доской из деревьев, которые при нагревании начинают выделять смолы — в условиях парной потеки смолы могут стать причиной ожога при касании, да и дышать перенасыщенным смолянистыми парами воздухом не очень полезно.

Специалисты рекомендуют планировать парную размерами не менее 2,5х3 м, габариты кирпичной печки в ней — 0,7х0,8м. Закладывая правильный фундамент под баню не следует забывать, что печь, выложенная из камня или кирпича будет иметь немалый вес и также потребует заливки фундамента, желательно чтобы он представлял собой армированную бетоную подушку 30-ти см толщины, площадью не менее 1х1,1 м. Правильная печь должна быть выложена так, чтобы расстояние от верхних камней до потолка равнялось 1,2 м. Высота двери ложна соответствовать высоте размещения полка.
Особенности инженерных коммуникаций в бане
Бане в процессе эксплуатации потребуются те же инженерные системы, которые нужны в обычном загородном доме. Различия конечно-же будут, вызваны они наличием помывочной и парной. Если об отоплении в парной беспокоиться нет смысла, то для помывочной потребуется установка отопительных приборов, это могут быть радиаторы или конвекторы, для большей комфортности рекомендуется обустройство теплого пола.

Помывочную можно оборудовать по-разному:
- установить душевую кабинку,
- сделать лейку,
- установить дубовую бочку-купель,
- добавить в интерьер ведро для обливания.
Поскольку все принимаемые в помывочной процедуры связаны с водой и повышенным парообразованием, то логично будет планировать отделку стен этого помещения кафельной плиткой. Нею-же рекомендуется выложить пол.
Чтобы перемещаться было комфортно и не скользко, на пол можно положить деревянный настил, который легко можно убирать и выносить на улицу для просушивания.

Важной для бани, а еще в большей степени для парной, является система теплоизоляции. Идеальный результат можно получить если в качестве материала для внутреннего утепления использовать каменноватные плиты на которые со стороны помещения монтируется слой алюминиевой фольги, затем слой облицовочного материала — вагонки натурального дерева. Такие стены, как хороший термос, отлично удерживают жар внутри парилки.
Полам в помывочной и парилке следует придавать уклон в сторону сливного отверстия, достаточный для свободного и быстрого удаления воды в дренажный колодец.
Правильная банная печь

Главным сооружением в банном домике является печь. Мы уже упоминали, что традиционный вариант — это кирпичная каменка. Но сегодня все чаще можно встретить в парной печь из металла. Причины здесь очевидны — металлическая печь имеет намного меньший вес, чем кирпичная и сооружения отдельного капитального фундамента не требует. Установить металлическую печь можно самостоятельно, кирпичную-же должен складывать мастер, оплата труда которого стоимость имеет немалую.
Металлическая печь быстро прогревает помещение, позволяя получать экономию на топливе, чтобы принять банные процедуры не потребуется растапливать ее на несколько часов раньше. Модели металлических печей имеют достаточно разнообразную конструкцию и дизайн, выбрать подходящую для определенного интерьера не представляет особой проблемы. Из недостатков металлических агрегатов следует отметить склонность к быстрому остыванию.

Какая-бы печь не устанавливалась, металлическая или кирпичная, следует придерживаться правил пожарной безопасности, а именно:
- устанвливать печь на определенном расстоянии от горючих деревянных конструкций,
- устанавливать защитные фартуки их талькохлорида или кирпича.

В заключение можно обобщить: сооруженная из классических или современных материалов русская баня будет служить сохранению вашего здоровья и радовать вас своим легким паром в каждое посещение, главное, чтобы все в ней было сделано по вашему вкусу и соответствовало вашим представлениям о комфортности.
svouimirukami.ru
Баня своими руками: основные рекомендации
Любовь к бане у русского человека передается из поколения в поколение и уже заложена в самих генах. Многие из нас, будучи еще совсем детьми, парились в баньке со своими отцами и дедами, а, повзрослев, стали водить в нее и своих детей. Любовь к этой древней традиции рождает вопрос: как построить баню своими руками?
Этот процесс не такой простой, как может показаться на первый взгляд, поскольку необходимо учесть множество нюансов. Тем не менее, если вы будете следовать советам и рекомендациям, о которых пойдет речь далее, строительство бани своими руками пройдет очень быстро и легко.
Вернуться к содержанию ↑
Подготовительный этап
Если вы решили строить баню своими руками, то начать лучше всего с подготовительного этапа.
Он включает в себя следующие шаги:
- выбор места для строительства;
- проектирование;
- выбор материалов;
- составление сметы;
- возведение строения;
- утепление и отделка;
- благоустройство.
Только тщательно проработав каждый пункт, и продумав все до мелочей, у вас получится правильная баня, в которой будет приятно париться. Если у вас нет подобного опыта работ, то в сети уже есть готовые проекты, которые избавят вас от лишней головной боли.
Вернуться к содержанию ↑
Процесс возведения бани
Когда подготовительный этап будет завершен и вы определитесь с местом строительства, составите проект и закупите все необходимые материалы для бани своими руками, то можно будет начинать непосредственно процесс строительства бани.
Возведение бани начинается с фундамента.
Он состоит из следующих этапов:
- возведение фундамента;
- возведение стен;
- сооружение кровли;
- укладка пола;
- утепление;
- отделочные работы.
Постройка бани происходит строго в этой последовательности независимо от того, хотите вы каркасную или деревянную баню, из кирпича или из бруса. Давайте остановимся на каждом этапе возведения более подробно и разберемся в том, как правильно построить баню.
Вернуться к содержанию ↑
Возведение фундамента
В старину, баня своими руками возводилась на фундаменте, сооруженном из валунов, уложенных на небольшой глубине. На каменные глыбы устанавливались бревна. Деревянная банька на таком фундаменте способна простоять не одно десятилетие. Помимо этого, укладка камней не требует никакой особой технологии и знаний, поэтому вы сможете сделать все сами.
Отличной альтернативой классике для бани своими руками станет незаглубленный монолитный фундамент. По технике строительства он немного сложнее предыдущего, однако, нет ничего сложного в том, чтобы сделать его самостоятельно. Он станет великолепным решением независимо от того, на каком типе грунта мы строим баню.
Вернуться к содержанию ↑
Возведение стен
Отвечая на вопрос, как построить баню своими руками, мы подошли к следующему этапу, а именно — возведению стен. Делать стены можно из различных материалов, например, кирпича или шлакоблока, однако, хочу вас заверить, что лучшим вариантом станет деревянный брус. Баня своими руками, построенная из дерева не только очень привлекательно выглядит, но и создает ту неповторимую атмосферу, которая просто необходима для приятного времяпрепровождения.
Схема устройства стен
Если вы не знаете как правильно сделать стены из деревянного бруса, то не отчаивайтесь, поскольку в этом нет ничего сложного. Ее очень легко освоить самому, а из подручных средств, необходимых для строительства бани и возведения стен, потребуется стандартный набор столярных инструментов для работы по дереву.
Деревянные бани, стройка которых начинается с распила материалов на заготовки, очень просты в возведении. При этом необходимо соблюдать основные правила возведения строений из деревянного бруса, чтобы конструкция обладала достаточной жесткостью и со временем ее не повело. Для этого, после сбивания брусьев, здание обтягивается конопатной лентой.
Вернуться к содержанию ↑
Возведение кровли
Крышу для бани построить очень просто. Здесь не нужен слишком изощряться и придумывать что-то новое. Независимо от того, из каких материалов были возведены стены, лучшим решением станет обычная двускатная кровля с простыми стропильными фермами классической треугольной формы.
Если бы вы хотели париться и летом и зимой, то рекомендуется сделать в крыше два слуховых окошка. Они необходимы для проветривания помещения после парных процедур в зимний период времени, чтобы в бане не накапливалась влага.
Вернуться к содержанию ↑
Укладка пола
Чтобы пол для бани своими руками получился хорошим необходимо предусмотреть в нем сток для воды. От этого зависит комфортабельность эксплуатации собственноручно построенной бани и гигиена. Чтобы вода не застаивалась, под полом можно вырыть небольшую яму, а в настиле сделать небольшие отверстия, через которые будет уходить вода.

Схема устройства пола в бане
Чтобы вода не застаивалась и зимой не замерзала, яму рекомендуется засыпать керамзитом. Это позволит избежать сквозняков и сократить время и количество необходимого для растопки топлива.
Если мы делаем баню вблизи канализационных коммуникаций, то систему слива можно подключить к ним. Так будет значительно лучше, поскольку вода будет выводиться наружу, что позволит избежать слишком высокой влажности в помещении и предотвратить образование грибка. В этом случае перед укладкой пола рекомендуется залить бетонную стяжку и только после этого выстилать настил, в качестве которого лучше всего использовать натуральное дерево хвойных сортов, пропитанное специальным антисептиком.
Вернуться к содержанию ↑
Утепление бани
Если вы задумываетесь о том, как построить баню своими силами, чтобы она хорошо держала тепло и быстро прогревалась до оптимальной для парных процедур температуры, то без утепления просто не обойтись. При этом утеплять необходимо не только стены, но и потолок.
В качестве утеплительного материала лучше всего использовать базальтовую вату. Этот материал не возгорается при высоких температурах и обладает великолепной паропроницаемостью. Если парилка будет отделана нехвойными породами деревьев, то поверх слоя утеплителя рекомендуется выстлать слой фольги. Она позволит существенно снизить потерю тепла и прогреть парилку до более высокой температуры.
Что касается утепления пола и потолка, то для них можно также использовать базальтовую вату или любой другой современный материал, который продается в магазине и обладает хорошей паропроницаемостью и устойчив к возгоранию.

Финальная стадия строительства бани — отделка
Чтобы продлить срок службы утеплительного материала рекомендуется вместе с ним укладывать слой гидроизоляции, которая будет предотвращать образование конденсата.
Вернуться к содержанию ↑
Отделочные работы
Отделка — это финальная, но не менее важная, стадия возведения бани. Именно от нее будет зависеть комфорт и удобство отдыха во время посещения бани. Опытные банщики рекомендуют для отделки использовать натуральное дерево таких сортов, как дуб, липа, хвойные породы и некоторые другие. Эти деревья при нагревании будут наполнять парилку удивительным ароматом и оказывать целебное воздействие на организм.
Если вы дочитали до этого места, то значит теперь у вас есть подробное представление о том, как сделать баню самостоятельно. Если вы будете придерживаться всех рекомендаций, о которых шла речь ранее, то у вас непременно получится построить самую лучшую баню.
Предлагаем простое и понятное видео о том, как самому построить баню.
hotbanya.ru
Строительство бани своими руками. Как построить баню?
Строительство бани своими руками занятие увлекательное и полезное. Почему? Во-первых, не секрет, что банные процедуры укрепляют здоровье, а во-вторых, построив баню и разобравшись во всех строительных процессах можно приступать и к строительству дома своими руками. Зачастую так и происходит, что на участке строится сначала времянка, например, баня или гостевой домик, а потом и основное здание – дом.
Уже много веков подряд баня является настоящим символом славянских народов. Русская баня давно перестала быть просто средством для очищения тела – это традиция, позволяющая очистить также и душу, расслабиться и приятно провести время. И, конечно, имея дачу или частный дом, трудно отказать себе в прихоти обустроить собственную баньку, которая не идет ни в какое сравнение с общественной. Тем более, это не так сложно, как может показаться на первый взгляд, особенно если у Вас есть хоть небольшой строительный опыт. Если же пока собственного дома нет, а в наличии только участок под застройку, можно начать строительство как раз с помещения бани, поскольку времени это займет немного, а в последствии в период строительства ее можно будет использовать в качестве временного жилья.
Сейчас в нашей стране представлены бани практически всех возможных в мире типов. Это и хамам, и сауны, и офуро – кому что по душе. Каждая из них имеет ряд преимуществ, а также свои особенности при обустройстве. В данной же статье речь пойдет о традиционной русской бане и об особенностях, которые стоит учитывать при ее строительстве.
Перед началом строительства стоит определиться с местом расположения бани, ее размерами, материалами для фундамента, стен, кровли, ее возможной отделкой. Когда все эти вопросы решены в теории, нелишним будет составить хотя бы приблизительную смету, чтобы знать, на какую сумму денег рассчитывать при строительстве. Когда подсчеты закончены и основные вопросы решены, стоит переходить от теории к практике.
Где построить баню? Выбор места

Первым делом нужно определится с местом, где будет располагаться баня. Это может быть как отдельно стоящее строение, так и прилегающее к основному дому. Как правило, предпочтение отдают первому варианту, поскольку при совмещении бани с жилыми помещениями в них может повышаться уровень влажности, распространяться неприятные запахи. Но в случае грамотного подхода к ее обустройству и надежной гидроизоляции такие проблемы возникать не должны.
Идеальным местом для строительства бани можно считать берег озера или речки, правда, от воды стоит отступить метров 15, чтобы в случае повышения уровня воды в водоеме здание не затопило.
Еще один совет: не нужно строить баню у дороги. Если Ваш дом находится возле проезжей части, лучше «спрятать» строение бани за ним.
Прекрасным решением может стать расположение бани на территории леса или сада. Возле помещения можно обустроить летнюю площадку или террасу со столиком и лавочками, где можно посидеть в тени, наслаждаясь природой, пением птиц, шумом ветра.
Проектирование и планировка бани

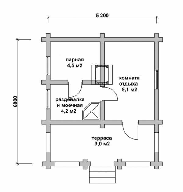
Следующий этап после выбора месторасположения – определение планировки самого помещения и его размеров. С размерами, в принципе, никаких ограничений нет, были бы возможность и средства, но и слишком большой ее делать не стоит. При проектировании общая площадь рассчитывается, исходя из площади на одного человека, составляющую около 3 м2. Обычно размеры бани составляют 6х6 м2, хотя для некоторых вполне хватает и 3,5х3,5 м2.
Что же касается планировки, то, как правило, баня включает в себя парилку, мойку и предбанник. В более просторных строениях предбанник может служить полноценной комнатой отдыха. По желанию можно также обустроить санузел, душевую, кладовку для банных принадлежностей, гардероб и т.д. Если размеры постройки ограничены, предбанник можно заменить тамбуром с вешалкой и шкафом для разных вещей. В случае же, когда баня используется сезонно, предбанник вообще не обязателен, его можно заменить верандой или террасой. По размерам отдельных помещений принято следующее соотношение между ними: парная:мойка:предбанник=1:1,5:2. Но такое соотношение условно и нет ничего плохого в том, что оно может быть немного нарушено.
См. Проект бани из сруба.
Типы фундаментов для бани. Какой фундамент выбрать?

Процесс непосредственного строительства начинается с фундамента. Выбор типа фундамента зависит от местности и типа грунтов. Он может быть ленточным, свайным, столбчатым.
Самым простым в исполнении и распространенным является ленточный фундамент. Для него сначала выкапывается траншея, в нее насыпается слой песка толщиной до 20 см, заливается водой и трамбуется. Затем следует слой щебня и арматура. Все это заливается бетоном до уровня земли или пола, смотря какой цоколь, кирпичный или бетонный, будет у постройки. Если цоколь будет кирпичным, следует между кирпичной кладкой и бетоном проложить слой гидроизоляции. Также в кладке на 2-3 ряду нужно выполнить вентиляционные продухи.
Столбчатые фундаменты используются реже. Они выполняются из бетона, кирпича или других материалов или их комбинаций. Также могут использоваться трубы из асбестоцемента, залитые бетоном. Некоторые делают столбчатые фундаменты из древесины, хотя это и не очень практично – максимальный срок службы при использовании дубовых столбов составляет около 12 лет, а про другие породы и говорить нечего. Так что древесину лучше поберечь для стен, а фундамент все же должен быть надежным и долговечным.
В случае, если баня будет строиться на пучинистых грунтах или на неровной поверхности, в качестве фундамента стоит выбрать сваи из металла или бетона. Свайный фундамент является прекрасной опорой и сможет уберечь постройку от оползней и проседания грунта.
Из какого материала должны быть стены в бане?

Классическая русская баня просто обязана быть выполнена из дерева. И аргументов в пользу древесины можно приводить очень много: она экологически чистая, не передает тепло, а при нагревании запах выделяющихся эфирных масел приносит не только удовольствие, но и пользу для здоровья. Хотя в последнее время, ссылаясь на экономию, хозяева останавливают свой выбор на более доступных материалах, таких как кирпич или камень. Также начали появляться и каркасные конструкции. Конечно, такие постройки более долговечные, да и пожары им не так страшны, но все же что-то теряется при отказе от классической древесины. Поэтому далее будет описан процесс возведения именно деревянных стен.
Перед укладкой первого венца фундамент нужно покрыть слоем гидроизоляции. Бревна первого венца должны быть больше в диаметре, чем остальные, и обрабатываться антисептиком и гидроизоляционной мастикой. При укладке можно использовать также подкладки (поперечные бруски).
При укладке углы исполняют «в чашу», при этом концы брусьев выходят за уровень стен, защищая помещение от сквозняков и осадков. Можно выполнить укладку «в лапу», но для этого лучше сразу же обратиться к профессионалам, поскольку этот тип укладки требует навыков в подобном деле и высокой точности исполнения. Если же Вы решили все сделать самостоятельно и сэкономить на наемном труде, лучше воспользоваться первым способом укладки.
Также бревна могут соединяться в торцевой шпунт. При этом в паз на торце одного бревна входит шип на торце второго.
Для крепления по вертикали на верхних бревнах снизу делается паз, которым они ложатся на нижние, а потом соединяются штырями.
Процесс возведения стен заключается в укладывании брусьев «в лапу» или же в торцевой шпунт. Также возможен вариант укладки без шпунта, когда в середине бруса и в углах устанавливаются деревянные или металлические штыри. Сечение брусьев выбирается в пределах 15х15 – 15х18. Между бревнами необходимо использовать прокладки. Раньше для этой цели широко и повсеместно использовали паклю или мох, но рекомендовать их в наше время никто не будет. Сейчас предлагается более современное решение – ленточный межвенцовый утеплитель. Он может быть изо льна или джута, продается в рулонах. При использовании он режется на части необходимой длины, укладывается на поверхность венца и крепится к нему с помощью скоб степлером. Использование такого утеплителя значительно упрощает процесс укладки и делает ненужным конопатку, как при утеплении мхом или паклей. При выборе между льном и джутом следует отдать предпочтение второму, хотя он и дороже. При завершении строительства и некоторой усадке древесины джут прессуется, прекрасно заполняя все щели, защищая от влаги и сквозняков и надежно скрепляя между собой брусья. Джутовым канатом можно заполнить все щели и стыки строения, что придаст ему не только дополнительной гидроизоляции, но и украсит внешний вид.
Парная и выбор печки для бани

Парная – это основа русской бани. Ее размеры зависят от количества людей, которые будут париться одновременно, размера полка, а также печки, которая и будет нагревать помещение парной. Рассмотрим подробнее все факторы, влияющие на размеры парной.
Количество людей и их размещение в парной определяется на стадии проекта. Они могут сидеть или лежать на полке, от чего зависит и размер самого полока. Для «сидячих» мест полок может быть длиной до 60 см, для «лежачих» — до 180 см. Кроме того, он может быть плоским, в виде скамейки, оборудованным упором для головы для «лежачих» мест.
Печь-каменку выбирают по мощности из расчета обогреваемой площади, а также по видам топлива и размерам. Каменка является традиционным способом нагрева воздуха в парилке, но есть и альтернативы: электрические обогреватели или отопительные трубы. Но поскольку здесь рассматривается пример традиционной русской бани, то и выбор будет остановлен на каменке.
Для начала, еще на стадии проектирования, следует выбрать место расположения печи в парной. Идеальным считается вариант ее установки в углу помещения. Водяной бак при этом можно расположить в мойке, а если у парилки с предбанником будет общая стена, то печь сможет отапливать еще и соседнее помещение. В зависимости от площади выбираются наиболее подходящие по мощности печи. Ассортимент, предоставленный на рынке, дает возможность подобрать каменку любых размеров и мощностей. Также печь для бани можно сделать и самостоятельно.
Каменки могут быть постоянного и периодического режима действия. Печи, работающие постоянно, имеют меньшие габариты, работают от электричества, на жидком топливе или газе, дрова в них используются очень редко. Температура такой печи устанавливается вручную и автоматически поддерживается на протяжении всего времени эксплуатации. Ее можно регулировать за счет изменения количества сгораемого топлива или силы тока. Такие печи представляют собой пожароопасное оборудование и требуют при своей установке согласования с пожнадзором. Как правило, в частных и дачных домах они используются редко, их основное назначение – общественные бани и сауны, где требуется постоянная температура в парной на протяжении длительного времени.
В частных банях вполне достаточно печи периодического режима действия. Она более массивная в сравнении с предыдущей и имеет большее количество камней в своей конструкции. Как правило, конструкция печи металлическая и обложенная кирпичом. Идеальным топливом для такой печки, конечно же, являются дрова. Уголь не всегда подходит для топки каменки, поскольку при его сгорании температура может значительно превысить допустимую, разрушая конструкцию печи.
Вот и все советы относительно постройки собственной русской бани. Изучив их, можно заранее оценить свои силы в строительном деле и приступить к детальному планированию и строительству бани своими руками. И все же не следует надеяться только на собственный опыт и знания. При любом начинании следует сначала проконсультироваться у профессионалов, и только потом приступать непосредственно к работам.
Паримся в баньке
prostostroy.com
Как построить баню на даче? Строим баню своими руками.
Как построить баню на даче?
Когда есть время, а тем более желание то, приложив небольшое усилие, баню построить самому очень даже и возможно.
Честно говоря, очень сложно представить дачный участок истинного россиянина без такой надворной постройки как баня ну или сауны. И так, допустим, вы приобрели или самостоятельно построили дачный дом тогда очередь приступать к строительству хорошей баньки.
Безусловно, у каждого народа и, даже, в различных регионах одной страны существуют свои традиции и особенности в строительстве бани и других подобных конструкций.
Модные тенденции просто заставляют владельцев коттеджей и загородных домов возводить финские сауны, турецкие бани с экзотическим названием «хамам», японские «офуро» и иные разновидности русской бани. Но большинство владельцев все же отдают свое предпочтение именно традиционной русской бане с парной, с высокой влажностью, с возможностью попариться веничком и соблюсти прочие ритуалы банно-помывочных процедур.
Как правило, баня является одной из первых построек на дачном участке, так как ее можно использовать не только по-основном ее назначению, но и как временное жилище на период строительства дома, который, как и по времени строительства, так и по стоимости значительно превосходит баню.
К вопросам по строительству бани можно подойти с различной степенью основательности. К примеру, некоторые индейские племена сначала делают специальное углубление в земле, затем утрамбовывают его, а в середине своего рода окопа еще выкапывают ямку и аккуратно складывают туда раскаленные на костре камни. После чего сверху устанавливается шалаш, и как в русской бане брызгают на раскаленные камни специальной водой настоянной на травах и «парятся» в «намертво» закрытом шалаше.
Но если такой вариант вас не устраивает, и вы решили подойти к вопросу строительства бани со всей строгостью ответственностью, тогда перед вами встанет очень много вопросов, которые как вы разумеете, необходимо будет решить. На сегодняшний день существует довольно таки много вариантов строительства даже такого, на первый взгляд, невзрачного и простого сооружения как баня. Это касается ко всему, что не тронь: и фундамента под баню, и стен, и кровельных материалов для бани, и печи в баню, и множества иных не менее важных моментов строительных работ. Как и большинство строительных работ, так и строительство бани начинать необходимо с создания сметы на строительство бани и планировки бани. Хотя до сметы вам придется решить и еще несколько основополагающих строительных вопросов. Например, один с которых это – определение с местом положения на дачном участке вашей будущей баньки.
Как и где построить баню? Место расположения на участке

Если вам посчастливилось и ваш участок находится рядом с каким-то водоемом, к примеру, рекой ну или другим водоемом на даче то хорошо было-бы установить баньку рядом с ним, но желательно не более чем 15-20 метров от воды, но не забывайте и о возможности затопления, если это река.
Если рядом с вашим участком проходит «активная» дорога, то баню лучше будет установить подальше от неё, в противоположной стороне участка. Баню можно установить как отдельным строением, так и совместить с дачным домиком, летней кухней, теплицей и мастерской или с какой ни будь другой хоз-постройкой. Некоторые не желают совмещать баню с жилым домом, так как считают, что из-за повышенной влажности образуется грибок и как следствие неприятного запаха. Какой-то степенью они правы, но при соблюдении всех санитарно-гигиенических норм, грамотно организованной гидроизоляции и качественной вентиляции таких проблем не возникнет.
Чаще всего вход в баню делают в виде террасы или веранды, но можно сооружают площадку для отдыха, где можно было бы отдохнуть в теньке от деревьев, просто посидеть в беседке или послушать умиротворяющее журчание фонтанчика в собственноручно сооруженном искусственном водоеме.
Размеры и планировка бани
Определение размеров бани сугубо индивидуальное дело, но, как правило, размеры дачного участка не позволяют на того чего хочется и поэтому размер строения выбирают 6х6м или 6х4м, конечно можно построить и совсем небольшую баньку -3,5х3,5м. В баньке таких размеров вполне возможно разместить: парную, мойку и небольшой предбанник, который так же может служить комнатой отдыха. Дополнительно можете предусмотреть отдельные помещения для туалета, душа, хранения топлива или инструмента.

Что касается соотношения размеров парной, мойки и раздевалки как 1м:1,5м:2м. Но данное соотношение не является каким-то конкретным определением, каждый решает этот вопрос исключительно индивидуально под свои потребности. К примеру, мы делаем размеры парной 2мХ3м, мойки – 4мХ3м и комнаты отдыха – 3мХ6м. То есть, соотношение мы получили 1:2:3, что нас вполне устраивает и представляется для нас оптимальным вариантом. Если взять баньку небольших размеров, то вместо предбанника можно установить просто тамбур с вешалками и полками для одежды ну и, конечно же, различных банных принадлежностей. Для тех, кто пользуется банькой только в летнее время то можно обойтись и без предбанника, а просто сделать веранду или просторную террасу для отдыха.
Фундамент для бани
Опять же если вам повезло и грунт на вашем дачном участке сухой, однородный и плотный, то фундаментом для бани вполне могут послужить плоские камни, непосредственно на которые укладываются нижние венцы или брусья бани. Но для дополнительной защиты древесины венцы необходимо обработать специальным антисептиком и обмазать горячим битумом. В местах, а точнее по углам бани и в местах соединения внутренних стен необходимо укладывать большие камни, а промежуток между этими (угловыми камнями) можно заполнить гравием или глиной так и всплошную уложить камнями, поверх которых уложить гидроизоляционный слой.
Но данный вид фундамента целесообразно строить только при небольших размерах бани. В противном же случае необходимо возводить полноценный ленточный фундамент мелкого заложения, свайный фундамент, столбчатый фундамент.

Столбчатый фундамент возводят из камня, кирпича или бетона, не редко используется и комбинация этих материалов. Можете использовать как готовые бетонные столбы, так и асбестоцементные трубы, которые впоследствии заполняются бетонным раствором. Конечно, можно использовать и деревянные столбы, но такая конструкция будет менее долговечной. Но если уже и использовать деревянные столбы, то лучше всего применяйте дубовые с дополнительной их обработкой, они могут прослужить и до 10 лет все остальные породы древесины намного меньше. Пространство между столбами можно заделать кирпичной кладкой или сделать насыпную стенку с гравия, битого кирпича, шифера, самана и т.п.
Свайный или как еще называемый винтовой фундамент — подразумевает установку бетонных или металлических свай. Более подробно о винтовом фундаменте можете узнать, пройдя по ссылке. Такой вид фундамента отлично подходит для сложных и пучинистых грунтов, а так же при установке конструкций на склонах.
Что касается ленточного фундамента, который мы и выбрали для своей бани, то его сделать довольно таки просто, а конструкция получается очень надежной и долговечной. Для устройства ленточного фундамента роется траншея, в которой делается гравийно-песчаная подушка толщиной 20-25 сантиметров. Для этого необходимо всыпать слой щебня толщиной 10-15 сантиметров и хорошенько его утрамбовать, затем слой песка толщиной 10-15 сантиметров хорошенько пролить его водой и утрамбовать. Далее в зависимости от типа грунта делается арматурный каркас, опалубка и только после выполнения всех этих манипуляций можно заливать бетон. Если вы будете строить деревянную баню то можно обойтись и без опалубки – залить бетон до уровня траншеи, а цоколь выложить из кирпича выложив кирпич в 4-5 рядов предварительно уложив гидроизоляцию, например еврорубероид поверх бетона. На 2-3 ряде кирпичной кладки необходимо в обязательном порядке сделать вентиляционные продухи.
Стены бани

Оптимальным материалом для возведения стен бани считается бревно или брус. Материал экологически чистый, хорошо держит и отдает тепло, а также обладает свойством «дышать». Что касается натурального камня, кирпича, арболита и иных бетонных вариаций то их используют в тех случаях, когда они более доступны, чем натуральная древесина. Преимуществом каменных конструкций – является долговечность и отличная пожаробезопасность. На сегодняшний день, благодаря простоте и возможности использования различных недорогих современных материалов, большим спросом пользуются каркасные стены бани.
При строительстве бани из бревна первый венец (оклад) делается из более толстых бревен и укладывается на предварительно уложенный слой гидроизоляции. Помимо этого нижнюю сторону первого венца необходимо обработать специальным веществом антисептиком и покрыть гидроизоляционной мастикой, можете применять и поперечные бруски – подкладки.

Если сруб бани выполняется из бревен, то лучше будет, если углы выполнять «в чашу», таким образом, концы выходят за пределы стен, что обеспечивает защиту замков от ветра и дождя. Использование углов «в лапу» требует большого опыта и мастерства от плотников. В данном случае концы бревен выполняют двойным «ласточкиным хвостом» с угловым шипом. Но так как стоимость плотницких работ и так довольно таки высока то разумнее будет отказаться от второго варианта, дабы избежать необоснованных затрат.
Но, не смотря на это наиболее экономичное и простое соединение бревен является – торцевой шпунт, когда на боковой стороне бруска делают паз, а на торце другого бруска делают шип.
У каждого оцилиндрованого бруска или бревна (с нижней стороны) делается специальный паз, которым бревно укладывается на поверхность другого бревна, а бревна между собой соединяются друг с другом специальными штырями (шкантами, нагелями).
Таким образом, стены бани из бруса складываются довольно таки просто так же как и подвесной потолок своими руками. Для этого берется брус сечением 15ммХ15мм или 15ммХ18мм и укладываются «в лапу» или в торцевой шпунт, конечно можно и без шпунта, используя металлические или деревянные (как правило, из дуба) штыри, которые устанавливаются по углам и в середине бруса.

С давних времен для утепления деревянных стен, делая прокладку между бревнами, используют паклю или мох. Но мы настоятельно рекомендуем отказаться от такого допотопного способа. Сегодня есть отличный специальный материал для этой цели — ленточный межвенцовый утеплитель, сделанный из джута или льна. Такой материал продается в рулонах, а далее вы режете его на полоски необходимой вам длины и укладываете между бревнами или брусом, фиксирование это материала производится с помощью обычного строительного степлера. Все происходит достаточно просто и быстро, и, кроме этого, вы посбавите себя длительной и утомительной конопатки.

Джут, хоть и дороже, но при этом качественнее льна. В джуте большое содержание лигнина, если сравнивать его с чем-то он практически как древесина и, когда наш сруб даст усадку, джутовый утеплитель прессуется и становится очень прочным и надежным утеплителем, не пропускающим ни холод, ни влагу. А для дополнительной декоративности строения все стыки можете заделать джутовым канатом, что и симпатично дополнительное утепление конструкции.
Обустройство бани. Парная в русской бане
Размер парной бани напрямую зависит от размещения полок и вида печи-каменки для бани, а также количества людей, которые будут париться в этой бане одновременно.

Размер полок зависит от того как вы желаете париться если чтобы просто можно было бы присесть то достаточно 45-65 сантиметров если прилечь согнув ноги то 1,5 метра будет вполне достаточно если лечь и расслабиться то необходимо от 1,8 м до 2,0 м. Форма полки также может быть разной например плоской с упором для головы в виде обычной скамейки.
Для обогрева парной можно использовать как печь-каменку, так и электронагревательные приборы или паровое отопление на газу или дровах. Конечно лучший вариант для русской бани – это печь-каменка. Разместить печь можно любым способом но, на мой взгляд, наиболее удобно будет разместить в уголку так, чтобы бак с водой находился в мойке, топка – в предбаннике и одна стена находилась в раздевалке. Что касается размеров и форм печей то они также могут быть самыми различными, все зависит от размеров и особенностей планировки бани. Также печь-каменку можно сделать на заказ под индивидуальные особенности вашей бани и ваших потребностей. Помимо этого можно приобрести в специализированом магазине или через Интернет-ресурсы, ну или сделать и облицевать печь в баню самостоятельно.
Печи-каменки могут быть длительного, то есть постоянного режима действия и периодического.
В первом случае у печи минимальная толщина металла стенок и количество камней. Такая печь нагревается с помощью электричества или жидкого/газообразного топлива, реже всего – твердого топлива. Температура камней поддерживается автоматически с помощью специального устройства, температура нагрева при электрическом варианте может регулироваться как изменением силы тока, а при ином виде топлива – просто количеством поступающего в топку топлива. Использование сертифицированных печей согласуется с пожарным надзором.
В случае с использованием печи периодического действия то она будет иметь довольно таки массивную кирпичную кладку и большой объем камней.

Лучшее топливо для печки, безусловно, — натуральная древесина. Топка углем может, и будет создавать высокие температуры, и разрушать внутреннюю кладку печи.
Большим спросом и популярностью пользуются печи-каменки, сделанные из листового металла, а снаружи облицованные кирпичом.
Ну, вот и все, зная основные этапы строительства бани, ознакомившись с нашими советами и рекомендациями о строительстве бани, можете смело приступать к планировке и возведению собственной русской баньки. Ведь баня – на сегодняшний день это ни в коем случае не прихоть и тем более развлечение, а средство для достижения чистоты тела, укрепления здоровья и душевного умиротворения.
repair-school.com
