Стильные проекты домов и коттеджей
Архитектурно-дизайнерская студия «Альфаплан» — это:
- профессиональные архитекторы и инженеры;
- более 400 реализованных планов и построенных домов;
- бездонный океан свежих задумок и оригинальных идей.
Проекты домов — Наша осознанная ответственность
Хотите переселиться в собственный дом, но не знаете, с чего начать? Вас пугают сложные чертежи и сама мысль о заливке фундамента? Начните с самого главного: расскажите нам, в каком именно коттедже вы хотите жить.
Подобно тому, как путешествие начинается с карты, строительство всегда начинается с мысли и чертежа: проект дома — это, как минимум, половина дела, поскольку здесь отражаются:
- площадь и планировка;
- тип фундамента, стен и используемые строительные материалы;
- внешнее и внутреннее оформление.
Одноэтажные, двухэтажные или многоуровневые, классические русские усадьбы или модерновые минималистичные кубы, отделка под старину или яркие и необычные цветовые контрасты, стильный дизайн интерьера и абсолютный комфорт… идеальный дом найдет вас сам!
Преимущества готовых проектов Альфаплан
Готовый проект дома в исполнении опытных специалистов нашей студии — это грамотно спланированные инженерные системы, точная сбалансированная архитектура и безупречные дизайнерские решения.
Широкий ассортимент архитектурных форм и материалов для строительства будущего дома позволит вам сделать выбор комфортно и быстро. Мы предлагаем планы домов площадью от 80 до 1 000 квадратных метров, а именно:
- Проекты загородных домов из бруса и бревна.
- Проекты двух и трехэтажных жилых зданий с цоколем из кирпича или газобетона.
- Проекты домов для каркасного строительства.
- Планы обустройства придомовой территории и сада.
- Эксклюзивные авторские проекты таунхаусов и двухквартирных коттеджей.
- Планы постройки бань, беседок, бассейнов и гаражей.
Если вы хотите внести изменения в готовый типовой дом, наши специалисты сделают это, следуя вашим пожеланиям. Также вы можете заказать проект с нуля, предоставив нам наброски дома вашей мечты.
Нужен проект дома, но остались вопросы?
1. Хотите построить дом на участке с нестандартным рельефом или размером?
И здесь мы найдем выход! В каталоге вы найдете проекты коттеджей именно для таких случаев. Просто сделайте выбор и свяжитесь со специалистом.
2. Не знаете, как проконтролировать строительную бригаду…
И боитесь, что возведение дома принесет лишние расходы или затянется по времени? Полностью укомплектованный пакет документов позволит не заботиться этим вопросом. В сметах указаны все расходы на материалы и примерные сроки окончания работ.
3. Располагаете определенной суммой и не можете себе позволить превысить расходы?
Типовые проекты коттеджей – отличная возможность экономно и разумно распорядиться средствами, получив на выходе прочный и долговечный дом, отвечающий всем вашим требованиям и пожеланиям.
Обратите внимание! База проектов на сайте постоянно пополняется, мы учитываем все последние тенденции и веяния в загородном строительстве. Так что, решив купить проект загородного дома, внимательно изучите каталог — вы найдете изысканные особняки, аккуратные домики-шале, классические коттеджи, постройки в скандинавском и минималистическом стиле.
О собственном доме мечтает каждый. Студия «Альфаплан» поможет воплотить мечты в реальность за разумную цену. Вам нужно только позвонить!
www.alfaplan.ru
На фото — Бесплатные проекты домов и коттеджей: 74 фото с планировками
Проект загородного дома с гаражом

План первого и второго уровня

Проект недорогого дома с мансардой
Планировка первого уровня дома

Планировка мансардного уровня дома

Современный проект одноэтажного дома

Кухня-гостиная с большой столовой

Планировка дома с тремя спальнями, двумя ванными комнатами и гаражом на два автомобиля

Проект коттеджа в скандинавском стиле

Дизайн интерьера гостиной с камином и панорамным остеклением

Планировка первого этажа с открытой кухней-гостиной, кабинетом и гаражом

Планировка второго этажа с тремя спальнями и двумя ванными комнатами

Проект двухэтажного дома в современном стиле

Открытая кухня с островом и гостиная с камином

Планировка нижнего этажа

Планировка верхнего этажа

Проект одноэтажного дома с тремя спальнями

План одноэтажного дома

Проект двухэтажного дома с мансардой
План первого этажа

План второго этажа

Современный дом в стиле прерий

Планировка первого уровня

Планировка второго уровня

Проект виллы в современном стиле

Гостиная в современном стиле

План первого этажа

План второго этажа

Проект блочного дома
Гостиная-столовая в светлых тонах

План первого уровня с кухней, гостиной, кабинетом и гаражом

План второго уровня с тремя спальнями

Проект деревянного дома из бруса

Планировка дома

Дизайн кухни-столовой с островом в деревянном доме

Проект двухэтажного дома из бруса

Интерьер кухни в стиле кантри с зоной столовой
Планировка первого и второго уровней

Проект двухэтажного дома в стиле кантри

План нижнего уровня

План мансардного уровня

Проект маленького одноэтажного дома

План одноэтажного дома с двумя спальнями

Проект одноэтажного дома

Светлая гостиная с библиотекой и столовой зоной

Планировка большого одноэтажного дома с тремя спальнями и гаражом

Проект каркасного дома

Интерьер каркасного деревянного дома: гостиная с камином

Планировка длинного и узкого одноэтажного дома

Проект одноэтажного коттеджа

План одноэтажного коттеджа с расстановкой мебели

Проект коттеджа с гаражом
Белая гостиная с камином, панорамными окнами и дверьми в сад

План первого этажа с кухней-гостиной, большим кабинетом и гаражом на два автомобиля
План второго этажа с четырьмя спальнями и двумя ванными

Проект двухэтажного коттеджа
Планировка первого этажа

Планировка второго этажа

Гостиная в формате открытой планировки

Проект небольшого загородного дома

Планировка одноэтажного дома

Проект дома из кирпича

Планировка первого этажа
Планировка второго этажа
Проект коттеджа из пеноблоков

План-схема первого уровня
План-схема второго уровня
Проект дома с двумя спальнями площадью 84 кв. метра

План одноэтажного дома

Проект дома площадью 100 кв. метров

План первого этажа (кухня, гостиная, гараж)

План второго этажа (три спальни, ванная, кабинет)

evrookna-mos.ru
Планировка дома — готовые чертежи и планы домов
Планирование – важный этап строительства собственного дома. Необходимо учесть, что предварительной разметки, составления проекта и прорисовки графика-схемы требует не только будущее строение, но и сам участок. Прежде чем приступать к обустройству фундамента и возведению коробки, необходимо изучить особенности земельного надела и правильно сориентировать дом по сторонам света.
Насколько комфортно будет находиться в здании и на прилегающей территории, в немалой степени зависит от первоначальной разметки пространства. С какой стороны участка ставить дом, где располагать хозяйственные постройки, какой угол будет оптимален для расположения бани, куда вписать беседку – ответы на все эти вопросы должны появиться до начала строительства. Также не стоит забывать про такую важную составляющую, как коммуникации и инженерные сети.Планировка частного дома позволит не только грамотно расположить все постройки на участке, организовать внутреннее пространство коттеджа, но и избегать конфликтных ситуаций с соседями из-за нарушения требований и норм по расположению строений и зеленых насаждений на пограничной территории, а также проблем с различными проверяющими органами и инстанциями.

Выбираем участок для строительства
После того как определено основное направление, допустимая удаленность от крупного города, а также приоритетные коттеджные поселки, населенные пункты, садовые товарищества или просто земли категории ИЖС, можно выбирать наиболее подходящий участок. Если это возможно, лучше приглядеться к достаточно ровным и свободным от насаждений территориям. Исключение могут составить участки в лесных массивах, в окружении вековых сосен.Возвышенность более предпочтительна, чем низина. Дом, построенный на пригорке, обладает лучшими эксплуатационными характеристиками. На таком участке практически полностью отсутствует проблема с высокими грунтовыми водами, лучше осуществляется воздухообмен и выше уровень инсоляции. К тому же из окон такого дома, особенно если это постройка в два или три этажа, открывается прекрасный вид на окрестности.
Строя дом на возвышенности, можно будет существенно экономить на электроэнергии и отоплении, так как такое расположение, если выбрана правильная планировка дома, обеспечит максимальное проникновение солнечных лучей внутрь помещений. Современные технологии строительства позволяют не только использовать природную энергию для естественного освещения жилого коттеджа, но и аккумулировать вырабатываемое тепло, используя его для обогрева здания.
Ориентируем коттедж по сторонам света
Планировка дома будет полностью зависеть от расположения участка относительно сторон света, и ориентации самого коттеджа. На что еще стоит обратить внимание – это форма здания и тип кровли.
При строительстве дома с односкатной крышей, максимально открытый фасад нужно обращать к югу, а скат крыши ориентировать на север. При возведении классической двускатной кровли или крыши сложной конструкции возможны некоторые отступления от общих рекомендаций.На участке дом нужно ставить в северо-восточной части. Это позволит зданию получать максимально возможное количество солнечного света, а также создавать минимум тени на прилегающей территории. Этот фактор редко учитывается на начальном этапе строительства, и впоследствии создает множество проблем с обустройством зоны отдыха, планировкой участка и разработкой ландшафтного дизайна.Планировка домов осуществляется таким образом, чтобы центральный фасад выходил на южную сторону. Дом может быть дополнен массивным крыльцом, открытой верандой или террасой. Расположенные на солнечной стороне, они станут прекрасным местом для отдыха на свежем воздухе.

Когда выбран участок, определено место для строительства дома и коробка сориентирована по сторонам света, можно составлять план дома. Расположение комнат внутри также будет зависеть от сторон света:
- Восток и юго-восток – спальные комнаты родителей и гостевые комнаты;
- Юг и юго-восток – гостиная, детские комнаты и спальни;
- Запад и юго-запад – гостиная, семейная комната, столовая;
- Север – кухня, холл, нежилые хозяйственные помещения, зоны хранения.

Это может быть красивый сад, внутренний двор с должным оформлением, окружающие приятные пейзажи. Лучше избегать расположения дома, при котором окна упираются в глухой забор, хозяйственные постройки или соседские дома.
Составляем план участка или как организовать пространство
Каким бы по размерам ни был участок, его нужно грамотно спланировать. Чтобы прилегающей территорией было удобно пользоваться, планировка участка осуществляется до начала строительства дома и проведения земельных работ. Первый этап – это выделение функциональных зон и расположение их относительно друг друга. На схеме небольшие самостоятельные участки принято обозначать кругами и овалами:- Место для жилого дома;
- Гараж или парковка;

- Гостевой домик, баня или сауна;
- Туалет, летний душ, прочие хозпостройки;
- Беседка, зона отдыха;
- Место для проведения пикников: летняя кухня и различные приспособления для готовки на открытом огне;
- Площадка для детей;
- Садово-огородная зона;
- Элементы декора и ландшафтного дизайна.

Основное правило разбивки участка – сохранить максимальный уровень инсоляции, а также не препятствовать воздухообмену на территории. Для этого стоит отказаться от строительства глухих высоких стен и заборов.
Исключение может составить северное и западное направление – откуда чаще всего дуют сильные и холодные ветры.А прежде чем располагать летнюю кухню, нужно определиться с розой ветров и сделать это таким образом, чтобы дым от углей и приготовляемых блюд не стелился по вашему участку, а сразу уходил за ограду.
Классический забор и альтернатива
Отсутствием соседей редко кто может похвастаться. Даже в собственном доме возможны достаточно близкие контакты с рядом живущими семьями. Хотя планировка домов и разрабатывается таким образом, чтобы максимально защитить и сделать неприкосновенной частную жизнь, вне здания мы оказываемся беззащитными.
Строить высокие глухие заборы – не всегда возможно и уместно. Строительные нормативы, например, запрещают ставить ограждения выше 1 метра между двумя смежными участками. В этом случае можно воспользоваться безобидными, но весьма эффектными альтернативами. В роли забора могут выступать:
- хозяйственные постройки;
- зеленые насаждения;
- сетки и опоры для вьющихся растений;
- садовые ширмы, перголы и арки.
Дом с гаражом или гараж у дома
Выбирая проекты частных домов, стоит учитывать шаговую доступность общественного транспорта и количество автомобилей в семье. Если рядом находятся автобусные остановки, недалеко электричка, а автомобиля нет и не предвидится, то подойдет планировка дома без гаража. Этот вариант больше приемлем в случае строительства дачного дома. Но даже при таком раскладе небольшая парковочная площадка непосредственно перед домом необходима. На случай, если к вам приедут гости, привезут строительные материалы или возникнет другая необходимость подъезда машины.Планировка домов со встроенным гаражом больше подходит для строительства коттеджей, которые будут использоваться для круглогодичного проживания. В этом случае необходимо учесть количество машин, чтобы не промахнуться с размерами гаража.
Встроенный гараж может быть отапливаемым и неотапливаемым помещением, располагаться в цокольном этаже или на одном уровне с первым этажом здания. Разные проекты предусматривают разные варианты доступа в помещение. Попасть в гараж можно только с улицы, через въездные ворота и специальную калитку. Более совершенное решение – это обустройство второго входа-выхода: из гаража можно попасть сразу в дом, минуя улицу.Стоимость строительства гаража, объединенного с домом, возводимом на одном с ним фундаменте, под одной кровлей и с общими стенами – значительно выше, чем отдельно стоящего сооружения. Однако надежность, функциональность и возможности его использования значительно превосходят обособленную постройку.

Любой вариант расположения гаража предполагает наличие небольшой парковочной зоны. Очень удобно оставить машину перед домом и не заводить ее в гараж, если в течение дня вы неоднократно садитесь за руль. Также парковкой будут пользоваться ваши друзья, когда приезжают в гости.Парковка и гараж должны располагаться максимально близко к воротам. Идеальным считается прямой въезд, который исключает лишние маневры на территории участка. Это удобнее с точки зрения эксплуатации, и выгодно с точки зрения использования территории.
Выбор этажности дома
Сколько этажей будет в коттедже – зависит от желания домовладельцев и особенностей конкретного участка. Принято считать, что одноэтажный дом – удобнее в эксплуатации, а двух и более этажное здание – дешевле в строительстве и экономичнее в плане отопления и энергопотребления.
Одноэтажный дом
Строить одноэтажный дом целесообразно, когда под застройку выделен большой и достаточно ровный участок. В этом случае затраты на земельные работы будут минимальными. В таком доме намного комфортнее себя будут чувствовать семьи, где есть пожилые люди и маленькие дети. Отсутствие лестниц и второго уровня делает дом более безопасным и удобным в эксплуатации.Планировка домов в один этаж большой площади может напоминать старинную усадьбу, а может иметь ультрасовременный облик. Все зависит от формы коробки, кровли, экстерьера, используемых материалов и технологий.Двухэтажный дом
Проекты двухэтажных домов позволяют подобрать подходящие дачные домики, создать коттеджи большой площади, найти решение при наличии небольшого участка под застройку. План дома в два этажа дает больше возможностей для размещения хозяйственных помещений и использования архитектурных функциональных украшений:- балконов;
- террас;
- веранды;
- эркеров;
- гаража.

Внутренняя планировка дома
Внутреннее пространство дома и все помещения делят на функциональные зоны.- Дневная жилая зона – кухня, столовая, гостиная, семейная комната, кабинет.
- Ночная жилая зона – это спальные, детские, гостевые комнаты, гардеробная.
- Помещения общего пользования – прихожая, холл, коридор, лестничное пространство, санузлы.
- Хозяйственный блок – кладовые, котельная, гараж.
- Необязательные помещения – спортзал, сауна, бассейн, кинотеатр, музыкальная комната и т.д.

Традиционно в двухэтажных домах наверху обустраиваются личные комнаты, а внизу общие и хозяйственные помещения. По другим правилам, верхнюю часть дома делают вотчиной детей и гостей, а внизу обустраивают родительскую зону. Планировка домов в один этаж предполагает такое же деление, но использует горизонтальную ориентацию. В одной части дома располагаются жилые комнаты – преимущественно в южной и восточной. Общие и хозяйственные помещения группируются в другой части дома – северной и западной.Если строение ограничено небольшими размерами, то некоторые помещения можно не делать самостоятельными, выделенными. Некоторые из них вполне можно совместить. Например, хорошо на одном пространстве соседствует кухня, столовая и гостиная. Достаточно лишь визуального зонирования и грамотной меблировки.

Веранда или терраса: приятное дополнение загородного дома
Разработать план дома с террасой или верандой будет ненамного дороже, чем для обыкновенной коробки без этих архитектурных сооружений. Строительство также будет приемлемым в плане бюджета. А вот пользы и выгоды от такого дополнения масса. В зависимости от того, где план дома предусматривает террасу, будут зависеть и внутренние особенности планировки.- Веранда может украшать главный фасад здания и быть совмещена с крыльцом.
- Веранда может располагаться со стороны гостиной и иметь отдельный доступ из этого помещения. На такой террасе можно обустроить летнюю зону отдыха, поставить кресла-качалки, или просто установить кофейный столик, окруженный плетеной мебелью.
- Терраса со стороны кухни – это уникальная возможность в летнее время перенести столовую зону под открытое небо.
план одноэтажного дома с террасой[/caption]
Единственной особенностью планировки домов и террас в местных климатических условиях является обустройство крытой территории с большой площадью остекления. Это позволяет использовать неотапливаемое помещение в непогоду, дольше сохранять отделочные материалы в надлежащем виде, защищая их от воздействия осадков.
Три кита планировки жилых зданий
Любые чертежи домов и проектная документация – это не только план расположения комнат, ориентация здания по сторонам света, выбор этажности строения. Одним из важнейших этапов планировки домов является прокладка инженерных сетей, разработка схем подключения. В индивидуальном строительстве, это три кита:- теплоснабжение;
- канализация;
- водоснабжение.

Каким образом будет решена каждая задача, обусловлено наличием технической возможности подключения к централизованным системам, размерами самого здания, а также способом эксплуатации дома.
Электричество чаще всего подведено к объекту. Подключиться к общей сети не проблема. Газопровод встречается гораздо реже, но при его наличии намного сокращаются расходы на отопление дома.Водоснабжение и канализация в индивидуальном строительстве чаще делаются автономными. Наличие центральной магистрали – очень редкое явление. Самая распространенная планировка коттеджа предусматривает бурение собственной скважины под воду. А для отработанных стоков и отходов жизнедеятельности человека применяются закрытые очистные септики.

Конечная планировка домов может осуществляться только после определения местоположения всех инженерных вводов и выводов.
От этого зависит внутренняя планировка дома: где будут расположены санузлы, где в кухне сможет стоять плита, мойка, посудомоечная машина, где логичнее расположить прачечную.Проекты двухэтажных домов позволяют делать всего один ввод-вывод. В этом случае санузлы располагаются на обоих этажах друг под другом, а рядом к этим же коммуникациям подключена и кухня.Планировка домов в один этаж несколько отличается от такого шаблона. Один ввод-вывод возможен, но при большой площади чаще используются несколько таких вхождений. Это позволяет распределить санузлы равномерно по дому, а кухню сделать в том месте, как вам удобно, а не там, где вынуждают коммуникации.

Проектная документация, земельные изыскания, планировка дома и участка, составление схемы подключения инженерных коммуникаций – все это требует времени, которого зачастую нет у строителей. Купив участок под строительство, не терпится сразу же приступить к началу работ.Однако грамотная организация пространства, детальная планировка и вдумчивое расположение как строений на участке, так и помещений внутри дома позволит избежать множества ошибок, выявляемых в процессе эксплуатации, сделать дом и прилегающую территорию удобными и комфортными для проживания на долгие годы.
planvsem.ru
Каталог проектов домов и коттеджей
Любое
строительство всегда начинается с проекта. Проект дома может быть индивидуальным или типовым, важно, чтобы он
включал в себя архитектурную и конструктивную части, а также проработку инженерных сетей. В 90% случаев будущие
застройщики при выборе проекта загородного дома используют огромные базы типовых проектов. Это выбор практичных
людей — ведь типовой проект коттеджа обойдется в несколько раз дешевле аналогичного индивидуального (600-2000$
против 20 000-50 000$). К тому же при использовании готовых проектов дачных домов и коттеджей ожидание ( от
оплаты до получения проектной документации) займет всего 4-5 дней, а не 6-8 месяцев — как происходит в случае,
если будет заказан индивидуальный проект частного дома.
В наших офисах Вы сможете ознакомиться с множеством типовых проектов малоэтажных домов и заказать готовый проект из базы, включающей в себя более 700 современных вариантов постройки индивидуальных домов и коттеджей. Наши специалисты с удовольствием ответят на все Ваши вопросы и помогут Вам выбрать проект загородного дома, который наилучшим образом отвечает Вашим требованиям.
Дополнительно к проекту частного дома Вы сможете заказать у нашей Фирмы расчет количества и стоимости материалов, а также оформление проектной документации.
Пример выполненного для одного из наших клиентов расчета количества и стоимости материалов и работ по предоставленной нам проектной документации.
Имея на руках готовый архитектурный проект загородного коттеджа и расчет количества и стоимости материалов, Вы можете воспользоваться помощью наших специалистов для планирования поставок материалов на объект.
Продумав этот этап работ по созданию дачного дома, Вы сохраните массу нервных клеток, времени и денег. За многие годы работы мы установили рабочие контакты с множеством производителей строительных материалов, и сегодня ассортимент поставляемых нами материалов покрывает до 90% всего того, что необходимо для общестроительных работ.
Выбирая нашу Фирму в качестве партнера при строительстве загородного дома, Вы можете рассчитывать на нас в тех случаях, когда Вам потребуется информационно-техническая помощь. Наши специалисты ответят на любые возникающие у Вас в процессе строительства вопросы, по телефону, на сайте, в офисе, а при необходимости и на объекте. Мы делаем всё необходимое, чтобы наши клиенты не остались со своими проблемами один на один.
www.cottageplans.ru
Нормы и правила планировки частного дома или коттеджа
04 Декабря 2017 2017-12-04
28713
Время чтения 14 минут
Прочитать позжеОтправим материал на почту
Распечатать
Проектирование дома основывается на применении норм строительства и планировки. Каждый из членов семьи в доме в одно и то же время должен иметь возможность заниматься своим делом и никому не мешать. Это значит, что каждому жильцу нужен свой уголок – отдельная комната. Именно поэтому так важна планировка дома еще на этапе его проектирования, необходимо заранее распределить личное пространство для каждого члена семьи.
При правильной планировке дома, пришедшие гости, сразу попадают в гостиную, при этом потом не бродят по всему дому в поисках туалета.

Особенности планировки при проектировании
Чтобы новый дом стал уютным, комфортным и экономичным, следует правильно составить его планировку, учитывая как общие габариты, так и площадь каждого помещения. При планировке дома необходимо придерживаться стандартных правил, первое из которых – зонирование общей площади на две части: хозяйственную и жилую.
В свою очередь жилую зону делят на вечернюю и дневную, а затем их разделяют на помещения для гостей, детей и взрослых.
В дневную зону должны входить:
Гардеробные, спальни и расширенные санузлы относятся к вечерним помещениям.
К хозяйственной зоне относится кухня, гараж, кладовая, мастерская, котельная, прачечная.
На фото ниже правильное зонирование пространства в доме: справа расположена гостиная, кухня и столовая, при этом комнаты не разделены перегородками. Слева находятся три спальни санузел.

При проектировании и планировке дома также продумывают:
-
размер и форму жилья;
-
количество и расположение входных дверей;
-
этажность;
-
материал, из которого будет строиться жилище;
-
наличие котельной, пристроенного к дому гаража;
-
устройство санузлов: в многоэтажном коттедже иногда они располагаются на каждом этаже;
-
количество и величину окон;
-
совмещение кухни, столовой, гостиной;
-
наличие проходных комнат.
Если вы хотите построить большой дом, чтобы все помещения в нем были полезными и постоянно использовались, можно продумать наличие зимнего сада, спортивного зала, бильярдной, бассейна.

План дома проверяют на соответствие строительным и гигиеническим нормам. На каждого человека должно приходиться 25м³ воздуха. В противном случае нельзя обеспечить нормальное самочувствие.
При планировании количества и расположения окон учитывается освещенность. В зависимости от положения солнца, проектируются жилые комнаты, гостиная.
Проект под строительство дома должен учитывать вид из окон. Красивый пейзаж, предпочтительней для жилых комнат. Хозяйственные, нежилые зоны оборудуют в местах, где вид из окна не принципиален.
Модное веяние – обустройство мансарды, открытой или закрытой террасы, веранды. Если принято решение последние делать открытыми, то они должны находиться на солнечной стороне, в защищенном от ветра секторе. Расположение открытой террасы с учетом этих требований обеспечит комфортный отдых.

Важным моментом является крыльцо дома, поэтому планировка должна учесть максимум удобства. Вход делают с южной стороны, учитывая розу ветров. В зависимости от этого решают, с какой стороны будет находиться ручка и петли входной двери.
Роза ветров — составляется на основании наблюдений за погодой. Графически выглядит как многоугольник, по длине граней которого видны направления господствующих или преобладающих ветров – с какой стороны чаще всего в данную местность приходят воздушные потоки.
Дорожка до крыльца должна быть ровной и обеспечивать удобный проход в любую погоду.
Привязка проекта к местности
Планируя расположение дома, учитывают розу ветров, состояние почвы, местный ландшафт. К жилью должен быть свободный проезд, обеспечено удобное расположение подъездных коммуникаций для своего автомобиля, подвоза топлива, стройматериалов, проведения погрузочно-разгрузочных работ.
На песчаной и глинистой почве устанавливается фундамент с усиленной защитой от влаги. Если этим пренебречь, в доме отсыреют стены, появится грибок и плесень. В зависимости от структуры грунта, рассчитывается допустимая нагрузка на фундамент и стены, оценивается возможность строительства жилья в несколько этажей.
В проекте предусматривается оптимальный маршрут для коммуникаций – водопровода, газа, канализации.

Изучая местность, следует уточнить, есть ли возможность бурения скважины для создания автономного водоснабжение дома.
Оптимальная площадь дома
Планируя дом, заранее продумывают количество комнат и их размещение. Размеры зависят от функционала. Детские, например, не делают большими – это уютные комнаты, в которых ребенку необходимо обеспечить спокойный сон и достаточную освещенность.
Столовая должна вмещать всех членов семьи одновременно – это помещение в доме должно быть вторым по величине после гостиной.
Комнаты нежелательно делать длинными и узкими, это очень неудобно как в плане проживания, так и при размещении мебели.
Планируя помещения, стоит заранее продумать расположение мебели. Это позволит выбрать оптимальную площадь для каждой комнаты и обеспечит рациональное использование пространства.
На кухне нельзя экономить. Эта комната используется наиболее активно. Приготовление пищи требует достаточного места для спокойного выполнения работы.
Совмещение комнат экономит пространство. Гостиные модно объединять с кухней и столовой. Такое решение позволит сделать помещение большим и удобным. К тому же будет существенная экономия на материалах, ведь не придется тратить деньги на строительство перегородок. Совмещают также туалет и ванную.

Проходные комнаты следует использовать рационально, к ним можно отнести гостиные, столовые. Чем меньше в доме будет коридоров и холлов, тем удобнее в нем будет передвигаться. К тому же строительство дома с минимальным количеством холлов и коридоров снижает стоимость жилой площади.
Исходя из количества запланированных помещений в доме и их площади, выбирают общие габариты постройки. При этом стоит обязательно учесть, что если у вас маленькая семья, состоящая из двух или трех человек, не нужно строить слишком большой дом, как бы вам этого не хотелось. Пусть он будет просторным, и каждая комната используется по назначению.
Помещения, которые не используются жильцами, не мешают им, но отнимают денежные ресурсы. Во-первых, каждую зиму их нужно протапливать, а это лишние траты на коммунальные платежи. Во-вторых, при постройке дома вы вкладываете деньги в помещения, которые не будете использовать.

Свободные денежные ресурсы будет рациональнее направить на более дорогую отделку фасада или обустроить летнюю зону отдыха на участке.
На нашем сайте Вы можете найти контакты строительных компаний, которые предлагают услугу проектирования домов. Напрямую пообщаться с представителями можно посетив выставку домов «Малоэтажная Страна».
Какой проект дома выбрать: один или два этажа
Возможности современного проектирования жилых домов делают условным название «одноэтажный дом». План постройки дома может предусматривать оборудование цокольного этажа, строительство мансарды. Коттедж с такими пристройками получится трехуровневым в проекте одноэтажного дома. Мансарду и цокольный этаж нельзя назвать этажами, но такие помещения сделают жилье более удобным и увеличивают полезную площадь дома.
На цокольном этаже обычно оборудуют хозяйственный сектор, устанавливают спортивные тренажеры, выводят коммуникации. Здесь можно оборудовать котельную, сделать гараж. Мансарда может быть оборудована спальнями и детскими комнатами.

Если вас не привлекает дом с дополнительными уровнями, планировать комнаты следует с учетом эффективного использования площади. В доме необходимо обеспечить помещения для всех членов семьи, а кухню и столовую совместить. Также поступают с туалетом и ванной. Разграничить зоны поможет строительство невысоких перегородок, колонн.
Двухэтажный дом строят для большой семьи. На втором этаже планируют жилые комнаты для домочадцев. На первом – обустраивают гостиную, кухню, спальню для гостей. При совместном проживании нескольких поколений, старшим членам семьи отводят комнаты внизу. Санузлы на этажах размещают друг над другом. Это облегчает подвод коммуникаций.
Если есть желание оборудовать автономное отопление, котельную устраивают возле кухни, в цокольном помещении или гараже.
Выбирать, какой дом построить, двухэтажный или с одним этажом, следует исходя из размера участка. Если у вас большая семья, а участок маленький, отдать предпочтение лучше двухэтажной конструкции. В таком доме можно выделить личную комнату каждому члену семьи и при этом сэкономить территорию на участке.

Если семья небольшая, то одноэтажного дома, даже на маленьком участке будет вполне достаточно, ведь двухэтажная конструкция обойдется гораздо дороже.
Проектируя дом, предусматривают возможность дальнейшего расширения жилья.
Планировка дома с мансардой
Дом с мансардным этажом – это бюджетный вариант для создания дополнительной полезной площади. Как правило, на мансарде оборудуют спальни и кабинеты, а также детские комнаты. Относительная уединенность и красивый вид из окна являются преимуществами перед остальными помещениями.
Для сохранения комфортной температуры в зимнее время стены и потолок необходимо дополнительно утеплить. Хорошее освещение обеспечит большое окно. Когда наличие мансарды планируется заранее, туда при возведении дома подводятся все коммуникации.
Если мансарда есть, но нет необходимости использовать ее как жилую зону, можно устроить там мастерскую или использовать в качестве кладовки.

Пример планировки дома из двух комнат
Если вы решили построить маленький домик, состоящий всего из двух жилых комнат и пригодный для проживания одного или двух человек, в проекте предусматривают максимально выгодный вариант, учитывающий небольшую площадь дома. Кухню и столовую можно совместить, как и ванную с туалетом. Максимально используют встроенные модули: шкафы, технику, ниши и кладовки. Одна спальня в доме должна быть обязательно. К тому же в гостиной нужно оборудовать спальное место.
Ширина прихожей не должна быть менее 1,5 м. Если площадь помещения большая, оборудуют встроенные шкафы и стеллажи с обувью, верхней одеждой.

В двухэтажном доме жилые комнаты располагают на 2 этаже, на первом хозяйственный сектор – кухня, столовая, котельная, кладовка.
План строительства дома из двух жилых комнат должен предусмотреть:
В проекте можно продумать отдельный выход из кухни на террасу.

Это может быть интересно! В статье по следующей ссылке читайте про проекты домов.
Планировка дома из трех комнат
Такое жилье может с легкостью вместить семью из трех человек. Обязательно необходимо оборудовать две спальни и гостиную.
Из прихожей можно предусмотреть сразу три выхода: в кухню, в санузел и в гостиную. Таким образом, гостиная будет проходной комнатой и из нее можно попасть в две спальни.
В 3-х комнатном доме должны быть:
По желанию строят веранду, дополнительное крыльцо с выходом из кухни.

Если в доме подразумевается четыре комнаты
Жилье с четырьмя комнатами легче зонировать, да и подойдет оно для большой семьи. Правую часть здания отводят для отдыха, левую для активности или наоборот. В таком доме планируют:
-
прихожую с тамбуром;
-
3 спальных комнаты;
-
коридор между отдельными помещениями;
-
гостиную;
-
кухню;
-
санузел.
Если позволяет площадь, устраивают прачечную, веранду с выходом из спальни, второе крыльцо с выходом из кухни.
В процессе проектирования внутренних помещений, следует учитывать расположение источников природного, естественного освещения.Комнаты желательно проектировать в определённых пропорциях, так, чтобы они не были чересчур вытянутыми вдоль, а их глубина не превышала 6 метров.

Важные мелочи, которые обязательно нужно учитывать при планировке дома
Существует несколько нюансов планировки при проектировании дома, например, количество и расположение окон и дверей, наличие балкона, высота потолков.
Нюансы планировки дома 10х10 смотрите на видео:
Планируем расположение окон
Жилые комнаты размещают на солнечной стороне. Освещенность должна быть достаточной для сохранения зрения, но при этом не приводить к выгоранию мебели и обоев. Если планировка комнат в доме предусматривает строительство стеклянной стены, необходимо оборудовать ее защитными жалюзи либо плотными шторами.
Можно построить стандартный дом – в небольших спальных комнатах делают по одному окну, в гостиных обязательно два. Если помещение для приема пищи общее с кухней, то здесь лучше сделать три оконных проема.
Можно дать волю фантазии и спланировать особые окна: длинные, круглые, высокие окна с аркой наверху.
Большое количество окон обеспечивает много света и свежего воздуха. Не стоит опасаться, что они станут причиной холода в доме. Современные многокамерные окна обладают великолепными термозащитными качествами.

Это может быть интересно! В статье по следующей ссылке читайте про проекты домов из газобетона.
Планируем высоту потолков
Слишком высокие потолки в доме станут причиной чрезмерного расхода стройматериалов при возведении дома, а после и отделочных. Кроме того, мебель в высокой комнате будет выглядеть не так красиво, она «потеряется».
Слишком низкий потолок вызывает дискомфорт, создает «давящее» чувство. Высоту потолков в доме определяют, исходя из площади комнат. Именно поэтому крайне желательно на каждом этаже дома делать помещения, не слишком отличающиеся друг от друга по площади, за исключением санузлов и кладовых, разумеется.
Маленькая комната с очень высоким потолком может напоминать глубокий колодец. При планировке высоты потолков важно найти золотую середину.
О том, каким должен быть дом, смотрите на видео:
Балкон в частном доме
Некоторые владельцы частных домов с балконами почти не пользуются этими пристройками. По утверждению людей, проще выйти во двор или на террасу. Именно поэтому необходимость балкона необходимо продумать заранее.
Если есть желание сделать его, то не стоит строить маленький балкон, похожий на те, которыми оборудованы многоквартирные дома. Большой балкон превращают в произведение искусства, используя кованые или другие, не менее красивые перила.
На балконе должно быть достаточно места для комфортного отдыха – чтобы можно было поставить там несколько лежаков или кресло-качалку, столик со стульями для чаепитий.

Балконное ограждение должно иметь высоту от одного метра, в целях обеспечения безопасности. В случае отсутствия навеса, зимой на балкон может наметать снег. Если пол не имеет уклона, то после дождя там будет застаиваться вода.
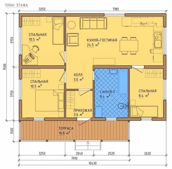
Несколько примеров удачных планировок домов






Это может быть интересно! В статье по следующей ссылке читайте про проекты домов из пеноблоков.








Это может быть интересно! В статье по следующей ссылке читайте про проекты домов из кирпича.
Заключение
План домов для строительства должен быть продуман профессионалами. Расскажите им о своих желаниях и предпочтениях, чтобы планировка дома была такой, как хочется вам. Ну а если особых требований к распределению пространства в доме нет, можно выбрать уже готовый, типовой проект с понравившейся планировкой.
Прочитать позжеОтправим материал на почту
Распечататьm-strana.ru

