Чертежи мангалов из металла своими руками
Когда-то работать с металлом учили в школе на уроках труда или производственного обучения: резать, сверлить, соединять две детали болтами с гайками или заклепками. Этих навыков достаточно тому, кто собирается сделать металлический мангал по собственным чертежам.
Делать своими руками или купить готовый мангал – дело вкуса.
Самостоятельное изготовление не всегда выйдет дешевле заводского, но шашлыки покажутся вдвойне вкуснее от того, что приготовлены на углях из созданного вами мангала.Чертежи и размеры
Перед тем, как мастерить, нужно, как минимум, набросать эскиз будущего изделия. Затем прорисовать все детали с указанием размеров.
К разработке чертежей и определению размеров деталей можно подойти двумя способами.
- Придумать или выбрать в качестве образца готовую конструкцию (размеры, форму ящика, ножки и т. д.) с целью закупки всего необходимого.
- Сделать ревизию в гараже или на даче, где обычно есть обрезки металла, уголка или труб, которые можно включить в будущую конструкцию, и разрабатывать собственную модель, исходя из находок.

Виды конструкций
Основой любой конструкции металлического мангала является сам ящик и основание в виде ножек. Оформление и дополнительные элементы в виде крышки, рабочего столика, решетки под барбекю или подставки под казан – в соответствии с целесообразностью и фантазией изготовителя.
На рисунке показан простейший мангал. Размеры можно изменять исходя из собственных предпочтений. Но разметку отверстий в нижней части стенок и верхних надпилов под шампуры желательно сохранить.
Обычный
Самый распространенный вариант – жаровня на ножках. Выполняют ее обычно из металла толщиной 2-3 мм методом сварки.
В качестве опоры используют отрезки арматуры или металлический профиль.Стационарный
При выборе конструкции можно не думать о весе изделия, поэтому основополагающим будет удобство работы мангальщика. Кроме того, имеется множество вариантов оформления и создания многофункционального устройства для приготовления пищи на открытом огне.
Разборный
Конструкции разборные и частично разборные (снятие ножек) заранее рассчитывают по весу и размерам мангала в транспортируемом виде. Варианты соединения деталей – петли с крючками или болты с гайками. Потрудиться, в том числе и над расчетом конструкции, придется дольше.
Промышленность выпускает разборные мангалы, которые в собранном для переноса виде напоминают небольшой чемоданчик. Его даже пешие туристы могут легко взять с собой.
Но такие устройства недолговечны: быстро прогорают и деформируются, так как для их изготовления используется тонкий металл.Стандартные размеры
Большинство производимых промышленностью и изготавливаемых своими руками мангалов традиционно рассчитаны на 6 шампуров, поэтому жаровня имеет размеры около 600 мм в длину, 250-280 мм в ширину и 150-180 мм в глубину. Более глубокий ящик приведет или к перерасходу топлива, или к увеличению времени приготовления шашлыка, да и качество конечного продукта может пострадать.
Как рассчитать размеры?
Рассчитать габариты жаровни легко, если задать в качестве базы количество однократной закладки шампуров, поэтому стационарные мангалы для дачи, куда приглашают много гостей, чаще имеют длину около 1200 мм, то есть предназначены для 12-ти шампуров. Длиннее их не делают из соображений удобства обслуживания.
Ширину определяет длина шампуров. Самодельные шампуры могут быть какой угодно длины, но рабочая зона, где находится мясо, составляет максимум 50 см, обычно 28-30 см, поэтому ширину «с запасом» делать не стоит.
Глубину выбирают до 20 см, при большем значении труднее поддерживать условия, оптимальные для приготовления сочного шашлыка.
Очень маленькие мангалы не дадут достаточно жара, а слишком большие не будут полностью загружены.Особенности
Нельзя забывать о высоте ножек. Технологически достаточно просвета между жаровней и землей сантиметров в десять, остальная высота – ради комфорта повара.
Пошаговая инструкция изготовления
Когда определена конструкция и прорисованы детали, готовим железо и инструменты.
Что потребуется?
Цельный металлический лист или обрезки достаточных для будущих деталей размеров. Толщина – чем больше, тем лучше, для увеличения срока использования. Но толстый лист – тяжелый, в случае необходимости передвигать или переносить собранную конструкцию следует выбрать толщину металла 2-3 мм.
При эксплуатации мангала основная температурная нагрузка приходится на дно жаровни. Именно оно прогорает первым, если был использован металл одинаковой толщины. Поэтому, если есть возможность, для дна желательно взять лист от 5 мм. Впрочем, 2-3-миллиметровый лист, использованный для дна и стенок мангала, служит несколько лет. Причем, чем чаще готовят шашлыки, тем больше срок службы.
Для изготовления ножек подходит уголок, металлическая труба или арматура. Уголок предпочтительнее, так как его можно использовать по периметру дна, сварив из него раму — деталь не обязательную, но прибавляющую конструкции долголетия.
В процессе изготовления под рукой должны находиться следующие инструменты:
- линейка или рулетка;
- уголок;
- карандаш, маркер или чертилка по металлу;
- болгарка для вырезания деталей;
- дрель;,
- сварочный аппарат.
Как выполнить сварку?
Применение сварочного аппарата упрощает и ускоряет процесс изготовления мангала. Над сборно-разборными вариантами придется трудиться дольше, но это дело вкуса.
Как при сварке любых металлоконструкций из листа, сначала прихватывают углы, затем производят расшивку.
К полностью сваренному коробу крепят ножки.Поэтапное возведение
Когда чертежи, инструменты и материалы на рабочем месте, можно приступать.
- Вырезаем из листа детали в количестве пяти штук: дно, передняя, задняя стенка и две боковых.
- Берем переднюю и заднюю стенки, кладем одну на другую, совмещаем.
Производим разметку отверстий для воздуха.
- Вооружаемся дрелью со сверлом 8-10 мм, сверлим. Размечаем выемки для фиксации шампуров. Берем болгарку, вырезаем.
- Разъединяем стенки, при необходимости отверстия и выемки зачищаем наждачкой от стружки и заусенцев.
- Свариваем короб.
- Привариваем или крепим болтами ножки. Для большей устойчивости изделия между опорами можно вварить перемычки.
- Еще раз берем в руки наждачку и готовим наружные поверхности мангала под покраску.
Покраска готового мангала
Наружная поверхность мангала требует нанесения защитного слоя.
В заводских условиях применяют смеси на силиконовой основе, требующие запекания.В домашних условиях оптимально использовать кремнийорганические термостойкие или акриловые краски и эмали. Вторые, выпускаемые в баллончиках, удобнее в применении и прочнее удерживаются на металле.
Перед окрашиванием обязательно очистить поверхности от мусора и следов коррозии, используя наждачную бумагу или насадку на дрель.
Нанесение краски – не менее двух слоев с выдержкой указанного на упаковке срока высыхания. Если решили работать кистью или валиком, то каждый слой наносят в одном направлении, но перпендикулярно к предыдущему.
Посмотрите видео про изготовление мангала
Купить или сделать?
Если закупать все материалы для мангала, затраты в конечном итоге могут превысить стоимость готового мангала заводского изготовления.
Но эти затраты распределены во времени, а отдельные детали или материалы для них могут оказаться под рукой.Учитывая удовольствие от самого процесса работы, когда из груды металлы получается полезная вещь, о покупке мангала можно забыть. Все в наших руках!
Мангал своими руками из металла + чертежи
Одним из атрибутов загородного участка являются металлические мангалы. Такие конструкции при желании можно сделать своими руками.
Создав собственный чертеж можно сделать уникальную конструкцию, которая будет использоваться не только по прямому назначению, но еще и будет являться украшением участка. Чтобы понять, какая именно конструкция подойдет для установки на вашем участке, следует рассмотреть фото подобных изделий.
Виды мангалов
Самые простые конструкции из металла имеют прямоугольную форму и отличаются небольшими размерами. Внутрь корпуса мангала из металла помещаются угли, создающие необходимый для приготовления мяса жар. Все мангалы можно разделить на несколько основных видов:
- Стационарные конструкции. Такие изделия отличаются большими размерами и устанавливаются на фундамент. Стационарные мангалы отличаются долговечностью и надежностью.
- Переносные изделия. Мангалы описываемого типа имеют меньший вес и могут быть легко перевезены в автомобиле. Они могут выполняться из тонкого металла, который деформируется при физическом воздействии. Такие изделия удобны и часто берутся на отдых многими автовладельцами.

- Передвижные мангалы из металла, сделанные своими руками. Такие конструкции имеют большие размеры, но при этом оснащены колесиками, благодаря которым могут перемещаться на участке. Такие мангалы приобретаются владельцами участков, которые не хотят создавать стационарную конструкцию по различным причинам. В пример можно привести ситуации, когда участок является небольшим и мангал из металла не будет гармонично вписываться в ландшафт.
Также можно найти электрические изделия, которые имеют функцию автоматического передвижения шампуров. Благодаря этому можно не беспокоиться о равномерности прожарки мяса. В таких устройствах вместо углей используются спиральные нагревающие элементы.
Преимущества металлических мангалов
Выбирая тип мангала, сначала стоит решить, стационарной будет конструкция или переносной. Стационарные могут быть изготовлены из металла или кирпича. Но чаще всего владельцы участков приобретают переносные конструкции, так как они выполняют свои функции и при этом не занимают много пространства.
Конструкции, создаваемые из металла, имеют следующие преимущества:
- Возможность перемещения на участке. Если мангал является складным, его можно взять с собой даже не имея автомобиля (при условии, что место отдыха находится недалеко).
- Равномерность прожарки мяса. Металл хорошо задерживает тепло, поэтому мясо готовится достаточно быстро.
- Возможность создания конструкции своими руками. При наличии сварочного аппарата можно сделать мангал из металла собственноручно.
Создавая металлический мангал можно сделать конструкцию любой формы и окрасить ее в желаемый оттенок. При отсутствии сварочного аппарата можно приобрести готовый металлический мангал. Такие изделия обычно продаются в магазинах с садовым инвентарем. Стоит отметить, что при отсутствии сварочного аппарата можно соединять элементы мангала при помощи болтов.
Простые разборные мангалы
Самыми простыми мангалами являются изделия, которые представляют собой две стойки в форме буквы П.
Для приготовления мяса стойки втыкаются в землю, после чего между ними располагаются угли. Стоит помнить, что из-за маленькой высоты таких изделий не получится жарить мясо стоя. При этом из-за отсутствия стенок мангала происходит потеря тепла.
Но если вы собрались в пеший поход, стоит взять именно такой мангал. Подобные изделия не являются тяжелыми и поэтому не могут стать причиной появления усталости во время похода. Чтобы определить, какая конструкция будет более удобна именно для вас, нужно рассмотреть различные фото описываемых изделий. Также важно определить оптимальное расположение изделия.
Неразборный металлический мангал
Перед созданием мангала необходимо заранее подумать о том, какие материалы и инструменты потребуются для работ и составить список. Для сооружения металлического мангала необходимо иметь:
- арматуру и металлический уголок для создания стоек;
- болгарка;
- дрель
- стальной лист, необходимый для создания основной части мангала;
- сварочный аппарат
Некоторые владельцы участков обходятся без сварочного аппарата, соединяя металлические элементы при помощи болтов.
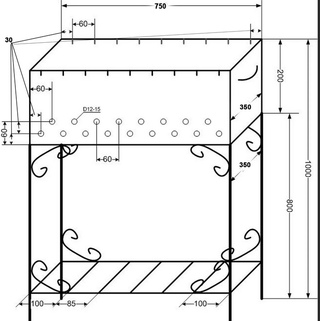
При этом заранее стоит подготовить чертеж мангала с размерами. Можно взять и готовые схемы. В чертеже должна быть отображена высота, длина другие параметры конструкции. Важно указывать расстояние между перфорационными прорезями и фасками для шампуров.
Расстояние между вентиляционными щелями в мангалах обычно составляет около 7 см. Рассчитывать длину конструкции следует с учетом того, что на мангале должно располагаться 8 шампуров.
Важно правильно подобрать металлические листы для создания мангала. Данные изделия должны иметь толщину не меньше 2 мм. Чем больше будет этот показатель, тем долговечнее будет вся конструкция. Именно поэтому многие выбирают листы толщиной 5 мм.
Размеры мангала
Во время создания чертежа важно точно указать размеры каждой детали конструкции. При определении оптимальных параметров стоит ориентироваться на стандартные изделия высотой 95 см и длиной ножек около 70 см. глубина жаровни в таком случае будет составлять 25 см, чего вполне достаточно для эффективной прожарки мяса.
Ширина многих металлических мангалов составляет примерно 28 см. Длина конструкции должна составлять около 54 см. При таких параметрах на мангале можно свободно разместить 9 порций шашлыка. При создании чертежа стоит ориентироваться на количество людей, которые будут отдыхать около мангала. Если конструкция создается для большой семьи, то размеры можно увеличить. Если же мангал будет использоваться для приготовления мяса всего на 2-3 человек, можно создать небольшую конструкцию.
На верхней части конструкции необходимо сделать зазоры для шампуров. Благодаря им можно равномерно распределить мясо над углями. Расстояние между зазорами должно составлять около 6 см. при этом нужно оставлять пространство между крайними стенками и зазорами. Если этого не сделать, мясо может касаться металла и пригорать.
Важно помнить о том, что вся конструкция должна хорошо продуваться. Для этого на боковых стенках мангала создаются отверстия. Их диаметр должен составлять около 15 мм.
Важно сделать их в нижней части мангала и расположить в шахматном порядке. На торцевых стенках делать отверстия не нужно.
Указав в чертеже все размеры, необходимо повторно проверить его, чтобы не допустить ошибку во время соединения частей конструкции.
Создание мангала из нескольких листов металла
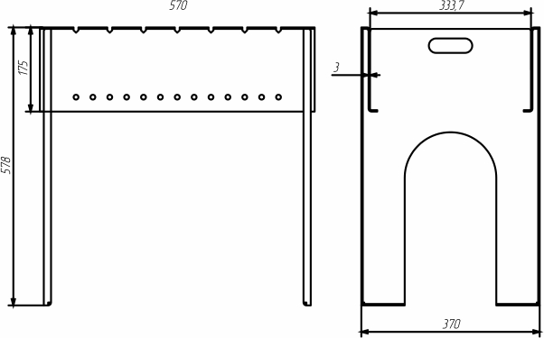
Чаще всего мангал создается из нескольких листов металла, которые соединяются друг с другом сваркой. Для работ понадобятся 2 листа длиной 28 см и шириной 25 см. Также необходимо приготовить листы 24х25 см. Кроме этого, потребуется еще один лист металла (54х28 см), который нужен для создания дна мангала.
Для ножек мангала можно использовать металлические трубы или уголки. Их длина должна быть равна 70 см. для создания мангала необходимо заранее подготовить сварочный аппарат, рулетку и дрель. Также следует подготовить пилу по металлу или болгарку.
Металлическую конструкцию можно оборудовать ручками для переноски и другими деталями. Например, многие закрепляют над мангалом навес.
Это позволяет готовить мясо даже во время дождя. Перед проведением работ нужно еще раз произвести замеры и отметить места соединения листов. Зазоры для шампуров делаются при помощи пилы по металлу или болгарки.
Важно! Лучше всего делать ножки мангала из металлических уголков. Это обосновывается тем, что арматура не является надежной и под нагрузкой конструкция может шататься.
Мангал из целого листа металла
Чтобы упростить процесс сооружения мангала, можно сделать его из одного стального листа. Для этого достаточно сделать надрезы в определенных местах, после чего согнуть части листа и соединить их при помощи сварочного аппарата.
Сборка происходит следующим образом:
- Сначала осуществляется создание отметок на металлическом листе.
- После этого происходит вырезание будущей формы по отмеченным линиям.
- На следующем этапе края сгибаются, в результате чего получается металлический короб. На данном этапе происходит соединение загнутых частей металлического листа друг с другом.

- Затем делаются перфорационные отверстия в нижней части конструкции. Их диаметр должен составлять около 15 мм.
- После этого на боковых стенках делаются фаски.
- На последнем этапе происходит создание ножек и приваривание их к полученному металлическому коробу. Лучше всего делать ножки из уголка, так как они более устойчивы, чем изделия из арматуры.
Полученный таким образом мангал будет более прочным, чем собранный из нескольких металлических листов. Чтобы конструкция была более устойчивой, следует закрепить ножки не вертикально, а с небольшим уклоном.
Мангал из бочки или газового баллона
При желании можно создать мангал из бочки или старого газового баллона. Для этого достаточно разрезать такие изделия вдоль. Для сохранения целостности конструкции торцы разрезать не стоит.
Ножки для такого мангала также можно сделать из металлического уголка. Эти элементы конструкции привариваются к торцам бочки. На последнем этапе для размещения шампуров вырезаются фаски.
Особенности изготовления разборной жаровни
Разборные жаровни обычно создаются для того, чтобы использовать их во время автомобильного путешествия. Также они могут использоваться в случае, когда около дома имеется небольшое свободное пространство, которое не хочется занимать громоздкой неразборной конструкцией.
Для сборки описываемых изделий не обязательно иметь сварочное оборудование, так как все элементы соединяются при помощи болтов. Так же, как и при создании стационарной жаровни, сначала нужно сделать чертеж, в котором будут указаны размеры каждой детали. Схема разборного изделия является более сложной, поэтому важно внимательно производить расчеты и правильно чертить каждый элемент.
После подготовки каждого элемента каркаса происходит их соединение при помощи болтов. Чтобы соединения были более прочными, следует использовать шайбы гровера. На следующем этапе на основании закрепляются ножки. Благодаря использованию болтов можно быстро разобрать конструкцию, если ее нужно перенести.
Многие разборные жаровни дополняются коваными элементами. Чтобы конструкцию было удобно переносить, стоит закрепить на корпусе ручки.
Как защитить мангал от коррозии
При создании любого металлического изделия стоит помнить о том, что его необходимо защитить от коррозии. Часто используются различные краски. Но при выборе такого состава стоит помнить, что он должен быть устойчивым к высокой температуре. Также можно применить такой способ, как воронение. После проведения обработки на поверхности материала образуется пленка, способствующая его защите.
Воронение выполняется следующим образом:
- Сначала металл обезжиривается и очищается;
- После этого происходит выдерживание материала в растворе гидроксида натрия. Погрузить металл в данный состав необходимо на полтора часа.
Если для защиты жаровни вы выбрали краску, необходимо определить наиболее подходящий вид состава. Часто для мангала применяется серебрянка – краска, в составе которой содержится алюминиевая пудра.
Часто применяются термостойкие порошковые краски. Но стоит отметить, что после нанесения такого красящего вещества необходимо обработать конструкцию в сушильной печи. Прежде чем покрасить мангал нужно удалить с поверхности любые загрязнения, так как их наличие может привести к отслаиванию красящего вещества. Перед выбором определенного оттенка можно посмотреть фото, на которых изображены подобные изделия.
Полезные рекомендации
Чтобы не тратить деньги на приобретение листового металла, можно использовать старый газовый баллон. Такие изделия изготавливаются из достаточно прочного и толстого материала. При этом из газового баллона получается компактная жаровня. Но перед использованием такие изделия необходимо выжигать, чтобы избавиться от газоконденсата.
Для создания долговечной конструкции необходимо соблюдать несколько простых правил:
- Нарезка металла должна производиться как можно точнее. Допуск может составлять не более 0,5 мм.
- Обрабатываемые детали должны быть закреплены на столе при помощи струбцин.
Если этого не сделать, отрезать материал ровно будет достаточно сложно. - Для резки металла стоит использовать углошлифовальную машину больших размеров, так как это позволяет делать более ровный рез.
- Перед выполнением работ необходимо найти спецодежду, рукавицы и защитные очки. Не соблюдая правила безопасности можно получить серьезные травмы.
Создав заранее чертеж будущей конструкции можно выполнить все работы своими руками и создать надежную жаровню.
Металлические мангалы с навесом
Чтобы иметь возможность готовить мясо на жаровне в любую погоду, можно сделать жаровню с навесом. Важно определиться. Будете ли вы создавать навес отдельно от металлической конструкции или станете закреплять его на мангале.
Первый вариант является оптимальным, так как он позволит комфортно жарить шашлыки во время дождя. При этом установка такой конструкции производится проще. Если выбирается второй вариант, следует учесть, что навес будет создавать дополнительную нагрузку на конструкцию.
Именно поэтому перед началом работ важно произвести расчет.
Закрепление навеса следует производить при помощи металлических уголков. Это позволяет значительно облегчить сборку изделия. Полотно навеса должно быть выполнено из огнеупорного материала, имеющего малый вес. Лучше всего подойдет профнастил. Он может выдержать перепады температуры и при этом имеет малый вес.
Во время составления плана строения следует подумать о расположении опор. Если они будут размещены на углах жаровни, они станут мешать во время готовки шашлыка. Если же закреплять дополнительные элементы для креплений, это может привести к смешению центра тяжести всей конструкции.
Если навес создается для уже готовой жаровни важно произвести расчеты и определить, как дополнительные элементы повлияют на устойчивость. При необходимости стоит добавить дополнительные ножки. Конструкции с навесами часто дополнительно декорируются коваными элементами.
Оригинальные идеи
Перед тем как сделать жаровню следует рассмотреть несколько оригинальных типов таких изделий.
Это поможет сделать мангал не только функциональной, но еще и красивой конструкцией.
Некоторые владельцы участков создают жаровни из старых металлических бочек. Такие изделия могут быть с крышкой и без нее. При выборе первого варианта вырезанная часть бочки закрепляется на петлях и оснащается ручкой. Во время готовки мяса крышка остается открытой. К краям такой шашлычницы привариваются ножки. Их следует расположить таким образом, чтобы вся конструкция была устойчивой и не могла упасть от сильного ветра.
В некоторых случаях бочка оформляется таким образом, чтобы вся конструкция была похожа на паровоз. Для этого достаточно приварить к опорам металлические колеса и добавить листы металла, похожие на части локомотива.
Также можно стилизовать шашлычницу под металлический сундук. В таком случае мангал создается более широким и оснащается крышкой с ручками. При этом добавляются уголки и заклепки. Также подобные жаровни часто оснащаются коваными элементами.
Рассмотрев фото с изображением описываемых изделий можно понять, какая конструкция лучше смотрелась бы на вашем участке.
Выбор определенного варианта должен производиться только после определения стиля участка.
Многие дополняют шашлычницы полками, подставками и колесами, что можно заметить, рассматривая фото. При желании можно создать жаровню в виде небольшого автомобиля, кареты и других подобных конструкций. Подобные мангалы из металла позволяют значительно изменить вид участка.
Сделав красивую металлическую конструкцию можно без стеснения приглашать гостей на барбекю.
Отправить комментарий
🍖 Правильный размер мангала: учитываем множество важных факторов
Чтобы при приготовлении шашлыков не страдать от боли в спине и иметь возможность одновременного использования достаточного количества шампуров, стоит выбрать правильный размер мангала.
Габариты такой конструкции могут варьироваться в широком диапазоне. Предлагаем разобраться, как сделать правильный выбор и не ошибиться.
ФОТО: metancor.md
Содержание статьи
Какого размера должен быть мангал: возможные варианты
Ещё до покупки либо самостоятельного изготовления стоит задуматься о том, какого размера должен быть мангал. Здесь возможно множество вариантов. В продаже есть изделия со стандартными габаритами. Их массово выпускают различные производители. Если такой вариант не устраивает, стоит сделать выбор в пользу индивидуального проекта. Предлагаем познакомиться с их отличительными особенностями.
Габариты варьируются в широком диапазонеФОТО: svarkaprosto.ru
Стандартные размеры мангала для шашлыка
В зависимости от производителя, размеры мангала для шашлыка могут варьироваться в широком диапазоне. Однако чаще всего их ширина составляет 0,3–0,4 м, если планируется использовать шампуры на 8 –9 кусочков мяса.
Глубина может меняться от 15 до 18 см при толщине стенок 4–8 мм.
ФОТО: vosaduly.ru
Прорабатывая чертежи стандартных мангалов, производители стремятся выбрать такие размеры, которые позволят обеспечить хорошую прожарку мяса и предотвратить его пригорание. Также учитываются условия эксплуатации. Длина стационарных моделей может достигать 1 м, а для переносных изделий правильными габаритами являются 0,6–0,7 м.
Переносные модели изготавливают небольшими для удобной транспортировкиФОТО: foodcity-pro.ru
Возможные вариации
Не всегда стандартные конструкции способны удовлетворить потребности владельцев. В такой ситуации можно поварьировать геометрическими параметрами. Они могут меняться в достаточно большом диапазоне. Важно, чтобы готовое изделие было способно:
- придать приготавливаемому блюду неповторимый вкус и аромат. Для этого оно должно способствовать равномерной прожарке мяса с сохранением сочности;
- выдавать максимум тепла при минимальном расходе угля либо дров;
- быть прочным и комфортным в использовании.
Варьировать можно не только геометрические параметры, но и форму.
ФОТО: kiprinform.com
Определяемся с размерами идеального мангала своими руками
Если решено изготовить конструкцию своими руками, стоит отказаться от стандартов и стать обладателем мангала с идеальными размерами. Такое изделие будет более удобно в эксплуатации и прослужит длительное время. Предлагаем разобраться, как найти оптимальные параметры.
Индивидуальный подход – лучшее решениеФОТО: pechiexpert.ru
Какая должна быть высота и длина мангала: рекомендуемые значения
О том, какая должна быть высота мангала, стоит задуматься заранее. Данный параметр выбирается индивидуально. Она не должна быть низкой или высокой, чтобы не испытывать в процессе приготовления шашлыков дискомфорта. Именно поэтому данный параметр выбирается с учётом роста человека, который будет им чаще всего пользоваться. В среднем, высота мангала для шашлыка должна быть 75–125 см.
Высота зависит от ряда параметровФОТО: info.
sibnet.ruДлину выбирают с учётом количества одновременно приготавливаемых шашлыков. Если одновременно будет использоваться 6 шампуров, достаточно 60 см. Если же одновременно будет готовиться 10 шашлыков, то длину увеличивают до 1 м.
Длину выбирают с учётом количества приготавливаемых шашлыковФОТО: dieta.spb.ru
Статья по теме:
Беседка с мангалом: проекты, фото интересных решений, выбор материала, как правильно выбрать зону барбекю, особенности возведения беседки для дачи с мангалом — читайте в публикации.
Ширина и глубина
Ширину выбирают с учётом длины шампуров, которыми планируют пользоваться. Обычно их длина составляет 45–50 см при рабочей 30–35 см. С учётом этого, глубина мангала для шашлыка должна быть максимум 40 см. Увеличение поперечных размеров приведет к неправильному расходу вырабатываемого тепла.
Глубина обычно составляет около 15–20 см. При проработке чертежа мангала для шашлыка из железа, размеры выбирают с учётом того, чтобы можно было сформировать слой углей толщиной 5–10 см.
При этом, между мясом и слоем угля должно быть около 8 см. Если планируется использовать дрова, глубину делают немного больше. В этом случае, для обеспечения оптимального теплового воздействия, толщина формируемого слоя углей должна быть намного больше.
ФОТО: a.d-cd.net
Толщина стенок
Это достаточно важный параметр, влияющий на долговечность изготавливаемой конструкции. При этом стоит учитывать мобильность устройства для жарки. Для стационарной модели стоит выбрать листы толщиной до 8 мм. Если же конструкцию планируется периодически переносить с одного места на другое, правильным размером мангала станет толщина до 4 мм, так как такое изделие будет весить намного меньше.
Чем толще металл, тем лучшеВнимание! Чем толще будет листовая сталь, тем дольше прослужит конструкция.
ФОТО: a.d-cd.net
Правильная высота ножек для мангала: способ определения
Высоту ножек для мангала определяют с учётом роста главного исполнителя блюда.
Чтобы найти суммарную высоту надо согнуть руку в локте и измерить расстояние от локтя до земли. Требуемый параметр в этом случае будет равен разности между найденным значением и высотой конструкции в целом.
Высота ножек зависит от роста владельцаВнимание! Средняя высота ножек около 1 м.
ФОТО: cs2.livemaster.ru
Расстояние между шампурами на мангале: выбираем оптимальное
Чтобы в процессе приготовления блюда можно было с лёгкостью перевернуть шампур, стоит особенно тщательно выбрать расстояние между шампурами на мангале. Его выбирают минимум 5 см. Для удобства пользования делают специальные прорези.
Между прорезями минимум 5 смФОТО: oleor.ru
Правильный размер мангала для различных способов жарки мяса
Технология приготовления мяса предъявляет определённые требования к габаритам и конструктивным особенностям. Какие габариты будут правильным, будет зависеть от:
- температуры обработки;
- используемого инвентаря.

Предлагаем познакомиться с общими рекомендациями по выбору геометрических параметров конструкции на шампурах и с решётками барбекю.
Способ жарки может отличатьсяФОТО: i.ytimg.com
Габариты модели для шашлыка на шампурах
При проработке схемы и выборе размера мангала для шашлыка из металла определяют оптимальную длину, ширину и глубину с учётом геометрических параметров шампуров, которыми планируют пользоваться. Если семья большая, стоит выбрать модель длиной около 1 м, чтобы иметь возможность одновременно жарить мясо на 10 шампурах.
Стандартная ширина 30–40 см. Этого достаточно, чтобы поместилось 6 – 8 кусочков мяса. Увеличение параметров неэффективно. На большинстве чертежей мангала для шашлыка считается оптимальной глубина 15 см.
Для каждого шампура предусматривается отдельное местоСовет! Обязательно предусмотрите прорези для установки шампуров.
ФОТО: pechi-kamin.ru
Модели с решетками для барбекю
Прорабатывая параметры мангала, следует, в первую очередь, учитывать размер решётки для барбекю.
Они составляют 18×28 см. Располагаться решётка должна на расстоянии 5–8 см от поверхности углей. В этом случае удастся обеспечить равномерную прожарку мяса. Чаще всего размеры мангала для шашлыка из железа выбираются 18×30 см. Этого достаточно для размещения одной решётки.
ФОТО: cdn.lifehacker.ru
Изменение показателей в зависимости от материала изготовления мангала: размеры, чертежи
Прорабатывая чертёж мангала, следует помнить, что его размеры будут напрямую зависеть от того, из какого материала он изготавливается. Изделия из листового металла обычно меньше аналогов из кирпича. Именно поэтому, выбирая оптимальную высоту мангала для шашлыка из металла, нельзя ориентироваться на значения, рекомендованные для конструкций из кирпича.
Параметры изготавливаемого устройства зависят от материалаФОТО: pechi-kamin.ru
Кирпичные конструкции
Большой размер кирпича предъявляет определённые требования к габаритам готовой конструкции.
Наличие дымохода, мойки или столешницы ещё больше увеличивает общие габариты. Именно поэтому очень важно разобраться, как правильно сделать мангал из кирпича.
При изготовлении кирпичной конструкции учитывается ряд нюансов:
- ширина, длина и высота бортика подгоняется под стандартные параметры;
- глубина жаровни для мангала согласуется с форматом кирпича и толщиной формируемого шва. В зависимости от количества укладываемых рядов, она может быть 21 либо 28 см.
Параметры должны согласовываться с габаритами кирпичаВнимание! Срок службы кирпичной конструкции существенно больше, чем у металлической.
ФОТО: sc02.alicdn.com
Размеры и конструктивные особенности мангала из металла
Прорабатывая чертежи и выбирая размеры, важно помнить, как правильно сварить мангал, чтобы он смог прослужить очень долго, должным образом выполняя возложенную на него функцию. Для изготовления подобной конструкции могут использоваться не только новая листовая сталь, но и бывшие в употреблении изделия, имеющие подходящую длину.
Некоторые пользователи для изготовления полукруглой модели используют старые металлические бочки и даже баллоны из-под газа. В зависимости от имеющихся в наличии элементов из металла, и выбираются оптимальные размеры мангала для шашлыка.
Чтобы продлить срок службы металлической конструкции, стоит изначально выбирать листовой материал из нержавеющей стали либо после изготовления производить обработку специальными защитными составами. Даже небольшой слой позволит защитить металл от коррозии.
Для украшения используются различные декоративные элементы, включая ковку. В некоторых случаях используются подставки из-под старых швейных машинок. Предлагаем посмотреть фото того, как выглядят мангалы, изготовленные из металла. Возможно, что среди готовых решений вы увидите желанную для вас конструкцию и захотите стать её счастливым обладателем.
ФОТО: avatars.mds.yandex.netФОТО: unidoski.ruФОТО: images.ru.prom.stФОТО: avatars.mds.yandex.netДелитесь в комментариях, любите ли вы шашлыки? Какая конструкция вам больше нравится? Какие размеры мангала из металла, кирпича или камня вы считаете правильными и наиболее оптимальными?
Предыдущая
БеседкаСтроительство беседки для дачи своими руками: чертежи, размеры, инструкции
СледующаяБеседкаДелаем беседку на даче своими руками
Понравилась статья? Сохраните, чтобы не потерять!
ТОЖЕ ИНТЕРЕСНО:
ВОЗМОЖНО ВАМ ТАКЖЕ БУДЕТ ИНТЕРЕСНО:
Виды мангалов из металла и их чертежи с размерами
Металлический мангал является наиболее простым в изготовлении.
Поэтому он наиболее распространенный, особенно среди тех людей, которые любят что-то делать своими руками и постоянно отдыхают на даче или на природе.
Виды
Сделанные из металла мангалы бывают:
- Складными.
- Переносными.
- Стационарными.
Переносные могут быть полностью или частично разборными.
Складные изделия
Первый вид представляет собой единую конструкцию, которую можно сложить в портативный кейс. Такие металлические мангалы разработаны для туристов. Поэтому их особенностями являются:
- небольшие размеры;
- сравнительно малый вес.
Большинство чертежей таких мангалов предусматривают жаровню с размерами 45х26х16 см (ДхШхВ). Для большой компании она не очень подойдёт, ведь готовить шашлык придется очень долго.
Еще одной особенностью правильных складных мангалов является особый материал. Для их изготовления используют тонкую огнестойкую нержавейку. При этом из нее также делают своими руками все петли.
Благодаря этому мангал получается достаточно малого веса.
Нержавейку очень легко чистить от копоти. Достаточно протереть тряпкой, и возвращается ее зеркальный вид. Поэтому складный мангал можно ставить в рюкзак и не беспокоиться, что что-то внутри станет грязным.
Также складные мангалы делают из листового металла. Они могут иметь вышеуказанные размеры, а также могут быть и большего размера. Изделия немного тяжелые и поэтому подходят для коротких путешествий. Такие конструкции являются хорошим вариантом в тех случаях, когда в машине очень мало места.
Разборные и стационарные модели
Переносные полностью разборные мангалы можно также сложить компактно. Однако компактность будет хуже, чем у складных. Ведь схема предусматривает большие по размерам детали. При этом создатели используют стойки с высотой в 1 м.
Они значительно больше аналогичных элементов складного мангала. Благодаря большим размерам и высоте разборные переносные мангалы создают большой комфорт во время приготовления шашлыка.
Частично разборные модели и их эскизы предусматривают возможность снятия ножек. Жаровня является цельной конструкцией.
Стационарные имеют большую массу, и их можно переносить только по внутреннему двору. Их отличает большое количество декорирующих красивых элементов. Многие из них являются коваными. Такие мангалы имеют почти такую, как у разборных конструкций, жаровню. Все остальные элементы красиво оформлены и зависят от фантазии создателя. Часто такие мангалы напоминают персонажей сказок, поезд, автомобили и любые другие предметы. Многие стационарные мангалы встроены в каркас с крышей.
Формы жаровен
Жаровня мангала может иметь вид:
- Коробки без верха.
- Вертикального широкого цилиндра со столбом по центру.
- Цилиндра с горлом вверху.
- Желоба с закругленным дном.

Чаще всего используются мангал с первым типом жаровни. Многие делают последний тип. Его название звучит несколько странно, на практике он представляет собой разрезанную вдоль бочку или газовый баллон.
Идеальная модель
Ее особенности зависят от формы жаровни. Для каждой формы есть свои оптимальные размеры.
Чертеж идеального классического прямоугольного металлического мангала имеет такие особенности:
- Ширина – 250 мм. Этого достаточно для размещения 6-8 кусков мяса. При такой величине тепло от продольных боковых стенок получают все куски, включая и те, которые находятся посередине. Это тепло необходимо для формирования румяной корочки. Если сделать ширину больше, то средние куски будут без корочки.
- Длина – около 1 м. При этом учитывается, что на один шампур должно приходиться 8-12 см. Также учитывается запас в 5 см с обеих сторон. Получается, что в метровом мангале можно разместить 8 шампуров. Этого для средней компании вполне достаточно.
Большую длину делать не следует, ведь повару придется бегать от одного конца до другого. Удобнее стоять на одном месте. - Высота – 200 мм. Оптимальной высотой является 150 мм. Однако дрова бывают разными и выделяют свое количество тепла.
- Вертикальные вырезы в продольных боковых стенках. Их длина должна составлять 50 мм. Такая величина позволит подбирать высоту размещения шампуров в зависимости от вида дров. Мясо должно находиться в 30-70 мм от углей.
- Дырочки в днище. Их должно быть много. Диаметр каждого отверстия следует делать 10-15 мм. Расстояние между отверстиями и рядами дыр должно достигать 20-30 мм. Чертежи идеального мангала могут предусматривать днище из сетки. Такой вариант лучше, поскольку приток воздуха к углям увеличивается. Сетку стоит делать из проволоки, диаметр которой больше 4 мм.
- Толщина металлических стенок – 2 мм, а еще лучше 4-6 мм.
Это обеспечит долгий срок службы и создание необходимого тепла для приготовления шашлыка. - Высота всей конструкции зависит от роста повара. В большинстве случаев – 1 м.
Как сделать идеальную модель
Сначала нужно нарисовать своими руками чертеж. При этом соблюдают вышеупомянутые правила. Чертеж позволит определить размеры каждой боковой стенки. Во время его рисования определяются с реализацией возможности разбора мангала. Если будет такая возможность, то длину боковых стенок следует увеличивать на 2 см. Эти дополнительные сантиметры будут представлять собой загнутые края. То есть 1 см каждой из сторон, которые будут примыкать к стойкам, нужно будет загибать под углом 90°. 1 см нижнего края боковин любой жаровни также нужно загибать. Делают это внутрь конструкции.
По составленному чертежу разрезают заготовленный листовой металл и профильную трубу или уголки. В днище сверлят отверстия. В продольных боковых стенках делают прорези.
В случае создания полностью разборной конструкции в стойках делают два длинных проема. Их длина должна равняться высоте жаровни. Воображаемые линии, которые будут проходить через проемы, должны образовывать прямой угол.
Если создается своими руками неразборный мангал, то сначала сваривают боковины. Далее к ним приваривают стойки. Можно и не приваривать. Это улучшит портативность конструкции. В этом случае каждую пару стоек нужно сделать в виде буквы «Н». При этом концы стоек должны быть выше горизонтальной перегородки на 1-2-см. Для надежной фиксации к боковинам жаровни на уровне верха стоек можно приварить 4 выступающих металлических квадратика с размерами 2х2 см. Эти квадратики и стойки нужно будет скреплять крючками в форме буквы «П».
Для дополнительной устойчивости можно сделать концы стоек острыми, чтобы вогнать их в землю.
Модель с горлом
Такой мангал напоминает собой большую бутылку.
Конструкция состоит из трех частей:
- Широкого цилиндра. Его высота равна 180-200 мм.
- Срезанного конуса. Высота – 100-150 мм.
- Узкого цилиндра. Имеет высоту, равную 100-150 мм.
Нижняя часть имеет в себе много дыр. Они есть не только в днище, но и в боковых стенках. Верхние из них делают на высоте 130 мм. Наличие боковых отверстий является весьма интересной особенностью. Правильные мангалы не должны иметь таких дыр, поскольку через них к мясу подходит много кислорода. Он меняет химические процессы в мясе, и блюдо получается не таким, как нужно.
Однако в случае с приготовлением мяса на этом мангале это не так потому, что в жаровне сжигают столько дров, что боковые отверстия перекрываются углями. С постепенным тлением углей дыры станут свободными, но до этого момента процесс приготовления мяса завершается. В результате часть дров тратится впустую.
Шампур с мясом ставят своими руками в горло такого мангала, то есть в верхний цилиндр. Во время тления углей эта часть превращается в проточную духовую камеру.
Такой мангал используют для приготовления шашлыка по-карски. Блюдо представляет собой большой кусок мяса. Его толщина достигает 3-4 см, а по размеру он напоминает маленькую тарелку.
Конструкция из бочки
Мангал с круглым днищем не работает так, как образец с прямоугольной жаровней. Это потому, что:
- закругленные стенки отражают тепло назад на угли;
- в середине угли быстро оседают, а по краям не успевают прогореть должным образом.
Поэтому просто распилить бочку пополам или вырезать в ней своими руками крышку для создания правильного мангала недостаточно. Проблему с чрезмерной осадкой углей можно решить благодаря устройству воздуховода. Есть два варианта его создания:
- Решетка для буржуйки. Ее ставят на днище. На ней угли будут лежать ровным слоем. Кроме этого под ней будет пространство с воздухом. Для притока свежего воздуха нужно сделать дырочки по центру днища.
- Уголок с размерами 85х85 мм.
В нем нужно сделать несколько рядов дыр. Далее его приваривают к днищу. Дырки можно сделать под ним или в местах, где размещаются его концы.
При создании мангала из бочки нужно выдержать правило относительно оптимальной ширины. Заготовку следует обрезать не пополам, а на треть или четверть. Ширина образуемого среза должна равняться 25 см. В таком случае не соблюдается рекомендация касательно правильного расстояния между мясом и углями.
Однако испытательные эскизы показали, что шашлык получается очень хорошим. Объясняется это тем, что отраженные от стенок инфракрасные лучи создают дополнительный нагрев углей, и возникает более плотный поток горячего воздуха.
После изготовления жаровни, следующие действия таковы:
- Создание проемов под шампуры.
- Приварка шарниров и прикрепление крышки.
- Прикрепление ручки к крышке.
- Изготовление стоек.
Мангалы из металла своими руками: размеры, фото и советы
Автор aquatic На чтение 7 мин.
Просмотров 7.3k. Обновлено
Самостоятельное изготовление таких конструкций позволяет в точности учесть реальные потребности. В стандартных изделиях всегда будут присутствовать те или другие недостатки. В этой статье представлены мангалы из металла своими руками, размеры, фото, различные конструкции и подробные пошаговые инструкции.
Кованые украшения изготовить сложно. Но некоторые другие части конструкции можно использовать, как образцы, для создания функционального изделия собственными силами
Купить мангал из металла не трудно. В торговой сети можно найти множество предложений. Но вряд ли получится найти идеальные размеры и техническое оснащение. Именно поэтому предпочтительным выглядит решение о самостоятельном изготовлении. Но в любом случае пригодится предварительная формулировка конкретных требований.
Составление списка нужных критериевЕсли состав семьи – небольшой, а образ жизни можно назвать замкнутым, достаточно будет создать компактную легкую конструкцию.
Ее проще будет переносить, очищать от загрязнений. Когда предполагаются регулярные встречи в составе крупно компании понадобиться соответствующее по размерам оборудование.
Этот пример поясняет, что особо важным является целевое назначение изделия. Для уточнения его параметров, надо точно определить следующие параметры и особенности:
- Количество и длину шампуров, которые будут устанавливаться одновременно для приготовления одной партии блюд (максимальное количество).
- Размеры, которые подходят для места будущей установки мангала.
- Примерный вес и необходимость оснащения колесами.
- Защищенность площадки для барбекю от погодных воздействий.
- Индивидуальные требования к внешнему виду.
В некоторых случаях пригодятся разборные конструкции. Их можно трансформировать в компактный вид, удобный для хранения. Небольшие модели пригодятся для пикников.
Такое стационарное сооружение уместно на приусадебном участке. Но взять его с собой в турпоход не получится
Современный переносной мангал фабричного производства.
В сложенном состоянии он займет минимум места багажнике легкового автомобиля
Если изучить качественные мангалы из металла своими руками, размеры, фото, будет проще уточнить параметры собственного изделия.
Передвижной мангал
Примечательные особенности этой конструкции перечислены ниже:
- Толстые стенки и защитно-декоративное покрытие обеспечивают хорошую прочность, устойчивость к внешним воздействиям разной природы.
- Вырезы на кромках корпуса сделаны для фиксации шампуров в разных положениях.
- Внизу есть отверстия. Они предназначены для свободного доступа кислорода в область горения.
- С одной стороны внизу сделаны ножки с приваренными пластинами. С их помощью создают надежные точки опоры и предотвращают перемещение.
- Крупные колеса подходят для передвижения по неровным поверхностям без приложения лишних усилий.
- Сбоку к мангалу жестко присоединен небольшой столик с креплениями для крепления совка и кочерги.
Обратите внимание на то, что опытный мастер повернул крючки в сторону. В таком положении они не поранят пользователя. - Широкие рукоятки также прикреплены жестко. Они удобны для захвата даже тогда, когда на руки надеты рукавицы.
Мангал – «корабль»
Такое изделие копировать сложно. Но вряд ли это надо, если нужны практические функции. Завитки и выступы быстро загрязняться, а очистить их будет непросто. Острые концы металлических листьев небезопасны. Подобные сооружения, скорее, используют для украшения садовых участков.
Мангал с крышей из металла: фото фабричного изделия
А такое решение пригодится. Конструкцию можно сделать меньше и проще, из других материалов. Но интересна сама идея – в рабочей зоне будут даже в дождь сохранены комфортные условия.
Шампура с электроприводом
Подобные изделия обеспечивают автоматическое вращение обрабатываемых продуктов питания, без вмешательства со стороны пользователя. Обеспечивается равномерная тепловая обработка, уменьшаются трудовые затраты.
Но такое приспособление можно приобрести отдельно в готовом виде, либо создать отдельно с учетом размеров получившейся конструкции.
В мангале профессиональной категории устанавливают несколько областей тепловой обработки. Некоторые шампуры и вертела вращают с применением электрических приводов
Для разжигания углей можно приобрести такой аппарат. Но некоторые мастера оснащают мангалы встроенными устройствами принудительной подачи воздуха
Еще одна «туристическая» модель. Здесь отсутствуют сварные соединения, поэтому самостоятельно создать упрощенный вариант не сложно
Для создания конструкции можно использовать следующую последовательность действий:
- Устанавливают необходимые размеры контура стенок с учетом рассмотренных выше критериев. Глубину делают от 15 до 25 см. При большем расстоянии придется тратить слишком много углей для получения аналогичного результата.

- Длину опорных частей подбирают с учетом роста пользователей. Модно замерить расстояние, которое получится от середины ладоней свободно опущенных рук до поверхности земли. Если предполагается сделать ножки острыми для заглубления в грунт, выполняют соответствующую коррекцию (5-10 см).
- Отверстия в нижней части корпуса создают диаметром 8-12 мм.
- После определения с общими параметрами их отмечают на чертеже.
Вполне достаточно рисунка «от руки»
- Дальнейшие действия будут зависеть от личных навыков, оснащенности, умений работать со специализированным оборудованием. Для упрощения допустим, что сварочная техника применяться не будет.
- В этом случае вначале из листового метала (2-3 мм) создают заготовки, прямоугольники с нужными размерами. Применяют ножовку с подходящим полотном. Торцы зачищают напильником, удаляют заусенцы.
- Края боковин (10-15 мм) загибают под прямым углом. Высверливают вентиляционные и крепежные отверстия.
- Для ножек можно использовать готовые стальные уголки подходящего размера.
- Отдельные части скрепляют винтами и гайками.
Мангал в собранном виде
На этом рисунке приведен пример с другими ножками. Они сделаны из стальных прутьев с резьбой. К днищу корпуса приварены гайки соответствующего диаметра. Такую конструкцию можно разобрать по завершении летнего сезона, если не предполагается использование в зимний период.
Всесезонная стационарная модификация
Чтобы сделать мангал своими руками из металла, размеры с крышей можно оценить с помощью фото. Устраняйте кованые завитки и другие излишества. Выпрямляйте линии несущих элементов. В результате получится простая конструкция, но не менее функциональная, чем на рисунке.
Ниже приведены примеры небольших мангалов из металла своими руками, размеры, фото, чертежи. Для их изготовления применяют технологические операции, описанные выше.
Складная конструкция
В этой модели ножки в рабочем положении фиксируются специальными уголками
В сложенном состоянии ширина мангала – примерно 40 мм
Сложно придумать изделие проще.
Хотя, можно сделать аналог из двух полос в форме буквы «П»
Эта неустойчивая «магазинная» конструкция из жести быстро придет в негодность. Качественная самоделка будет долговечнее
Полезные советы и общие выводыОбратите внимание! Окрашивать стальные стенки надо с применением жаропрочных эмульсионных составов. Обычные строительные краски быстро будут уничтожены пламенем и высокой температурой.
При выборе размеров мангала для шашлыка из металла можно быстро принять правильное решение. Но сложнее определиться с видом соединений. Для сварки потребуется не только оборудование, но и профессиональные навыки. Придется сделать соответствующие инвестиции и пройти курс обучения. Также используют изготовление частей по индивидуальному заказу в мастерской, применяют иные методики сборки.
Как сделать мангал своими руками (видео)youtube.com/embed/T0iC4aZXNh8?feature=oembed&wmode=opaque» frameborder=»0″ allow=»accelerometer; autoplay; encrypted-media; gyroscope; picture-in-picture» allowfullscreen=»»/>
Как правильно сварить мангал — размеры и чертежи
Любой загородный отдых невозможно представить без мангала, с помощью углей в нём можно приготовить рыбу, сардельки и мясо, имеющие неповторимый вкус и аромат. Жаровню можно укомплектовать решётками для гриля, а само приспособление сделать стационарным или компактным разборным, в зависимости от условий эксплуатации.
Некоторые любители снабжают это устройство приспособлением для установки казана, поэтому перед тем, как сварить свой мангал, нужно определить условия его использования. От этого зависят размеры, конструкция и толщина листов конечного изделия и мы расскажем, как правильно изготовить мангал.
Выбор конструкции и материалов
От места использования мангала зависит выбор конструкции жаровни, толщина металла, а также размер листов.
Только учитывая все эти параметры, можно правильно сварить мангал, который будет полностью вас устраивать. Разборная и лёгкая конструкция хороша для перевозки в машине или переноски вручную, но тонкие листы, особенно на дне, будут быстро прогорать, и их придётся часто менять.
Частично разборный дачный мангал обычно убирается на зиму и его можно снабдить съёмным и лёгким навесом, а металл при изготовлении можно использовать более толстый. Кроме того, такие изделия часто снабжаются решётками для жарки.
Наибольший простор для фантазии открывается при изготовлении стационарных мангалов, которые свариваются из толстых листов во избежание быстрого прогара, поскольку их обкладывают кирпичом и располагают под постоянным навесом. Такие изделия служат не только для поджаривания шашлыка, барбекю или гриля, а их часто совмещают с устройством крепления казана или объединяют с коптильней.
Таким образом, мангалы бывают следующих основных видов:
- мангал стационарный, для него выкладывают кирпичное основание, стенки и делают большой навес с вытяжной трубой, он изготавливается из металла толщиной 4 мм и более;
- отдельно стоящий мангал с сервировочными столиками, вертелом, съёмной жарочной решёткой и небольшим навесом;
- частично разборное изделие со съёмными ножками, сервировочными столиками и крышкой, конструкция удобная для хранения;
- полно разборный мангал, пригодный для перевозки и ручной транспортировки, изготавливается из металла толщиной не более 2 мм.

Важно осуществлять подбор толщины металла под конкретную задачу, поскольку для разборной конструкции нужен минимальный вес, а для стационарного изделия важнее долговечность.
Расположение ножек и материал должны обеспечивать максимальную устойчивость, поэтому их лучше изготавливать из труб или уголков, а внизу приваривать пятачки из металлической пластины. Съёмный навес делается на максимально лёгком каркасе и перекрывается оцинкованным листом или профнастилом, крепёж которого подразумевает простую фиксацию и лёгкий демонтаж конструкции.
Чертёж и оптимальные габариты мангала
Перед работой необходимо подготовить материал и определить размеры конструкции, исходя из места будущей установки и условий эксплуатации. Чтобы не ошибиться с количеством необходимого материала и осуществить точный раскрой заготовок, нужно сделать подробные чертежи с точными размерами и местами соединения деталей.
Имея схему и чёткий план действий, можно безупречно и качественно разметить металл и произвести подгонку элементов изделия. После раскроя необходимо проверить углы, размеры и произвести зачистку стыков от загрязнений, ведь с тщательной подготовкой сварить такой мангал будет значительно быстрее и проще.
Определить оптимальные размеры изделия необходимо в зависимости от ваших потребностей, но высоту стенок обычно выбирают от 17 до 25 см. Если делать высоту меньше, то мясо будет подгорать, а более высокие стенки потребуют большое количество углей. Кроме того, по длинным стенкам делаются сантиметровые полукруглые, треугольные или щелевые прорези для лучшей фиксации шампуров в определённом положении.
Ширину мангала определяет длина шампуров и решёток заводского изготовления, но обычно её выбирают не более 35−40 см, а длину вычисляют в зависимости от количества одновременно используемых шампуров плюс по 5 см от левой и правой стенки.
Длина ножек должна обеспечивать комфортную высоту мангала вместе со стенками, и соотносится с ростом хозяина, как правило, оптимальной является высота около 1 м. Все эти обстоятельства, от которых зависит заготовка и раскрой металла, должны отражаться в подробном и точном чертеже, а именно:
- длина, ширина и высота листов жаровни;
- высота и способ крепления ножек, придающих устойчивость конструкции;
- расположение ручек, отверстий в стенках, рёбер жёсткости и съёмных элементов;
- конструкция сервировочных столиков и иных сервисных приспособлений и их крепление;
- вид навеса и его конструктивные особенности, не нарушающие устойчивости изделия;
- местоположение прерывистого или сплошного шва.
Важно изготавливать шампуры, решётки и вертела из пищевого нержавеющего материла во избежание отравления и для сохранения эстетичного вида блюд.
Различные конструкции мангалов
Широкий диапазон различных конструкторских решений ставит перед нелёгким выбором любого человека. Прежде чем приступить к изготовлению мангала своими руками, нужно постараться учесть все обстоятельства его использования. Переносная жаровня должна быть весьма компактной и лёгкой и для её перемещения используют брезентовые сумки и даже кейсы, а сборка происходит с помощью пазов, выступов и небольшого количества крепёжных устройств различного вида. Всё это делает сборку и разборку достаточно быстрой и удобной. При перевозке на автомобиле количество разборных элементов можно сократить, а конструкцию сделать более тяжёлой за счет толщины металла мангала.
Стационарные установки делают для постоянного круглогодичного использования в виде неразъёмной конструкции и часто комбинируют с коптильнями и узлами крепления для варочных котлов и казанов. Такие мангалы расположены под постоянным навесом со стенами и оборудованы местом для приёма приготовленной пищи. Частично разборные конструкции располагают под постоянным или временным навесом и, как правило, убирают на зиму.
Такого рода мангалы состоят из следующих частей:
- сваренного из металла не менее 3 мм толщиной короба жаровни с ориентировочными размерами 25Х40Х90 см с отверстиями для свободного доступа воздуха;
- узлов крепления, регулируемых по высоте ножек с гайками для фиксации;
- самих ножек длиной около 70−80 см, обеспечивающих устойчивое положение мангала и исключающих риск опрокидывания конструкции;
- съёмные сервировочные столики с крепежом;
- приваренные ручки для переноски и крышка в размер короба;
- съёмный навес.
Важно отметить, что конструкция навеса должна обеспечивать устойчивость мангала даже под порывами ветра, поскольку опрокидывание может привести к пожару или серьёзным ожогам.
Соединение разборных конструкций подразумевает наличие пазов, в которые вставляются фиксирующие выступы ответных частей и фиксацию их с помощью болтов или шпилек с гайками. Сварочные работы при этом ограничиваются привариванием петель и узлов крепления ножек изделия и необходимо предусмотреть в конструкции минимальное наличие щелей в целях обеспечения пожаробезопасности.
Необходимые инструменты и порядок изготовления мангала
Ответственную работу по изготовлению жаровни начинают с разметки и раскроя материала согласно чертежам, которые должны быть готовы. При раскрое необходимо учитывать потери металла и соответственно уход от габаритов конечного изделия, поэтому необходимо учесть припуски, чтобы заготовки были абсолютно одинаковы по размерам. Кроме того, нужно подготовить рабочее место для фиксации раскраиваемых листов и сборки элементов конструкции. Также понадобится определённый набор инструментов и оборудования, а именно:
- сварочный аппарат с электродами или сварочной проволокой;
- защитная маска, краги и специальная одежда;
- углошлифовальная машина (болгарка) с набором отрезных и шлифовальных дисков;
- наждачная бумага, металлическая щётка и молоток;
- дрель с набором свёрл и удлинителем;
- сварочные магниты с углом 90о для фиксации заготовок;
- металлический угольник, линейка и рулетка для разметки;
- гаечные ключи, крепёж.
Необходимо работать исправным инструментом и соблюдать правила техники безопасности при сварочных работах, а раскрой материала выполнять в защитных очках.
После раскроя нужно выровнять стыки, очистить от заусениц и загрязнений, а также обработать растворителем, чтобы ликвидировать возможные следы масла. После этого выполняем сборку в следующей последовательности:
- до сварки просверливаем длинные листы двумя рядами отверстий в шахматном порядке для доступа воздуха в зону горения;
- если толщина металла менее 4 мм на листы длиной более 50 см необходимо приварить рёбра жёсткости из уголка, чтобы избежать коробления металла от температурных колебаний;
- листы фиксируют специальными магнитами и сваривают прихваточными швами;
- привариваются ручки для переноски и узлы крепления ножек, съёмных столиков и лёгкого навеса;
- в узлах крепления просверливаются отверстия и привариваются гайки для фиксации съёмных частей конструкции с помощью болтов, которые обеспечат регулировку элементов по высоте;
- внешняя сторона изделия обрабатывается шлифовальным кругом, растворителем и покрывается термостойкой краской.
Заключение
Мы описали примерную схему правильной сварки мангала своими руками, а этот вид творчества открывает крайне широкие горизонты для изобретательного ума. Мангал — это не только способ приготовления вкуснейшей пищи, это изделие воплощённое отражение характера хозяина, выраженное в металле.То есть является, в некотором роде, предметом особой гордости и эстетического совершенства.
варианты конструкций, чертежи и видеоинструкция – Свой дом мечты
Согласитесь, так приятно побаловать себя сочным, румяным шашлыком или запеченными на решетке овощами с ароматом дымка. Что для этого потребуется? Продукты и, конечно же, мангал. Именно об этом, незаменимом в летнее время предмете, и пойдет речь.
Как правило, мангалом или жаровней принято называть металлический короб с перфорацией для циркуляции воздуха, устанавливаемый на ножках. И, хотя варианты его оформления могут быть весьма разнообразны, при желании вы легко можете сделать мангал из металла своими руками. Сегодня мы рассмотрим самые интересные и практичные идеи для создания металлической жаровни и способы их реализации.
Какими бывают мангалы? Варианты конструкций из металла
Мангалы могут быть разнообразны по конструкцииПо своим габаритам мангалы делятся на две основные группы – переносные и стационарные. Конструкции, не предназначенные для переноски, отличаются большей массивностью, устанавливаются на основание из кирпича или камня и нередко украшаются различными коваными элементами. Такие мангалы часто размещают внутри беседки или под навесом, что дает возможность использовать их даже в плохую погоду.
Разборные мангалы, как правило, имеют небольшой вес и размеры. Они используются для выездов на природу или в пеших прогулках. Самым простым вариантом являются две раздельные металлические опоры с зазубринами для шампуров, размещаемые друг напротив друга. Такая модель очень удобна благодаря своей компактности, но имеет и недостаток – одновременно на ней можно приготовить всего несколько порций шашлыка.
Некоторые переносные конструкции могут быть оснащены также дополнительными решетками, выдвижным столиком или другими необходимыми аксессуарами. Однако это влечет за собой утрату мобильности – из-за возросшего веса их сложно переносить вручную.
Обычный мангалПо толщине стенок варианты конструкций из металла могут быть тонкостенными и толстостенными. Более тонкий и, соответственно, более легкий металл применяется для создания переносных моделей. Это не лучшим образом сказывается на их прочности, поэтому использовать в них допустимо только магазинные или заранее заготовленные угли, так как длительный накал, необходимый для образования достаточного количества углей, быстро приведет тонкие стенки в негодность.
Стационарные мангалы разумнее делать толстостенными. Для их изготовления чаще всего применяют стальные листы толщиной в 4 мм и более. Это обходится дороже, но и прослужить они могут в несколько раз дольше тонкостенных аналогов.
Создание мангала из железной бочки (с коптильней или без нее)
Сделать небольшой мангал можно из листового металла, но если нужна более вместительная конструкция, то лучше взять за основу обычную железную бочку или баллон. К преимуществам такой модели относится не только простота сборки, но и большая функциональность готового изделия – его можно легко превратить в коптильню. Рассмотрим создание мангала из железной бочки более детально.
Необходимые материалы
Хотя конструкции мангалов из бочки могут несколько отличаться, к примеру, наличием или отсутствием крышки и коптильни, но перечень необходимых инструментов и материалов для них схож. Для работы вам понадобятся:
Чертежи и фото: пошаговая инструкция для изготовления
Первым делом потребуется составить чертеж будущей конструкции. На нем следует обозначить высоту и ширину самого мангала, размеры ножек, наметить места для перфорации и фасок (скошенных прорезей в металле) для шампуров. Фасок, как правило, делают 8 штук или более, а перфорацию лучше разместить на высоте около 10 см от днища. Высоту ножек подбирают индивидуально.
Если планируется использовать мангал в качестве коптильни, то необходимо также предусмотреть трубу для выхода дыма. Приведенные ниже чертежи и фото, а также пошаговая инструкция по сборке, помогут вам разобраться в нюансах создания мангала из бочки.
Схема мангала с коптильнейПосле того как чертеж будущей конструкции готов, можно приступать к делу. Последовательность действий следующая:
Основные работы на этом считаются завершенными и наступает очередь отделки, а именно – окрашивания. Для этой цели можно использовать термоустойчивую краску, продающуюся в баллончиках, она достаточно стойкая и удобна для нанесения. Оформленный таким образом мангал будет выглядеть намного эстетичней, кроме того, покрытие защитит его от ржавчины.
Завершение работы над мангаломВидео: советы по сборке мангала от профессионалов
Если вы не можете назвать себя опытным сварщиком и конструктором, рекомендуем посмотреть видео, в котором наглядно показаны все этапы создания металлического мангала из бочки и его отделки.
Интересные идеи для мангалов: практично и красиво
Конечно, мангал – вещь для приготовления шашлыка практически незаменимая. Но хотелось бы, чтобы, помимо выполнения своей основной функции, он еще и был привлекателен внешне. Представляем вашему вниманию интересные идеи для мангалов, которые, без сомнения, смогут украсить двор и удивить гостей.
Такой стальной мангал, с вместительной поленницей и удобными полочками для продуктов, легко справится с приготовлением шашлыка даже на большую компанию и органично впишется в ландшафт любого участка.
Следующая модель, напротив, отличается компактностью и отлично подойдет тем, у кого нет во дворе лишнего свободного пространства. Кроме того, она выполнена в виде тележки, что значительно упрощает ее перемещение.
Еще одна оригинальная идея – мангал, закрепленный на стене. Конструкция позволяет раскладывать его при необходимости, а после использования снова превращать в элемент декора. Очень удобно!
Нельзя обойти вниманием и самый компактный из металлических мангалов, которым можно пользоваться даже в квартире. Хотя его размеры не позволяют приготовить полноценный шашлык, но для колбасок и овощей он вполне подходит.
И напоследок – интересное решение для владельцев старого, ненужного автомобиля. Его передняя часть, впрочем, как и багажник, может превратиться в симпатичный декоративный мангал на колесах.
Как видите, создание жаровни из металла процесс достаточно простой, а приспособить под него можно практически все что угодно. Поэтому, если у вас в хозяйстве еще нет столь полезного предмета – осмотритесь, возможно, какие-то старые или ненужные вещи только и ждут, чтобы вы превратили их в удобный и оригинальный мангал.
Размеры металлических чертежеймангалов. Как сделать металлическую, стационарную и складную марку
Эти продукты позволяют заниматься не только жаркой, но и копчением. Требуется свое оснащение плотной крышкой и полками, в которые будет устанавливаться решетка. Принцип, по которому «работает» такая конструкция, очень прост:
- Внизу конструкции необходимо положить тонкие веточки — желательно яблони или вишенки;
- Решетка вмещает в себя продукты, которые вы собираетесь готовить;
- Аппарат накрывается крышкой, при этом под ней разводится огонь;
- Ветви, находящиеся внутри, повреждены от повышенной температуры;
- В итоге получается, что продукты запекаются и при этом копаются с веток.
Недостаток такого товара в том, что его проблематично найти в продаже, а в случае обнаружения цена кажется немаленькой. Таким образом, мангалы с металлической крышей, фото которых представлены в большом разнообразии, а также изделия с коптильней — это лучшее решение для и удачного пикника в любую погоду.
Мангалы «Барбекю по-американски»
Такие разновидности мангалов часто бывают круглыми, а не прямоугольными, как мы привыкли их видеть. Основное отличие такой конструкции мангалы в том, что жарка производится на решетке.Можно использовать не только угли, но и огонь открытого типа. Поэтому доска такого мангала выше, чем у других изделий. Стоимость «американского шашлыка» превышает стоимость многих аналогичных продуктов, но многие люди, купившие такой продукт, считают этот факт вполне оправданным. Особо популярное использование.
Место установки: особенности выбора
В этом случае стоит прислушаться к советам профессионалов.
- Мангал не должен располагаться под деревьями или недалеко от кустов.
- Для светильников не должно быть пленки, ткани.
- Учитывайте розу ветров, чтобы при жарке дым не попадал в окна дома.
- Инструмент для устройства специальной территории мангала — зоны отдыха.
Если штангу шевелить на земле, площадка под ней должна быть из специального материала — кафеля. Во время дождя это будет способствовать отличному пикнику.
Изготовление мангала своими руками
Мангал своими руками из металла (размеры, фото представлены ниже), как мы уже отмечали, есть разные, на практике рассмотрим пример постройки простейшей конструкции (на 8 шампуров).Шампуристы не обязаны выступать в роли помех одного на одного, но и слишком больших промежутков между ними быть не должно. На классическом вертеле можно разместить около 5 штук мясных изделий, а глубина определяется практическими методами. Еда не должна располагаться вдалеке от угля, но и не слишком близко, иначе произойдет возгорание. Расстояние от верха изделия до земли удобнее всего делать исходя из роста шеф-повара.
Рисунок
Лучше всего выбрать такой элемент, как металлический мантал, схема — фото.Вы можете использовать готовые схематические решения для типовых проектов, это сэкономит время и значительно упростит задачу. Рисунок мангалы должен быть простым, по разметке спереди от задней стенки может быть 70 * 20 см, снизу — 70 * 28 см, простота — 28 * 20 см. Следующие элементы вырезаются с помощью болгарки, заранее сделанные небольшие прорези позволят чемпионам. Отверстия выполняются для прохождения воздуха.
Трудно представить кулинарные процессы на свежем воздухе без мангалов.Эти устройства позволяют создавать на своем дачном участке невероятно вкусные блюда. На рынке представлено множество моделей мангалов. Однако часто владельцы самостоятельно строят такие устройства. Как приготовить мангал? Часто просто получаются разные дизайны. Их форматы определяются экономическими целями, финансовыми возможностями, параметрами платформы и навыками работы.
Критерии выбора конструкции
Очень часто в вопросе выбора материала для мангала предпочтение отдается металлу.Он отличается прочностью, устойчивостью к серьезным температурным режимам и другим факторам. Некоторые компоненты крепятся по-разному. Но способ сварки в этом вопросе самый надежный и оптимальный.
Сегодня правильно сварена марка — корпус начальный. Многие владельцы желают создавать необычные конструкции. А потому оснастите их дополнительными элементами. К ним относятся:
- Печь, в которой можно разогревать посуду.
- Специальные отсеки для сушки дров.
- Полки для разных кулинарных добавок и специй.
Если вы поставили цель сварить мангал своими руками, то перед самим творческим процессом изучите фото и схемы разных модификаций. Их легко найти в сети. Итак, вы выбираете себе определенную модель. Полезно для просмотра и видео инструкции. В них мастера подробно и практически изложили сварку конструкции. Это помогает заранее осознавать потенциальные трудности предстоящего дела.
На практике создание металлической мангалы не так уж и сложно.
Только решите заранее следующие вопросы:
- Строительство поймете или будет монолитным?
- Размеры. Сколько человек в устройстве? Этот аспект влияет на его параметры и количество шампуров, которые можно применять за один раз.
- Какой период эксплуатации будет у продукта? Эти критерии определяют выбор того или иного металла.
- Каким будет дизайн? Для этого изучите множество фото и вариантов с разным дизайном.Вы можете выбрать себе подходящий фасон и расцветку. Оптимально, если вы найдете видеоматериал по конструкции именно этой модели.
Расчет габаритов
Параметры задуманной мангалы — ключевые критерии. Они определяются удобством применения агрегата по назначению.
Если используется семья со стандартным количеством человек (3-4 человека), то модель 60 х 35 см будет консолидированной.
Для коллектива с большим количеством людей необходимо использовать более крупную конструкцию.
Фотографии стандартных и нестандартных версий легко размещаются в сети. Могут попадаться такие картинки, на которых традиционный вариант дополнен множеством компонентов и устройств. Они расширяют ее функциональный спектр и украшают ее внешний вид. Изготовлю любую металлическую модификацию. А сварку можно провести своими усилиями.
Например, можно действовать по такому чертежу:
Подобных и других чертежей предостаточно. На их основе можно строить свою работу.Важно решить дилемму с количеством шампуров, одновременно находящихся на сварном мангале.
Не менее важным аспектом является глубина устройства. Примерное его значение — 15 см. При такой ситуации между продуктом и углем останется нужный зазор для варки. Высота мангала должна быть максимально комфортной для кулинара.
Подбор материалов
Самостоятельное создание металлоконструкций возможно из разных материалов.Здесь главное не ошибиться с металлом. Выбранный вариант должен гарантировать максимальный срок эксплуатации будущей конструкции. В основном здесь работает одно правило: чем меньше толщина металла, тем меньше работа агрегата. По этой причине следует применять материал с хорошей плотностью. Ни в коем случае не используйте листы, максимальная плотность которых составляет 1 мм. Из них это будет довольно слабая конструкция.
Другой пример чертежа:
Для изготовления высококачественного материала с длительным периодом обработки требуется подготовка таких материалов и инструментов:
- Металлические листы.Их параметры и толщина оптимальны.
- Металлические уголки. Из них формируются ножки для аппарата.
- Сварочное оборудование для соединения деталей из металла.
- Электрический.
- Болгарский. У нее должны быть диски, режущие металлы.
- Комплект электродов.
- Измерительные приборы: рулетки, уровень, условная линейка.
Дополнительно подготовка чертежей. Их можно позаимствовать из Интернета, можно изготовить самостоятельно.
Технологический процесс создания мангала сваркой
Важно определиться, что вы планируете спроектировать — стационарное или переносное. Первый может быть установлен в определенном месте и надолго. Второе — легко можно транспортировать.
Обычно при производстве стационарной версии необходимо использовать сварочное оборудование. Перед самим мастер-классом обязательно просмотрите видео-уроки и решите, чем украсить будущий аппарат.
Алгоритм работы здесь следующий:
Этап 1.Изначально создайте черенки. На металлических листах нужно обозначить линии. Ориентиром в этом процессе является заранее изготовленный или скопированный рисунок.
Этап 2. Из рабочего материала нужно вырезать все основные составляющие задуманной конструкции. Работа идет в соответствии с имеющейся раскладкой на листах. Дно должно сформироваться. Это самый крупный компонент. Он образует четыре боковые части. Два из них короткие, а два других длинные.
Этап 3. В длинных боковых деталях обязательно проделайте отверстия.Их можно просто просверлить в одну линию. Они гарантируют проникновение кислорода в топку к углю. И тогда тепло, необходимое для нормального рабочего процесса, будет сохранено в вашем устройстве. Расстояние между отверстиями должно быть около 5,5 см. Следите, чтобы край оставался не менее 2,5 см.
Этап 4. Все боковые элементы (и длинные, и короткие) соединяются между собой методом сварки. Прямоугольная конструкция должна формироваться без днища и крышек. На крайних верхних сторонах длинных стенок устраиваются вырезы.В этой работе следует применить болгарку. Этот инструмент должен иметь специальную насадку для резки и обработки. металлические изделия. За один раз рекомендуется делать шорты на двух боковых частях. Они должны идеально сочетаться. Выравнивание разрезов последует. Если вы все сделаете грамотно, то в будущем у вас здесь без затруднений будет шампура.
Этап 5. Все боковые элементы, уже приваренные, нужно приварить к низу намеченной конструкции. Здесь чрезвычайно важны хорошие навыки сварщика и умение работать со сварочным оборудованием.Задача такая: все сварочные соединения должны быть максимально высокими. Так у вас будет коробка. Если у вас есть материал толщиной 2-3 мм, лучше работать с инверторным сварочным аппаратом. Для создания короба достаточно четырех швов с каждой стороны. Если плотность материала 1,5 — 2 мм, то дно и стенки определенным образом зачищаются. Это нужно предотвратить. Поэтому эти комплектующие усиливают профильной трубой или уголком.
Этап 6. К коробке привариваются ножки. Их легко подготовить к работе.В этом помогут металлические уголки. По углам созданной конструкции можно крепить ножки, можно переходить к концу низа.
Нижний конец немного заострен. Эта манага — надежная стабильность.
Итог рабочих этапов — создание качественного и долговечного агрегата
Если у вас накопилось много металла, но он представлен небольшими кусками, то вам необходимо распилить правильные заготовки. После чего их сварка. При таком сценарии необходимо более аккуратно и эффективно перемещаться.И длина швов получается больше.
Пример самодельного мангала:
Каркас из уголков
Такой каркас считается более прочным. Здесь исключается изгиб металла. Алгоритм работы следующий:
1. Углы снимаются. Их варят рамой. Пример:
Можно проводить сварку из профильных труб:
2. К этой раме крепится дно.
3. Стены сварные.
Расширенная версия
Металлический бренд, созданный самостоятельно, всегда можно улучшить и дополнить полезными составляющими. Один из них — навес. Пример:
Не помешает в этой конструкции и столешница, и каркас для размещения шампуров. Сверху мангал можно усилить профильной трубой. Готовить нужно так, чтобы было место для возможных надстроек.
Вы можете оценить бренд такого формата.Есть и другие конструктивные варианты.
Другие варианты дизайна
На базе Baro
Металлический ствол будет использован для создания необходимой конструкции. При его использовании работа выполняется достаточно динамично и просто. Поскольку бочки обычно имеют внушительные параметры, то мангалы бывают крупными и массивными. Они обеспечивают приготовление блюд в многочисленной команде.
Если вы пользуетесь подобной бочкой, то обязательно сделайте крышку для задуманного аппарата. Во время работы он должен закрывать крышку.Таким образом гарантируется однородность и отличная гарантия приготовления блюд.
На базе цилиндра
Здесь можно работать двумя способами. Одна создается более сложная конструкция. Второй проще.
В любом случае вы должны сначала защитить воздушный шар. Он выкручивается краном. Водяной шланг входит в комплект. Под напором посланника следует вода. Баллон заполнен полностью. После этого допускается резка металла.
Обычно применяют баллон на 50 л., Внешний диаметр — 96 см.Это оптимальные данные для создания шести больших порций шашлыка.
На продольном шве разметка. Рассчитывается по всем дистанциям.
От шва с двух сторон рассчитывается расстояние 24 см. Сборы удерживаются. Цилиндр в горизонтальном положении. На этой же особенности создается разметка для шампуров. От круговых швов с правой и левой стороны отступ — по 3 см. Затем постоянно ставятся метки через 8 см. Итого — 6 обозначений. В них просверливают дырочки.Примерный диаметр каждого — 1 см.
От разметки нужно отложить 10 см. Вот конец крышки аппарата. Потом она сама ставится. Это расстояние между исходным признаком и вторым. Между ними при отступе от круговых швов — 3 см — обозначаются линии.
Затем сразу приваривают петли. Здесь вам нужен помощник.
Дверь отрезается болгаркой. Из баллона льется вода.
Крышка не должна опускаться. Поэтому между петлями сдвига приваривают два уголка шириной 3-4 см. Они должны быть с правой и с левой стороны крышки.
Степень разбрызгивания углов определяет расстояние открытия крышки.
Нижний обод снимается. К крышке крепится деревянная ручка.
Чтобы исключить выход из строя крышки изнутри, нужно приварить металлическую полосу к горловине. Его плотность: 1-3 мм, ширина — 3 см.
По обозначениям проделываются отверстия для шампуров. Используется дрель. На противоположной стороне такие же отверстия расположены в тех же местах.
Воздушный шар переворачивается дном вверх. От шва с обеих сторон отступ 10 см. От таких линий еще отступ 10-12 см, линии проводятся. В середине шва образовались две полосы. Их ширина 10 см. В их диапазоне 5 см сделаны прорези для воздуха. Вместо пазов можно просверлить множество отверстий.
Кран ликвидирован.Заваривается лунка.
Навесные ножки.
Более простой вариант создается следующим образом: баллон разрезается на две равные части. По краям просверливается много отверстий для воздуха. Прикрепленные ножки.
Создание портативных версий
Они отлично сохранены в природе. Их можно купить или приложить свои усилия.
Их виды бывают сборные и разборные. Второй формат — чемодан. Пример:
Здесь крепеж — дверные петли.Тонкие ноги.
Дополнительная версия:
Здесь у низов есть ножки. Остальные компоненты укладываются поочередно. Боковые части соединены пропилом.
Разборные версии состоят из компонентов, не имеющих связей. Сборка происходит на месте. Это может быть болт. Может, с пазами и пропульсами. Такие изделия изготавливаются без сварки. Работа идет болгаркой (есть алмазный диск) или пилой по металлу.
Существо:
- Картонный макет делается заранее.Он идеально подогнан под размер изделия.
- Узоры перенесены на металл.
Еще версии:
Вот ножки из уголков. В ногах — немного гнутые коврики. Под ними в боковинах дырочки. При сборке боковые части выкатываются на конвиллах.
Дно без фиксации. Нижняя сторона боковины загнута внутрь на 4 мм. Боковины крепятся к ножкам. По периметру образуется бортик.На него укладывается дно.
Вопросы по покраске и итого
Для металлического аппарата лучше использовать термо- и термостойкие краски.
- CERTA (CERT). Выдерживает нагрузку до + 900 ° С,
- Ржаво-олеум. Потенциал — до + 1093 ° C, варианты цвета: матовый, белый, серый, черный.
- «КО-8101». Потенциал — + 650 ° C, по умолчанию предусмотрено 3 варианта расцветки.
- КО-8111 Термическое имеет антикоррозионные свойства. Маски выдерживают до + 600 ° С.
Сколько стоит этот товар по расходным материалам и сварным работам? Конечно, дешевле готовых мангалов в частном магазине или от производителя.
( 18 оценок, среднее: 3,97 из 5)
Практически все люди в душе своей романтики и любят отдыхать в компании друзей на природе. Ведь приятно посидеть у костра, послушать песни под гитару и, конечно же, такой отдых сложно представить без вкусного шашлыка, приготовленного своими руками.Но в любую погоду приготовление шашлыка без мангала становится делом сложным, неудобным, а иногда и невозможным. Именно использование этого устройства делает такие посиделки в хорошей компании комфортными и уютными.
Изначально торговая марка использовалась как универсальный инструмент для приготовления различных блюд . Сейчас этот аппарат чаще всего используют для жарки вкусных шашлыков и мяса, используя естественное тепло из угля.
Купить марки из металла можно практически в любом хозяйственном магазине.Но иногда столь простая металлическая конструкция может стоить дорого, не оправдывая надежд потребителей на качество и внешний вид. Поэтому все больше людей стараются сделать из металла бренд своими руками.
Металлические мангалы — виды
МАНГАЛ Металл может быть двух типов , в зависимости от назначения и места использования:
Перманентный металлический мангал глубина считается . Именно от глубины конструкции и зависит нагрев мяса. Оптимальным расстоянием от шашлыка до угля считается 150-180 мм.Поэтому для создания таких условий глубина должна быть 250 мм.
Остальные размеры владельцы выбирают исходя из их желаний и предпочтений:
- Ширина полностью зависит от размера используемого шампуня. Он должен быть на 8-10 см меньше длины шампуров;
- Длина изделия определяется количеством шампуров, которые вы хотите использовать при кладке мяса. Между шпажками должно быть расстояние 8-10 мм;
- Высота всей мангалы регулируется установкой ножек.Его размер в корпусе сугубо индивидуален. Если хозяин не хочет наклоняться, то рост 70-80 см. У переносных моделей в целях экономии ножки делают высотой 20-30 см;
- Потребуется сделать вентиляционные отверстия для доступа воздуха к углю. На боковых стенках просверливают на высоте 60 мм от низа с шагом 60-70 мм.
После размера накидки для шашлыка из металла приступаем к непосредственному изготовлению продукта.Для запуска необходимо составить чертеж мангала Металл с размерами.
Создание мангаала своими руками
Стандартная марка может быть изготовлена несколькими способами, которые принципиально не меняют саму конструкцию, но все же имеют отличия в способе проведения сварки.
Первый способ Желательно использовать большой лист металла, чтобы он мог вместить все расширение будущего изделия. Приступаем к изготовлению размерного будущего изделия на металлическом листе.Затем любым режущим инструментом вырежьте на листе лишние уголки. Места изгиба аккуратно срезают болгаркой, чтобы облегчить изгиб конструкции. Далее с помощью сварочного аппарата соедините стены. Сделав всего четыре сварных шва, получаем готовую коробку мангалы.
Если используется тонкий металл , Для усиления конструкции рекомендуется прикрутить лишние уголки. Далее остается только побороть ноги желаемой длины. В качестве ножки можно использовать профильную трубу или железный уголок.
Вентиляционные отверстия можно делать как на заготовке для резки, так и на готовом ящике.
Второй способ Используется, если есть металл с мелкими деталями. Сначала вырезаем прямоугольные куски металла, а затем ввариваем их в коробку. При таком способе сварные швы нужно делать лучше, а длина их будет намного больше. Но плюсом такого метода можно считать то, что можно сделать из толстого куска металла. Это значительно увеличивает срок службы манги.
Для третьего способа Для начала нужно приготовить каркас будущего изделия из уголка или профильной трубы. Затем к нему приваривается дно, можно из металла большей толщины, чем стенки. После приваривают боковые стенки.
Для создания комфортных условий можно развести по бокам каркас для укладки шампуров и столешницу. А чтобы можно было устроить пикник в непогоду, стоит приготовить навес.
Разборно-разборная модель
Сделать простейший разборный мангал своими руками без сварочного аппарата не очень сложно:
Шампур компактный своими руками
Мангалы изготовлены складным типом , быстро собрать и разобрать без применения дополнительного инструмента.Их очень легко перевозить, поэтому они стали незаменимыми спутниками туристов в походе. На изготовление такого изделия уйдет некоторое время:
- Ворона из листа железа и изготовления фрагментов аналогична переносной конструкции.
- Мебельные металлические шторы соединяют торцевые и боковые стенки с низом.
- Вверху стен приварите крючки, чтобы избежать самопроизвольного складывания.
- Изготавливаем съемные ножки.
Для установки такого шашлыка достаточно будет приподнять боковые стенки и скрепить их между собой крючками.В походном положении такое изделие напоминает железный чемодан.
Мангал Коптилка
Металлическая бочка, сделанная своими руками, может одновременно служить и коптильню.
Производственный процесс:
При работе в режиме копчения опилки укрываются. Снаружи дно ствола или паяльная лампа нагревается, либо костром. Дым выходит через вентиляционные отверстия или щели в крышке.
Мангала, сварка двух баллонов
Если у вас в хозяйстве два пустых газовых баллона, можно приготовить универсальный продукт для приготовления на свежем воздухе.Установить такую марку из металла можно не только под любой навес, но и под кровлю беседки. Для изготовления необходимо:
В результате получилась универсальная конструкция, где нижний баллон — жаровня, а верхний — коптильня. При горении дров в нижнем цилиндре дым попадает в коптильню, а затем через дымоход выходит за беседку.
Mini Mangal
Для стандартных мантийных мест в городской квартире совсем немного.Но все же любители приготовить вкусный ароматный шашлык нашли выход из этой ситуации. На помощь им приходит миниатюрный балконный бренд, который крепится к перилам балкона. Такое миниатюрное изделие (длиной не более полуметра) можно прикрепить к стене в любом удобном месте.
Мангал из пластилина
Дети, как и взрослые, очень любят отдых на природе. Они с удовольствием играют в куклы, которым тоже хочется съесть кусок вкусного шашлыка. поэтому нужно сделать из пластилина марку:
- За 15 минут нужно прогреть решетку перед тем, как положить на нее мясо;
- Чтобы мясо хорошо, достаточно один раз перевернуть, тикая по 5-6 минут с каждой стороны;
- Готовое мясо нужно подержать несколько минут, чтобы оно немного остыло, при этом сок лучше распределится;
- Для приготовления на гриле угли должны быть красного цвета с небольшим количеством золы SIZOCE;
- Для защиты от ожогов рубашка на руке должна быть застегнута.
Существует большое разнообразие моделей Magli. Чертежи металлических мангалов с размерами всегда можно посмотреть в Интернете.
Многие не представляют себе полноценный отдых на природе без ароматного шашлыка. Мастера могут сделать бренд из кирпича своими руками. Это просто необходимо для выездного сеанса.
Отправившись на природу, можно построить компактную конструкцию из первичных материалов.А для дачи подойдет беседка, оборудованная мангалом.
С чего начать строительство?
Подумайте, в каком месте хотите построить мангал. Лучше выбрать зону отдыха.
Необходимо позаботиться о защите от непогоды. Самодельный фокус можно установить в дачной беседке, под навесом или частично открытой веранде.
Мастера часто берут за решение непростой задачи, как сделать бренд в виде многофункциональной духовки.
Средние показатели: Ширина — 1,6 м; Высота — 1,6 м; Глубина 0,8 м. Для многофункциональной печи потребуется цоколь, примером которого может служить ленточный фундамент.
Комплексная конструкция Мастер обычно дополняет различными функциональными надстройками:
- Ниша. Их удобно использовать для хранения шампуров и другой посуды.
- Приемная. В них делают дрова, чтобы они сушились у очага.
- Мойка.Устанавливается тогда, когда есть реальная возможность подвести итоги общения. Удобно мыть руки или посуду.
Недалеко от очага поставьте стол со скамейками. Владелец Waves выбирает мебель из бюджетных или дорогих вариантов в зависимости от своих финансовых возможностей и вкусовых предпочтений.
Рисунки Мангала помогут грамотно создать проект. Ведь нужно учитывать не только техническую сторону вопроса, но и эстетическую составляющую.
Если вы посмотрите фото манги, то оно должно быть центральным элементом композиции. Важно, чтобы все окружающие предметы были объединены.
Строительство кирпичного мангала
Конструкция предполагает возведение прочного фундамента. Его делают из песка, гравия, цемента и огнеупорного кирпича. Помимо строительных инструментов мастеру понадобится дрель со специальной насадкой или бетономешалка для приготовления раствора.
Необходимо подготовить арматурные стержни с армирующей сеткой, а также металлические уголки с метизами.Мастер подготавливает материал для создания обрешетки.
Поэтапное строительство
Планируем строительную площадку и делаем разметку. После этого создайте котлован шириной 0,6 м и длиной 1,6 м.
Снят на 0,6 м до верхнего слоя почвы.
Сделайте подушку из песка. Его толщина не должна быть меньше 10 см. Подушку необходимо аккуратно утрамбовать. По периметру котлована кладут опалубку.
Следующий этап — вязание арматуры.Металлические стержни соединяются между собой в виде решетки и падают на дно ямы.
Примечание!
Сделать цементный раствор И залить им опалубку. Его необходимо залатать металлическим стержнем, чтобы внутри не было воздуха.
Для варки цементной смеси подойдет марка 150 и 200. Также в раствор добавляем щебень. Пропорциональное соотношение цемента, песка и щебня — 1: 3: 5. Для раствора также нужна вода — 1 или 2 ведра, в зависимости от того, сколько песка смочено.
Утрамбованный раствор выравнивается и выравнивается. Под кирпичи нужно делать ровное основание.
Для гидроизоляции применяется рубероид и специальная мастика.
Как только фундамент затвердеет, можно приступать к кладке.
Нюансы, которые должен знать мастер
Печной кирпич отличается красивой огнеупорностью, но на морозе может стать хрупким. Поэтому беседка с мангалом из кирпича — лучший вариант.
Примечание!
Перед началом строительных работ Материал замачивают в воде. Кирпичи способны впитывать жидкость, что может негативно сказаться на эксплуатационных характеристиках раствора.
Сама смесь готовится из других компонентов и отличается по консистенции. Он изготовлен из цемента, песка и порошковой извести в соотношении 1: 3: 1.
Кладка начинается с углов. Длина задней стены — 3 кирпича, а по бокам — 2.5 кирпичей. Ширина должна быть не менее 1,5 кирпича. В процессе кладки мастер аккуратно постукивает кирпичной поверхностью на поверхности кирпича, чтобы подогнать его к соседнему.
Металлический дизайн
Марка металласможет изготовить тот образец, кто умеет обращаться со сварочным аппаратом. Мастеру понадобится листовое железо, металлические уголки или кусочки арматуры, поддон с решеткой каких-то и таких же размеров и маркер с рулеткой.
Конструкция — глубокое обжаривание на ножках-опорах.При желании хозяин может потрогать курильщиков, тогда домочадцы всегда смогут насладиться натуральными копчеными лакомствами.
Примечание!
Мастера могут попробовать свои силы в изготовлении самодельного мангала. Из двух соединенных цилиндров они создают дымящийся мангон. Мастер воспользуется умением работать болгаркой и дрелью.
Дымоход изготовлен из трубы, а стойки, ручки и ножки — из металла. Необходимо подготовить петли, гайки с болтами, специальную эмаль и фитиль.Мангал из баллона можно украсить на свое усмотрение.
Главное в этом бизнесе — творческий подход.
Фото Мангала своими руками
Время чтения ≈ 10 минут
Какой дачный участок или дача без металлического мангаала. Он пользуется большим спросом при отдыхе и приготовлении горячих блюд. Конструкция кованых мангалов и мангала позволяет быстро приготовить блюда на углях, отличающиеся изысканным вкусом.В этом случае конструкция простая, и производитель справится с изготовлением.
Особенности Мангалова
Приобретение готового продукта в магазине достаточно дорогое, но не всегда оправдывает ожидания. Металлическая марка, сделанная вручную по чертежам и фото с пошаговой инструкцией, способна прослужить вам долгое время, так как она создана для ваших нужд.
Конечно, лучшим вариантом для дачного участка будет печь из кирпича, но она довольно громоздкая и занимает много места.Как правило, это сезонно, поэтому может быть долгое время без надобности. Его можно разместить где угодно: в беседке или под открытым небом.
Типы конфигурации:
Технические характеристики и особенности конструкции:
Важные моменты
В зависимости от типа конструкции могут возникнуть спорные моменты. Что важно знать всем пользователям:
Какие привлекательные кулинарные устройства привлекательны:
Куда девать
Металлические приспособления для жарки и копчения нельзя размещать везде, есть требования безопасности и рекомендации по более эффективному использованию.Профессионалы рекомендуют:
Какие мангалы по внешнему виду:
Как выбрать Размер
Размеры металлического устройства очень важны для начинающего мастера. При расчете количества мангалов и размеров самой конструкции важно учитывать количество людей в компании или семье. Рекомендации для типоразмеров:
Сварка самодельной мангалы
С помощью сварочного аппарата можно создать прочную и надежную конструкцию, устойчивую к резким перепадам температур и способную служить вам долгое время.По окончании процесса сварки все швы между деталями тщательно проверяются и шлифуются.
Из каких материалов можно сделать домашний мангал:
- Стальной ствол.
- Обрезка широкой металлической трубы.
- Пустой баллон.
- Бак от стиральной машины.
- Массивная швейная машина.
- Кованая столешница или металлические полки.
Инспекционный проект
Для изготовления стационарного мангала нам потребуется:
- Прочный металлический лист (стальной).
- Сварочная установка.
- Мощная дрель.
- Уголки для стоек или фурнитуры.
- Хорошо рабочий болгарский.
Перед тем, как приступить к сбору дизайна, необходимо составить чертеж с размерами и расстоянием между элементами. Например, между отверстиями для вентиляции внизу корпуса должно быть от 7 до 8 сантиметров. На фото показано использование дополнительной подставки.
Определяем количество шампуров, у нас в одной вкладке будет не более 8 штук.Процедура:
С помощью видео мастер-класса можно сделать отличный мангал Для вечерних посиделок с друзьями.
Чемодан складной
Складывание мангала металлом из металла может быть выполнено по чертежам с фотографиями. У вас будет удобная установка-дипломат, она мобильна и мобильна. Конструкция складывается внутрь, тем самым скрывая все грязные поверхности и детали. В таком чемодане можно разместить шпажку и перенести в любое место, просто взявшись за ручку.
Как сделать:
Бочка с мангалом
Нам понадобится бочка с толстыми стенками и хорошим рисунком. Разрезать стволы можно двумя способами: отрезается только верхняя часть (создание крышки) или ствол отрезается ровно пополам (самый распространенный). Мы рассмотрим оба.
в 1 сторону
Рассмотрим процесс сборки мангаала своими руками из металла с крышей бочки:
2-ходовой
Производство происходит как в первом случае.Единственным отличием будет разрезание бочек на две равные части. Второй предмет можно оставить и использовать как прикрытие.
Затем его следует приготовить, прикрепить к нему ручку и застежку. Пошаговая инструкция в видео мастер-классе.
За самодельным мангалом необходимо тщательно ухаживать, чтобы увеличить срок службы. Загрязнения убирать мягкой тряпкой, время от времени смазывать установку специальным маслом. А также не стоит забывать о финишной покраске и декоре, ведь мангал должен быть не только функциональным, но и красивым.
Мангал складной-раскладной своими руками (+ чертежи + размеры) | Своими руками
В начале прошлого «шашлыка» сделал складной мангал из листового металла толщиной 1 мм и обрезков уголка, которые теперь постоянно ношу с собой в багажнике машины. Сделать это несложно, поэтому, если вы любите отмечать праздники на природе, никогда не поздно повторить мою идею.
Первым делом я подготовил чертеж деталей мангала с размерами (см. Рисунок на стр. 17).Я подобрал их так, чтобы сложенная конструкция легко помещалась в дипломат и не требовала специального футляра для переноски.
По чертежу вырезал дно, загнул короткие его концы так, чтобы стороны были высотой 40 мм. По длинным сторонам приварил участки уголков 40 × 25 мм, которые не только необходимы для установки стен, но и служат ребрами жесткости. В углах по всей длине на равном расстоянии друг от друга просверлил отверстия для лучшего сцепления при горении.
Далее по чертежу сделал короткие стены. Прикрутил их с концов к углам саморезами М5 (фото 1). Гайки сильно не затягивал, чтобы стенки можно было складывать и раскладывать. А чтобы они не откручивались, забрызгал концы болтов молотком.
После этого по чертежу сделал боковые стенки. В нижних углах сделал прямоугольные вырезы под болты крепления торцевых стенок. Снизу и по бокам приварил крючки (фото 2), с помощью которых стенки будут соединяться с нижней и торцевой стенками.Для сохранения необходимого зазора при сварке под крючки подложил металлические пластины необходимой толщины.
Из обрезков уголка 40 × 25 мм сварил П-образные ножки со штырями на свободных концах (фото 3) Для крепления к днищу приварил хомуты на нужном расстоянии по углам последнего (фото 4)
Складной мангал готов.
Разобрать его очень просто: снимаю боковые стенки и кладу их снизу, затем снимаю ножки и кладу их поверх стен, закрываю все торцевыми досками (фото 5), в таком виде я положить их в дипломат.Кроме того, я оснастил гриль противнем из старой духовки, сеткой из арматурной сетки и кочергой, которую сделал из стального прутка.
Смотрите также: Отличный мангал из газового баллона своими руками — мастер-класс и фото
РУЧКА, СКЛАДНАЯ — ЧЕРТЕЖИ И РАЗМЕРЫ
СВОИМИ РУКАМИ — АЛЬТЕРНАТИВЫ НА ВИДЕО
© Автор: Валерий Василюк, Фото
ИНСТРУМЕНТЫ ДЛЯ МАСТЕРОВ И МАСТЕРОВ И ТОВАРЫ ДЛЯ ДОМА ОЧЕНЬ ДЕШЕВЫЕ.БЕСПЛАТНАЯ ДОСТАВКА. ЕСТЬ ОТЗЫВЫ.Ниже другие записи по теме «Как сделать своими руками — домохозяину!»
Подписывайтесь на обновления в наших группах и делитесь.
Давай дружить!
Самый правильный мангал: работоспособный и прочный. Как правильно выбрать мангал для дачи
Правильный размер мангалы позволяет приготовить вкусное мясо. Создавая в приборе подходящую высоту стенок, тепло от обжарки сохраняется.Марку можно сделать своими руками, это очень просто, но нужно учитывать, что общая высота не должна быть меньше 12 сантиметров, даже если выбран компактный вариант складывания также добавляется длина ноги. Рассчитан с учетом роста того, кто будет готовить шашлык. Издание Housechief рекомендует использовать стандартные размеры, в этом случае вероятность ошибки сводится к минимуму.
Фото: Podolsky.xyz.
Читайте в статье
Размеры мангала для шашлыка: Стандартные размеры
Чтобы узнать, насколько у бренда правильный размер, можно изучить фото.Для того, чтобы обжаривать мясо за один раз, необходимо создать большую рабочую поверхность. Но в этом случае устройство получается массивным, а не мобильным. Конструкция усилена дополнительными ножками.
Фото: Vmasshtabe.ru.
Фото: Stroy-podskazka.ru.
Для определения габаритов мангала для ящика для шашлыка из железа применяют имеющуюся заготовку. В чашу нужно сложить определенное количество угля, исходя из этого и определяется окончательный размер.
Перед тем как сделать мангал своими руками изучает типовые чертежи. В идеале ширина 30 см, а высота — 1 метр.
Фото: Sadogorod74.ru.
Конструкция для жарки мяса своими руками: Размеры мангалы для идеального шашлыка
Чтобы узнать, как сделать бренд на изготовление мангала, необходимо приготовить шашлык по уже собранным конструкциям и понять, какая высота должна быть ногами. Определяя размер мантии для шашлыка из металла, на схеме присутствуют показатели: толщина стенки — 4 мм, длина — 600 мм, высота — 150 мм, ширина — 350 мм.
Фото: I.Simpalsmedia.com.
Фото: static.tildacdn.com.
Это базовая конструкция, на которой установлены стеллажи для вертела, полки и дрова. Мангал для мангалы должен стоять на устойчивой подставке.
Фото: mangaly.trsm.ru.
Фото: GRILI.BY.
Статья по теме:
: размеры, фото, чертежи и подробная инструкция Для самых разнообразных пород вы найдете в нашем обзоре.
Какой должен быть мангал: размеры, чертежи
Оптимальная высота мантала для шашлыка из металла определяется индивидуально.
Устройство состоит из нескольких компонентов:
- цельное дно без выпуклых швов;
- 4 металлические стены;
- стенды удобные;
- занзбинов для шампуров, они должны иметь соответствующий размер, чтобы ШАМПУР мог свободно переворачиваться.
Оптимальная марка предназначена для приготовления порции на шесть человек.
Фото: Своябеседка.ру.
Фото: static.tildacdn.com.
Как сделать ножки для мангалы
В первую очередь подбираются размеры, типовые чертежи и схемы.Самый простой способ сделать ножки своими руками: возьмите загнутые металлические уголки и обрежьте их, измеряя по 1 метру на каждый отдельный элемент. Выбирать металл рекомендуется внимательно, он должен быть прочным.
Фото: Adelison.ru.
Оптимальные размеры манги для шашлыка из металла следует определять с учетом длины ножек. Если выбрать длину более 1 метра, это будет неудобно, поэтому оптимальные габариты мангала для железных шашлыков — 60 см в длину, 30 в ширину.
Лучшее расстояние между шпажками на мангале для приготовления изысканных блюд
Мясо в восторге только при правильной сборке конструкции. Чтобы узнать, как правильно приготовить мангал по размерам и чертежам, необходимо пройти все этапы самостоятельного изготовления:
- Набросок нарисован на бумаге. Детали вырезаются и используются как макет;
- стальные листы наносятся на макеты на макеты. Для начала нужно вырезать дно и боковины — два квадратных, два прямоугольных;
- все детали скреплены сварочным оборудованием;
- из гнутого металла вырезают лапы такого же размера и приваривают к основной заготовке;
- Конструкция собрана и проверена на прочность.
Фото: Oleor.ru.
Фото: images.by.prom.st.
Фото: static.tildacdn.com.
Какого размера должен быть мангал латунный
Глубина джангла для шашлыка должна быть достаточной, чтобы можно было установить крышку мангала. Если мангал используется в основном для приготовления мангала, его ширина должна быть не менее 30 см. Важно рассчитать размеры так, чтобы ШАМФОР располагался свободно и не лепил. В ящик следует положить уголь и дрова так, чтобы они не касались мяса.
Фото: Vmasshtabe.ru.
Металлический мангал габариты
Правый кронштейн для шашлыка собирается под мужчину, которым постоянно занимается вся семья. Важно учитывать не только рост, но и пропорции тела, чтобы несколько часов было удобно находиться за мангалом и не вращаться в разные стороны.
Самый простой способ создать оптимальный размер жонглирования для шашлыка — это рисование. Шаблон необходимо распечатать или нарисовать в полный размер и нанести на металлические листы.
Есть хитрость для определения высоты устройства для жарки мяса. Кисть сгибается в локте и кладется на землю. Расстояние от локтя до ладони — средний размер.
Фото: samovarchik.info.
Фото: Zakaz454.ru.
Правильный размер конструкции определен не случайно. Приготовление не должно занимать много времени. Определив оптимальный размер сетки для мангалы, можно сразу кормить большое количество мяса.
Какой должна быть высота мангала из кирпича
Правильные размеры мангала — не прихоть, а необходимость.Конструкция для жарки мяса может быть кирпичной, такой вариант идеален для дома со своим участком.
Чтобы мангал был удобным и функциональным, он должен содержать все технически важные элементы: основание, боковины, жаровню и дымоход.
Кирпичный мангал должен иметь глубину от 12 до 17 см.
Фото: avatars.mds.yandex.net.
Фото: I.Pinimg.com.
Фото: Трубочист-юга.ру.
Наконец-то
Жарка мяса на природе — излюбленный способ отдыха многих россиян.В которой . Если металлические листы лежат в запасе, конструкцию можно быстро собрать своими руками.
У большинства людей ассоциируется долгожданный отдых на природе, ароматные блюда и хорошее времяпрепровождение. Однако одна из важных составляющих успешного отдыха — это правильно выбранный бренд. Некачественная штанга быстро теряет тепло, из-за чего блюда получаются или готовятся дольше всего. О том, как выбрать марку для дачи, читайте в этой статье.
Виды мангалов
Первая характеристика мангалы, которую необходимо учитывать при покупке, — это его мобильность.Есть два типа мангалов: переносные и стационарные. Портативная марка проста в сборке и удобна в транспортировке. Его можно положить в багажник машины и отправиться на пикник за город. Переносные варианты делятся еще на два типа: складные латунные и сборные. Разница между ними очевидна, вариант складывания подключен, осталось только разложить и закрепить. Команду Гангала нужно каждый раз собирать и разбирать. Преимущество командной модели в большей устойчивости, но со временем соединять элементы становится все труднее из-за деформации пластин из-за постоянного нагрева.Недостаток переносного мангала — потеря тепла и сложность поддержания качественного тепла.
Эта особенность отсутствует в стационарном мангале, в котором тепло поддерживается длительное время из-за отсутствия ненужных отверстий и толщины стенок. Стационарная марка занимает больше места, конструкция мангала принципиально и во многом, под такой мангал рекомендуется заливать стяжку, чтобы почва успешно выдерживала нагрузку.Так как канцелярская марка — это постройка на долгие годы, выбирайте внешнюю облицовку, исходя из экстерьера дома и участка. Но из-за сложностей, связанных со строительством стационарной мангалы, среди потребителей существует тенденция выбирать переносной вариант даже для постоянного его использования на даче.
Материалы для мангала
От выбора материала, из которого изготовлен МОЗГ, зависит долговечность и качество покупки, удобство использования, а также стоимость изделия.Распространены три основных типа мангальных материалов.
- Жаровня чугунная. К достоинствам чугунного мангала можно отнести долговечность и высокую теплоемкость: предварительно нагретая марка долго держит тепло. Недостатки манги из чугуна — большой вес, высокая цена, а также необходимость постепенного нагрева в холодную погоду. При резком понижении температуры чугун может потрескаться, и такой материал восстановлению не подлежит.
- Жаровня стальная. Марка из стали бывает стационарной или переносной. К достоинствам мангала из стали можно отнести доступную цену и широкий спектр любых потребностей покупателя. Главный недостаток стальной мангалы — быстрая деформация мангала при неправильно подобранной толщине стенок.
- Кирпич пробит. Brick Mangal — Серьезный дизайн, такие изделия выполняются только в стационаре, часто с бетонным фундаментом, являются не только функциональной, но и дизайнерской деталью участка.К преимуществам кирпичной мангала можно отнести длительное сохранение тепла, наличие дымохода, что добавляет комфорта процессу приготовления. Из недостатков кирпичной мангалы — стоимость и сроки монтажа изделия.
Выбор мангалы
Перед покупкой товара обратите внимание на ряд критериев выбора мангала.
- Толщина стенок стальной манги — важная характеристика, влияющая на срок службы.Загородный Hango Выбирайте с толщиной стенок не менее 3 мм, для складного дорожного варианта вполне достаточно толщиной в 1 мм, но помните, что такая марка не прослужит дольше 1-2 сезонов.
- Оптимальная глубина жонглирования — 15-20 см, при большей глубине расход угля увеличится, при меньшей — блюдо начнет гореть снаружи, будучи сырым внутри.
- Наличие двойного мангального дна ускорит подготовку угля и повысит теплоизоляцию.
- Крышка мангаала расширит возможности продукта и ускорит приготовление блюд.
- Крыша над жаровней, цепи для передвижения и боковая полка не являются обязательными элементами, однако, облегчая и улучшая комфорт в процессе использования мангала.
Покупка манги для дачи — первостепенная задача для человека, любящего отдых на природе. Чтобы продукт не обманул ожидания, определите необходимый функционал, ознакомьтесь с техническими характеристиками и только потом переходите к выбору конкретной модели.
Красота — это хорошо, а функциональность еще важнее. Но как сделать манбон самому или заказать его, не растеряться в размерах, чтобы потом не разочаровать? Ответ в нашей статье.
В контакте с
Анализ форумов и блогов опытных народных мастеров, а также мнения инженеров серьезных производителей помогли нам собрать список самых распространенных советов, касающихся технических характеристик самостоятельного изготовления манги.
Длина
Для желающих обойтись одним сжиганием мяса логично суждение — чем больше длина рабочей поверхности мангалы, тем лучше. Но возможность перемещения мангалы ограничена: конструкция будет тяжелой и громоздкой. Потребуются дополнительные, хорошо укрепленные ножки, иначе устойчивости не будет. Если мангал задавался стационарным, не стоит забывать о количестве угля, которое потребуется для заполнения внутреннего объема корпуса и поддержания нужной температуры.
Опытные мастера советуют брать за основу один метр, а потом смотреть на свой вкус. Кому-то идеально подходит 60 см, а кому-то полностью подходит 80 см.
Примечание! Правильный индивидуальный размер Рассчитывается по формуле: HS * S = Mangaal Length . Где HSH, — это необходимое количество шампуров, одновременно расположенных на решетке, а S. — расстояние между ними. Например, у нас есть 8 свайпов, которые умножаем их на размер зазора между ними (от 7 до 10 см) и получаем необходимую длину: 8 * 10 = 80 см.Разрыв может быть менее зависимым от предпочтений.
Ширина
Категориальные утверждения (ширина 40 или 35 см) явно неверны. Ну а если повезет и длина использованного шампуня 42 см или решетки, а если 33? Для рисунков будущего мангаала необходимо отмерить шампунь средней длины, чтобы не было проблем в будущем.
Самая популярная ширина — 30 см , хватит точно, и экономия угля будет очевидна.
Принимая во внимание! Обычно шпажка плоская, значит, выемка для крепления на стенах манги должна быть вертикальной — для легкого поворота на 90 °. . Скругленные разрезы неудобны.
Высота
Очень много копий сломано про глубину мангала. Высота в четыре десятка сантиметров повлечет за собой большой расход угля и увеличит время приготовления. Риск того, что мясо будет готово снаружи, а там останется сырым.Оптимальным расстоянием от источника тепла до шашлыка считается 7-10 см. Тогда приготовление пищи происходит за счет инфракрасного излучения углей, а не горячего воздуха от них. Это позволяет мясу приобретать золотисто-коричневую корочку. Внутри же мясо останется нежным за счет сока, который придаст аромат и сочность.
Для соблюдения нужного расстояния высота не подходит. 12-15 см.
Просверливание отверстий дает больше недостатков, чем преимуществ. Действительно, стадия зажигания облегчается, но лучше применить трение, а потом радоваться результату, чем терпеть весь процесс.Минусов явно больше:
- улучшенный воздухообмен способствует появлению пламени, которое нужно будет погасить, разбрызгивая воду, т.к. это необходимо для приготовления на углях;
- стен будет жарко центрального помещения из-за нарушения целостности температурного режима;
- невозможно добиться равномерного и длительного нагрева, который ускорит время приготовления и сделает мясо по-настоящему вкусным.
Инженеры и народные мастера отмечают, что готовят хорошую марку, которую не преодолевают за 3-4 года эксплуатации от перепадов температур, нужно рассчитывать на толщину металла 3-4 мм.От этого зависит вес всей конструкции.
Ссылка! За отсутствием более толстого металла уголки приваривают по периметру корпуса. Это улучшит сохранность коробчатой формы и продлит срок ее службы.
Высоту нужно рассчитывать индивидуально под основного исполнителя блюда: нужно согнуть руки в локтях и отмерить расстояние до пола. Это избавит в будущем от необходимости изгиба, провоцирующего хондроноз поясничного отдела.
На 100 см, как правило, хватит.
Заключение
Многие параметры идеальной мангалы зависят от личных предпочтений, требуется только расчет. А оптимальные пропорции подходят больше всего колеблются около значений: глубина — 15 см, расстояние между боковыми стенками — 30, длина — от 60 до 120 см.
Правые размеры для Mangala
Создайте правильный браслет вместе с пользователями Forumhouse
Для дачных участков и загородных домов Латунь уже давно является практически обязательным элементом.Нет ничего лучше отдыха от дел праведников на свежем воздухе, под шашлыком в приятной компании. Но только правильный бренд гарантирует хороший шашлык и другие угольные блюда. Разберемся с форумом пользователей, как выбрать идеальный мангал.
Сегодня рынок предлагает огромное количество приспособлений для уличных пикников — от переносных сборно-разборных до массивных кованых и стационарных мангальных комплексов. Такие изделия стоят солидных денег, но не факт, что они порадуют владельцев простотой эксплуатации и долгим сроком службы.Хороший прибор для инъекции шашлыка под свои нужды сделать не сложно, убеждены многие форумчане. Основное соблюдение нескольких важных правил, размеров и параметров, таких как высота мангала, ширина стен, обрезка между шампуров и т. Д.
МАНГАЛ, правая глубина.
MANGAL — нужные габариты.
«Правильная» установка должна быть эргономичной, то есть удобной и безопасной в обслуживании, расходовать минимум топлива и не требовать всяческих фанер «Majani» и других ненужных манипуляций.
Мангала Подобрать непросто, надо учитывать материал, размеры, дизайн. Тонкая сталь, из которой делают так называемые «походные» разборные устройства — пожалуй, худший материал. Конструкции у него заготовлены и неустойчивы, плохо держат тепло. Сверху такой агрегат придется постоянно качать «непрозрачные», накачивая угли — от этого шашлыка на шпажках снизу обугливается, а сверху горит. Можно и в обратную сторону, но к этому времени может перевернуться и сам МАНГАЛ: тонкая листовая сталь просто не выдержит штатной эксплуатации.Поэтому, если бы пришлось использовать «походный» вариант, угли лучше готовить отдельно в подвергнутом огне, а потом засыпать их в топку.
Многие складчатые конструкции дахсонов привлекают возможностью снять устройство для консервации в конце сезона. В этом случае нужно подбирать простую и надежную систему сбора-разборки, без петель и зажимов для шампуров, которые быстро выходят из строя.
Идеальная марка: толщина стали 3-5 мм.
Грамотный металлический блок для дачи, по мнению опытных пользователей Forumhouse, должен иметь толщину стенок не менее трех-пяти миллиметров.
Сварка 44:
— Все идеально просто. Толщина стали для мантии — 3-4 мм, длина стен — 600 мм, ширина — 350 мм, высота стенки мангалы — 150 мм, выдвижных полок под ясенем нет. Обратите внимание на сталь сверху, по всей длине профиля 20 * 20, съемные ножки — из профиля 30 * 30. Это основа, на которую легко поставить крышу, под дерево, стойки под вертел, боковые полки.
Оптимальное расстояние между шампурами на мангале
Зубчатая передача для шампуров лучше сделать в виде вертикальной прорези с возможностью поворота шампуня на 90 градусов, советует форумчанин Kuznecs.. Расстояние между шампурами на Mangale составляет 70 мм. Само устройство желательно в лучшую сторону покрасить термостойкой краской. внешний вид и защита от коррозии.
Многих беспокоят трассы для манги, на каком расстоянии от угля они должны быть. При этом размер значений не имеет: дыры в боковых стенках, которые часто есть у покупных устройств, многие форумчане считают бессмысленными и даже вредными. Из-за них мясо на шпажках получается неровным, а дополнительный приток воздуха спровоцирует появление пламени снизу.В волокне оптимальной глубины без ростков угли будут плавно и долго за счет притока воздуха сверху. Как вариант, для ускорения воспламенения угля его иногда задействуют в днище, закрытом заслонками. На время жарки заслонка плотно закрывается — готовый уголь не раздувается ветром и горит равномерно.
Какой должна быть оптимальная высота стен мангала
Высота стены мангалы вызывает больше всего вопросов.Большинство пользователей сходятся во мнении, что высота джергала для шашлыка должна быть достаточно большой: эффективный минимум, позволяющий приготовить хороший шашлык и сэкономить топливо — 13-14 сантиметров. У него оптимальные габариты, их рекомендуют выбирать. При высоте стен в 18-20 сантиметров уйдет слишком много углей, иначе шашлык будет «засохшим».
Собираю меня
Москва :
— Идеально или близко к нему удаленность от угля до мяса на шпажках — 11-13 см.То есть чистая высота топки — 15 см. Чтобы низ по бокам правильно сузился, а наверху — расширился: расход дров или угля меньше, а для варки тепло схватывается.
Пользователь Алекс286. Сделано из него устройство, регулируемое по высоте дна: изначально 14 сантиметров, но его можно поднять, уменьшив глубину топки до 8 сантиметров. Высота жонглирования для шашлыка должна быть универсальной, ведь такая универсальность позволяет успешно готовить на углях разные продукты: не только мясо, но и рыбу, овощи и т. Д.
Alex286:
— пластины по 2 мм с обеих сторон приварены с двух сторон, к ним есть квадратные выступы 10 мм. В нижнем положении ручки ложатся на боковины жаровни. Посередине пластин приварены крючки. Если нужно повысить температуру готовки, уменьшив глубину топки — приподнимите дно за ручками вверх и цепляйтесь этими истериками за боковины мангала.
Оптимальная высота мангала для шашлыка.
Чтобы получить вкусный шашлык, недостаточно просто выбрать коробку с металлическими досками. Этот хозяин ищет его не только надежного, но и максимально удобного и многофункционального. Форумчанин Вкокорин. Долго искал такой среди купленных товаров, но в итоге ничего не нашел на свой выбор и сделал трансформер собственной разработки — с откидными решетками, крышками и полками. Испытания прошли на фирменной «пятерке»!
Пайка Расстояние между шпажками
Достоинства трансформатора:
* Решетки складчатые.Когда они находятся над печью — им удобно готовить: ставят чугунную сковороду, кастрюлю и т. Д. В свернутом состоянии решетки становятся удобными столиками по бокам мангала.
* Съемная чугунная решетка под.
* Съемные крышки можно использовать по разным направлениям. Сверху — чтобы вода не попадала в топку, в ней не было дырок и негде было слить. Снизу — как полочка. А если выложить их на решетку листвой — получится две таблицы.
Вкокорин:
— Петли для решеток — резка трубы диаметром чуть больше фитинга. Их сначала приваривают к готовой решетке, затем в них отрезок арматуры и приваривают к мангалу. Глубина топки достаточна для приготовления пищи в Казани, поставленной на решетку сверху.
Однако многие владельцы считают, что металлический прибор даже самой удачной конструкции все же уступает по надежности, прочности и удобству стационарному агрегату.Переносные мангалы незаменимы для поездок на природу, но они стали иметь свойство ржаветь, терять форму, что сказывается на его полезных качествах. Другое дело — прочная кирпичная конструкция.
Высота паяльной доски.
Каменная печь
Кирпичный мангал или каменная печь на участке идеально подходит для приготовления разнообразных блюд, и представляет собой небольшую архитектурную форму, способную прекрасно украсить ландшафт. Но затраты на изготовление такого капитального очага будут более существенными.
А вот простая конструкция мангала из шамотного кирпича легка и недорого, да и прослужит долго и тратить топливо будет намного экономичнее. И необязательно класть кирпичи на раствор.
Такой агрегат при бережном использовании прослужит пятнадцать лет, утверждает форумчанин Jimdaddy. .
Jimdaddy:
— низ — кирпич пластик. Стены, первый ряд — кирпич пластик, второй ряд — кирпич по краю. Получается высота 18 см, что близко к идеалу.Постепенно сторона кирпича, лежащая на огне, будет поворачиваться, такие кирпичи можно перемещать к низу, а целиком снизу — на стены. Такие переборки будут не чаще одного раза в три года. Топку покрывают железным листом, лист прижимают кирпичом.
Форумчанин queser. Изобрел и воплотил конструкцию разборного мобиля «Лего Мангала» из кирпича. Как уверяет автор, его агрегат «масштабируется» в размерах, которые можно выбрать в зависимости от аппетита компании, свободного места, бюджета и т. Д., легко собирается и разбирается, экономит дрова.
Как видно из схемы, на которой указаны все размеры, конструкция проста, как и все гениальное. По словам его создателя, «конструктор» легко помещается в багажник автомобиля, не требует точной циркуляции (спокойно переживает десяток зим на открытом воздухе), любой поврежденный элемент легко заменить. А если соорудить «Лего Мангалу» тепловую крышку, то возможность приготовления становится сравнимой с русской печью или тандумом.
Если добавить в умелую руку материал, нужный размер и инструмент, еще немного фантазии — ваш агрегат станет настоящим украшением участка. Вот какие арты построил ВЗЕНЕВ форумчанин. Его дракон не откажется от функциональности: это сразу и мангал, и мангал, и коптильня.
Присоединяйтесь к обсуждению и различным дизайнам. Узнайте, какую краску лучше использовать для стыковки проектирования и строительства каменных печей и мангалов.Смотрите наше видео с подробным описанием Строительство мангального комплекса.
Чтобы не мучиться болями в спине и иметь возможность одновременно пользоваться достаточным количеством шампуров, стоит выбрать. Размеры такой конструкции могут варьироваться в широком диапазоне. Предлагаем разобраться, как сделать правильный выбор и не ошибиться.
Фото: Metancor.md.
Еще перед покупкой или самостоятельным изготовлением стоит подумать, какого размера должна быть марка. Здесь есть много вариантов.В продаже есть изделия стандартных размеров. Их массово выпускают различные производители. Если такой вариант не подходит, стоит сделать выбор в пользу индивидуального проекта. Предлагаем ознакомиться с их отличительными особенностями.
Фото: Сваркапросто.ру.
Стандартные размеры жонглирования для шашлыка
В зависимости от производителя размеры джергала для шашлыка могут варьироваться в широких пределах. Однако чаще всего их ширина составляет 0,3-0,4 м, если планируется использовать шампур на 8-9 кусках мяса.Глубина может варьироваться от 15 до 18 см при толщине стенки 4-8 мм.
Фото: vosaduly.ru.
Прорабатывая чертежи типовых мангалов, производители стремятся выбрать такие размеры, которые позволят обеспечить хороший мясной корень и предотвратить его подгорание. Также учтены условия эксплуатации. Длина стационарных моделей может достигать 1 м, а у переносных изделий правильные размеры составляют 0,6-0,7 м.
Фото: Foodcity-Pro.Ru.
Возможные варианты
Не всегда стандартные конструкции способны удовлетворить потребности собственников.В такой ситуации можно создавать геометрические параметры. Они могут варьироваться в довольно большом диапазоне. Важно, чтобы готовый продукт был способен:
- придать приготовленному блюду неповторимый вкус и аромат. Для этого он должен способствовать однородности угля мяса при сохранении сочности;
- дают максимум тепла при минимальном расходе угля или дров;
- прочный и удобный в использовании. Вы можете варьировать не только геометрические параметры, но и форму.
Фото: кипринформ.com
Определяемся с размером идеальной мангалы своими руками
Если принято решение сделать дизайн своими руками, необходимо отказаться от стандартов и стать обладателем манги с идеальными размерами. Такое изделие будет удобнее в эксплуатации и прослужит долго. Предлагаем разобраться, как найти оптимальные параметры.
Фото: pechiexpert.ru.
О том, какой должна быть высота манги, стоит подумать заранее.Этот параметр подбирается индивидуально. Он не должен быть низким или высоким, чтобы не испытывать дискомфорта в процессе приготовления шампуров. Именно поэтому этот параметр выбирается с учетом роста человека, который будет им чаще всего пользоваться. В среднем высота мангала для шашлыка должна составлять 75-125 см.
Фото: info.sibnet.ru.
Длина выбирается с учетом количества одновременно готовящихся шашлыков. Если использовать одновременно 6 шампуров, достаточно 60 см.Если одновременно приготовить 10 шашлыков, то длина увеличивается до 1 м.
Фото: Dieta.spb.ru.
Статья по теме:
: Проекты, фото интересных решений, выбор материала, как правильно выбрать площадку для барбекю, особенности строительства беседки для дачи с мангалом — читайте в публикации.
Ширина и глубина
Ширина выбирается с учетом длины шампуров, которые планируется использовать.Обычно их длина составляет 45-50 см при рабочих 30-35 см. С учетом этого глубина закручивания шашлыка должна быть не более 40 см. Увеличение поперечных размеров приведет к неправильному оттоку выделяемого тепла.
Глубина обычно около 15-20 см. При изучении чертежа технического углерода для железных шашлыков размеры выбираются с учетом слоя угля толщиной 5-10 см. При этом между мясом и слоем угля должно быть около 8 см.Если вы планируете использовать дрова, глубину сделайте немного больше. В этом случае для обеспечения оптимального термического воздействия толщина образующегося угольного слоя должна быть намного больше.
Фото: a.d-cd.net
Толщина стенки
Это достаточно важный параметр, влияющий на долговечность изготавливаемой конструкции. При этом следует учитывать подвижность жарочного устройства. Для стационарной модели стоит выбирать листы толщиной до 8 мм. Если дизайн планируется периодически переносить с одного места на другое, правильным размером мангала станет толщина до 4 мм, так как такое изделие будет весить намного меньше.
Внимание! Чем толще будет листовая сталь, тем дольше прослужит конструкция.
Фото: a.d-cd.net
Правильная высота мантальных ножек: метод определения
Высота ступней для мангалы определяется с учетом роста основного исполнителя блюда. Чтобы найти общую высоту, нужно согнуть руку в локте и измерить расстояние от локтя до Земли. Обязательный параметр в этом случае будет равен разнице найденного значения и проектной высоты в целом.
Внимание! Средняя высота ног около 1 м.
Фото: CS2.LiveMaster.ru.
Расстояние между шпажками «Мангал»: выбираем оптимальное.
Для того, чтобы блюдо в процессе приготовления можно было легко переворачивать на шпажке, стоит особенно внимательно выбирать расстояние между шпажками на мангале. Его выбирают не менее 5 см. Для удобства использования сделаны специальные прорези.
Фото: Олеор.RU.
Манга подходящего размера для различных способов жарки мяса.
Технология приготовления мяса предъявляет определенные требования к габаритам и конструктивным особенностям. Какие размеры будут правильными, будет зависеть от:
- температуры обработки;
- Б / У инвентарь.
Фото: I.Ytimg.com.
Размеры модели для шашлыка на шпажках
При изучении схемы и выборе размеров мангала для шашлыка из металла определены оптимальная длина, ширина и глубина с учетом геометрических параметров шампуня, которые планируется использовать. .Если семья большая, стоит выбрать модель длиной около 1 м, чтобы можно было одновременно жарить мясо на 10 шампурах.
Стандартная ширина 30-40 см. Этого хватит, чтобы уместить от 6 до 8 кусков мяса. Увеличение параметров неэффективно. На большинстве рисунков оптимальной глубиной 15 см считается джангуляция для шашлыка.
Совет! Обязательно заградите прорези для установки шампуров.
Фото: pechi-kamin.ru.
Модели с решетками для барбекю
Работая над параметрами мангалы, следует, прежде всего, учесть размер решетки для барбекю.Они составляют 18 × 28 см. Решетка должна располагаться на расстоянии 5-8 см от поверхности угля. В этом случае удастся обеспечить равномерное прожаривание мяса. Чаще всего размеры манги для шашлыков из железа подбираются 18 × 30 см. Этого достаточно для размещения одной решетки.
Фото: CDN.LifeHacker.ru.
Изменение показателей в зависимости от производителя мангала: размеры, чертежи
Работая над чертежом мангала, следует помнить, что его размеры будут напрямую зависеть от того, из какого материала он изготовлен.Продукция из листового металла Обычно меньше аналогов из. Именно поэтому выбирая оптимальную высоту мангала для шашлыка из металла, нельзя руководствоваться значениями, рекомендованными для конструкций из кирпича.
Фото: pechi-kamin.ru.
Кирпичные конструкции
Кирпич больших размеров предъявляет определенные требования к габаритам готовой конструкции. Наличие дымохода, умывальника или столешницы еще больше увеличивает габаритные размеры. Именно поэтому очень важно разобраться, как сделать мангал-мангал.
При изготовлении кирпичной конструкции учитывается ряд нюансов:
- ширина, длина и высота стороны подгоняются под стандартные параметры;
- Глубина мангала для мангала соответствует формату кирпича и толщине образующегося шва. В зависимости от количества уложенных рядов оно может составлять 21 или 28 см.
Внимание! Срок службы кирпичной конструкции значительно больше, чем у металлической.
Фото: SC02.alicdn.com.
Размеры и конструктивные особенности мантала из металла
Работая над чертежами и выбирая размеры, важно помнить, как правильно сварить мангал, чтобы он мог останавливаться очень долго, правильно выполняя возложенную на него функцию. Для изготовления такой конструкции можно использовать не только новую листовую сталь, но и применять изделия, имеющие подходящую длину. Некоторые пользователи для изготовления полукруглой модели используют старые металлические бочки и даже газовые баллоны.В зависимости от имеющихся элементов из металла, и подбираются оптимальные размеры жонглирования для шашлыка.
Чтобы продлить срок службы металлической конструкции, необходимо выбирать листовой материал из нержавеющей стали или после обработки обрабатывать специальные защитные составы. Даже небольшой слой защитит металл от коррозии.
Для отделки используются различные декоративные элементы, в том числе ковка. В некоторых случаях используются подставки из-под старых швейных машин.Предлагаем посмотреть фото, как выглядят мангалы из металла. Возможно, среди готовых решений Вы увидите созданный для Вас дизайн и захотите стать ее счастливым обладателем.
Фото: Unidoski.ru.
Фото: images.ru.prom.st.
Фото: avatars.mds.yandex.net
Делитесь в комментариях, а шашлыки вам нравятся? Какой дизайн вам больше нравится? Какие размеры мантии из металла, кирпича или камня вы считаете правильными и наиболее оптимальными?
Бетон
Современные кровельные материалы красивы и долговечны, никто не спорит.Впрочем, на прилавках магазинов старый добрый шифер тоже не лежит. Ведь он очень дешевый, не боится огня и имеет другие технические характеристики …
Когда-то раскладушка была не самым удобным, но не альтернативным вариантом замены кровати для гостей или родственников.Сегодня уровень комфорта этих устройств стал более чем высоким, и раскладушка с матрасом может заменить …
У любого домашнего мастера, не говоря уже о профессионалах в той или иной области техники, всегда есть отвертка и не один подручный инструмент в арсенале.Сфера применения не имеет ограничений, но ее основное назначение — …
Работа массажиста часто связана с посещением пациента на дому. В связи с этим специалисту приходится носить с собой массажный стол, что довольно сложно.Чтобы облегчить эту задачу, следует отдать предпочтение портативному …
Мозаичное панно с изображением жаровни
Об этом произведении
Восемь фрагментов мозаичного покрытия
Во время Гранд-тура лорд Чарльз Киннэрд и лорд Джордж Уильям Рассел в 1823 году осмотрели остатки большой мозаики, недавно обнаруженной в винограднике на Монте-Росарио, за пределами римских ворот Porta Portuensis. .Когда-то пол роскошного дома, мозаика состояла из концентрических полос разноцветных фигурных украшений, а также смелых контрастных орнаментальных узоров, обрамляющих центральную сцену, которая со временем была непоправимо повреждена корнями дерева.
Двое мужчин купили и разделили находки. Среди фрагментов мозаики, приобретенных лордом Киннэрдом, было восемь небольших панно, на шести из которых были изображены натюрморты с продуктами питания и предметами, используемыми для приготовления блюд, а в остальных двух были бюсты с фигурами, которые, как предполагалось, олицетворяли времена года.Все восемь частей были спроектированы так, чтобы вписаться в меандровую рамку, которая окружала теперь отсутствующую центральную фигуру. На основании рисунка, сделанного во время открытия мозаики, предполагается, что первоначальный тротуар имел размеры примерно 30 × 27 1/2 футов.
Изображения еды и предметов, связанных с приготовлением и сервировкой еды, часто встречались на мозаиках полов и настенных росписях римских домов. В то время как изображения продуктов питания могут передавать сообщения об изобилии и ассортименте блюд, которые будут поданы гостям на частном банкете, изображения несъедобных предметов, используемых для приготовления и подачи пищи, таких как эта жаровня, металлическая миска, используемая для разогрева и приготовления пищи, или этот овальный предмет, который мог быть блюдом или буханкой хлеба, усиливал темы обеда и гостеприимства.В мешке могли быть деньги или мука.
Статус
- На просмотре, Галерея 152
Отдел
- Искусство Древнего Средиземноморья и Византии
Художник
- Древнеримский
Название
- Мозаичное панно на полу с изображением мангала
Дата
- 100 CE – 200 CE
Средний
- Камень, раствор
Размеры
- 27.9 × 27,9 × 5,1 см (11 × 11 × 2 дюйма)
Кредитная линия
- Обещанный подарок Линн Хаузер и Нила Росс
Регистрационный номер
- 165.2012 г.
- Манифест
IIIF Международная структура взаимодействия изображений (IIIF) представляет собой набор открытых стандартов, обеспечивающих богатый доступ к цифровым медиа из библиотек, архивов, музеев и других культурных учреждений по всему миру.
Узнать больше.
- https: // api.artic.edu/api/v1/artworks/210352/manifest.json
Расширенная информация об этой работе
Информация об объекте находится в стадии разработки и может обновляться по мере появления новых результатов исследований.Чтобы помочь улучшить эту запись, напишите нам. Информация о загрузке изображений и лицензировании доступна здесь.
Кэролайн Бразье: стили взаимоотношений в природоохранной практике
Кэролайн Бразье: стили взаимоотношений в природоохранной практике
АННОТАЦИЯ:
Путешествие из кабинета на природу создает для терапевта сложную задачу, поскольку оно нарушает многие нормы традиционной терапевтической практики.Это неизбежно предполагает другие границы времени и пространства и другой стиль терапевтических отношений. На профессиональном уровне практика экотерапии сливается с различными областями, такими как общественная работа, защита окружающей среды, занятия на свежем воздухе, творческое искусство и шаманские исследования, которые, в свою очередь, обеспечивают ресурсы и вдохновение. Это разнообразие предлагает целостный подход, который, тем не менее, требует строгости и глубины, чтобы действительно считаться психологической терапией. Широкое происхождение этой области может создать путаницу в языке и концептуальную путаницу и, в частности, привносит новые измерения в терапевтический альянс.В этой презентации исследуются стили взаимоотношений, которые становятся возможными при работе на открытом воздухе, и отражаются вопросы, возникающие при переходе из консультационной комнаты в поле. Основываясь на буддийском подходе к психотерапии, он предложит модель терапевтического альянса, основанного на процессе внимательного сопровождения, в котором терапевт и клиент «уходят» в новую и непредсказуемую среду, используя опыт как общий ресурс, через который изучить личный и универсальный процесс.
СОДЕРЖАНИЕ ЗАСЕДАНИЯ (план).
Хотя я подготовил краткое изложение тем из главы с тем же названием, которую я пишу для будущей книги под редакцией Мартина, в итоге я значительно упростил свой доклад. Ниже приводится краткое изложение моих размышлений об отношениях в контексте внимательности и буддийской психологии. Фактически, я просто расширил первый раздел, поэтому сделал несколько заметок ниже того, о чем на самом деле говорил!
1) Область экотерапии: кто этим занимается и что возможно?
- Терапевты и консультанты выходят на улицу
- Общественные работы
- Психологические и другие психиатрические услуги
Это поднимает вопросы о том, что является терапевтическим.Исцеляет ли просто пребывание на природе? Если да, то что мы, как терапевты, предлагаем дополнительно?
2) При выходе на природу терапевтические отношения являются треугольными: терапевт, клиент и окружение. Это способствует развитию отношений
- Сопровождение
- Не знаю
- Любопытство
- Взаимодействие
3) Границы терапевтических отношений на открытом воздухе
- Сотрудничество с окружающей средой и трехсторонний процесс:
- Заземленное присутствие и священное пространство как два аспекта удержания.
4) Внимательность и внимание: Практика внимательности направлена на развитие сфокусированного внимания в настоящий момент без осуждения
- Собственное качество внимательности терапевта
- Внимательность, развиваемая клиентом в результате непрямого общения посредством моделирования или действий, которые естественным образом привлекают внимание
- Прямое обучение упражнениям на внимательность
5) Буддийская психология предлагает исследование восприятия:
- Цепляющиеся и чувственные привязанности
- Ответы на привлечение / отвращение
- Связь и личная история
- Условный вид и культуры
6) Методология, ориентированная на других, направлена на изоляцию и отчуждение обусловленного ума посредством трех функций:
- создание терапевтического контейнера посредством воплощенного присутствия.Это включает в себя заземленность, внимательное сопровождение и подлинные отношения
- исследование обусловленного ума и его проявления в мировоззрении
- исследуя реальность и работая над разъяснением опыта других
7) Внимательность как осознание глубины: Практика внимательности не только приводит нас к осознанию без осуждения, но также приглашает нас к обусловленной природе всех вещей и их непостоянству. Другими словами, процессы в естественном мире взаимозависимы и находятся в постоянном движении.Это способствует повышению осведомленности о:
- Взаимозависимость факторов окружающей среды
- Реальность смерти в жизни и жизни в смерти.
СОДЕРЖАНИЕ ЗАСЕДАНИЯ
Я начал с вопроса «что такое терапевтическое?». В то время как некоторые люди, которые являются квалифицированными консультантами и психотерапевтами, начали переносить свою работу на улицу, многие другие люди работают с миром природы или на открытом воздухе в терапевтических целях.Например, мой собственный опыт в сфере образования, общественной работы и обучения активистов показывает, как положительные психические изменения могут возникать по-разному благодаря опыту работы на открытом воздухе.
Затем я продолжил рассмотрение терапевтических метафор. Рассматривая диапазон занятий и стилей работы, которые можно в широком смысле классифицировать как предоставление положительного опыта такого рода, можно затем увидеть, как разные модели могут иметь тенденцию к разным метафорам.
Метафора — это средство скорее неявное, чем явное, и его часто лучше не интерпретировать.Он работает на бессознательном уровне и многослойен (как поэзия). Это часто усваивается через воплощенный опыт, а не осознанно усваивается посредством когнитивного обсуждения. Таким образом, участвуя, например, в садоводстве, участник / клиент может иметь опыт роста, который они могут ощущать резонансом и отражать их собственный образ жизни, но рост не может сознательно «интерпретироваться» как «их рост». Другими словами, опыт проективен. Этот неконцептуальный аспект работы на открытом воздухе является частью его силы, и мы можем осознавать это, даже работая в практических областях.
На сеансе я выделил три типа метафор, относящихся к стилям терапевтических отношений:
Практические подходы EG: Садоводческая терапия Спорт и активный отдых Общественные работы Искусство и т. Д. | Метафора: Садовник
|
Подходы к тестированию EG: тимбилдинг Обучение Корпоративные и т. Д. | Метафора: Завоевание
|
Шаманские подходы ЭГ: работа духовная Мифическая работа Творческий опыт Обряды посвящения | Метафора: путешествие
|
Кэролайн Бразье: caroline @ tarikitrust.org web: http://www.buddhistpsychology.info
ДЕСЯТЬ НАПРАВЛЕНИЙ ОБУЧЕНИЯ ПО ЭКОТЕРАПИИ И ПСИХОТЕРАПИИ ТАРИКИ ПРОГРАММА ОБУЧЕНИЯ
Кэролайн Бразье: — психотерапевт с более чем двадцатилетним опытом работы. Она является руководителем учебной программы Тарики по психотерапии по иному центрированному подходу и десяти направлений по экотерапии. Обе программы предусматривают обучение как на основе посещаемости, так и в режиме онлайн (http: // www.buddhistpsychology.info).
Кэролайн — автор шести книг по буддизму и психотерапии, а также многих статей, глав и статей по этой теме. В ее книгах:
Буддийская психология (2003, констебль Робинсон)
Терапия, ориентированная на других (2009, O-Books)
Желуди среди травы (2011, Earth Books)
Как выбрать правильный размер заклепки
Как выбрать правильный размер заклепки — Atlas Copco USAНесмотря на все достижения в методах крепления, таких как склеивание и затяжка, клепка по-прежнему является одним из основных методов, используемых в авиастроительной промышленности, а также в других отраслях легкой конструкции, где высокопрочный листовой металл не поддается сварке.
Есть несколько причин для использования метода клепки, среди которых низкая стоимость установки, более низкие требования к подготовке отверстий, высокая надежность, легкое и прочное соединение из-за небольшого веса, сопротивление усталости из-за высокой эластичности и долговечности.
Например, два куска листа толщиной 0,050 дюйма (1,27 мм) должны быть склепаны вместе. Подходящий диаметр заклепки будет 3 x 0,050 = 0,150 дюйма (3 x 1,27 = 3,81 мм).
Заклепка 5/32 дюйма (0.156 дюймов, 3,96 мм). Толщина металла составляет 0,050 + 0,050 = 0,10 дюйма (1,27 + 1,27 = 2,54 мм), а 1,5D составляет 0,234 дюйма (5,94 мм), поэтому общая длина должна быть 0,10 + 0,234 = 0,334 дюйма (1,27 + 5,94 = 7,21. мм) для заклепки.
См. Изображение ниже:
На практике для клепки, такой как ремонтная и ремонтная клепка, общим правилом является использование того же размера и типа головки, что и в соседней конструкции.Это будет соответствовать всем требованиям к прочности соединения.
Еще одна тема, связанная с заклепкой, — это подготовка отверстий. После выбора размера заклепки и размещения листов необходимо разметить отверстия для сверления.
Эти следы отверстий следует пробить кернером достаточно глубоко для начала сверления.
Если пуансон будет слишком твердым, отметка будет слишком большой, и металл будет искажен.
Диаметр сверла зависит от типа заклепки в отверстии:
Обратите внимание в таблице, что диаметр сверла примерно на три тысячи дюймов больше, чем размер заклепки.
Перед началом сверления важно проверить состояние сверла и правильно ли закреплен инструмент в патроне.Щелкните здесь, чтобы проверить состояние дрели.
После сверления удалите заусенцы из отверстия, не снимая фаски на краю отверстия.
Иногда листы могут двигаться или разрываться, в этих случаях вы должны использовать кожные булавки или зажимы, так как они предотвратят столкновение двух отверстий и будут держать листы близко друг к другу, когда придет время клепать.
Связанная информация
Процесс сборки в авиакосмической отрасли Atlas Copco
Здесь мы представляем, как наши интеллектуальные инструменты и решения поддерживают весь процесс сборки в аэрокосмической промышленности, от сверления, крепления, затяжки, клепки и т. Д., с качеством, точностью, безопасностью, во время нескольких отверстий и винтов на самолет.
Читать далее
Тенденции в аэрокосмической отрасли
В будущем мегаполисов, усилий по обеспечению устойчивости и роста глобальной мобильности аэрокосмической отрасли необходимо удвоить объем производства, сохраняя при этом заоблачный контроль качества.С помощью цифровизации и интеллектуальных сетевых инструментов можно реализовать и полностью использовать производственные практики Индустрии 4.0.
Читать далее
Продукты для аэрокосмической промышленности
Ручные дрели, системы клепки, модульные сверлильные агрегаты Advanced, отвертки, полный набор сборочных инструментов и решений для аэрокосмической промышленности.


Производим разметку отверстий для воздуха.

Если этого не сделать, отрезать материал ровно будет достаточно сложно.
Варьировать можно не только геометрические параметры, но и форму.

Большую длину делать не следует, ведь повару придется бегать от одного конца до другого. Удобнее стоять на одном месте.
Это обеспечит долгий срок службы и создание необходимого тепла для приготовления шашлыка.
В нем нужно сделать несколько рядов дыр. Далее его приваривают к днищу. Дырки можно сделать под ним или в местах, где размещаются его концы.
Обратите внимание на то, что опытный мастер повернул крючки в сторону. В таком положении они не поранят пользователя.
