ТК Технологическая карта на устройство перегородок из пазогребневых плит
|
|
ООО «Строительные Технологии» СПб, 22 Линия, д. 3 корп. 1 |
Технологическая карта на устройство
перегородок
из пазогребневых плит
Технологическая карта
(ТТК)
Пояснительная записка
|
Исполнено: |
|
|
Главный инженер проекта |
Соболев А. |
|
Инженер — проектировщик |
Лаврик Е. |
|
Н. Контроль |
Соболев А. |
2012 г.
СОДЕРЖАНИЕ
Технологическая карта разработана на устройство перегородок из пазогребневых плит в зданиях и сооружениях различного назначения.
Материалом для изготовления пазогребневых плит является гипс. Поверхность перегородок из гипсовых пазогребневых плит пригодна под любую отделку и не требует нанесения выравнивающего штукатурного слоя. Не допускается нанесение известковых красок и красок на основе жидкого стекла.
При привязке технологической карты к конкретному объекту и условиям строительства уточняются:
— объем выполняемых работ;
— график производства работ и их продолжительность;
— количественный состав звеньев и средств механизации.
Технологическая карта разработана в соответствии с действующими российскими и ведомственными документами:
1.
СП 48.13330.2011 «Организация строительства»;
2. СП 12-135-2003 «Безопасность труда в строительстве. Отраслевые типовые инструкции по охране труда».
3. СП 12.136-2002 «Безопасность труда в строительстве»;
4. СНиП 12-03-2001 «Безопасность труда в строительстве. Часть 1. Общие требования»;
5. СНиП 12-04-2002 «Безопасность труда в строительстве. Часть 2. Строительное производство»;
6. СНиП 3.03.01-87 «Несущие и ограждающие конструкции»;
7. СНиП 1.04.03-85 «Нормы продолжительности строительства и задела в строительстве предприятий, зданий и сооружений»;
8. ГОСТ Р 21.1101-2009 «Система проектной документации для строительства. Основные требования к рабочей документации»;
9. ПОТ Р М-012-2000 «Межотраслевые правила по охр
Монтаж пазогребневой плиты: пазогребневая перегородка своими руками
Вы делаете серьезный ремонт квартиры с перепланировкой или купили новостройку со свободной планировкой, перед вами обязательно встанет задача, монтажа межкомнатной перегородки или нескольких перегородок.
Если у вас есть возможность нанять рабочих, эта статья поможет их контролировать, если ремонт делаете своими руками, в статье по этапам покажу, как делается монтаж гипсовой пазогребневой плиты (ПГП) или пазогребневая перегородка своими.
Два способа монтажа перегородки ПГП
Понятно, что любая межкомнатная перегородка не висит в воздухе, а примыкает к полу, стенам и потолку комнаты. Монтаж пазогребневой плиты по технологии предполагает два типа монтажа перегородки в зависимости от способа примыкания:
1. Эластичное примыкание (крепление). Эластичное крепление предполагает установку между краями перегородки и стенами, потолком, полом слоя звукоизоляционного материала. Доступным звукоизоляционным материалом является пробка. Важно понимать, что эластичное крепление делается там, где заказчику, то есть вам, нужно улучшить звукоизоляционные качества перегородки. Никаких других критериев для эластичного монтажа ПГП нет. 2. Монолитное примыкание (крепление).
Монолитное крепление предполагает, непосредственный контакт плит перегородки со стенами, полом, потолком через монтажный клей. Материал для монтажа перегородки из ПГП (пазогребневых плит)
Для работ понадобится:
1. Гипсовая пазогребневая плита (ПГП). Производители: Кнауф, Волма и др. В размере ПГП нас интересует её толщина. Распространены плиты толщиной 80 и 100 мм. Количество плит рассчитывается из площади будущих перегородок с запасом 10% на подрезы. Размеры ПГП:- 667х500х80 мм для расчета 3 плиты на метр: 28 кг/1 плита.
- 667х500х100 мм для расчета 3 плиты на метр: 37 кг/ 1 плита.
- 900х300х80 мм для расчета 3,7 плиты на метр: 24 кг/1 плита.
Примечание: Если монтаж пазогребневой плиты проводится в помещении нормальной влажности, покупается стандартная плита ПГП. Для перегородок во влажных помещениях, покупаем гидрофобизированную (влагостойкую) плиту ПГП. Влагостойкая плита Кнауф маркируется зеленой полосой.
2. Понадобится монтажный гипсовый клей.
Какую толщину ПГП выбрать
Межкомнатные перегородки из ПГП делают в один слой. Технологически, нельзя делать прямую перегородку ПГП выше 3600 мм и шире 6000 мм. В квартирах таких стен, обычно, нет, поэтому для квартир нет ограничений в использовании плит ПГП.
Монтаж пазогребневой плиты в квартире
Выбрать толщину плит для перегородки нужно по её размеру.
Чем больше перегородка, тем тоще плита. Для перегородок в новостройку лучше выбрать плиты ПГП 100 мм. Для облицовки стен балкона и перегородки в ванной, достаточно 80 мм плит ПГП.
Инструмент для работ по монтажу перегородки ПГП
Для работ понадобится следующий инструмент:
- Пила: для резки плит;
- Дрель или перфоратор: Для крепления плит и замешивание раствора. Насадка миксер к дрели;
- Шпатель зубчатый ширина 200 мм;
- Шпателя простые: 100 и 200 мм;
- Уровень горизонтальный длиной 500 мм и 1500-2000 мм.
- Отвес для разметки перегородки;
- Резиновый молоток для осаживания плит;
- Чистая тара для замешивания раствора;
- Чистая вода для раствора и мытья инструмента. Ветошь.
Монтаж пазогребневой плиты своими руками – по шагам
- Подготовьте место для монтажа перегородки. Уберите мусор, прогрунтуйте места примыкания перегородки.
- Основание перегородки должно быть горизонтально ровным.
Если при промере виден уклон основания, его выравнивают цементным раствором. После высыхания раствора его грунтуют. - Разметьте перегородку по полу, стенам, и потолку. Используйте для разметки отвес или лазерный уровень.
- При эластичном (звукоизоляционном) примыкании перегородки к полу, на место установки перегородки на монтажный клей клеятся звукоизоляционная полоса.
- Плиты ПГП можно устанавливать как пазом вверх, так и пазом вниз. Однако для надежного сцепления, рекомендован монтаж пазом вверх.
- Поэтому, у плит первого ряда нужно пилой срезать гребень. Не используйте для резки электроинструмент, количество гипсовой пыли будет неоправданно большим.
- Обрезанные плиты в ряду перегородки не должны быть уже 100 мм. Поэтому перед монтажом сделайте сухой монтаж и примерьте плиты по месту. Если последняя плита в ряду получается меньше 100 мм, подрежьте первую плиту ряда.
- Установите первый ряд плит на клей.
От горизонтальности и вертикальности первого и двух последующих рядов зависит качество всей перегородки, поэтому, активно используем строительный уровень для контроля укладки.
- Начиная с первого ряда, при эластичном примыкании, ставьте укрепляющие уголки. Уголки крепятся к ПГП стандартными саморезами. Для крепления уголка к стенам, используем дюбеля с шурупами.
- Количество скоб на одну сторону перегородки не может быть меньше 3-х. То есть, в квартире с потолками 2700, скобы ставим после первого, третьего и пятого рядов.
- Смотрим на фото, как укладывается монтажный клей в паз нижнего ряда.
- Устанавливаются плиты шипом в паз с клеем. Осаживаем плиту резиновым молотком. Излишки клея, выдавливаемые верхней плитой, снимаем шпателем.
- Постоянно контролируем горизонтальность рядов и вертикальность перегородки.
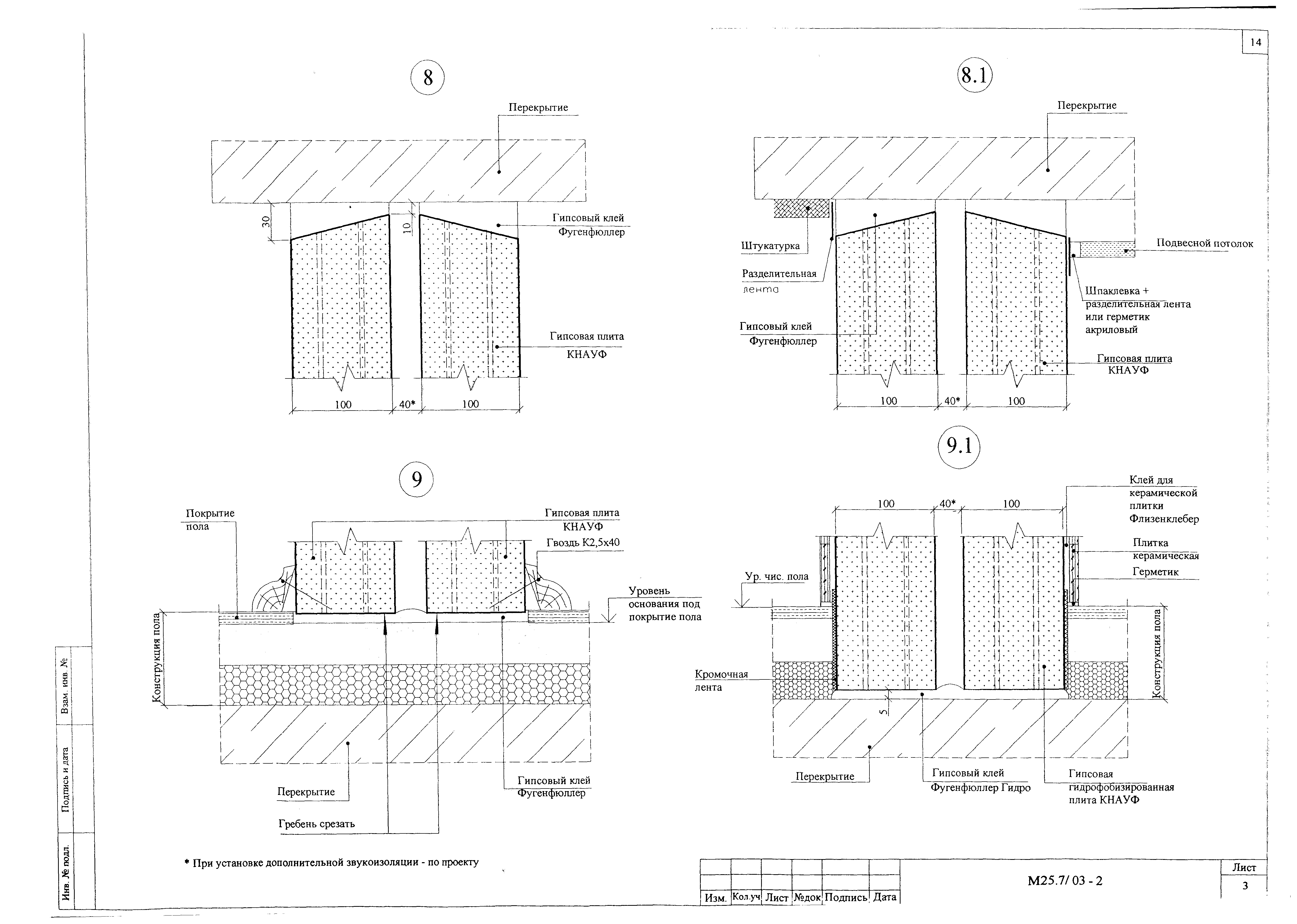
Примыкание перегородки ПГП к потолку
Примыкание перегородки ПГП к потолку требует отдельно абзаца.
Примыкание перегородки к потолку
Правильное примыкание перегородки к потолку более сложное, чем к стене. Последний ряд плит ПГП подрезается под углом. Угол должен «смотреть» на вас. Расстояние от скоса до потолка должно меняться от 10 до 300 мм.
При монтаже последнего ряда ПГП скошенная пустота между потолком и плитой заполняется монтажным клеем.
Монтаж пазогребневой плиты окончен. После монтажа перегородки из пазогребневых плит, осмотрите её, проверьте вертикальный уровень перегородки. Оставшимся клеем, заполните, если есть, пустоты между плитами. Снимите лишний клей, выдавленный из швов.
Далее, после застывания клея, стыки перегородки со стенами и потолком, проклеиваются армированной лентой и шпаклюются. Сама перегородка отделывается вместе со стенами комнаты, обычно, несколько раз шпаклюется. Далее по плану ремонта (красим или клеем обои или что-то еще).
Об установки дверей в перегородке из ПГП, а также прокладке коммуникаций в ПГП перегородках в следующих статьях.
Подпишись, зарегистрировавшись на сайте.
Нормативные документы
Видео статьи: Монтаж пазогребневой плиты ПГП своими руками
Другие статьи разделов: Перегородки и Новостройки
Поделись ссылкой:
Пазогребневые плиты. Монтаж перегородок из ПГП.
7 шагов монтажа перегородок из пазогребневых плит
Цель: путем возведения перегородок из пазогребневых гипсовых плит (ПГП) разделить помещение в частном доме 60-х годов постройки на 2 комнаты (санузел и коридор).
Площадь помещения — 35 квадратных метров. Высота потолка – 2,7 метра.
Почему пазогребневые плиты?
У перегородок из ПГП есть несколько неоспоримых преимуществ:
— они легко и быстро монтируются;
— выигрывают по стоимости;
— полученная перегородка обладает высокой прочностью;
— поверхность не требует оштукатуривания.
Шаг 1.
Предварительная подготовка.
Перед монтажом плит основание необходимо обеспылить и прогрунтовать в местах крепления, произвести разметку.
Для монтажа перегородки используется гипсовый клей «ВОЛМА-Монтаж».
Шаг 2.
Монтаж первого ряда.
Обратите внимание необходимо уделить монтажу первого ряда. От того, насколько качественно Вы смонтируете первый ряд, будет зависеть простота работы и качество готовой поверхности.
Первый ряд готов. И обратите внимание, что, так как здесь будет располагаться открытый душевой угол, заднюю стенку мы также выкладываем из влагостойких ПВП, чтобы защитить деревянную часть дома от попадания влаги. Влагостойкие плиты легко отличить от невлагостойких — они имеют зеленоватый оттенок
Шаг 3.
Последующие ряды.
При выкладывании второго и последующих рядов важно обеспечить смещение вертикальных швов для увеличения прочности.
Шаг 5.
Придание прочности конструкции.
Для придания большей прочности конструкции из ПГП рекомендуют прикрепить их к стенам и к полу. Особое внимание необходимо уделить той части корнструкции, где будут располагаться петлевые части дверей.
Шаг 6.
Монтаж верхнего ряда.
Чтобы пройти верхний ряд над дверным проемом необходимо сделать закладную.
Совет. Чтобы не возникало сложностей с последующим шпаклеванием бруса, его с двух сторон нужно зашить гипсокартоном. По ширине брус с гипсокартоном был чуть меньше, чем плита ПГП.
В приготовленный заранее по высоте проем монтируем брус прямо на «ВОЛМА-Монтаж» и сверху устанавливаем необходимые плиты для проема. В дальнейшем, когда все высохнет, примыкание можно пройти сеткой, зашпаклевать.
Обратите внимание, последний ряд мы поставили вертикально, чтобы исключить большое количество подрезки, так как высота позволяла выставить целую плитку, и оказался бы зазор 2-3 см.
Зазор от потолка заполняем монтажной пеной.
В последующем монтажную пену можно скрыть штукатуркой. Для этого необходимо нанести немного смеси вровень с плитой с одной стороны, дождаться схватывания. Потом запенить середину стыка между плитой и потолком так, чтобы оставалось место для нанесения штукатурки с другой стороны. После застывания пены, доработать оставшуюся поверхность штукатуркой.
Шаг 7.
Финишная обработка.
Перегородка получилась ровная, штукатурить ее в дальнейшем не требуется. Пустоты закрываем штукатуркой ВОЛМА-Слой. Для завершения необходимо зашпаклевать стыки плит.
Время работы: 1 рабочий день
Общая площадь возведенных перегородок: 36 квадратных метров
Использованные материалы: грунтовка, гипсовая монтажная смесь ВОЛМА-Монтаж, 106 пазогоребневых плит.
Посмотреть видеоМОНТАЖ ПЕРЕГОРОДОК ИЗ ПГП
youtube.com/embed/mRkIkTnpUR8?rel=0″ frameborder=»0″ allowfullscreen=»»/>itemprop=»video» >
полнотелые пазогребневые плиты и пустотелые блоки, особенности монтажа межкомнатных перегородок из гипсоплит
Современный мир специфичен стремительным развитием технологий в разных сферах человеческой деятельности, благодаря чему материалы, проверенные тысячелетиями использования, внезапно оказываются неактуальными. Так произошло, например, со старым добрым кирпичом – хотя он все еще необходим для капитального строительства, межкомнатные перегородки из него строят уже далеко не всегда. Вместо этого используются более новые решения вроде пазогребневых плит. Если они еще и выпущены хорошо узнаваемой фирмой, такой как Knauf, то спрос на них становится даже еще более высоким.
Особенности
Как становится понятно из названия, пазогребневые плиты, которые иногда также называют блоками, соединяются между собой при помощи пазов и гребней.
Для строительства это в некотором смысле революция, потому что не нужны никакие дополнительные крепежи и клеевые смеси, а сборка оказывается простой и быстрой, к тому же без лишней грязи. Однако это не единственная характеристика, которая позволяет новому материалу успешно тягаться с кирпичом в вопросах популярности.
В многоэтажных зданиях, особенно в тех, что построены давно, владелец при перепланировке обязан учитывать еще и максимально допустимый вес перегородки, который чаще всего невелик. Кирпичную кладку даже в один слой легкой не назовешь, а вот ПГП отличаются небольшой массой, потому вы не рискуете нести ответственность за нарушение жилищных норм. Конечно, в плане массы конкуренцию пазогребневым плитам могли бы составить пеноблоки и газобетон, но у этих материалов нет преимущества чистоты и простоты, упомянутого в первом абзаце.
ПГП Knauf, в отличие от конкурентов, монтируются даже быстрее, чем единственный адекватный конкурент в лице гипсокартона
Для монтажа необязательно нанимать специалистов – если в доме есть опытный мужчина с навыками работы руками, он справится с установкой самостоятельно. Учитывая, что ПГП обычно не требует даже штукатурки и может сразу подвергаться финишной отделке, получается огромная экономия средств. При этом по показателям шумо- и звукоизоляции такой материал выглядит вполне достойно.
Виды и размеры
Планируя строительство межкомнатной перегородки из гипсоплит, стоит внимательнее обращать внимание и на размеры, и на другие свойства. Правильно измерив габариты запланированной перегородки, можно подобрать гипсовые фрагменты так, чтобы нарезка отнимала немного времени и сил, а отходов получалось как можно меньше.
Продукция Knauf хороша тем, что фирма предоставляет потребителям довольно широкий выбор возможных размеров блоков, дополнительно упрощая монтажные работы. Ассортимент может периодически меняться, однако наиболее ходовые решения неизменны – это 667х500х80 и 667x500x100 мм (некоторые магазины указывают 670х500х80 мм), а также 900х300х80 мм. Уже из вышесказанного можно было заметить, что различаются не только длина с шириной, но и толщина – есть 80, а есть 100 мм.
Стандартные
Обыкновенные пазогребневые плиты немецкого производителя выпускаются на основе гипса при минимальном добавлении каких-либо дополнительных ингредиентов. Это полностью натуральный по своему происхождению материал, который совершенно не может причинить вреда человеческому здоровью, а потому может быть использован для строительства даже в спальнях, кухнях и детских комнатах.
Все стандартные блоки изготавливаются методом заливания специальных форм жидким гипсом – благодаря этому производитель может гарантировать, что абсолютно все выпущенные им экземпляры плит совершенно одинаковые по своим размерам.
При этом для стандартных изделий существует классификация еще и на полнотелые или пустотелые.
С первыми все понятно – они состоят из цельного куска гипса, что делает их более прочными и долговечными. Пустотелые плиты имеют в своей толще 5 и более специальных скважин, заполненных воздухом – они нужны для того, чтобы обеспечивать более эффективную теплоизоляцию. В некоторых случаях мастера, у которых под рукой есть только пустотелые экземпляры, тогда как в данном случае лучше подошли бы полнотелые, просто заливают эти канавки застывающими растворами, что тоже повышает прочность стены.
Гидрофобизированные
Разработчики немецкой фирмы подумали о том, что было бы нечестно лишать потребителей хорошего материала в ситуации, когда перегородку надо установить, например, в санузле или на кухне. Специально для таких случаев они выпускают влагостойкий вариант своей продукции, в состав которого, помимо привычного гипса, входят специфические гидрофобные добавки.
Производитель специально перед запуском в продажу проводил испытания, благодаря которым выяснилось – такие ПГП можно использовать даже для наружной облицовки зданий.
Габаритная линейка влагостойких плит выглядит так же, как и у обыкновенных, что удобно для строительства. Чтобы продавцы и покупатели могли визуально различить, какая плита лежит перед ними, гидрофобизированную продукцию намеренно делают слегка зеленоватой, тогда как стандартная всегда имеет типичный гипсовый цвет. Повышенная влажность неизбежно требует от перегородки особой надежности, потому влагостойкие ПГП от Knauf бывают только полнотелыми.
Сравнение с плитами «Волма»
Почему потребители выбирают Knauf, вопросов не вызывает – немецкое качество известно на весь мир, в этой стране просто не умеют делать кое-как и всегда следят за тем, чтобы за собственную продукцию не было стыдно.
Другое дело, что зарплаты рабочих в Германии довольно высокие, а за качество приходится платить.
Более дешевой альтернативой, но при этом особо не уступающей по классу, может выступать продукция российской фирмы «Волма».
Именно «Волма» считается едва ли не единственным толковым производителем ПГП из РФ – конкуренты не стоят даже близко. Тем не менее эксперты признают, что немецкие плиты все-таки лучше, хоть и несущественно, а выбор в пользу отечественного бренда во многих случаях обусловлен лишь желанием сэкономить деньги.
Рассматривая условные недостатки продукции «Волма», стоит заметить, что ассортимент у нее недостаточно широкий – если длину и ширину можно выбирать на уровне с немецкой продукцией, то толщина стандартная – 8 см, и альтернатив нет, а кому-то этого маловато. Если ПГП из Германии нахваливают за то, что оштукатуривание не понадобится, то плита «Волма» довольно шероховатая даже с лицевой стороны, и без штукатурки обои на нее не поклеишь.
А раз так, то преимущества ПГП в виде быстроты монтажа, чистоты работ и дешевизны начинают вызывать вопросы.
Компенсировать недостатки российская фирма решила добавлением стекловолокна, которое делает плиту более прочной, но у этой медали есть и обратная сторона – производить нарезку листового материала оказывается сложнее.
Критерии выбора
Решившись строить из пазогребневых плит, вы в первую очередь должны понимать, что они в принципе не годятся для возведения несущих стен – никакая их разновидность для достижения таких целей не подходит. При всех своих преимуществах этот материал не обладает теми показателями прочности, что позволяют существенно нагрузить его сверху, а также на возведенную стену нельзя вешать ничего очень тяжелого.
Приобретая пазогребневую плиту от Knauf, потребитель получает возможность сэкономить на последующей ее отделке. Безусловно, сама по себе такая ПГП не является довольно эстетичной, чтобы оставаться нетронутой в интерьере, но ее хотя бы не надо штукатурить – можно сразу красить или оклеивать обоями.
Обратите внимание, что достаточной гладкостью поверхности обладает только продукция этого немецкого производителя, тогда как у конкурентов дела обстоят заметно хуже.
Если длина и ширина выбираются в зависимости от размеров будущей стены, чтобы получалось как можно меньше бесполезных обрезков, то толщина больше зависит от предназначения стены и прихоти хозяина.
Блоки толщиной 8 см обычно используют внутри квартиры, причем допустимы даже пустотелые решения. Пазогребневые плиты с толщиной 10 см намного чаще выбирают для межквартирных перегородок, где звукоизоляция должна быть на высшем уровне, по этой же причине они обычно полнотелые.
Технология укладки
Монтаж ПГП не представляет особой сложности, но и его стоит выполнять в строгом соответствии с инструкцией, если хотите, чтобы стена была долговечной и безопасной для домочадцев. Рекомендации просты, но игнорировать их не стоит, поэтому рассмотрим их подробнее.
Обратите внимание, что, ввиду своей относительной хрупкости, пазогребневые плиты не используются для возведения слишком уж масштабных конструкций.
Специалисты указывают, что даже в случае с продукцией Knauf не стоит проектировать стены, чья высота была бы более 3-х метров, а ширина – свыше 6. Для небольшой перепланировки в квартире этого должно хватить с запасом, но в частном доме лишний раз подумайте, не выходит ли ваш проект за рамки дозволенного.
Все начинается с подготовки тех участков на полу и потолке, которые станут местами соединения с будущей стеной. Наш девиз – чистка и еще раз чистка, потому что, оставив здесь любые пятна влаги, масла или даже старой краски, вы рискуете обеспечить стене люфт в труднодоступном для починки месте. Если не хотите, чтобы в будущем стена буквально болталась на скобах, добейтесь идеальной чистоты основы.
Перед тем как что-либо крепить к полу и потолку, проведите разметку на месте будущих креплений.
Не поленитесь несколько раз все перепроверить, пользуясь отвесом и уровнем, потому что любая ошибка – это перекошенная стена, испорченные пол и потолок.
Плиты собираются в единую конструкцию при помощи пазов и гребней, но это лишь между собой – в полу и потолке никто, конечно, канавки под них сверлить не будет. Соответственно, в месте прилегания к полу и потолку выступающие узкие гребни необходимо удалить, иначе они будут мешать. Работая над удалением гребня, следите за тем, чтобы кромка плиты по возможности оставалась как можно более ровной – от этого зависит, придется ли вам шпаклевать стыки и в каком объеме.
Соединяя между собой отдельные блоки, можно не проверять, правильно ли они сошлись между собой, образуя идеально плоскую поверхность – на то Knauf и считается брендом с мировым именем, чтобы его продукция не имела очевидных косяков. Однако в процессе установки вы просто обязаны после каждого своего действия по установке нового блока проверить, является ли ваша конструкция отвесной с углом в 90 градусов по отношению к полу, потолку, смежным стенам.
Лучше проконтролировать сейчас, чем потом переделывать.
Как именно крепить плиты к капитальным основаниям, зависит от того, что вы будете делать с возведенной стеной дальше. Ключевым преимуществом ПГП Knauf является то, что их можно не штукатурить. Поэтому способ крепления видится очевидным – их клеят, начиная от пола, а возможный промежуток от верхней кромки до потолка, если он небольшой, заделывают монтажной пеной. Если же комната совсем голая, и оштукатуривание выглядит совершенно неизбежной процедурой, разумнее воспользоваться скобами, которые нередко оказываются надежнее. Впрочем, даже в этом случае соединение между отдельными фрагментами сборной конструкции будет обеспечивать клей, на роль которого годится шпатлевка Fugen.
Обратите внимание, что при склеивании двух пазогребневых плит промазывать клеем надо именно пазы, а не шипы, иначе рискуете допустить подтеки по всей поверхности будущей стены.
Хотя клею (или шпатлевке) на застывание надо куда меньше времени, чем цементному раствору для кирпичей, это время конструкции все-таки надо дать, перед тем как заделывать стыковочные швы. Аккуратность заделывания швов напрямую влияет на то, придется ли вам заниматься дополнительным оштукатуриванием для выравнивания поверхности. При этом некоторые виды отделки вроде декоративной штукатурки или обоев с рельефной текстурой позволяют скрыть мелкие неровности.
В следующем видео рассказывается о монтаже пазогребневых плит.
youtube.com/embed/mRkIkTnpUR8?modestbranding=1&iv_load_policy=3&rel=0″/>
Технология сооружения перегородок из пазогребневых плит
Перегородки из пазогребневых плит используются в строительстве давно. Но свою новую жизнь они получили относительно недавно, когда жить стало лучше, граждане стали проводить ремонты и перепланировки квартир и домов, используя современные материалы. Последние не всегда оказывались удобными в применении, особенно это касалось неопытных мастеров, которые занимались ремонтом своими руками. В этом плане пазогребневые плиты лучше, потому что их монтаж – процесс простой.
Перегородки из пазогребневых панелей
Виды пазогребневых плит
Этот стеновой материал для сооружения перегородок присутствует на рынке стройматериалов двух видов: гипсовый и силикатный. Первый – чистый гипс с добавлением пластификаторов. Второй – известь, смешанная с песком, сформированная в плиты и просушенная в автоклаве под действием высоких температур.
Размеры гипсовых пазогребневых плит – 500х667х80 мм. У них более высокие теплоизоляционные свойства и хорошие шумоизоляционные качества. Стандартные размеры силикатных плит – 250х500х70 мм. Они по двум выше обозначенным параметрам уступают, но по прочности гораздо лучше. К тому же силикатный материал хорошо выдерживает влажностные нагрузки. Хотя надо отдать должное производителям гипсовых панелей, которые сегодня предлагают влагостойкие плиты, окрашенные в зеленоватый цвет. Так что при выборе не ошибетесь. Размеры гидрофобизированных блоков – 300х900х80 мм.
Добавим, силикатные пазогребневые блоки выпускаются разной толщины, что удобно в плане подборки материала для перегородки относительно прочности сооружения и такого показателя, как несущая способность конструкции. Параметр толщины: 70, 88, 115 мм.
Во всем остальном две разновидности являются обладателями практически одинаковых характеристик:
- не гниют,
- не деформируются,
- не горят,
- не выделяют вредных для человека веществ,
- имеют ровную поверхность.

Пазогребневые плиты
Технология монтажа
Необходимо сразу оговориться, что монтаж пазогребневых плит надо начинать после того, как будут закончены строительные работы, связанные с выравниванием несущих конструкций: стен, пола, потолка. Для проведения работ придется подготовиться.
Материалы:
- пазогребневые плиты,
- гипсовый клей,
- грунтовка,
- скобы для крепления материала к стенам и полу,
- саморезы и дюбели.
Инструменты:
- шпатели,
- строительный уровень,
- емкость для разведения клеевого состава,
- строительный миксер,
- ножовка,
- шуруповерт.
Подготовительный этап
Кроме подготовки необходимых материалов и инструмента надо подготовить пол. Он уже выровнен, остается только нанести на него разметку места расположения будущей перегородки, обеспылить и прогрунтовать. Так делают всегда в независимости бетонный пол или деревянный.
Касаемо разметки, то ее можно проводить прямо по поверхности напольного основания и по стенам, нанося маркером или карандашом параллельные линии, определяющие толщину пазогребневой плиты.
Дополнительно можно с одной стороны на высоте 30 см натянуть прочную нить, которая будет показывать плоскость границы установки плитного материала первого ряда.
Монтажный процесс
Основное требование к монтажу пазогребневых плит – правильно провести кладку первого ряда, учитывая горизонтальное и вертикальное расположение каждой плиты, которые лягут в основу расположения перегородки. Но начинать придется с приготовления клея. Его просто порционно засыпают в ведро с водой, перемешивая строительным миксером. Пропорции указываются на упаковке клеевой смеси.
Приготовления клеевого состава точно по рецептуре, указанной на мешке
На стену и на пол по месту установки первой пазогребневой плиты наносится клеевой раствор небольшими мазками с помощью маленького шпателя.
Нанесение клея на стены и на пол по месту монтажа плит
Теперь можно устанавливать плиту гребнем вверх, проверяя его на горизонтальность установки с помощью строительного уровня. Панель прижимается к стене и к полу.
Ровное напольное основание – гарантия точного выставления панели по горизонтали.
Проверка пазогребневой плиты на горизонтальность с помощью уровня
Торец плиты обрабатывается клеем. Он же наносится на пол под установку второго элемента для кладки перегородки.
Торец первой плиты обмазывается клеем
Обе плиты проверяются длинным правилом на ровность в одной плоскости. Делать это надо обязательно, даже если плитный материал строго укладывается по размеченным линиям. Небольшой перекос может привести к большим расхождениям в конце перегородки. Так что лучше потратить пару минут на проверку, чем переделывать большой объем работ.
Плиты между собой проверяются длинным правилом
Так проводится кладка первого ряда перегородки из пазогребневых плит с установкой всех элементов по намеченным линиям. После чего можно собирать следующие ряды. Монтаж второго ряда начинается с цельной плиты, которая устанавливает так, чтобы впоследствии стыки между панелями не совпали в разных рядах.
То есть, установка производится со смещением, лучше в половину панели.
Верхняя плита укладывается во втором ряду так, чтобы стык двух элементов первого ряда попал посередине
Пространство между стеной и перегородкой заполняется куском пазогребневой плиты, которую вырезают ножовкой из цельного элемента. Нужно просто точно замерит размер под установку.
Пазогребневые плиты легко режутся обычной ножовкой
Чтобы усилить конструкцию, рекомендуется плиты, расположенные у стен и опирающиеся на напольное основание, закрепить к несущим конструкциям металлическими монтажными уголками (скобами), саморезами и дюбелями. Для этого нужно уголок приставить, например, к стене, одним саморезом прикрепить его шуруповертом к плите, другим к поверхности стены.
Крепление пазогребневой плиты к стене с помощью монтажного уголка и саморезов
Сооружение дверного проема
Монтаж перегородок из пазогребневых плит подразумевает сооружение и дверного проема. Для этого на стадии нанесения разметки необходимо обозначить место расположения проема.
Именно до него и надо будет собирать перегородку: с одной стороны или с двух. Основная задача после сборки – обозначить и сформировать верхний ряд, расположенный над дверным проемом. Для этого в двух возведенных стенах надо сделать пазы для закладного бруса (перемычки). Их просто вырезают ножовкой.
Паз для закладного бруса
Перемычка укладывается на клеевой состав, им же заполняется паз полностью. Важно на стадии разметки пазов выставить их так, чтобы закладная деталь легла в них горизонтально. После чего можно переходить к монтажу плит. Здесь все также, брус торец прилежащей стены обмазывается клеем, после чего пазогребневые плиты устанавливаются по месту назначения.
Формирование дверного проема посредству установки пазогребневых плит на закладной брус
Когда с дверным проемом покончено, можно переходить к последнему монтажному этапу – заделке зазора между перегородкой из пазогребневых плит и потолком. Обычно щель получается не очень большой, поэтому самый простой вариант запенить ее монтажной пеной.
Можно использовать клеевой состав, шпаклевку.
Заполнение зазора между перегородкой и потолком монтажной пеной
Если требуется довести стену из пазогребневых плит точно до потолка с последующей чистовой отделкой, тогда с одной стороны зазор замазывается штукатурным раствором, с другой стороны заполняется пеной, и там же замазывается штукатуркой. Простое запенивание используется лишь в том случае, когда помещение, разделенное перегородкой, будет оформляться натяжной или подвесной потолочной конструкцией.
Перегородка из пазогребневых плит – это ровная поверхность, которую не нужно выравнивать штукатуркой. Ее подготавливают небольшим слоем шпаклевки, которая придает поверхности максимальную гладкость.
Нюансы монтажного процесса
Любая перегородка – это наличие углов: внешних и внутренних. Они подвергаются определенным нагрузкам, к тому же к ним всегда есть претензии в плане отделки. Поэтому внешние углы рекомендуется закрыть пластиковыми угловыми профилями перфорированного типа, которые не только будут создавать ровность внешнего угла, но и будут своеобразной защитой от появления сколов при незначительных ударах.
Используют уголок размером 30х30 мм.
- На угол дверного проема перегородки наносится слой шпаклевки.
- Уголок вдавливается в раствор до упора.
- Сверху наносится еще один шпаклевочный слой до полного выравнивания.
Для проведения этой операции рекомендуется использовать угловой шпатель. Если длины одного уголка не хватило, подрезается недостающий отрезок длиною на 3-5 см больше требуемой длины. Потому что два стыкуемых пластиковых элемента соединяются внахлест.
Проблема внутренних углов – трещины. Бороться с ними можно одним способом – лентой-серпянкой.
- Сначала в угол наносится слой шпаклевки.
- По не засохшему раствору тут же укладывается серпянка, которую вдавливают до упора.
- Верхний выравнивающий шпаклевочный слой.
Для заделки внутренних углов можно использовать самоклеящиеся ленты. При их применении шпаклевкой можно не пользоваться.
Если перегородки сооружаются из нескольких стен, которые между собой составляют ломаную конструкцию под прямыми углами, то стыковать их надо между собой не только с помощью клеевого состава, но и при помощи самих пазогребневых блоков.
Их устанавливают в перпендикулярных плоскостях друг на друга. Для этого гребень нижних панелей подрезается под пазы верхних так, чтобы верхние блоки плотно ложились на нижние.
Правила стыковки пазогребневых панелей в местах сочленения двух стен
Если перегородка из пазогребневых блоков собирается на бетонном полу, то крепить ее к основанию с помощью металлических скоб, нет надобности. Клеевой состав – гарант прочного крепления. Если пол деревянный, тогда без монтажных уголков не обойтись. В этом случае можно даже не использовать клей между блоками и полом.
Обязательно посмотрите видео:
устройство и возведение, а также установка шумоизоляции
Если возникла необходимость зонирования помещения, то одним из вариантов создания перегородки, является использование пазогребневых плит.
Это сравнительно новый строительный материал, который позволяет максимально упростить возведение перегородки, его установка проводится просто и быстро.
Что собой представляют гипсовые плиты?
Указанный строительный материал имеет вид монолитных плит, у которых точные геометрические параметры, между собой они соединяются при помощи пазогребневого замка. Для изготовления таких плит используется строительный гипс, они могут быть обычными или влагостойкими.
Так как для создания таких плит используется строительный гипс, они могут «дышать», не горят, не выделяют вредных веществ, не имеют запаха, поэтому идеально подходят для возведения межкомнатных перегородок и декоративных для зонирования пространства в офисе.
Стандартный размер плиты 667х500х80 мм, они имеет площадь 0,333 см2, вес около 29 кг.
Для создания одного квадратного метра гипсовой перегородки понадобится всего 3 плиты, что позволяет проводить монтаж перегородок просто и быстро. В отличии от создания перегородки из гипсокартона, не нужно монтировать каркас и заполнительДостоинство данного материала и в том, что получается ровная и гладкая поверхность, вам достаточно только заделать швы и можно будет клеить обои, красить или класть плитку.
Монтаж
Перед проведением монтажа перегородки из плит, надо проверить состояние основания. Оно должно быть прочным, горизонтальным и неподвижным. Если старая стяжка не отвечает таким требованиям, делают новую. Технология монтажа напоминает создание перегородки из полистиролбетонных блоков
Перепады высоты основания не должны превышать 1 см, если это не выполняется, то проводят его выравнивание.
Для проведения монтажа пазогребневой перегородки, вам надо иметь такие инструменты и материалы:
- пазогребневые плиты;
- клеящий состав;
- прокладки, они могут быть войлочными или пробковыми;
- шпаклевка;
- строительный миксер или дрель со специальной насадкой;
- ножовка;
- уровень;
- отвес;
- правило;
- измерительные инструменты;
- резиновый молоток;
- шпатель;
- клинья.
Перед началом проведения монтажа плит, основание необходимо очистить от мусора, пыли, после чего его покрывают его слоем грунтовки.
Проведение разметки будущей перегородки можно делать после того, как высохнет слой грунтовки.
Отмечают двери, а для облегчения выполнения монтажных работ, можно натянуть шнур.
Разметку наносят на стены и потолок, для чего используют отвес и уровень.
Теперь можно готовить раствор, для этого в емкость набирают воду и постепенно засыпают сухую смесь, постоянно все хорошо перемешают, делают это миксером или дрелью со специальной насадкой. Состав должен настояться несколько минут и можно приступать к монтажу плит.
Готовить клей необходимо небольшими порциями с расчетом того, чтобы вам его хватило на 30-40 минут работы.
Можно выполнять укладку плит сразу на пол, тогда у вас получится жесткое крепление. Клей аккуратно наносят на горизонтальные и вертикальные поверхности, в среднем на монтаж 1м2 стены вам понадобится 1,5- 2 кг клея.
При использовании второго способа, укладка плит выполняется на специальную пробковую прокладку, что позволяет увеличить звукоизоляцию стен.
Для этого используют ленту шириной 7,5 см, которая проклеивается по периметру перегородки.
Прокладка монтируется на клей, проверяется ее горизонтальность и надо дать 20-30 минут, чтобы она хорошо зафиксировалась.
Укладка плит может проводиться как вверх, так и вниз пазом, но более удобно его располагать вверх, так как клей проще наносить в паз, чем на гребень.
В этом случае, на всех плитах, используемых для монтажа первого ряда, необходимо удалить гребень, делают это зубилом или ножовкой, а затем рубанком выравнивают плоскость.
Кладка плит проводится аналогично кладке кирпича или шлакоблока: клей наносят на основание, устанавливают плиту, осаживают резиновым молотком и проверяют ее горизонтальность. При необходимости выравнивания, можно использовать клинья.
Первый ряд пазогребневых плит надо укладывать правильно, проверять его вертикальность и горизонтальность, так как он будет служить основанием всей перегородки.
Во время монтажа следующих рядов, клей необходимо наносить как на горизонтальные, так и на боковые стороны, чтобы плиты надежно соединялись со всех сторон.
Толщина шва составляет около 2 мм, весь лишний клей, который выступил за пределы плиты, убирают при помощи шпателя.
Для проведения проводки, в таких перегородках делают штробы, а для установки розеток, высверливают отверстия специальной насадкой, установленной на электродрель.
Если необходимо установить трубы большого диаметра, тогда монтируют двойную перегородку.
Устройство шумоизоляции
Производители указывают, что коэффициент звукоизоляции стандартной пазогребневой плиты толщиной 80 мм, составляет 43 дБ, что является достаточным показателем для создания в помещении комфортных условий.
На практике, этот показатель часто бывает ниже, поэтому для увеличения шумоизоляционных характеристик такой конструкции, рекомендуется проводить ее дополнительное звукоизолирование.
Для этого используют материалы, имеющие хорошие звукоизоляционные характеристики. Специальные мембраны можно клеить непосредственно на поверхность стены.
Чтобы максимально защитить комнату от шума, такие мембраны клеят с обеих сторон стены. Это позволяет увеличить коэффициент звукоизоляции до 30 дБ.
Если у вас есть возможность создать широкую стен, то создают двойную перегородку из пазогребневых блоков и между стенами укладывают утеплитель, обычно это минеральная вата.
Этот способ позволяет получить высокие звукоизоляционные характеристики и надежно защитить комнату от постороннего шума.
Советы специалистов
Возведение своими руками прочной и надежной гипсовой перегородки, требует наличие опыта в строительных работах, если его нет, — придерживайтесь следующих советов специалистов:
- во время установки перегородок из гипсовых плит, не стоит спешить. Некоторые люди указывают на то, что перегородку из пазогребневых плит можно сделать за день.
Лучше дать, чтобы первый ряд хорошо застыл, а потом переходить к монтажу следующих рядов; - учтите, что во время распила плит образуется достаточно много пыли, поэтому приготовьтесь к тому, чтобы у вас было чем ее убирать;
- прочность материала позволяет вешать на такую стену полки или телевизор, а вот вес шкафа они уже не выдержат.
Вывод
Если вам очень важны звукоизоляционных характеристики стены, то их можно увеличить путем создания двойных перегородок, между которыми укладывают утеплитель или покрыть стену шумопоглощающими материалами.
Придерживайтесь инструкции, и вы сможете своими руками создать межкомнатную перегородку в доме, которая будет иметь высокие прочностные и звукоизоляционные характеристики. Или выполнить декоративную перегородку для зонирования комнаты
Полезное видео
Технологию монтажа пазогребневых плит ВОЛМА смотрите на видео:
? C5rh & Y9FB! NdG5L> _3pWd6 / N% 5Ce + OIV! / W * IJj_JcfXE ?) Ln’VON4! BALN
GE PGP959SETSS Инструкция по установке — страница 1 из 32
1
31-10807 (07-11 GE)
ПЕРЕД НАЧАЛОМ
Внимательно прочтите эту инструкцию
.
•
ВАЖНО
— Сохраните эту инструкцию
для использования местным инспектором.
•
ВАЖНО
— Соблюдайте все действующие нормы и правила
.
• Примечание для установщика — не забудьте оставить эти инструкции
потребителю.
• Примечание для потребителя — сохраните эти инструкции для обращения к
в будущем.
• На отказ продукта из-за неправильной установки
не распространяется Гарантия.
ПРЕДУПРЕЖДЕНИЕ
— Этот прибор должен быть правильно заземлен
.
•
ВАЖНО
— Испытание на герметичность прибора
должно проводиться в соответствии с инструкциями производителя
.
• За правильную установку отвечает установщик
, и отказ продукта из-за неправильной установки
НЕ покрывается гарантией.
В СОДРУЖЕСТВЕ
MASSACHUSETTS:
• Этот продукт должен быть установлен лицензированным сантехником
или газовым монтажником.
• При использовании шаровых газовых запорных клапанов
должны быть с Т-образной рукояткой.
• Гибкий газовый соединитель при использовании не должен превышать
более 3 футов.
Вопросы? Позвоните по телефону 800.GE.CARES (800.432.2737) или посетите наш веб-сайт по адресу: ge.com
В Канаде позвоните по номеру 1.800.561.3344 или посетите наш веб-сайт: www.geappliances.ca
Установка
30 ″ Герметичная газовая варочная панель
Инструкции
PGP953, PGP959, CGP350
FORET
ПРЕДУПРЕЖДЕНИЕ
— Если не соблюдать в точности информацию
в данном руководстве, может произойти пожар,
взрыв или утечка газа, что приведет к повреждению имущества
или травмам или смерть.
Не храните и не используйте бензин или другие легковоспламеняющиеся пары и жидкости
вблизи этого или любого другого прибора
!
ЧТО ДЕЛАТЬ ПРИ ЗАПАХЕ
ГАЗ:
• Не пытайтесь зажечь какой-либо прибор. Не касайтесь
любого электрического переключателя; не используйте телефон
в вашем здании.
• Немедленно позвоните своему поставщику газа с соседского телефона
.Следуйте инструкциям поставщика газа
.
• Если вы не можете связаться с поставщиком газа, позвоните в пожарную службу
.
Монтаж и обслуживание должны выполняться квалифицированным установщиком, сервисным агентством или поставщиком газа
.
Эта варочная панель сертифицирована UL. Вы найдете
мер безопасности в Руководстве пользователя.
Внимательно прочтите их.
• Установка этой варочной панели должна соответствовать местным нормам
или в отсутствие местных норм
Национальным кодексам по топливному газу, ANSI Z223.1 / NFPA
54 – Последнее издание.
• Убедитесь, что ваша варочная панель установлена правильно квалифицированным установщиком
или техником по обслуживанию.
• Во избежание касания горелок над поверхностью следует избегать хранения в шкафу
над горелкой.
• Не устанавливайте устройство возле внешней двери или
, где сквозняк может повлиять на его использование.
ПРЕДУПРЕЖДЕНИЕ
— Перед установкой отключите все электрическое питание
на главном автоматическом выключателе или блоке предохранителей
.
Установка
При первом запуске установите программное обеспечение в следующей последовательности (требуется доступ в Интернет):
- Программное обеспечение для хранения данных (Сервер).

- Программа для сбора данных с ПК (Grabber).
- Программа для просмотра (Viewer).
Для пробного запуска все три программы могут быть установлены на одном ПК.
Установка в MAC OS
Установочные файлы
Установите файл и следуйте инструкциям мастера установки.
Установка в Windows
Установочные файлы
Для 32-битной Windows:
- Сервер
- Захват
- Зритель
Для 64-битной Windows ::
- Сервер
- Захват
- Зритель
Установка сервера
Для установки сервера выполните следующие шаги:
- Запустить узел файла установки.x32.msi (или node.x64.msi для 64-разрядной ОС) на ПК, который будет выступать в качестве сервера для программного пакета Kickidler на вашем предприятии.
- Примите условия лицензирования.
- Введите ключ активации.
- Настроить доступ в Интернет (если у вашей компании доступ в Интернет через прокси-сервер).

Если вам не нужны дополнительные настройки, выберите « Без дополнительных настроек » и нажмите « Далее ».
Для автоматического определения прокси (в настройках ОС) выберите « Использовать системный прокси-сервер », введите разделенный запятыми список исключений для локальных адресов (если это необходимо) и нажмите « Далее ».
Для ручной настройки прокси выберите « Ручные настройки прокси ».
Во время настройки вручную вам необходимо указать протокол: SOCKS5 или HTTP и ввести соответствующие значения в поля « Адрес » и « Порт ».
Если необходимо, введите список исключений для локальных адресов, разделенных запятыми.
Внимание! Сервер не может работать по протоколу HTTPS.
Если прокси-сервер может обрабатывать только авторизованные подключения, установите флажок « Использовать аутентификацию » и введите правильные значения в поля « UIN » и « PWD ».
Щелкните « Next », чтобы продолжить.
- Выберите тип хранилища.
Если ваша компания не использует базу данных или вы не знаете, что это такое, выберите встроенную базу данных в качестве хранилища.
Когда вы выбираете встроенную базу данных в качестве хранилища, будет использоваться PostgreSQL, связанный с сервером. Щелкните « Next », чтобы продолжить установку.
Если у вашей компании есть собственное хранилище базы данных, оптимизированное для кластеров, со встроенными функциями безопасности, вы, вероятно, будете заинтересованы в использовании внешних механизмов базы данных.
При выборе внешнего ядра базы данных база данных PostgreSQL не будет установлена в процессе установки. На следующем шаге вам нужно будет ввести следующие данные, чтобы установить соединение с базой данных:
- адрес сервера,
- порт,
- имя пользователя,
- пароль,
- имя базы данных.

Пример создания базы данных и пользователя СОЗДАТЬ РОЛЬ kickidler_node ПАРОЛЬ ВХОДА 'scout'; СОЗДАТЬ БАЗУ ДАННЫХ kickidler_node OWNER kickidler_node ENCODING 'UTF8' TEMPLATE template0;
Щелкните кнопку « Test ».
Если невозможно подключиться к БД с введенными данными или если невозможно развернуть необходимую инфраструктуру в указанной базе данных, появится диалоговое окно с диагностикой возможных ошибок. Если проверка прошла успешно, введенные данные для подключения будут зафиксированы во избежание изменений. Щелкните « Edit », чтобы сбросить результаты теста и разблокировать данные соединения. Щелкните « Next », чтобы продолжить установку.
- Укажите путь установки. Подтвердите установку на вашем компьютере.
Внимание! Путь установки должен быть только латинским. В противном случае сервер не может запуститься правильно.
- По завершении установки щелкните « Finish », чтобы закрыть мастер.

Установка захвата
Для установки Grabber выполните следующие шаги:
- Запустите установочный файл grabber.x32.msi (или grabber.x64.msi для 64-битной ОС) на ПК сотрудника, который будет отслеживаться.
- Примите условия лицензирования.Продолжаем установку.
- Введите ключ активации.
- Настроить доступ в Интернет (если у вашей компании доступ в Интернет через прокси-сервер).
Если вам не нужны дополнительные настройки, выберите « Без дополнительных настроек » и нажмите « Далее ».
Для автоматического определения прокси (в настройках ОС) выберите « Использовать системный прокси-сервер », введите разделенный запятыми список исключений для локальных адресов (если это необходимо) и нажмите « Далее ».
Для ручной настройки прокси выберите « Ручные настройки прокси ».
Во время настройки вручную вам необходимо указать протокол: SOCKS5 или HTTP и ввести соответствующие значения в поля « Адрес » и « Порт ».
Если необходимо, введите список исключений для локальных адресов, разделенных запятыми.
Внимание! Сервер не может работать по протоколу HTTPS.
Если прокси-сервер может обрабатывать только авторизованные подключения, установите флажок « Использовать аутентификацию » и введите правильные значения в поля « UIN » и « PWD ».
Щелкните « Next », чтобы продолжить.
- Выберите скрытый режим работы Grabber (если он вам нужен) и нажмите « Next ».
- Укажите путь установки. Подтвердите установку на вашем компьютере.
- По завершении установки нажмите « Finish », чтобы закрыть мастер.
Установка программы просмотра
Для установки Viewer выполните следующие шаги:
- Запустить программу просмотра установочных файлов.x32.msi (или viewer.
x64.msi для 64-битной ОС) на ПК сотрудника, который будет контролировать. - Примите условия лицензирования. Продолжаем установку.
- Введите ключ активации.
- Настройте доступ в Интернет (если у вашей компании доступ в Интернет через прокси-сервер).
Если вам не нужны дополнительные настройки, выберите « Без дополнительных настроек » и нажмите « Далее ».
Для автоматического определения прокси (в настройках ОС) выберите « Использовать системный прокси-сервер », введите разделенный запятыми список исключений для локальных адресов (если это необходимо) и нажмите « Далее ».
Для ручной настройки прокси выберите « Ручные настройки прокси ».
Во время настройки вручную вам необходимо указать протокол: SOCKS5 или HTTP и ввести соответствующие значения в поля « Адрес » и « Порт ».
Если необходимо, введите список исключений для локальных адресов, разделенных запятыми.
Внимание! Сервер не может работать по протоколу HTTPS.
Если прокси-сервер может обрабатывать только авторизованные подключения, установите флажок « Использовать аутентификацию » и введите правильные значения в поля « UIN » и « PWD ».
Щелкните « Next », чтобы продолжить.
- По завершении установки щелкните « Finish », чтобы закрыть мастер.
Особенности установки в Windows Vista
Из-за особенностей Windows Vista могут возникнуть проблемы с установкой msi-файлов.
Если процесс установки не начинается после запуска файла, выполните следующие процедуры для установки программного компонента:
- Запустить командную строку от имени администратора (Пуск — cmd — пункт контекстного меню «Запуск от имени администратора»),
- Перейдите к папке с установочным файлом: в командной строке введите следующую команду: cd «C: \% имя папки с установочным файлом%» (e.
g., cd «C: \ Programfiles»), Введите команду: msiexec / i% имя файла с суффиксом msi% .msi (например, msiexec /igrabber.x32.msi),
- Следуйте инструкциям установщика.
Особенности установки в Windows XP
Обратите внимание, что на данный момент только Grabber может быть установлен на Windows XP.
Рекомендуется установить Сервер и Просмотрщик в операционной системе в соответствии с системными требованиями.
Установка GNU / Linux
На данный момент вы сможете установить компоненты Kickidler в следующих дистрибутивах:
- Debian: 7.0 (хриплый), 8.0 (джесси), 9.0 (растягивающийся), debian 10 (buster)
- Ubuntu: 12.04 (точный), 14.04 (надежный), 14.10 (утопический), 15.04 (яркий), 15.10 (хитрый), 16.04 (ксенитальный), 17.04 (пикантный запус), 17.10 (хитрый трубкозуб), 18.04 (бионический бобр) , 18,10 (космические каракатицы), 19,04 (диско-динго), 19,10 (горностай), 20.
04 (фокальная ямка). - Linux Mint: 13 (майя), 17 (qiana), 17.1 (ребекка), 17.2 (рафаэла), 17.3 (роза), 18 (сара), 18.1 (серена), 18.2 (сонья), 18.3 (сильвия), 19 (тара), 19,1 (тесса), 19,2 (тина)
- CentOS / RHEL 6.7 (только сервер)
- CentOS / RHEL 7
- Fedora 22, 23
Установка в системах на базе Deb
Внимание! Перед установкой Сервера в Ubuntu Precise вам необходимо добавить репозиторий «Глобальной группой разработчиков PostgreSQL».Инструкции можно найти здесь.Проверить версию можно с помощью команды
lsb_release -a
Для установки выполните следующие действия:
Все команды запускаются от имени root
- Добавьте GPG-ключ Kickidler как доверенный:
curl http://deb.kickidler.com/generic/repo.gpg | apt-key добавить -
- Добавить репозиторий в список источников APT:
echo "deb http: // deb.kickidler.com/generic stable non-free "> /etc/apt/sources.list.d/kickidler.list
- Перезагрузить локальный кеш APT:
apt-get update
- Установите необходимые продукты:
apt-get install kickidlernode - Установка сервера apt-get install kickidlerviewer - установка программы просмотра apt-get install kickidlergrabber - установка Grabber
При установке вам потребуется
Установка в системах на базе RPM
Проверить версию можно с помощью команды
lsb_release -a
При установке вам потребуется
- Добавить репозиторий
Для CentOS, RHEL, Fedora (22, 23) (для этих систем необходимо установить пакет yum-utils): # yum-config-manager --add-repo http: // rpm.kickidler.com/kickidler.repo Для версии Fedora, которая больше или равна 22: # dnf config-manager --add-repo http://rpm.kickidler.com/kickidler.repo
- Установить сервер
Внимание! Активируйте EPEL, если вы используете версию CentOS / RHEL, которая больше или равна 6:
yum install epel-release
При установке вам потребуется
- Установите версию ODBC postgresql, которая больше или равна 9.3
Внимание! Если вы используете дистрибутивы, для которых необходимая версия PostgreSql отсутствует в официальных репозиториях (CentOS / RHEL 6.7 или 7), вы можете воспользоваться инструкцией.
- Создать пользователя и базу данных
# su postgres -c "psql -c \" СОЗДАТЬ РОЛЬ kickidler_node ПАРОЛЬ ВХОДА 'scout'; \ "" # su postgres -c "psql -c \" СОЗДАТЬ БАЗУ ДАННЫХ kickidler_node OWNER kickidler_node ENCODING 'UTF8' TEMPLATE template0; \ ""
- Настроить режим аутентификации для localhost в md5
В файле / var / lib / pgsql / 9.3 / data / pg_hba.conf необходимо изменить строки из: хост все все 127.0.0.1/32 идент хост все все :: 1/128 идент кому: разместить все все 127.0.0.1/32 md5 хост все все :: 1/128 md5
- Перезапустить службу после изменений
Пример для дистрибутивов с systemd (необходимо использовать служебные или init-скрипты для CentoOS / RHEL 6.7):
# systemctl перезапуск postgresql-9.3
- Установить пакет и установить ключ активации
# yum install kickidlernode # /opt/KickidlerNode/bin/configure.sh
- Убедитесь, что настройки подключения к ODBC и доступа к базе данных, указанные в /opt/KickidlerNode/config/node.ini, соответствуют текущим настройкам
- Активировать и запустить службу
Для CentOS / RHEL 6.7: # chkconfig kickidlernode on # запуск службы kickidlernode Для дистрибутивов с systemd: # systemctl enable kickidlernode.service # systemctl start kickidlernode.service
- Установить Grabber
При установке вам потребуется
# yum install kickidlergrabber
# / opt / TeleLinkSoftHelper / bin / configure.sh
# systemctl enable kickidlergrabber.service
# systemctl start kickidlergrabber.service
- Установить программу просмотра
При установке вам потребуется
# yum install kickidlerviewer
# /opt/KickidlerViewer/bin/configure.sh
Запустить Viewer можно из графического меню раздела «Интернет» или с помощью консольной команды kickidlerviewer.
Настройки для гетерогенных сетей
Для обеспечения производительности программы за пределами локальной сети, когда Сервер не имеет внешнего адреса (например, находится за NAT или брандмауэром), настройки сетевого оборудования должны быть настроены таким образом, чтобы входящие TCP-соединения на одном из портов внешнего адреса перенаправляются на адрес сервера в локальной сети и на порт, указанный в параметре порта в файле конфигурации сервера.
При запуске Сервер автоматически пытается настроить доступность сети с помощью переадресации портов.Настройка осуществляется на uPnP, IGD и NAT-PMP.
Внимание! Если автоматической настройки не произошло, напишите на help@kickidler.com и не забудьте указать в письме модель вашего роутера.
Эта настройка выполняется автоматически. Если вы не хотите, чтобы сервер самостоятельно настраивал доступность сети, вам следует отключить на маршрутизаторе протоколы uPnP, IGD и NAT-PMP.
Вы также можете сделать это вручную, выполните следующие действия:
- Проверьте порт, указанный в файле конфигурации сервера
Для этого нужно открыть узел.ini, расположенный в каталоге C: / ProgramFiles / KickidlerNode / config, и просмотрите первую строку port = «» (обычно указывается порт 7906, но это не всегда так).
- Сделать трассировку в командной строке до любого внешнего адреса
Для этого нужно войти в командную строку (открыть команду «Выполнить», нажав WIN + R, набрать там cmd и нажать «ОК»), набрать там tracert ya.
ru и нажать Enter. Подождите, пока трассировка не закончится. У вас должно получиться примерно следующее:
Если у вас нет маршрутизатора, скорее всего, первым будет адрес местного интернет-провайдера.В этом случае вам необходимо связаться с интернет-провайдером на этом этапе и попросить его перенаправить порт.
- Перенаправить порт на первый адрес из результатов трассировки
Введите первый адрес (адрес вашего маршрутизатора) в браузере и в настройках добавьте переадресацию портов для входящих TCP-соединений через порт, указанный в файле конфигурации сервера (пункт 1 текущей инструкции) перед вашим IP-адресом. Вы можете найти свой IP-адрес в командной строке, набрав ipconfig и нажав Enter.
Вы можете найти подробные инструкции по перенаправлению портов для модели вашего роутера здесь.
Установка через групповую политику Active Directory
Для организаций существует возможность групповой установки ПО на все компьютеры в домене.
Для установки программы через групповую политику выполните следующую процедуру:
- Войдите в учетную запись пользователя на сайте и перейдите в раздел Настройки,
- Нажмите кнопку «файлы для массовой установки»,
- В открывшемся окне выберите файл, который вы хотите установить с AD,
- Нажмите кнопку «Загрузить» и дождитесь завершения загрузки,
- Поместите установочный файл в общую папку,
- Открыть оснастку управления групповой политикой (Пуск — Администрирование — Управление групповой политикой),
- Щелкните правой кнопкой мыши узел дерева «Лес — Домены — [Ваш домен] — Объекты групповой политики» и выберите «Создать»,
- Задайте имя для объектов групповой политики,
- В правой части панели на вкладке «Регион» в группе «Фильтры безопасности» удалите «Прошедшие проверку» и добавьте «Компьютеры домена» (вы также можете выбрать определенные компьютеры в домене),
- Щелкните правой кнопкой мыши созданный объект групповой политики и выберите «Изменить»,
- Выберите «Конфигурация компьютера — Политики — Конфигурация программы»,
- Щелкните правой кнопкой мыши справа и выберите «Создать — Пакет»,
- Выберите установочный файл в общей папке (см.
Шаг 2), - Выберите «Назначено» в качестве режима запуска приложения,
- Закрыть окно свойств объекта групповой политики,
- Щелкните правой кнопкой мыши [Ваш домен] и выберите «Связать существующий объект групповой политики»,
- Выберите созданный объект групповой политики и нажмите «ОК»,
- Перезагрузите компьютеры в домене, чтобы применить групповую политику.
Настройка прокси
Если выход в Интернет в вашей компании осуществляется через прокси-сервер, для нормальной работы программного комплекса Kickidler требуется дополнительная настройка при установке.
Совместимость
Работа программных компонентов поддерживается по протоколам SOCKS5 и HTTP.
Внимание! Программные компоненты не могут работать по протоколу HTTPS.
Возможности настройки Grabbers и Viewers
Настройка Grabbers и Viewers для работы через сервис сетевого прокси производится во время установки.
При необходимости вы можете редактировать параметры прокси с помощью переменной «proxy» (в разделе [network]) конфигурационного файла (unit. *. Stable.ini) в следующем формате:
[сеть] прокси = протокол: // [имя пользователя: пароль @] имя хоста: порт # прокси = авто # proxy = none
Вы можете выбрать «http» или «socks5» в качестве протокола. Комбинацию «имя пользователя: пароль» можно не указывать, если прокси-сервер принимает соединения без авторизации. Требуется комбинация «имя хоста: порт». Вы можете использовать специальные значения «none» и «auto» вместо URL для отключения прокси и автоматического использования системных настроек прокси соответственно.Когда используется значение «none» или переменная опущена, Viewer или Grabber будут работать без прокси.
Некоторые прокси-серверы могут разорвать соединение, если в течение некоторого времени нет активности (например, трафика). Чтобы избежать этой ситуации, устройство, работающее через службу сетевого прокси, будет автоматически отправлять пакеты «пинг-понг» примерно каждые 30 секунд.
Вы можете настроить периодичность отправки пакетов с помощью переменной heartBeat в конфигурационном файле (секция [сеть]). Эта переменная хранит приблизительные промежутки времени между отправкой пакетов в секундах.Чтобы отключить эту функцию, вы можете установить ноль в качестве значения переменной. Временные интервалы отправки и содержание пакетов «пинг-понг» рандомизированы.
Примеры:
[сеть] прокси = нет heartBeat = 0
[сеть] прокси = http: //192.168.19.56: 8888 heartBeat = 300
[сеть] прокси = авто heartBeat = 120
Операционные аспекты сетевого прокси
Если для Сервера выбрана услуга сетевого прокси, она будет использоваться только для исходящих соединений.Настройки прокси для входящих подключений будут проигнорированы. Для справки: Grabber и Viewer будут использовать прокси-сервер для всех подключений.
Локальный сервер лицензий
Локальный сервер лицензий был разработан для клиентов, которые не могут использовать Интернет для работы программы.
Локальный сервер лицензий поставляется в виде программы для ОС Linux с ключами для активации.
Программа должна быть установлена на компьютере с 64-битной архитектурой.
Компьютеру, на котором вы будете развертывать свой локальный сервер, необходимо как минимум 2 ГБ оперативной памяти.
Подробную информацию об ограничениях, покупке и использовании локальной версии программного комплекса Kickidler Вы можете узнать в отделе продаж: sales@kickidler.com.
| Цементная плита AQUAPANEL® Подложка для напольной плитки | Август 2017 | Tooteleht | |
| Цементная плита AQUAPANEL® Indoor | Яануар 2018 | Tooteleht | |
| Цементная плита AQUAPANEL® Outdoor | Август 2017 | Tooteleht | |
| AQUAPANEL® Fassaadikrunt | Veebruar 2019 | Tooteleht | |
| AQUAPANEL® Fassaadikrunt | Veebruar 2019 | Tooteleht | |
| АКВАПАНЕЛЬ® Макси Крувид | Август 2017 | Tooteleht | |
| AQUAPANEL® Q4 Finish valmispahtel | Veebruar 2019 | Tooteleht | |
| AQUAPANEL® Sünteetiline emulsioon | Август 2017 | Tooteleht | |
| AQUAPANEL® Valge tsementpahtel | Veebruar 2019 | Tooteleht | |
| АКВАПАНЕЛЬ® армеэримискангас | Август 2017 | Tooteleht | |
| АКВАПАНЕЛЬ® контроллер-люугид | Август 2016 | Tooteleht | |
| AQUAPANEL® vuugi-ja pinnapahtel valge | Veebruar 2019 | Tooteleht | |
| АКВАПАНЕЛЬ® vuugiliim | Veebruar 2019 | Tooteleht | |
| АКВАПАНЕЛЬ® вуугилинт (10 см) | Октябрь 2017 | Tooteleht | |
| AQUAPANEL® vuugipahtel hall | Veebruar 2019 | Tooteleht | |
| Alux-nurgakaitselint | Август 2015 | Tooteleht | |
| Autol | ноябрь 2016 | Tooteleht | |
| Баугипс | Ноябрь 2019 | Tooteleht | |
| Betokontakt | Juuni 2018 | Tooteleht | |
| Cleaneo Akustik UFF | Дец. 2017 г. | Tooteleht | |
| Cleaneo UP | сентябрь 2014 | Tooteleht | |
| Conni S | Märts 2019 | Tooteleht | |
| DANOloft | 2020 | Tooteleht | |
| Danoline ADIT | Märts 2018 | Tooteleht | |
| Danoline Contrapanel | Ноябрь 2019 | Tooteleht | |
| Danoline Contur | Октябрь 2016 | Tooteleht | |
| Danoline Danotiles | Märts 2019 | Tooteleht | |
| Декорпутц | Май 2016 | Tooteleht | |
| Декорпутц | Октябрь 2020 | Tooteleht | |
| Декорпутц | Октябрь 2020 | Tooteleht | |
| Designpanel | Октябрь 2016 | Tooteleht | |
| Dichtungsband karkassitihenduslint | Veebruar 2016 | Tooteleht | |
| Контроль пыли | Дец. 2017 г. | Tooteleht | |
| Easyputz | ноябрь 2009 г. | Tooteleht | |
| Elektrikergips | Ноябрь 2019 | Tooteleht | |
| FE 50 Largo | Октябрь 2019 | Tooteleht | |
| FP läbiviiguhülss | Märts 2019 | Tooteleht | |
| FP tulekaitsematt | Märts 2019 | Tooteleht | |
| FPC tuletõkkeplaat Knauf | Märts 2019 | Tooteleht | |
| FPG tuletõkkegrafiit | Märts 2019 | Tooteleht | |
| Faserfarbe | Дец. 2016 | Tooteleht | |
| Feuerfestmörtel | Яануар 2020 | Тотелехт | |
| Fill & Finish Light | Октябрь 2015 | Tooteleht | |
| Finishpachtel-Weiss | Juuni 2006 | Tooteleht | |
| Fireboard-Spachtel | Märts 2019 | Tooteleht | |
| Flex-Dicht | Juuli 2015 | Tooteleht | |
| Flächendicht | Veebruar 2016 | Tooteleht | |
| Flächendicht F + Flächendichtband | 2019 | Tooteleht | |
| Flächendichtband | Veebruar 2016 | Tooteleht | |
| Fugenfuller Leicht | апрель 2015 | Tooteleht | |
| Goldband | Октябрь 2020 | Tooteleht | |
| Haftemulsion | Veebruar 2019 | Tooteleht | |
| Хартмут | Veebruar 2009 | Tooteleht | |
| Hooldusvedelik Steinsiegel | Май 2009 | Tooteleht | |
| Хоппер pahtlinõu | Märts 2019 | Tooteleht | |
| Humidboard | 2019 | Tooteleht | |
| K1 | 2014 | Tooteleht | |
| K2 | 2014 | Tooteleht | |
| K3 | 2014 | Tooteleht | |
| K4 | 2014 | Tooteleht | |
| K5 | 2014 | Tooteleht | |
| K6 | 2014 | Tooteleht | |
| KZ Универсалпутц | 2020 | Tooteleht | |
| KZW 700 Kiudarmeerimissegu | Сентябрь 2017 | Tooteleht | |
| Калк-Фейнпутц | 2014 | Tooteleht | |
| Калк-Грундпутц | 2014 | Tooteleht | |
| Kipsplaat Синий | 2016 | Tooteleht | |
| Kipsplaat Коричневый GKF | 2019 | Tooteleht | |
| Kipsplaat Fireboard GM-F | Märts 2012 | Tooteleht | |
| Kipsplaat Formplatte | Jaanuar 2017 | Tooteleht | |
| Kipsplaat GREEN GKBI | 2016 | Tooteleht | |
| Kipsplaat KEK / Hartplatte | 2017 | Tooteleht | |
| Kipsplaat KTS | 2014 | Tooteleht | |
| Kipsplaat Mini белый, зеленый | Märts 2009 | Tooteleht | |
| Kipsplaat RED GKF | 2019 | Tooteleht | |
| Kipsplaat Safeboard | Juuli 2008 | Tooteleht | |
| Сайлентборд Kipsplaat | Veebruar 2012 | Tooteleht | |
| Kipsplaat Белый GKB | 2019 | Tooteleht | |
| Клебер PM | 2012 | Tooteleht | |
| Klebespachtel M liim-armeerimissegu | 2018 | Tooteleht | |
| Klebespachtel P | 2018 | Tooteleht | |
| Klinker ja Cotto Oli | 2009 | Tooteleht | |
| Контроллер-люугид REVO | Veebruar 2010 | Tooteleht | |
| Контрольная лампа TS-EI30-EI60 | Detsember 2011 | Tooteleht | |
| Kontroll-luuk perfokipsplaadiga | Märts 2013 | Tooteleht | |
| Luugid REVO EI 30 lagedele | Ноябрь 2019 | Tooteleht | |
| MP 75 | 2020 | Tooteleht | |
| MP 75L | 2020 | Tooteleht | |
| Мозаика | Сентябрь 2019 | Tooteleht | |
| Multi Finish M | 2014 | Tooteleht | |
| N 410-Kipspahtel põranda pahteldamiseks | ноябрь 2016 | Tooteleht | |
| Нивелло | 2010 | Tooteleht | |
| Perlfix | Октябрь 2020 | Tooteleht | |
| Putzgrund | Märts 2019 | Tooteleht | |
| Минерал Putzgrund | 2014 | Tooteleht | |
| Q-Filler | Juuli 2014 | Tooteleht | |
| Готовая отделка | Август 2010 | Tooteleht | |
| Рокасо | Märts 2019 | Tooteleht | |
| Rotband | Октябрь 2020 | Tooteleht | |
| Safeboard pahtel | Juuli 2008 | Tooteleht | |
| Siliconaharz-EG-Farbe | Märts 2019 | Tooteleht | |
| Spezialhaftgrund | Juuni 2020 | Tooteleht | |
| Strukturputz | 2016 | Tooteleht | |
| Прилипший грунт | Juuni 2014 | Tooteleht | |
| Super Finish | Veebruar 2020 | Tooteleht | |
| Тифенгрунд | сентябрь 2020 | Tooteleht | |
| Tuletõkkeakrüül Knauf (FPA) | Märts 2019 | Tooteleht | |
| Tuletõkkeluugid EI 30 ja EI 60 | Ноябрь 2019 | Tooteleht | |
| Tuletõkkemansett Knauf | Märts 2019 | Tooteleht | |
| Tuletõkkemähis Knauf | Märts 2019 | Tooteleht | |
| Tuletõkkepahtel FPC | Märts 2019 | Tooteleht | |
| Tuletõkkepolümeer Knauf FPP | Märts 2019 | Tooteleht | |
| Tuletõkkesegu Knauf FPM | Märts 2019 | Tooteleht | |
| Uniflott | Veebruar 2018 | Tooteleht | |
| Uniflott Impraegniert | Juuli 2010 | Tooteleht | |
| Vaheseinakitt | Juuni 2016 | Tooteleht | |
| Vidiwall | Jaanuar 2009 | Tooteleht | |
| Обшивка | 2019 | Tooteleht | |
| Zementestrich ZE 20 | 2019 | Tooteleht | |
| Zementestrich ZE 30 | 2019 | Tooteleht |
The GNU Privacy Guard
GnuPG — это полная и бесплатная реализация стандарта OpenPGP как
определен RFC4880 (также известен как PGP ).
GnuPG позволяет шифровать и
подписывать свои данные и сообщения; он имеет универсальное управление ключами
система вместе с модулями доступа для всех видов открытых ключей
каталоги. GnuPG, также известный как GPG , представляет собой инструмент командной строки с
функции для легкой интеграции с другими приложениями. Богатство
доступны внешние приложения и библиотеки. GnuPG также
обеспечивает поддержку S / MIME и Secure Shell (ssh).
С момента своего появления в 1997 году GnuPG является бесплатным программным обеспечением (что означает уважает вашу свободу).Его можно свободно использовать, изменять и распространяется на условиях Стандартной общественной лицензии GNU.
Текущая версия GnuPG — 2.2.25. Посмотреть загрузку страница для других поддерживаемых версий.
Gpg4win — это версия GnuPG для Windows с инструментом контекстного меню,
крипто-менеджер и плагин Outlook для отправки и получения стандартных
Письма PGP / MIME. Текущая версия Gpg4win — 3.
1.14.
Утверждая, что вас не волнует право на неприкосновенность частной жизни потому что тебе нечего скрывать, ничем не отличается от говоря, что вам наплевать на свободу слова, потому что у вас есть нечего сказать.- Эдвард Сноуден
Использование шифрования помогает защитить вашу конфиденциальность и конфиденциальность люди, с которыми вы общаетесь. Шифрование усложняет жизнь массовым системы наблюдения. GnuPG — один из инструментов, которые Сноуден использовал для раскрыть секреты АНБ.
Посетите сайт самозащиты электронной почты, чтобы узнать, как и почему вы следует использовать GnuPG для электронного общения.
Последние записи в блоге:
Последние новости релиза:
(все новости)
GnuPG версии 2.2.24 была выпущена сегодня. Это обслуживание релиз, исправляющий некоторые давние ошибки. {Больше}
Сегодня был выпущен GnuPG версии 2.2.23. В этой версии исправлена критическая ошибка безопасности в 2.
2.21 и 2.2.22 (CVE-2020-25125).
Следуйте инструкциям в письме с объявлением и обновите затронутые установки. См. Также нашу запись об ошибке № 5050.
[Примечание: не используйте эту версию — используйте 2.2.23.]
GnuPG версии 2.2.22 была выпущена сегодня. Это обслуживание выпуск с небольшими изменениями. {Больше}
[Примечание: не используйте эту версию — используйте 2.2.23.]
После выпуска GnuPG 2.2.20 в марте пришло время получить исправления за последние месяцы: GnuPG версии 2.2.21 имеет был выпущен сегодня. Это отладочный выпуск с незначительным изменения. {Больше}
С момента последнего выпуска прошёл почти год, так что время пришло. для нового отладочного выпуска: Libgcrypt версии 1.8.6 сейчас имеется в наличии. {Больше}
Примерно через год корректировки деталей утверждения Gpg4win и
GnuPG теперь одобрен для связи с ограничениями ЕС (VS-NfD). Этот
утверждения охватывают протоколы S / MIME и OpenPGP (открытый ключ и
только симметричный) с жесткими и мягкими токенами.
Наш коммерческий филиал
GnuPG.com опубликовал сегодня сообщение для прессы (на немецком языке).
Мы рады сообщить о выпуске GnuPG версии 2.2.19. В этой версии исправлен регресс, появившийся в последней версии.{Больше}
Мы рады сообщить о выпуске GnuPG версии 2.2.18. Это сервисный выпуск, который исправляет пару мелких ошибок и предоставляет несколько обновлений функций. В этом выпуске также отменяется использование ключа SHA-1. подписи созданы с этого года. {подробнее} (см. также)
Если вас интересуют атаки локального канала сайта на ECDSA, вы можете обновление до версии Libgcrypt 1.8.5. CVE-CVE-2019-13627 {подробнее}
Руководство по установке— документация Scrapy 2.4.1
Scrapyсамый последний
Первые шаги
- Краткий обзор Scrapy
- Руководство по установке
- Поддерживаемые версии Python
- Установка Scrapy
- Полезные сведения
- Использование виртуальной среды (рекомендуется)
- Примечания по установке для конкретной платформы
- Windows
- Ubuntu 14.04 или выше
- macOS
- PyPy
- Устранение неполадок
- AttributeError: объект «модуль» не имеет атрибута «OP_NO_TLSv1_1»
- Учебное пособие по Scrapy
- Примеры
Основные концепции
- Инструмент командной строки
- Пауки
- Селекторы
- Товаров
- Погрузчики предметов
- Оболочка Scrapy
- Товаропровод
- Экспорт кормов
- Запросы и ответы
- Экстракторы звеньев
- Настройки
- Исключения
Встроенные службы
- Лесозаготовки
- Сборник статистики
- Отправка электронной почты
- Консоль Telnet
- Веб-служба
Решение конкретных проблем
- Часто задаваемые вопросы
- Отладка пауков
- Контракты пауков
- Общие практики
- Широкое сканирование
- Использование инструментов разработчика браузера для очистки
- Выбор динамически загружаемого содержимого
- Отладка утечек памяти
- Скачивание и обработка файлов и изображений
- Развертывание пауков
- Удлинитель AutoThrottle
- Бенчмаркинг
- Задания: приостановка и возобновление сканирования
- Сопрограммы
- асинхронный
Расширитель царапины
- Обзор архитектуры
- Промежуточное ПО загрузчика
- ПО промежуточного слоя паука
- Расширение


Если при промере виден уклон основания, его выравнивают цементным раствором. После высыхания раствора его грунтуют.
От горизонтальности и вертикальности первого и двух последующих рядов зависит качество всей перегородки, поэтому, активно используем строительный уровень для контроля укладки.


Лучше дать, чтобы первый ряд хорошо застыл, а потом переходить к монтажу следующих рядов;



x64.msi для 64-битной ОС) на ПК сотрудника, который будет контролировать.
g., cd «C: \ Programfiles»),
04 (фокальная ямка).
kickidler.com/generic stable non-free "> /etc/apt/sources.list.d/kickidler.list
kickidler.com/kickidler.repo
3 / data / pg_hba.conf необходимо изменить строки из:
хост все все 127.0.0.1/32 идент
хост все все :: 1/128 идент
кому:
разместить все все 127.0.0.1/32 md5
хост все все :: 1/128 md5
service
# systemctl start kickidlernode.service
Шаг 2),
2017 г.
2017 г.
2016