Проекты бань с террасой: фото и планировка
Бани с террасой всегда имеют высокий фундамент, который способствует защите помещения от сырости и холода в дождливую погоду. Вместительная открытая летняя терраса – мечта каждого человека, который ценит отдых на природе и теплые солнечные дни. Если случилось так, что ваш дом не оборудован террасой, как бывает довольно часто, можно компенсировать это неудобство, построив во дворе баню по одному из индивидуальных проектов, которые мы предлагаем на ваше обозрение.
Такой вариант позволяет человеку одновременно решить несколько проблем:
- присутствие личной бани в собственном дворе;
- наличие террасы, которая может исполнять функцию обыкновенной беседки, без которой сложно представить летные посиделки во дворе;
- решение вопроса о семейном либо дружеском проведении досуга;
- и даже решение жилищного вопроса, если у вас есть такая потребность.
Некоторые террасы мы предлагаем обустроить садовыми барбекю, грилями либо мангалами для проведения вечеринок, пикников и просто семейных ужинов.
Баня и гостевой домик с барбекю и террасой
Баня – гостевой домик – идеальное решение для гостеприимных людей, а также тех, кто любит жить в бане. На территории помещения имеется встроенная барбекюшница, а также есть достаточно места для расположения стульев и столиков.

Еще один интересный проект, совмещающий баню и гостевой домик в одном помещении, имеет отдельный вход для комнаты, в которой расположена печь-барбекю и основные двери, которые ведут в прихожую, что полностью соответствует правилам пожарной безопасности.

Баня с террасой и барбекю
Предложенный проект бани с барбекю имеет открытую террасу, которая по размерам практически соответствует площади закрытого помещения. Такая планировка идеально подойдет для людей, которые любят открытое пространство и одновременно ценят удобства, подаренные цивилизацией.

Баня с террасой и бильярдной 6×9
Великолепная кирпичная баня с террасой и печью, имитированной под камин, послужит настоящим украшением вашего двора.

Планировка помещения очень обдуманная и удобная и включает в себя наличие не только парилки, санузла и комнаты отдыха, но даже спальни.

Главным же украшением данного помещения служит бильярдная комната, в которой можно проводить замечательно проводить время вне зависимости от сезона и времени суток.

На первом этаже бани расположены основные ее составляющие – вместительная парилка и помывочная, а также множество дополнительных помещений для комфортного время провождения.

Войти в мансарду можно с помощью лестницы, которая расположена в коридоре. Разработчики проекта предполагают, что именно здесь будет идеальное место для расположения бильярдного стола и удобных кресел.

Баня с террасой из бруса (56,2 м2)
Баня с необычной террасой-беседкой может быть очень удобно соединена застекленным либо открытым коридором с основным помещением (жилым домом). Кроме того, такое сооружение смотрится более, чем эффектно.

Помещение оборудовано тамбуром, имеет очень вместительную парилку и душевую комнату, отдельный санузел.

Баня с террасой из оцилинрованного бревна 48 кв.м.
Особенность оцилиндрованного дерева в его идеальности. Все срубы, из которых будет построен данный проект будет полностью идентичными друг другу, что обеспечит миловидность постройки. На таком дереве не присутствуют никакие защепки и неприглядные трещины.

Внутри здание разделено на 5 отдельных комнат. Все комнаты в бане очень просторны, а гостиная и тамбур оснащены большими окнами, которые пропускают в помещение много света.

Баня из клееного бруса 50 кв.м.
Благодаря использованию элементов ковки и фундамента из натурального камня данный проект смотрится очень солидно и представительно.

Здание имеет запасной вход через отдельную просторную котельную и основной вход через открытую летнюю террасу. Условно можно разделить баню на две части, ведь правая сторона здания вмещает в себе все необходимые комнаты для проведения банных процедур, а комнаты, расположенные в левой части, предназначены для отдыха.

Баня 6х6 с террасой (26,4 м²)
Срубовые бани славятся своей надежностью и миловидность.

Просторный проект с терассой
Внешне баня с просторной террасой выглядит очень компактной, но внутри помещения умещаются целых 7 просторных комнат.

Классическая русская баня с террасой
Деревянная баня с террасой, помывочной и комнатой отдыха – классический проект русской бани.

Баня из оцилиндрованного бревна с террасой 7,1 на 7,8 м
Оцилиндрованное бревно способно придать элегантный вид любому строению. Баня из оцилиндрованного бревна с террасой похожа на сказочный домик из русских преданий.
Планировка бани с террасой

Вместительная открытая терраса идеально подходит для проведения летних пикников, а парная с комнатой отдыха позволят вам не скучать в дружеской компании и зимой.

Баня из ячеистых блоков с террасой (53,3 м2)
Баня из ячеистых блоков – здание, построенное «на века». Данный проект имеет весьма симпатичный вид и занимает сравнительно небольшую площадь на участке.

Баня примечательна тем, что она имеет целых три входа: с террасы, со стороны тамбура и моечной. В помещении отведены комнаты для раздельных гостиной и кухни, топочной и подсобной комнаты.

Деревянная баня с душевой и террасой
Проект снаружи невозможно перепутать со зданием никакого другого назначения, кроме бани. Миловидная деревянная постройка обязательно станет украшением вашего двора.

На первом этаже бани размещены душевая, парная, гостиная, тамбур и терраса. Наличия мансарды не предусмотрено.

proekt-banya.ru
двухэтажное современное строение размером 5х6 с барбекю в зоне отдыха и баня под одной крышей, варианты с открытой угловой верандой

В понимании любого россиянина баня – нечто большее, чем место, где можно помыться. Это отдых, общение в теплой семейной и дружеской компании. Не случайно именно о строительстве такого объекта задумываются в первую очередь при освоении загородного участка земли.
Зачастую баня оказывается сложным комплексом, в который может входить и комната отдыха, и место приготовления еды, и терраса, где собираются после мытья.

Особенности
Современные бани могут быть брусовыми, кирпичными, каркасными быстровозводимыми строениями. Есть и другие варианты выбора материалов и способа строительства.
Баню часто строят с верандой или террасой. На террасе можно оборудовать печь для барбекю. Но даже в самом простом варианте такая пристройка добавит комфорта при проведении отдыха за городом.
Лучшие варианты планировки загородного земельного участка как раз и получаются при создании такого рода комплексов. Вместе с баней на участке возникает площадка, закрытая от солнца и осадков крышей.
Террасу можно обнести стеклянными стенами. Это позволит не отгораживаясь в буквальном смысле от природы, не испытывать на себе воздействия неблагоприятных погодных условий вроде ветра и косого дождя.

Совмещение бани с террасой к тому же существенно упростит вопрос со строительством. Ведь отдельные баня и беседка не только занимают на территории больше места, но и требуют при возведении каждого самостоятельного объекта куда более значительного вложения денег, сил и времени.
Расположение строения
Для расположения бани нужно выбрать правильное место с учетом целого ряда факторов:- Правильнее, чтобы с прицелом на преобладающее направление ветра баня была последней в линии построек. Если она вдруг загорится, в этом случае будет большая вероятность того, что огонь не перекинется на другие здания.
- Если баня и жилой дом построены как отдельные объекты, расстояние между ними должно составлять не менее восьми метров. Причины здесь те же, что и в предыдущем случае.
- Баню желательно располагать подальше от дороги. Даже по требованиям Земельного кодекса это расстояние не должно быть менее пяти метров.
Терраса по своему устройству представляет собой пристройку к основному зданию. Кроме крыши, объединенной с банной, она может быть в определенной степени защищена от ветра, так как имеет одну общую стену с основной постройкой и условные перегородки по периметру.
У летней террасы устраивают капитальный пол. Он может быть выполнен из дерева, иногда его выкладывают плиткой или еще какими-то отделочными материалами. Из мебели на этой площадке располагаются лавки, стулья, кресла-качалки, обеденный стол.

Делают террасу обычно вдоль всего фасада бани. Это удобно не только в плане строительства, но и в бытовом отношении. На такое оборудованное место хорошо выйти из парной, здесь можно готовить и обедать.
Терраса может быть большой или маленькой. При разумном подходе ее всегда можно сделать максимально удобной и функциональной.

Выбор материалов для строительства
Дерево – традиционно используемый для строительства бань материал. Из него обычно складывают сруб из бруса. Дерево обладает множеством достоинств:
- оно хорошо сохраняет тепло – не надо думать о дополнительных мерах по утеплению;
- в деревянном строении особый запах и атмосфера, которые характерны для традиционной русской бани;
- поскольку дерево дышит, происходит регулировка влажности внутри банного помещения;
- из этого материала можно создать постройки самых разнообразных форм, воплощая оригинальные архитектурные решения;
- не возникает сомнений в экологичности, так как ерево безопасно для человека, а в условиях бани оно создает дополнительный оздоровительный эффект.
Недостатком деревянной бани может быть разве что подверженность этого материала плесени, гниению, а также значительная вероятность возгорания в случае небрежного обращения с огнем. В бане из кирпича пожарная опасность намного меньше. Но само помещение дольше прогревается, а значит, больше придется тратить дров для того, чтобы помыться и попариться.
В кирпичных сооружениях такого назначения должна быть отличная вентиляция, так как конденсат, который появляется в процессе эксплуатации, становится причиной появления и распространения грибка.
В то же время нельзя не отметить экологичность кирпича и то, что из него можно построить здание любой конфигурации. Большой срок службы таких бань – тоже не последний аргумент в пользу выбора именно кирпичной постройки. Ее возведение может обойтись дешевле, чем деревянной. К тому же здесь не нужно особой отделки. Кирпич хорошо смотрится сам по себе.

Порой имеет смысл не замыкаться на традиционных материалах, а выбирать для банного комплекса что-то более современное. Например, газосиликатные блоки. Газосиликат относится к разряду продуктов современных технологий. У него есть свои достоинства, заставляющие делать выбор в его пользу, когда заходит речь о строительстве бани.
Они отличаются:
- надежностью;
- большим сроком эксплуатации;
- безопасностью в плане экологии;
- огнестойкостью;
- хорошими свойствами по теплоизоляции;
- тем, что не гниет;
- легкостью при монтаже;
- небольшой ценой.
Важный вопрос при строительстве бани – устройство фундамента. Чаще других под такое строение делают ленточный фундамент с применением железобетона, бута или кирпича.
Для винтового фундамента применяют особые сваи, на которые и будет опираться строение. Столбчатый фундамент относится к числу самых экономичных. С помощью столбов можно устроить основание для небольшой бани с террасой.

Проектирование
Чтобы при проектировании бани получить именно то, что вам нужно, необходимо иметь в виду следующее:
- на какое количество людей должен быть рассчитан моечный комплекс с открытой площадкой для отдыха;
- будет ли он использоваться только летом или также сможет эксплуатироваться зимой;
- какая планировка будет наиболее подходящей;
- из какого материала ее строить;
- какова допустимая цена строительства.

Если баней предстоит пользоваться только в теплое время, об утеплении предбанника можно особо не задумываться. Если баня эксплуатируется круглогодично, особенно важно становится расположение входа в нее.
Грамотная планировка позволяет сократить расходы на строительство. Так, если сделать удобную открытую площадку для барбекю, в которой легко размещается много людей, гостевая комната может и не понадобиться.

Иногда достаточно террасу пристроить к существующей бане, если она достаточно новая. Если же баня старой постройки, лучше расположить площадку для отдыха под крышей между строением для мытья и домом. Важно выбрать для нее место так, чтобы не нарушить существующую архитектурную и стилистическую идею.

Площадь бани может быть разной – от небольших размеров до внушительных, например, 6х4, 3 на 9 метров и так далее. На большом участке найдется место для сооружения размером 6 на 9 метров. Оно подходит для большой семьи и многочисленной компании. На таком пространстве запросто разместится не только парилка, моечная, но и кухня, санузел, комната отдыха, бильярдная и так далее. Баня при этом может быть двухэтажной. На втором этаже имеет смысл сделать просторную комнату для гостей. Терраса может быть оборудована печью, которая выглядит как камин.
Такой оздоровительный комплекс можно выполнить, например, из оцилиндрованного бревна. Возможны вариации планировки. Например, если устроить гостиную на первом этаже, отделив ее от террасы стеклянной стеной, в этой комнате будет всегда много света, а сама терраса сможет выглядеть больше. При изменении погоды гостям удобно будет перемещаться с открытой площадки в гостиную и обратно.
Некоторые проекты бань с мансардами предусматривают внешнюю лестницу на второй этаж со стороны террасы. Таким образом можно выиграть дополнительную площадь в самом доме. Хотя многие могут посчитать такое проектное решение спорным.

Баню иногда проще пристроить и к существующему дому, в том числе и с гаражом. В этом случае довольно будет пристройки 5х6 метров с террасой. Функционал жилья расширится, а в жару можно будет приятно проводить время на свежем воздухе в защищенном от солнца месте.
Можно взять на вооружение проект угловой бани с террасой. При таком подходе к планировке оно сможет занимать мало места на участке, оставаясь вместительным внутри. Такой проект будет особенно интересен, когда баньку размещают очень близко к жилому дому. Также существуют проекты угловых террас, которые есть смысл применить в таком случае.

Если подойти к делу основательно, можно замахнуться на настоящий банный коттедж. Помимо бани, он может нести функции самого разнообразного отдыха. Здесь можно выделить комнаты для гостей, площадку для игр детей, танцев и барбекю. Летом такой комплекс дает возможность жить на свежем воздухе основную часть времени.
При разработке проекта бани нужно учесть ряд нюансов, связанных с расположением и обустройством террасы. Место для нее нужно выделять с учетом направления ветра. Здание бани должно заслонять площадку, а заодно и очаг, чтобы отдыхающим точно не пришлось дышать дымом.

Если задача террасы – укрывать людей от жаркого солнца, строить ее с южной стороны не следует. Это будет хорошо лишь в том случае, если хозяева любят загорать.
Конечно, нельзя не учитывать и окружающий пейзаж. Было бы странно располагать террасу с видом на уличный туалет или забор. Куда приятнее видеть с этой площадки лес, реку или озеро. С планировочной точки зрения терраса может располагаться фронтально, то есть вдоль фасада основного здания, сбоку, а также под углом и по всему периметру бани.

Для маленькой компании будет достаточно площадки размером 7-8 квадратных метров. Но если территория позволяет, лучше сделать ее хотя бы в 9-10 квадратов. В этом случае, помимо прочего, здесь спокойно разместятся пара шезлонгов или кресел. Да и у человека, занятого приготовлением шашлыков, будет достаточно места для разворота. При этом печной жар не станет мешать окружающим.

Пол проще всего застелить деревянными досками. Хотя тротуарная плитка тоже сгодится. На больших террасах для такого покрытия используют природный камень.
Типовых проектов бань с террасами очень много. Архитектурные бюро при создании вариантов этих объектов учитывают и требования по применению тех или иных строительных материалов, и способов монтажа. Хотя никто не запретит осуществить индивидуальный проект.
Варианты дизайна
Для приятного времяпрепровождения в бане с террасой следует вдумчиво подойти к дизайну интерьера и открытой площадки. Часто изнутри помещение обшивают вагонкой определенного тона. Лучше выбрать мягкие оттенки, которые будут настраивать на расслабление.
Нужно сделать так, чтобы в комнатах не было больших выступов и острых углов. Даже если в помывочной, парилке или комнате отдыха достаточно места, человек в расслабленном состоянии может неудачно задеть выступ и травмироваться. По той же причине нужно позаботиться о том, чтобы полы не были скользкими.

Для обустройства интерьера лучше использовать натуральные материалы. Современные, такие как пластик, с баней «не дружат», так как могут расплавиться или начать выделять неприятные запахи. Даже если они не отравляют, впечатление от отдыха будет испорчено.
В бане нужно предусмотреть все необходимые аксессуары: веники, шапочки, аромамасла, шампуни, мыло, мочалки. Под них хорошо выделить удобную полку, до которой всегда нетрудно дотянуться.
Для освещения лучше не применять яркие лампы, которые не позволяют настроиться на расслабление. Лучше пусть свет будет желтым и мягким.
Большое значение имеет и дизайн открытой площадки. Она может иметь плотные занавески, отгораживающие пространство террасы от жаркого солнца или холода. Здесь могут использоваться раздвижные элементы из стекла или поликарбоната. Благодаря этому террасу можно эксплуатировать практически круглогодично.

Важная часть – печь на террасе. От ее устройства и дизайна во многом зависит общее впечатление от бани с террасой. Для устройства барбекю закладывают отдельный фундамент. Печь делают из огнеупорного кирпича на высоком основании. При ее строительстве лучше предусмотреть нишу для хранения небольшого запаса дров.
Что касается возникновения дыма, для его отвода создают отдельный дымоход с высокой трубой, чтобы неприятный запах и гарь не распространялись по террасе и бане.
Пол вокруг лучше выложить плиткой, так как при попадании искры на его поверхность он точно не загорится. Хотя и по всей террасе пол можно сделать выложенным ей же. Если она будет перекликаться с отмосткой у дома, это придаст единство архитектурному решению на территории участка.
Чтобы терраса смотрелась нарядно, вокруг нее неплохо устроить цветник. Красивые цветы будут еще лучше смотреться на фоне, например, резной обрешетки декоративной стенки пристройки, радуя взор собравшихся на отдых людей.

Полезные советы
При планировании строительства бани с террасой необходимо учитывать определенные правила:
- Независимо от того, большая баня или маленькая, в ней обязательно должны быть отдельные комнаты под раздевалку, душевую и парилку.
- Для террасы лучше устраивать свайный фундамент. Это придаст всему объекту дополнительную устойчивость.
- При проектировании террасы ее можно сделать под одной крышей с баней, покрыв тем же кровельным материалом. Однако практичнее использовать для навеса поликарбонат. Глухой навес может служить препятствием для попадания света в окна бани. И тогда в ней придется раньше времени включать свет. В случае использования поликарбоната не надо устраивать усиленное основание, да и полупрозрачная крыша не будет нависать над головой.

- Если пол террасы отделывается тротуарной плиткой, нужно подготовить для нее небольшой плитный фундамент. Плиты сначала покрывают утеплителем, и уже вслед за этим кладут плитку. Лучше не пренебрегать таким порядком работ, чтобы покрытие прослужило дольше одного сезона.
- Если пол на открытой площадке сделать из особой композитной доски, не надо будет беспокоиться о периодической покраске покрытия, так как на открытом воздухе краска на обычном полу быстро выцветает и сыпется. Композитное покрытие прослужит десятки лет.

- При строительстве и одноэтажных, и двухэтажных бань с террасой ни в коем случае нельзя отступать от проекта. Это особенно важно, когда наступает этап возведения кровли. При строительстве бань чаще всего используются двускатные крыши. Устройство их должно проходить в правильной последовательности. Сначала делается конек, крепятся стропила, на стропила набивается обрешетка, которая заполняется утеплителем и закрывается изоляцией. В последнюю очередь крыша перекрывается шифером, ондулином, профнасилом или каким-то еще материалом, который был выбран для этих целей.

- Внимательно стоит подойти к вопросу установки печи в бане. Нужно расположить ее так, чтобы она могла согревать все помещения, примыкающие к парной. Но если баня будет работать и зимой, в комнатах для гостей необходимо предусмотреть индивидуальное отопление, так как одной печью все комнаты не прогреешь.
- Еще на этапе проектирования для бани, эксплуатируемой в любое время года, нужно предусмотреть тамбур, который будет препятствовать попаданию холода внутрь строения. Благодаря этому пребывание в нем будет более комфортным, а расход топлива уменьшится.
- Сама печь может быть не только дровяной, но также угольной или газовой. Выбор способа отопления зависит от бюджета владельца бани и его предпочтений.

Обзор бани с террасой смотрите в следующем видео.
stroy-podskazka.ru
строения с террасой, туалетом и бассейном, варианты с купелью и мансардой из кирпича

Комната отдыха в бане стала такой же важной частью, как парная. При банных процедурах чередуется воздействие высоких температур сауны с промежутками для восстановления организма между заходами в парную. Сделать эти перерывы комфортными призвана комната отдыха. Планируя выстроить баню, следует обязательно выделить помещение для восстановления.
Советы профессионалов подскажут, как грамотно выбрать нужный проект.

Особенности
Проекты бани с комнатой отдыха можно разделить на три группы. Первая группа – традиционные одноэтажные бани. Они возводятся из капитальных строительных материалов с низкой теплопроводностью, имеют стандартный набор помещений: здесь есть парилка, душевая, комната отдыха, предбанник, иногда терраса.
Комната отдыха располагается на первом этаже рядом с парной и помывочной и соединяет в себе функции раздевалки. Это самый удобный вариант, который позволяет поддерживать оптимальную температуру во всех помещениях, так как печка равномерно обогревает все прилегающие комнаты с подачей пара в отделение сауны.
Такая планировка позволяет расположить топку печи и в парной, что не всегда удобно, и в комнате отдыха.
Истопник находится в комфортной температуре, к тому же легче убирать мусор после растопки. Современные технологичные печи длительного горения могут иметь стеклянный экран, что позволяет любоваться игрой пламени во время отдыха, создавая приятную каминную атмосферу и давая живое тепло обитателям комнаты. Простая планировка, тем не менее, включает все необходимое для банных процедур, имеет большую вариативность по площади.
Минимальная площадь строения – от 16 кв. метров, что удобно для небольших участков, максимальная – по желанию владельца. Этот варинант не требует больших капиталовложений из-за энергоемкости обогрева.
Вторая группа – проекты с комнатой отдыха, расположенной на мансарде или на втором этаже. Здесь потребуется возведение второго этажа или утепление кровли, что повлечет дополнительный расход материалов, фундамент потребуется усиливать на увеличение несущей нагрузки. Этот вариант удобен при небольшой площади строения.

На первом этаже размещают предбанник, раздевалку, парную, помывочную. На втором – комнату отдыха с балконом или без. Потребуется выделение пространства для лестничного марша. Красивая винтовая лестница может украсить интерьер бани.

Третья группа проектов – с вынесением комнаты отдыха на террасу. Такая планировка удобна для летнего использования. В холодное время года террасу потребуется застеклить и продумать систему обогрева. Однако такое расположение комнаты отдыха дает большой простор для воплощения дизайнерских решений.
Панорамный обзор пейзажа добавляет минутам отдыха эстетическое удовольствие.
Выбор планировки зависит от сезонности использования бани. Для круглогодичного применения подойдет первая и вторая группа проектов. Летом достаточно иметь комнату отдыха под навесом с гибким остеклением из пленки или поликарбоната для бюджетного варианта.
Большое значение имеет наличие свободной площади на участке, и если ее мало, то поднять на мансарду комнату отдыха будет хорошим выходом. Отопление второго этажа в холодное время года нуждается в устройстве воздушного или водного контура. Установка печи длительного горения с конвектором на первом этаже может решить эту проблему.
Размещение бани на участке должно отвечать нормам пожарной безопасности и удобству пользования. Окна комнаты отдыха желательно ориентировать на привлекательный видовой обзор. Приятно видеть красивые пейзажи перед глазами, а не забор или соседский сарай.
Желательно выбрать возвышенный участок для хорошей вентиляции и отвода воды. Эффектным дополнением может стать близость искусственного или естественного водоема.
Особое внимание уделяют материалам для строительства бани. Традиционно предпочтение отдается натуральному дереву в виде бруса или оцилиндрованного бревна липы, осины, кедра.
Сосна более доступна по цене, имеет красивый рисунок волокон сучковатой древесины и является популярным материалом для бани на даче. Недостатком ее является пористая структура древесины, которая сильно меняет показатели от нагрева и повышенной влажности, поэтому в парной и душевой сосну нужно обшить рейкой из твердых пород дерева, а для комнаты отдыха сосна с ее приятным запахом и эстетичным внешним видом будет оптимальным решением.
Кирпич – более дорогой материал, но он имеет самые лучшие показатели долговечности, устойчивости к перепадам температуры.
Бюджетную постройку можно возвести и из пеноблоков. Строительство бани из блоков можно выполнить своими руками, даже не имея специальных знаний.
Внутренние помещения обшиваются блок-хаусом, отделываются плиткой или натуральным камнем.
Оформление комнаты отдыха предполагает следование определенному стилю, в зависимости от дизайна подбирают отделочные материалы.
Тонкости проектирования
Проектировать баню самостоятельно – увлекательное занятие. Для этого надо запастись бумагой, карандашом и линейкой.
Для семьи из 4-5 человек и нескольких гостей оптимальным размером считается баня 6х6 метров с мансардой. На первом этаже размещается прихожая, парная, душевая с туалетом, комната отдыха или гостиная. Комнату для отдыха можно дополнить кухней, а второй этаж отводят под досуг и дополнительные места для размещения гостей или членов семьи. Входная зона второго этажа площадью 18 метров млжет быть занята под студию или бильярдную. За ней размещаются две симметричные спальни или комнаты для детей по 9 кв. метров.
Функционал бани значительно расширяется, и для этого не надо строить большой дом. Компактная планировка с санузлом удовлетворяет потребности среднестатистической семьи в загородном отдыхе.

С террасой
Баня с террасой – прекрасный вариант для летних трапез на свежем воздухе после банных процедур. Мангал для шашлыка можно разместить на площадке перед баней или ввести гриль-зону в пространство веранды. Для этого размер террасы должен быть увеличен так, чтобы обеспечить свободный доступ к жаровне и избежать задымленности обеденного стола и окон.
Минимальное расстояние между печкой и столом должно быть не меньше 2 метров. Жаровню ставят готовую металлическую или строят каменный мангал из кирпича с дымоходом. Для такого мангала возводят отдельный фундамент, который учитывают на стадии проектирования.

Пол террасы лучше сделать из тротуарной плитки или песчаника, если терраса открытая. Для застекленной террасы применяют и деревянный пол. Остекление выполняют из раздвижных алюминиевых или пластиковых рам. Пластиковые рамы используют для теплого остекления. Легкие алюминиевые конструкции защищают от непогоды, но температура внутри закрытого пространства будет только на пару градусов выше, чем снаружи.
Баня с мангалом и панорамным остеклением на веранде станет местом притяжения домочадцев после трудовой недели.
С бассейном
Польза банных процедур многократно увеличится при обустройстве бассейна или купели в комнате отдыха. Бассейн располагают недалеко от душевой.
Чаша бассейна выполняется из бетона и отделывается плиткой.
Плитка подбирается в тон общей отделке комнаты отдыха. Восточный колорит придаст цветочный орнамент и мозаика. Для бани в русском стиле подойдут камень, кирпич и деревянные бортики.
В одноэтажных банях часто проектируют комплекс из террасы с купелью под навесом. Купель изготавливают из дерева и располагают на деревянном помосте на свежем воздухе.
В японском варианте обустраивают подогрев купели электрическими нагревательными элементами, которые встраиваются в корпус. Объединяя зону отдыха с баней, для летнего купания устанавливают готовый каркасный или возводят стационарный бассейн, рядом располагают лежаки или пляжные кресла.
Водоем может иметь строгие геометрические очертания или быть приближен к природной форме. В этом случае берег декорируют галькой и растениями: хостой, астильбой, злаками. Баню с бассейном на террасе закрывают от посторонних взглядов живой изгородью из цветущих кустарников или лиан на опорах.
Для комплексной зоны отдыха требуется хорошее освещение, так как она используется в вечернее время.
Освещение территории электричеством делают при наличии коммуникаций, более экономный вариант – освещение светодиодами или фонарями на солнечных батареях.
Небольшого помещения
Небольшие бани не могут похвастаться большим набором помещений, поэтому нередко в комнате отдыха располагают душ. В отделке помещений с таким планировочным решением надо учитывать повышенную влажность и подбирать соответствующие материалы: кафельную плитку, пластиковые панели, натуральный или искусственный камень.

Душ обязательно надо отгородить от зоны отдыха перегородкой из стекла или пластика, чтобы брызги не мешали отдыхающим.
Мебель предпочтительно приобретать из влагоустойчивых материалов. Правильный подбор отделки сделает использование душа удобным, а нахождение в комнате отдыха будет комфортным.
Дизайн
Дизайн комнаты отдыха определяется выбранным стилем оформления. Для отделки бани лучше подбирать натуральные материалы, устойчивые к воздействию влаги. Все помещения удобно содержать в чистоте, если пространство не заставлено лишними предметами, а поверхности легко моются. Дизайн комнаты отдыха определяется выбранным стилем оформления.

Сельский или русский стиль
Направление предполагает применение натурального дерева для обшивки стен и пола. Дерево обрабатывают специальными составами против грибка и покрывают маслом или воском. Натуральный цвет древесины придает интерьеру светлый тон, что зрительно увеличивает пространство.
Интересно смотрится использование в обшивке стен необрезной доски, которую очищают от коры и шлифуют. Помещение приобретает брутальные черты.

Эта недорогая отделка служит для теплоизоляции и эстетического акцента.
Стены можно обшить вагонкой из хвойных пород, украсить резьбой.
Мебель в такую комнату отдыха делают своими руками из массива сосны или приобретают готовую и дополняют декором из рельефных изображений на дереве с банной тематикой. Красиво смотрятся бревенчатые стены как символ традиционной русской культуры. Для бюджетных вариантов применяют блок-хаус из пластика, имитирующего различные породы дерева.

Скандинавский стиль
Оптимальное сочетание функциональности и простоты. В отделке преобладает белый цвет с коричневыми или черными конструктивными элементами.
Основной материал – дерево и стекло. Вся цветовая гамма спокойная, везде прослеживается геометрическая тема. Здесь уместно использование натурального или искусственного камня, оригинально смотрится панно из спилов дерева. Вся обстановка отличается практичностью и долговечностью.

Стиль шале
Один из самых живописных вариантов оформления интерьера комнаты отдыха. Центром композиции становится камин и пейзаж за окном. Окна предпочтительнее установить панорамные для лучшего обзора.
Обстановка комнаты располагает к беседам и спокойному времяпровождению. Уместна удобная мебель, кресла с подлокотниками, на стенах вешают охотничьи трофеи и картины со сценами охоты. В дизайне стиля шале широко применяются детали, выполненные методом обжига древесины, которые добавляют солидности и рустикальности интерьеру. Дерево и камень – основные материалы для отделки комнаты отдыха в стиле шале.

Минимализм и хай-тек
Модные современные стили в дизайне бани представлены эименно этими направлениями. Упор делается на эргономичность и функциональность, естественные природные материалы становятся главным украшением интерьера.
Цветовая гамма очень светлая – белый, бежевый, стальной сочетаются с прозрачными поверхностями стекла и необработанной бетонной или каменной кладкой. Белая современная сантехника, оборудованная по последнему слову техники, создает энергичный и комфортный климат в комнате отдыха.

Японский стиль
Баня в данном стиле отличается лаконичностью и строгостью. Основное внимание уделяется выбору древесины для пола, так как сидения невысокие или располагаются на полу. Стены желательно покрасить в цвет папирусной бумаги. Декор и рисунки содержат изображения цветущей сакуры или горных пейзажей. Обстановка самая минимальная.
Большое значение играет организация подсветки и создание комфортной обстановки для медитации и умственного отдыха.

Восточный стиль
Имеет многовековую историю хамама или турецкой сауны. Поробовать у себя дома воспроизвести мягкую негу расслабленного отдыха после банных процедур можно с помощью керамической плитки и мозаики с растительным орнаментом.
Непременным атрибутом комнаты отдыха становится бассейн.
Его бортики выкладываются мелкой плиткой, мебель тоже может быть отделана мозаичным плиточным рисунком. Плавные линии, арабские мотивы в оформлении, яркие краски, большие удобные диваны с множеством подушек – отличительные черты восточных интерьеров.

Классический стиль
Универсальным решением для оформления красивого интерьера бюджетными средствами стал данный стиль. Это несложный и понятный вид отделки.
Здесь будут уместны и исторические предметы крестьянского быта, и удобная современная мебель.
Бежевая палитра, открытый огонь сделают эту комнату приятным местом для вечерних чаепитий после бани.

Примеры готовых строений
Сауна с террасой для барбекю и бассейном.

Баня с террасой и мансардой с балконом.

Комплекс из бани, беседки для барбекю и бассейна под стеклянной крышей.

Обзор проекта бани с комнатой отдыха смотрите в следующем видео.
dekoriko.ru
планировка дома-бани с зоной для барбекю, идеи двухэтажной конструкции с местом для отдыха, обустройство площади 3х6 и 5х6 м своими руками

Баня в русской традиции – это не только водные процедуры, но и вид досуга, любимого многими нашими соотечественниками. В бане приятно посидеть с друзьями после напряженной рабочей недели, отдохнуть всей семьей, полноценно очистить поры тела и снять накопившуюся психологическую усталость. Помимо совместного отдыха с чаепитиями и шашлыками, в бане нередко устраиваются мужские и женские посиделки по интересам. Например, мужской компании будет интересно обсудить свои дела, а женщины устраивают в бане целые косметические ритуалы, не уступающие спа-салонам.
Для проведения такого разностороннего досуга необходимо, чтобы баня имела, кроме парной, моечной и раздевалки, еще и вместительное место для отдыха. Таким местом может стать функциональная веранда, находящаяся под одной крышей с банным строением.
Преимущества бань с верандой
Одним из основных преимуществ является экономия квадратных метров участка. С верандой, пристроенной к бане, можно исключить дополнительные постройки на участке, освободив место для цветников или огородных культур. На веранде может расположиться летняя кухня, беседка, место для барбекю или небольшой бассейн.
Объединение сразу нескольких функциональных объектов под одной крышей существенно снизит затраты на строительство и материалы. Полотно кровли для совмещенной постройки обойдется дешевле, нежели для нескольких сооружений. Кроме того, возведение бани с верандой позволит выдержать единый дизайн для всего мини-комплекса.
С точки зрения удобства, такой банный мини-комплекс позволит проводить полноценный досуг в одном месте, не переходя от строения к строению.
Варианты строений
Какой будет веранда, пристроенная к бане, зависит от вкуса заказчика, его финансовых возможностей и наличия свободной площади на участке. Архитектурные агентства предлагают множество готовых проектов на любой вкус, а также помогут разработать компьютерную версию по индивидуальному запросу.
Даже если вы собираетесь строить баню с верандой своими руками, просмотр такого наглядного проекта не будет лишним.
Рассмотрим наиболее часто встречающиеся типы проектов.
- Баня как отдельное строение. В этом случае веранда может быть расположена с любой стороны банного строения или даже вдоль него. Все зависит от расположения самой бани и предполагаемых функций веранды.
Если пристройка расположена сбоку строения, то к ней может вести небольшой открытый или закрытый переход. В случае двухэтажных строений, веранда может располагаться на втором этаже, что существенно сэкономит место на участке.
- Угловая баня с верандой – образец компактности и вместительности сооружения. Она может занять самый затемненный угол участка, не использующийся под высаживание растений. Благодаря угловой форме внутри помещения будет достаточно пространства для размещения как самой бани, так и прилегающей зоны отдыха.
Кроме того, угловое расположение бани с верандой способно придать завершенный вид архитектурной композиции всего участка.
- Баня, пристроенная к дому. Такой способ планировки позволяет увеличить площадь дома, уменьшив при этом застройку самого участка. Веранда в этом варианте постройки служит отличным местом отдыха сразу для двух строений – дома и бани. Но стоит помнить, что такой вариант требует дополнительных затрат на гидроизоляцию и вентиляцию, чтобы избежать сырости в доме.
Стандартные и наиболее удачные параметры веранд имеют размеры 3х6, 5х6, 4х8, 5х4 метров.
Типы и формы веранд
Веранда – это крытая летняя пристройка к дому, в классическом исполнении имеющая стены, оконные проемы, фундамент и крышу. Веранды могут быть как открытыми, так и закрытыми.
Открытые веранды отличаются тем, что могут иметь только одну стену со стороны дома и крышу. Они проще по конструкции и представляют собой просторное крыльцо с перилами и несущими столбами. Закрытая веранда – это летняя неотапливаемая комната отдыха, защищенная стенами и окнами от осадков и ветра.
При проектировании не будет лишним рассмотреть и различные формы веранд. Вместо традиционной прямоугольной или квадратной формы, можно выбрать полукруглые, овальные или даже треугольные сооружения оригинального дизайна. Такая постройка станет архитектурной изюминкой в ландшафтном дизайне участка и нестандартным местом для сбора гостей.

Варианты проектов
- Классическая баня с верандой. Отдельно стоящее банное сооружение станет центром досуга для всей семьи, если заранее включить в проект постройки просторную веранду. Здесь можно устраивать семейные торжества, поставить диваны или плетеную мебель, организовать барбекю или бильярдную площадку.
- Двухэтажная баня. В этом варианте веранда может быть узким помещением, предназначенным только для подъема на второй этаж в комнату отдыха. Если баня такого типа предназначена, прежде всего, для проведения досуга, то застекленная веранда с ведущей на второй этаж лестницей станет украшением участка. Для комнаты отдыха необязательно пристраивать полноценный второй этаж, можно обойтись просторной мансардой под односкатной крышей и одной пристроенной стеной над баней.
Баня с узкой верандой и мансардой значительно экономит квадратные метры участка.
- Баня с летней кухней. Отличный вариант для небольших земельных угодий или для владельцев, еще не закончивших строительство основного дома. Такая баня пригодна для постоянного проживания в летний период и вместит в себя все необходимые бытовые элементы.
Летняя кухня служит для приготовления и приема пищи, банное помещение с парной – для водных процедур. На веранде-кухне можно организовать и место для отдыха и сна.
- Баня с бассейном. Душевая кабина или обливание холодной водой не приносят столько радости, сколько возможность окунуться в воду сразу после парной. Если поблизости нет водоема, такую возможность может предоставить даже самая простенькая емкость с водой. Небольшого размера бассейн можно установить прямо в углублении веранды. Сооружение полноценного бассейна из пеноблоков – задача технически сложная, требующая соблюдения множества нюансов и разработки отдельного проекта. Упростить задачу можно выбором покупной пластиковой купели на 10-20 кв. метров.
В продаже представлены пластиковые емкости самых разных форм и размеров, которые можно вписать в любое помещение. Как правило, с ними в комплекте идут все необходимые аксессуары – полки, лестницы, коврики.
Планировка веранды
Рассматривая различные проекты бань с верандой, следует уделить особое внимание расположению пристройки, ее ориентированию по сторонам света. От этого будет зависеть комфорт и функциональность этого помещения. Определитесь с основной задачей веранды как помещения для досуга. Учтите, что с южной и юго-западной стороны на веранде будет слишком много солнца, а это может быть неудобным для комфортного времяпровождения. В то же время южная сторона для веранды и входа в баню станет спасением от северных ветров и заносов снегом в зимнее время года.
Окна веранды, выходящие на запад, обеспечат более длительное солнечное освещение в летнее время года, ведь баню чаще всего затевают к вечеру.
Для установки барбекю определите основное направление ветров на вашем участке. Желательно, чтобы веранда была защищена от порывов ветра строением бани.
Еще одна немаловажная деталь при выборе расположения веранды – эстетическое восприятие. Отдыхая на веранде, лучше любоваться живописным пейзажем, чем видом забора или хозяйственных сооружений.

Возведение постройки
Как правило, веранда под одной крышей с баней планируется еще на стадии проекта, и материалы для нее выбираются такие же, как и для бани. Но это не обязательное условие – вполне достаточно одной общей крыши и фундамента, а вот сама веранда может быть, например, деревянной на фоне кирпичного банного строения.
Следует помнить, что пристройка веранды из другого материала возможна только на переход от тяжелых к легким материалам. Можно пристроить легкую конструкцию из дерева к кирпичной бане, но никак не наоборот.
Еще один вариант – пристройка к уже готовой бане, например, в ситуации, когда крыша банного строения требует ремонта и замены. Планируя поменять кровлю, можно заодно расширить банное пространство, добавив в проект строительство веранды.

Фундамент для веранды к бане
Закладка основания – самый ответственный момент строительства, от которого зависит долговечность конструкции. Работы по укладке фундамента начинаются с определения уровня грунтовых вод и степени пучинистости почв.
Это особенно важно, если веранда строится уже после возведения бани, с отдельным фундаментом. Бывает так, что в нескольких метрах от основного фундамента грунт имеет другую структуру и близкий проток вод, а это может привести к размыванию основания и трещинам в стенах.

Фундамент под веранду и баню может быть нескольких типов.
- Ленточный – самый экономичный вариант, пригоден для стабильной почвы, хорошо выдерживает тяжелые конструкции. Процесс укладки состоит в создании траншеи по периметру предполагаемого строения, монтировании простой опалубки из подручных материалов, укладки армирующего каркаса и заливки бетонной смеси. После окончательного застывания бетона можно приступать к возведению стен.
- Столбчатый. В подготовленный заранее котлован вкапываются готовые бетонные блоки или столбы из кирпичей. На дно котлована выстилается «подушка» из щебня и песка, столбы плотно утрамбовываются, а нижняя часть столбов заливается битумной мастикой. Столбы обязательно должны находиться на одном уровне по высоте и стоять не дальше, чем в 2 метрах друг от друга. Пространство между столбами засыпают щебнем. Далее, как и в первом случае, производится заливка бетона.

- Свайный. Этот способ подходит для проблемных почв с высоким уровнем грунтовых вод. Пробуриваются скважины в запланированных проектом точках, укладывается гидроизоляция в виде рубероидного конуса, заливается бетон. На поверхности сваи соединяются между собой ростверком – железобетонной рамой.
- Свайно-винтовой. Еще один несложный способ, предполагающий вкручивание в почву металлических труб с винтовой резьбой на наконечниках. Важно, чтобы трубы были покрыты антикоррозийным составом.

Полы
Укладка чернового пола производится на полностью высохшее бетонное основание. Лучше всего использовать древесину с деформационным зазором, поскольку этот материал имеет свойство расширяться от перепада температур.
Дерево обязательно должно быть обработано антисептиком и водоотталкивающими составами. Как правило, строительный рынок предлагает множество вариантов уже пропитанных и обработанных досок для чернового пола.

При выборе чистового напольного покрытия следует уделить внимание износоустойчивым, морозостойким и нескользким материалам. Баня отапливается только в определенные периоды, а в зимнее время года подвержена промерзанию. Обычная древесина может дать трещину в морозы, а плитка не всегда пригодна для бани из-за повышенной скользкости. Оптимальным вариантом будет выбор вагонки или террасной доски из определенной породы древесины, уже обработанной специальными составами.
Для открытых террас применяется обычно древесина лиственницы или сосны. Благодаря смолистым свойствам, она не гниет и не теряет прочности, что существенно продлевает срок службы пола. В продаже также имеются и комбинированные варианты на основе древесины и полимеров.
Если на веранде планируется место под барбекю, необходимо заранее сделать основание под мангал, соблюдая все правила пожарной безопасности, как при установке печи в бане.
Стены
Каркас веранды возводится на готовом фундаменте и может состоять из различных материалов: сборных металлических профилей, брусьев древесины, пеноблоков, строительного кирпича. Выбор материала во многом зависит от типа самой веранды. Для открытого типа достаточно легкого каркаса из дерева, а закрытое теплое сооружение потребует основательных стен и утеплителя.
Нередко веранды по максимуму остекляют или защищают от ветра и сквозняков прозрачным поликарбонатом. Оконные проемы могут полностью заменять стены на манер «французских окон» от пола до потолка, или возводиться частично, например, начиная от перил на уровне пояса. Интересен вариант остекления части проемов витражной мозаикой. Это придает веранде оригинальный вид и защищает от прямых лучей летнего солнца.
Крыльцо
Размеры и высота крыльца будут зависеть от высоты напольного настила веранды. Крыльцо может быть выполнено из древесины, кирпича или бетона. Иногда для украшения перил применяются кованые металлические изделия.
Основное требование к открытому крыльцу – ступени должны быть прочными и нескользкими.

Стилевые направления
Веранда под одной крышей с баней предполагает единство композиции всего сооружения и является продолжением банного интерьера. Если баня выдержана в стиле русской классики, то деревянная веранда с резными перилами и столбами, мебель из бруса, расшитые подушки и скатерти дополнят неповторимый колорит стиля кантри.
Более строгий вариант кантри – шале, предполагает спокойную роскошь и элегантность интерьера. Для этого варианта подойдет полное остекление, шезлонги для принятия солнечных ванн, чайный столик современного дизайна.

Восточный стиль тяготеет к экзотическим элементам декора, здесь будут уместны низкие кушетки и столик, яркие подушки, украшения китайской или японской тематики. Многогранная или полукруглая форма веранды придаст особый шик этому стилю.
Для стиля эко или этно подойдет плетеная мебель из натурального или искусственного ротанга, плетеные перегородки проемов открытой веранды, элементы растительного мира в интерьере.

В южных регионах, где солнца в избытке, веранда может служить местом отдыха в тени и прохладе. Здесь будет особенно уместен средиземноморский кантри или просто морская тематика. Холодные синие, голубые и белые тона не будут слишком притягивать солнечные лучи, создавая атмосферу свежести и морского бриза.

Советы по декору
Завершающим и самым приятным этапом в обустройстве банной пристройки, несомненно, является ее декорирование. В зависимости от стиля, для украшения стен подойдут картины с видами природы или цветочные панно.
На пол просторной веранды можно поставить кадки с живыми растениями или высадить под неостекленные проемы плетущиеся растения – розы, клематисы, дикий виноград. Вьющиеся многолетники со временем обовьют веранду и станут естественной защитой от яркого солнца. Самым неприхотливым растением в этом плане является дикий виноград. Он не требует особого ухода, а его листья до глубокой осени будут радовать яркими красными оттенками.

Не стоит забывать и про вечернее оформление веранды. Кроме проведения электричества, можно позаботиться и об альтернативных источниках света. Подойдут декоративные фонарики, ночники и светильники на солнечных батареях.

Обзор бани с верандой смотрите в следующем видео.
stroy-podskazka.ru
Проекты бань с террасой: фото, примеры, особенности

Раньше баня использовалась для очищения тела, сегодня посещение бани – это в первую очередь отдых на природе. Люди ходят в парную, потом дышат свежим воздухом на улице, делают шашлыки. По этой причине большинство тех, кто планирует постройку бани, выбирает варианты проект бани с террасой.
Проекты бань с террасой: преимущества
Терраса представляет собой открытую площадку, соединенную с домом. Она имеет фундамент и крышу, по углам расположены опоры. Стены у террасы могут отсутствовать, иметь высоту примерно 1/2 стен или почти до крыши.
Практически все любят после банных процедур или в перерывах выйти на террасу, попить травяной чай, насладиться красотой природы и тишиной. Если проектом она не предусмотрена, то придется сидеть в комнате отдыха, а это совсем другие ощущения. В городе мы дышим пылью, на природе же вы получаете возможность подышать чистым воздухом, который полезен для нашего организма.
По сути терраса – это дополнительное помещение, при этом его стоимость значительно ниже, чем постройка отдельной комнаты. Терраса позволяет функционально расширить полезную площадь бани, при этом ощутимо сэкономив.
На ней можно сделать небольшой хозяйственно-бытовой блок, оформить место для отдыха, поставить мангал. А если на террасе расположить печь, то получится баня с барбекю.
Баня с террасой могут иметь разные крыши или располагаться под одной. Второй вариант наиболее популярен и имеет важное преимущество. Проект бани с верандой под одной крышей обойдется значительно дешевле, чем строительство двух отдельных построек: бани и беседки. Экономия составляет около 30%. Преимуществом того, что баня с верандой будут под одной крышей, является также и то, что в таком случае проще проложить инженерные коммуникации.
Строения имеют разную крышу обычно в том случае, если они строились не одновременно, а поочередно, к примеру, у вас уже есть баня, но вы решили сделать пристройку в виде беседки.
Если же вы только начинаете строительство, то лучший вариант – это баня с террасой под одной крышей. Проекты такой постройки могут быть разными, о них мы расскажем далее.

Проекты бань с террасой: фото, особенности
Существует множество проектов бань с террасой. Они различаются в первую очередь размерами. Если у вас совсем небольшой участок, то обратите внимание на бани размерами 3х4 м, 3х5 м. Поскольку такие бани имеют малую площадь, обычно в них комната отдыха заменена на террасу. Такой вариант вам подходит только в том случае, если вы планируете использовать баню лишь в теплое время года, поскольку зимой на террасе находиться будет невозможно.
Более крупные по размеру бани 4х4 м, 4х5 м, 6х6 уже могут предусматривать баню с террасой-крыльцом. Такой вариант также оптимален для тех, кто имеет во владении небольшой земельный участок.
Несмотря на то, что терраса получается довольно компактной, это не значит, что она будет неудобна в эксплуатации. На ней вполне поместятся столик и стулья. Конечно, большой компанией здесь не собраться, но для отдыха 3-4 человек она вполне подойдет. Террасу также можно использовать для хранения веников для бани и сушки банного инвентаря (полотенец, шапочек и т. д.).
Баня с верандой (фото):


Если в вашем владении просторный участок, то вы можете позволить себе сделать большую открытую террасу. Такой вариант позволяет проявить творчество: здесь можно разместить уютные диваны, качели, шезлонги, мангал.
Фото бани с террасой:

На просторной террасе также имеется возможность оборудовать бассейн. Обычно его размещают между зоной для отдыха и выходом из бани, таким образом, выйдя из парной, вы сможете окунуться в прохладной воде и потом пройти в зону отдыха. Этот вариант, конечно, дороже и сложнее, но он невероятно удобный в использовании!
Фото бани с террасой и бассейном:

В магазинах продаются специальные перегородки, с помощью которых можно открытую веранду превратить в закрытое помещение. Это особенно актуально в прохладное время года, а также если вам нужно остаться с ночевкой.
Если вы выбрали проект угловой бани, то терраса может быть двойной: в таком случае ее лучше разделить на два участка: в одном из них сделать место для приготовления барбекю, а в другом – территорию для отдыха.
План угловой бани с верандой:

Если на участке имеется водоем, то прекрасным решением станет постройка бани рядом с ним, а на террасе можно сделать выход в воду. Но учтите, что в этом случае процесс строительства будет сложнее и потребуется дополнительное укрепление основания бани.
Обычно террасу делают вдоль одной стены бани: короткой или длинной. Но существуют и более сложные варианты, к примеру, она может идти вдоль двух стен сразу, в таком случае ее площадь будет значительно больше.
Минимальные размеры террасы – 6-8 квадратных метров. В этом случае на ней поместится небольшой стол и пара стульев. Но учтите, что оптимальным вариантом является терраса от 10 квадратных метров.
Если вы составляете проект двухэтажной бани, то террасу можно расположить как на первом, так и на втором этажах. Чаще делают на первом, поскольку в этом случае будет удобнее выходить на нее между заходами в парную.
Ниже представлены проекты и фото бани с верандой:




Особенности строительства бани с террасой
Терраса, как и сама баня, должна иметь надежное основание. Поэтому нужно заливать фундамент не только под само здание, но и под веранду. Если вы делаете небольшую баню из бруса, то достаточно будет простого столбчатого фундамента, для более тяжелых и масштабных построек лучше сделать ленточный фундамент.
Проект крыши бани с террасой может быть одно- или двускатным. Односкатный вариант кровли – это дешевый и простой вариант, монтаж которого осуществляется достаточно быстро. Двускатная крыша более популярна, она используется в том случае, если проект бани предусматривает наличие чердака или мансарды. Преимуществом двускатной крыши является возможность увеличить полезную площадь.
Терраса должна иметь два входа: из бани и с улицы. Этот вариант самый удобный. Если вход будет лишь по лестнице, то вам придется сначала выйти из бани, потом дойти до входа на террасу и лишь потом подняться на нее.
Если для отделки пола в бане подойдут вагонка или керамическая плитка, то здесь требования более строгие. Терраса будет находиться на открытом воздухе, следовательно, на нее будет постоянно воздействовать окружающая среда. Оптимальным покрытием для террасы считается палубная доска, которая обработана специальным водоотталкивающим составом. Она не боится атмосферных осадков и истирания.
Если террасу застеклить, то она станет альтернативой летнему домику, где можно будет оставаться на ночь.

Проекты бань с верандой или террасой невероятно популярны, и этому есть одно простое объяснение: они гораздо удобнее, чем обычные бани. Если вы думаете, делать террасу или нет, то лучше сделайте! Терраса дает возможность отдыхать на природе, если вы приехали в баню и решили приготовить шашлыки, то в случае дождя ваши планы не будут нарушены, вся компания сможет спрятаться под крышей террасы.
2 898
Автор публикации
Комментарии: 0Публикации: 198Регистрация: 13-01-2017
postroitbanju.ru
Проекты бань с террасой и барбекю (28 фото): зона отдыха 3 в 1

Стильная современная баня с террасой и барбекю
Проекты бань с террасой и барбекю – отличный способ компенсировать недостаток свободной площади на дачном участке. Такое объединение позволяет получить многофункциональную зону отдыха, которую дополнительно можно использовать и как летнюю кухню.
Содержание
Кроме того, такое решение и другие преимущества:
- организация полноценного отдыха – попарившись и расслабившись после бани, прямо на веранде, никуда не отходя, можно приготовить шашлык или закуски на огне
- совместное возведение помогает точно выдержать общий архитектурный стиль для всех построек на участке
- если баня на даче планируется использоваться только в сезон, тогда просторная терраса с барбекю может полностью заменить комнату отдыха, что поможет существенно сэкономить на строительстве бани
- нет необходимости связывать отдельно стоящие объекты дорожками, что позволяет дополнительно сэкономить полезную площадь, так и сократить расходы
- группировка нескольких объектов под одной крышей поможет ощутимо сократить расходы, ведь в этом случае, к примеру, стена бани будет выступать и стеной террасы
Выбор материала

Комплекс, включающий в себя бассейны, сауну и просторную зону отдыха
Самый популярный и экономически оправданный материал для строительства бани с террасой – это деревянный брус. С одной стороны, он хорошо держит тепло, поэтому баня не потребует дополнительного утепления. Кроме того, именно дерево – традиционный материал русской бани, оно позволяет создать неповторимую «банную» атмосферу. Дополнительный плюс – дерево как «дышащий» материал самостоятельно регулирует влажность, но при этом потребует дополнительной защиты от плесени и возгорания.
Бани из кирпича надежнее в плане пожарной безопасности, но они дольше прогреваются, требуя большего количества топлива. Кроме того, кирпичные бани потребуют обязательной установки системы вентиляции, в противном случае внутри бани начнет скапливаться конденсат, провоцируя развитие плесени и бактерий.

Наиболее распространенные варианты — бани из бруса

Традиционная русская баня из бруса
Закладка фундамента
Несмотря на часто общую крышу, под террасу и баню закладывают разный фундамент. Баня, естественно, тяжелее террасы, поэтому для больших по площади и многоэтажных построек потребуется ленточный монолитный фундамент, а для небольших бань можно обойтись и свайным. Если же для постройки бани используется пенобетон или кирпич, то обязательно заливается ленточный фундамент – другой просто не выдержит вес постройки.
Для деревянной террасы будет вполне достаточно свайного фундамента. В тех случаях, когда терраса будет расположена на сложном грунте, склонном к промерзанию или осыпанию, на склонах, то для повышения надежности лучше заложить винтовые сваи. При этом для деревянных построек очень важно правильно организовать гидроизоляцию между деревом и фундаментом, чтобы избежать загнивания древесины.
Совет! Поскольку грунт под более тяжелой баней будет усаживаться быстрее, чем под более легкой террасой, фундаменты террасы и бани необходимо разделить слоем утеплителя.

Важный этап строительства бани — закладка фундамента
Терраса и барбекю: планируем правильно
Планируя террасу, прежде всего необходимо учесть, какое направление ветра является основным, чтобы задание бани закрывало собой террасу. Кроме того, это позволит правильно разместить и барбекю, чтобы ветер относил дым и жар в сторону от отдыхающих. Если терраса будет служить для укрытия от солнечных лучей в жаркий летний день, то не стоит размещать её с южного направления. Или же наоборот – терраса с шезлонгом может стать отличным местом для приема солнечных ванн – здесь все зависит от пожеланий и вкусов хозяина. Кроме того, на выбор расположения террасы немало влияет и окружающий пейзаж – созерцание забора врядли добавит настроения на отдыхе, куда приятнее любоваться лесом, озером или благоустроенным ландшафтным дизайном.
Террасу можно расположить фронтально (т.е. вдоль фасада бани, рис. 1), сбоку (возле одной из стен), она может иметь угловое расположение (вдоль двух примыкающих стен) или опоясывающие (вдоль трех стан, иногда и полностью вокруг бани, если позволяет территория).

Рис. 1. Проект бани с фронтальным расположением террасы

Фронатльное расположение террасы

Проект стильной и лаконичной бани с террасой и барбекю
Если вы не планируете приглашать много людей, то с учетом установки барбекю (мангала), минимальная рекомендуемая площадь террасы – 7-8 м2. Но лучше начинать с 9-10 м2, тогда кроме столов и стульев на террасе можно будет поставить шезлонг, пару кресел, при этом человек, стоящий у барбекю, будет иметь достаточно свободного места для работы, а отдыхающим не будет докучать жар от печки и дым.
Хотя терраса в классическом понимании – это открытая площадка, для большего комфорта она имеет крышу для защиты от осадков и солнца. Это может быть продолжением крыши бани и быть выполнена из аналогичного кровельного материала, а можно накрыть террасу полупрозрачным поликарбонатом. Кроме того, непрозрачный навес будет создавать полумрак в самой бане, поэтому придется раньше включать свет.
Совет! Поликарбонатное покрытие особенно оправдано для больших по площади террас – нет необходимости сооружать массивное основание, легкая металлическая конструкция не будет загромождать пространство, оставаясь практически незаметной.
Для пола на террасе лучше всего подойдет деревянная доска или декинг. Конечно, можно положить тротуарную или керамическую плитку, но дерево будет смотреться уютнее. Природный камень используют в качестве покрытия на большой террасе

Природный камень станет эффектной отделкой для террасы
Для установки барбекю необходимо заложить фундамент отдельно, а для строительства используют специальный огнеупорный кирпич, при этом основание делают высотой порядка 70 см от уровня пола.
Совет! Для улучшения пожарной безопасности, вокруг барбекю лучше положить каменную (кафельную) плитку вместо деревянного покрытия – даже если на неё упадет искра, она не вызовет возгорание.
В передней стенке делают прямоугольную нишу, в которой можно будет хранить небольшой запас дров. Для отвода дыма для барбекю делают отдельный дымоход, который по высоте должен обеспечить эффективный отвод дыма от бани.

На террасе нужно отвести место под дрова

Просторный релакс-комплекс, включающий комнаты отдыха, баню, террасу с барбекю
Проектирование бани с террасой и печью для барбекю
Проект бани, вне зависимости от типа (русская, турецкая, финская) должен предусмотреть наличие, как минимуму, трех помещений:
- раздевалка – предбанник с минимальным размером 1,2×3 м, но при этом следует учесть, что по нормативам на человека должно приходиться 1,3 м2
- душевая – минимальный размер 2х2м
- парилка – её размер – это компромисс между удобством размещения и необходимостью поддержания требуемой температуры при небольших затратах топлив (электричества). Минимальный размер парилка для 2-3 человек составит 1,3×1,8 м.
При наличии просторной террасы для сезонной бани можно отказаться от комнаты отдыха. Планирование остальных помещений, естественно, зависит от желания и возможностей будущего владельца.

Продольный проект бани с террасой, соединенными между собой поликарбонатной крышей

В данном проекте под одной крышей умещается все необходимое для отдыха в бане
Рассмотрим некоторые проекты подробнее.
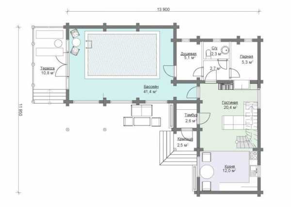
Угловая баня с террасой и барбекю (рис. 2) позволяет эффективно использовать площадь участка, если расположить её в одном из углов.

Рис. 2. Угловая баня с террасой и барбекю
Пространство используется очень функционально – в просторной душевой установлена купель с холодной водой. Достаточно просторная парилка – топить печь в ней будет достаточно комфортно, при этом она смещена ближе в угол, подальше от входной двери – так безопаснее, ведь глазам после яркого освещения душевой надо привыкнуть к приглушенному свету парилки. Если в качестве материала для бани выбран кирпич, то печку можно врезать в стены. Если сделать парную чуть меньше, то при таком расположении печки её можно топить из душевой. В общий тамбур есть два входа – один непосредственно с улицы, второй – с террасы.
Проект бани-гостевого домика (рис. 3) с верандой и барбекю, достаточно большой площади – 98 м2. Поэтому, если предполагается её круглогодичное использование, потребуется установка системы отопления. Внутри – просторная комната отдыха и отдельная кухня. Терраса располагается с боку, по площади – она фактически половина строения. Вход с двух сторон – с улицы через тамбур (зимний вход) и с террасы.

Рис. 3 Баня – гостевой домик с барбекю и террасой
На рис.4 и 5 представлены еще два проекта бани с террасой и барбекю, которую можно использовать как гостевой домик.

Рис. 4. Проект бани-гостевого домика террасой и барбекю

Рис. 5. Баня с террасой и барбекю
На рис. 6 чертеж бани с террасой и барбекю, на котором стоит обратить внимание на входную дверь в комнату отдыха – она расположена на максимальном расстоянии от барбекю, чтобы полностью исключить возможность попадания дыма в помещение.

Рис. 6. Чертеж бани с террасой и барбекю
Баня из бруса с верандой и барбекю в традиционном русском стиле – смотрите видеопрезентацию:
happymodern.ru
Проекты одноэтажных бань — 11 вариантов!
Бани из бруса не теряют свою актуальность. Эти одноэтажные конструкции известны своей компактностью и уютом, они очень функциональны и позволяют почувствовать настоящее единение с природой. Такое сооружение ничуть не уступает пространственным баням из бревна, а также парным из кирпича и иного подходящего материала.
Одноэтажные бани из древесины – это одно из лучших украшений ландшафта даже в условиях ограниченного пространства. К тому же строительство такой бани никогда не будет производиться в ущерб возведения основного строения.

Одноэтажная баня (рис. 1)
Обычно при разработке типового проекта одноэтажной бани предусматривают наличие трех помещений: парной, душевой и комнаты для отдыха. В зависимости от расположения помещений, их габаритов и размеров самой бани, встречаются разные конструкции самой неожиданной планировки. Ключевая особенность одноэтажной застройки заключается в наличии благоустроенной террасы или веранды, которые выполняют роль дополнительного помещения для отдыха в теплый период. Если же в бане имеется закрытое крыльцо, то оно вполне может послужить отличной комнатой для релаксации в холодное время года.

Парная (рис. 2)
Бюджетность (дороговизна) проекта определяется отсутствием (наличием) крыльца или веранды, хотя подобные строения ни в коем случае не сказываются на функциональности бани и являются лишь дополнительными постройками.
Фирмы, предоставляющие услуги разработки проекта и его реализации, утверждают о популярности одноэтажных бань с террасой, то есть со вспомогательной зоной для отдыха в весенне-летний период. Благоустраивается терраса с помощью деревянных перил и решеток с балясинами, а ее габариты дают возможность расположить такие элементы интерьера, как плетенные стулья и столик, полочки для банных принадлежностей. Все эти предметы мебели отвечают за комфортный и полноценный отдых в бане для ценителей свежего воздуха и природного великолепия после парной.

Одноэтажная баня с открытой террасой (рис. 3)
Кроме того, проектом одноэтажной бани может быть предусмотрено и строительство гостевого домика. В этом случае прямо на одной территории с баней будет располагаться и помещение, где будут проживать гости. Подобное строение является многозадачным, и этот факт часто радует заказчиков. При таком раскладе закрытая терраса или веранда легко обустраиваются под кухню, а комната отдыха превращается в полноценное жилое помещение с обустроенными спальными местами и зонами досужего отдыха. Проживающие в таком доме-бане не чувствуют себя ущемленными ни в уюте, ни в комфорте, ни уж точно в функциональности.
Можно долго рассуждать о том, какие одноэтажные бани из сруба и бревен готовы предложить сегодня производители, чем могут удивить, если не сказать поразить заказчика, но лучше увидеть воочию проекты типовых построек и под заказ (с дополнительными помещениями), а также сделать выводы самостоятельно. Итак, добро пожаловать в мир проектов одноэтажных бань из сруба!
Содержание материала
Вариант 1
Проект одноэтажного дома площадью 35,7 м², совмещенного с парной (5,8 м²), несет в себе функциональность жилого обустроенного помещения и парного комплекса. Это очень популярный вариант строительства, пользующийся повышенным спросом у собственников, работающих в сфере туристических услуг, поскольку такое строение позволит клиентам не только получить удовольствие от банных процедур, но и отдохнуть в просторной комнате отдыха (10,3 м²).

Баня-дом из сруба 35,7 м² (рис. 4)
Проектом дома-бани (рис. 5) комната для отдыха совмещена с кухней, где присутствуют все необходимые атрибуты (плита, рабочее место, стол). Просторная благоустроенная терраса станет идеальным местом для отдыха гостей в теплое время.

Проект бани-дома (рис. 5)
Такой вариант бани-дома считается привлекательным не только для обычного дачника, но и для преуспевающего человека. Причин несколько:
- отсутствие лестниц, которые зачастую «съедают» пространство;
- дом, совмещающий в себе два строения (жилой дом и баню), позволяет сэкономить на строительстве отдельно стоящего дома, что в конечном счете позволяет более рационально использовать площадь участка.
Визуализация дома-бани представлена на рис. 6, 7, 8, 9 (Визуализация).
- Визуализация (рис. 6)
- Визуализация (рис. 7)
- Визуализация (рис. 8)
- Визуализация (рис. 9)
Вариант 2
Типовой проект совмещенной бани и жилого дома представляет собой практичную и недорогую постройку площадью 29,2 м². Просторная парная (5,0 м²) совмещена с душевой комнатой площадью 3,7 м², способной принять не менее 4 человек. При расчете приблизительно площади будущего строения, необходимо учитывать минимально допустимый метраж на 1 человека – не менее 1 м². Исходя из данного проекта делаем вывод, что в данной парной может свободно уместиться 4-5 человек.

Баня-дом площадью 29,1 м² (рис. 10)
Одноэтажный дом успешно совмещает в себе функционал жилого помещения и бани: здесь имеется просторная гостиная (11 м²) с кухней и зоной отдыха, отдельный санузел, моечная (3,7 м²). Проектом предусмотрено наличие тамбура и открытой террасы.

Проект бани-дома (рис. 11)
Интересная деталь данного архитектурного замысла – это оконные рамы, окрашенные белой краской, что придает постройке более торжественный и нарядный вид.
С помощью визуализации можно детально рассмотреть баню-дом со всех сторон. Рис. 12, 13, 14, 15.
- Визуализация (рис. 12)
- Визуализация (рис. 13)
- Визуализация (рис.14)
- Визуализация (рис. 15)
Вариант 3
Для настоящих ценителей красоты русского зодчества приятной находкой окажется одноэтажный дом-баня площадью 49,7 м². Привлекательная наружная архитектура и удобное размещение помещений – это заслуга оригинальной планировки.

Баня-дом площадью 49,7 м² (рис. 16)
Общая площадь постройки – 49,7 м². Просторная комната отдыха (11 м²) с большим окном и открытая терраса (8,4 м²) обеспечивают полноценных отдых проживающих. С террасы можно пройти в небольшой тамбур, откуда есть вход в комнату отдыха. Из нее можно попасть сначала в душевую площадью 3,7 м², а затем и в парную или отдельный санузел. Площадь парной – 5 м², а значит в ней легко может уместиться 4-5 человек.

Проект бани-дома (рис. 17)
Дополнительное удобство представленного одноэтажного строения заключается в открыто террасе, где можно расположить стол или лавочки, а также принадлежности для барбекю. Кроме того, проектом предусмотрена кухня-каминная, совмещенная с жилым помещением.
Визуализация дома представлена на рис. 18, 19, 20, 21.
- Визуализация (рис. 18)
- Визуализация (рис. 19)
- Визуализация (рис. 20)
- Визуализация (рис. 21)
Вариант 4
Следующий проект представляет собой комфортабельную баню, которая располагает всего одним этажом и общей площадью 42,2 м². Вся площадь разбита на шесть основных зон: гостиную комнату, совмещенную с благоустроенной кухней, тамбур, душевую с отдельно стоящим санузлом, парную (5,8 м²) и открытую террасу, размеры которой сравнимы с комнатой для отдыха (9 м²).

Баня-дом площадью 42,2 м² (рис. 22)
Баня-дом площадью 42,2 м² (рис. 21) полностью отвечает русским традициям. Благодаря двускатной крыше, небольшому лестничному маршу и огражденной просторной веранде постройка приобрела особый уют и изысканность. Из террасы можно попасть в тамбур, а оттуда в гостиную и душевую.
[adrotate group=»5″]
Проект бани-дома (рис. 23)
Удобное расположение помещений и привлекательная наружная архитектура – неоспоримые достоинства этого проекта. Как выглядит строение с разных сторон можно увидеть на рис. 24, 25, 26, 27.
- Визуализация (рис. 24)
- Визуализация (рис. 25)
- Визуализация (рис. 26)
- Визуализация (рис. 27)
Вариант 5
Для тех, кто предпочитает максимум функциональности при минимуме изысков оптимальным вариантом станет баня-дом из сруба общей площадью 40м², изображенная на рисунке. Такое компактное и внешне привлекательное строение станет прекрасным местом как для размеренного отдыха в кругу друзей, так местом для приятного уединения на фоне природы.

Баня-дом из сруба 40 м², (рис. 28)
Ключевая особенность проекта состоит в том, что заказчику предоставляется право выбрать материал строительства (оцилиндрованные бревна или древесина ручной рубки). Эстетичная и в меру демократичная постройка идеально впишется в любой ландшафт, будет хорошо смотреться в любом уголке участка. Размеры бани-дома позволяют разместить ее даже в условиях ограниченного пространства. Хорошо продуманы и внутренние помещения: гостиная с кухней (общая площадь 10,5 м²), большая моечная с отдельным санузлом, просторная парная (6 м²), удобный тамбур и терраса (7,4 м²), где спокойно уместится большая компания за праздничным столом.

Проект бани-дома (рис. 29)
Удобное расположение помещений внутри строения, компактность и презентабельность постройки – это несомненные плюсы данного проекта. Особую торжественность бани придает оригинальная отделка веранды и белоснежные оконные проемы.
Детально рассмотреть одноэтажную баню-дом со всех ракурсов можно с помощью визуализации на рис. 30, 31, 32, 33.
- Визуализация (рис. 30)
- Визуализация (рис. 31)
- Визуализация (рис. 32)
- Визуализация (рис. 33)
Вариант 6
Парная или баня – это то место, без которого немыслим полноценный русский отдых. Во все времена к таким строения предъявлялись серьезные требования: банное помещение должно быть удобным, просторным, максимально функциональным и выполненным из дерева. Благодаря оцилиндрованным бревнам хвойных пород баня будет быстро прогреваться и приносить эстетическое удовольствие.

Баня-дом площадью 41,2 м² (рис. 34)
Проектом бани предусмотрен всего один этаж и четкое разделение на зоны: открытая терраса, готовая принять в дом гостей, огромная комната отдыха с прилегающей к ней кухней (14,8 м²), душевая (3,4 м²), парная (4,5 м²), изолированный санузел и небольшой тамбур, собственно с которого и начинается виртуальное знакомство с домом.

Проект бани-дома (рис. 35)
Грамотная архитектура и рациональные инженерные решения позволяют вписать баню-дом в любой приусадебный участок, а также построить его вблизи строений самых разных экстерьеров. Благодаря обработке бревен антисептиком, баня прослужит не один десяток лет.
Оценить привлекательность и изысканность строения с разных сторон можно, посмотрев рис. 36, 37, 38, 39.
- Визуализация (рис. 36)
- Визуализация (рис. 37)
- Визуализация (рис. 38)
- Визуализация (рис. 39)
Вариант 7
Известный факт: одноэтажные бани очень удобны в эксплуатации, их легче обслуживать и ремонтировать при необходимости.
Проект одноэтажного дома площадью 41,6 м², совмещенного с парной (4,8 м²), несет в себе функциональность жилого обустроенного помещения и парного комплекса. Особенность данного проекта состоит в том, что для размещения жилого дома и банного помещения используется один фундамент.

Баня-дом площадью 41,6 м² (рис. 40)
Все, что может только понадобиться постояльцу для расслабляющего отдыха в жаркой бане и комфортного проживания в течение всего года – все это с легкостью уместилось на 41,6 м². Здесь имеется просторная гостиная (14,6 м²), успешно совмещающая в себе кухонное помещение и зону отдыха, отдельный санузел, моечная (3,4 м²) и парная (4,8 м²).

Проект бани-дома (рис. 41)
Проектом предусмотрено наличие хозяйственного помещения (тамбура) и открытой веранды. Убедиться в том, что этот проект является наиболее удачным архитектурным решением, можно рассмотрев постройку на рис. 42, 43, 44, 45.
- Визуализация (рис. 42)
- Визуализация (рис. 43)
- Визуализация (рис. 44)
- Визуализация (рис. 45)
Вариант 8
Проект бани-дома из сруба – это превосходное решение для обустройства небольшого приусадебного участка. Несмотря на свою компактность, баня объединила в себе и исконно русскую парилку (4,8 м²), и просторную комнату отдыха (14,6м²), и хозяйственные помещения, и даже уютную террасу. И все это разместилось на одном этаже всего на прямоугольнике 7,7 м на 5,4 м.

Баня-дом площадью 41,6 м² (рис. 46)
Сдержанная простота и лаконичность, максимальная функциональность и удивительная компактность – данная баня-дом станет отличным решением для тех, кто ценит прежде всего качество и удобство. Все это не мешает сооружению гармонично вписаться в дизайн участка.

Проект бани-дома (рис. 47)
Комфортное пребывание в доме, построенном из хвойной породы древесины, гарантированно.
Оценить привлекательность и изысканность строения с разных сторон можно, посмотрев рис. 48, 49, 50, 51.
- Визуализация (рис. 48)
- Визуализация (рис. 49)
- Визуализация (рис. 50)
- Визуализация (рис. 51)
Вариант 9
Стилистика этого проекта несет в себе исконно русские традиции и культуру, это просматривается и в архитектуре, и в отделке фасада и отдельных его элементов.

Баня-дом площадью 46,8 м² (рис. 52)
Постройка с двускатной крышей разделена на несколько основных зон: просторная гостиная (15,4 м²), успешно совмещающая в себе кухонное помещение и зону отдыха, отдельный санузел, моечная (3,7 м²) и парная (3,7 м²), рассчитанная на одновременное пребывание 2-3 человек. Каждое помещение имеет собственное окно (в гостиной их два), так что о недостатке света говорить точно нельзя.

Проект бани-дома (рис. 53)
Здесь все очень продумано и чрезвычайно удобно: на просторную открытую террасу (9,2 м²) ведет лестничный марш. Дверь на террасе ведет в тамбур, откуда можно попасть в комнату отдыха. Ее площадь (15,4 м²) позволяет принимать достаточно большую компанию.
Возможности визуализации позволяют оценить привлекательность и стиль проекта одноэтажно бани. (рис. 54, 55, 56, 57).
- Визуализация (рис. 54)
- Визуализация (рис. 55)
- Визуализация (рис. 56)
- Визуализация (рис. 57)
Вариант 10
Баня-дом площадью 54,8 м² (рис. 58).

Баня-дом площадью 54,8 м² (рис. 58)
Максимум функциональности, красивый, эстетичный внешний вид и крепость русского духа – это и многое другое олицетворяет проект одноэтажной бани-дома, выполненный бревен ручной рубки или оцилиндрованных бревен. Общая площадь постройки 54,8 м². Такой простор дает волю архитекторам и дизайнерам. Ориентируясь на вековые традиции русского народа, последние сумели сделать проект добротным и удобным для проживания. Жилое помещение и баня расположены на одном фундаменте, что позволят расположить строение на любом, даже весьма ограниченном пространстве.
[adrotate group=»5″]
Проект бани-дома (рис. 59)
Хорошо продуманы и внутренние помещения: гостиная, совмещенная с кухонным помещением (общая площадь 14,5 м²), по форме напоминающая пятиугольник, большая помывочная с отдельным санузлом, просторная парная (6,1 м²), удобный тамбур и терраса (7,4 м²), где спокойно уместится большая компания за праздничным столом.
Оценить достоинства одноэтажной постройки можно благодаря возможностям визуализации (рис. 60, 61, 62, 63).
- Визуализация (рис. 60)
- Визуализация (рис. 61)
- Визуализация (рис. 62)
- Визуализация (рис. 63)
Вариант 11
Баня-дом площадью 55,4 м², представленная на рисунке, станет отличным решением для тех, у кого в приоритете надежность, качество и эстетичность. Одноэтажная баня, выполненная по этому проекту, прекрасно впишется в любой ландшафт приусадебного участка.

Баня-дом площадью 55,4 м² (рис. 64)
Для ее возведения используется оцилиндрованное бревно хвойных пород или древесина ручной рубки, обладающая полезными свойствами. Общая площадь одноэтажной бани составляет 55,4 м², это позволяет разместить в ней большую компанию, где можно будет не только хорошо отдохнуть в просторной и светлой гостиной (14,3 м²), но и попариться в благоустроенной парной (5,5 м²). Рядом расположена моечная (5,7 м²) с отдельным санузлом (2,5 м²).

Проект бани-дома (рис. 65)
Проектом предусмотрено наличие хозяйственного помещения (тамбура) и открытой террасы (12,1 м²) с лестничным маршем. Убедиться в том, что этот проект является наиболее удачным архитектурным решением для настоящего эстета, можно рассмотрев постройку на рис. 66, 67, 68, 69.
- Визуализация (рис. 69)
- Визуализация (рис. 68)
- Визуализация (рис. 67)
- Визуализация (рис. 66)
Видео – Проект одноэтажной бани VIP-2 с большой террасой и зоной барбекю
Видео – Баня с идеальной планировкой. Проекты одноэтажных бань
banya-expert.com
