Как сделать прицеп к мотоблоку своими руками
Мотоблок – самоходное техническое средство, незаменимый помощник в частном хозяйстве. Дополнение спецтехники осями, коробом и водительским сиденьем расширяет ее функциональные характеристики. Мотоблок с прицепным устройством может работать как мини- грузовик.
Оглавление:
- Характеристики и стоимость промышленных прицепов для мотоблоков
- Предварительные чертежи прицепа мотоблока
- Изготовление и сборка ходовой части самодельного прицепа
- Материал и конструкция рамы самодельного прицепа
- Из чего можно сделать каркас для тележки-прицепа
- Средние мотоблоки. Прицепы самодельные, изготовленные из металлопроката. Поэтапная инструкция сборки
- Тяжелый мотоблок. Как сделать прицеп из автодеталей
Характеристики и стоимость промышленных прицепов для мотоблоков
Промышленный, готовый прицеп для мотоблока характеризуется грузоподъемностью 0,3 т — 1 т и разными габаритами. Выбирается тележка по мощности мотоблока и его техническим параметрам:
- Прицеп с габаритными размерами кузова 1 м х 0,85-1.15 м, с грузоподъемностью 300 кг предназначен для легких мотоблоков. Стоимость кузова от 200$ и выше.
- Адаптеры для средних по мощности мотоблоков от 5 л. с. имеют габариты 1х1.4-1.5 м, грузоподъемность до 500 кг. Средняя цена прицепа от 250$.
- Для мотоблоков тяжелого типа продаются двухосные прицепы с габаритами 1.2 м х 2-3 м, грузоподъемностью до 1000 кг. Стоимость тележки от 500$.
Сделать на любой мотоблок прицеп своими руками не трудно. Далее рассмотрим все принципиальные моменты и саму технологию изготовления.
Предварительные чертежи прицепа мотоблока
Кузов прицепа принято изготовлять из оцинкованных, стальных окрашенных листов или из прочного пластика. Металлические бортики и днище из металла прослужат дольше, чем пластиковые, но по себестоимости второй вариант обойдется дешевле.
Определившись с материалом для прицепа, приступайте к составлению чертежей или технических схем для несущих элементов:
- соединительной рамы,
- несущего водила,
- рабочего кузова.
Навык конструктора-механика необязателен, достаточно схематично изобразить набросок будущей повозки.
Почему предварительный этап необходим? На рисунке визуально проступает модель, видны сложные участки, уточнены габариты, прорисованы соединительные узловые элементы и их возможное подсоединение или соединение. Пример чертежа:
Чертеж показывает способ сцепления несущих ходовых элементов. Водило сцеплено с модулем мотоблока узлом поворота и консольным элементом, второй край водила присоединяется к раме с помощью центральной трубы. Присоединение к мотоблоку производят через консоли и тупицы. Изготавливают осевой стержень по размеру сцепного механизма мотоблока. Верхний осевой конец выступает в качестве опоры, поворотный узел водила выполняет вращение вокруг нее на подшипниках. Шарикоподшипники прикрывают антипыльником, пустоты заполняют специальным смазочным веществом.
Опытного умельца не затруднит выбор деталей, элементов, инструментов и запчастей в соответствии с составленным чертежом. Для самого простого варианта тележки необходимы следующие запчасти:
- Колеса. Чаще всего берут колеса от мотоколяски или от автомобилей. Они покупаются с рук или приобретаются на разборке. Размер и прочность обода соответствуют нагрузке в 300 кг т более.
- Колесная ось. Изготовляется из стального стержня с диаметром не меньше 30мм. Длину стержня рассчитывают самостоятельно, опираясь на ширину кузова. Оптимальная величина стержня не допускает выступа колес прицепа за обвод кузова.
- Упорное кольцо. Для этих целей подходит трубка 58 х 4.
- Болты M 8.
- Балка для опоры — 3 шт.
- Доски для короба.
- Рама для сцепления с мотоблоком.
- Водительское место из подручного материала.
- Подставка для ног.
- Простейшее водило.
- Консоль из обрезка трубы.
- Кронштейны по размеру.
Изготовление и сборка ходовой части самодельного прицепа
Для изготовления водила необходимо:
- Накладки 25х4.
- Фланцы размера S 4.
- Опоры из труб 58х4.
- Уголки 25х25х4 под ножную подставку.
- Труба для дышла.
Водило простой конструкции состоит из минимального количества элементов, сваренных по схеме. Максимально нагружаемые части – дышло и поворотник, упрочняют ребрами жесткости. Водило сцепляется с рамой мотоблока шарнирным способом. Конструктивная модель «труба в трубе» формирует подобие длинного шарнира и позволяет колесной базе прицепа изменять положение самостоятельно, вне зависимости от колесной базы мотоблока. Такое решение защищает конструкцию прицепа от деформации и дает возможность легко преодолевать ямы или кочки.
Водило крепится к центральной трубе с помощью болтов, контргаек и шпилек. Вытачивают в центральной трубе вытянутое отверстие, чтобы фиксирующий болт вращался вдоль оси сцепа без продольного смещения.
Колесная база конструируется из деталей любых отечественных автомашин, подбираются колеса, рессоры, навески. Части и элементы приваривают к балке, а окончания присоединяют к лонжерону.
Дышло изготавливается из трубы 60х30 мм, приваренной к передним частям лонжеронов. Края лучей состыковываются и привариваются к тяговой механической сцепке. Получается аналог заводского двух лучевого дышла.
Материал и конструкция рамы самодельного прицепа
Рама служит основной несущей конструкцией. Выполнять расчет всех габаритов и составляющих элементов необходимо по чертежу, с высокой точностью, с исключением любых неточностей, возникающих при выпиливании, соединении швеллера, труб и уголков.
Простая, легкая, прочная рама изготовляется из трубы с прямоугольным сечением 60 х 30 мм. Она составит несущую конструкцию. Роль траверсы выполнят стальные квадраты размером 25 х 25 мм.
Материал несущей рамы подбирается по характеристикам, способным обеспечить условия прочности и жесткости, препятствовать деформации конструкции при предельно допустимой нагрузке. Рама на самодельный прицеп для мотоблока легкого типа изготовляется из любого доступного материала: металлического уголка, стальной трубы с прямоугольным, круглым сечением.
Прицеп мотоблока средней мощности выполняется на раме, с применением следующих элементов:
- раскос 20х20.
- уголок 20х20 для водительского сиденья
- стойки для сиденья из уголка 40х40.
- передние распорки из трубы 40х20.
профиль обвязки рамы из уголка 40х40.- уголок 32х32 для стойки колесной оси.
- раскосы задние из трубы 40х20.
- усилитель поперечный из уголка 40×40.
- осевой прут 30 мм.
- сплошной треугольник.
Замысловатая конструкция рамы обеспечит избыточный запас прочности и позволит перевозить в кузове тяжелые, объемные грузы и материалы. Изготовить раму усиленной конструкции стоит в случае частой эксплуатации нагруженного прицепа по бездорожью. Сварочный аппарат. Он понадобится для прочного соединения всех частей. Саморезы в данном случае не смогут придать конструкции прочность и долговечность.
Из чего можно сделать каркас для тележки-прицепа
Прицеп к мотоблоку изготовляется из профнастила, листового металла с толщиной 1 мм, досок с толщиной в 2 см, старого кузова автомобиля, мотоциклетной коляски или из окрашенных оцинкованных листов. Для кузова подходит любой материал доступный для изготовителя и не удорожающий постройку.
Для деревянного кузова углы упрочняют металлическими накладками.
Для кузова из профлистов или оцинкованного листа используют металлический профиль. Он набивается на днище по длине и ширине для защиты материала днища от провисания, деформации или выгибания.
Средние мотоблоки. Прицепы самодельные, изготовленные из металлопроката. Поэтапная инструкция сборки
Первый этап изготовления начинается после разработки чертежа и расчета размеров прицепной конструкции. Средний мотоблок позволяет перевозить груз до 500 кг, следовательно, грузоподъемность тележки будет большая. Для конструкции стоит выбрать металлопрокат, обеспечивающий расчетную грузоподъемность с запасом прочности. По общим размерам прицепа высчитывается метраж металлического проката и количество швеллеров, выступающих в качестве сцепной рамы. Точный расчет помогает сэкономить на расходных материалах и облегчает сборку сложной конструкции.
Материалы для тележки:
Металлопрокат. Длина индивидуальная, расчетная.- Уголок стальной 50х25мм.
- Уголок стальной 40х40мм.
- Обрезки труб прямоугольного и круглого сечений.
- Доски с толщиной 2 см для кузова.
- Брус 50х50 мм для опорных балок.
Второй этап. Для быстроты проекта, воспользуйтесь готовой схемой конструктивной части, представленной в главе « предварительные чертежи».
Кузов изготовьте из деревянных досок, углы укрепите стальным уголком. Прикрепите кузов к раме при помощи опорных балок, выполненных из деревянных брусьев. На кузове, по желанию, делайте бортовые петли и лямки для фиксации груза при перевозке. Готовый прицеп представлен в виде одноосевой конструкции. Недостатком такого кузова является смещение центра тяжести к передней части прицепа, при эксплуатации приходится следить за правильным распределением нагрузки. Вторым недостатком одноосевой конструкции прицепа считается отсутствие откидного бортика.
Третий этап. Сборка ходовой части производится из доступных запчастей и материалов.
Колесной осью выступит стальной стержень с диаметром 30 мм. Длина стержня рассчитывается так, чтобы колеса не выступали за обводку кузова. Стержень приваривается к лонжеронам и корпусу продольного шарнира через косынку и уголковую опору.
Тяжелый мотоблок. Как сделать прицеп из автодеталей
Мотоблок тяжелого класса, например «Зирка», оборудуется качественным недорогим прицепным устройством из автодеталей. Время на сборку по заранее составленному чертежу и подготовленным деталям составляет 1-2 дня.
Материалы и детали для прицепа:
- Швеллер 65 мм по длине кузова.
- Передние полуоси от «Москвича» или «Жигулей».
- Профильная труба 60х40 мм. Длина 3.5 м. Количество 1 единица.
- Трубы длиной 2 м. Количество 2 единицы.
- Уголки 60х60 мм.
- Сварочный аппарат.
Основной несущей деталью будет ось, изготовленная из швеллера. Его длина выбирается по усмотрению, в зависимости от предполагаемой ширины кузова. К швеллеру с обеих сторон привариваются передние полуоси от автомашины. Сверху укладываются профильные трубы по следующей схеме:
- Одна труба кладется точно по центру. Длина отрезка от оси до задней части прицепа = 1 м, длина в передней части = 2.5 м.
- По краям швеллера, на стыке его торца с полуосями, кладутся двухметровые трубы. Стык швеллера должен делить каждую из них пополам.
- Трубы укладываются параллельно относительно друг друга.
- Окончания коротких труб крепятся по перпендикуляру уголками.
Центральная, длинная труба выступает в качестве дышла. Длина регулируется в соответствии с габаритами прицепного устройства. От передних углов прицепа протягиваются профильные трубы или уголки, обеспечивающие конструкции жесткость и прочность. Стыки провариваются или соединяются болтами.
На готовую раму устанавливается простейший деревянный кузов с сиденьем для водителя, прицепное устройство присоединяется к дышлу.
В коробе оборудуются скобы, подобия петель. При необходимости к петлям пристегивается самодельным тент.
Изготовленный самостоятельно прицеп для мотоблока не обойдется даром. Средства на приобретение вспомогательных и основных деталей выделить придется. Не все материалы найдутся в подсобном хозяйстве. Для сопоставления расходов на собственное производство и расходов на приобретение нового заводского прицепа составьте смету. Заносите в нее все статьи расхода. По окончании домашнего производства подведите итог и получите удовлетворение от своего умения делать полезные, необходимые вещи, с выгодной экономией для бюджета семьи.
Как сделать телегу для мотоблока своими руками?
Трудно представить заядлого садовника без мотоблока в хозяйстве. Это незаменимая вещь, которая, прежде всего, необходима при вспахивании земли на садовом участке. Но функции мини-трактора можно расширить, присоединив к нему тачку/прицеп. Конечно, тележку для мотоблока легко купить в профильном магазине, но настоящий мужчина легко сможет смастерить прицеп на мотоблок самостоятельно.
Вариации тележек
Вариации тележек данному виду техники напрямую зависят от способности транспортировать определенный груз.
- Простая одноосная тележка. Максимальный вес подъема до 70 кг. Ее конструкция будет простой и недорогой.
- Телега для мотоблока грузоподъемностью до 110-120 кг. Наиболее универсальный вариант для использования в хозяйстве.
- Прицеп для перевозки тяжестей с весом более 120 кг. Конструкция усложняется, увеличиваются затраты на материал для рамы и облицовки. Данный вариант более дорогостоящий, но и возможности тележки значительно возрастают.
Самостоятельный монтаж мотоблочного прицепа ‒ проще не бывает
Как сделать прицеп к мотоблоку своими руками? Главное, что вам необходимо для экономии затрачиваемых сил и избегания нежелательных ошибок ‒ это правильные чертежи прицепа для мотоблока и схемы.
Подобрав точные чертежи своими руками и размеры планируемого прицепа, нужно просчитать все нюансы при изготовлении.
- Продумать, для перевозки чего изготавливается телега: будет ли это некрупногабаритный, легкий груз или, скорее всего, тяжелый. Исходя из этого, выбирать материал по прочности для каркаса и обшивки прицепа.
- Если прицеп будет самосвальным, двухосным, с большой грузоподъемностью, то есть необходимость оснащения его гидравлическим приводом. Это нужно для легкого опрокидывания.
- Для модели с одной осью (одноосный) вполне хватит устройства ручного типа.
- Для безопасности телегу, у которой грузоподъемность будет больше 350 кг, необходимо оборудовать механическим самодельным тормозом. Когда мотоблок с тележкой будет достаточно загружен, то при спуске с горки его остановить будет невозможно. Но так как сделать тормоза на прицеп к мотоблоку самостоятельно достаточно сложно, поэтому лучшим вариантом будет помощь квалифицированного человека.
Первый этап ‒ подготовка необходимых деталей и инструментов
В общем это обычное сочетание кузова, рамы, колес и сцепки. Для монтажа самодельного прицепа к мотоблоку вам нужно приобрести (а возможно, они уже есть в хозяйстве) такие детали:
- трубы диаметром 60х30 мм и 25х25 мм, обычно они должны быть железными для надежности будущего изделия;
- два колеса, возможно, у вас завалялись старые ненужные от «Москвича», а также рессоры;
- листы дюралюминиевые, их толщина должна быть около 2 мм;
- листы стали, их толщина должна быть около 0,8 мм;
- швеллер №5;
- крепежные элементы.
Конечно, вам не обойтись при монтировании тележки для мотоблока без необходимых инструментов: болгарки для резки деталей, электрического лобзика, шуруповерта и сварки.
Рама для мотоблочной телеги
Чтобы сделать прицеп для мотоблока своими руками надежным и долговечным, необходима очень прочная рама.
При производстве решетки для каркаса подойдет труба 60х30 мм, в сечении должен быть квадрат (прямоугольник) и уголок для соединения 25х25 мм. Дабы сделать решетку-каркас, все детали нужно соединить 5-ю дополнительными поперечинами.
По углам решетки-каркаса к продольным трубам с помощью сварочного аппарата крепят 4 вертикальные стойки. Если тачка для мотоблока будет с откидным бортом, то рамы нужно производить отдельно и только потом устанавливать.
Варианты обшивки каркаса
Для обшивки конструкции мастера выбирают недорогой материал или тот, что есть в наличии. Цена изделия становится намного меньше.
- Деревянные доски, которые часто остаются после строительства. Основные плюсы ‒ малозатратные, минусы ‒ влагостойкие, как следствие низкая продолжительность «жизни» тачки для мотоблока. Помимо этого, для их обработки нужны дополнительные средства.
- Пластик. Плюсы ‒ стойкий к влаге в отличие от дерева, минусы ‒ не крепкий, при повреждении он сломается.
- Листы металла. Плюсы ‒ прочный материал, поэтому долговечен, минусы ‒ один из самых дорогих вариантов.
Но если телега к мотоблоку будет использоваться постоянно, то выгоднее сделать ее металлической и не тратить лишние средства на ремонт. Закрепить листы к раме можно сварочным аппаратом.
Изготавливаем ходовую часть
Для перевозки груза прицепу нужны колесные узлы, которые можно снять с ненужного транспортного средства. Для крепления колесных узлов необходимо приварить дополнительную трубу. Ступица для прицепа прикрепляется методом напрессовки. На ось надевают заднюю часть, которую перед этим вытачивают. Перекос должен отсутствовать, поэтому его нужно постоянно контролировать. Смонтированные колеса необходимо закрепить гайками и в заключение надеть колпаки.
Сцепка для прицепа мотоблока
Сцепка для прицепа мотоблока ‒ достаточно важный элемент всей конструкции.
Самый лучший из вариантов ‒ это узел, когда труба соединяется с другой трубой. В изогнутую трубу с одной стороны нужно приварить еще одну небольшую часть трубы. Это необходимо делать в положении вертикально. Такая же операция проделывается и на другом краю главной трубы. В завершение для соединения с прицепом монтируется шкворень. При повороте или на неровной дороге данная конструкция обеспечит прочное сцепление.
Как избежать ошибок при изготовлении тележки к мотоблоку?
Если мотоблочный прицеп изготавливается впервые, то ошибки встречаются даже у лучшего мастера. Основные из них:
- неправильно выбранное сиденье. Оно должно быть удобным, ведь работать по хозяйству приходится часто. Лучшие сиденья в виде лавы;
- ради экономии не устанавливают тормоза. Ни в коем случае не экономьте на собственной безопасности. Пусть лучше самодельные ручные тормоза, чем ничего;
- некачественная и дешевая обшивка. И снова ради бюджетного варианта, но помните ‒ скупой платит дважды.
Прицеп для мотоблока своими руками
Ведение сельского хозяйства – дело сложное, трудоемкое, рутинное. В аграрных работах, как нигде, ценится автоматизация труда. Сейчас сложно представить, как справлялись бы аграрии со вспашкой земли, посадкой и сбором урожая, культивацией, окучиванием, кошением травы без таких устройств, как мотоблок, культиватор, минитрактор. Да что и говорить, сегодня с помощью этих машин Вы можете запастись кормом для животных, сеном, дровами, убрать снег, листья, пыль, а также перевезти различные грузы, весом до 1000 кг.
Сам термин «мотоблок» в обиходе появился лишь в восьмидесятых годах 20 века. Раньше это устройство называли пешеходным или одноосным трактором. Постепенно все новые и новые работы люди начинали делать с помощью мотоблока. Сегодня спектр функций мотоблока действительно впечатляет. Кроме того, благодаря специальным КИТ-наборам Вы можете превратить мотоблок в мототрактор.
В чем преимущество мототрактора перед мотоблоком?
«Плюс» мототрактора заключается в удобстве его применения. При использовании мотоблока Вам необходимо постоянно ходить за ним, что не может не утомить к концу рабочего дня, каким бы универсальным не был мотоблок. Если же Вы используете мототрактор, то Вы сидите и управляете машиной с помощью рулевого колеса. Однако, для усовершенствования конструкции мотоблока Вам не обязательно делать из него минитрактор. Достаточно приобрести адаптер, который также позволяет Вам сидеть и управлять машиной с помощью руля. Так Вы обеспечите себе удобство и простоту использования мотоблока.
Землевладельцы знают, что очень часто возникает необходимость перевозки грузов на участке. И здесь мотоблок обязательно придет Вам на помощь. Все, что Вам нужно — это прицеп для мотоблока, который можно купить, а можно сделать самостоятельно.
Прицеп для мотоблока своими руками – надежная и зачастую необходимая вещь, сделать которую может каждый.
Давайте же узнаем, как можно изготовить прицеп для мотоблока своими руками с помощью наших чертежей.
Итак, на схеме ниже представлен чертеж самодельного прицепа. Такой прицеп способен перевозить грузы весом более 400 кг. Изготовить его очень просто; в его конструкции нет особенных механизмов и систем. Особенность такого прицепа – место для водителя, что очень удобно в эксплуатации.
Конструкцию прицепа для мотоблока своими руками условно можно разделить на 4 основных узла. Это колеса, кузов, водило и рама устройства.
Водило – это конструкция, детали которой соединены с помощью сварки. Ниже представлены чертежи для его изготовления. Обратите внимание, что основная нагрузка приходится на стык дышла и корпуса поворотного узла, поэтому это место усиливают 4 ребра жесткости.
Рама самодельного прицепа для мотоблока выполняется из стальных элементов: труб прямоугольного и круглого сечения, прутка и уголков. Все эти элементы приварены друг к другу.
Схема рамы для прицепа, изготовленного своими руками, представлена ниже.
Кузов прицепа для мотоблока своими руками изготовлен из досок, толщина которых равна 20 мм. Для того, чтобы кузов был более прочным, укрепим его на углах металлическими накладками. С помощью болтов, а также трех опорных рамок и бруса 50*50 мм мы прикрепим кузов к раме самодельного прицепа.
Отметим, что данный чертеж прицепа предполагает заимствование колес от мотоколяски.
Соединение мотоблока и прицепа происходит при помощи специальной консоли. Консоль выполнена таким образом, чтобы подходить под базовую сцепку мотоблока для навесного оборудования.
Водило прицепа для мотоблока своими руками прикреплено к раме шарнирно. Это означает, что дышло прицепа вставлено в корпус продольного шарнира, и эта конструкция зафиксирована с помощью болта М8 и упорного кольца. Это делается для того, чтобы колеса прицепа на ухабистой дороге не зависели от положения колес самого мотоблока. Ниже представлена схема поворотного узла водила.
Как Вы видите, ничего сложного в изготовлении прицепа для мотоблока своими руками нет. Необходимо лишь найти нужные элементы, воспользоваться сваркой, а также четко руководствоваться представленными чертежами. Схема самодельного прицепа, с которой мы с Вами уже ознакомились, не предполагает откидывающихся бортов, на что стоит обратить внимание. Такой прицеп нацелен на перевозку грузов, например, в мешках или в коробках.
Также мы хотим предложить Вам изучить другие чертежи самодельного прицепа к мотоблоку. Ниже они представлены.
Общий вид прицепа для мотоблока своими руками.
Рассмотрим конструкцию поворотного узла самодельного прицепа.
Сиденье-крышка и багажник прицепа для мотоблока своими руками представлены на чертеже ниже.
Чертеж ходового узла.
Тормозная педаль прицепа для мотоблока – на чертеже ниже.
При помощи самодельного прицепа для мотоблока Вы сможете перевозить огромное количество грузов: дров, удобрений, сена, корма, инструментов, техники, и всевозможного другого багажа, который Вам необходимо переместить.
Мотоблок вместе с таким прицепом станет настоящим универсалом в Вашем хозяйстве. Простые элементы и детали, немного точных расчетов и желание – это все, что нужно для создания долговечного и хорошего прицепа. Огромный «плюс» прицепа для мотоблока своими руками – это то, что Вы можете сделать конструкцию именно для своих нужд. Вы и только Вы знаете, чего Вы ждете от прицепа. Так почему же самостоятельно не упростить себе жизнь? Сделав прицеп с помощью наших чертежей, поделитесь им с соседом, другом, родственником. Огромное количество фермеров уже сделали такие прицепы, и, судя по отзывам, остались довольны. Так что Вы можете продолжить эту цепочку, а также передать свои знания близкому человеку.
Ну а как сделать другие инструменты навесного оборудования для мотоблока своими руками, — читайте в наших статьях.
Удачных Вам творений! А мы будем предлагать Вам все новые и новые изобретения, способные максимально упростить ведение сельского хозяйства.
своими руками, прицепное устройство, самодельный, чертежи, размеры, видео
Многие фермеры интересуются, как сделать прицеп для мотоблока своими руками. Дополнительные приспособления к мотоблоку, такие как прицеп, расширяют возможности техники. Облегчается процесс перевозки дров, сена, корма для скота, а также любого другого груза.
Что представляет собой прицеп к мотоблоку
Прицепное устройство к мотоблоку состоит из:
- кузова;
- колес;
- крыльев;
- сиденья;
- дышла;
- тормозов.
Способность кузова выдержать тот или иной груз зависит от качества сборки. Тележка должна быть изготовлена из прочного материала, способного выдержать тяжесть груза и любые погодные условия. Кроме этого, желательно, чтобы она имела откидные борта для удобства погрузки и разгрузки. Габариты должны быть вместительными и соответствовать мощности мотоблока.
На тележках используют колеса: автомобильные, от мотоцикла и т. п. Главное, чтобы тележка для мотоблока выдерживала большие нагрузки.
Предпочтительнее всего широкие колеса, так как это повышает проходимость транспортного средства.
Крылья есть и на автомобилях. Служат защитой от попадания камней и грязи от колес.
Все современные прицепы оснащены сиденьями. Некоторые мастера сооружают под ними ящик для хранения необходимых вещей.
Дышло — это крепление в виде треугольника, соединяющее прицеп с мотоблоком.
Тормоза позволят улучшить процесс транспортировки грузов.
Прицепное оборудование для мотоблоков можно приобрести у производителей сельскохозяйственной техники, а можно изготовить самодельный прицеп к мотоблоку. Рассмотрим оба варианта.
На рынке существуют много готовых моделей для мотокультиваторов. Они имеют разные размеры, весовую категорию, грузоподъемность и стоимость. Их плюс состоит в том, что их собирают профессиональные механики по заранее разработанным схемам. Вы на это не тратите ни сил, ни времени. Минусы заключаются, во-первых, в поиске добросовестного производителя, отпускающего качественный товар, а во-вторых, добротный продукт стоит недешево.
Мотоблок выполняет роль лошадиной упряжки. Он выступает в роли привода, подсоединенного дышлом к прицепу. Для этой цели подойдут такие марки мотоблоков как: Патриот, Урал, Кайман 320, Форза, Кроссер, Прораб, Викинг, Техас.
Можно изготовить прицеп для мотоблока Нева, сделанного из прочного металла. Грузоподъемность кузова 500 кг. На тележке есть тормозной привод, что облегчает вождение. На просторах интернета можно встретить очень много чертежей прицепов к мотоблоку Нева. У них удачная конструкция с минимальными расходными материалами.
Среди готовых моделей можно встретить устройство с функцией самосвала. Конструкция в принципе такая же, как и на обычной тележке, но с модификацией, позволяющей совершать разгрузку благодаря откидыванию ящика. Хотя такая модель и стоит дороже, но в хозяйстве она необходима.
Изготовление и сборка тележки часто производится самими хозяевами мотоблоков.
Самоделок очень много, но собрать их можно по одному принципу — ходовой части на колесах, бортов и оси, чтобы соединить прицеп с мотоблоком.
Из балки ВАЗ-2109
Прицеп из балки ВАЗ-2109 подойдет для мотоблоков с большой мощностью – 10 л.с. Конструкция будет довольно тяжелой, поэтому нужна большая тяговая мощность. Такие прицепы обладают большой грузоподъемностью.
Сделать прицеп из балки ВАЗ-2109 своими руками просто, достаточно посмотреть обучающие видео, которые доступны бесплатно. Также можно найти чертежи и размеры конструкции, подойдут практически любые, с одной или двумя осями.
Балка будет использоваться в качестве оси, для задней оси подойдет целый мост с колесами от ВАЗ-2109. Для передней оси будет достаточно одной балки, колеса могут быть любыми. Для габаритных прицепов рекомендуются широкие колеса, обеспечивающие проходимость и устойчивость.
Преимущество прицепа для мотоблока на базе балки от ВАЗ 2109 в том, что не нужно тратить время на изготовление дополнительных узлов, особенно если берется задний мост целиком.
Как изготовить прицеп к мотоблоку своими руками
Рассмотрим, как сделать прицеп к мотоблоку своими руками. Важно уметь читать чертежи и схемы, а также иметь навыки использования некоторых инструментов.
Самодельный прицеп для мотоблока изготавливают по схемам и чертежам, которые сейчас в большом количестве можно найти на сайтах в интернете. Перед тем как приняться за работу, нужно разработать чертеж прицепа для мотоблока. Кроме этого, необходимо подготовить все мелкие детали для крепления, инструменты и сварочный аппарат.
Размеры прицепа для мотоблока должны быть четко прорисованы на схеме, каждая деталь обозначена и выделена с разных сторон.
Собирать прицеп нужно, исходя из мощности и габаритов мотоблока. Техника с недостаточной силой тяги не потащит тяжелый полуприцеп.
Разобравшись со схемой, необходимо определиться с ведущими частями прицепа. Основой служит каркас и сцепка для прицепа мотоблока. За ними следуют рама, сиденье для водителя и колеса (2 или 4 шт.).
Начинают обычно с главной составляющей телеги — рамы, так как именно на нее ложится вся нагрузка во время транспортировки грузов, поэтому она должна быть предельно прочной. Идеальным вариантом будет готовая ось с колесами, в таком случае вам не придется тратить силы и время на дополнительные настройки. Важно, чтобы материалы были твердыми и не поддавались деформации. Можно использовать трубы или толстый швеллер.
Самый простой способ — это вариант прицепа, собранного из труб 60х30 мм, приваренных между собой в виде рамы. К ним крепится траверса (стальная перекладина). С разных сторон прикрепляются поперечные трубы, в будущем выполняющие роль стоек. Для обвязок к стойкам привариваются трубы с сечением 25 мм, а в конце — угловые опоры.
Детали тележки предпочтительнее сваривать между собой, крепление на болтах считается не очень надежным и недолговечным. Для усиления тележки снизу прибавляют раскосы и приваривают усилитель.
После завершения опоры переходят к сборке кузова. Для этого подойдут любые материалы: деревянные и металлические, а возможен и комбинированный вариант. Желательно, конечно, основу сделать металлической. Дно для прочности предочтительнее сделать двойным. Чтобы борта крепились лучше, по краям привариваются уголки. Для легкой погрузки и разгрузки борта можно сделать откидными, посадив их на подвижное крепление.
Не нужно выбирать очень тяжелые материалы, так как вес собираемого прицепа будет перегружать двигатель мотоблока. Самый простой кузов способен выдержать вес до 500 кг, а этого достаточно для небольшого хозяйства.
Колеса лучше брать с использованной техники, на них уже есть ступицы.
Подготавливаются стержни, на которых будут держаться колеса. Желательно, чтобы колеса располагались непосредственно под бортами. Для крепления колес стержень заранее затачивается под величину подшипника ступицы. Вместо стержня можно использовать устройства из балки ВАЗ.
Прицепное устройство для мотоблока
Прицеп для мотоблока полезен в хозяйстве, поэтому он должен быть прочным. Основная нагрузка ложится на раму, являющеюся основой конструкции. Прицепное устройство также получает колоссальные нагрузки. От того, насколько качественные материалы используются для его создания, а также способа крепления, зависит срок эксплуатации конструкции.
Прицепное устройство тележки для мотоблока можно купить уже в готовом виде, а можно сделать своими руками. Чертежи и размеры легко найти в Интернете, один из примеров на фото:
Сцепной механизм может быть изготовлен разными способами, например, из кардана, крестовины, деталь в форме буквы «П». Последний вариант многие считают более надежным. Прицепное устройство должно изготавливаться из нержавеющей стали.
Как сделать тормоза для прицепа
Тормоза для прицепа мотоблока. Система торможения облегчает и повышает безопасность перевозки грузов. Существует много вариантов тормозов, но как показала практика, самыми эффективными оказались тормоза от мотоцикла.
Как сделать тормоза на прицеп к мотоблоку? Самодельные тормоза на прицеп делают из троса, тяги и барабана. Барабан должен быть прикреплен на ступицу заднего колеса. Свободные пространства между выступами заполняются крупной проволокой. Дальше кусок трубы сваривается с заранее заточенным диском, который устанавливается на ось. На нее же крепятся тормозные колодки, от которых будет исходить трос к рычагу. Тормоз устанавливается только на 1 колесо и этого вполне достаточно для выполнения данной функции.
Сиденье на мотоблок своими руками можно сделать любое. Оно может быть коротким или продолговатым. Его изготовляют в виде ящика или сундука, в который в дальнейшем можно складывать инструменты или подручные предметы.
Если у тележки борт будет слишком низким, то лучше придумать сиденье со спинкой, чтобы не напрягать позвоночник. Для повышения комфорта его лучше обшить мягким материалом.
Если же в качестве сиденья используется стул или кресло, то для ножек делают 2 глубоких разъема, для погружения внутрь. Таким образом, стул становится съемным.
Для присоединения прицепа к мотоблоку нужен сцеп и консоль. Их можно снять с любого списанного оборудования.
Устройство для прицепа может иметь 1 ось, у которой слабый центр тяжести. Важно правильно установить кузов, чтобы не было перенапряжения в сцепной точке. Поэтому центр тяжести должен попасть под ось колес. С двухосными прицепами намного надежнее. Распределение тяжести груза попадает не на 2, а 4 колеса. Они подходят для перевозки груза до 1400 кг. Можно использовать прицеп легковой машины.
Как присоединить автоприцеп к мотоблоку
Фермеры интересуются, как можно присоединить автомобильный прицеп к мотоблоку. Для этого понадобится адаптер к мотоблоку, который можно соорудить самому. Чтобы соединить прицеп с мотоблоком, нужно снять шаровое соединение (фаркопы), а взамен подсоединить сцепку мотоблока. Присоединяя автоприцеп к мотоблоку, важно учесть 1 нюанс, касающийся автоприцепов: у них нет системы тормозов и сиденья для водителей, ведь они не рассчитаны на мотоблок. Если на прицепе не выезжать на ровную трассу, то без тормозов обойтись в принципе можно, но вот сиденье нужно соорудить обязательно.
Прицеп с рулевым управлением — это отдельное устройство на колесах с сиденьем, в передней части которого находится мотоблок, а позади тележка. Такое соединение прицепа с мотоблоком превращает технику в мини-трактор.
youtube.com/embed/Zc7J1DoIc6M?feature=oembed» frameborder=»0″ allow=»accelerometer; autoplay; encrypted-media; gyroscope; picture-in-picture» allowfullscreen=»»/>В качестве готовой тележки фермеры используют прицеп из мотороллера Муравей. Кузов мотороллера очень прочный. Он незаменим для транспортировки тяжелых грузов. На нем легко можно перевозить до 10 мешков комбикорма, 500 кг угля или 0,5 м³ дров. Задний борт открывается. При желании высоту бортов можно увеличить до желаемых размеров.
Прицеп для мотоблока из Муравья соединяется предельно просто. Вопрос с тормозами отпадает, так как они на Муравье есть, нужно лишь добавить сиденье и соединение с помощью адаптера.
При самостоятельной сборке предпочтительнее использовать сварочный аппарат. Сваривая детали, вы надолго продлите срок службы техники.
Как Вы считаете, прицеп для мотоблока лучше изготовить самому или более надежным будет приобрести готовый заводской сборки?
Прицеп для мотоблока
Планируя покупку мотоблока, практически всегда приходится задумываться о хорошем навесном оборудовании для полноценной работы на земельном участке. Навесное оборудование для плуга и прицеп для мотоблока нужны, как воздух. С этим утверждением не поспоришь, но стоят они немало, и денег на покупку такого лафета не всегда можно выкроить из ограниченного бюджета обычного человека. Поэтому основную часть капитала лучше потратить на приобретение классного мощного мотоагрегата с американским или японским мотором, и сделать прицеп для мотоблока своими руками. Тем более что чертежи для любого варианта прицепа к мотоблоку отыскать — не проблема.
Варианты исполнения прицепа для мотоблока
В зависимости от планируемых объемов перевозки, способа использования прицепа и возможностей мотоблока можно изготовить несколько различных вариантов:
- Самый легкий одноосный прицеп на 50-70 кг. груза без учета веса водителя, проще всего такой вариант изготовить из тяжелой одноосной садовой тележки на резиновом ходу.
Все, что необходимо будет сделать, – приварить к рукоятке прицепное устройство для мотоблока, изготовленное из сцепки от плуга, и небольшую подставку для сидения; - Универсальный малогабаритный прицеп для небольших грузов. В отличие от предыдущего варианта, такой прицеп может поднять вес до 120 кг., безопасен и устойчив даже на неровном грунте. Конструкция П-образной рамы сварена из двутавра, на дышло установлено прицепное устройство к мотоблоку от плуга, которое можно использовать, как подставку;
- Тяжелый прицеп на резиновом ходу позволит использовать наиболее продуктивно возможности мотоблока. Затратив средства на металлопрофиль и копеечные запчасти от ходовой автомобиля, вы получите удобную конструкцию прицепа для мотоблоков, стоимостью в несколько сот долларов.
Важно! Основная причина, по которой прицепы к мотоблоку выходят из строя, — на лафет, рассчитанный на 120 кг., грузят больше, чем позволяет грузоподъемность и размеры прицепа.
Тяжелый вариант позволит перевести одним разом и навесное оборудование, и плуг, и весь запас картошки на посадку. Срок службы такой машины исчисляется десятками лет.
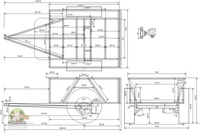
Рама прицепа: 1 — раскос (уголок 21х21х3), 2 — рамка сиденья (уголок 21х21х3), 3 — стояк (труба 50х25х4), 4 — стойки сиденья (уголок 40х40х4), 5,14 — подкосы передние (труба 50х25), 6,15 — лонжероны продольные (уголок 40х40х4), 7,8 — опоры колесной оси правые (уголок 32х32х4), 9,16 — подкосы задние (труба 50х25), 10 — поперечина усиливающая (уголок 40х40х4), 11 — корпус продольного шарнира (труба 58х4), 12 — ось колесная (пруток диаметром 30), 13,17 — лонжероны поперечные (уголок 40х40х4), 18 — косынки (s4)
Как сделать прицеп к мотоблоку своими руками
Для постройки тяжелого и устойчивого прицепа к мотоблоку нам понадобится следующее оборудование и материалы:
- Электросварочный аппарат, болгарка, электродрель с комплектом сверл, с десяток электродов №4;
- Стальной профиль – трубчатый квадрат 40х40 мм.
-20м, 20х40мм. -15м., стальная труба с внутренним диметром, соответствующим наружному размеру подшипника ступицы, листовой металл толщиной 2мм. и общей площадью 2х3м.; - Две ступицы в сборе, от автомобиля М2140 или М412, пара москвичевских колес с «живой» резиной, две пары навесов для гаражных ворот.
Работа по изготовлению прицепа к мотоблоку с покрасочными работами займет не менее трех дней. Основные габариты прицепа понятны из схемы, грузоподъемность приведенной схемы – не менее 500кг, больший вес для обычного мотоблока опасен. Если вы приобрели мотоблок по типу «ЗУБР»а или «Garden Scout GS 101DE» с дизелем в 12 лошадок, можете грузить и больше.
Собираем каркас по чертежам и фотографии
На первоначальном этапе необходимо раскроить материал и сварить электросваркой остов для грузового отделения прицепа. Он представляет собой прямоугольную раму, сваренную из металлопрофиля квадратного сечения. Если следовать чертежам, то получится 120х180 см. Мы будем делать 150х200 см. Внутри прямоугольной рамы необходимо сделать две поперечные проставки, как на фото. Это усилит днище грузового отделения будущего прицепа.
Далее вырезаем из профиля 40х20мм. и свариваем четыре борта, каждый высотой 500 мм. Борта зашиваем стальными листами и привариваем к основе грузового отделения, на дно укладываем лист металла и крепим его к балкам из металлопрофиля. Задний борт можно установить на больших дверных навесах, что позволит откидывать его при выгрузке. Все сваренные части конструкции тщательно обрабатываем преобразователем ржавчины и покрываем грунтовкой.
На следующем этапе необходимо вырезать из металлопрофиля и сварить прицепное устройство для крепления к мотоблоку и несущий каркас, на который будет устанавливаться изготовленный ранее грузовой отсек прицепа.
Форма и размеры несущего каркаса, и способ крепления прицепа к мотоблоку понятны из фото. Размеры квадратной части каркаса соответствуют половине грузового отсека.
Далее, переворачиваем готовое грузовое отделение прицепа, устанавливаем поверх его рамы каркаси размечаем места на раме и каркасе под крепление гаражных навесов, как на фото.
Навесы необходимо тщательно выровнять по уровню и приварить с максимальным качеством сварки. Благодаря такой рационализации грузовой отсек прицепа получит возможность опрокидываться для выгрузки без изменения положения мотоблока.
Изготавливаем ходовую часть прицепа к мотоблоку
Прицеп будем изготавливать на резиновом ходу, это значительно упростит управление мотоблоком, повысит безопасность и комфорт при движении. Колеса со ступицами на двух опорных подшипниках обеспечивают минимальное сопротивление качению, поэтому даже с полностью загруженным грузовым отсеком мотоблок довольно легко пройдет по грунтовке или даже травянистому грунту.
В этом варианте не используются полноценные тормозные устройства, но технически такая возможность есть,и при желании вы сможете дополнить ступицы крышками и тормозными колодками от М412. Чтобы не связываться с гидравликой, можно использовать тросовый привод от ручного тормоза.
Для установки трубы с подшипниками и ступицами на прицеп необходимо предварительно вырезать и приварить к каркасу три опорные вертикальные стойки из металлопрофиля 40х40мм., высотой каждая в 120-150 мм. При установке трубы потребуется приложить немало терпения для точного позиционирования ходового узла параллельно поперечной балке каркаса прицепа. Трубчатая ось позволяет обеспечить высокую прочность и жесткость даже при двукратном превышении максимального груза или прохождении поворота на высокой, как для мотоблока, скорости движения.
Далее привариваем трубу, устанавливаем и настраиваем положение ступиц в трубе так, чтобы биение диска колеса, одетого и закрученного гайками на ступице, было минимальным. Сразу после завершения выравнивания, прихватите шов сварочными точками и обварите полноценный шов.
Чтобы снизить нагрузки на вертикальные стойки, от трубы до рамы каркаса необходимо вырезать и приварить усилители в виде металлопрофиля.
Для крепления прицепа к мотоблоку можно переделать стандартную сцепку на основе плуга или изготовить переходник по типу фаркопа.
Главное условие — соединение должно иметь возможность свободно поворачиваться в горизонтальной плоскости, не мешать управлению мотоблоком и быть достаточно прочным, учитывая большой вес конструкции.
На треугольнике прицепа необходимо установить вертикальную стойку со скамейкой или сидением для водителя. Высоту и месторасположение сидения выбирают, исходя из длины ручек управления мотоблока. Пространство под ногами рекомендуют закрыть металлической сеткой или приваренной тонкой арматурой.
Заключение
Управление тяжелым лафетом к мотоблоку потребует определенного навыка, поэтому первые попытки следует выполнять исключительно на безлюдной местности. Кроме того, для подобного рода конструкций работниками ГИБДД могут требоваться регистрация и оборудование лафета для мотоблока габаритами, стоп-сигналами, тормозами.
🚜 Прицеп для мотоблока своими руками: устройство, принцип работы
Вопрос модернизации и усовершенствования орудий труда всегда был головной болью для руководителей сельскохозяйственных предприятий. И в наши дни эта проблема стоит довольно остро. Увеличение числа мелких фермерских и подсобных хозяйств однозначно приводит к уменьшению их размеров. А это, в свою очередь, формирует специфические требования к сельскохозяйственной технике. Там, где не смогут развернуться мощные трактора и комбайны, пройдут миниатюрные мотоблоки с широким набором прицепного и навесного оборудования. В нашем обзоре подробно разберём можно ли сделать прицеп для мотоблока своими руками, что для этого нужно и насколько технически трудоёмок этот процесс.
Содержание статьи
Устройство тележки для мотоблока
Прежде чем строить тележку для мотоблока, надо выяснить, а что такое сам мотоблок.
Это такое транспортное устройство, способное перемещаться по поверхности за счёт собственного двигателя внутреннего сгорания, который запускается выдёргиванием шнурка. Мощность силового агрегата мотоблока колеблется в пределах от 3,5 л.с. до 12,0 л.с. Ходовая часть бывает одноосной (чаще всего) или двухосной.
ФОТО: hoztov.byДвухосный мотоблок с прицепом
ФОТО: hoztov.by
Между двигателем и ходовой частью находится трансмиссионный механизм, позволяющий переключать передачи и менять направление движения. Система управления позволяет оператору управлять режимами движения.
Мотоблок может работать в комбинации с различным сельскохозяйственным и коммунальным оборудованием: для обработки почвы, скашивания травы, уборки снега, коротких перевозок небольших грузов. В последнем случае к мотоблоку прицепляют тележку. Так как ведущие колёса устройства слабо нагружены, то по трудным дорогам он большой груз не потянет. С мотоблоком удобно обрабатывать междурядья, работать в теплицах.
Управление смонтировано на двух длинных рукоятках. С помощью них же оператор обеспечивает равновесие агрегата, что требует немалых физических усилий. Этот недостаток отсутствует у двухосных мотоблоков, но они значительно дороже и потребляют больше горючего.
Статья по теме:
Какой мотоблок лучше: цены, отзывы. В статье мы узнаем какое устройство лучше после ознакомления с конструкцией, видами приборов, потенциальными возможностями современных моделей, отзывами владельцев, средними ценами и дополнительными рекомендациями.
Возможные варианты прицепа для мотоблока с фотопримерами
Конструкций самодельных прицепов существует столько, сколько существует механиков-самодельщиков. Всё определяется целью, имеющимися материалами и готовыми деталями от старых машин.
Наличие прицепа освобождает механика-водителя от забот о поддержании равновесия, но несколько ухудшает манёвренность машины.
Зато в прицепе удобно перевозить небольшие грузы.
ФОТО: usamodelkina.ruПрицеп с открытыми бортами
ФОТО: sadovaja-tehnika.comПрицеп-самосвал с закрытыми бортами
ФОТО: otvo.sadicveti.infoПрицеп с сидением для механика
ФОТО: ufa.rostrakt.ruПрицеп-самосвал
ФОТО: nashprorab.com
Статья по теме:
Самые надежные и популярные культиваторы и мотоблоки: разновидности и средние цены, обзор популярных брендов, секреты правильного выбора устройства для дачи и сада — в нашей публикации.
Прицепное устройство для мотоблока своими руками
Купить сейчас можно почти всё. Но гораздо интересней, а иногда и эффективней, сделать нужную вещь своими руками.
Необходимые материалы и инструменты
Для работы потребуются металлические трубы: круглые и профильные, с размерами 60×30 мм и 25×25 мм², разнообразный стальной прокат – уголок, швеллер, пруток. Потребуется металлический лист. В зависимости от того, что удастся достать, надо корректировать предварительные размеры на чертеже.
Сложные детали, например, ходовую часть прицепа, сделать самому в условиях гаража практически невозможно. Их лучше брать от списанных фирменных изделий. Например, для этого узла прицепа можно взять элементы подвески от «Запорожца» или от старого «Москвича». Конечно, механизм придётся перебрать, отремонтировать и собрать заново. Но это уже по силам умельцу.
Заготовки для каркасаФОТО: youtube.com
Для работы нужен хороший набор слесарного инструмента — рабочий верстак, тиски, сверлильный станок и электродрель, молотки, напильники, свёрла, плоскогубцы, гаечные ключи, шуруповёрт, ножовка по металлу, болгарка, отвёртки. Хорошо иметь доступ к токарному станку. Обязательно надо владеть техникой электросварки.
Чертежи с размерами для прицепа к мотоблоку
Создание комплекта конструкторской документации (КД) является началом любой работы по созданию сложного изделия. Особенность труда самодельщика заключается в том, что его материальные возможности не всегда совпадают с его творческими желаниями.
Поэтому делать детальные подробные чертежи иногда преждевременно. А вот чертёж общего вид с изображением всей конструкции и её примерных размеров разработать надо. В процессе работы будет выполнена корректировка под реальные возможности мастера.
ФОТО: koffkindom.ru
Изготовление самодельного прицепа для мотоблока своими руками
Технология создания любой машины примерно одинакова. Сначала изготавливаются все детали, затем начинается сборка.
Рама корпуса
Начинать надо с изготовления рамы, к которой, в процессе изготовления других деталей, их следует примерять и смотреть, как компонуется всё изделие. Как правило, это прямоугольное изделие, имеющее размеры около 1500×1000 мм.
Ходовая часть
Знатоки считают, что самое разумное – это взять задний мост от списанной малолитражки, например, «Таврии». Конечно, надо перебрать, промыть и смазать все подвижные элементы.
Ходовая частьФОТО: koffkindom.ru
Кузов, обшивка каркаса
Прицеп делают для того, чтобы в нём можно было что-то перевозить. Значит, нужен небольшой кузов. Рама уже есть, нужно сделать борта. Они могут быть деревянными, из пластика, из профлиста. Деревяшки недолговечны, пластик обладает низкой прочностью, металл подороже, но прослужит намного дольше. В том случае, если борта делаются из стального листа, то их надо усилить рёбрами жёсткости. Деревянные борта надо обработать специальной пропиткой от гниения. Задний борт рекомендуется делать открывающимся.
Тормоза на прицеп к мотоблоку своими руками
Любое транспортное средство обязательно должно иметь тормоз. А сцепка мотоблок и прицеп – это и есть транспортное средство. По улицам городов, конечно, на нём ездить нельзя, но для собственной безопасности тормоз всё-таки нужно установить. Представленный на рисунке ниже механизм срабатывает от ножной педали. На стоянке устройство фиксируется мебельной защёлкой. Если есть такая возможность, то можно поставить настоящие автомобильные тормоза.
ФОТО: youtube.com
Прочие детали
Самая популярная «прочая деталь» — это сидение механика, а иногда ещё и пассажира. Степень предоставляемого комфорта зависит от вкуса и сообразительности конструктора. А ещё одна полезная деталь – это стояночная подставка под балку прицепа. На стоянке это устройство откидывается вниз, и прицеп стоит в горизонтальном положении.
Стояночная поставкаФОТО: youtube.com
Самостоятельное изготовление сцепки для мотоблока
Вариантов сцепок существует много. Этот механизм нужен не только для фиксации прицепа. С его помощью на мотоблок устанавливается любое навесное оборудование. Самый лучший из вариантов ‒ это узел, когда труба соединяется с другой трубой. Одно и простейших, но довольно надёжных устройств представлено на фото.
Сцепное устройствоФОТО: youtube.com
Чертежи сцепки для мотоблока, выполняемого своими руками
Конструкции деталей одного из вариантов сцепного устройства представлены на фото.
Детали конструкции простой и надёжной сцепкиФОТО: specmahina.ruСцепка в сборе
ФОТО: specmahina.ru
Как сделать сцепку для прицепа мотоблока
Две скобы, отрезанные от швеллеров, крепятся к деталям прицепа и мотоблока. В отрезанных скобах сверлятся отверстия для крепления болтами. Со стороны мотоблока установлен регулировочный винт с рукояткой, чтобы было удобно цеплять различные навесные орудия.
Нюансы изготовления прочих видов прицепов для сельхозтехники
Рассмотрим основные блоки, которые необходимо использовать для создания функционального оборудования.
Прицеп для культиватора своими руками
Культиватор – это устройство для обработки почвы. Мотокультиватор имеет собственный двигатель, просто культиватор отбирает мощность от другого устройства, например, от мотоблока, который, следовательно, должен иметь устройство отбора мощности, а сам культиватор должен иметь возможность эту мощность принимать. Эта функция присутствует не на всех моделях и мотоблоков, и культиваторов.
Но существует и пассивное навесное оборудование к мотоблоку, для которого не требуется отбор мощности. Образцы и стандартная сцепка представлены на фото. Если в комплекте продажи сцепка отсутствовала, то её можно сделать так, как описано в этой статье.
Навесное оборудование для мотоблокаФОТО: ok.ru
Как сделать двухосный прицеп к мотоблоку
Для перевозки грузов более 300 кг следует делать двухосный прицеп. Технология создания такая же, как и одноосного – разработка конструкторской документации, подбор материалов и подходящих деталей, изготовление деталей и рамы. Так как транспортное средство рассчитано на большую грузоподъёмность, то и раму надо делать более прочной. Для неё потребуются профильные трубы размером не менее 50×50 мм². Колёсные оси привариваются к лонжеронам рамы.
Рама для двухосного прицепаФОТО: traktoramira.ru
Интересный вариант получается, когда мотоблок размещают позади грузовой платформы. Эта компоновка напоминает квадроцикл. В процессе испытаний и доработок передняя часть этой чудо-машины была оснащена рулевой колонкой со всеми необходимыми механизмами. Получилась самобеглая коляска. А сзади к ней можно прицепить грузовую тележку.
КвадроциклФОТО: traktoramira.ru
Самосвальный прицеп для мотоблока
Особенность самосвального прицепа в том, что его кузов не приваривается к платформе прицепа, а устанавливается на шарнире. Центр тяжести загруженного кузова должен находиться немного сзади шарнира. Задний борт должен быть откидным или съёмным. Технология изготовления такая же, как и для других конструкций.
Прицеп-самосвалФОТО: specmahina.ru
Заключение
Садоводы – люди энергичные, сообразительные и умелые. Они многое могут сделать своими руками. Задача по доукомплектованию мотоблока открывает им широкий простор для творческой фантазии.
ПредыдущаяСадовая техника«Без воды ни туды и ни сюды» – разберём правильную организацию автополива на даче
СледующаяСадовая техникаДолой тяжёлый труд: особенности посадки картофеля при помощи мотоблока
Понравилась статья? Сохраните, чтобы не потерять!
ТОЖЕ ИНТЕРЕСНО:
ВОЗМОЖНО ВАМ ТАКЖЕ БУДЕТ ИНТЕРЕСНО:
Тележка (прицеп) для мотоблока [виды, изготовление своими руками]
Тележка для мотоблока, даже оснащенного мотором в 5-7 л.
с., например, Нева, не говоря уже о более мощных моделях, вещь не просто нужная, а незаменимая в домашнем хозяйстве. Такое прицепное устройство позволяет использовать мотоблок не только для сельскохозяйственных работ, но и как транспортное средство. По статистике, владельцы мотоблоков в первую очередь оснащают своих двухколесных друзей культиватором, окучником и тележкой, и только потом начинают потихоньку приобретать или изготавливать своими руками другое навесное и прицепное оборудование.
Основные характеристики прицепных тележек для Невы
В разное время непосредственно для мотоблоков Нева было разработано 4 модели прицепов:
- Одноосная самосвальная тележка с габаритами 110х90 см и высотой борта — 35 см. Грузоподъемность -250 кг, собственный вес -56 кг;
- Двухосная тележка-шасси с габаритами 110х90 см и высотой борта — 35 см. Грузоподъемность – 500 кг, собственный вес – 40 кг;
- Тележка ТПМ с габаритами 133х110 см и высотой борта – 30 см. Грузоподъемность – до 250 кг, собственный вес – 110 кг.;
- Тележка ТПМ-М с габаритами 140х82,5 см и высотой борта – 25 см. Грузоподъемность – всего до 150 кг, собственный вес – 85 кг.
Однако это вовсе не означает, что к мотоблоку Нева можно цеплять только эти 4 тележки. Подавляющее большинство современных прицепов снабжены универсальной сцепкой, позволяющей присоединять их к любому самоходному механизму, поэтому смело можно брать любой приглянувшейся вам. Но все же перед покупкой другой марки прицепа лучше сначала убедится, что сцепка на нем подойдет именно к вашей модели двухколесного помощника.
Основные правила выбора тележки для мотоблок Нева
Прицепы для мотоблоков, будь то Кентавр, АГРО, Нева МБ2 или Мотор Сич, не предназначены для передвижения по оживленным дорогам, не говоря уже о скоростных магистралях. Их основное предназначение – перевозка грузов с огородов и дачных участков, при этом передвигаться ими лучше вне дорожной сети, чтобы не создать на дорогах аварийную обстановку.
При выборе прицепа для мотоблока Нева, как и для любой другой марки, нужно правильно соотнести грузоподъемность прицепа и мощность своего механического работника. Если говорить о выборе тележки для мотоблока Нева, то, за исключением модельного ряда тяжелых моделей МБ-23, вся остальная линейка моделей оснащена двигателями от 5,5 до 7,5 л.с. Поэтому оптимальным решением для них будет выбор прицепного устройства грузоподъемностью от 250 до 500 кг. Прицепное устройство для мотоблока Нева МБ 23 можно брать грузоподъемностью до 1 т. – силенок потащить такой груз у этих мощных механизмов хватит.
Остальные правила при выборе прицепной телеги для любого мотоблока, в т.ч. и для Невы продиктованы не столько заботой о мотоблоке, сколько здравым смыслом и удобством в ее эксплуатации. При выборе нужно обращать внимание на:
- Материал кузова. Лучше выбирать тележку, кузов которой сделан из оцинкованной стали – ему ни мороз, ни жара, ни дождь и грязь не страшны.
- Наличие откидных бортов и самосвального опрокидывания кузова, чтобы нагружать и разгружать тележку было легче и удобнее.
- Наличие и качество тормозов. Поскольку перевозить грузы мотоблоком зачастую приходится по неровной местности, то наличие надежных тормозов на крутом спуске убережет вас от крупных неприятностей.
Соблюдая эти нехитрые правила, вы сможете выбрать такой прицеп к мотоблоку Нева, который прослужит вам долгие годы. Но если по каким-то своим соображениям вы не хотите покупать заводской прицеп, то несложно сделать его своими руками. Главное – найти хорошие чертежи самодельного прицепного устройства и обзавестись нужными для этого инструментами и материалами. Но это уже другая тема для разговора.
Как сделать прицеп для мотоблока своими руками?
По конструкции кузовы разделяют на:
- Цельные. Особенность их конструкции заключается в плотном неподвижном соединении дна и стенок.
- Кузов с откидными бортами. Особенностью такого устройства есть возможность перевозки крупногабаритных грузов.

- Самосвальный кузов. Данный кузов отменно справится с разгрузочными работами.
Подготовка чертежа прицепа на мотоблок
Какого размера должен быть самодельный прицеп к мотоблоку:
- Если у вас легкий тип мотоблока, тогда ширина прицепа должна быть равна 1 м, а длина – 0,85 – 1,15 м. Грузоподъемность такого прицепа составляет около 300 кг.
- Если у вас мотоблок мощностью выше 5 л. с., тогда будут следующие габариты: ширина – 1 м, длина – 1,4 – 1,5 м.
- Для тяжелых агрегатов подойдет прицеп с шириной 1,2 м и длиной в 2 – 3 м. Они чаще бывают двуосными.
Далее необходимо создать своими руками чертежи и выбрать нужные именно вам размеры прицепа. Только его точная схема позволит Вам успешно создать конструкцию, которая будет служить долгие годы. Вот пример чертежа такого кузова.
Чертеж рамы для кузова
Как сделать прицеп к мотоблоку своими руками — этапы сборки
- Для обычной рамы нам понадобится всего 2 трубки и колеса на подшипниках. На готовую раму мы сможем прицепить уже непосредственно сам кузов. Для того, чтобы смягчить тряску на выбоинах нужно просто установить рессору.
- Собираем самодельный прицеп мотоблочный. Для начала к основной трубе прикрепляют дополнительную, которая будет исполнять роль оси. Потом с другой стороны монтируется сцепка для прицепа мотоблока. На концы осевой трубы привариваем ступицы. Далее закрепляем колеса и крепим упор для стоянки. Присоединяем кузов, крылья и сиденье.
- Кузов лучше делать из дерева или металла.
- Особое внимание стоит обратить ступице для прицепа, она должна быть прочной и надежной.
Как сделать тормоза на прицеп к мотоблоку?
Для того чтобы поставить самодельные тормоза на кузов и обеспечить себе безопасную езду на мотоблоке, стоит обзавестись несколькими деталями для его конструкции:
- Тормозные колодки от мотоцикла.
- Тормозной барабан мотоцикла.
- Спицы от мотоцыклетного колеса.

- Лучше устанавливать тормоз на обоих колесах. Это позволит эффективно выполнять торможение оборудованием.
Этапы работы:
- Снимаем тяги и тросики с диска, и очищаем его.
- На ступицы надеваем проточенные барабаны и закрепляем их сзади.
- Свободное пространство, которое образовалось между ребрами барабанов нужно обмотать металлической проволокой.
- Насаживаем уже разборный диск на ось и крепим его втулками.
- Навариваем на ось кусок металла, чтобы исключить смещение диска.
- Монтируем тросики на барабаны и протягиваем их к управлению.
- В качестве системы управления может быть рычаг с передачей.
В принципе имея хорошую схему с точными расчетами легко можно самому сконструировать как одноосный, так и двухосный самосвальный кузов. Главное знать, как это делать и придерживаться всех инструкций. Сделав самостоятельно такое оборудование, вы обретете невероятного помощника для работы на участках.
Прицеп для газонокосилок: 4 ступени (с изображениями)
Я был последователем Instructables около года и узнал здесь кое-что интересное и полезное. Этот трейлер для газонокосилок — моя первая работа. Эта вещь имеет размеры 3×6 футов, общую длину 8 футов, идеально подходит для вывоза листьев и дворового мусора, но имеет много других применений. Основываясь на номинальной грузоподъемности шины (и опыте), я рекомендую ее для полезной нагрузки до 400 фунтов (каждая шина рассчитана на 300 фунтов, поэтому полезная нагрузка 400 фунтов ПЛЮС вес прицепа более 100 фунтов). Это моя вторая сборка служебного прицепа для газонокосилок, и это шаг в правильном направлении. Все началось, когда моя жена изо всех сил пыталась перенести куриный помет из курятника в сад моего тестя в конце прошлого лета. Он сказал, что ему действительно нужен трейлер, и я вызвался построить его, если он купит материалы. Я подошел к компьютеру и был удивлен, как я изо всех сил пытался найти что-то похожее, что я думал, что мог бы использовать, когда я просматривал веб-сайт Intructables, поэтому я решил спроектировать и создать свое собственное.
Если вы похожи на меня, сварка не вариант. Я не беспокоился о сборке палубы или бортов, но мне действительно нужно было сосредоточиться на том, как придумать какой-то тип оси и какую-то комбинацию язычка и сцепки.
Я потратил около дня на сборку шахты, но думаю, что это можно сделать примерно за пять часов. Общий объем инвестиций для меня составил около 140 долларов, а может и чуть меньше.
Необходимые материалы:
- 12 шт. 2x4x12 Обработка под давлением
- 1 шт. 2x10x8 Обработка под давлением
- 2 шт. Шина 10 «и обод с отверстием для оси 5/8» (Harbor Freight Special, 5 долларов США каждый)
- 1 шт. 48 «5/8» холоднокатаная сталь (поступила из местного сварочного цеха)
- 2 шпонки
- 4 плоские шайбы 5/8 «
- 8 стропил
- 3 фунта 2-1 / 2″ грубая Винты деки с резьбой (не менее 150 шт.)
- 1 фунт 1-1 / 2 «Винты деки с крупной резьбой
- 1 шт. 10-дюймовая планка петли заслонки (идеальная при поставке трактора)
- 3 шт. 2-1 / 2 дюйма x3 Болты с шестигранной головкой / 8 «
- 3 плоские шайбы 3/8″
- 3 стопорные шайбы 3/8 «
- 1 шт. Uni-Strut длиной 48 дюймов (доступны в домах электроснабжения)
- 1 шт. 3/8″ Штифт сцепного устройства
Необходимые инструменты:
- Циркулярная пила
- Дрель-шуруповерт 90 018
- Наконечник винта
- Рулетка
- Сверло 1/16 «( малое, в любом случае ) Сверло
- 3/8″ Сверло или лопастное сверло
- Квадратное
- Долото по дереву
- Молоток
- 9/16 » Гаечный ключ и плоскогубцы Торцевой ключ
- Лобзик
- Карандаш
- Защитные очки
- Сверлильный пресс (рекомендуется, но не обязательно)
Как построить кемпинговый трейлер
Новое увлечение охватило нацию: по всей стране люди начали вкладывать средства в строительство альтернативных жилых домов или кемпингов.
Все больше и больше людей, от крошечных домов до кемпинговых трейлеров, по-другому смотрят на то, как мы строим и оплачиваем дома и жилые помещения.
Наличие прицепа для кемпинга может улучшить ваши приключения на свежем воздухе от грубых работ в удаленных местах до серьезных впечатлений от глэмпинга: в зависимости от функций, которые вы хотите включить в свой прицеп, и того, сколько денег вы готовы инвестировать, ваш кемпинг-прицеп может быть вашим дом вдали от дома в любом открытом месте.
Многие кемперы и кемпинговые трейлеры уже доступны на рынке. Но с ценами от 4000 до 11000 долларов, просто для простого кемпинга в форме слезы, создание собственного туристического трейлера может быть лучшим вариантом для вас. Это особенно актуально, если у вас много времени и мало денег, так как построить собственный трейлер для кемпинга своими руками определенно непросто, и иногда на его создание могут уйти месяцы.
Однако, как только вы закончите, вы можете представить себя путешествуя по стране с двуспальной кроватью для идеального ночного сна, настоящей крышей над головой, чтобы вы больше никогда не проснулись с конденсатом или утечками, и даже с местом для хранить и готовить свежие блюда. Построение собственного туристического трейлера своими руками действительно может привести вас к истинному статусу улитки: носить с собой дом, так что вся природа — это ваша гостиная.
Перед тем, как вы начнете строить собственный кемпинговый трейлер, необходимо учесть множество вещей. Чтобы упростить вам задачу, мы составили собственное простое руководство для начинающих.
Думайте о деньгах Прежде чем вы начнете создавать свой кемпинговый трейлер, первое, что вам нужно принять во внимание, — это ваш бюджет. DIY-проектов, подобных этим, часто могут расти и расти, особенно если вам нравятся все дополнительные функции, которые вы можете добавить в процессе, поэтому убедитесь, что с самого начала реалистично оцениваете свой бюджет.
Как только это будет принято, вам будет легче уточнить свой бюджет и увидеть, в какие материалы и функции вы действительно инвестируете, и на каких вы можете сэкономить немного денег и найти альтернативы, или более дешевые или переработанные материалы
Подумайте о дизайнеКак вы хотите, чтобы ваш кемпинговый трейлер выглядел, и что вы хотите делать в нем и с ним? Вы хотите, чтобы он выглядел как винтажный кемпер или имел более современный вид космической эры? Существует множество различных дизайнерских идей, поэтому мы рекомендуем вам начать с изучения имеющихся на рынке кемпинговых прицепов.
Что вам в них нравится, а что нет? Какие особенности этих дизайнов вам нужны и нужны, а какие вы можете обойтись без них? Начните с составления списка необходимых вам удобств и сгруппируйте их по важности, из того, что вам обязательно нужно иметь и без чего вы можете жить.
На этом этапе также стоит подумать, сколько времени у вас есть на постройку кемпера. Например, если вы хотите создать полностью автономную систему, предлагающую все удобства без необходимости подключения в кемпинге, тогда ваша сборка займет гораздо больше времени и планирования.Если вам просто нужно простое, защищенное место для сна, возможно, вы сможете построить свой кемпер всего за несколько месяцев (в зависимости от ваших других обязательств).
Здесь также стоит учесть тип транспортного средства, на котором вы будете перевозить кемпер. Если это небольшая машина или даже мотоцикл, мы рекомендуем вам подумать о кемпере в форме капли. Эти кемперы маленькие, легкие и аэродинамические, что означает, что их очень легко транспортировать, и вы можете прикрепить их к любому транспортному средству.Если у вас есть автомобиль большего размера или вы хотите построить кемпер из грузовика, вы можете проявить немного больше воображения. Вы можете подумать о строительстве палатки для кемпинга, на которой можно разместить палатку, а также кухню или другие удобства, которые вы хотите включить.
Это отличный способ максимизировать пространство — вы можете даже подумать о том, чтобы построить навес или откидной пол, чтобы получить гостиную на открытом воздухе. Если у вас есть грузовик или другое транспортное средство, которое больше по размеру, подумайте о том, как вы можете использовать его, чтобы максимизировать пространство в вашем кемпере.Вы можете даже подумать о надстройке над грузовиком или о создании гибридного автомобиля с прицепом, чтобы ощутить полную роскошь во время похода.
Кемпинговые прицепы — отличный вариант для тех, кто хочет гулять на природе, сохраняя при этом комфорт.
Подумайте о материалах и характеристикахПосле того, как вы определились со своим бюджетом и желаемым дизайном своего кемпера, пора полностью уточнить свой бюджет и расходы на строительство. Одним из основных аргументов в пользу создания собственного кемпера является то, что вы можете полностью персонализировать его и выбрать, какие удобства вы будете использовать. Как только вы это узнаете, вы можете выбрать дизайн своего кемпера и то, как вы себя чувствуете. собираюсь построить это.
В Интернете есть даже несколько руководств, которым вы можете следовать, чтобы знать, что ваш дизайн испытан и протестирован, и нет места, чтобы испортить его изворотливым измерением или вложением средств в неправильные материалы. Чтобы узнать о планах строительства кемпинга в форме слезы своими руками, ознакомьтесь с этим удобным руководством здесь.
Если вы предпочитаете спроектировать свой собственный прицеп для кемпинга, мы рекомендуем вам начать с набросков на карандаше и бумаге, а затем использовать программное обеспечение САПР, такое как TurboCard или Sketchup, чтобы полностью реализовать свои строительные планы. После того, как вы составили таким образом свои планы, стоит их просмотреть.
Может быть, у вас есть друг, который занимается строительством или действительно хорошо разбирается в домашнем хозяйстве, он может дать вам несколько уловок и советов, прежде чем вы начнете строить, или скажет вам, увидят ли они какие-либо недостатки или потенциальные подводные камни в вашем дизайне.
Особенно, если вы знаете кого-то, кто построил свой собственный крошечный дом или кемпинг, спросите его, его совет может быть неоценимым и сэкономит вам много времени и усилий.
Размышляя о материалах, следует подумать о некоторых важных вещах, а именно о колесах или шинах и подвеске. Эти характеристики существенно повлияют на общую конструкцию кузова и шасси вашего кемпера. Далее вы можете приступить к рассмотрению своего каркаса. Каждому кемперу, сделанному на заказ, нужна рама. Он должен быть надежно прикреплен к вашему автомобилю, иметь соответствующие шины и подвеску, чтобы соответствовать требованиям дорожного движения, а также номерной знак и задние фонари, чтобы соответствовать требованиям.Вы можете довольно легко купить раму в Интернете, даже на eBay, и самостоятельно добавить все необходимые функции — например, соединитель задних фонарей, домкрат или новые шины, если хотите.
Вот пример рамы прицепа, которую вы могли бы рассмотреть. При 48 × 96 дюймов это один из стандартных размеров прицепа, и он предоставит вам достаточно места, чтобы в кемпере с комфортом разместились два человека. Это хороший пример трейлера, который стоит рассмотреть в своем исследовании из-за качества. Даже если вы хотите сэкономить и построить свой кемпинговый трейлер из дешевых или переработанных материалов, сам трейлер — это то, во что вы действительно должны инвестировать, чтобы сделать кемпер совместимым, безопасным и полностью функционирующим в течение многих лет.
При цене менее 350 долларов этот трейлер не станет рентабельным, но он в высшей степени прочный. Этот прицеп, изготовленный из прочной стальной рамы с отделкой из обожженной эмали, может выдержать до 1195 фунтов: достаточно легко для всех ваших потребностей в кемпере. Он также имеет подвеску с трехлистной рессорой, две шины диаметром 4,8 × 12 дюймов и соответствует всем применимым стандартам DOT. Все это имеет первостепенное значение для того, чтобы ваш кемпер стал пригодным для эксплуатации.
Вот список некоторых других материалов, которые вам понадобятся для самостоятельной сборки:
ДвериВы можете построить собственные двери для кемпинга с прицепом, но мы не рекомендуем это делать.Если вы хотите сэкономить, попробуйте найти двери для кемперов из переработанных материалов или бывшие в употреблении.
Причина этого в том, что сделать свои двери полностью водонепроницаемыми очень сложно, если у вас нет подготовки или опыта. И вы определенно не хотите строить кемпер, от которого вы будете мокнуть во время сна — с таким же успехом вы можете просто остаться в палатке!
Вентиляционное отверстиеВам нужен прочный вентиль, который хорошо спроектирован и способен пропускать много воздуха, сохраняя ваш воздух свежим.Возможно, вам не удастся получить достаточно сквозняка из окна, а может быть, в летние месяцы вы не захотите открывать окно, чтобы комары могли присоединиться к вам в вашей уютной кровати кемпинга. Приобретите хорошее вентиляционное отверстие, которое можно вставить в стену или крышу трейлера для кемпинга, чтобы вам было комфортно. Мы бы порекомендовали купить такую вентиляцию у Fan-Tastic Vent.
При цене 120 долларов это не самое дешевое устройство на рынке, но и быть не должно. Свежий воздух — это то, с чем нельзя идти на компромисс! Одной из особенностей, которые делают это вентиляционное отверстие стоящим, помимо того, что оно принадлежит уважаемому бренду и сделано из прочных материалов, является трехскоростной вариант, позволяющий вам контролировать воздушный поток в своем кемпинговом трейлере, а это означает, что он готовы к любым погодным условиям и сезонам.
Петля люка Большинство конструкций кемперов нуждаются в петле люка для большой двери, чтобы войти или открыть ваш трейлер. В конструкции каплевидного прицепа эта петля будет использоваться для большой двери, которая открывается в задней части прицепа. Чтобы кемпер оставался водонепроницаемым, петля должна быть хорошего качества.
Поскольку этот шарнир не должен выдерживать слишком большой вес, мы рекомендуем выбрать вариант, сделанный из алюминия, как этот вариант на Amazon, который также имеет размер 48 дюймов, чтобы соответствовать рекомендованному нами прицепу.Выбор алюминия обеспечит вам достаточную прочность, необходимую для формирования материала, но не добавит лишнего веса вашему готовому кемперу.
ОсвещениеСуществует множество различных вариантов освещения вашего кемпера, поэтому подумайте об общем дизайне, к которому вы стремитесь, прежде чем что-либо покупать. Дополнительное освещение может быть добавлено оригинальными способами, чтобы сделать ваш кемпер вашим маленьким оазисом покоя, в который вы можете сбежать после долгого дня плавания или пеших прогулок.
А как насчет гирлянды на батарейках или небольшой подсветки для чтения перед сном? Когда вы думаете об освещении, которое вы должны интегрировать в свой строительный процесс, вам также следует подумать о светильниках для крыльца, потому что, когда вы сидите на улице в сумерках, и купольном свете, чтобы получить дополнительный свет в верхней части вашего кемпера.Вот некоторые из лучших продуктов Amazon для мощных светодиодных фонарей и купольных светильников с собственным выключателем.
Водяной насосВ зависимости от вашего бюджета на рынке доступно множество вариантов водяных насосов, от 20 до более 200 долларов. В зависимости от вашего решения либо включить все удобства в свой кемпер, чтобы не было необходимости в подключении, либо иметь более простой кемпер, подумайте о том, сколько вам нужно вложить в свой водяной насос.
Если вы хотите встроить в свой кемпер раковину или, может быть, даже душ или туалет, это потребует дополнительных усилий и инвестиций.Вы даже можете приобрести комбинированные блоки раковина / плита для тех из вас, кто хочет включить кухню в свой кемпер.
Аксессуары и предметы интерьера Подумайте также о своих аксессуарах и отделке для кемпинга с прицепом.
Сюда могут входить ручки люка, алюминиевый профиль, скрытые хранилища, детали вокруг окон или какая-то захватывающая облицовка, например древесина, чтобы выделить ваш кемпер из толпы.
Если вы не строитель или не любитель DIY, возможно, вам придется вложить средства в дополнительные инструменты, чтобы завершить сборку своего трейлера для кемпинга.Может возникнуть соблазн просто нанять эти инструменты, которые могут сработать, если вы завершаете этот проект на полную ставку, но если вы уравновешиваете этот проект с другими обязательствами, такими как работа и семья, то это может быть лучшим вариантом для покупки или одолжите некоторые инструменты.
Это связано с тем, что строительные проекты, подобные этим, могут иногда занимать много времени, даже дольше, чем ожидалось, если это не ваш основной проект, поскольку жизнь может мешать, поэтому расходы на найм могут быстро расти. Вот некоторые из основных инструментов, которые вам понадобятся (и их может быть больше в зависимости от функций и удобств, которые вы хотите включить в свой трейлер): материалы для рисования, линейка и рулетка, квадрат для обрамления, гаечные ключи разных размеров, беспроводная связь. дрель, лобзик, отрезная пила, настольная пила, шлифовальный станок и ленточно-шлифовальный станок.
Основные материалыВ зависимости от материалов, из которых вы решили построить стены и пол для кемпера (вероятно, из дерева или фанеры), вам необходимо рассчитать количество необходимых материалов и их стоимость. Не забудьте также утеплить стены и пол вашего кемпера и добавить это в свои расчеты. Здесь вы можете проявить немного больше воображения, если хотите сэкономить.
Подумайте об использовании переработанной древесины, войлока или другой альтернативы для изоляции.Подумайте также о том, что вам понадобится для завершения интерьера, например, шкафы, места для хранения, перегородки, матрас, стеллажи и т. Д. Вам также необходимо подумать, какой будет ваш источник питания, если вы хотите полностью отключиться.
сетка: мы рекомендуем солнечные батареи, чтобы вы могли творить добро от природы, пока вы ее окружаете.
После того, как вы подсчитали все затраты на каждый из строительных материалов, вы можете полностью уложить бюджет на свой кемпер. Обязательно сохраняйте это очень подробным, адаптируйте его, если оно слишком велико, путем переработки или использования вторичных материалов, и старайтесь максимально придерживаться бюджета на протяжении всей сборки.
Изучив материалы и создав свой собственный дизайн или изучив другой, вы теперь узнаете больше о процессе создания идеального прицепа для кемпинга. Итак, теперь установите реалистичный крайний срок с достижимыми сроками и постарайтесь как можно больше придерживаться его на протяжении всей сборки.Как всегда при строительстве своими руками, ваш проект обязательно займет больше времени, чем ожидалось, поэтому постарайтесь быть максимально реалистичными с вашими временными рамками, оставляя место для навозника.
Подумайте о задействованных законахВсе страны и местные власти имеют законы и постановления о строительстве и использовании прицепов для кемперов. Обязательно тщательно изучите применимые к вам правила и адаптируйте свои планы и процесс строительства, чтобы ваш кемпинговый прицеп полностью соответствовал требованиям.Ознакомьтесь с законодательными требованиями к конструкции прицепа, требованиями к размерам, освещению, тормозам, осям, шинам и весу.
После того, как вы завершите строительство своего трейлера и убедитесь, что он соответствует всем применимым нормам, отправьте его на регистрацию в соответствующие органы вашего штата. Если вы пройдете их тест, вам выдадут лицензию, а это значит, что ваш кемпер действительно пригоден для эксплуатации, и вы готовы к следующему приключению! Если вы строите свой кемпинговый трейлер для конкретной поездки, убедитесь, что вы запланировали время для этой жизненно важной части процесса, чтобы ваш кемпер был готов вовремя.
Идеальный кемпинговый прицеп на колесах похож на идеальный дом.
Окончательный вердикт:Создание собственного туристического трейлера своими руками, независимо от того, рассматриваете ли вы его как жилой дом с прицепом или как новый дом на колесах, является более дешевой альтернативой покупке кемпера или автодома и означает, что вы можете полностью персонализировать свой кемпинг и сон. Ваш небольшой кемпер с прицепом быстро почувствует себя как дом вдали от дома, сделает вас более мобильным и готовым к любым приключениям, которые может вас бросить.
Что может быть лучше, чем сочетание приключений и автомобильных поездок на свежем воздухе в сочетании с роскошью сна в полностью водонепроницаемом индивидуальном номере с двуспальной кроватью? Мы бы сказали, немного. И этот проект не только произведет революцию в вашем походе, но и станет интересным и сложным проектом, в котором вы сможете проявить свои творческие способности, воображение и, возможно, даже научиться новым навыкам DIY, если вы не являетесь опытным мастером DIY. Это беспроигрышный вариант!
Нажмите, чтобы оценить этот пост!
[Всего: 5 Среднее: 3.4]Что такое раскачивание прицепа и как его избежать
Одна из худших вещей, которые могут произойти, когда вы буксируете, — это вероятность того, что ваш прицеп опасно раскачивается взад и вперед, а затем в конечном итоге упадет на бок, в результате чего ваш автомобиль упадет. Раскачивание прицепа — серьезная и распространенная проблема для многих владельцев прицепов, и это может сделать вождение и транспортировку прицепа неприятным занятием, из-за которого вы потенциально можете потерять контроль над своими транспортными средствами.
Когда вы находитесь в дороге в течение длительного времени, вы сможете относительно легко управлять своим прицепом.Колебание прицепа может быть вызвано порывами ветра или пролетом больших грузовиков, но также может быть вызвано множеством вещей, которые вы можете исправить самостоятельно.
1. Недостаточная нагрузка на дышло –10–12 процентов веса прицепа должно приходиться на дышло (в том месте, где он сцепляется с вашим автомобилем). Это наиболее частая причина раскачивания прицепа. Вы можете взвесить свой прицеп, доставив его на коммерческие весы (на стоянках для грузовиков). Например, если полная масса вашего прицепа составляет 2000 фунтов, вес дышла на сцепном устройстве должен составлять около 200 фунтов.Уберите некоторые предметы или при необходимости перераспределите вес. Поместите более тяжелый груз в передней части прицепа, отцентрируйте груз слева направо и используйте подкрепления, чтобы закрепить груз и предотвратить его перемещение.
Связанный: Как прицепить трейлер
2. Шины — убедитесь, что в вашем автомобиле и трейлере правильное давление воздуха. Также убедитесь, что они одинакового размера в надутом состоянии.
Связано: Как прочитать код даты на шинах, чтобы определить их возраст
3.Грузоподъемность — не перегружайте прицеп. Помните, что в вашу грузоподъемность входит вес прицепа, дышла, транспортного средства и ваших пассажиров.
4. Установите устройство контроля фрикционных колебаний — они уменьшают воздействие внезапных порывов ветра и резких поворотов, оказывая сопротивление прицепу и транспортному средству по отношению друг к другу. Во время движения остановитесь и поверните регулировочную ручку на четверть оборота по часовой стрелке, чтобы увеличить трение. Продолжайте делать это, пока ваш трейлер не станет устойчивым.Они доступны в трех разных стилях и должны использоваться в прицепах с низким процентом веса язычка.
Для прицепов, вес которых превышает 5000 фунтов, устройства контроля раскачивания должны быть прикреплены к каждой стороне сцепного устройства прицепа.
5. Избегайте ветреных условий — если можете. Но если вы не можете, вот несколько советов по безопасному вождению в таких условиях.
- При раскачивании прицепа постепенно снижайте скорость — не нажимайте на тормоза.
- Держите рулевое колесо ровно — не делайте резких поворотов и не пытайтесь выйти из положения качения.
- Не увеличивайте скорость, так как при более высокой скорости раскачивание прицепа становится более сильным.
- Для уменьшения раскачивания используйте только тормоза прицепа.
- Остановитесь, чтобы оценить причину раскачивания. Не рекомендуется брать прицеп в дорогу, если вы знаете, что у него есть проблемы с раскачиванием.
Когда вы буксируете тысячи фунтов веса, безопасность на дороге должна быть приоритетом. В зависимости от состояния и состава вашего прицепа в сочетании с правильными условиями все может быстро испортиться.Если у вас есть проблемы с раскачиванием прицепа, помните об этих советах и будьте осторожны.
50 DIY грузовых прицепов — вдохновляющие идеи и планы для кемперов
10 причин построить свой собственный грузовой трейлер переделка на колесах
Создание собственного автоприцепа для кемпинга дает много преимуществ по сравнению с покупкой туристического прицепа.
Прежде чем мы перейдем к рассмотрению отличных примеров кемперов с грузовым прицепом, давайте посмотрим на преимущества переоборудования грузового прицепа по сравнению с туристическим домом на колесах.
Или вы можете пропустить вперед, если вы уже продали идею.
1. Будет намного дешевле
Вы можете купить новый закрытый грузовой прицеп 7 x 12 менее чем за 3000 долларов. Для сравнения, трейлеры для путешествий начинаются с абсолютного минимума от 10000 долларов и могут стоить более 60000 долларов.
Даже старый подержанный туристический прицеп, вероятно, будет стоить больше, чем новый высококачественный полуприцеп, который вы можете переделать в точном соответствии с вашим дизайном.
Дома на колесахTravel чрезмерно спроектированы, потому что продаются модные детали.Но они часто включают дорогостоящие решения простых проблем.
У старых подержанных туристических прицепов часто могут быть проблемы, например, повреждение водой, сухая гниль, протекающие резервуары, проблемы с бытовой техникой. Текущие затраты на обслуживание туристического трейлера на колесах будут значительно выше, чем у переоборудованного фургона.
2. Вы можете изолировать и соответствовать более высоким стандартам Brian Rogers Glorious 8 x 16 Pace Cargo TrailerЧасто профессиональные производители туристических прицепов строят по меньшим стандартам, чем вы могли бы.Они ожидают, что вы будете использовать туристический трейлер в парке автофургонов, который будет иметь электрическую связь.
Если у вас есть электрическое соединение, вы можете включить электрический обогреватель. Таким образом, не все туристические прицепы имеют лучшую изоляцию.
Они не думают, что вам это понадобится, а также для производителей это способ сократить расходы на то, что скрыто за стенами.
Если вы собираете прицеп для кемпинга с нуля, вы можете указать желаемый уровень изоляции.
Грузовые прицепы имеют прямые стенки и легко утепляются.Вы можете нанести 2 или 3 дюйма пенопласта на стены и 6 дюймов на крышу. Ваш сверхизолированный прицеп-переоборудование будет тепло внутри без дорогостоящих систем отопления.
Кроме того, с электрической системой грузового трейлера RV вы можете построить что-то гораздо лучшее, чем то, что поставляется в коммерческих караванах.
Благодаря собственному преобразованию вы можете установить солнечную систему с высокими техническими характеристиками, чтобы можно было отключиться от сети, исследовать более удаленные места и сэкономить деньги на стоянках для автодомов.
Алюминиевые грузовые прицепы созданы для долговечности.Они простые, и даже если потребуется ремонт, он будет дешевым. Они не получат царапин от веток деревьев.
Если вы сделаете преобразование самостоятельно, вы узнаете, как все работает. Это будет означать, что вы уверены и сможете исправить любые мелкие проблемы, не платя денег за дорогостоящий ремонт.
Вы можете купить грузовой прицеп с цельной алюминиевой крышей, которая никогда не протекает и не требует ремонта.
Хороший грузовой прицеп будет использоваться десятилетиями.
4. Он будет меньше весить, и расход топлива будет вышеВы получите больше миль за свои деньги с более легким дорожным прицепом. Вы также уменьшите нагрузку на буксирующий автомобиль.
Даже небольшой грузовой прицеп может стать отличным домом при грамотном планировании.
Вся суть прицепа для кемпинга — получить некоторую свободу. Но если поездка в отпуск стоит сумасшедших сумм на бензине, то это становится очень ограничительным.
Увеличение расхода топлива означает, что вы, наконец, сможете совершать поездки на дальние расстояния, о которых мечтали.
5. Вы сможете ездить по бездорожью Проверьте дорожный просвет в этом выдвижном мини-кемпере с грузовым прицепом.В более узком и коротком мини-кемпере с грузовым прицепом вам будет легче съехать с проторенных дорог.
Даже у большого прицепа с закрытым кузовом может быть больший дорожный просвет, чтобы вы могли перемещаться по тем местам, куда нельзя попасть с туристическим прицепом.
Это откроет перед вами целый новый мир возможностей недорогого кемпинга.
6.Это чистый лист Большое пустое пространство, готовое к застройке в соответствии с вашими требованиями. Коммерческие туристические трейлеры часто имеют функции, которые вам не нужны.
Черные танки — хороший тому пример. Зачем вам кататься с полным баком какашек в вашем доме на колесах? И заставьте себя найти станцию для стоянки автофургонов, чтобы ее опорожнить.
В Европе все дома на колесах используют кассетные унитазы. Вы вынимаете кассету каждую неделю или две и опорожняете ее в любом туалете. Вы можете положить всю кассету в рюкзак, чтобы никто даже не увидел, что вы делаете.
Вы можете купить портативный горшок менее чем за 100 долларов. Просто, дешево и эффективно.
В качестве альтернативы, вы можете установить компостный туалет в своем кемпере с закрытым трейлером.
Есть лучшие способы делать вещи, которые развивалась в системе с использованием черных резервуаров, канализационных шлангов и станций сброса отходов.
Ваш фургон-переоборудование с грузовым прицепом может иметь именно ту настройку, которую вы хотите, а прицепы бытового назначения бывают всех форм и размеров.
В коммерческих домах на колесах также есть тенденция использовать ткани и материалы, которые не подходят для вашего собственного дома.
Дешевый ламинат часто используется в туристических трейлерах. Когда вы строите свой собственный кемпер с грузовым трейлером, у вас может быть вся необходимая мебель.
Почему позволить кому-то другому выбирать мебель и декор для вашего дома? Вот что происходит с типичным туристическим трейлером на колесах. Хотя есть несколько красивых коммерческих трейлеров высокого класса, они также, как правило, имеют высокую цену!
С переоборудованием грузового прицепа у вас есть возможность сделать так, чтобы он выглядел именно так, как вы хотите.Вы можете создать скромную бюджетную каюту или роскошный люкс в зависимости от вашего бюджета и вкуса.
Вы даже можете использовать те же обои, что и дома!
7. Грузовые трейлеры сохраняют свою ценность, и вы повысите ценность, конвертируя Цены на eBay держались Вместо того, чтобы терять деньги на покупке туристического прицепа, вы повысите ценность своего собственного грузового прицепа.
Многие люди боятся выполнять простые задачи, например, подключать 12-вольтовую солнечную электрическую систему.
Но с некоторыми базовыми навыками DIY и YouTube, которые помогут вам превратить пустую оболочку в жилую, автономную кабину на колесах.
И вместо того, чтобы обесцениться, ваш грузовой прицеп будет дорожать.
Кроме того, кажется, что даже пустые бывшие в употреблении грузовые прицепы хорошо сохраняют свою ценность. Вот почему рекомендуется купить новый для использования в вашем конверсионном проекте. Покупая подержанное оборудование, можно сэкономить не так много денег.
8. Вы сэкономите деньги на ремонте жилого домаКак только вы создадите туристический трейлер с нуля, вы научитесь все ремонтировать.Это сэкономит вам много денег и придаст вам уверенности при использовании трейлера в кемпинге.
Храните некоторые основные инструменты и запасные части в автофургоне, и если что-то пойдет не так во время похода, у вас будут навыки и знания, чтобы исправить это самостоятельно.
9. Крошечный домик с грузовым прицепом более скрытныйВы можете припарковать места в грузовом прицепе, когда вас будут перемещать в туристическом прицепе.
Большинство фургонов с переоборудованными грузовыми прицепами внешне очень похожи на простые грузовые прицепы, поэтому привлекают меньше внимания.Правда, он не такой скрытный, как переделка обычного автофургона, но вы все равно будете попадать под радар чаще, чем с большим прицепом для дома на колесах.
10. Ваш бокс-трейлер может быть полезен для многих целей Полюбуйтесь закатом из собственного патио кемпинга с грузовым трейлером.Последний пункт очень важен.
Преобразованный прицеп может быть гораздо более универсальным, чем обычный туристический прицеп.
Если вы правильно спроектируете его, вы все равно сможете использовать его для перевозки грузов, когда он не находится в режиме RV.
Если у вас есть какие-либо особые виды спорта или хобби, вы можете сконструировать грузовой прицеп-переоборудование в соответствии с вашим стилем жизни и использовать его в качестве игрушечного тягача.
Вы можете припарковать квадроцикл посреди своей «гостиной» во время путешествия и припарковать его на улице в режиме RV.
Вы можете использовать свой грузовой прицеп для каякинга по выходным и оставить каяки дома, когда отправитесь на летние каникулы.
Для людей, которые любят природу, большие двери сарая или двери пандуса, которые полностью открываются, действительно приносят наружу.Двери пандуса могут стать идеальной площадкой для террасы.
У вас просто нет таких опций со стандартным туристическим прицепом.
Грузовые прицепы— это наиболее универсальный корпус для жилых автофургонов, который можно использовать в различных целях.
Коммунальные прицепы дают вам всю универсальность, присущую переоборудованию фургона, без необходимости обмена вашего автомобиля на фургон или владения двумя автомобилями.
Вернувшись на базу, можно припарковать ее на заднем дворе, и из нее получится отличный домашний офис.Или сарай, куда можно сбежать.
Варианты переоборудования грузовых прицепов безграничны.
Это видео от Extreme Budget действительно показывает, почему переделка собственного грузового прицепа в кемпер — отличная идея:
9 советов для новичков в буксировке прицепа
Оглавление [Скрыть] [Показать]Если идея прицепить кемпер и отбуксировать трейлер в пустыню кажется устрашающей, вы не одиноки. Но этот начинающий турист говорит, что это намного проще, чем кажется.Вам просто нужно знать секреты успеха прицепа. Вот как буксировать прицеп.
Раскрытие информации: этот пост содержит партнерские ссылки. Если вы перейдете и купите, TravelingMom может получить небольшую комиссию без дополнительной оплаты.
Когда я учился в колледже, я нашел необычную летнюю работу в местном временном агентстве: водитель сопровождения грузовых автомобилей.
Это означает, что я ездил на пикапе из города в город в северной центральной части Индианы, где я вырос.Грузовик был оборудован автоматическим выключателем. Breaker Breaker 1-9, для всех вас, дети 70-х. Желтый аварийный свет на крыше и ярко-желтые указатели сообщали о приближении каркаса дома на колесах на тягаче с прицепом. Благодаря этому опыту я немного узнал о буксировке и о том, как припарковать большой автомобиль, работая со своим партнером в большом грузовике позади меня.
Тем не менее, я всегда пугался буксировки прицепа на моем личном транспортном средстве, даже несмотря на то, что часть кемпинга выглядела как (буквальная) масса удовольствия.И я знаю, что я не одинок; Многие люди говорят мне, что они избегают буксировки кемпера, потому что это кажется пугающим.
Что делать, если я неправильно подключу? Что делать, если мои стоп-сигналы не работают? Удержит ли сцепное устройство прицепа? А что, если я наеду на бордюр?
Все эти и многие другие вопросы действительны, но, возможно, неуместны, говорят ветераны буксировки прицепов.
Мечтаете о RVing? Узнайте, как арендовать дом на колесах, чтобы отправиться в семейное путешествие своей мечты!
Да, буксировать можно! Это проще, чем вы думаете, особенно если вы потратите несколько минут на изучение основ.Фото: Nissan North AmericaАвтор был приглашен компанией Nissan для написания этого сообщения. Все мнения принадлежат ей.
Как за рулем внедорожника«Люди часто смотрят на размер прицепа, который может показаться больше, чем их автомобиль, и думают:« Как моя машина может его буксировать? », — говорит Карл Филлипс, старший менеджер Nissan по планированию продукции. «Это может показаться ошеломляющим, но на самом деле, пока прицепы находятся в пределах рекомендованной производителем грузоподъемности, автомобиль справится с этим.”
Nissan пригласил меня в Калифорнию для практики с экспертами по буксировке, которые показали мне, как закрепить прицеп, как его буксировать и как припарковать. Они мягко поправляли меня по ходу дела. Как только я попробовал, я обнаружил, что буксировка вовсе не такая сложная и страшная, как казалось сначала. Я приобрел уверенность на стоянке, когда тренировался, обращал внимание на углы и окончил школу буксировки с яркими цветами.
С этими советами по буксировке вы (да, вы!) Можете более комфортно буксировать и расширить свои ноу-хау:
1.Получите небольшую помощь от другаСамым сложным, на мой взгляд, является парковка, особенно задним ходом. Въехать на параллельную парковку так же просто, как припарковать внедорожник. Однако резервное копирование требует немного терпения, умного размещения зеркала и руководства того, кому вы доверяете, чтобы помочь вам. Это немного похоже на игру в бильярд, когда вы хотите попасть белым битком в один шар, чтобы коснуться другого (как сейчас ваша геометрия?). Мой тренер по буксировке проинструктировал меня повернуть налево, чтобы ехать направо, и это не имело для меня никакого смысла, пока я сам не попробовал.
Говоря о зеркалах, Филлипс говорит: «Резервное копирование прицепа может показаться сложным, но такие технологии, как камеры заднего вида и цифровые мониторы, позволяют водителям лучше видеть препятствия и окружающий мир, облегчая буксировку прицепа».
Линия Airstream’s Nest немного меньше по размеру, ее легче буксировать, и она рассчитана на двоих. Фото: Nissan North America 2. Знайте рейтинг буксировки вашего автомобиляОдин из аббревиатур, который необходимо знать, — это UVW (Вес без груза), который представляет собой максимальную грузоподъемность, которую может выдержать ось.Например, трейлер Wolf Pup Travel Trailer от Forest River (сделанный в моем родном городе!) Имеет UVW чуть меньше 4000 фунтов. Nissan Pathfinder может буксировать до 6000 фунтов плюс вес своих пассажиров.
Pathfinder вмещает до семи человек, продолжая наш пример, поэтому вы можете проверить в руководстве пользователя еще три акронима: GVW (полная масса автомобиля), GVWR (полная масса автомобиля) и GCWR (полная полная масса автомобиля). Вы хотите убедиться, что ваш груженый автомобиль не несет лишнего веса, превышающего рекомендованный производителем.Кроме того, общий вес загруженного транспортного средства и общий вес вашего загруженного прицепа (полная масса прицепа) не превышают рекомендаций производителя.
Не забудьте добавить в закладки эти 5 советов по безопасному вождению зимой.
3. Убедитесь, что автомобиль и прицеп подходят друг другуПерегрузка автомобиля означает перегрузку тормозов, и это определенно недопустимо. Также важно знать максимальный вес языка; это величина веса на сцепное устройство транспортного средства.
Если вес дышла прицепа составляет менее 10 процентов от веса полностью загруженного прицепа, вероятность раскачивания прицепа выше, что влияет на управляемость. Это небольшой запас, потому что, если на дышло будет слишком большой вес (более 15 процентов от общего веса груза прицепа), задние колеса вашего буксирующего транспортного средства могут перегрузиться. В результате остановка и управление могут быть более сложными и потенциально опасными.
Подсказка TravelingMom: Убедитесь, что предметы подходят друг другу.Размеры шаров сцепного устройства прицепа должны соответствовать размеру прицепа.
4. Остановите SwayВы не хотите, чтобы ваш прицеп раскачивался под музыку или что-то еще: чтобы избежать раскачивания прицепа, поместите более тяжелый груз вперед, перед осью прицепа. Также отцентрируйте груз и привяжите его, потому что переключение передач тоже вызывает раскачивание. Уравновесьте вес прицепа с местом для установки, и вы получите плавную езду.
Перчатки и передовая практика сделают буксировку менее стрессовой и легкой для ваших рук.Прицеп качается? Проверьте распределение веса. Фото: Nissan North America 5. Проверьте шиныУбедитесь, что давление в шинах тягача и прицепа соответствует спецификациям, установленным производителем. Недокачанные шины негативно влияют на управляемость и заставляют большую часть поверхности шины касаться земли. В результате увеличивается трение, а это значит, что шины с большей вероятностью перегреются и лопнут. Вы также получите лучшую экономию топлива с правильно накачанными шинами.
Посмотрите на этикетку давления в шинах (обычно на раме со стороны водителя), чтобы найти правильное давление в шинах для вашего автомобиля. Затем проверьте рейтинг скорости на шинах для прицепа и вашего автомобиля и, если нужно, приклейте клейкую ленту посередине рулевого колеса, чтобы напомнить себе, что нужно оставаться ниже этой максимальной скорости.
Для надежности проверьте давление в шинах запасных шин вашего автомобиля и прицепа, если вы собираетесь в более длительную поездку.
6.Привлечь подростков к надзоруПерепроверьте все; это хорошая возможность вовлечь детей в этот процесс. Один из вас должен был выровнять шарнирное крепление сцепного устройства, закрепить предохранительные цепи и шнуры, а другой мог бы выполнять функции контроля качества, чтобы убедиться, что все было сделано правильно. Даже подростки могут узнать, насколько важно пересекать предохранительные цепи, чтобы предотвратить отсоединение прицепа от сцепного устройства, следить за тем, чтобы цепи не тянулись, и что цепи достаточно провисают, когда вы делаете повороты.Они также могут помочь вам проверить задние фонари и поворотники, чтобы убедиться, что они работают должным образом.
7. Проверьте системы резервного копированияПеред тем, как уехать, убедитесь, что трос аварийного отрыва прикреплен к вашему тягачу. Если прицеп каким-то образом отсоединяется от сцепного устройства, этот трос предназначен для срабатывания тормозов прицепа и его быстрой остановки. Думайте об аварийном кабеле как о аварийном шнуре на беговой дорожке — если он отсоединится, он быстро остановит прицеп.
8. Всегда будьте готовыОбращайте внимание и следите за дорогой, на которой несколько машин впереди, чтобы не упустить возможность внезапного торможения впереди. Каждый раз, когда вы тормозите, ваше транспортное средство и прицеп толкают вас вперед сильнее, чем если бы вы просто управляли транспортным средством в одиночку, поэтому вам нужно убедиться, что ваша скорость стабильна, а любые ускорения и замедления являются постепенными, насколько это возможно.
Само собой разумеется, но небольшое напоминание не повредит: позвольте кому-нибудь другому делать ди-джеи под музыку и отвечать на телефонные звонки.Держите глаза и руки на руле и наслаждайтесь поездкой.
Обязательно проверяйте шины перед отъездом и при каждой остановке, чтобы обеспечить максимальную производительность и безопасность. Фото: Nissan North America Ознакомьтесь с нашей публикацией о 10-ти позициях для вашего аварийного автомобильного комплекта. 9. Начните с малогоHappier Campers, Forest River, Jayco, Airstream и другие — это милые туристы для двоих, если вы хотите сбежать со своим партнером на выходные. По мере того, как вы набираетесь смелости, пройдите к большему седельно-сцепному устройству и приведите всю семью.Лично мне нравится полноразмерный климат-контроль Airstream, предварительная разводка солнечной энергии, гладкая кухонная зона и классические линии.
Поскольку я живу в мировой столице автодомов, я могу сказать вам, что есть кемпер для каждой семьи, как только вы поймете, что вам нужно. Подключайся и убирай их!
Ознакомьтесь с одним советом по безопасности в автокресле, который не замечают родители.
Фото: G Images ProМаленькие кемперы, на которых можно тащить практически любую машину
Эта статья была предоставлена вам компанией Banner and Oak.Banner and Oak производит высококачественные мужские и женские шляпы, такие как их классические шляпы для дальнобойщиков, которые идеально подходят для всех ваших приключений на природе.
Представьте себе: вы смотрите на звезды в милях от ближайшего города. Когда вы просыпаетесь утром уютно и тепло, все, что вам нужно, находится в пределах досягаемости — спрятано в собственном маленьком месте. И когда вы наконец встаете, чтобы отправиться в путь, все, что вам нужно сделать, это выйти на улицу, пройти к месту водителя и вставить ключи в замок зажигания.Это не палатка — это небольшой трейлер. И это значительно упрощает жизнь, зная, что вы можете отбуксировать свой дом подальше от дома практически куда угодно, не говоря уже о том, чтобы маневрировать своим прицепом вручную, если вы окажетесь в труднодоступном месте. Маленькие кемперы имеют несколько преимуществ перед полноразмерными домами на колесах. Если вам когда-нибудь понадобится изменить планы в середине поездки, комбинация небольшого кемпинга и автономных карт Dyrt PRO поможет вам выйти из любого затруднительного положения.
Маленькие кемперы дешевле покупать и заправлять бензином по пути.И они могут поместиться в стандартном гараже с дверью высотой 8 футов. Прицепы Teardrop с изогнутым профилем, обычно сужающимся к задней части, популярны благодаря своей легкости, а аэродинамическая форма делает их удобными для буксировки.
Одним из немногих недостатков небольших трейлеров является то, что в них часто (но не всегда!) Отсутствует ванная комната, а кухня обычно находится снаружи (если она есть), так что завтракать можно очень прохладно. Если это вас не пугает, вот список легких кемперов, которые спят для двух или более взрослых и при этом достаточно легкие, чтобы идти за прочной машиной или внедорожником.
Эти небольшие кемперы легко буксировать
Перед покупкой любого из этих небольших кемперов важно убедиться, что буксирная способность вашего автомобиля рассчитана как минимум на 1000 фунтов выше сухой массы. Вы также захотите установить сцепное устройство, если оно не было включено, когда ваша машина съехала со стоянки.
Как только эти детали будут учтены, вы можете начать покупать подходящий небольшой кемпер для приключений на открытом воздухе, о которых вы мечтаете. От каплевидных трейлеров до кемпинговых трейлеров есть столько же разнообразия, сколько есть классы больших типов домов на колесах.Эти девять демонстрируют некоторые особенности и удобства, которые можно ожидать от буксируемых небольших туристических прицепов:
1. Pika by Timberleaf Trailers
Изображение с Timberleaftrailers.com
Сухой вес: 970 фунтов
Общая длина: 11 футов 10 дюймов
Ширина: 5 футов 6 дюймов
Внутренняя высота: 36 дюймов
Доступен с: Timberleaf Trailers
Телефон: 970- 778-3744
Удачно названный в честь небольшого альпийского млекопитающего, обитающего в Скалистых горах, Pika на треть меньше, чем небольшой трейлер Timberleaf Classic.Timberleaf известна своими легкими прицепами в форме капли, которые могут буксировать большинство легковых автомобилей, и Pika развивает это наследие еще дальше — всего восемь футов на пять с половиной футов.
Самый маленький трейлер Timberleaf оснащен 4-дюймовым матрасом двойного размера, который подходит для одного или двух человек. Несмотря на высоту всего 36 дюймов, потолочное окно и боковые окна делают его более просторным, чем можно было бы назвать его крошечные размеры. Внешняя кухня в задней части с двумя гидравлическими газовыми подпорками делает многое, чтобы сделать этот небольшой прицеп просторным.
Лучший способ сэкономить во время кемпинга с небольшим кемпером? Dyrt PRO позволяет вам находить кемпинги прямо из кемпинга без мобильной связи. «Моей альтернативой использованию pro было бы вернуться к сотовой связи».
Pika доступен с вседорожным пакетом, готовым к буксировке за полноприводными кроссоверами SUV. Существует также внедорожный пакет, который включает безосевую подвеску Timbren с подъемником 4 дюйма, шины All-Terrain 33 дюйма BFG, электрические тормоза, рок-броню и шарнирно-сочлененное сцепное устройство Max Coupler.Оба пакета включают шесть USB-портов, которые помогут вам оставаться на связи и оставаться на связи, куда бы вы ни пошли.
Если Pika кажется немного меньше того, что вы ищете, то Timberleaf Classic teardrop предлагает немного больше места — 10 футов в длину и 5 футов в ширину. В нем есть матрас размером 57 на 80 дюймов, раковина с краном для холодной воды. Дополнительные опции включают настраиваемую солнечную панель, багажник на крыше и тент.
2. TAG teardrop от NuCamp
Изображение с Nucamprv.com
Сухой вес: 1046 фунтов
Общая длина: 13 футов 7 дюймов
Ширина: 4 фута 10 дюймов
Внутренняя высота: 47 дюймов
Доступно с : Найдите дилера на nucamprv.com
Этот легкий туристический прицеп можно буксировать за небольшим 4-цилиндровым внедорожником Honda CR-V, даже в горы и другие крутые препятствия. Интерьер красиво отделан деревянными крышками шкафов и оснащен телевизором и аудиосистемой. Сзади открывается вид на кухню, в которой есть плита с двумя конфорками, холодильник и стеллажи для хранения вещей. Изогнутое окно в передней части прицепа открывается, обеспечивая вентиляцию и вид на природу.
NuCamp также предлагает пакет TAG Boondock, который идеально подходит для сухопутных трасс.Эта более мощная версия TAG имеет ту же кухню и комфорт, которые вам понадобятся от маленьких туристов во время длительных экскурсий, но с дополнительными функциями, такими как прочные внедорожные шины, тяжелая наклонная ось и более высокий дорожный просвет, которые предназначены для бездорожья. дорожное приключение.
3. TerraDrop от Oregon Trailer
Изображение с сайта Oregontrailer.net
Ищете слезу, которая не замедлит вас в приключениях по бездорожью? Не смотрите дальше TerraDrop. Этот прицеп, разработанный и изготовленный компанией Oregon Trailer, известной своими внедорожными опциями, обладает всеми преимуществами наземного транспортного средства, но при этом достаточно легок, чтобы его можно было буксировать небольшим 4-цилиндровым внедорожником.
Некоторые из преимуществ включают: меняющие цвет огни под прицепом, фонари, установленные внутри деревянной обшивки салона, магнитные шкафы, USB-порты, лампы для чтения, вентилятор с термостатом, встроенная стеллажная система, изменяющие цвет светодиодные ленты на кухне, 1 система осей подвески тонны, электрические тормоза, вездеходные шины, передняя стойка и задняя система выравнивания. Поскольку эти маленькие прицепы для кемперов можно настраивать, у вас есть возможность сделать эту слезу индивидуальной для ваших желаний и приключений.
4. Без границ (NoBo) 10,5 у реки Форест
Изображение с сайта Forestriverinc.com
Сухой вес: 1570 фунтов
Общая длина: 13 футов 10 дюймов
Внешняя ширина: 7 футов 4 дюйма
Внешняя высота : 6 футов 11 дюймов
Доступно с: Camping World или найдите дилера через Лесную реку
Этот небольшой кемпер имеет продуманную конструкцию, которая упрощает настройку, но при этом он по-прежнему готов к занятиям спортом на открытом воздухе прямо на улице благодаря шинам и подвеске, которые обеспечивают достаточный дорожный просвет и могут справляться с пересеченной местностью.
NoBo разработан для буксировки как 4-, так и 6-цилиндровыми автомобилями, что дает еще большую гибкость потребителю. И есть несколько разных стилей с немного разными характеристиками и планами этажей, например, стиль NB16.8, который оснащен пластиковым унитазом и серыми и черными резервуарами для хранения воды.
Overlanders будут рады видеть, что у NoBo есть дополнительные пакеты, которые позволят вам испытать свой собственный опыт сухопутных операций. Эти пакеты Overlander включают в себя не только поперечины, но и гусеницы RTV, которые дают вам больший контроль над весом и размещением других надстроек послепродажного обслуживания, таких как установленный на крыше багажник для каяка или палатка на крыше, чтобы добавить дополнительное место для сна.Это отличная новость, если вы любите менять аксессуары в зависимости от сезона или иногда путешествуете с друзьями.
5. Колибри 10RK от Jayco
Изображение с Jayco.com
Сухой вес: 1545 фунтов
Общая длина: 13 футов
Внешняя ширина: 6 футов 8 дюймов
Внутренняя высота : 4 фута 5 дюймов
Доступна с: Camping World
Возможно, вы знаете Jayco, когда он проезжал мимо более крупных машин компании по шоссе, но этот старый производитель автофургонов также хорош в создании небольших кемперов.Дизайн заимствует изогнутые края каплевидного трейлера с высотой потолка и более длинным профилем полноразмерного жилого дома. И хотя он компактен, Hummingbird имеет несколько функций, которые добавляют ощущение роскоши.
На кухне установлен двухсторонний светодиодный телевизор на 12 В / 110 В и холодильник, а вентиляционное отверстие на крыше с питанием от вентилятора помогает сохранять прохладу. Когда вы будете готовы отправиться к следующему пункту назначения, разъем для язычка питания сделает поездку на одном дыхании, а портативный динамик Bluetooth, установленный внутри, позволяет транслировать музыку внутри или снаружи.Утепленная нижняя часть живота позволяет вам чувствовать себя комфортно круглый год на случай, если вы захотите погнаться за порохом или северным сиянием.
6. Luna Lite от inTech
Изображение с Intechrv.com
Сухой вес: 1450 фунтов
Общая длина: 15 футов 6 дюймов
Внешняя ширина: 7 футов 10 дюймов
Внутренняя высота : 4 фута 6 дюймов
Доступна с: Aloha RV, Albuquerque, NM . 505-797-8444.
* Информацию о других дилерах можно найти на сайте www.intechRV.com.
Luna Lite сочетает в себе лучшее из прицепов-капель и дорожных прицепов в одном прочном корпусе. Изогнутая задняя часть и квадратный профиль спереди в сочетании с большим окном для картин создают ощущение простора и связи с окружающей средой. Алюминиевый корпус, как следует из названия, легкий, но прочный. Он также поставляется в светлой цветовой палитре, которая будет хорошо отражать солнце в мекках для автофургонов, таких как Палм-Спрингс.
Внутри двойные футоны превращаются в кровать и служат сиденьями в течение дня.На кухне, доступ к которой осуществляется через люк в задней части, есть плита с двумя конфорками, раковина, просторное рабочее место и 12-вольтовый холодильник Coleman. Luna Lite также укомплектована кондиционером на 8000 БТЕ, вентиляционным отверстием на крыше с электроприводом и 32-дюймовым телевизором со светодиодной подсветкой.
7. Флаер погони от inTech
Изображение с Intechrv.com
Сухой вес : 850-1000 фунтов
Общая длина: 12 футов 4 дюйма
Внешняя ширина : 6 футов 10 дюймов (Внутренняя: 4 фута 11 дюймов)
Внутренняя высота: 3 фута 9 дюймов
В наличии: Aloha RV, Albuquerque, NM
* Информацию о других дилерах можно найти на сайте www.intechRV.com.
На другом конце спектра удобств для маленьких туристов, inTech предлагает Chase Flyer, супер-минималистичный, ультра-настраиваемый небольшой трейлер, который избавляет от лишних наворотов, поэтому вы можете добавлять только те функции, которые вам нужны.
Он также готов к работе с солнечной панелью и аккумулятором, если вы хотите построить автономную электрическую систему. Другие варианты включают выбор из трех вариантов внутренней отделки, включая ковровое покрытие, двойные матрасы из вспененного материала, подъемный комплект, электрические тормоза, кондиционер, вентиляционное отверстие Maxx, багажник на крыше, навесы и внедорожные шины.
Вы даже можете приобрести дополнительную палатку, которая расширяет The Flyer за пределы его стандартной внутренней длины 7 футов 5 дюймов и внутренней ширины 4 11 дюймов, что примерно соответствует размеру матраса размера «queen-size». Если вы не планируете постоянно жить в своем маленьком кемпере или просто хотите настроить чистый холст, The Flyer сделает его простым, легким и непринужденным. Это отличный кемпер для начинающих для семей или проект для тех, кто хочет создать трейлер своей мечты с нуля.
8. Sportsmen Classic 130RB by KZ-RV
Изображение с сайта Kz-rv.com
Сухой вес: 1803 фунтов
Общая длина: 15 футов 10 дюймов
Внешняя ширина: 7 футов
Внутренняя высота: 6 футов 6 дюймов
Доступно: Найти дилера через KZ RV
Этот небольшой трейлер ощущается (и выглядит!) Как гораздо более просторный жилой дом внутри и снаружи. В отличие от некоторых небольших прицепов, профиль Sportsmen Classic закруглен только на конце сцепного устройства, что увеличивает внутреннее пространство. Это дает достаточно места сзади для туалета и душа для автофургона.
В короткой ванне вы почувствуете себя Лореттой Линн, которая, как известно, настаивала на ванне в своем туристическом мотоцикле. В противоположном конце уютная столовая оборудована толстыми подушками из пеноматериала высокой плотности, которые служат также спальными местами.
Это не единственное разумное использование пространства. Sportsmen Classic имеет много места для хранения вещей под сиденьями, чтобы максимально использовать квадратные метры прицепа, а также небольшой шкаф. Вы даже можете добавить крошечный холодильник на кухню и навес снаружи, чтобы дополнить атмосферу RV в пакете, который имеет размеры всего 15 x 7 футов.Этого достаточно для буксировки даже среднеразмерного внедорожника, не говоря уже о более крупных грузовиках.
9. Винтажные трейлеры
Изображение Терри Боуна на Викимедиа, (CC BY-SA 2.0)
Многие энтузиасты кемпинга любят старинные трейлеры — просто спросите Шари и Хатч, которые уже более пяти лет проводят в кемпинге в своем трейлере для консервированной ветчины полный рабочий день. Тем не менее, существует много разных типов винтажных небольших кемперов с целым рогом изобилия. В зависимости от того, что вы ищете, вы можете выбрать антикварный, винтажный или классический кемпер в зависимости от эстетики, оригинальных удобств или возможностей установки для современных обновлений.
Кардинал 1954 года от Adams Trailer Manufacturing Company, например, похож на многие современные небольшие кемпинги тем, что в нем есть полноразмерная кровать с откидной койкой и столовая, которая превращается в дополнительную спальню. Кухня в «Кардинале» тоже на удивление просторная, с трехконфорочной газовой плитой и духовкой. Другие, такие как Ruby Red 1956 Platt Camper, отличаются от современных туристических трейлеров сильной ретро-эстетикой, которая напоминает о посетителях, которые когда-то были разбросаны по знаменитым автомагистралям, таким как Route 66.
Если вы покупаете винтажные небольшие кемперы, вы можете найти все, от ремонтных верхов, готовых к настройке, до полностью отреставрированных роскошных трейлеров, полных античного шарма. Если вы, например, любите Air Streams, но не хотите большую длину и размер, вы можете найти старинные маленькие трейлеры с похожей внешностью серебристого цвета космической эры или даже классические деревянные панели, которые вы могли бы узнать из старых школьных универсалов. .
О старинных прицепах важно помнить о том, чтобы делать покупки так же тщательно, как при покупке подержанной машины или дома.Убедитесь, что нет повреждений от воды, нет щелей, в которые могут протиснуться паразиты, и что конструкция прицепа все еще прочная. Вы захотите проверить безопасность электрических и сантехнических систем, если таковые имеются, а также изоляции.
Подумайте, как вы хотите запитать свою установку — от солнечной системы, подключений или случайного генератора. Также решите, насколько важны элементы кухни или ванной комнаты, и сделайте покупки или отремонтируйте соответственно. При расчете буксирной грузоподъемности не забудьте также учесть дополнительный вес любой мебели или дополнительных элементов.
Этот товар предоставил вам Banner and Oak
Banner and Oak производит высококачественные шляпы для дальнобойщиков Snapback по доступной цене.
Статьи по теме:
Связанные кемпинги:
Популярные статьи:
13 малых туристических трейлеров и кемперов до 3500 фунтов
Некоторые из приведенных ниже ссылок являются партнерскими ссылками, что означает, что мы будем получать комиссию за продукты или услуги, которые вы приобретаете по ссылкам.Для вас нет дополнительных затрат, а заработок помогает поддерживать работу этого веб-сайта. Прочтите Заявление об отказе от ответственности для партнеров для получения дополнительной информации.
Во время нашего путешествия по уменьшению габаритов жилых автофургонов мы рассмотрели довольно много небольших туристических трейлеров. Требование номер один — дорожный прицеп должен быть легким. В частности, мы искали трейлеры для путешествий до 3500 фунтов. Между всеми исследованиями, посещением дилеров и посещением выставок RV мы должны были проверить довольно много небольших прицепов для кемперов .
Это обзор некоторых из наших любимых легких туристических прицепов весом до 3500 фунтов.
Малые туристические прицепы до 3500 фунтов (от A до Z)
Alto Teardrop Camper Trailer от Safari Condo
Alto by Safari Condo — безусловно, наш любимый кемпер в форме слезинки . Тете и дяде Кейт принадлежит Alto R1713, и мы позволим нам отснять их трейлер в форме слезы, который вы можете посмотреть ниже. Они обнаружили, что Safari Condo Alto легко буксировать на их Jeep Wrangler.Мы также познакомились с несколькими архитекторами, которым нравится этот небольшой легкий кемпер с прицепом за его уникальный дизайн.
Полная масса: 2500 фунтов
Веб-сайт: http://www.safaricondo.com/en/
Basecamp 16 Алюминиевый дорожный прицеп от Airstream
Базируется в Джексон-центре, штат Огайо. Basecamp присоединяется к линейке алюминиевых туристических прицепов Airstream . Этот небольшой трейлер для жилых автофургонов оснащен влажной ванной приличного размера и окном на камбузе.Базовый вес Airstream Basecamp 16 составляет 2650 фунтов, а полная масса — 3500 фунтов.
Полная масса: 3500 фунтов
Веб-сайт: https://www.airstream.com/travel-trailers/basecamp/
Bean Trailers — сверхлегкий дорожный прицеп
Базируется в Солт-Лейк-Сити, штат Юта. Bean Trailer производит легкие прицепы со стеклопластиковой оболочкой. Прицеп Bean Stock и Class Bean имеют сухой вес 1650 фунтов с полной массой 3500 фунтов.
Фото: Bean TrailerПолная масса: 3500 фунтов
Сайт: http://www.beantrailer.com/
Туристические трейлеры Boreas Campers для путешествий по бездорожью
Базируется в Арваде, штат Колорадо. Boreas Campers производит несколько моделей внедорожных кемперов. Кемпер Boreas XT, показанный на фотографии ниже, имеет сухой вес 2200 фунтов с полной массой 3500 фунтов и дорожным просветом 19 дюймов.
Фото: Boreas CampersGVWR: 3500
Веб-сайт: https: // boreascampers.ru / кемперы /
Дорожные прицепы из стекловолокна Casita Spirit
Базируется в Райсе, штат Техас. Этот производитель легких туристических прицепов производит небольшие кемперы с 1983 года. Эти прочные и аэродинамичные дорожные прицепы из стекловолокна можно легко заметить катящимися по дороге. Casita Spirit — самый легкий туристический прицеп, который компания делает со стандартным Casita Spirit 16, весит 1970 фунтов в сухом виде.
Полная масса: 3500 фунтов
Веб-сайт: http: // casitatraveltrailers.com /
Прицеп для игры в крикет от TAXA Outdoors
Большой плюс этого небольшого трейлера для кемпинга — «дизайн, вдохновленный НАСА». Мы даже вкратце рассматривали возможность буксировки прицепа Cricket за нашим Jeep Wrangler Unlimited, когда мы сокращали размер нашего автофургона класса A. Сухой вес составляет 1800 фунтов с полной массой 2700 фунтов. Если вы хотите еще больше приключений по суше и за пределами сети, есть версия этого легкого кемпингового трейлера Cricket Overland.
Полная масса: 2700 фунтов
Веб-сайт: https: // taxaoutdoors.com
Happier Camper HC1 Дорожный прицеп из стекловолокна
Базируется в Лос-Анджелесе, Калифорния. Happier Camper HC1 — это конструктор Lego из стеклопластиковых туристических трейлеров . Эта небольшая тяга позади кемпера настолько модульна, что вы можете настроить ее разными способами, чтобы она соответствовала потребностям вашего кемпингового прицепа. Мы не видели других легких кемперов, таких как HC1, а базовый сухой вес составляет 1100 фунтов.
Полная масса: 3500 фунтов
Веб-сайт: http: // happyiercamper.com /
Листовки InTech, трейлеры Luna и Sol
Базируется в Наппани, штат Индиана. В 2010 году основатели InTech RVs поставили перед собой задачу построить лучшие туристические трейлеры. В настоящее время компания предлагает широкий выбор легких алюминиевых дорожных прицепов , различающихся по размеру и компоновке.
Полная масса: 2,220-3,500 фунтов
Веб-сайт: https://www.intechrv.com/
Lance 1475 Маленький дорожный прицеп
Базируется в Ланкастере, Калифорния.До того, как Ланс выпустил модель 1475, мы рассматривали возможность буксировки кемпера Lance 1575. В этом небольшом туристическом трейлере нет горок, а его самой примечательной особенностью являются большие окна у вращающихся стульев. Ниже представлен наш видеотур по туристическому трейлеру Lance 1475.
Полная масса: 3500 фунтов
Сайт: http://www.lancecamper.com/
Дорожные прицепы из стекловолокна Scamp
Базируется в Бэкусе, Миннесота. Scamp Trailers производят дорожных прицепов из стекловолокна по заказу на заводе и используют поставщиков из США.S.A. «Когда вы покупаете Scamp, знайте, что они качественно произведены американцами, которые гордятся тем, что поддерживают традиции совершенства Scamp».
Фото: Scamptrailers.comПолная масса: 2200–3500 фунтов
Сайт: http://www.scamptrailers.com/
SylvanSport VAST Легкий дорожный прицеп
Базируется в Бреварде, Северная Каролина. У SylvanSport есть несколько буксируемых опций, среди которых VAST — их первый туристический трейлер. Девиз компании — «комфортабельный кемпинг для приключений», цель которого — изменить ожидания потребителей в отношении трейлеров для жилых автофургонов.
Полная масса: 3000 фунтов
Веб-сайт: https://www.sylvansport.com/
Timberleaf Teardrop Trailers
Базируется в Гранд-Джанкшен, штат Колорадо. В настоящее время Timberleaf предлагает три модели своих прицепов-капель ручной работы. Бюджетный прицеп для кемпинга Kestrel начинается с 7800 долларов и весит 860 фунтов. Модель Classic начинается с 21 500 долларов и включает в себя множество наворотов, которые клиенты хотят видеть в своем туристическом трейлере.
Фотография предоставлена: Timberleaf TrailerПолная масса: 3500 фунтов
Веб-сайт: https: // лесовозы.com /
Vistabule Teardrop TrailersБазируется в Сент-Поле, Миннесота. Мы узнали об этих крутых трейлерах в форме слезинки, которые разбили лагерь рядом с одним в национальном парке Биг-Бенд. Ката и Марина, владельцы трейлера слезинки Vistabule ниже, были достаточно любезны, чтобы устроить нам экскурсию. В то время они буксировали этот небольшой трейлер на своем Subaru. Посмотрите их приключения в Instagram на Vistabule302.
Полная масса: 2 200
Веб-сайт: https: // vistabule.com /
Другие малые туристические прицепы, которые стоит рассмотреть
Есть еще несколько туристических трейлеров, на которые стоит обратить внимание, если вы хотите купить небольшой автоприцеп за кемпером.
Дорожный трейлер из стекловолокна Airstream’s Nest
КомпанияAirstream приобрела NEST Caravans несколько лет назад, чтобы предложить версию своего легендарного туристического трейлера «серебряная пуля» из стекловолокна.
Полная масса: 4000 фунтов
Веб-сайт: https://www.airstream.com/travel-trailers/nest/
Дорожный прицеп из стекловолокна Bigfoot
Bigfoot RV базируется в Британской Колумбии, Канада.Они производят туристические трейлеры из стекловолокна и грузовые кемперы для четырехсезонного кемпинга. Самый маленький туристический прицеп имеет сухой вес 3179 с полной массой 4300 . В видеообзоре ниже представлена модель 25B21RB.
Полная масса: 7500 фунтов
Сайт: http://bigfootrv.com
Дорожные прицепы повышенной проходимости серии Black
Black Series базируется в Австралии. Они делают прочные внедорожные фургоны и туристические палатки, которые бродят по австралийской глубинке более десяти лет.Теперь вы можете купить туристические прицепы серии Black в США, на которые предоставляется 5-летняя гарантия на конструкцию.
GVWR: широкий диапазон
Веб-сайт: https://www.blackseriescamper.com/
Дорожные прицепы из стекловолокна для эвакуацииБазируется в Чилливаке, Британская Колумбия, Канада. Escape Trailer производит туристические прицепы из стекловолокна, которые продаются напрямую потребителям. В то время как большинство их небольших прицепов для кемпинга имеют вес более 3500 фунтов, Escape 17A и 17B имеют полную массу автомобиля (4 000 фунтов).
Полная масса: 4000 фунтов
Веб-сайт: https://escapetrailer.com/
Прицеп для путешествий из стекловолокна Oliver
Oliver Travel Trailers базируется в Теннесси. Они делают прицепы из стекловолокна с двойным корпусом, которые тяжелее, чем другие варианты, перечисленные в этом посте. Если вес менее 3500 фунтов для вас не является критерием, посмотрите трейлер для путешествий Legacy Elite II.

Все, что необходимо будет сделать, – приварить к рукоятке прицепное устройство для мотоблока, изготовленное из сцепки от плуга, и небольшую подставку для сидения;
-20м, 20х40мм. -15м., стальная труба с внутренним диметром, соответствующим наружному размеру подшипника ступицы, листовой металл толщиной 2мм. и общей площадью 2х3м.;
