Чердачная лестница с люком своими руками чертежи, видео
Чердак является традиционным помещением практически в каждом загородном доме. Его функционал необычайно широк. К примеру, данное помещение используется в качестве складской комнаты или мастерской, некоторые домовладельцы и вовсе оформляют чердак как гостиную или спальню. На самом деле, функционально назначение такой комнаты зависит исключительно от вашей собственной фантазии, а также финансовых возможностей. Однако, несмотря на широкое многообразие вариантов оформления чердачного пространства, стоит знать, что чердачная лестница с люком является неотъемлемой его частью. Если вы не соорудите данную конструкцию, то попросту не сможете попасть в это помещение. Создание чердачной лестницы – достаточно простое дело, в связи с которым вам даже не придется обращаться к профессионалам в строительной индустрии.
Чердачная лестница должна быть функциональной
Классификация конструкций
Собственно, наиболее трудоемким процессом в деле организации чердачного пространства является конструирование лестничного сегмента. Прежде, чем создавать проект конкретной лестницы для вашего дома, необходимо предварительно определиться с категорией конструкции. Существуют такие варианты:
- складная;
- стационарная;
- переносная.
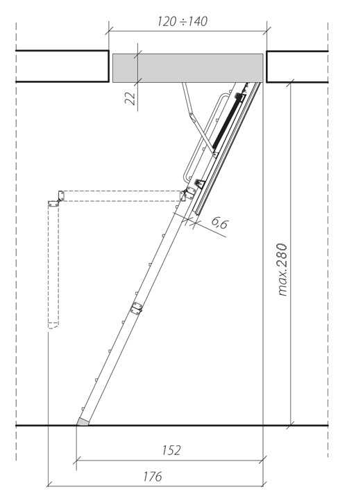
Примерная схема складной лестницы с люком
Особенности различных конструкций
Специалисты строительной индустрии называют широкую маршевую конструкцию наиболее надежной в соответствующем сегменте. Стоит отметить, что ее долговечность, надежность и безопасность не сравнить с представленными на рынке конструктивными аналогами. Между тем, несмотря на большое количество преимуществ данного варианта, выбор в его пользу иногда невозможен в связи с банальной нехваткой необходимого свободного пространства. Таким образом, если вы не располагаете большой площадью для лестницы, то стационарная модель вам не подойдет. Однако, отчаиваться не стоит, ведь всегда можно построить складную лестницу. Ее конструкция обладает лучшими характеристиками от стационарных и переносных аналогов. К примеру, на так же надежна и безопасна как стационарная маршевая модель, однако, для организации такой конструкции необходимо располагать совсем небольшим количеством свободного пространства. Кроме того, именно складные модели наиболее просто реализовать без помощи опытных профессионалов.
Простая лестница из двух частей
Временное решение
Переносные модели выделят в отдельную категорию, однако, она достаточно обширна. Разнообразие переносных изделий просто невероятное. Между тем, не стоит забывать, что ежедневное использование такого изделия никогда не сможет стать безопасным или достаточно комфортным, а сама лестница не в состоянии конкурировать со стационарными и складными моделями по эксплуатационно-техническим характеристикам.
Лестница должна быть комфортной и функциональной
Подбор стройматериалов
В процессе создания чердачной лестницы своими руками, а именно – ее предварительного чертежа, стоит обратить внимание на то, какие стройматериалы принято использовать в данном деле. Несмотря на все многообразие продукции в сегменте стройматериалов, любой опытный строитель скажет вам, что есть определенные виды товаров, которые наилучшим образом показывают себя в процессе эксплуатации. Как правило, все основные детали конструкции изготавливаются преимущественно из древесины, в то время как крепежные и фиксаторные элементы производят из металлов. Благодаря грамотному подбору материалов чердачная лестница своими руками, чертеж которой выполнен непрофессионалом, будет на порядок крепче и надежнее.
Складная лестница на шарнирах
Как сделать свой выбор?
В связи с тем, что стройматериалы для складных лестниц на чердак представлены в разнообразии ценовых сегментов, исходного материала и характеристик, утонуть в море информации о них достаточно просто. Чтобы минимизировать временные затраты на поиск и выбор оптимальных вариантов, следует руководствоваться рядом правил:
- Конкретизируйте тип функционального назначения конструкции, а также ее основные параметры, в числе которых конструкционные особенности, секционность, ширина и прочее.
- Выбирайте стройматериалы в четком соответствии к тому, как активно будет осуществляться эксплуатация изделия и в каких условиях.
- Определите негативные факторы, которые могут сократить эксплуатационный рок изделия.
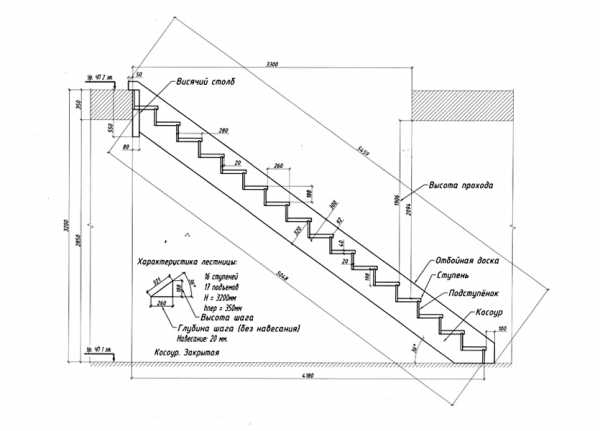
Еще одна типовая схема чердачной лестницы
Главное – правильно определить функцию
Любой специалист, имеющий необходимый уровень квалификации и опыт в работе с такими типами объектов, скажет вам, что от грамотного определения функционального назначения изделия во многом зависит итоговый результата строительных работ по возведении лестницы на чердак своими руками. Этот параметр позволяет рассчитать показатель допустимой нагрузки на каждую ступеньку изделия. Стандартное значение данного показателя для изделия из металла начитывает порядка 250 кГс, а вот деревянные модели рассчитаны только на 150 кГс. Кроме того, стоит учитывать и то, что приведенные выше показатели справедливы для изделий, изготовленных профессионалами, самодельные же объекты обладают несколько более низкими параметрами. В целом, показатель допустимого давления на ступеньку не означает, что большего напряжения она не вынесет. Однако, если слишком часто перегружать конструкцию, то она придет в негодность за достаточно краткий срок.
Открывая люк, вы не должны прилагать большие усилия
Итак, основные критерии, по которым осуществляется выбор оптимального варианта, таковы:
- площадь свободного пространства в помещении;
- функциональное назначение объекта;
- необходимый угол наклона изделия.
Создание чертежа должно осуществляться в соответствии с нормативами
Этапы работы и их особенности
Собственно, специалисты говорят, что в создании лестницы с люком своими руками ничего особенно трудного нет. Достаточно придерживаться определенных правил, проверенных годами. К примеру, при составлении чертежей конструкции стоит руководствоваться нормативно-технической документацией, в которой, помимо условий общего характера, приведены еще и конкретные параметры стандартных изделий. Кроме того, на просторах Интернета в открытом доступе предложена масса готовых схем на любой вкус. Можно взять готовый вариант и приступить к воплощению проекта в жизнь, или же немного доработать его в соответствии с индивидуальными особенностями дома.
Инструментарий, рекомендованный специалистами
Рисунок 9.
Что учесть при проектировании?
Наиболее общие требования нормативной и техничной документации можно свести к ряду простых и понятных условий:
- эргономичный диапазон ширины изделия – это от 60 до 100 сантиметров;
- наилучшая высота насчитывает три с половиной метра;
- максимальное число ступеней – 15 штук;
- расстояние между расположенными рядом ступенями должно насчитывать порядка 20 сантиметров;
- комфортная для человека высота ступеньки достигает порядка 20 сантиметров, допускается отклонение в 2 сантиметра;
- если речь идет о складной конструкции, то при создании проекта берется допустимая нагрузка 15 килограммов.
Инструментарий
Решившись на самостоятельное осуществление строительных работ, очень важно запастись определенным комплектом инвентаря, дабы в процессе реализации проекта изделия не остановиться из-за банального отсутствия отвертки или рулетки. Итак, стандартный набор инструментов состоит из таких предметов:
- монтажная пена;
- бруски;
- саморезы;
- электрический шуруповерт;
- ножовка;
- измерительная рулетка;
- анкеры;
- отвертки.
Строительство лестницы – не сложное дело
Особенности месторасположения
Все нюансы месторасположения объекта в помещении станут видны в процессе строительства. Это особенно актуально, если вы занимаетесь созданием и последующей реализацией проекта самостоятельно. Помните, что изделие ни в коем случае не может уменьшать комфортабельность помещения. Именно поэтому лестницы с люком не располагаются в спальнях, гостиных и на кухнях. Однако, при необходимости, вы можете разнообразить свой проект лестницы интересным дизайном. Благодаря этому изделие сможет гармонично вписаться в общий интерьер помещения.
Технология реализации проекта
Следуя определенной технологии, можно быстро и качественно реализовать даже сложный проект. Итак, если вы выбрали металл в качестве основного материала, то помните, что осуществляются такие этапы:
- чертеж наносится на листы картона;
- вырезаются картонные элементы будущего изделия;
- на полосках из металла наносится разметка шарнира и подготавливаются специальные отверстия;
- подготовленные детали фиксируются между собой;
- замеряется необходимый угол и раздвигается конструкция в соответствии с полученными параметрами;
- на металлических листах наносится разметка тех мест, которые будут впоследствии перекрыты уголками;
- с помощью специального инструмента вырезаются элементы;
- придается эстетичный внешний вид объекта;
- существующие углы закругляются;
- скрепляются заготовки попарно.
Как видите, технология работы по реализации проекта лестницы собственноручно достаточно проста. Она распространяется не только на металлические объекты, но и на деревянные изделия.
Для того, чтобы внешний вид чердачной лестницы был максимально привлекательным, не поленитесь осуществить подготовительные работы по поверхности строительного материала. Речь идет, к примеру, о нанесении специальной грунтовки прежде, чем покрывать красящим веществом поверхность.
Не бойтесь трудностей, ведь технология осуществления строительства лестницы только на первый взгляд может показаться вам проблематичной и требующей опыта в строительной индустрии. Приложение оптимального количества усилий поможет вам добиться максимального результата.
jsnip.ru
Чердачная лестница своими руками — лесница на чердак
В большинстве случаев чердак применяется для хранения неиспользуемых и старых вещей. В прошлые времена мало кто мог осмелиться использовать его для жилого пространства. Сегодня же в погоне за каждым квадратным метром многие переустраивают чердачное помещение, делая жилую комнату. Соответственно, чердачная лестница в этом случае играет ключевую роль. В этой статье мы с разных сторон рассмотрим с вами изготовление этого предмета интерьера, и узнаем, какие существуют виды лестниц на чердак.
Устройства и типы конструкций
Виды лестниц
Лестницы устанавливаются как снаружи, так и внутри дома. Последний вариант обладает куда большими плюсами. Чтобы попасть в чердачное помещение, не нужно идти через двор. Следует выделить несколько видов конструкций лестниц:
Монолитные.

Складные чердачные лестницы.
- Откидные.
- Ножничные.
- Телескопические.
- Раскладные или рычажные.
Ножничного типа
Переносные.
- Приставные.
- Стремянки.
Что касается последнего варианта, то такие лестницы зачастую используются, как временные сооружения. Например, они применимы в тех случаях, когда чердаком приходится пользоваться не так часто. Переносные лестницы не так надежны.
Если говорить о надежности, то здесь, безусловно, следует отметить монолитные лестницы, которые обладают широким маршем и надежными перилами. Но если у вас маленькое помещение, то вместить ее будет практически нереально. В подобных обстоятельствах идеальный вариант лестницы – выдвижная. Она отличается простотой эксплуатации, безопасностью и эргономичностью.
Лестница-трансформер складная
Преимущественно, лестница-трансформер производится из металла или дерева. Если эти два материала скомбинировать, то результат будет очень даже достойным. Например, марш лестницы делается из дерева, а важные узлы из металла: крепление, механизм и пружины. Дерево будет облегчать все сооружение, а металл добавлять прочность. Для изготовления деревянных элементов лучше применять твердые породы древесины.
В некоторых ситуациях можно применять пластиковую фурнитуру. В процессе трансформации пластмасса нивелирует трение. По методу открывания раскладные лестницы бывают ручные и автоматические. Для легкого ручного открывания к лестнице прикрепляется груз.
Главные требования, которые предъявляются для складных чердачных лестниц это компактные размеры и прочность. Не меньшую роль играет и эстетичный внешний вид сооружения.
Раздвижная лестница с выдвижными маршами
Большой популярностью пользуются ножничные лестницы. Ее производство выполняется только из металлических деталей. По-другому она называется «гармошка». Но они имеют ряд отрицательных качеств. Например, спустя время, лестничный марш будет издавать неприятный скрип, так как некоторые детали будут изнашиваться. Но это можно предотвратить, своевременно смазывая каждое рабочее соединение.
Телескопическая лестница
Телескопическая
Данный тип конструкции состоит из секций, которые выдвигаются. В сложенном виде она занимает мало места, так как детали собираются одна в другую. Делаются они преимущественно из алюминия. Телескопическая лестница имеет высокую прочность.
Секционная и шарнирная
Она может иметь 1–4 секции. Первая закрепляется на крышке. Последующие секции соединены между собой и образовывают равномерный лестничный марш. Они оборудованы шарнирами и специальными петлями.
Откидная
Если у вас нет свободного места, откидная лестница имеет явные преимущества. В большинстве случаев она сложена в стене. По необходимости ее можно выдвинуть. Используя карточные петли, ступеньки закрепляют на тетиве. Когда она сложена, она прячется в стену.
Лестница, которая прячется в стену
Общие требования к чердачным лестницам
Следует упомянуть про стандартные размеры таких сооружений:
- Допустимой шириной марша считается 650 мм.
- Не рекомендуется изготавливать лестницу более 3000 мм в высоту. Это повлечет за собой меньшую жесткость конструкции, в результате чего может произойти несчастный случай. Кроме всего прочего, слишком высокую конструкцию будет проблематично складывать.
- Ступеньки в количестве от 13 до 15 штук.
- Между ступенями должен быть промежуток не более 19,3 см. В противном случае эксплуатация лестницы будет затруднена.
- Ступенька должна иметь толщину от 1,8 до 2,2 см.
- Стандартный угол наклона равняется 60–75°.
- Вся конструкция должна выдерживать вес до ста пятидесяти килограммов.
- Расположение ступенек только параллельно полу. Для полной безопасности на них можно наклеить противоскользящие накладки.
Размеры
Отдельно следует отметить и размер люка. Стандартным размером считают 120×70 см. Если проем будет меньше, то подниматься будет неудобно. При больших размерах люка будут большие теплопотери. Если ваш чердак отапливаться не будет, тогда люк должен быть паро- и теплоизолирован.
Месторасположение чердачной лестницы
Месторасположение
Лестница не должна мешать проживанию в доме. По этой причине установка лестницы в кухне или в спальне будет нецелесообразной. Поэтому ее можно расположить, например, в коридоре, холле. Выбранное помещение должно быть соответствующего размера. В некоторых случаях такие лестницы используются в качестве детали интерьера, поэтому в некоторых случаях ее можно не прятать. Рекомендуется сделать предварительный чертеж, чтобы представить лестницу в вашем интерьере.
Изготовление лестницы из двух секций
Из двух секций
Если вы хотите изготовить простую лестницу без сложных механизмов, то лестница из двух секций это идеальный вариант. Для ее изготовления вам потребуются:
- Ножовка по дереву.
- Рулетка.
- Стремянка.
- Карточные петли по ширине косоура – 4 штуки.
- Брус – 2 штуки толщиной 2–3 см. По длине должен равняться ширине люка.
- Петли, саморезы, крючок и анкера.
При помощи петли короткий брус закрепляется на верхний конец лестницы. Второй, аналогичный отрезок бруска, на нижней части. Они должны закрепиться наискось, иначе будут мешать движению. Такая конструкция будет достаточно жесткой. После, отмеряете 2/3 лестницы и делаете аккуратный распил. При помощи металлических петель соединяете две части.
Петли необходимо правильно закрепить, иначе лестница будет открываться в неправильном направлении.
Теперь на стене под люком монтируйте верхний брусок. Чтобы в сложенном состоянии лестница не раскрывалась, можно использовать крючок. Для этого рядом с местом распила вкрутите петлю, а крючок на соответствующем расстоянии – в стену. Чердачная двухсекционная лестница готова!
Одним из недостатков такой конструкции является то, что она всегда на виду. Но если приложить немного больше усилий, то своими руками можно соорудить лестницу, которая будет спрятана в люке.
Прячем лестницу за люком
Конструкция, сложенная в люке
Данный вид лестницы имеет три секции, но в этом случае она удачно расположится в люке. Прежде всего, определитесь с ее месторасположением. Например, проем имеет размеры 120×65 см. Тогда для предотвращения потери тепла люк следует вырезать на 7–8 мм шире с каждой из сторон. Для работы потребуется следующий материал:
- Брусок сечением 50×50 мм – 2 длинных и 2 коротких.
- Фанера, толщиной 10 мм.
- Фанера, толщиной 4 мм, для изготовления косынки.
- Клей ПВА.
- Саморезы.
На конце каждого бруска сделайте выпил на половину его толщины. После эти места промажьте клеем и соедините в паз все между собой в прямоугольник. Для прочности между собой можно дополнительно скрутить саморезами. Чтобы у вас вышла точная диагональ из фанеры 4 мм вырежьте косынку.
Когда клей высох, косынки демонтируете и прикрутите лист фанеры 10 мм саморезами. Теперь примерьте конструкцию в проеме. Если все подходит, то измерения были выполнены точно.
Для эстетичного вида в крышку врежьте дверную защелку. При помощи прикрученной ручки можно будет открывать люк на защелке.
Механизм для лестницы с люком – шарнирный без пружины
Один из важных узлов складной чердачной лестницы – механизм открывания. Самый простой метод заключается в его покупке. Но при желании сэкономить семейный бюджет его можно сделать своими руками.
Для этого вам потребуется:
- Уголок – 1 штука.
- Кусок металлического листа.
- Две полоски разной длины.
- Болты М10.
- Дрель.
- Сверла.
- Малка.
- Лобзик.
- Тески.
- Струбцины.
Технология изготовления:
- Первым делом делается чертеж на картоне лестницы. При этом следует указать приблизительный угол ее наклона в открытом состоянии.
- Теперь из картона вырезаете пример конструкции и отдельные детали. Это позволит подобрать правильную длину шарнира.
- На металлических полосках отмеряете отверстия для шарнира. Расстояния отмеряете согласно предварительным измерениям. Отверстие делается для болта М10.
- Эти детали собираете между собой и слегка стягиваете.
- Теперь замеряете нужный угол, используя малку. После чего раздвигаете механизм на нужный угол.
- На металле отмечаете область, которая при открывании будет перекрываться уголком. При помощи лобзика вырезаете ее.
- На этом этапе полосам придаете товарный вид. Закругляете углы и обрезаете лишнюю длину. Это позволит им не цепляться между собой и, соответственно, не мешать друг другу.
- После удаления лишнего металла уголок станет упираться в требуемом положении. Первый механизм готов!
- Для приготовления второго механизма скрепите между собой струбцинами каждую пару деталей. Это позволит сделать идентичную деталь. Просверлите отверстия.
- В готовое отверстие вставляете болт и просверливаете второе.
- Скрутив заготовки двумя болтами, ровняете их по длине и придаете одинаковую форму.
По такому принципу делаете все части механизма. В результате у вас получится сделать две одинаковые части механизма.
Когда механизмы готовы, их следует прикрепить к люку, который был сделан раньше. При этом следует примерить люк с механизмами к проему.
В открытом положении люк не должен касаться стенок проема. В случае необходимости его можно отрегулировать. Чтобы все сооружение хорошо удерживалось, следует изготовить еще одну важную деталь. Для этого возьмите две полосы, ширина которых 2 см, а также уголок. К концу одной из полос приварите небольшой кусок металла. В качестве опорной площадки будет выступать уголок.
Так, вы сделаете шарнир, который в открытом положении слегка будет сгибаться, но при этом выдерживать всю нагрузку. Кроме всего прочего, он должен полностью раскрываться. Это позволит равномерно распределить нагрузку, создаваемую шарнирной лестницей.
Лестница из дерева на тетивах
Раскладная секционная
Сделаем лестницу из дерева. Возьмите дюймовую доску, шириной в десять сантиметров. Она пригодится для изготовления тетивы и ступенек. Первая секция делается ровно по длине люка, вторая – аналогично, а третья немного меньше. Что касается последней секции, то ее длина должна равняться оставшемуся расстоянию между полом и двумя секциями в разложенном виде. Здесь также необходимо будет воспользоваться малкой. Вымеряете наклон угла лестницы в ее разложенном состоянии. Эти измерения перенесите на доску и отметьте ступени. Это делается на двух длинных секциях. Эти линии следует наносить равномерно на две доски. Для этого их можно скрепить скотчем. Наносимые линии должны быть зеркальными. В местах, где будут шарнирные петли, просверлите пером на 25 отверстия.
Отверстия должны быть с двух сторон досок, поэтому сначала делаете отверстия с внутренней стороны, а затем с внешней. Каждое отверстие отшлифуйте фрезером.
Это придаст заготовам эстетичный вид. В местах соединения сегментов распилите доски.
Нарежьте необходимое количество ступенек, отшлифуйте их. Для каждой ступени на тетиве сделайте небольшие отверстия в 5 мм. Всю же конструкцию собирайте при помощи клея ПВА и саморезов.
Делаем металлические петли
Чтобы соединить секции марша следует также изготовить петли. Благодаря их наличию лестница будет складываться и раскладываться, соответственно. Для этой цели необходимо будет взять металлическую полосу шириной в 2,5 см. Таких полосок нужно будет восемь штук. К четырем из них приварите небольшой кусочек аналогичной полоски. В каждой из них сделайте отверстия, которые будут использоваться для крепления лестницы.
Теперь первый и второй сегмент лестницы уложите на ровную поверхность. Стык между ними должен быть достаточно плотным. Прикручивайте петлю так, чтобы болт шарнира стал в выемку по центру соединенных секций. С другой стороны ориентиром будет край тетивы. После прикручивания двух петель проверьте лестницу на предмет ее сгибания. Если все работает исправно, по такому же примеру соедините третий сегмент.
Монтаж складной конструкции в проем
Теперь осталась самая малость. Когда все изготовленные вами детали закончены и соединены между собой, можно приступать к монтажу в проем.
Первым делом обработайте все металлические части грунтовкой для металла, краской из баллончика и нанесите два слоя лака на деревянные элементы.
Когда вся конструкция высохла, остается закрепить ее анкерами в проеме на чердак. После продолжительных работ складная лестница готова! Фотоинструкцию вы можете найти в конце статьи.
Как сделать откидную чердачную лестницу?
Схема откидной лестницы
На чердак или на изготовленную вами мансарду можно подняться, используя откидную лестницу. Для этого вам потребуется следующий строительный материал:
- Для изготовления тетивы 2 доски. Толщина 30 мм, ширина 200 мм. Длина напрямую зависит от угла наклона лестницы и высоты перекрытия.
- Доски для ступенек. Ширина 120 мм, толщина 30 мм, длина 500 мм.
- На каждую ступеньку две карточные петли.
- Саморезы.
- Анкера.
- Крючок для крепления конструкции на стене.
Для успешной сборки лестницы до потолка верхний край стационарной тетивы не должен доходить на 550 мм.
Схема в собранном виде
Итак, вся работа выполняется в такой последовательности:
- Одну тетиву закрепляете анкером к стене. Само крепление должно быть жестким, так как на нем будет держаться вся конструкция.
- Размечаете ступеньки. Положение первой отмечаете параллельно полу. Проводите отрезок, длина равна ширине ступеньки 120 мм.
- Теперь проводите две параллельные прямые через концы отрезка параллельно краям тетивы.
- Затем проводите перпендикуляр от конца первого отрезка.
- От этой линии отступаете вправо на 10 мм и проводите линию параллельно перпендикуляру.
- Точка пересечения этой линии с верхней, которая проводится параллельно к краю тетивы, определяет месторасположение следующей ступени. По такому принципу осуществляется разметка всех последующих ступеней.
Чтобы ступени при складывании не терлись друг о друга, между ними необходим отступ в один сантиметр. Всю эту разметку переносите на вторую тетиву и крепите ступени в отмеченных местах. Что касается петель, то они должны располагаться на стационарной тетиве так, чтобы они в конечном результате подняли ступени вверх, а подвижную тетиву опустили вниз. Соответственно, в подходящих местах на стене монтируется крючок. Это, пожалуй, самый простой и быстрый метод изготовления откидной чердачной лестницы.
Дело за малым
Итак, мы рассмотрели с вами несколько вариантов изготовления чердачной лестницы своими руками. Безусловно, сначала может показаться что это немыслимая задача, но, приложив усилия и старания, можно сделать все. Оставляйте свои комментарии к этой статье и делитесь своими впечатлениями!
Рекомендуем ознакомиться:
Фото
Косынки
Защелка
Механизм
Вырезаем область, перекрываемую уголком
Один механизм готов
Скрутите струбцинами заготовки
Просверлите отверстия
Сделайте все детали
Механизмы готовы
Уголок служит опорой
Таким будет шарнир
Здесь будут шарнирные петли
Отшлифуйте отверстия
Распилите доски
Сделайте на тетиве пазы
Металлические петли
Понадобятся петли
Соедините детали
Установка в проем
Окончательно закрепите лестницу анкерами
kakpravilnosdelat.ru
Изготовление складной чердачной лестницы своими руками.
Содержание:
1. Введение.
2. Изготовление люка для выхода на чердак и крепления чердачной лестницы.
3. Изготовление и сборка складной деревянной лестницы.
1. Введение. (Рис. 1)
Введение
Введение 2. Изготовление люка для выхода на чердак и крепления чердачной лестницы 3. Изготовление и сборка складной деревянной лестницы 1. Введение. Michail RybakovПри обустройстве частного дома невозможно обойтись без лестницы. В зависимости от площади и этажности помещения это могут быть как шикарные маршевые лестницы в частных домах из камня и бетона, устланные коврами и позволяющими пройти одновременно нескольким людям, могут быть конструкции скромнее, в метр полтора шириной из дерева, металла или стекла или компактные узкие винтовые лестницы экономящие пространство. (Рис. 2, 3)
В зависимости от площади и этажности помещения это могут быть как шикарные маршевые лестницы в частных домах из камня и бетона, устланные коврами и позволяющими пройти одновременно нескольким людям, могут быть конструкции скромнее, в метр полтора шириной из дерева, металла или стекла или компактные узкие винтовые лестницы экономящие пространство
Изготовление и сборка складной деревянной лестницы 1. Введение. При обустройстве частного дома невозможно обойтись без лестницы. В зависимости от площади и этажности помещения это могут быть как шикарные маршевые лестницы в частных домах из камня и бетона, устланные коврами и позволяющими пройти одновременно нескольким людям, могут быть конструкции скромнее, в метр полтора шириной из дерева, металла или стекла или компактные узкие винтовые лестницы экономящие пространство. Michail RybakovВ зависимости от площади и этажности помещения это могут быть как шикарные маршевые лестницы в частных домах из камня и бетона, устланные коврами и позволяющими пройти одновременно нескольким людям, могут быть конструкции скромнее, в метр полтора шириной из дерева, металла или стекла или компактные узкие винтовые лестницы экономящие пространство
Изготовление и сборка складной деревянной лестницы 1. Введение. При обустройстве частного дома невозможно обойтись без лестницы. В зависимости от площади и этажности помещения это могут быть как шикарные маршевые лестницы в частных домах из камня и бетона, устланные коврами и позволяющими пройти одновременно нескольким людям, могут быть конструкции скромнее, в метр полтора шириной из дерева, металла или стекла или компактные узкие винтовые лестницы экономящие пространство. Michail RybakovДаже проживая в одноэтажном доме, периодически возникает необходимость в лестнице для подъема на чердак. Статьи о том, как рассчитать величину лестницу и построить лестницу из бетона и дерева, какой должна быть лестница из декинга уже есть на нашем сайте, и ознакомиться с ними вы сможете, пройдя по ссылкам: «Покрытии для террас из древесины» , «Конструкция керамогранитных ступеней для лестниц» , «Лестница своими руками. расчет и виды. » , «Деревянная лестница своими руками.способы обустройства» , «Как установить стеклянные ограждения на лестнице. » , «Дизайн «живого» озелененного бетонного дома. » , «Как сделать бетонный пол по грунту в частном доме». На этот раз пришло время изучить возможность сооружения своими руками чердачной лестницы. (Рис. 4, 5)
На этот раз пришло время изучить возможность сооружения своими руками чердачной лестницы
В зависимости от площади и этажности помещения это могут быть как шикарные маршевые лестницы в частных домах из камня и бетона, устланные коврами и позволяющими пройти одновременно нескольким людям, могут быть конструкции скромнее, в метр полтора шириной из дерева, металла или стекла или компактные узкие винтовые лестницы экономящие пространство. Даже проживая в одноэтажном доме, периодически возникает необходимость в лестнице для подъема на чердак. Статьи о том, как рассчитать величину лестницу и построить лестницу из бетона и дерева, какой должна быть лестница из декинга уже есть на нашем сайте, и ознакомиться с ними вы сможете, пройдя по ссылкам: Покрытии для террас из древесины , Конструкция керамогранитных ступеней для лестниц , Лестница своими руками расчет и виды , Деревянная лестница своими руками способы обустройства , Как установить стеклянные ограждения на лестнице , Дизайн «живого» озелененного бетонного дома , Как сделать бетонный пол по грунту в частном доме. На этот раз пришло время изучить возможность сооружения своими руками чердачной лестницы. Michail RybakovНа этот раз пришло время изучить возможность сооружения своими руками чердачной лестницы
В зависимости от площади и этажности помещения это могут быть как шикарные маршевые лестницы в частных домах из камня и бетона, устланные коврами и позволяющими пройти одновременно нескольким людям, могут быть конструкции скромнее, в метр полтора шириной из дерева, металла или стекла или компактные узкие винтовые лестницы экономящие пространство. Даже проживая в одноэтажном доме, периодически возникает необходимость в лестнице для подъема на чердак. Статьи о том, как рассчитать величину лестницу и построить лестницу из бетона и дерева, какой должна быть лестница из декинга уже есть на нашем сайте, и ознакомиться с ними вы сможете, пройдя по ссылкам: Покрытии для террас из древесины , Конструкция керамогранитных ступеней для лестниц , Лестница своими руками расчет и виды , Деревянная лестница своими руками способы обустройства , Как установить стеклянные ограждения на лестнице , Дизайн «живого» озелененного бетонного дома , Как сделать бетонный пол по грунту в частном доме. На этот раз пришло время изучить возможность сооружения своими руками чердачной лестницы. Michail RybakovЛестницы для подъема на чердак могут быть самых разных конструкций и моделей. Если позволяет площадь, то устанавливают маршевую лестницу или винтовую. Очень часто для обустройства подьема на чердак используют модульные лестницы или лестница трансформер . Лестницы любой конструкции будут отлично выполнять функцию устройства ведущего на чердак, но чаще всего происходит так, что для обустройства чердачной лестницы места либо минимум, либо вообще нет. В таком случае на помощь приходят складные и раздвижные чердачные лестницы . Изготавливают их из металла или древесины. (Рис. 6, 7)
Изготавливают их из металла или древесины
Очень часто для обустройства подьема на чердак используют модульные лестницы или лестница трансформер. Лестницы любой конструкции будут отлично выполнять функцию устройства ведущего на чердак, но чаще всего происходит так, что для обустройства чердачной лестницы места либо минимум, либо вообще нет. В таком случае на помощь приходят складные и раздвижные чердачные лестницы. Изготавливают их из металла или древесины. Michail RybakovИзготавливают их из металла или древесины
Очень часто для обустройства подьема на чердак используют модульные лестницы или лестница трансформер. Лестницы любой конструкции будут отлично выполнять функцию устройства ведущего на чердак, но чаще всего происходит так, что для обустройства чердачной лестницы места либо минимум, либо вообще нет. В таком случае на помощь приходят складные и раздвижные чердачные лестницы. Изготавливают их из металла или древесины. Michail RybakovПри этом не менее важным моментом является правильное обустройство люка ведущего на чердак. В данной статье предлагаю рассмотреть изготовление складных чердачных лестниц и грамотное оборудование проема и крышки люка.
2. Изготовление люка для выхода на чердак и крепления чердачной лестницы. (Рис. 8)
Изготовление люка для выхода на чердак и крепления чердачной лестницы
Изготавливают их из металла или древесины. При этом не менее важным моментом является правильное обустройство люка ведущего на чердак. В данной статье предлагаю рассмотреть изготовление складных чердачных лестниц и грамотное оборудование проема и крышки люка 2. Изготовление люка для выхода на чердак и крепления чердачной лестницы. Michail RybakovПеред тем как соорудить и установить лестницу (складную или раздвижную) необходимо выполнить целый ряд подготовительных мероприятий. В число этих мероприятий входят заготовка материала, инструмента, а так же укрепление входного проема ведущего на чердак. (Рис. 9)
В число этих мероприятий входят заготовка материала, инструмента, а так же укрепление входного проема ведущего на чердак
В данной статье предлагаю рассмотреть изготовление складных чердачных лестниц и грамотное оборудование проема и крышки люка 2. Изготовление люка для выхода на чердак и крепления чердачной лестницы. Перед тем как соорудить и установить лестницу (складную или раздвижную) необходимо выполнить целый ряд подготовительных мероприятий. В число этих мероприятий входят заготовка материала, инструмента, а так же укрепление входного проема ведущего на чердак. Michail Rybakov* Перечень инструментов состоит из такого списка: рулетка, угольник, карандаш, ножовка, пилы, молоток, шуруповерт, дрель, (возможно перфоратор), стамеска, болты, отвертка, плоскогубцы. Может пригодиться так же и бытовой фрезерный станок. («Дрель и шуруповерт » , «Электроинструменты. перфоратор, отбойный молоток» , «Шлифовальные электроинструменты» , «Лобзики, сабельные пилы, рубанки, фрезерные машины» ).
* В список необходимых материалов вошло следующее: деревянные бруски и доски индивидуального размера, фанера, полистирол или пенопласт (для утепления крышки), пленка — паробарьер, готовые навесы, шарниры и подъемный механизм (реализуются в строительных магазинах в большом ассортименте), доски или брусья (в зависимости от высоты, нагрузки и ваших предпочтений) для изготовления тетивы и ступеней, герметик и уплотнитель (силиконовый или резиновый).
Теперь попробуем изготовить и установить ведущий на чердак люк с крышкой. Для этого делаем замеры имеющегося проема (по мере необходимости расширяем или сужаем его). Удобнее всего использовать проем выхода на чердак с минимальным размером 1.30 м * 1.40 м., но так как все индивидуально, то в первую очередь ориентируйтесь на возможности своей потолочной поверхности и строительные особенности крыши своего дома. (Рис. 10, 11, 12, 13, 14, 15)
Удобнее всего использовать проем выхода на чердак с минимальным размером 1 30 м * 1 40 м , но так как все индивидуально, то в первую очередь ориентируйтесь на возможности своей потолочной поверхности и строительные особенности крыши своего дома
* Перечень инструментов состоит из такого списка: рулетка, угольник, карандаш, ножовка, пилы, молоток, шуруповерт, дрель, (возможно перфоратор), стамеска, болты, отвертка, плоскогубцы. Может пригодиться так же и бытовой фрезерный станок ( Дрель и шуруповерт , Электроинструменты перфоратор, отбойный молоток , Шлифовальные электроинструменты , Лобзики, сабельные пилы, рубанки, фрезерные машины ) * В список необходимых материалов вошло следующее: деревянные бруски и доски индивидуального размера, фанера, полистирол или пенопласт (для утепления крышки), пленка — паробарьер, готовые навесы, шарниры и подъемный механизм (реализуются в строительных магазинах в большом ассортименте), доски или брусья (в зависимости от высоты, нагрузки и ваших предпочтений) для изготовления тетивы и ступеней, герметик и уплотнитель (силиконовый или резиновый) Теперь попробуем изготовить и установить ведущий на чердак люк с крышкой. Для этого делаем замеры имеющегося проема (по мере необходимости расширяем или сужаем его). Удобнее всего использовать проем выхода на чердак с минимальным размером 1 30 м * 1 40 м , но так как все индивидуально, то в первую очередь ориентируйтесь на возможности своей потолочной поверхности и строительные особенности крыши своего дома. 10, 11, 12, 13, 14, 15) Michail RybakovУдобнее всего использовать проем выхода на чердак с минимальным размером 1 30 м * 1 40 м , но так как все индивидуально, то в первую очередь ориентируйтесь на возможности своей потолочной поверхности и строительные особенности крыши своего дома
* Перечень инструментов состоит из такого списка: рулетка, угольник, карандаш, ножовка, пилы, молоток, шуруповерт, дрель, (возможно перфоратор), стамеска, болты, отвертка, плоскогубцы. Может пригодиться так же и бытовой фрезерный станок ( Дрель и шуруповерт , Электроинструменты перфоратор, отбойный молоток , Шлифовальные электроинструменты , Лобзики, сабельные пилы, рубанки, фрезерные машины ) * В список необходимых материалов вошло следующее: деревянные бруски и доски индивидуального размера, фанера, полистирол или пенопласт (для утепления крышки), пленка — паробарьер, готовые навесы, шарниры и подъемный механизм (реализуются в строительных магазинах в большом ассортименте), доски или брусья (в зависимости от высоты, нагрузки и ваших предпочтений) для изготовления тетивы и ступеней, герметик и уплотнитель (силиконовый или резиновый) Теперь попробуем изготовить и установить ведущий на чердак люк с крышкой. Для этого делаем замеры имеющегося проема (по мере необходимости расширяем или сужаем его). Удобнее всего использовать проем выхода на чердак с минимальным размером 1 30 м * 1 40 м , но так как все индивидуально, то в первую очередь ориентируйтесь на возможности своей потолочной поверхности и строительные особенности крыши своего дома. Michail RybakovУдобнее всего использовать проем выхода на чердак с минимальным размером 1 30 м * 1 40 м , но так как все индивидуально, то в первую очередь ориентируйтесь на возможности своей потолочной поверхности и строительные особенности крыши своего дома
* Перечень инструментов состоит из такого списка: рулетка, угольник, карандаш, ножовка, пилы, молоток, шуруповерт, дрель, (возможно перфоратор), стамеска, болты, отвертка, плоскогубцы. Может пригодиться так же и бытовой фрезерный станок ( Дрель и шуруповерт , Электроинструменты перфоратор, отбойный молоток , Шлифовальные электроинструменты , Лобзики, сабельные пилы, рубанки, фрезерные машины ) * В список необходимых материалов вошло следующее: деревянные бруски и доски индивидуального размера, фанера, полистирол или пенопласт (для утепления крышки), пленка — паробарьер, готовые навесы, шарниры и подъемный механизм (реализуются в строительных магазинах в большом ассортименте), доски или брусья (в зависимости от высоты, нагрузки и ваших предпочтений) для изготовления тетивы и ступеней, герметик и уплотнитель (силиконовый или резиновый) Теперь попробуем изготовить и установить ведущий на чердак люк с крышкой. Для этого делаем замеры имеющегося проема (по мере необходимости расширяем или сужаем его). Удобнее всего использовать проем выхода на чердак с минимальным размером 1 30 м * 1 40 м , но так как все индивидуально, то в первую очередь ориентируйтесь на возможности своей потолочной поверхности и строительные особенности крыши своего дома. Michail RybakovУдобнее всего использовать проем выхода на чердак с минимальным размером 1 30 м * 1 40 м , но так как все индивидуально, то в первую очередь ориентируйтесь на возможности своей потолочной поверхности и строительные особенности крыши своего дома
* Перечень инструментов состоит из такого списка: рулетка, угольник, карандаш, ножовка, пилы, молоток, шуруповерт, дрель, (возможно перфоратор), стамеска, болты, отвертка, плоскогубцы. Может пригодиться так же и бытовой фрезерный станок ( Дрель и шуруповерт , Электроинструменты перфоратор, отбойный молоток , Шлифовальные электроинструменты , Лобзики, сабельные пилы, рубанки, фрезерные машины ) * В список необходимых материалов вошло следующее: деревянные бруски и доски индивидуального размера, фанера, полистирол или пенопласт (для утепления крышки), пленка — паробарьер, готовые навесы, шарниры и подъемный механизм (реализуются в строительных магазинах в большом ассортименте), доски или брусья (в зависимости от высоты, нагрузки и ваших предпочтений) для изготовления тетивы и ступеней, герметик и уплотнитель (силиконовый или резиновый) Теперь попробуем изготовить и установить ведущий на чердак люк с крышкой. Для этого делаем замеры имеющегося проема (по мере необходимости расширяем или сужаем его). Удобнее всего использовать проем выхода на чердак с минимальным размером 1 30 м * 1 40 м , но так как все индивидуально, то в первую очередь ориентируйтесь на возможности своей потолочной поверхности и строительные особенности крыши своего дома. Michail RybakovУдобнее всего использовать проем выхода на чердак с минимальным размером 1 30 м * 1 40 м , но так как все индивидуально, то в первую очередь ориентируйтесь на возможности своей потолочной поверхности и строительные особенности крыши своего дома
* Перечень инструментов состоит из такого списка: рулетка, угольник, карандаш, ножовка, пилы, молоток, шуруповерт, дрель, (возможно перфоратор), стамеска, болты, отвертка, плоскогубцы. Может пригодиться так же и бытовой фрезерный станок ( Дрель и шуруповерт , Электроинструменты перфоратор, отбойный молоток , Шлифовальные электроинструменты , Лобзики, сабельные пилы, рубанки, фрезерные машины ) * В список необходимых материалов вошло следующее: деревянные бруски и доски индивидуального размера, фанера, полистирол или пенопласт (для утепления крышки), пленка — паробарьер, готовые навесы, шарниры и подъемный механизм (реализуются в строительных магазинах в большом ассортименте), доски или брусья (в зависимости от высоты, нагрузки и ваших предпочтений) для изготовления тетивы и ступеней, герметик и уплотнитель (силиконовый или резиновый) Теперь попробуем изготовить и установить ведущий на чердак люк с крышкой. Для этого делаем замеры имеющегося проема (по мере необходимости расширяем или сужаем его). Удобнее всего использовать проем выхода на чердак с минимальным размером 1 30 м * 1 40 м , но так как все индивидуально, то в первую очередь ориентируйтесь на возможности своей потолочной поверхности и строительные особенности крыши своего дома. Michail RybakovУдобнее всего использовать проем выхода на чердак с минимальным размером 1 30 м * 1 40 м , но так как все индивидуально, то в первую очередь ориентируйтесь на возможности своей потолочной поверхности и строительные особенности крыши своего дома
* Перечень инструментов состоит из такого списка: рулетка, угольник, карандаш, ножовка, пилы, молоток, шуруповерт, дрель, (возможно перфоратор), стамеска, болты, отвертка, плоскогубцы. Может пригодиться так же и бытовой фрезерный станок ( Дрель и шуруповерт , Электроинструменты перфоратор, отбойный молоток , Шлифовальные электроинструменты , Лобзики, сабельные пилы, рубанки, фрезерные машины ) * В список необходимых материалов вошло следующее: деревянные бруски и доски индивидуального размера, фанера, полистирол или пенопласт (для утепления крышки), пленка — паробарьер, готовые навесы, шарниры и подъемный механизм (реализуются в строительных магазинах в большом ассортименте), доски или брусья (в зависимости от высоты, нагрузки и ваших предпочтений) для изготовления тетивы и ступеней, герметик и уплотнитель (силиконовый или резиновый) Теперь попробуем изготовить и установить ведущий на чердак люк с крышкой. Для этого делаем замеры имеющегося проема (по мере необходимости расширяем или сужаем его). Удобнее всего использовать проем выхода на чердак с минимальным размером 1 30 м * 1 40 м , но так как все индивидуально, то в первую очередь ориентируйтесь на возможности своей потолочной поверхности и строительные особенности крыши своего дома. Michail RybakovДалее переносим полученные результаты замеров на бумагу. Это потребуется для создания эскиза с указанием точных рассчитанных размеров будущей лестницы. (Рис. 16, 17)
Это потребуется для создания эскиза с указанием точных рассчитанных размеров будущей лестницы
Для этого делаем замеры имеющегося проема (по мере необходимости расширяем или сужаем его). Удобнее всего использовать проем выхода на чердак с минимальным размером 1 30 м * 1 40 м , но так как все индивидуально, то в первую очередь ориентируйтесь на возможности своей потолочной поверхности и строительные особенности крыши своего дома. Далее переносим полученные результаты замеров на бумагу. Это потребуется для создания эскиза с указанием точных рассчитанных размеров будущей лестницы. Michail RybakovЭто потребуется для создания эскиза с указанием точных рассчитанных размеров будущей лестницы
Для этого делаем замеры имеющегося проема (по мере необходимости расширяем или сужаем его). Удобнее всего использовать проем выхода на чердак с минимальным размером 1 30 м * 1 40 м , но так как все индивидуально, то в первую очередь ориентируйтесь на возможности своей потолочной поверхности и строительные особенности крыши своего дома. Далее переносим полученные результаты замеров на бумагу. Это потребуется для создания эскиза с указанием точных рассчитанных размеров будущей лестницы. Michail RybakovПриступаем к изготовлению рамы будущего люка. Рама играет важнейшую роль в конструкции уже, потому что является несущей деталью, к которой будут закреплены утепленная крышка и лестница. В связи с этим к надежности ее устройства нужно подойти с особым вниманием. (Рис. 18)
В связи с этим к надежности ее устройства нужно подойти с особым вниманием
Это потребуется для создания эскиза с указанием точных рассчитанных размеров будущей лестницы. Приступаем к изготовлению рамы будущего люка. Рама играет важнейшую роль в конструкции уже, потому что является несущей деталью, к которой будут закреплены утепленная крышка и лестница. В связи с этим к надежности ее устройства нужно подойти с особым вниманием. Michail RybakovИтак, на деревянных брусках (или досках) соответствующего размера напиливаются углы, так что бы при их стыковке друг к другу получилась рама с прямыми углами. После этого выполняют своеобразную «примерку» рамы к чердачному проему и, удостоверившись в том, что углы соответствуют 90 градусам, места соединения углов промазывают клеем. Для того чтобы углы сохранили свои «правильные» 90 градусов, устанавливаются распорки или временные косынки в углах рамы и затем части рамы скручиваются саморезами. («Мобильный деревянный дом на лыжах своими руками» , «Возводим подиум. фото в интерьере» , «Как сделать деревянный пол по грунту на лагах» ). (Рис. 19, 20, 21)
Для того чтобы углы сохранили свои «правильные» 90 градусов, устанавливаются распорки или временные косынки в углах рамы и затем части рамы скручиваются саморезами ( Мобильный деревянный дом на лыжах своими руками , Возводим подиум фото в интерьере , Как сделать деревянный пол по грунту на лагах )
В связи с этим к надежности ее устройства нужно подойти с особым вниманием. Итак, на деревянных брусках (или досках) соответствующего размера напиливаются углы, так что бы при их стыковке друг к другу получилась рама с прямыми углами. После этого выполняют своеобразную «примерку» рамы к чердачному проему и, удостоверившись в том, что углы соответствуют 90 градусам, места соединения углов промазывают клеем. Для того чтобы углы сохранили свои «правильные» 90 градусов, устанавливаются распорки или временные косынки в углах рамы и затем части рамы скручиваются саморезами ( Мобильный деревянный дом на лыжах своими руками , Возводим подиум фото в интерьере , Как сделать деревянный пол по грунту на лагах ). Michail RybakovДля того чтобы углы сохранили свои «правильные» 90 градусов, устанавливаются распорки или временные косынки в углах рамы и затем части рамы скручиваются саморезами ( Мобильный деревянный дом на лыжах своими руками , Возводим подиум фото в интерьере , Как сделать деревянный пол по грунту на лагах )
В связи с этим к надежности ее устройства нужно подойти с особым вниманием. Итак, на деревянных брусках (или досках) соответствующего размера напиливаются углы, так что бы при их стыковке друг к другу получилась рама с прямыми углами. После этого выполняют своеобразную «примерку» рамы к чердачному проему и, удостоверившись в том, что углы соответствуют 90 градусам, места соединения углов промазывают клеем. Для того чтобы углы сохранили свои «правильные» 90 градусов, устанавливаются распорки или временные косынки в углах рамы и затем части рамы скручиваются саморезами ( Мобильный деревянный дом на лыжах своими руками , Возводим подиум фото в интерьере , Как сделать деревянный пол по грунту на лагах ). Michail RybakovДля того чтобы углы сохранили свои «правильные» 90 градусов, устанавливаются распорки или временные косынки в углах рамы и затем части рамы скручиваются саморезами ( Мобильный деревянный дом на лыжах своими руками , Возводим подиум фото в интерьере , Как сделать деревянный пол по грунту на лагах )
В связи с этим к надежности ее устройства нужно подойти с особым вниманием. Итак, на деревянных брусках (или досках) соответствующего размера напиливаются углы, так что бы при их стыковке друг к другу получилась рама с прямыми углами. После этого выполняют своеобразную «примерку» рамы к чердачному проему и, удостоверившись в том, что углы соответствуют 90 градусам, места соединения углов промазывают клеем. Для того чтобы углы сохранили свои «правильные» 90 градусов, устанавливаются распорки или временные косынки в углах рамы и затем части рамы скручиваются саморезами ( Мобильный деревянный дом на лыжах своими руками , Возводим подиум фото в интерьере , Как сделать деревянный пол по грунту на лагах ). Michail Rybakov После этого раму люка можно крепить к базовой обвязке проема или закрепляют к элементам перекрытия гвоздями (использовать нужно гвозди не менее 100 мм).
Важно! Лестница будет помещаться поверх крышки люка, поэтому никакие укосы — распорки не могут оставаться по углам рамы, чтобы не препятствовать ее подъему. (Рис. 22)
Лестница будет помещаться поверх крышки люка, поэтому никакие укосы — распорки не могут оставаться по углам рамы, чтобы не препятствовать ее подъему
Для того чтобы углы сохранили свои «правильные» 90 градусов, устанавливаются распорки или временные косынки в углах рамы и затем части рамы скручиваются саморезами ( Мобильный деревянный дом на лыжах своими руками , Возводим подиум фото в интерьере , Как сделать деревянный пол по грунту на лагах ). После этого раму люка можно крепить к базовой обвязке проема или закрепляют к элементам перекрытия гвоздями (использовать нужно гвозди не менее 100 мм). Важно!. Лестница будет помещаться поверх крышки люка, поэтому никакие укосы — распорки не могут оставаться по углам рамы, чтобы не препятствовать ее подъему. Michail RybakovКрышка люка должна быть легкой, крепкой и теплой одновременно. Для этого между листами фанеры, пластика или другого крепкого материала (вырезанными в соответствии с размером чердачного выхода) помещают лист пенополистирола и паробарьер. Таким образом, вы сможете утеплить крышку проема и избежать значительных теплопотерь. Квадрат утепленной фанеры обрамляют еще одной рамкой из доски. Здесь уже можно поэкспериментировать с креплением.
С помощью готовых навесов крышку прикрепляют к раме. Осталось закрепить на крышке люка удобную ручку и выбранный подъемный механизм (облегчающий эксплуатацию — подъем и спуск крышки люка). (Рис. 23, 24)
Осталось закрепить на крышке люка удобную ручку и выбранный подъемный механизм (облегчающий эксплуатацию — подъем и спуск крышки люка)
Квадрат утепленной фанеры обрамляют еще одной рамкой из доски. Здесь уже можно поэкспериментировать с креплением. С помощью готовых навесов крышку прикрепляют к раме. Осталось закрепить на крышке люка удобную ручку и выбранный подъемный механизм (облегчающий эксплуатацию — подъем и спуск крышки люка). Michail RybakovОсталось закрепить на крышке люка удобную ручку и выбранный подъемный механизм (облегчающий эксплуатацию — подъем и спуск крышки люка)
Квадрат утепленной фанеры обрамляют еще одной рамкой из доски. Здесь уже можно поэкспериментировать с креплением. С помощью готовых навесов крышку прикрепляют к раме. Осталось закрепить на крышке люка удобную ручку и выбранный подъемный механизм (облегчающий эксплуатацию — подъем и спуск крышки люка). Michail RybakovРаму люка при креплении к обвязке так же лучше пройти герметиком или клеем. Это предотвратит появление сквозняков. Крайние грани крышки дополнительно можно проклеить резиновым или силиконовым утеплителем. («Утепление потолка» , «Утепление стен» , «Способы обшивки и утепления стен каркасного дома. » ).
3. Изготовление и сборка складной деревянной лестницы. (Рис. 25)
Изготовление и сборка складной деревянной лестницы
Раму люка при креплении к обвязке так же лучше пройти герметиком или клеем. Это предотвратит появление сквозняков. Крайние грани крышки дополнительно можно проклеить резиновым или силиконовым утеплителем ( Утепление потолка , Утепление стен , Способы обшивки и утепления стен каркасного дома ) 3. Изготовление и сборка складной деревянной лестницы. Michail RybakovЗакрепив в потолочном проеме изготовленный своими руками люк, можно приступать к изготовлению складной лестницы. Первым делом нужно отмерить необходимую длину бруса для тетивы. Лестница будет состоять из трех частей. Каждая часть короче предыдущей, начиная с верхнего элемента. Это необходимое условие для удобства при складывании лестницы. Необходимо учитывать так же и момент прохождения сложенной лестницы рамы проема. То есть в сложенном виде лестница будет иметь вид объемного набора деревянных брусьев на крышке люка и в процессе закрытия люка лестница может цепляться за край проема. Поэтому еще на этапе составления чертежа нужно предусмотреть отступ лестницы от края. (Рис. 26)
Поэтому еще на этапе составления чертежа нужно предусмотреть отступ лестницы от края
Это необходимое условие для удобства при складывании лестницы. Необходимо учитывать так же и момент прохождения сложенной лестницы рамы проема. То есть в сложенном виде лестница будет иметь вид объемного набора деревянных брусьев на крышке люка и в процессе закрытия люка лестница может цепляться за край проема. Поэтому еще на этапе составления чертежа нужно предусмотреть отступ лестницы от края. Michail RybakovВозвращаясь к изготовлению лестницы, обратим внимание на то, что после нарезания бруса для тетивы у нас должно получиться три пары брусьев разной длины. Теперь принимаемся за изготовление ступеней — перекладин. Перекладины так же нарезаются из доски согласно индивидуальным размерам вашей лестницы. Для того чтобы надежно и красиво закрепить перекладины к брусьям тетивы, с внутренней стороны брусьев тетивы делается вырубка по размеру ступени и глубинной около пяти миллиметров. Вставив во врубку тетивы ступени, закрепляете их шуруповертом саморезами ПШ. Процедуру продолжаете со всеми перекладинами. (Рис. 27)
Процедуру продолжаете со всеми перекладинами
Перекладины так же нарезаются из доски согласно индивидуальным размерам вашей лестницы. Для того чтобы надежно и красиво закрепить перекладины к брусьям тетивы, с внутренней стороны брусьев тетивы делается вырубка по размеру ступени и глубинной около пяти миллиметров. Вставив во врубку тетивы ступени, закрепляете их шуруповертом саморезами ПШ. Процедуру продолжаете со всеми перекладинами. Michail RybakovСледующим этапом станет сборка закрепление элементов складной лестницы к раме люка чердачного проема.
Петли для соединения складывающихся частей лестницы можно приобрести готовые, а можно изготовить самостоятельно. Выглядят такие устройства как две соединенные и свободно вращающиеся металлические планки. Они должны быть изготовлены из достаточно толстого металла, чтобы выдержать вес лестницы и не изгибаться. (Рис. 28)
Они должны быть изготовлены из достаточно толстого металла, чтобы выдержать вес лестницы и не изгибаться
Процедуру продолжаете со всеми перекладинами. Следующим этапом станет сборка закрепление элементов складной лестницы к раме люка чердачного проема Петли для соединения складывающихся частей лестницы можно приобрести готовые, а можно изготовить самостоятельно. Выглядят такие устройства как две соединенные и свободно вращающиеся металлические планки. Они должны быть изготовлены из достаточно толстого металла, чтобы выдержать вес лестницы и не изгибаться. Michail RybakovКрепить петли нужно так, чтобы изгиб (место соединения металлических планок) находился ровно на полосе соединения частей лестницы. Для этого части лестницы укладываются на ровную поверхность, плотно стыкуясь между собой. Петли складываете галочкой и разводите ровно на расстояние необходимое для фиксации к частям лестницы. Крепить петли лучше болтами 6 — 8 мм. При использовании саморезов велика вероятность того, что они быстро разболтаются, и придется переделывать всю конструкцию. После фиксации петель обязательно проверьте полученный результат на синхронность сгиба.
Соединив две первых части те же действия проводим и с третьим элементом. После соединения всех трех элементов лестницы петлями, вновь проверьте их, сложив и разложив конструкцию.
Собранная лестница крепиться к крышке люка металлическими углами. С помощью болтов уголки фиксируются к поверхности лестницы и крышки.
После закрепления лестницы последним штрихом станет установка поддерживающих шарниров и замка — задвижки, который будет удерживать крышку люка с лестницей в закрытом состоянии.
Шарниры состоят из четырех длинных планок (по две на каждую). Соединены они таким образом, что в раскрытом состоянии остаются под определенным углом, не давая крышке полностью откинуться. Подобие таких шарниров можно видеть в старых шифоньерах, трельяжах, да и частенько в современных тумбочках и секретерах. (Рис. 29)
Подобие таких шарниров можно видеть в старых шифоньерах, трельяжах, да и частенько в современных тумбочках и секретерах
После закрепления лестницы последним штрихом станет установка поддерживающих шарниров и замка — задвижки, который будет удерживать крышку люка с лестницей в закрытом состоянии. Шарниры состоят из четырех длинных планок (по две на каждую). Соединены они таким образом, что в раскрытом состоянии остаются под определенным углом, не давая крышке полностью откинуться. Подобие таких шарниров можно видеть в старых шифоньерах, трельяжах, да и частенько в современных тумбочках и секретерах. Michail RybakovПружины, облегающие пользование лестницей присутствуют в готовых изделиях. В лестницах изготавливаемых своими руками, как правило, установкой пружин себя никто не утруждает. Но при желании, всегда можно приобрести подобную фурнитуру в специализированных точках и установить согласно инструкции. (Рис. 30)
Но при желании, всегда можно приобрести подобную фурнитуру в специализированных точках и установить согласно инструкции
Подобие таких шарниров можно видеть в старых шифоньерах, трельяжах, да и частенько в современных тумбочках и секретерах. Пружины, облегающие пользование лестницей присутствуют в готовых изделиях. В лестницах изготавливаемых своими руками, как правило, установкой пружин себя никто не утруждает. Но при желании, всегда можно приобрести подобную фурнитуру в специализированных точках и установить согласно инструкции. Michail RybakovСобрав и установив лестницу, нужно позаботиться и о защите древесины. Для этого все деревянные элементы обрабатываются антисептическими средствами и покрываются тонирующими веществами. При этом можно использовать морилку, лаки, краски. («Антисептик для древесины цена» , «Как покрыть дерево морилкой» , «Морилка для дерева» , «Малярные инструменты, кисти, валики» , «Виды лаков» ).
Статья с сайта Книга строителяhttps://kniga-stroitelia.ru/
kniga-stroitelia.ru
Чердачные лестницы с люком своими руками: подробная инструкция

Изготовление прочной чердачной лестницы своими руками в домашних условиях
Чердак в доме может использоваться для разных нужд. Разумеется, к нему должен быть организован комфортный доступ, для чего необходима лестница. Она может устанавливаться с наружной стороны здания или внутри него. Последняя удобна в эксплуатации и более популярна. Существует много способов как может быть изготовлена чердачная лестница своими руками. Прежде, чем описать как сделать чердачную лестницу с люком на мансарду или чердачный этаж, нужно выбрать подходящее для вашего дома конструктивное решение.

Разновидности чердачных, а также мансардных лестниц
Давайте рассмотрим наиболее популярные варианты чердачных лестниц.
- Монолитная конструкция – это приспособление, которое устанавливают для постоянного пользования. Такое решение отличается надежностью, удобством и безопасностью, но будет занимать определенное пространство в доме, что для небольших площадей будет недостатком. По типу исполнения бывает маршевая или винтовая монолитная лестница.

- Складная конструкция – это лестница, которую монтируют к входному чердачному люку. Эта конструкция не так надежна и безопасна, как предыдущая, но отличается компактностью, что иногда может иметь решающее значение. По типу исполнения различают откидные, ножничные, телескопические или раскладные (рычажные) чердачные лестницы.

- Переносная или приставная конструкция – это стремянки и другого вида переносимые лестницы. Они менее безопасны и не удобны в эксплуатации.

Последнюю разновидность чаще используют на время или в случае редкого использования чердачного помещения. Но наиболее практичной и компактной станет складная конструкция с люком.
На что обратить внимание при самостоятельном изготовлении лестницы?
Первое, что должно быть обеспечено при строительстве своими руками мансардной или чердачной лестницы – безопасность. Лестничная система должна обладать соответствующей прочностью и надежностью.

Размеры лестницы также важны: чем больше она наклонена, тем больше занимаемое пространство. Наиболее подходящим считают угол наклона равный 60-70°. Хотя при постоянном использовании, рекомендуют сделать его 45°. Стандартными считаются ступени с высотой 20 см и глубиной 30 см. Ширина лестницы должна быть комфортной, как правило, это около 70 см.В высоту такие лестницы не рекомендуют делать более 3 м, так как более высокая конструкция не будет иметь нужной жесткости и надежности.

Советуют изготавливать конструкцию с количеством ступеней от 10 до 15, а расстояние между ними оставлять 19 см. Рекомендуемая толщина ступени при этом – 2 см. Располагать же их следует строго параллельно поверхности пола. Для большей безопасности на ступени клеят накладки против скольжения.

Важно!Лестница для подъема на чердачный этаж должна выдерживать нагрузку в 150 кг.
Люк тоже имеет свои рекомендуемые параметры. Стандартными считаются следующие размеры: ширина 70 см, длина 120 см. Меньшие размеры сделают проем не комфортным в эксплуатации, а большие увеличат теплопотери помещения. Для не обогреваемого чердака люк советуют сделать теплоизолированным и пароизолированным.

Где лучше расположить лестницу?
Лестничная конструкция должна располагаться так, чтобы не мешать домочадцам. Поэтому не стоит монтировать ее на кухне, целесообразнее будет использовать для этой цели коридор или холл. Также стоит учесть размер помещения. Иногда лестницу можно использовать как деталь интерьера, тогда ее не прячут в люк.

Важно!Советуют предварительно начертить будущую лестницу, тогда вам будет проще понять, какое место станет наиболее подходящим для ее установки.
Односекционная конструкция своими руками
Наиболее легким для поднятия на чердачный этаж станет односекционное конструктивное решение, которое будет зафиксировано на одном месте. Для того чтобы построить лестницу с одной секцией вам нужны две деревянные доски. Длина должна быть подходящей для получения соответствующего угла наклона, а толщина не меньше 5 см.

Ступени могут быть закреплены с помощью тетивы или косоуров. Тетивы – это пазы, сделанные фрезером в торцевой доске. Косоуром называют горизонтальную площадку, вырезанную на доске, на которую затем кладут ступеньку. Ступеньки фиксируют на своих местах посредством винтовых шпилек из металла. Комфортный подъем на этаж обеспечивают перила. Для их изготовления используют шлифованный цельный брус соответствующей длины. В зависимости от места расположения вашей лестницы, перила могут быть с одной стороны или с обеих. Чтобы конструкция была более надежной к ней стоит добавить вертикальные соединительные балки.
Изготовление односекционной чердачной лестницы.
Делаем люк
Установка и изготовление люка также немаловажный аспект работ. Он предотвратит проникновение холодных воздушных масс в дом. Это основная причина оборудования люком лестничных конструкций. Для его изготовления вам потребуются бруски 50х50 и лист фанеры.

Порядок выполнения работ:
- Определить подходящее место с учетом размерного запаса 0,8 см для того, чтобы люк нормально закрывался.
- Бруски нужно разрезать на четыре части соответственно размерам люка, а по краям выпилить отверстия.
- На каждый полученный паз нужно нанести клей и скрепить бруски саморезами.
- Чтобы соблюсти диагонали, привинчивают косынки.
- Последующий этап – крепление фанеры.
- Готовую крышку примеряют, а затем устанавливается защелка на проеме.
- Чтобы крышка открывалась без помех, в проеме устанавливают ручку.
Важно!Полученная конструкция должна открываться легко и беспрепятственно.
Пример самодельного чердачного люка с металлопластиковой крышкой.
Лестница, оборудованная люком и ведущая на не обогреваемый чердачный этаж или мансарду, имеет конструктивные особенности. Проем для строительства такой конструкции с люком должен быть утеплен. При изготовлении люка, слой теплоизоляции и пароизоляции кладут на фанеру. Сверху все еще раз укрепляют пароизоляционной пленкой. После выполненных работ остается заключительный этап – декорирование. Его делают аналогичным отделке потолка. По вашему желанию, цветовая гамма может контрастировать со стенами. Иногда вместо фанерных листов используют металлические, которые необходимо окрашивать краской, подходящей по цвету и эксплуатационным характеристикам.
Как сделать складную лестничную конструкцию из двух секций?
Лестничная конструкция из двух секций довольно проста в изготовлении и не подразумевает использования сложного механизма. Эта конструкция будет оптимальной для исполнения человеком без специальных навыков в строительстве.

Первым делом вам нужно сделать простую приставную лестницу. После изготовления ее тщательным образом подгоняют согласно размерам, и точно соблюдая угол наклона. После чего готовую конструкцию разрезают на две секции, которые нужно прикрепить друг к другу с помощью навесов, и вы получаете складную лестницу. Вам остается только сделать монтаж складной конструкции к крышке вашего люка.

Складная лестничная конструкция может быть дополнена вспомогательным тросовым механизмом, который будет облегчать разборку и сборку системы. Для того чтобы сложенная конструкция не раскрылась, установите фиксирующий крючок. Чтобы его закрепить, в месте соединения секций устанавливается петля, а на нужном расстоянии от нее на стене монтируется крючок. Конструкция готова к эксплуатации, но она будет всегда у вас на виду, что считается ее недостатком. Если этот момент важен для вас, то можете воспользоваться следующими рекомендациями. Выполнить трехсекционную лестницу, которую изготавливают по вышеуказанной технологии. Такую лестницу можно легко спрятать в люк.
Изготовление складной лестницы на чердак.
Изготовление шарнирного механизма
При изготовлении складной конструкции важным является открывающий ее механизм. Сделать его самостоятельно можно использую следующие материалы:
- металлический уголок;
- часть листа металла;
- две полосы различной длины;
- болты;
- струбцины;
- набор сверл;
- дрель;
- лобзик;
- тески;
- малка.

Порядок действий при изготовлении:
- Сначала лестницу чертят на листе картона с указанием будущего угла наклона в раскрытом состоянии.
- После чего вырезают макет из картона, для проверки всех размеров.
- На полосах металла отмеряют места под отверстия, где будет крепиться шарнир. Отверстие должно соответствовать размеру болта.
- Детали собирают и стягивают друг с другом.
- Используйте малку, для измерения нужного угла. Затем раскройте механизм на полученный угол.
- Отметьте на металле ту часть, которая перекроется уголком во время открывания. Лобзиком вырежьте ее.
- Закруглите углы полос и уберите ненужную длину, чтобы полосы не цеплялись, что позволит эксплуатировать механизм.
- Когда излишки металла удалены, угол будет упираться в нужном месте. Вы сделали первый шарнир.
- Второй изготавливается посредством скрепления деталей струбцинами попарно, специальными инструментами для лучшей фиксации. Сверлят отверстие и помещают в него болт.
- Затем делают второе отверстие.
- Заготовки скручивают с помощью двух болтов. После чего их можно выровнять, придав им одинаковую форму.
Так выполняют все части шарнира, для получения одинаковых элементов. Выполненные механизмы крепят к люку и примеряют, соответствует ли он проему. Делают это так: если в полностью раскрытом состоянии он не касается краев проема, то размеры были сняты верно, и люк готов к установке.
Изготовление откидной лестничной конструкции
Строительство откидных лестниц имеет схожую технологию со складными. На первом этапе изготавливают приставную лестницу по описанной выше технологии. После чего выберите для себя более подходящий из двух вариант:

- Откидываться может вся конструкция.
- Лестница откидывается частями, аналогично складной.
Этот вид конструкций не прячут в крышке люка. Изготовление откидной чердачной лестницы.
Совет!Если вы решили сделать лестницу для чердака или мансарды самостоятельно, то рекомендуют использовать материалы, которые имеют небольшой вес, это облегчит эксплуатацию конструкции. Делая выбор, учитывайте также простоту обработки материалов и их эстетику.
lestnitsygid.ru
инструкция как сделать и монтировать конструкцию (фото и видео)
В настоящее время каждый застройщик старается максимально использовать всю доступную площадь своего дома. Однако забраться на чердак без лестницы практически невозможно. Чердачная лестница своими руками – оптимальный вариант для безопасного подъема на чердак.
Лестница для чердака может располагаться как внутри помещения, так и снаружи. Конечно, когда лестница расположена внутри, ей намного удобнее пользоваться – не нужно выходить на мороз зимой или мокнуть под дождем осенью.
Гармонично вписывается в интерьер
Фото: в доме значительно комфортнееВиды
Различают несколько видов чердачных лестниц, а именно:
- складные;
- стационарные;
- переносные.
СтационарнаяСтационарные лестницы с перилами и широкими маршами являются самыми удобными, однако их применение ограничивается из-за невозможности эксплуатации на малых площадях.
Переносной вариантПереносные лестницы используются в основном как временный вариант и служат для доступа в помещения, которые эксплуатируются редко. Основной минус такой лестницы – низкая безопасность.
Складная модельСкладные чердачные лестницы являются средним звеном между стационарными и переносными. По удобству они почти не уступают стационарным, но занимают значительно меньше места. По безопасности они значительно превосходят переносные конструкции.
Выбор в пользу того или иного вида зависит от нескольких факторов:
- площади помещения, где будет расположена лестница;
- назначения чердачного помещения;
- возможного угла наклона.
Выбор за вамиСтандартные размеры
Существует целый ряд нормативов, которым должна соответствовать чердачная лестница:
- оптимальная ширина марша должна быть порядка 65-110 см;
- высота не должна превышать 3,5 м. Связано это не только с тем, что жесткость конструкции значительно уменьшается, но и с тем, что падение с такой высоты может повлечь за собой серьезные травмы;
- число ступенек обычно не должно превышать 15;
- между ступенями принято делать расстояние порядка 19 см;
- толщина ступеней обычно составляет 18-22 мм;
- стандартный угол наклона составляет 60-75 градусов. Маленький угол требует много пространства, а большой – опасен при эксплуатации;
- складная лестница должна выдерживать 150 кг нагрузки;
- ступени следует устанавливать параллельно полу и они должны быть не скользкими.
Процесс изготовления
Изготовить чердачные лестницы своими руками совсем не так сложно, как может показаться на первый взгляд. Конечно такой красоты, какой обладают промышленные модели вы не добьетесь, однако попробовать стоит. Чертежи чердачных лестниц своими руками которые можно сделать, можно просто найти на нашем сайте.
Один из чертежейДалее в данной статье будет рассмотрен вопрос, как сделать лестницу на чердак своими руками.
Люк – основа любой чердачной лестницы
Сделать люк можно своими руками, применяя следующие материалы:
- бруски 50×50 мм;
- фанера.
Порядок работ следующий:
- определяемся с местом и размерами будущего люка;
Обратите внимание!
К габаритным размерам люка следует добавить по 7-8 мм, чтобы крышка закрывалась легко и без скрипа.
- разрезаем брус на 4 части необходимых размеров;
- выпиливаем на концах брусьев пазы;
- смазываем пазы клеем и соединяем брусья, усиливаем место соединения саморезами;
Прямой угол обязателен- чтобы диагональ не ушла, прикручиваем косынки;
- закрепляем фанеру;
- примеряем люк в проем;
- чтобы хорошо закрыть люк, врежем в крышку защелку;
- для открытия люка будем использовать ручку, которая вставляется в отверстие и нажимает на защелку.
Люк должен открываться легкоНеобходимые инструменты и материалы
Для самостоятельного изготовления лестницы на чердак своими руками обязательно наличие всего списка:
- ножовка по дереву;
- пистолет с монтажной пеной;
- набор отверток или шуруповерт с комплектом бит;
Почти полный комплект- разнообразные саморезы, анкера;
- рулетка;
- карточные петли;
- бруски толщиной 20-30 мм.
Инструменты для разметкиЭто только основные инструменты, которые понадобятся для самостоятельного изготовления, если уже есть готовая приставная деревянная лестница длиной на 30 см больше, чем необходимо до уровня проема.
Простая конструкция
В качестве примера рассмотрим как сделать чердачную лестницу своими руками.
Инструкция позволит понять принцип работ:
- на готовую цельную лестницу из дерева закрепляем 2 бруска по ширине, на нижнюю и верхнюю части. Причем верхний брусок крепим на петли, а нижний крепим жестко;
- распиливаем лестницу на 2 части. отмерив 2/3 длины. Верхняя часть будет более длинная, нижняя короткая;
- для придания жесткости по диагонали закрепляем 2 рейки;
- соединяем обе части лестницы петлями;
- с помощью анкеров закрепляем верхний брусок под люком;
Схема всей конструкции- чтобы нижняя часть не раскрывалась, ее закрепляют крючком. Петля располагается на косоуре над местом распила.
- готовая лестница для чердака прижимается к поверхности стены и фиксируется.
Готовая конструкцияОсновным недостатком, которым обладает данная конструкция чердачной лестницы, является ее внешний вид и то, что видно все крепежи и бруски. Однако, даже такая лестница на чердак своими руками созданная значительно упростит трудности с подъемом и спуском с чердачного помещения.
Складная конструкция на тетивах
Для изготовления конструкции следует выполнить несколько этапов:
- поделим полную высоту на 3 части. Первая часть будет соответствовать размерам люка, вторая немного меньше, а третья будет покрывать оставшееся расстояние до пола;
Примерные габариты- отмеряем угол люка с помощью малки;
- переносим угол на доски, тем самым отмечаем ступени;
- на месте будущего шарнира между секциями высверливаем отверстия;
- шлифуем все грани;
- распиливаем доски в тех местах, где будут ставиться шарниры;
- нарезаем и шлифуем ступени;
- под ступени делаем небольшие выемки в тетивах;
- вставляем ступени в выемки, сажая их на клей и скрепляя саморезами;
- соединяем секции специальными петлями. Для этого обязательно разместить секции на ровной поверхности;
Хорошо видны петли- проверяем работоспособность каждой секции;
- собираем всю конструкцию и монтируем в проем;
Проверяем работу- в случае необходимости проводим финишную подгонку элементов;
- разбираем всю систему на детали;
- тщательно шлифуем и обрабатываем лаком все поверхности;
- после высыхания лака собираем всю конструкцию и пользуемся.
Вполне приличный вариантОбратите внимание!
Выполнять работу на высоте рекомендуется с напарником.
Это не только поможет избежать травм, но и значительно ускорит весь процесс!
Цена лестницы, изготовленной своими руками значительно ниже цены заводской конструкции, поэтому если финансовый вопрос стоит остро – обязательно попробуйте сделать все сами.
Сделано своими силамиВывод
Приобретение готовой лестницы на чердак является самым простым вариантом, однако при наличии необходимых инструментов и начальных навыков совсем не трудно сделать ее самому. В представленном видео в этой статье вы найдете дополнительную информацию по данной теме.
sdelai-lestnicu.ru
Чердачная лестница с люком своими руками: инструкции, чертежи, примеры
Зачастую выход на чердак находится как раз в одном из жилых помещений дома. И при проектировании такого выхода раньше многим дизайнерам и архитекторам приходилось решать, какую комнату придется «обидеть» некрасивой лестницей в углу. На крайний случай изготавливалась стремянка, которая пряталась в кладовой. И в случае необходимости перед хозяевами стояла задача вытащить ее, отнести к люку, не задев по дороге телевизор, поставить и подняться.
И при этом желательно, чтобы ножки лестницы не поехали и сама она не свалилась, пока человек не будет находиться на чердаке. Пока современный рынок не предложил замечательную альтернативу всем этим хлопотам в виде особого вида люка, за которым прячется сама лестница.
Почему бы и вам ведь не построить нечто подобное, ведь чердачная лестница с люком – не такой уж и сложный механизм, и во всем при желании можно разобраться? Тем более, что с нашими фото-инструкциями, полезными советами и видео-историями у вас просто нет шанса не справиться!
Конечно, изготовить чердачный люк можно и для обычной стремянки. Но приставные лестницы – это самый неудобный способ подъема наверх, причем еще и самый небезопасный. Да, ее можно как-то декорировать и даже обыграть в домашнем интерьере, но все равно такие лестницы смотрятся грубо и откровенно мешают. Но порой, когда нет ни времени, ни желания, ни бюджета на постройку другого варианта, такой вполне приемлем. Тем более что позже такую лестницу можно заменить на более удобную, а уж прочная стремянка сгодится в любом хозяйстве, согласитесь!
Современные дизайнеры убеждены, что устанавливать на холодный чердак лучше, конечно, только складную лестницу, которую легко можно спрятать под красиво декорированным люком.
Такая лестница действительно почти незаметна, ведь в ее нижней части крепится специальная пластина, подобранная по цвету и фактуре к потолку. Посмотрите, насколько легкими и изящными оказываются такие лестницы в любом домашнем интерьере:

Вам нравится то, что вы видите? Тогда вам наверняка стало понятно, почему современные чердачные лестницы уже никто в кладовую не прячет. Они сами прячутся за красиво отделанным люком, которые незаметен на фоне общего дизайна потолка. И такие хитрые конструкции самого разного типа вы легко сможете соорудить самостоятельно. Посмотрите на наши фотоматериалы – наверняка у вас дома найдутся такие же детали и пара лишних брусков.
В основном все “прячущиеся” чердачные лестницы делятся на основные их два типа: раскладные и раздвижные. Первые представляют собой блоки из трех или четырех секций. Раскладываются они при помощи специального пружинного механизма. Чаще всего такие лестницы делают из дерева или сочетают дерево и металл.
Отдельные вид раздвижных лестниц – это лестница-ножницы, или телескопическая, которая выдерживает достаточно большой вес и складываются как гармошка. По-другому эту классификацию называют еще так: секционные ножничные лестницы. Устойчивость такой лестницы обеспечивает специальный механизм для открывания крышки, который фиксирует всю конструкцию в нужном положении.
Если говорить более подробно, телескопические блоки – это лестничные конструкции, у которых первая секция крепится в другую. Секции двигаются по направляющим, при этом раскладываясь или складываясь. Но учитывайте, что для таких моделей проем в потолочном перекрытии придется делать достаточно широкий.
Секционные лестницы в первую очередь хороши тем, что с обеих сторон у них есть возможность сделать перила и ручки, благодаря которым подниматься по лестнице будет намного проще и безопаснее. Тогда как раскладным конструкциям такого удобства не придать, к сожалению.
Но, если вы впервые решились изготовить люк с лестницей, тогда отдайте предпочтение более простому, но не менее надежному раскладному варианту:
В общем же вся конструкция выглядит примерно так:

Самыми прочными и практичными признаны такие лестницы, которые сделаны на металлической основе с деревянными ступеньками. В домашних условиях, конечно, нечто подобное соорудить сложно, а вот работа с деревом под силу каждому.
Шаг 1. Планируем и проектируем
Итак, для начала внимательно рассмотрите заботливо приготовленные для вас схематические иллюстрации:

У вас сложилось понимание, как именно будет выглядеть проем чердачного люка и с какой стороны к нему будет крепиться лестница? Тогда идем дальше.
Шаг 2. Подбираем крепление для люка и лестницы
Именно от прочности и качества механизма зависит то, насколько легко будет открываться люк, и насколько он будет выдерживать возложенные на него нагрузки. Самый простой механизм из всех существующих в этом плане – это петли и защелки. Разница лишь в том, как именно вы расположите их: по длинной стороне створки, или по короткой, и куда будет открывается сам люк – верх или вниз.
И здесь многие домашние умельцы идут на такие хитрости: они используют не простые мебельные петли, а приспосабливает автомобильные капотные, и получается крышка люка с пружинным механизмом ничуть не хуже, чем у самых дорогих промышленных вариантов. Такая пружина помогает поднимать тяжелую лестницу с люком и фиксировать ее в нужном направлении.
Т.е. каждый раз, когда вы будете подниматься на чердак, вам уже не нужно будет применять особых усилий, чтобы поднять обычно массивную крышку люка.


Вдобавок, совсем не лишним будет кронштейн, который поможет зафиксировать открытый люк в определенном положении. Таким образом, вы не позволите люку открывается на больший угол, чем он рассчитан, и отлетевшая вниз крышка не стукнет случайно проходящего мимо человека по голове.

Еще вы можете применить для массивного чердачного люка так называемый газовый лифт – такие приспособления сегодня активно продаются для тяжелых дверей. Все это тоже поможет легко открывать и закрывать люк наверх, а еще газовый лифт просто не позволит опускаться крышке быстро резко.
Ведь бывают ситуации, что человек решил спуститься с чердака по приставной лестнице, стал закрывать за собой крышку люка, а та под своей тяжестью попросту захлопнулась. Результат – сотрясение мозга и быстрый полет вниз. Подумайте над этим, ведь подобного легко избежать.
В качестве фиксатора крышки люка вы также можете применить стальную цепочку, как здесь:

Шаг 3. Устанавливаем пружинный механизм
Также обязательно необходимо продумать для складной лестницы не только ее составные элементы, но и главный пружинный механизм. Речь идет о таком приспособлении, которое обеспечит надежную фиксацию всей конструкции лестницы в закрытом положении на чердаке.
Но учтите, что чем крепче и тяжелее получится такая фиксация, тем больше усилий вам потом придется прикладывать, чтобы раскрыть лестницу и развернуть ее. И тем больше будет нагрузка уже на сам механизм, а он не вечен.

Еще один важный момент: чем больше наклон самой лестницы, тем больше будет оказываться нагрузка на место крепления ее к перекрытию чердака. Самая маленькая нагрузка будет при угле установки в 90 градусов. Но лестницу так не установить, конечно же, поэтому оптимальный угол, на который вы можете ориентироваться, находится в диапазоне от 65 до 75 градусов.
Шаг 4. Изготавливаем чердачный люк
А теперь продумайте конструкцию самого люка. У него могут быть одна крыша или две (верхняя и нижняя), дополнительные удерживающие механизмы и даже дистанционное управление.
Вот подробная пошаговая инструкция, которой вам удобно будет пользоваться:
- Шаг 1. Сделайте необходимые замеры и начертите их на фанере.
- Шаг 2. Изготовьте боковые стенки путем нанесения клея на стыки будущего люка.
- Шаг 3. Скрепите все детали шурупами.
- Шаг 4. Снова промажьте все кромки ПВА и приклейте дно.
- Шаг 5. Забейте для надежности скобы, при помощи строительного степлера.
- Шаг 6. Сделайте из плиты МDF-распорку.
- Шаг 7. Положите распорку в короб – так вы поймете, куда наносить клей.
- Шаг 8. При помощи шурупов прикрепите распорку к подготовленному коробу.
- Шаг 9. Начертите на дне короба линию и снова пройдитесь по разметке скобами.
- Шаг 10. Прибейте дно к распорке.
- Шаг 11. Положите на дно короба теплоизоляцию.
- Шаг 12. Засуньте в щели короба оконный изолятор.
- Шаг 13. При помощи степлера и шурупов прибейте крышку к коробу.
Вам также помогут наши мастер-классы, которые замечательно иллюстрируют процесс изготовления чердачных люков с лестницами из разных материалов и разных конструкций:

Продолжение:

Шаг 5. Устанавливаем люк и лестницу в проем
Был ли люк и чердачная лестница своими руками изготовлены, или же вы решили не заморачиваться и приобрели готовую конструкцию, в любом случае сейчас вам придется столкнуться с одинаковыми сложностями в процессе их установки.
Итак, если перекрытие вашего чердака сделано из бетона, проем для выхода на крышу нужно делать заранее – вырезать его потом будет сложно. А вот в деревянном перекрытии люк следует устанавливать между несущими балками, расстояние между которыми – не менее 60 сантиметров, но не более 1 метра.
Важно, чтобы при подъеме и спуске человека по такой лестнице вся нагрузка была равномерно распределена между балками, поэтому люк с лестницей устанавливать необходимо так, чтобы крышка открывалась параллельно балкам, но не поперек им. Как здесь:

Еще один пример монтажа люка с лестницей в деревянном перекрытии:

Как вы видите, при помощи деревянных треугольников (косынок) по углам крышки люка была сооружена специальная ниша, в которую потом будет вложен утеплитель.

По сути, все это – работа одного дня для опытного мастера и замечательная практика для начинающего. Смело приступайте!
Отдельной главой отметим обустройство чердачных люков с лестницей, которые имеют еще одно предназначение – быть противопожарными.
Поясним подробнее. В момент возгорания, когда выход из дома перекрыт, единственный вариант – это чердачный люк. Достаточно просто подняться по нему и вылезти на крышу, а оттуда уже спуститься либо по стене дома, либо дождаться помощи.
Вот почему нередко ставят так называемые противопожарные люки на чердак, которые помогают эвакуироваться в нужный момент из дома. А потому люк и лестницу с такой целью делают исключительно из металла, и только изредка из дерева, обработанным пропиленом. Естественно, последний вариант уже менее надежен.
Такие конструкции являются обязательными в офисных зданиях, государственных и коммерческих банках, отелях и образовательных учреждениях. А также во всех тех помещениях, где пожар сам по себе более возможен и прогнозируем. А выглядят такой люк и лестница так:

По своей конструкции пожарные лестницы с люком для чердака не особо отличаются от обычных, всего по нескольким параметрам:
- Петли здесь монтируется только с верхней стороны, и никогда с нижней.
- Также створка должна открываться только наверх.
- Коробка делается усиленной, углового типа.
Виды и группы по времени противостояния огню
По огнеупорности чердачные люки также делятся на три основные группы:
- Первая группа. Это самые лучшее люки в плане защиты от открытого огня, ядовитого дыма и газов. Изоляция у них состоит из нескольких слоев, и сама конструкция выдерживает целый час воздействия пламени без потери своих самых важных свойств.
- Вторая группа. У таких конструкций – средняя изоляция от огня. Такой люк способен выдерживать огонь целых полчаса без каких-то особых изменений своих свойств.
- Третья группа. Хорошая защита от огня, но запас прочности невелик, всего около 15 минут. Для жилого дома это самый простой и надежный вариант, ведь этого времени как раз должно хватить на то, чтобы успеть забраться на крышу всем домочадцам.
Требования к изготовлению пожарного люка и лестницы
Особые требования предъявляются у таких изделий к зазору крышки люка к чердачному перекрытию: он должны быть минимальными. А сама коробка может быть даже деревянной, только если она сама была предварительно пропитана огнезащитными составами. Но чаще всего такие лестницы изготавливают из металла толщиной от 1-2 миллиметра до 2 миллиметров.
Естественно, чем тоньше металл, тем меньше он сможет противостоять огню. Согласитесь, если стены уже объяты пламенем, и выхода из окон или дверей нет, тогда лестница, по которой можно сбежать на чердак, уж точно должна быть целой, а не зажечься, как спичка.
А еще часто не знают о таком моменте. Никаких специальных отдельных ГОСТов на производство подобных конструкций из лестниц с люком не существует. Есть только рекомендации, и отдельные испытания на огнестойкость. Туда входят такие конкретные понятия, как материал изготовления лестницы с люком, наличие специального уплотнителя, которые не позволят распространяться огню, не поддерживающий горение теплоизолирующий материал. Все это прописано в современных СНиПах 2.01.02-85.
А напоследок мы приготовили для вас вот такой приятный бонус, который поможет легко поднимать по лестнице любые предметы:

krovgid.com
Чердачная лестница своими руками — как сделать? Чертежи
Чердачные лестницы одни из типичных видов лестниц для загородных домов. Они дают максимальный комфорт и экономию места. Для поднятия можно использовать стремянку либо прикладную лестницу. Безопасность играет важнейшую роль. Поэтому лучше всего обзавестись именно таким видом подъемного средства.

Чердачные лестницы делятся на три вида:
- Раздвижные либо телескопические.
- Ножничные либо клещевидные.
- Раскладные либо рычажные.
Раздвижные лестницы имеют два либо пару отделов. Отделы можно разложить, они высовываются один из другого. Хорошая сторона этого варианта: бока чердака больше за сам люк. Плюс этой лестницы в том, что в ней отсутствуют рычажные механизмы. Рычаги слабое звено любых конструкций. Эта лестница является самой надежной, и крепкой для нагрузок.
Складные конструкции делают из 3-4 секций. Первое отделение нужно прикрутить к люку чердака. Секции прикручены друг к другу, специальными деталями, с помощью каких можно сложить и разложить лестницу. Чтобы разложить потяните палкой за колечко либо шнурок.
Чтобы понять какая ножничная модель, представьте гармошку. У неё есть множество рычагов, какие фиксируют специальные фиксаторы.
Все варианты лестниц сложены из пары отделов, какие можно сложить друг в друга. Получается небольшая конструкция, какая быстро складывается и раскладывается. Крышу можно закрыть люком чердака, тогда лестница незаметна.
Подробное описание лестниц
Последним временем у владельцев домов умножился спрос пользования всей площади в доме. Много людей имеют привычку привозить в загородный дом весь ненужный хлам, который жалко выбросить либо понадобится позже. Лестницы имеют угол наклона 45%, потому их считают крутыми. Они небольшой высоты, имеют немного ступеней приблизительно 10-15 штук. Чердачные лестницы конструируют из легкого материала, чтобы они были легкими.
Вид материала из которого делают лестницы, должен выдержать вес хозяина, но и в то же время быть прочной и практичной. В большинстве на чердак выносят старинные предметы со своим весом, и основная функция продержать вес человека и предметов.
Множество чердаков оформлены чердачными лестницами, они доступны многим покупателям. Конструкции современного типа лестниц имеют множество плюсов: удобность, компакт, легкость в использовании, комфортабельность. Лестницы занимают немного места, они имеют хорошую функциональность, большой ассортимент.
Они недорогие, благодаря этому вы можете подобрать оптимальный вариант для своего чердака. Чердачные лестницы делают с металла, дерева, могут быть комбинированные. Их можно сделать с поручнями, пружинные, раскладные.
Лестницы можно сделать любых размеров, цвета, формы. Специалисты подберут для вас лестницу под ваш вкус и требования, обсудят с вами цену и функциональность.
Складная лестницаУстройство лестниц
Установить лестницу может каждый, но лучше это доверить профессионалу. Проверьте, что пространство для монтажа подходит размерам конструкции. На этом этапе не должно возникнуть проблем потому, что когда выбиралась модель, нужно было сравнить размеры на упаковке лестницы и проёма. Есть такие фирмы, которые вместо габаритов пространства пишут размеры коробки, в таком случае проем следует увеличить на 0,5–1 сантиметр.
Для начала прикрепите к низу проема брусок – на нем будет держаться лестница, во время установки. Для этого нужно два человека, первый будет на чердаке, а второй – в доме. Лестницу поднимите на чердак и укладывайте на брусок. На месте крепления, в промежутке короба и проема устанавливают распорки, а после этого фиксируйте короб с помощью двух шурупов.
После этого человек, который находится в доме, забирает брусок и разлаживает лестницу. Зафиксируйте её по бокам с помощью шурупов. Заполните пеной для монтажа щель. Немного ослабьте винтики по бокам лестницы, разложите ее до конца и опять затяните болты. Установите поручни и ограждения люк, и смело пользуйтесь лестницей.
Типы конструкций
Приставные лестницы и стремянки являются традиционными, они не особо комфортны. Их используют недолго, или если на чердак поднимаются не особо часто.
Лестницы стандартного типа могут быть маршевыми или винтовыми. Лестница из дерева или металла винтового типа позволяют сэкономить немного места. Для стареньких людей, деток не очень комфортна. Маршевые конструкции забирают большое количество места.
Раскладные лестницы для чердака стали больше всего популярными в наше время. Лестницы бывают разных типов. Особенно популярен секционный тип, конструкция поделена на немного деталей. Популярна еще ножничная лестница.
Раздвижные конструкции лестниц делаются на примере телескопа. Участки со ступеньками раздвигаются по очереди. Когда эта модель сложена, она не забирает много места. Раздвинуть лестницу можно на любое расстояние. Такие лестницы делают – пластиковыми, деревянными, металлическими, комбинированные. Лестница является прочной и безопасной.
Монтаж чердачной лестницыПреимущества и недостатки
Лестничные конструкции дают нам возможность получить больше места, и особо незаметны после того, как их установили. Плюсы этих лестниц функциональность, прочность, компактность, легкие.
Когда они сложены, напоминают люк с блоком, какой вмонтирован в потолок, и не особо заметен. Конструкция легко убирается в потолок. Лестницы не тяжёлые, безопасные, комфортные, недорогие. Особых недостатков лестница не имеет.
Требования к чердачной лестнице
Чердачные лестницы должны быть безопасными и прочными. Много лестниц очень красивые, но нефункциональные. Лучше когда есть перила либо держатели. Не забывайте про пожарную безопасность, если вы решили сделать сами. Помните про выдержку веса не меньше 150 килограмм.
Как сделать чердачную лестницу своими руками
Лестницу можно сделать на протяжении 3 часов. Возьмем: ножовку, рулетку, лестницу, 4 петли, 2, шурупы, крючка, петли. Берем брусок, монтируем к верхнему концу лестницы на петли, второй крепим к нижней части. Прикручиваем 2 рейки на лестничный марш наискосок.
После этого шага, следует отмерять 2-3 длины лестницы и аккуратно распиливаем. Крепим два куска петлями. Прикрепите петли правильной стороной. Брусок сверху крепите под люк. Эта лестница не прячется.
Схема складной чердачной лестницыОткидная лестница своими руками
Нам понадобится:
- Две доски, толщиной 3 сантиметра, шириной 20 сантиметров.
- Доски для ступеней, ширина 12 см, толщина 3 см, длина 20 см.
- Для каждой ступеньки 2 петельки.
- Крючки, анкера, шурупы для того чтобы прикрепить конструкцию к стенке.
Первый шаг закрепите 1 тетиву на стенке. Потом нужно выложить ступеньки. Отметьте нижнюю ступень и проведите отрезок. По концам отрезков по параллели проведите 2 прямые. По концу 1 куска проводим перпендикуляр. После этой линии отступите вправо 1 см.
Две точки должны встретиться. Так разметьте лестницу. Сделайте промежуток в 1 см в ступенях, это нужно для того, чтобы сложенные ступеньки не прикасались, крепим петли на ступеньки. Петли разместите на тетиву. На куске, который двигается, прикрепите петли, а в нужном месте на стене – крюк.
Материалы, инструменты, чертежи
Для того чтобы выбрать материал учтите некоторые факторы, решите какой тип лестницы, которую вы хотите. Определитесь, какая будет ширина лестницы, сколько будет отделов, и какую функцию она будет выполнять. Функция лестницы играет большую роль для изготовления. Для деревянных лестниц нагрузка должна быть не больше 150 кг.
Лестницы из металла могут выдержать приблизительно 250 кг. Этот фактор не означает, что нагрузка может быть больше, только часто этого делать не нужно. Размеры лестницы не должны быть больше чем чердачное пространство.
Материал из дерева, которое имеет очень крепкие свойства это — сосна. Эти свойства в сочетании с металлическим профилем дают высокое качество и большой вес.
Для того чтобы сделать лестницу своими руками возьмите хороший материал, этим материалом считают сосну. Сосна легко, доступна, недорогая, хорошо обрабатывается, качественная в использовании. Для работы возьмите рабочие и прочные инструменты: циркуль, лобзик, пилу, дрель, отвертки.
Чертежи чердачной лестницы сделаны для людей, которые умеют держать инструменты в руках, и не хотят переплачивать деньги за работу профессионалов.

Пошаговое руководство по изготовлению
- Подготовьте деревянные материалы.
- Положите в одно место все инструменты, шурупы, дрель.
- Приготовьте план и размеры лестницы.
- Приступайте к работе. Удачи!
Как произвести установку:
- Замеряйте размер будущего люка и лестницы на упаковке.
- Прикрепите на низ лестницы бруски.
- Закрутите все шурупы и крепежи.
- Проверьте лестницу на прочность.
- Зафиксируйте лестницу.
Советы, рекомендации, возможные ошибки
Сделать лестницу для дома — это очень непростой процесс. Лестница очень важный предмет в доме. При возведении лестницы, важно не допустить никаких ошибок.
Позитивные стороны: это невысокая цена, легкое использование, безопасность. Лучше всего обратиться к специалисту, который выберет лестницу по вашим требованиям.
househill.ru



