Как сделать резные наличники на окна из металла
С давних времен человек занимался украшением своего дома. Еще сохранились постройки старой эпохи. Там присутствие наличников было обязательным атрибутом. Он указывал на достаток жильцов, живших в нем. Это украшение дома, придавало ему статусности. Сейчас же наличники используют как для украшения, так и для выполнения некоторых полезных функций.
В наше время, популярность наличников на окна, набирает обороты. Это становится модно. Но не все знают, что наличники служат хорошей зашитой от промерзания швов, между оконным проемом и рамой окна, в зимнее время.

Наличники выполняют из разных материалов. Рассмотрим вариант, сделанный из железа.
Железные наличники наряду с деревянными отличаются своими долговечными свойствами. Они хорошо переносят влагу и природные факторы. Конечно, они поддаются коррозии, но при соблюдении технологии окрашивания можно достичь максимального эффекта противодействия внешним природным факторам.
Создание металлических наличников – это настоящее искусство. Для изготовления нам потребуется набор инструментов и расходных материалов:
- Металлический лист, из него мы будем изготавливать наши наличники. Железные листы производят на заводах рулонами. Оптимальный вариант для обработки и изготовления наличников будет толщина листа от 0,4до 0,7 мм.
- Большие листы бумаги, ватман или обои. Они потребуются для создания шаблона нашего будущего рисунка.
- Электролобзик. Для вырезания в металле отверстий.
- Сверла по металлу разных диаметров, преимущественно 8 мм для отверстий под лобзик и 4 мм для отверстий соединений наличников и его частей.
- Наждачная бумага. Шлифовка облоя и неровностей.
- Молоток или клепочный станок для соединения деталей.

Перед тем как начать создание наличников, стоит сделать откосы. Их также выполняют из металла. Произвести замеры откосов, учитывая выступающие края. По полученным размерам создаем шаблон будущих наличников. Делать следует две части наличников. Боковые и верхний с нижним.
Переходя к работе над металлом, нужно подготовить место для его раскройки, чтоб вам было удобно. Можно использовать два одинаковых стола. Поставить их рядом, с небольшим расстоянием для работы лобзиком.
Приступаем к выпиловке:
- Выпиливаем из металла по размерам заготовки наших будущих наличников;
- Приклеиваем или прикрепляем шаблон будущего рисунка. Производим разметку рисунка;
- Просверливаем отверстия для выпиловки орнамента лобзиком;
- Выпиливаем рисунок;
- Зачищаем края спилов наждачной бумагой;
- Производим за сверловку и последующую склепку частей наличников;
- Если потребуется, окрасить наличники в понравившийся цвет.

Теперь наличники готовы. Остается их монтировать к окнам.
Монтаж зависит от материалов, из которых построен дом. Закрепить можно гвоздями или саморезами на деревянном доме. Крепить дюбель гвоздями или анкерами следует на кирпичных домах.
Металлически наличники готовы!
Создание наличников из металла трудоемкая работа. Она будет вознаграждена новым преобразившимся видом вашего дома. Дарить положительные эмоции вам и прохожим.
www.asusfone.ru
Как сделать металлические наличники на окна самостоятельно
Наличники необходимы не только для украшения окна, придания фасаду дизайнерского вида, позволяющего воплотить в жизнь любые идеи, но и являются декоративной защитой швов от промерзания и негативного воздействия природных явлений. Наличники из металла — это качественный, надежный материала, способный хорошо защитить оконные швы, сделать их герметичными и украсить само окно.
к содержанию ↑Наличник как украшение
Многие видели старинные деревянные строения, украшенные резными наличниками снаружи. Такие декорации изготавливаются вручную, могут иметь достаточно сложный рисунок, превращающий скучный дом в произведение искусства. Кусочек сказки можно создать, используя и металлические наличники на окна. На них также могут быть вырезаны любые узоры, но, в отличие от дерева, металл является более надежным и практичным материалом, способным выдерживать любые нагрузки.
Если деревянные изделия плохо переносят влагу, нуждаются в постоянном уходе и не слишком долговечны, то металлические аналоги лишены этих недостатков. Достаточно использовать нержавеющий металл или регулярно красить изделие. Наличники на окна из металла могут полностью заменить деревянные элементы. Вы можете самостоятельно вырезать нужный узор, используя плоские металлические листы, при этом, в отличие от работы с деревом, не нужно обладать навыками резьбы по нему или иметь специальные инструменты.
С металлическими листами работать намного легче: они не будут требовать просушки, специальных условий для этого, не потребуют использовать лак, который выцветает на солнце, из-за чего приходится постоянно его обновлять. После установки металлические наличники не будут нуждаться в дополнительном уходе, отлично впишутся в дизайн фасада. Монтаж металлических откосов также не вызовет никаких сложностей.
к содержанию ↑Особенности чернового материала
Толщина подходящего листа железа составляет от 0,40 до 0,70 мм. Такие листы на заводах выпускают рулонами до 50 метров длиной. Ширина изделия составляет 1.25 м, красить листы нужно не всегда, так как можно купить уже окрашенное изделие нужного вам цвета и оттенка. Для того чтобы материал при перевозке не получил повреждений, его защищают от царапин специальной пленкой, которую при необходимости можно будет снять. Металл достаточно прочный и гибкий, поэтому не вызывает сложностей при работе с ним.

Что потребуется для изготовления откоса?
Для работы вам потребуется:
- Металлический лист, из которого будет изготовлен наличник.
- Обои или ватман, из которого можно будет выполнить шаблон рисунка.
- Скрепки: они понадобятся для фиксации шаблонов и деталей.
- Скобы соединительные не меньше 4 мм.
- Карандаш.
- Линейка.
- Ластик.
- Сверло 8 мм. Оно потребуется для того, чтобы можно было воспользоваться электролобзиком.
- Сверло 4 мм для соединения деталей.
- Пила по металлу и электролобзик.
- Наждачная бумага для шлифовки изделий.
- Небольшой молоток для рихтовки и клепочный станок, можно использовать ручной.

Способы изготовления наличников
Прежде чем переходить к изготовлению наличников, нужно установить металлические откосы на окна. Неплохим вариантом будет белый металл. Потребуется измерить откосы, узнать их точный размер. Кроме этого, нужно учесть выступающие края: вычислять длину и ширину наличников нужно, исходя из этих данных. Обычно длина составляет 35 см с добавлением ширины наличников.
После того как размер получен, можно изготовить шаблоны под наличники. Для этого потребуется ватман, можно использовать обои. Шаблона нужно сделать два – длинный для боковой стороны окна и более короткий для верхней и нижней части, если окна имеют размер, приближенный к стандартному.
Эскиз рисуют на сложенном пополам листе. Центр рисунка должен приходиться на сгиб. Вам не потребуется вырезать рисунок два раза: используя такой способ, вы получите два идентичных шаблона, не прилагая лишних усилий, а сами шаблоны будут идеально ровными.
Резные наличники на окна из металла удобнее изготавливать на заранее подготовленном рабочем месте. Для этого потребуется два стола одинакового размера и высоты. Между ними нужно оставить расстояние в 8 см, для того чтобы мог маневрировать электролобзик. Чаще всего для изготовления наличников применяют металл двух цветов: верхний лист можно выбрать белый, а нижний, который будет выступать в виде фоновой подкладки, любым.
Закреплять шаблон нужно с обратной стороны будущего наличника. После этого можно нанести рисунок, который будет вырезаться.

- Для изготовления наличников из листа металла нужно вырезать сначала лист, подходящий по ширине. После того как вы нанесете все линии, вам потребуется воспользоваться электродрелью. При помощи сверла 8 мм по углам рисунка нужно сделать отверстия для электролобзика.
- Часть, которую вы будете резать, требуется положить на стол, таким образом, чтобы вырезаемый рисунок оказался в центре, заняв свободное пространство между столами.
- После того как будет готова верхняя часть, необходимо перейти к изготовлению нижней. Потребуется вырезать полосу нужного размера.
Отмеряя размер, не забывайте оставлять нужное расстояние для окантовки. То есть к ширине листа нужно прибавить 5 см.
- После этого наличники металлические нужно перевернуть. Готовую часть нужно положить лицевой стороной вниз. Таким образом, освободится внешний кант; оставьте ширину 5 см и вырезайте.
- Когда заготовки будут готовы, защитную пленку потребуется снять и положить листы металла друг на друга. На всякий случай зафиксируйте их при помощи скрепок: для этого нужно просверлить несколько отверстий сверлом 4 мм. Ручным станком для клепки соединяют детали, чтобы они не разошлись в процессе работы.
- После того как вы закрепили листы, их нужно полностью просверливать и заклепать. Наличник можно считать готовым.

Как происходит монтаж?
После того как фасадные наличники на окна будут готовы, можно переходить к их монтажу. Он не займет много времени и может быть выполнен без привлечения специалистов. Способ установки зависит от того, из каких материалов стены: если они деревянные, потребуются следующее:
- Молоток и гвозди 6 см.
- Пистолет монтажный и силикон: лучше брать бесцветный, он понадобится для герметизации щелей.
- Кисть для художника и краска в цвет наличника. С ее помощью вы сможете закрасить шляпки гвоздей и шурупов и сделать их незаметными.
- Дрель со сверлом 4 мм.
Лучше использовать сверла с победитовым наконечником. Они более прочные и надежные, позволят работать с любым материалом, кроме бетона.
- Пробки для шурупов. Можно использовать и самодельные изделия из дерева.
- Медицинский шприц, заправленный жидким силиконом.
- Откосы наружные металлические к этому времени должны быть готовы.
Наличник нужно подогнать к откосу плотно, чтобы он не выступал за его пределы, и закрепить к стене. Если будут иметься неровные места или останутся щели, их нужно промазать силиконовым герметиком. После этого прокрасьте все шляпки шурупов и гвоздей небольшой кисточкой: это избавит конструкцию от некрасивых темных точек.
к содержанию ↑Как быть, если стена кирпичная или из блока?
Не всегда откосы монтируют на деревянное строение – иногда хозяева хотят сделать более декоративным кирпичный дом. Для этого также можно использовать металлические откосы. Устройство металлических откосов в этом случае не отличается, однако от использования гвоздей придется отказаться.
Перед монтажом в стенах потребуется просверлить отверстия для дюбелей. Использовать желательно материалы не меньше 6 см длиной, иначе появится риск выпадения конструкции и из стены. После того как отверстия готовы, нужно вставить пластиковые заготовки в них. В монтируемых откосах также заранее просверливаются отверстия для шурупов: следите за тем, чтобы все отверстия строго совпадали.
После того как все будет готово, конструкция ставится на свое место и прикручивается. Работа с щелями происходит аналогичным образом. Можно использовать силиконовый герметик: бесцветный будет удобнее всего, так как не придется подбирать его оттенок, однако если и стена и откосы белые, можно применить белый. Монтажную пену использовать не рекомендуется. Она не может противостоять влаге, требует защиты от погодных условий и имеет не привлекательный внешний вид.
Сделать декоративные и функциональные наличники на окна из металла вы вполне можете самостоятельно. Для этого не потребуется иметь дорогостоящий инструмент или столярные навыки.
oknanagoda.com
Наличники из цветного металла, наличники из цветного металла, узоры для забора из металла, металлические узоры агрыз, узоры арск | Металл-узор.рф
Наши работы
Мы предлагаем для вас новое направление в декоре фасадов строительных объектов – декоративно-резные узоры из высококачественной стали разных цветовых оттенков. Декоративные доборные элементы производятся из оцинкованной стали с полимерным покрытием, с применением характерных мотивов и орнаментов национальной культуры.
Декоративные доборные элементы предназначены для украшения фасадов, окон, заборов, ворот, крыльца. Они пользуются большим спросом у покупателей, так как помогают им быстро украсить дом, показать свой хороший вкус и выделиться среди соседей. Красивый образ дома вызывает неподдельный интерес и восхищение всех владельцев загородной недвижимости.
Преимущества декоративно-резных узоров
Уникальность — С помощью декоративных узоров можно превратить обычный дом в нарядный терем из сказок и это касается всех домов без исключения, украсить скучный забор или выделить свое окно из десятков других в многоквартирном доме.
Национальный орнамент — У многих жителей нашей страны резко возросло чувство патриотизма и интерес к культуре. Узоры выполнены в виде национальных орнаментов.
Легко крепить -Узоры легко прикрепить к фасаду или забору самостоятельно. К каждому наличнику прилагаются специальные крепежи для его установки и подробная инструкция.
Практичность — Такие узорчатые наличники очень практичны: они не только украшают дом, но и скрывают щели, маскируют строительную пену в оконных проемах.
Вы останетесь довольны качеством декоративных узоров, т.к.:
-Узоры изготовлены из высококачественной стали;
-Не ржавеют и не портятся при любой погоде;
-Хранение и перевозка изделий;
-Гарантия качества металла.
До и После
Наши работы
xn—-7sboksadwsnp.xn--p1ai
Наличник: пластиковый, деревянный, из металла
При слове «наличник» многие вспоминают симпатичные деревенские домики с резными окошками. Эта милая деталь является не только элементом декора, но она также важна для всей конструкции дверей и окон. В этой статье мы подробно рассмотрим функции наличников и материалы, из которых их изготавливают.

Что такое наличники
Наличниками приятно называть оформление дверей и окон. В принципе, это панели, соединяющие проемы с коробкой.
Когда-то в каждом селе или деревне были мастера, которые занимались их изготовлением. У каждого были свои приемы и свой индивидуальный стиль, поэтому наличники на деревенских домах всегда были разными. Сейчас люди, интересующиеся русской культурой и историей, путешествуют по деревням и фотографируют резные окна, чтобы сохранить для потомков кусочек архитектурной истории нашей страны.

Несмотря на то что внешний вид изделий может сильно различаться, их функции одинаковы:
- защищают дом от сквозняков;
- дополнительная шумоизоляция;
- удерживают оконную (или дверную) коробку;
- скрывают щели.
Внимание! В наши дни они защищают помещение от разного рода атмосферных явлений, и как раньше, служат декоративным элементом фасада здания.
Современные мастера часто прибегают к опыту предков и делают из наличника настоящее произведение искусства.

Материалы для изготовления наличников
В изготовлении наличников на входную дверь или окна, используется довольно широкий спектр материалов, так как требования к ним могут отличаться. Оконное обрамление должно выдерживать перепады температур и воздействие атмосферных явлений. Для дверного обрамления по большей части, важна эстетическая сторона.

Если в старину наличники изготавливали из дерева, то сегодня мастера используют большее количество материалов. Изделия из дерева (и обычные, и резные) пользуются наибольшей популярностью, но помимо них распространены и другие материалы:
- пластик;
- мрамор;
- полиуретан;
- МДФ;
- металл;
- поливинилхлорид;
- ПВХ.
Рассмотрим каждый материал более детально.

Наличники из дерева
Для изготовления деревянного обрамления используется только цельное полотно, а не составные элементы. Дерево хорошо тем, что его можно покрасить в любой цвет или просто покрыть лаком. Особенно приятно работать с деревянными наличниками тем, кто владеет навыками резьбы по дереву. Когда-то по красоте наличников можно было догадаться об уровне благосостояния хозяина. Сейчас нечасто можно увидеть резные наличники из дерева, однако, специалисты их высоко ценят за экологичность и особую атмосферу, которую они придают дому.
Чаще всего оформление окон делается из того же сорта дерева, что и само окно, иногда их могут сделать немного темнее. Планки из дерева могут иметь разные формы: плоскую, скругленную или необычную фигурную. О форме данного элемента стоит подумать перед тем, как сделать мастеру заказ. По способу установки деревянные наличники делятся на два типа: простые и телескопические.

Наличники из пластика
Пластиковое обрамление окон и дверей также хорошо закрывает монтажные щели в проемах. Они могут иметь совершенно разный внешний вид. Часто пластиковые наличники имитируют дерево или мрамор. Только стоимость этого материала несколько ниже. Многие специалисты полагают, что такой материал прекрасно может заменить дерево.
Некоторые придерживаются мнения, что этот материал даже лучше по нескольким аспектам. Пластиковое изделие не гниет и не поддается коррозии. Самотечных трещин он также не дает, периодически красить его не надо. Также этот материал не портят насекомые.

Более того, пластиковые наличники довольно просты в установке. Их монтируют на обыкновенные крепления или клей. В целом, пластиковое оформление окон имеет ряд положительных качеств:
- не гниет;
- не привлекает насекомых и паразитов;
- имеют довольно долгий срок службы;
- просты в уходе;
- им не страшны погодные условия;
- не требуют частого окрашивания;
- не подвержены деформации и коррозии.

Наличники из мрамора
Мраморное обрамление окна смотрится по-настоящему роскошно и респектабельно. К тому же, мрамор не сгорит и сможет противостоять даже тяжелым погодным условиям. Ультрафиолет им совсем не страшен. А уж срок службы у такого материала, по сравнению с другими просто рекордный.
Однако у каменных изделий есть и свои недостатки. Во-первых, большой вес. Это сильно затрудняет установку и дает дополнительную нагрузку стене, поэтому, если вы решились на приобретение данной детали, то стоит уделить много внимания расчетам. Во-вторых, стоят они недешево. В-третьих, мраморное обрамление не везде будет смотреться органично. В небольшом дачном домике оно будет выглядеть довольно нелепо и неуместно. Такое обрамление будет хорошо смотреться на фасаде загородного коттеджа или виллы.

Полиуретановые наличники
Главный плюс полиуретана заключается в том, что изделие из него может принимать практически любые формы. Поэтому чаще всего этот материал используют при изготовлении овальных, круглых или многогранных наличников.
Полиуретан имеет меньшую стоимость и вес, чем пластик. Также процесс установки полиуретанового обрамления предельно прост. Но есть и минусы. Данный материал гораздо больше подвержен механическому воздействию, нежели дерево или пластик. Также этот материал может производить токсичные испарения.

МДФ-наличники
Наличник из МДФ отличает особый способ покрытия. В основном делается ламинирующее покрытие из бумаги. Поэтому такие изделия водой лучше не мыть. Также у них плохая сопротивляемость механическому воздействию.
Более надежными считаются наличники, отделанные шпоном. А по внешнему виду такие изделия трудно отличить от дерева.

Металлические наличники
Обрамление из стали или алюминия выглядит весьма необычно и лучше всего смотрится в таких стилях, как хай-тек или минимализм. Также можно встретить наличники из профнастила. К плюсам наличников из металла относятся сопротивление к горению и высокая прочность. Также их совершенно нетрудно изготовить, что актуально для тех, кто предпочитает делать ремонт самостоятельно.

Поливинилхлорид
Изделие из этого материала отличается высокой функциональностью, ведь в него можно убрать телефонный или электрический провод, так как в нем присутствует кабельный канал. Более того, дверной наличник из ПВХ может имитировать структуру древесины и иметь абсолютно любой цвет.
Этот материал в последнее время набирает наибольшую популярность, так как имеет множество плюсов:
- небольшой вес;
- низкую стоимость;
- повышенную устойчивость к ультрафиолету;
- огромный спектр расцветок, который позволяет сделать правдоподобную имитацию дорогих материалов;
- водонепроницаемость. Поливинилхлорид может выдерживать любую влажность, не поддаваясь при этом гниению или коррозии.
Что же касается минусов ПВХ наличников, то к ним можно отнести только неустойчивость этого материала к сильному механическому воздействию.

Это основные типы наличников, которые советуют покупать сразу вместе с дверью. Выбирая, стоит обращать внимание на надежность, внешний вид и способ крепления.
Способы крепления
Существует два способа крепления наличников. Первый способ – крепление к коробке при помощи саморезов или гвоздей. Второй способ предполагает установку специальных телескопических наличников, которые предполагают наличие специальной выемки в самой коробке. Такие модели немного отличаются от обычных моделей своим внешним видом. У них есть выступ (носик), который закрепляется при помощи паза в коробке.
Метод установки выбирают, опираясь на материал. Например, на межкомнатные двери наличники крепятся финишными гвоздями или же при помощи саморезов.

Внимание! Есть было решено закрепить изделие саморезами, то необходимо сделать специальное углубление сверлом. Это нужно для того чтобы спрятать шляпки.
С телескопическими наличниками все довольно просто. В основном их крепят в пазе, который находится на коробке. Результат трудов будет смотреться аккуратнее, если сделать срезы под углом 45 градусов. Также они должны быть идеально ровными. Если все-таки появились недостатки, то исправить положение поможет акриловая смесь. С ее помощью можно не только прятать небольшие недостатки изделия, но и реставрировать любые поверхности из дерева.

Заключение
Наличники важны не только для эстетики, они также защищают окна и двери от различных погодных и механических воздействий. В старину единственным материалом для их изготовления служило дерево, но в наше время можно изготовить оформление окна или двери из пластика, металла и мрамора. Более того, модель из металла реально сделать самостоятельно.
Стать мастером по изготовлению резных деревянных наличников может каждый желающий. Для этого необходимо запастись терпением, необходимыми инструментами и материалами, а также посмотреть следующий видеоурок
bouw.ru
Металлическая отделка откосов окон: схемы и пошаговая инструкция
Металлопластиковые окна являются многофункциональным современным изделием для остекления оконных проемов. Завершающим этапом установки пластиковых окон является отделка наружных откосов. Для этого могут применяться различные отделочные материалы: штукатурка, краска, ПВХ-панели, гипсокартон, но чаще всего производится металлическая отделка окон. Установка металлического откоса на окна может быть выполнена своими руками.
Функция откосов
Отделка окон снаружи откосами из металла выполняет декоративную и защитную функции. Устанавливая откосы на окна своими руками, можно закрыть монтажный шов и тем самым защитить его от воздействия атмосферных осадков и прямых солнечных лучей.
Откосы из металла выполняют защитную и декоративную рольМонтажная пена, применяемая для заделки стыка между рамой и оконным проемом, является пористым паропроницаемым веществом, которое пропускает сквозь себя влагу из помещения. В результате этого влага и конденсат оседают на поверхности откосов окон, что приводит к образованию плесени и разрушению целостности конструкции. Влага с улицы может проникать через монтажный шов и вызывать запотевание и промерзание окна в зимний период.
Устанавливая металлические откосы на окна, можно не переживать об этих неприятностях, так как металл – это прочный, долговечный и неприхотливый в уходе материал с высокими эксплуатационными показателями.
Назначение
Металлические наружные откосы выполняют несколько важных функций:
- Железный наличник для окон придает внешнему облику проема привлекательный опрятный внешний вид. Стальной откос чаще выполняется в том же цвете, что и профиль оконной конструкции – белый или коричневый (для ламинированных под дерево профилей). Однако при желании заказчика панели могут быть окрашены в любой цвет по каталогу RAL.
Заказчик может выбрать любой цвет откосов из каталога RAL - Защита монтажного шва от влаги и воздействия природных явлений в виде атмосферных осадков, ветра и перепадов температур.
- Защита поверхности откоса от сырости, образования плесени и разрушения. Наружные откосы из металла надежно герметизируют поверхность стены и повышают ее теплозащитные качества.
Металлическая отделка окон должна устанавливаться сразу же после монтажа окон, чтобы исключить впитывание влаги монтажной пеной. Если это невозможно произвести в ближайшее время из-за работ по отделке фасада, то монтажные швы на окнах можно временно закрыть полиэтиленом.
Преимущества перед другими материалами
Существует несколько видов отделочных материалов, используя которые, можно придать оконному проему завершенный внешний вид. Это штукатурка, гипсокартон, пластик и краска. Но по своим техническим характеристикам ни один из этих материалов не может сравниться с металлическими откосами. Решая вопрос, как сделать откосы, надо изучить характеристики отделочных материалов.
Полимерный слой стального откоса защищает изделие от ржавчиныПри использовании штукатурки надо быть готовым к тому, что со временем штукатурный слой потрескается. Попадание влаги в образовавшиеся щели между рамой окна и штукатурным слоем может стать причиной появления плесени.
Гипсокартон в качестве отделочного материала для откосов годится только для внутренних работ. Даже гипсокартон марки ГВЛВ не способен противостоять прямому воздействию атмосферных осадков. За короткий срок он разбухнет, потеряет свой внешний вид и разрушится.
Применение пластиковых панелей для отделки наружных откосов приводит к тому, что на солнце пластик выгорает и приобретает неприятный желтоватый оттенок. А при резком понижении температуры воздуха пластик становится хрупким и может потерять свою целостность после незначительного механического воздействия. Поэтому пластик лучше применять для отделки внутренних откосов, особенно в помещении кухни.
Откосы из металла не подвержены воздействиям атмосферных явленийПреимущества металлических откосов очевидны, так как материалом их изготовления является оцинкованная сталь, которую на этапе производства покрывают защитным полимерным декоративным слоем. Это защищает изделия от появления коррозии и ржавчины.
Плюсы и минусы материала
Несмотря на то что наружные металлические откосы стоят дороже других видов отделки, их положительные качества этот недостаток покрывают с лихвой:
Рекомендуется вместе с откосами монтировать шумопоглощающую лентуИз минусов можно отметить высокую стоимость и наличие звуковых эффектов, возникающих от падения капель или града на их поверхность. С этим можно справиться, если использовать при монтаже металлических откосов специальную шумопоглощающую уплотнительную ленту.
Еще одним минусом металлического откоса является невозможность его монтажа в проемы арочной формы.
Подготовка к установке
Установка современных металлических откосов на окна своими руками потребует подготовки специальных материалов и инструментов для проведения данного типа работ:
- металлические листы;
- уровень;
- крепежи;
- монтажную пену и силиконовый герметик;
- шуруповерт и биты;
- малярный нож;
- ножницы по металлу;
- рулетку.
Излишки монтажной пены необходимо срезатьПодготовка поверхности состоит в том, что с нее удаляется строительная пыль и загрязнения. Излишки монтажной пены срезаются малярным ножом, а швы и стыки обрабатываются при помощи силиконового герметика. Установка металлического откоса на окна своими руками должна производиться после высыхания швов.
Последовательность работ
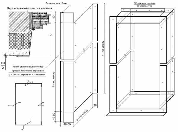
Установка металлических откосов на окна предполагает проведение замерочных работ. Ширина и высота изделия будут соответствовать внутренним и внешним параметрам проема. Изготовление верхнего, нижнего и боковых металлических элементов производится путем вырезания их из заготовленного металлического листа в соответствии с полученными измерениями.
Схема подрезки металлического откоса
Схема подрезки нижнего металлического отлива
Схема подрезки верхнего металлического отливаНа втором этапе работ происходит установка отлива, горизонтальное положение которого контролируется строительным уровнем. Нижний стык стены и оконной рамы оснащается специальным теплоизоляционным материалом и диффузионной лентой для шумоподавления и защиты от влаги.
Сначала необходимо установить отливВо время крепления отлива монтажную пену наносят на оконный проем и на отлив с внутренней стороны. Чтобы он не загнулся из-за расширения пены, на время его плотно прижимают. После того как отлив закреплен, приступают к монтажу металлических откосов.
Перед тем как устанавливать металлические откосы, необходимо те места, в которых они будут соприкасаться с рамой окна, обработать герметиком.
Металлические откосы закрепляют с помощью монтажной пеныСначала устанавливают боковые элементы с соблюдением необходимого уклона изнутри наружу. Верхняя и нижняя части корректируются при помощи ножа в зависимости от уровня наклона.
Боковые элементы должны быть установлены в вертикальном положении и притянуты при помощи шурупов. Верхняя часть подгоняется под боковые элементы. Она выравнивается относительно внешних углов и закрепляется саморезами.
На завершающем этапе все места прилегания обрабатываются герметиком.
При монтаже откосов на фасад из профнастила используют горизонтальные перемычкиВ случае когда фасад дома обшит профнастилом, при отделке оконных проемов необходимо использование горизонтальных перемычек. Это боковые полочки, изготовленные из профлиста, которые с одной стороны крепят к стене, а с другой – к металлопрофилю. Стальные наличники придают фасаду завершенность.
domzastroika.ru
Оконные наличники своими руками — изготовление оконных наличников
Уют в доме состоит из мелочей. Причем уютным дом должен быть не только с внутренней стороны, но и со стороны улицы. Как добиться уюта в загородном или частном доме или коттедже? Здесь недостаточно просто оформить декоративной плиткой фундамент и выполнить внешнюю отделку. Стоит также задуматься об оформлении оконных проемов. Они должны гармонично вписываться в интерьер фасада здания и создавать атмосферу уюта и комфорта.
Декоративные наличникиНа Руси издавна было принято украшать окна резными наличниками. Действительно, они придадут любому, даже самому непритязательному зданию уникальный колорит. Оконные наличники, своими руками сделанные, популярны и сейчас. Однако в продаже сложно найти наиболее подходящий вариант. Выход из ситуации – самостоятельное изготовление наличников.
Что же такое наличники?
Наличник с декоративной резьбойПрежде чем приступить к изучению процесса их изготовления, необходимо выяснить, что представляют собой наличники и для чего они нужны.
Немного истории
На территории современной России оконные наличники появились с начала 15 века. Они использовались в качестве декоративного обрамления для оконных и дверных проемов. Материал для их изготовления – дерево. Уникальность наличникам придает то, что при изготовлении они украшались необычными резными рисунками, выполненными в виде орнамента и узора.
Русская изба с наличникамиРезьба по дереву – одно из популярных русских промыслов. Русские умельцы славились по всему миру. Неудивительно, что резные оконные наличники с уникальным узором стали своеобразной визитной карточкой русских домов.
Предназначение
Кроме декоративного предназначения, основной целью использования наличников является прикрытие щели между стеной здания и оконным или дверным проемом.
Обратите внимание! Наличники служат естественным барьером для воздушных потоков, тем самым не давая теплу покинуть дом.
Также наличники препятствуют проникновению пыли и грязи с улицы внутрь здания.
Классификация
Существует классификация наличников. В зависимости от их формы они могут быть:
- плоские;
- фигурной формы;
- скругленной формы;
- выпуклые.
Из них наиболее простым и недорогостоящим вариантом в изготовлении являются плоские. Их монтаж достаточно прост.
ПлоскиеНаличники выпуклой формы имеют разные значения высоты поверхности. Поэтому для их изготовления используют специальное оборудование. Такой тип наличников имеет высокую стоимость.
Наиболее технически сложные в изготовлении – наличники фигурной формы. Обычно они изготавливаются вручную. На плоскую раму наносятся рисунки, по контуру которых при помощи специальных инструментов вручную выполняется узор.
Материалы для изготовления
Для изготовления наличников для дверных и оконных проемов используют следующие типы материалов:
- дерево,
- композиционные материалы (МДФ, фанера),
- металлические (выполненные из стали или алюминия),
- пластиковые (ПВХ, полиуретан, вспененный полистирол).
Деревянные

Раньше в России изготавливали только деревянные наличники. Они считаются наиболее экологичными и безопасными для здоровья.
- Дерево хорошо пропускает воздух, что будет способствовать естественной вентиляции.
- Чтобы получить наличники с высокой прочностью, для их изготовления лучше выбирать бук или дуб. Можно использовать сосну или березу.
РезныеСреди недостатков деревянных наличников можно отметить следующие:
- Деревянное полотно поглощает водяные пары из воздуха. Скопившаяся внутри полотна влага замерзает при низких температурах. Это способствует разрушению наличника.
- Процесс ремонта деревянных наличников достаточно трудоемкий и сложный, поэтому стоимость ремонтных работ высока.
- Недолговечность деревянного полотна. Для увеличения его срока службы необходимо покрывать полотно лаком или краской с водоотталкивающими свойствами.
Из композиционных материалов
Из МДФИзготавливаются из шпонированных пород дерева. Для изготовления наличников используют древесноволокнистую плиту (МДФ) или фанеру.
Обратите внимание! Такой тип материала разрушается под воздействием окружающей среды, поэтому наличники из композиционных материалов целесообразно использовать не для фасада, а для внутренней стороны здания.
Особенности:
- простота установки,
- малый вес изделий,
- низкая стоимость.
Для увеличения их срока службы наличники из МДФ или фанеры можно также покрывать лаком или краской.
Металлические наличники
Из металлаДля их изготовления используют алюминий или сталь. Основное их предназначение – защита монтажного шва дверных или оконных проемов. Металлические наличники можно использовать как с внешней, так и с внутренней стороны дома.
Обычно при установке металлические наличники соединяют с дверной или оконной коробкой, тем самым создавая единое целое.
Из пластика
ПластиковыеДостаточно распространенный тип наличников. Материалы изготовления: поливинилхлорид, вспененный полистирол и полиуретан.
- Среди основных их преимуществ можно выделить способность к теплоизоляции. Они хорошо сохраняют тепло в здании.
- Также они не пропускают влажные пары воздуха, что способствует их долговечности.
- Не разрушаются под влиянием окружающей среды и не подвержены гниению.
- Не пропускают ультрафиолетовое излучение.
- Могут быть установлены на пластиковые окна.
Способ монтажа
Изготовить и установить наличники своими руками не так уж сложно. Прежде чем приступить к установке, необходимо рассмотреть основные варианты монтажа наличников:
- Телескопические. Имеют расположенный под углом 90 градусов выступ, который монтируется в специальные пазы на дверной или оконной коробке.
- Накладные. Монтируются на оконный или дверной проем. При этом будут видны следы крепежа, что уменьшает эстетичность наличника.
Инструменты
Инструмент для резьбыДля изготовления наличников своими руками потребуются следующие инструменты:
- Стамески в форме полукруга (ширина от 0,5 до 2,5 см; средние, круглые или отлогие).
- Нож. Лезвие должно быть сточено под углом в 30 градусов в форме клина.
- Стамески плоской формы (размер 0,7 см, 1,2 см и 2 см).
- Нож-резак.
- Стамески-клюкарзы (форма изогнутая и полукруглая).
- Стамески-цезарики (форма полукруглая с изгибом в нижней части; ширина лезвия от 2 до 5 мм).
- Стамески-уголки (угол изгиба лезвия от 5 до 15 градусов).
- Стамески с изогнутым лезвием (угол изгиба лезвия от 50 до 70 градусов).
- Лобзиковые пилки (узкое полотно, большой развод зубьев).
Изготовление наличников на окна
Изготовление резного наличникаОсновные этапы работы:
- Выбор и изготовление рисунка. Его можно выполнить самостоятельно с учетом масштаба или использовать современные компьютерные программы.
- Перенесение готового рисунка на полотно.
- Выпиливание мелких фигурных деталей при помощи лобзика.
- Вырезание внешних контуров орнамента.
- Закрепление наличников на стене при помощи гвоздей, саморезов или строительного клея.
ЭскизыУстановленные своими руками оконные наличники создадут неповторимый дизайн здания и уют в доме.
Видео
Предлагаем вам посмотреть видео по изготовлению наличников:
Последняя редакция: 14.04.2015 Автор: Натали Юдакова
fasadoma.ru
мраморные, алюминиевые, полиуретановые, несгораемые, из оцинкованной стали с полимерным покрытием, металла, ПВХ, блокхауса, видео-инструкция по монтажу своими руками, фото и цена
Все фото из статьи
Наличники представляют собой накладные профильные планки, предназначенные для оформления дверных и оконных проёмов. Они бывают различных видов, а также могут быть выполнены собственными руками.
В данном обзоре мы постараемся вас ознакомить со всеми наиболее распространёнными вариантами.

Фото оконных наличников
Общие положения
Первое, что обычно всплывает в памяти при упоминании о наличниках, так это красивые резные оконные обрамления в деревенских домах. В своё время каждое селение имело своего мастера с его собственными секретами и тонкостями выполнения данных элементов внешнего декора из дерева. Сегодня же с этой целью используется различные материалы, с которыми мы ознакомимся далее.

Пример работы старых мастеров
Итак, наличник что это такое, мы примерно разобрались, теперь давайте определим, для чего он вообще нужен:
| Выполняемая функция | Описание |
| Декоративная | Сам по себе установленный стеклопакет смотрится менее эффектно на фоне стены, а ведь речь идёт о фасаде дома, который должен блистать красотой. Эстетичный же наличник позволяет выгодно подчеркнуть и выделить его. |
| Защитная | Зачастую между оконной или дверной рамой и стеной остаются щели. И даже если они совсем незначительные, в холодные зимние ночи всё равно могут приводить к значительным тепловым потерям и образованию сквозняков. Закрыв их планками, вы решите данную проблему. |
Популярные виды
Теперь перейдём непосредственно к рассмотрению возможных вариантов в зависимости от используемых материалов:
Вид №1: дерево
Деревянные изделия обладают как существенными преимуществами, так и существенными недостатками.
К первым можно отнести:
- Потрясающую эстетичность. Оригинальный древесный узор, тёплый оттенок и возможность создания резных фрагментов делают образцы из дерева невероятно красивыми;

Образец резного декорирования оконных проёмов
- Высокую экологичность. Дерево – это полностью природный материал, исключающий наличие каких-либо токсинов;
- Низкую теплопроводность. Плюс к утеплению стыков рам со стеной.
Минусы же выглядят так:
- Гидрофобность. Высокий уровень влажности может спровоцировать появление плесени и начало процессов гниения;
Совет: периодически обрабатывайте наличники из дерева водостойкими лакокрасочными материалами. Это в значительной мере продлит их эксплуатационный срок.
- Достаточно высокая цена. Натуральная древесина стоит недёшево.
В том случае, если вы всё-таки решили остановиться именно на данном материале, то вам тогда предстоит ещё и выбор подходящей древесной породы:
| Порода | Плюсы | Минусы |
| Лиственница | Наименьшая склонность к гниению | Относительная хрупкость, ограничивающая возможность создания ажурных конструкций |
| Липа | Лёгкость обработки, позволяющая творить настоящие шедевры | Интенсивно впитывает влагу, что вынуждает к тщательной пропитке антисептиками |
| Дуб | Высокая стойкость к любым атмосферным, температурным и механическим воздействиям, долговечность | Сложность в обработке и дороговизна |

Дубовое оформление окна сруба
Также сюда стоит отнести и такой материал, как блокхаус, являющийся, по сути, вагонкой, выполненной в виде фрагмента оцилиндрованного бревна.

Наличники из блокхауса особенно хорошо сочетаются с фасадной отделкой из аналогичного материала
Вид №2: мрамор

Мраморные наличники на окнах
Большую солидность, чем натуральная древесина может обеспечить лишь благородный мрамор. Но с ним всё очень непросто.
Плюсы:
- Красивый респектабельный внешний вид;
- Высокая стойкость к атмосферным осадкам, воздействию ветра и ультрафиолетовым лучам;
- Отсутствие горючести -это несгораемый наличник.
Минусы:
- Сложный и трудоёмкий процесс установки;
- Высокая стоимость;
- Тяжёлый вес, оказывающий дополнительную нагрузку на стену.
Вид №3: поливинилхлорид

Наличник из ПВХ– дёшево и практично
Очень интересный, набирающий популярность вариант.
Ему свойственны следующие достоинства:
- Водонепроницаемость. Спокойно переносят любой уровень влажности, не подвергаясь при этом процессам ни гниения, ни коррозии;
- Простая инструкция установки, которая легко выполняется собственными силами;
- Малый вес;
- Низкая стоимость;
- Стойкость к ультрафиолетовому излучению;
- Широкий ассортимент расцветок, позволяющий имитировать более дорогие натуральные материалы;

Успешная имитация резной деревянной конструкции
К минусам следует отнести лишь слабую стойкость к механическим воздействиям.
Вид №4: полиуретан

Круглый полиуретановый наличник
Основная особенность изделия из полиуретана заключается в том, что оно может принять практически любую форму. Именно поэтому их чаще всего применяют для обрамления круглых, овальных или многогранных оконных проёмов.
К плюсам стоит отнести ещё меньшие вес и цену, чем у пластиковых моделей, а также ещё более простую инструкцию установки. К минусам, соответственно, ещё меньшую стойкость к механическим воздействиям и возможность токсичных испарений.
Вид №5: металл

Наличники из оцинкованной стали с полимерным покрытием отличаются высокой прочностью
Стальные или алюминиевые наличники лучше всего сочетаются с такими стилями, как минимализм и хай-тек. Также они обладают высокими прочностными показателями и могут похвастаться отсутствием горючести. И, что ещё весьма примечательно, просты в изготовлении собственными руками, что мы также далее рассмотрим.
Изготовление металлических наличников
Изготавливаются наличники из металла своими руками следующим образом:
- Производим точные замеры оконного проёма с помощью рулетки;
Совет: не забудьте учесть выступающие края откосов, так как это может значительно отразиться на готовом изделии.
- Готовим два шаблона из кусков обоев на боковую и нижнюю части. Наносим на них желаемый узор и вырезаем;
Совет: согните лист бумаги в два раза и только после этого вырезайте. Тогда у вас получится пара идентичных орнаментов на обе стороны окна.
- Вырезаем из листа железа подходящие по размерам полосы;

Лист подходящего железа
- Закрепляем скрепками на них готовые шаблоны и переводим рисунки на металлические поверхности;
- Вставляем в дрель восьмимиллиметровое сверло и по краям орнамента высверливаем сквозные отверстия под пилку электрического лобзика;
- Аккуратно не спеша вырезаем электролобзиком нанесённые узоры;

Вырезание орнамента
- Теперь берём лист более тёмного железа, который будет служить фоном, и вырезаем из него контуры рисунков. При этом края получающихся изделий должны отступать на 4-5 см в сторону увеличения;

Образец готовой фоновой части
- Скрепляем узоры с фоновыми частями с помощью клёпочного ручного станка, после чего можно переходить к установке наличников.

Фиксация заклёпками
Вывод
Наличники выполняют как декоративную, так и защитную функции. Если раньше они изготавливались исключительно из дерева, то на сегодняшний день для этого используются также и металл, и пластик, и даже камень. При этом вы всегда можете изготовить железные модели собственными силами, реализовав любую понравившуюся визуальную идею.

Дом, украшенный наличниками
Видео в этой статье ознакомит с дополнительными материалами. Если у вас имеются какие-либо вопросы по изложенной теме, то можете задать их в комментариях.
rubankom.com

Заказчик может выбрать любой цвет откосов из каталога RAL