устройство, схема и способы сооружения своими руками
Обустройство канализационной системы на дачном участке или в загородном домостроении — один из самых важных этапов создания комфорта для человека. При этом самым популярным резервуаром для сбора нечистот считается септик, сделанный своими руками из железобетонных колец.
- Почему именно септик?
- Основные этапы монтажных работ
- Схемы, расчёты и другие особенности септика
- Особенности выбора подходящего места под септик
- Особенности технологии монтажа септиков
- Монтаж канализационного трубопровода
- Герметизация стыков и обустройство вентиляции
- Особенности эксплуатации самодельного септика
- Рекомендации опытных строителей
Такое устройство выгодно отличается от своих конкурентов сравнительно невысокой стоимостью, длительным эксплуатационным ресурсом и возможностью самостоятельного возведения. Поэтому такая канализация на даче – единственно правильный выбор в плане цены и качества.
Однако не лишено такое септическое устройство и недостатков, которые в основном сводятся к появлению неприятных ароматов из-за неполной герметичности сточного резервуара. Также по мере наполнения септика сточными водами его придётся очищать при помощи спецтехники, хотя такого недостатка не лишены и другие резервуары для сбора отходов жизнедеятельности человека.
Почему именно септик?
Чтобы полностью развеять сомнения в целесообразности использования септика, возводимого из бетонных колец нужно разобраться, чем такое устройство отличается от других канализационных сооружений. Если рассматривать достоинства такого сточного резервуара, то хочется отметить следующие параметры:
- сохранение грунта на приусадебном участке в чистоте;
- возможность переработки большого количества нечистот;
- невысокая стоимость монтажных работ;
- установка септика на любом грунте;
- редкая периодичность проведения мероприятий по очистке;
- долговечность и простота использования;
- возможность сооружения септика с использованием колец из железобетона своими руками.

К недостаткам такого канализационного резервуара можно отнести сложность по его установке, обусловленную с проведением земляных работ и весом готовых колец из железобетона для перемещения которых, может понадобиться спецтехника.
Основные этапы монтажных работ
На первый взгляд возведение септика из железобетонных колец может показаться сложным для самостоятельного выполнения. Но в реальности весь монтажный процесс состоит из нескольких мероприятий, которые под силу каждому домовладельцу:
- составление схемы и расчёт объёмов резервуара;
- выбор места под септик на приусадебном участке;
- земляные работы по копке котлована;
- установка колец из бетона и подключение канализационной трубы;
- обустройство гидроизоляции и герметизация швов;
- перекрытие септика и засыпка ямы.
Выбор схемы подходящего септика зависит от количества очистительных резервуаров. Обычно возводятся одно-, двух- или трёхкамерные сооружения.
Септик с одной камерой подходит для небольших загородных построек, где люди не проживают постоянно. Но если в доме живёт большая семья, которая пользуется стиральной или посудомоечной машиной и другими сантехническими приборами целесообразно возводить своими руками многокамерную конструкцию сборника нечистот.
Особенностью однокамерного септика является то, что он работает по накопительному принципу, аккумулируя внутри резервуара отходы и поэтому в процессе наполнения, требует проведения регулярных очисток с помощью ассенизаторской техники. Поэтому целесообразно возводит резервуары из бетонных колец, которые могут вмещать объёмы сточных вод, превышающие суточные сбросы более чем в 15 раз.
Если рассматривать двухкамерную конструкцию, то она более функциональная. В первом резервуаре происходит накопление твёрдых отходов, а в следующую ёмкость перетекает остальная жидкость. При этом если дополнительно обустроить дренажный фильтр из песочно-гравийной смеси, то очищенные отходы будут впитываться в почву.
Естественно, без откачки такого септика не обойтись, однако, периодичность проведения мероприятий, будет значительно реже, чем при использовании однокамерного аналога.
Схемы, расчёты и другие особенности септика
Если домовладельцем было принято сооружать своими руками 3-камерную модель септика, состоящего из бетонных колец, то согласно схеме, такое изделие должно состоять из следующих резервуаров:
- отстойник – камера, в которой отстаиваются нечистоты;
- очистительный резервуар, в котором устраняются загрязнения;
- фильтрационный колодец, предназначенный для доочистки сточных вод.
Рассчитывая размеры септика, нужно учитывать количество жильцов, постоянно находящихся в доме, и объёмы суточного потребления воды каждым человеком. Исходя, из усреднённых данных один жилец дома, который регулярно пользуется всей сантехникой, потребляет до 200 л жидкости в течение 24 часов. Поэтому средняя семья из 3 человек вырабатывает до 600 л отходов каждые сутки.
По существующим строительным нормам размер очистительной камеры должен вмещать объёмы сточных вод, которые накапливаются в течение 3 суток. Поэтому проделав несложные расчёты можно определить, что для средней семьи потребуется канализационный резервуар в 1800 л.
Особенности выбора подходящего места под септик
В процессе установки септического резервуара из бетонных колец своими руками нужно в точности следовать нормам и предписаниям, которые прописаны в действующей нормативной документации. По санитарным правилам запрещено располагать сточный резервуар в непосредственной близости от жилого строения и открытых источников питьевой воды. Прежде чем размечать участок, нужно ознакомиться со следующими нюансами:
- очистное сооружение должно размещаться не ближе 5-м от жилого дома;
- слишком большая отдалённость септика от дома может привести к значительному увеличению трудозатрат по прокладке канализационных труб;
- дистанция от сборника канализационных отходов до ближайшей скважины или колодца должна быть не меньше чем 50-м;
- для монтажа бетонных колец нужно обеспечить возможность подъезда спецтехники.

В месте установки септика не должно быть поверхностных грунтовых вод. При сооружении слишком длинного канализационного трубопровода он должен оснащаться ревизионными колодцами.
Особенности технологии монтажа септиков
Если рассматривать технологический процесс монтажа септического устройства, то он должен происходить согласно выбранной схеме очистительного сооружения. Если выбран 3-камерный септик, то все работы по его возведению своими руками состоят из определённых этапов.
- Возведение септика начинается непосредственно с приобретения бетонных колец. Для стандартного канализационного очистителя достаточно 9 элементов. Помимо этого понадобятся канализационные люки и бетонные крышки.
- На следующем этапе выполняется копка 3 котлованов расположенных в ряд. Полученные колодцы должны быть 3 метровой глубины и шириной на 100–150 мм больше диаметра бетонного кольца.
- Производится бетонирование дна первых 2 резервуаров.

- Следующий этап – монтаж колец из бетона. Для этого с помощью подъёмной техники отдельные элементы устанавливаются один на другой. В каждый котлован монтируется по 3 кольца.
- Выполняется заделывание стыков между соседними элементами с помощью песочно-цементного раствора.
Если следовать схеме установки септика из бетонных колец своими руками, то колодцы должны возводиться последовательно. Кольца устанавливаются друг на друга и стыкуются между собой с максимальной плотностью. Если предполагается нестабильность грунта в районе возведения сточного резервуара, то соседние бетонные элементы дополнительно закрепляются металлическими пластинами или скобами.
Монтаж канализационного трубопровода
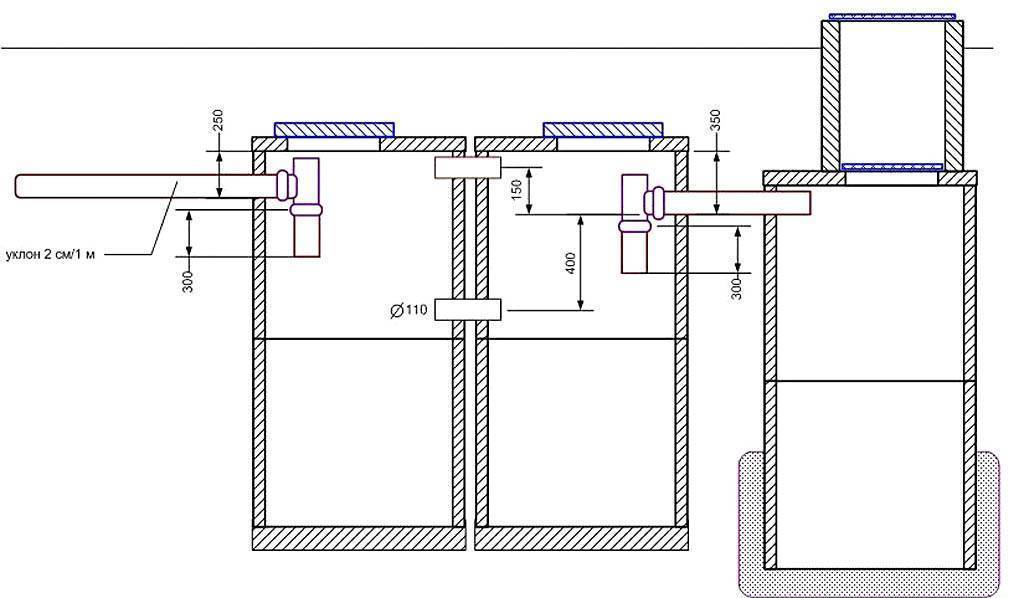
При монтаже канализационного трубопровода нужно учитывать, что прохождение стоков из одного резервуара в другой должно быть беспрепятственным. Сам процесс установки труб подразумевает определённые нюансы:
- канализационная труба подводится под небольшим углом в сторону сточных вод к первому колодцу;
- отрезок трубы, соединяющий первый и второй резервуар, размещается на 20 см ниже входного аналога;
- патрубок, соединяющий последние 2 резервуара, опускается ещё на 20 см.

Несмотря на свою эффективность, септик из железобетонных колец не лишён недостатков, одним из которых является большая площадь для его установки.
Герметизация стыков и обустройство вентиляции
Очень важно качественно заделывать швы между соседними кольцами с помощью цементного раствора или готовых смесей. В первую очередь от этого будет зависеть образование неприятных ароматов на приусадебном участке. Для улучшения гидроизоляционных показателей септика его обрабатывают снаружи обмазочными материалами на основе герметиков.
Первый резервуар обязательно оснащается 4 метровой трубой, возвышающейся над перекрытием. Это позволяет, выходить образующимся в процессе брожения стоков газам. В случае необходимости такая вытяжка устанавливается на всех сточных ёмкостях.
Обратная засыпка выполняется по окончании всех монтажных процедур. Вынутая из ямы почва смешивается с песком и распределяется в пространстве между бетонных колец и котлованом. Каждый резервуар накрывается бетонной крышкой, в которой предусмотрено отверстие для люка.
Особенности эксплуатации самодельного септика
Просто самостоятельно построить септик с использованием бетонных колец недостаточно. Нужно уметь правильно его эксплуатировать. Важно учитывать, что в нормальный режим такое очистное оборудование войдёт только через полгода. Естественно, процесс можно ускорить с помощью использования специальных добавок.
Основным правилом эксплуатации септиков считается регулярный контроль уровня нечистот и своевременная их откачка по мере необходимости. Для контроля уровня осадков в резервуарах используют обычный деревянный шест, опускаемый в люк. Также нужно проверять качество очистки нечистот по их прозрачности. Чтобы не допустить замерзания стоков в септике желательно выполнить работы по его утеплению. Особенно это касается смотрового люка и бетонного перекрытия.
Рекомендации опытных строителей
Приступая к сооружению септика с использованием бетонных колец своими руками, нужно ознакомиться с рекомендациями специалистов, которые смогут поспособствовать ускорению монтажных работ и экономии денежных средств:
- Чтобы уменьшить бюджет, предназначенный для сооружения септика перед приобретением колец из бетона целесообразно подготовить котлованы для их размещения.
Это в первую очередь обусловлено тем, что разгрузка колец будет проводиться при помощи крана, так почему не выгружать их непосредственно в котлован и не платить дважды за услуги крановщика. - Для перекрытия септика бетонными плитами нужно устанавливать конструкции с отверстием для люка на каждом отдельном резервуаре. Благодаря этому упрощается контроль за наполнением ёмкостей и появляется возможность добавлять живые бактерии для переработки и разложения человеческих отходов на удобрение.
- При возможности желательно каждый колодец снабдить отдельной вентиляционной трубой.
- Не стоит пренебрегать утеплением септика для предотвращения промерзания в зимний период года.
- Чтобы конструкция септика получилась достаточно прочной, соседние элементы скрепляются скобами.
- При возможности нужно обработать кольца из бетона изнутри при помощи проникающей гидроизоляции. Но такие работы потребуют дополнительных денежных вложений.
Если следовать основным правилам монтажа канализационных септиков на приусадебном участке загородного домостроения, то весь процесс, даже проводимый своими руками, не вызовет особых проблем.
Единственное, необходимо в точности соблюдать санитарные правила размещения канализационных систем. Однажды самостоятельно соорудив септик, домовладелец на долгое время обеспечит комфорт проживания всех родственников на даче или в загородном строении.
Септик из бетонных колец своими руками: схема установки и видео
Содержание
- Виды и принцип работы септика из бетонных колец
- Расчет необходимого объема септика
- Септик из бетонных колец: этапы строительства
- Подготовительный этап
- Земляные работы
- Доставка и монтаж железобетонных колец
- Гидроизоляция
- Вентиляция
- Перекрытие септика
- Обслуживание септиков
- Установка септика из бетонных колец: видео
Среди новых очистных систем, которые пришли на смену зловонным выгребным ямам, особенно популярны септики. Но поскольку стоимость готовых сооружений не всем по карману, приходится делать септик из бетонных колец своими руками.
Когда канализация на даче или в частном доме не может быть подключена к центральным коммуникациям, актуальным становится вопрос о собственном очистном сооружении и в данном случае септик, является оптимальным вариантом. В отличие от обычных выгребных ям он очищает бытовые стоки, делая их безопасными для окружающей среды, сдерживает неприятные запахи и при правильной организации его откачка может не понадобится много лет. Решая, какой септик установить предпочтение нередко отдают именно конструкции из бетонных колец.
Виды и принцип работы септика из бетонных колец
Принцип работы всех септиков одинаков, отличие заключается только в использовании различных материалов для сооружения септика в частном доме и количестве камер – резервуаров для сбора нечистот.
Однокамерный и двухкамерный септик- Однокамерный септик устанавливать нецелесообразно, поскольку процесс фильтрации
прекратится, как только произойдет заиливание дна. Во многом это зависит
от количества сточных вод и объем септика, но длительное время такое
очистное сооружение не проработает.
Частая откачка осевших фракций потянет дополнительные расходы на услуги ассенизатора и запуск новых бактерий. - Двухкамерный септик вполне функциональный. В первой камере происходит лишь брожение и отстаивание стоков при закрытом дне, во вторую переходят уже достаточно
очищенные стоки, которые уходят в грунт. Скорость фильтрации зависит от
качества устройства дренажной системы.
- Трехкамерный септик является наиболее совершенным вариантов с точки зрения утилизации бытовых отходов. В данном случае роль отстойников выполняют первые две емкости, вода в них разной степени очистки, а третья выступает роли фильтрационного
поля. Поэтому, решая какой септик сделать, лучше остановиться на этом варианте.
Важно! В рабочем состоянии отстойники септика должны быть заполнены до уровня перелива, а фильтрационные поля содержать лишь некоторое количество очищенной воды.
Расчет необходимого объема септика
Объем стоков, а соответственно и объем емкости рассчитывается по формуле: число проживающих человек умножается на 200 литров, умножается на 3 дня и делится на 1000, полученное число определяет необходимый объем емкости в кубических метрах.![]()
200 литров это норма расхода на одного человека, конечно же, по факту она намного меньше. 3 дня – время, за которое вода в септике очищается. Если в доме часто бывают гости, используется стиральная или посудомоечная машина рекомендуют добавить к объему 200 л. Объем второго резервуара может быть меньше первого на 30 %, а третий на 50 %. Исходя из этих расчетов и, зная объем одного бетонного круга, несложно рассчитать, сколько их потребуется.
таб. КОЛОДЕЗНЫЕ КОЛЬЦА ЖЕЛЕЗОБЕТОННЫЕ
НАИМЕНОВАНИЕ | ГАБАРИТНЫЕ РАЗМЕРЫ в мм. | |||
высота | толщина стенки | внутр. диаметр | вес | |
| КС-7-5 | 500 | 80 | 700 | 0,275 |
| КС-7-9 | 900 | 80 | 700 | 0,410 |
| КС-7-10 | 1000 | 80 | 700 | 0,457 |
| КС-10-2 | 300 | 80 | 1000 | 0,200 |
| КС-10-3 | 300 | 80 | 1000 | 0,200 |
| КС-10-5 | 500 | 80 | 1000 | 0,200 |
| КС-10-6 | 600 | 80 | 1000 | 0,400 |
| КС-10-9 | 900 | 80 | 1000 | 0,610 |
| КС-10-9 с/з | 900 | 80 | 1000 | 0,610 |
| КС-10-10ч | 1000 | 80 | 1000 | 0,660 |
| КС-12-10 | 1000 | 80 | 1200 | 1,050 |
| КС-15-3 | 300 | 80 | 1000 | 0,200 |
| КС-15-6 | 600 | 80 | 1500 | 0,670 |
| КС-15-9 | 900 | 90 | 1500 | 1,00 |
| КС-15-10ч | 1000 | 100 | 1500 | 1,240 |
| КС-20-6 | 600 | 100 | 2000 | 1,20 |
| КС-20-9 | 900 | 100 | 2000 | 1,50 |
Септик из бетонных колец: этапы строительства
Канализация с септиком из бетонных колец отличается надежностью, долговечностью и высоким уровнем очистки бытовых нечистот.
Цена такого сооружения будет сравнительно невысокой, а при отличной гидроизоляции и правильной схеме, откачка емкостей потребуется не часто. К сложностям строительства можно отнести необходимость привлечения тяжелой техники и особенности монтажа труб между бетонными секциями.
Подготовительный этап
Монтаж септика выполняют с соблюдением всех санитарных, строительных правил и норм. Продумывают конструкцию очистного сооружения, месторасположение на частном участке и согласовывают план в соответствующих инстанциях. Решают, какой септик лучше установить, что бы канализация в частном доме была выполнена максимально комфортной. Правильно рассчитывают объем септика и приступают к строительству.
Земляные работы
Котлован под очистное сооружение в частном доме должен быть настолько большой, чтобы ничего не мешало установке колец. Дно выгребных ям, на месте установки отстойников, бетонируют. Это позволяет исключить попадание еще не очищенных вод в почву.
Котлован для септикаОснование для второй или последующих камер выполняют с таким расчетом, чтобы вода могла уходить в почву.
Для этого делают фильтрационную подушку глубиной до 1 метра из гравия и песка.
Совет! Если при монтаже септика котлован под фильтрационным колодцем достигнет песчаного слоя грунта, вода из него будет уходить максимально быстро и легко.
Форма котлована не обязательно должна быть округлой, подойдет и стандартная, квадратная, главное чтобы кольца заходили в него свободно. Кроме этого, в квадратную яму на дно можно уложить уже готовую бетонную плиту, тогда как в круглой можно выполнить только цементную стяжку. На этом этапе работ также стоит помнить, что если расположить каждый последующий колодец на 20-30 см ниже предыдущего, септик и собственно сама канализациябудут более функциональны.
Доставка и монтаж железобетонных колец
Кольца доставляет и устанавливает грузовой транспорт, поэтому заранее стоит обеспечить подъезд к месту строительства, учесть дополнительные экономические затраты и радиус разворота стрелы крана, ей не должны мешать газовые, телефонные или электрические коммуникации.
Между собой кольца, обычно, соединяют металлическими скобами, стыки промазывают раствором из цемента и песка.
Когда установлены все колодцы в них проделывают отверстия и устанавливают переливные трубы, внешняя канализация соединяется с очистным сооружением через трубу стока, входящую в первую емкость. Места входа труб обязательно герметизируют.
Пространство между установленными кольцами и стенками котлована засыпают грунтом и тщательно, послойно утрамбовывают. Если септик установлен выше уровня промерзания грунта его утепляют, иначе в холодное время года канализация будет нефункциональна.
Совет! Доставку и установку бетонных колец лучше выполнять одновременно, это поможет сэкономить не только средства, а и время. Заранее стоит закончить все земельные работы и разгружать кольца, не просто на участке, а сразу, выполняя монтаж септика.
Гидроизоляция
Хорошая гидроизоляция септика имеет основополагающее значение в его правильной работе.
Какой герметик лучше выбрать для этих целей каждый строитель определяет сам. Обычно для обработки швов, используют резинобитумную мастику, полимерные смеси реже. Для более продолжительной эксплуатации выгребных сооружений, выполняют и внутреннюю гидроизоляцию швов емкости.
Если герметизация будет выполнена плохо, то попадание неочищенных стоков в грунт будет меньшим из зол. Емкости септика, особенно во время весенней оттепели, будут наполняться водой, а все его содержимое будет вытекать через сантехнику в доме, потребуется неоднократная откачка.
Вентиляция
На первый резервуар обязательно устанавливают вытяжную трубу высотой до 4 метров над уровнем перекрытия септика. Она необходима для того, чтобы, образовавшиеся в результате брожения стоков газы смогли выйти, и на участке не было неприятных запахов. При возможности вентиляционные трубы устанавливают на каждом колодце.
Вентиляция септикаПерекрытие септика
Задача перекрытия заключается не только в закрытии ямы, оно должно обеспечить герметичность емкостей.
Как правило, камеры накрывают готовыми железобетонными плитами, на которых предусмотрено отверстие для люка из чугуна или толстого пластика. Затем конструкцию засыпают небольшим слоем грунта. Люки на каждом из колодцев помогут следить за состоянием и наполнением септика, а также дадут возможность периодически добавлять смеси активных бактерий для выгребных ям.
Обслуживание септиков
После запуска системы канализации в частном
доме необходимо принять меры, которые позволят продлить срок ее эксплуатации.
• При эвакуации содержимого емкости на дне оставляют некоторую часть накопившегося ила, чтобы обеспечить в дальнейшем нормальное наполнение камер активными бактериями.
• Откачка содержимого септика выполняется ассенизаторской техникой, которая забирает стоки через разгрузочный патрубок.
• Также существуют биологические способы очистки, использование так называемых бактерий для септиков и выгребных ям. Они помогут существенно уменьшить количество осадка, а, следовательно, и откачка жидкости потребуется реже.
• В канализацию категорически не рекомендуют спускать тряпки, спички, салфетки, гигиенические средства и даже туалетную бумагу
Установка септика из бетонных колец: видео
http://www.youtube.com/watch?feature=player_embedded&v=WLwQxe2jpSw
1 комментарийПохожие публикации:
Прокрутка вверх
Adblock
detector
Комплекты стояков и компоненты септика
Компания Aero-Stream® рекомендует, чтобы крышка септика была видна, легкодоступна и проверялась каждые 6 месяцев. Септическая система является одним из самых дорогих, но наименее контролируемых и понятных механических элементов собственности. Похороненный и спрятанный глубоко под землей, часто покрытый травой или спрятанный под горшком с цветами, он быстро забывается. Только когда начинают появляться предупреждающие признаки проблем с септической системой, мы помним, что она есть, и что ее нужно поддерживать и контролировать.
С такими аксессуарами, как наши стояки для септиков, это легко сделать.
Бетонные кольца стояка септика весят сотни фунтов, а крышка весит от 60 до 80 фунтов. Поскольку они такие тяжелые и громоздкие, многим людям не рекомендуется снимать крышку, и они не знают, что искать, когда они это сделают. Они также могут быть неприглядным украшением вашего ландшафта. С другой стороны, наши пластиковые стояки для септиков обычно весят менее 30 фунтов, а крышка менее 10 фунтов. Это значительно упрощает установку, регулярный осмотр и обслуживание вашей септической системы. Наши покрытия для септиков эстетичны и хорошо вписываются в ландшафт.
Комплекты стояка септика используются для поднятия отверстия резервуара до уровня земли для облегчения обслуживания. Наши прочные пластиковые комплекты стояков для септиков на 100% сделаны в США. Поднимите септическое покрытие на поверхность, чтобы облегчить обслуживание резервуара. Мы предлагаем полные комплекты или компоненты на заказ для домашних мастеров.
Цены на комплекты стояков и компонентов септика включают бесплатную доставку по США. Свяжитесь с нами для несмежных вариантов доставки в США и Канаду.
Узнайте о простых шагах установки нашего комплекта стояка для септика!
Часто задаваемые вопросы
Как правильно подобрать размер?
Ознакомьтесь с нашим Руководством по измерениям для комплекта стояка септика или свяжитесь с нами, чтобы обсудить вашу заявку. Вы можете отправить фотографии через форму обратной связи, чтобы мы рассмотрели их. Кроме того, каждая отдельная страница продукта будет содержать схему соответствующего продукта.
Можно ли укоротить или переделать стояк на месте?
Нет.
Наборы доступны только с шагом 3 дюйма, начиная с высоты 7 дюймов и заканчивая высотой 50 дюймов. Позвоните нам, чтобы заказать высоту более 50 дюймов.
Должен ли комплект располагаться выше, на уровне или ниже уровня грунта?
Высота зависит от предпочтений. Комплекты водонепроницаемы и могут быть установлены с крышкой выше, на уровне или ниже уровня земли.
Вы снимаете существующую крышку септика?
Как правило, большинство домовладельцев снимают существующее покрытие для облегчения доступа в будущем. Этот шаг может потребоваться в зависимости от размеров существующей крышки. Наши комплекты обеспечивают герметичность резервуара. Низкопрофильная крышка крепится несколькими винтами, а также имеется дополнительный защитный барьер, чтобы наши комплекты обеспечивали безопасный доступ к септиктенку.
Могу ли я управлять газонокосилкой и/или грузовым автомобилем через комплект?
Нет. Мы рекомендуем избегать каких-либо существенных нагрузок от механизмов непосредственно на комплект.
Крышка септика предназначена для мест с периодическим пешеходным движением. При использовании в зонах с интенсивным движением покрытие следует осматривать каждые 6 месяцев на предмет износа и заменять не реже одного раза в 3 года.
Мой проем квадратный, а не круглый, будет ли работать эта система?
Наши комплекты подходят для большинства форм проемов (например, круглых, квадратных, прямоугольных и т. д.) при условии, что проем соответствует определенным параметрам. Базовый фланец подходит для круглого или квадратного отверстия диаметром до 24 дюймов.
У меня уже есть стояк, могу ли я расширить его с помощью вашего оборудования?
Ознакомьтесь с доступными опциями на нашей странице комплектов удлинителей стояков. Мы предлагаем комплекты высотой от 6 до 18 дюймов. Свяжитесь с нами для нестандартной высоты свыше 18″.
Сколько стоит установка септика в 2022 году?
Типичный диапазон:
3470 долларов США — 11 061 доллар США
Данные о затратах основаны на фактических затратах на проект, о которых сообщили 1013 участников HomeAdvisor.
Встроить эти данные
Как мы получаем эти данные
.
.
.
.
.
.
.
.
.
.
.
.
.
.
.
.
.
.
.
.
.
.
.
.
.
.
.
.
.
.
- Домовладельцы используют HomeAdvisor, чтобы найти профессионалов для домашних проектов.
- Когда их проекты завершены, они заполняют краткий обзор стоимости.
- Мы собираем данные и сообщаем вам о затратах.
Обновлено 19 июля 2022 г.
Рассмотрено Джефф Ботельо, Слесарь-сантехник с лицензией.
Автор HomeAdvisor.
Полная септическая система, включая поле выщелачивания (также называемое дренажным полем), резервуар и трубопровод, стоит от 10 000 до 25 000 долларов .
Кроме того, септики стоят от 3 470 до 11 061 долларов США , или 6 992 долларов США в среднем для больших блоков, предназначенных для общественных систем.
В конечном счете, сумма, которую вы заплатите за установку септика, зависит от размера, типа системы и материала. В этом руководстве рассматриваются два типа систем — аэробные и анаэробные, а также различные типы установок, от обычных до капельных, насыпных, эвапотранспирационных, рециркулирующих песка, построенных водно-болотных угодий и камерных.
В этой статье
- Калькулятор стоимости септической системы
- Стоимость работ по установке септика
- Стоимость септика по размеру
- Анаэробные и аэробные септики
- Стоимость альтернативных септических систем
- Стоимость септика по материалам
- Затраты на установку поля выщелачивания
- Дополнительные расходы на установку септика
- Стоимость замены септика
- Сделай сам против найма септической системы Pro
Калькулятор стоимости септической системы
Рассчитаем для вас данные о затратах.
Где вы находитесь?
Где вы находитесь?
Почтовый индекс
| Среднее по стране | 6 992 долл. США |
| Типовой диапазон | 3470 долларов США — 11 061 долл. США |
| Низкий уровень — Высокий уровень | $475 — 21000 долларов |
Данные о затратах основаны на фактических затратах на проект, о которых сообщили 1013 участников HomeAdvisor.
Стоимость работ по установке септической системы
Оплата труда составляет от 50% до 70% от общей стоимости проекта. В типичной установке рабочая сила дороже, чем цена самого резервуара. Принимая во внимание, что размер резервуара, необходимый для дома с тремя-четырьмя спальнями, может стоить от 900 до 1500 долларов , стоимость установки может варьироваться от 1500 до 4000 долларов .
Стоимость септика в зависимости от размера
Сколько вы заплатите за септик зависит от размера. В больших домах требуется резервуар большего размера, который может удовлетворить потребности большого домохозяйства.
| Объем бака в галлонах | Размер дома | Средний диапазон цен |
|---|---|---|
| 500 | 1 спальня | $500 – $900 |
| 750 | 2 спальни | 700 – 1200 долларов |
| 1000 | 3-4 спальни | 900 – 1500 долларов |
| 1 200 | 5-6 спален | 1 200 – 1 600 долл. США |
| 1 500 | 6-7 спален или небольшой дуплекс | 1 500–2 500 долл. США |
| 2 000 | Дуплекс в маленьком многоквартирном доме (~14 жильцов) | 3 000–4 000 долл. США |
| 3 000 | Малоквартирный жилой дом | 4 500–6 000 долл. США |
| 5000+ | Многоквартирный дом или общественный резервуар | 7 500 – 14 000 долл. США |
Анаэробные и аэробные септики
Анаэробные септики – это традиционные системы, в которых анаэробные (не потребляющие кислород) бактерии переваривают твердые отходы. После превращения в сточные воды отходы выходят из резервуара и отправляются на большое поле выщелачивания, где кислородолюбивые бактерии начинают разрушать отходы. Когда сточные воды проникают в почву, бактерии убивают потенциально вредные организмы.
Аэробные системы более сложны и часто включают биотуалет и систему непрерывного потока. Эта септическая система дороже, чем традиционный анаэробный тип, но более эффективна. Поскольку сточные воды (или сточные воды, или сточные воды) имеют более высокое качество, эти системы требуют меньшего поля выщелачивания. Подробнее о двух типах систем читайте ниже.
Анаэробная септическая система
Установленная классическая анаэробная система стоит в среднем от 3000 до 8000 долларов США .
Анаэробные системы, как правило, дешевле в установке, чем более сложные аэробные системы, но они не так эффективны при очистке резервуара, поэтому вам понадобится более крупное поле для выщелачивания, чтобы справиться с дополнительной нагрузкой.
Анаэробная септическая система представляет собой относительно простую систему, состоящую из трубы, ведущей от дома к резервуару, и разветвленной трубы, ведущей оттуда к дренажному полю. Эти системы полагаются на анаэробные бактерии (бактерии, которые не используют кислород) для расщепления отходов в резервуаре перед дальнейшей бактериальной обработкой в почве.
Аэробная септическая система
Аэробные системы стоят в среднем от 10 000 до 20 000 долларов США . Вам, скорее всего, понадобится второй баллон, если вы переходите с анаэробного на аэробный, но это будет стоить всего 5000 долларов в 10 000 долларов для преобразования. Аэробные системы более эффективно расщепляют отходы в резервуаре, чем анаэробные системы, а это означает, что вы часто можете использовать меньшее дренажное поле, что отлично подходит для небольших объектов.
Аэробная система — это система очистки сточных вод, в которой аэробные бактерии (кислородолюбивые бактерии) разлагают отходы в баке. Вам понадобится аэратор и электрическая цепь, идущая к системе, а для небольших, насыпных или специальных полей вам также может понадобиться доза или резервуар с насосом для подачи сточных вод в гору или дозировано.
Найдите местных установщиков септиков
Почтовый индекс
Поговорите с профессионаламиСтоимость альтернативной септической системы
Вам понадобится альтернативная септическая система, если у вас небольшой участок, высокий уровень грунтовых вод, высокая коренная порода, плохая почва или вы просто хотите использовать меньше места.
| Септик | Средний диапазон цен | Средняя стоимость |
|---|---|---|
| С камерами | 5 000 – 12 000 долл. США | 8 500 долларов США |
| Водно-болотные угодья | 8 000 – 15 000 долл. США | 11 500 долларов США |
| Песочный фильтр | 7 000 – 18 000 долл. США | 12 500 долларов США |
| Эвапотранспирация | 10 000–15 000 долл. США | 12 500 долларов США |
| Капельница | 8 000 – 18 000 долл. США | 13 000 долларов США |
| Курган | 10 000 – 20 000 долл. США | 15 000 долларов США |
Система с камерами
Системы с камерами стоят от 5000 до 12000 долларов США для установки. Они используют пластиковые перфорированные камеры вокруг труб, часто укладываемых в песок, что устраняет необходимость в гравии. Их можно быстро и легко установить, но они более чувствительны к раздавливающим силам, таким как транспортные средства.
Встроенная система водно-болотных угодий
Встроенные системы водно-болотных угодий стоят от 8000 до 15000 долларов США за установку и больше, если вы используете аэробный резервуар.
Они имитируют естественный процесс очистки водно-болотных угодий и обрабатываются микробами, растениями и бактериями в резервуаре с водно-болотными угодьями перед попаданием в почву. Отходы также поддерживают водно-болотные растения и популяцию микробов.
Септическая система с рециркуляционным песчаным фильтром
Септическая система с песчаным фильтром стоит от 7000 до 18000 долларов США за установку. Они строятся либо над землей, либо под землей и используют насосную камеру для проталкивания сточных вод через песчаный фильтр перед рассеиванием в земле. Коробка фильтра обычно имеет облицовку из ПВХ, а насос проталкивает сточные воды через песок и обратно в резервуар насоса, где они затем рассеиваются по земле.
Система эвапотранспирации
Системы эвапотранспирации стоят от 10 000 до 15 000 долларов США для установки. В них используется уникальная система дренажного поля, позволяющая жидкости испаряться из верхней части резервуара под открытым небом, и они полезны только в сухом засушливом климате, где мало дождя или снега.
Капельная септическая система
Стоимость установки капельных систем от 8 000 до 18 000 долларов США . Они работают так же, как и другие системы, за исключением того, что в них используется длинная капельная трубка и система дозирования. Они выделяют меньшие дозы по времени, которые хорошо работают на небольшой глубине почвы. Но капельная система стоит дороже, чем традиционная система, поскольку для нее требуется дозировочный резервуар, насос и электричество.
Насыпная септическая система
Насыпная септическая система стоит от 10 000 до 20 000 долларов США для установки. Это самая дорогая система, но она часто необходима в районах с высоким уровнем грунтовых вод, небольшой глубиной почвы или мелкой коренной породой. Он опирается на приподнятую песчаную насыпь в качестве дренажного поля, а не на выемку грунта. Его повышенные расходы связаны как с добавлением оборудования, необходимого для перекачки сточных вод в гору в насыпь, так и с материалами и созданием самой насыпи.
Почтовый индекс
Сравните котировкиСтоимость септиктенка в зависимости от материала
Тип септиктенка, который вы выберете, будет стоить от 500 до 14000 долларов , в зависимости от использования, материала и размера. Вы редко будете тратить больше, чем 3000 долларов на сам резервуар для большинства жилых помещений. Большинство больших и дорогих блоков предназначены для квартир или общественных септических систем.
| Материал септика | Средний диапазон цен (только материалы) |
|---|---|
| Бетон | 700 – 2000 долларов |
| Пластик и поли | 500 – 2500 долларов |
| Стекловолокно | 1 200–2 000 долл. США |
| Сталь | н/д |
Бетон
Бетонные резервуары стоят от 700 до 2000 долларов , а общие затраты на установку составляют от 2300 до 6500 долларов .
Они являются одним из наиболее распространенных типов и обычно долговечны в течение нескольких десятилетий, потому что они подвержены растрескиванию или отделению. Важно регулярно проверять его вручную на наличие трещин и протечек. Осмотры и регулярные чистки помогают продлить срок их службы. Ваш профессионал может сказать вам, как часто его нужно проверять, но обычно это от одного до трех лет.
Пластик и полиэтилен
Пластиковые септики стоимостью от 500 до 2500 долларов в среднем, не включая установку. Пластик — прочный, легкий и относительно недорогой материал, он редко трескается, как бетон, и не ржавеет. Однако пластик может быть уязвим для повреждений во время установки, потому что он очень легкий.
Стекловолокно
Септики из стекловолокна стоят в среднем от 1200 до 2000 долларов США , не включая установку. Стекловолокно не трескается и не ржавеет, но оно подвержено повреждениям во время установки, как и пластик. Кроме того, меньший вес делает его более восприимчивым к повреждениям конструкции, а сами баки могут смещаться в почве.
Сталь
Скорее всего, вы никогда не увидите установленный новый стальной резервуар. Независимо от того, насколько хорошо он сделан, он в конечном итоге заржавеет или подвергнется коррозии. Многие местные строительные нормы и правила больше не позволяют их использовать, и вы часто будете видеть их только в существующих установках. Сталь недолговечна в земле, и это наименее популярный тип септика.
Затраты на установку поля выщелачивания
Поле выщелачивания или дренажа — это часть септической системы, которая транспортирует сточные воды обратно в почву и стоит от от 5000 до 20 000 долларов для установки. Первым признаком проблемы с дренажным полем часто является заболоченное место во дворе или запах сточных вод на участке. Замена дренажного поля может стоить от 10 000 до 50 000 долларов , в зависимости от того, сколько ремонтных работ вам нужно для забитых или затопленных полей.
Свяжитесь с установщиками септиков рядом с вами
Почтовый индекс
Найдите плюсыДополнительные расходы на установку септика
Помимо бака и поля для выщелачивания, у вас будет несколько других сборов, которые вам нужно будет учесть в своем бюджете.
Некоторые из них могут быть включены в общую стоимость проекта, поэтому запросите постатейную стоимость в вашей смете.
Land excavation costs: $1,500–$5,600
Cost of building permits: $450–$2,300
Perc test cost: $750–$1,900
Riser installation: $300 –600$
Стоимость канализационной трубы: 100–240$ за погонный фут
Распределительная коробка септика: 50–650$
Стоимость замены 0 СептикSeptic tank pump replacement: $800–$1,400
Baffle replacement: $300–$500
Filter replacement: $ 230–280
Замена крышки танков: $ 30–70
Замена дренажного поля: $ 7000
Материал резервуара: Бетон требует большего ухода, но стекловолокно и пластик промышленного качества служат десятилетиями.

Техническое обслуживание: Проводить осмотр каждые один-три года и откачивать его каждые три-пять лет. Если у вас большой дом с более чем тремя спальнями и вы склонны использовать много воды, старайтесь поливать как минимум каждые три года.
Движение транспортных средств по полю выщелачивания: Движение по полю выщелачивания сдавливает его и может привести к выходу из строя.
Состав почвы : Различные типы и глубина почвы влияют на то, как долго она может прослужить.
Неприятные запахи: Если вы чувствуете запах сточных вод, возможно, вы имеете дело с переполненным септиком, который содержит твердые отходы.
Стоячая вода: Если нет очевидной причины стоячей воды, такой как проливные дожди, возможно, у вас перенасыщено дренажное поле, сломана труба или септическая система.

Медленный слив: Полный септик заставит трубы стекать медленнее.
Кусочки яркой травы: Утечка сточных вод может фактически удобрить траву, заставляя ее расти гуще и зеленее над вашей зараженной зоной.
Дополнение к дому: Пристройка к вашему дому или добавление дополнительных жильцов повлияет на септическую систему. Убедитесь, что ваш септик может справиться с любыми дополнениями.
Загрязнение близлежащей воды: Утечка из септика может привести к загрязнению сточных вод, что может вызвать осаждение нитратов, нитритов или бактерий группы кишечной палочки в источниках воды рядом с вашим домом. Если эти бактерии обнаружены поблизости, проверьте свою септическую систему, чтобы убедиться, что они не являются источником.
Старость : Если срок службы вашего септика подходит к концу, пришло время для нового.
Насос для бака: 800–1500 долларов США ; для септика, расположенного ниже дренажного поля, может потребоваться насос для подачи сточных вод в дренажное поле.
Стоимость прокачки: 300–600 долл. США ; даже правильно функционирующую систему необходимо будет откачивать каждые три-пять лет для удаления твердых отходов.
Крышка бака: 100–300 долл. США для покупки и установки; вы потратите только 50–150 долларов на покупку крышки и надевание ее на себя.
Стояки крышки бака: 300–1000 долларов США ; они поднимают крышку до уровня поверхности для глубоко заглубленных резервуаров.
Initial inspection: $250–$500
Annual inspection: $100–$150
Camera inspection: $250–$900
Cooking grease or oil
Baby wipes or wet wipes
Dental floss
Diapers
Feminine hygiene products
Cigarettes
Cat litter
Бумажные полотенца
Никогда не паркуйтесь и не ездите по дренажному полю.
Никогда не сажайте деревья на дренажном поле.
Держите водостоки, водоотливные насосы и другие дренажные системы подальше от дренажного поля.
При цене около от 3000 до 10 000 долларов замена резервуара обходится значительно дешевле, чем установка совершенно новой системы, поскольку отсутствуют затраты на земляные работы. Если вам нужно заменить весь бак, вам нужно знать о некоторых расходах. Например, вам нужно сначала откачать и очистить резервуар, чтобы удалить все оставшиеся отходы. Откачка септика стоит в среднем 420 долларов , а последующая очистка стоит дополнительно от 100 до 800 долларов , в зависимости от размера резервуара.
Когда система начинает давать сбои, она может треснуть или подвергнуться коррозии, в результате чего отходы попадут в грунтовые воды. При этом может загрязниться колодезная вода, заболочиться двор, перестать работать септик. Here’s a rundown of specific septic tank parts and their average prices:
, когда вы замените вашу систему, консультируйте вашу систему, консультируйте вашу систему, консультируйте вашу систему, консультируйте вашу систему, консультируйте вашу систему, консультируйте вашу систему, консультируйте вашу систему, консультируйте вашу систему, консультируйте вашу систему, и консультируйте вашу систему, консультируйте вашу систему, консультируйте вашу систему.
затраты на переход на более эффективную аэробную систему.
Сделай сам или найм септической системы Pro
Установка септической системы — сложный процесс. Неправильно установленный блок может привести к загрязнению воды, повреждению дома и дорогостоящему ремонту. Кроме того, несанкционированная установка может затруднить продажу и страхование дома. Обязательно побеседуйте как минимум с тремя профессионалами, прежде чем выбрать кого-то. Для оценки вашего проекта свяжитесь с местным установщиком септиков сегодня.
Остались вопросы о септиках?
Почтовый индекс
Спросите профессионалаЧасто задаваемые вопросы
Сколько лет служит септик?
В зависимости от некоторых элементов септик обычно служит от 14 до 40 лет .
Какие признаки того, что мне нужен новый септик?
Есть несколько признаков того, что вам следует приобрести новый септик. К ним относятся:
Сколько стоит ремонт септика?
Стоимость ремонта септика от 650 до 3000 долларов у специалиста по ремонту септических систем рядом с вами.
Ремонт резервуаров обычно стоит менее 1500 долларов США для каждого типа ремонта или детали (перечислены ниже), в то время как поля выщелачивания стоят от 2000 до 20 000 долларов США.
Как обслуживать септическую систему?
Регулярно проверяйте и откачивайте свой септик, и это разумная идея — одновременно очищать и осматривать резервуар.
Очистка септика стоит от от 100 до 800 долларов , а проверка септика стоит от 200 до 900 долларов . Your septic inspector will visually examine the system but can also use special equipment for more thorough examinations:
Убедитесь, что вы используете воду эффективно, ремонтируйте протекающие краны и туалеты, а также используйте водосберегающие приборы, чтобы уменьшить количество сточных вод и их нагрузку на вашу канализационную систему. Еще один ключевой способ позаботиться о вашей септической системе — никогда не смывать ничего, кроме человеческих отходов и туалетной бумаги. Общие несмываемые преступники, вызывающие проблемы, включают:
Также важно поддерживать дренажное поле в хорошем состоянии.
Ваше дренажное поле является частью вашей септической системы, которая удаляет отходы из септической жидкости. Принять меры по его поддержанию, в том числе:
Может ли у вас быть септик без промывочного поля?
Вам нужно поле для выщелачивания с септической системой, иначе неочищенные сточные воды могут вылиться и загрязнить вашу землю и воду. Тем не менее, вы можете выбрать тип септической системы, который лучше всего подходит для вашей собственности, если традиционное поле выщелачивания не подходит, например, если ваш уровень грунтовых вод слишком высок.
В этом случае вам понадобится альтернатива, утвержденная вашим местным муниципалитетом. Одним из наиболее распространенных вариантов является насыпная септическая система, в которой поле выщелачивания помещается в большую насыпь из песка над землей вместо того, чтобы располагать резервуар и поле выщелачивания под землей.





Это в первую очередь обусловлено тем, что разгрузка колец будет проводиться при помощи крана, так почему не выгружать их непосредственно в котлован и не платить дважды за услуги крановщика.
Частая откачка осевших фракций потянет дополнительные расходы на услуги ассенизатора и запуск новых бактерий.