как сделать расчет гипсокартона, продумать конструкцию, какой крепеж лучше использовать, особенности устройства и монтажа двухуровневых потолков
Содержание статьи:
Работы с гипсокартонными листами (в сокращении «ГКЛ») требуют очень грамотного подхода, поскольку кажущееся на первый взгляд простым устройство ГКЛ потолка при неправильно организованных работах впоследствии может привести к плачевным результатам. Именно поэтому о том, как правильно монтировать потолок из ГКЛ своими руками, а также о том, как крепить ГКЛ к потолку далее и пойдет речь.
Характеристики гипсокартонных потолков
В том случае, если поверхность потолка далеко не самая ровная, работы по его выравниванию потребуют довольного серьезных затрат не только физических сил, но и финансовых средств.
Однако монтаж потолка из ГКЛ вполне может избавить от подобных проблем и сэкономит не только деньги, но и время, потраченное на работы.
Более того, устройство подвесного потолка из ГКЛ позволяет также разместить в нем многочисленные системы коммуникаций, а также балки, трубы и иные предметы. Также конструкции из ГКЛ обладают хорошими звуко- и гидроизоляционными свойствами.
Однако подобный материал, как и любой другой, имеет и некоторые отрицательные стороны:
- устройство подвесных потолков из ГКЛ не рекомендуется выполнять в малых по размеру квартирах с низким потолком, так как гипсокартонная конструкция обязательно отнимет еще около 10 – 15 сантиметров высоты;
- даже такой потолок требует проведения малярных работ. Гипсокартонные листы в любом случае придется обрабатывать грунтовкой и шпаклевкой, в особенности швы, образовавшиеся в результате стыков.
Тем не менее, эти недостатки нельзя назвать настолько весомыми, чтобы из-за них отказываться от установки такого практичного и качественного материала, как гипсокартон.
Перед процессом монтажа потолка из гипсокартона своими руками важно выполнить расчет ГКЛ на потолок, выполнить всю необходимую разметку и, конечно же, приобрести нужное количество материала.
Так, монтаж подвесного потолка из ГКЛ и все связанные с ним особенности установки зависят, в первую очередь, от помещения, в котором планируется создать такую конструкцию. В том случае, если ремонту подлежит детская комната, гостиная или спальня, то применить можно стандартный гипсокартон. Однако при работе во влажных помещениях рекомендуется использовать влагостойкий материал. Огнеупорный гипсокартон же крайне необходим для гостиной, в которой есть камин.
Иногда можно встретить и универсальные образцы, то есть материал устойчивый и к влаге, и к огню. При желании придать потолку максимальную прочность можно воспользоваться гипсоволокнистыми листами, показатели прочности которых являются очень высокими.
Считается, что такой материал лучше всего подходит для внутренней отделки мансардных помещений.
Кроме потолочного типа, гипсокартон может быть также арочным и стеновым.
Наиболее распространенными производителями отечественного гипсокартона выступают «Лафарж», «Белгипс», «Ригипс», «Волма».
Устройство гипсокартона на потолочную поверхность
Как известно, смонтировать потолок из ГКЛ своими руками вполне реально, важно лишь соблюсти все нормы его установки и тщательно следовать рекомендациям.
Установку листов гипсокартона на потолочную поверхность не рекомендуется выполнять в одиночку. В противном случае без подъемника для листов обойтись не получится.
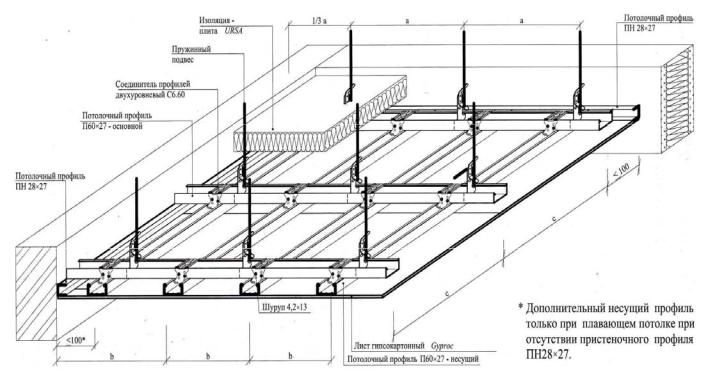
В конструкцию подвесного потолка входит прочный каркас из металла, состоящий из особых профилей, предназначенных для гипсокартона.
Но также необходимо помнить и о специальных ревизионных лючках, благодаря которым можно будет без труда добраться до каждой из коммуникационных систем, расположенных под потолком.
![]()
Крепление металлического каркаса на потолке
Разбираясь с тем, как сделать потолок из ГКЛ, важно понять, как должна крепиться его основа, то есть — металлический каркас. Для этого профили по краям и потолочные петли необходимо прикрутить, а затем на этих профилях зафиксировать несущие профили. Далее необходимо оборудовать крепления соединения и вставить в них те профили, которые идут поперек. Завершается процесс регулированием уровня высоты несущих профилей и креплением к полученной конструкции гипсокартонных листов.
То, какими будут крепежные элементы (шурупы по дереву или забивные дюбеля), зависит, в первую очередь от материала, из которого изготовлены стены. Им может выступать дерево, кирпич или бетон.
Разметка несущих профилей должна выполняться с соблюдением шага, равного половине гипсокартонного листа. Затем по нанесенным линиям следует фиксировать фурнитурные петли с шагом, равным 60 сантиметрам.
Закрепленная к потолку и выставленная по высоте фурнитура поможет уберечь каркас от прогибов в центре.
Несущие профили необходимо завести в крайние с сохранением интервала в 120 сантиметров, а затем закрепить их. Строительный уровень при этом поможет выровнять конструкцию.
Через каждые 30 сантиметров профили нужно оснастить соединительными фиксаторами, предназначенными для дополнительного поперечного потолочного профиля. Затем нужно установить и закрепить идущие поперек профили при помощи соединительных деталей, ушки которых следует отогнуть вокруг несущего и поперечного профилей. Завершается процесс установки креплением саморезов в эти ушки.
Делая вывод из всего вышесказанного, можно отметить, что установка такого элемента конструкции из гипсокартона на потолке, как подвес для ГКЛ, требует наличия некоторых навыков строительного мастерства.Фиксация листов гипсокартона
Потребуются следующие инструменты:
- электрическая дрель по типу шуруповерта, оснащенная ограничителем.
С его помощью глубину сверления можно будет регулировать, благодаря чему пропадет риск деформации гипсокартонных листов; - подъемник листов материала (при работе в одиночку).
Непосредственно крепеж для ГКЛ выполняется следующим образом:
- Края листов требуется подрезать, чтобы шпаклевание стыков прошло более удобно.
- Карандашом необходимо отметить места, где должны располагаться поперечные профили.
- Дополнительную защиту от влаги гипсокартонным листам придаст их обработка с внешней стороны особой грунтовкой. По окончании установки ей же рекомендуется обработать и обратную, внутреннюю сторону.
- При установке важно соблюсти некоторый отступ материала от стены. Делается это для того, чтобы обеспечить конструкции постоянный приток воздуха.
- Крепление листов выполняется к каждому из проложенных профилей при помощи саморезов по металлу с шагом 15 – 20 сантиметров.

- При возникновении необходимости отрезать часть материала, делать это нужно с наружной стороны с помощью монтажного ножа на глубину, не превышающую 1 – 2 миллиметров. Затем следует просто надломать и окончательно дорезать материал с другой стороны.
- Не стоит слишком сильно вдавливать шляпки саморезов внутрь материала, но и оставлять их торчащими над поверхностью также, разумеется, не следует. Они должны прилегать к материалу плотно, но не должны прорывать картон.
- Промежуток между закрепленными листами должен составлять примерно 2 – 3 миллиметра, чтобы впоследствии образовавшиеся швы можно было заделать при помощи смеси на основе гипса.
Укладывая листы гипсокартона, важно делать это аккуратно, поскольку материал достаточно хрупкий.
При желании можно сделать так, чтобы все трубы и коммуникации были спрятаны под потолком. Более того, короб потолка может также сыграть роль основы для камина, шкафа или гардеробной комнаты.
Часто можно встретить и потолки из ГКЛ с подсветкой. Конструкция легко впишется в интерьер, выполненный в абсолютно любом стиле, будь то прованс, хай-тек и пр.
Этапы работы по закреплению короба
Принято считать, что все работы по закреплению короба из гипсокартона включают в себя 4 этапа:
- Разработка проекта потолка из гипсокартона.
- Установка металлического каркаса.
- Фиксация к полученному каркасу гипсокартонных листов.
- Завершающая отделка конструкции.
Прежде чем начинать монтажные работы, важно тщательно выполнить всю необходимую разметку и изобразить желаемый результат всей работы на бумаге.
Чтобы выполнить установку каркаса по разметке, требуется зафиксировать профили направляющего и стоечного типов. Направляющие профили, на которые опираются стоечные, определяют периметр сооружения.
Эта работа характерна наличием некоторых особенностей:
- обязательно нужно проверить, надежно ли короб закреплен к основанию.
В первую очередь это касается тех конструкций, которые будут служить местом фиксации вентиляции; - чтобы профили имели одну высоту, правильность их установки постоянно нужно проверять с помощью строительного уровня.
Далее должен следовать процесс фиксации листов гипсокартона. Как уже говорилось ранее, важно, чтобы шляпки крепежных саморезов не выступали над поверхностью материала, в противном случае при отделке всей конструкции могут возникнуть проблемы.
За монтажом гипсокартона следует грунтовка всей поверхности, ее шпаклевание, а также завершающая отделка.
Правильная покраска потолка
Завершающая отделка потолка из гипсокартона заключается в его покраске.
Следует помнить, что собственноручная покраска потолка позволит сэкономить значительную часть финансовых средств, поскольку подобные малярные работы, выполняемые профессиональными рабочими, стоят недешево.
Для начала следует подготовить потолочную поверхность. Этот этап включает в себя несколько процедур:
- грунтовка потолка;
- обработка швов при помощи шпаклевочной смеси;
- шпаклевка поверхности потолка;
- финишная зачистка.
Покраска гипсокартона может быть выполнена такими видами краски:
- Наиболее популярный вариант – это краска на водоэмульсионной основе.
- Нередко покраска гипсокартона осуществляется также воднодисперсионными красками, которые представляют собой суспензию гименов, наполнителей и добавок в водной полимерной дисперсии.
- Эмалевые краски, которые тоже подходят для покраски гипсокартонного потолка.

Важно помнить: окрашивать гипсокартон при помощи масляных красок нельзя.
Для покраски потребуются такие материалы и инструменты:
- краска;
- защитные очки и перчатки;
- стремянка;
- лоток, предназначенный для малярных работ и разные по ширине кисти;
- применяемый в строительстве миксер;
- длинношерстный валик;
- ванночка или сеточка для малярных работ.
Рекомендации по покраске:
- Краску следует заранее подготовить, разбавив ее или просто перемешав строительным миксером.
- При помощи маленькой кисти нужно окрасить углы, не задевая при этом поверхности стен. Потолочный угол необходимо покрасить по его периметру, а затем повторить эту же процедуру при помощи маленького валика. Эта мера предотвращает возможный контакт краски со стеной.

- Окунать валик в краску нужно полностью для того, чтобы раствор распределялся на нем равномерно.
- Лучшему распределению краски на валике поспособствует его раскатывание в специальной ванночке. Такую процедуру нужно будет выполнять на протяжении всех покрасочных работ.
- Окрашивая потолок, валик нужно двигать строго в одном направлении, а каждый следующий слой наносить перпендикулярно предыдущего.
При желании потолок также можно оснастить плинтусом, но делать это нужно только по окончании покрасочных работ.
Стоит еще раз отметить, что обшивка потолка гипсокартоном – это надежный способ не только придать потолку эстетичный внешний вид, но и выровнять его поверхность.
Потолки из гипсокартона своими руками: инструкция
Гипсокартоном большинство строителей пользуется во время выполнения строительных и ремонтных работ с большим удовольствием, ведь этот материал намного упрощает рабочий процесс.
Благодаря удобству монтажа, его часто применяют и для изготовления потолков, причем многие домашние мастера справляются с этой задачей самостоятельно. Рассмотрим, в чем преимущества такого материала, и как смонтировать потолок своими руками.
Потолки из гипсокартона своими руками
Преимущества подвесных потолков
Популярность подвесных потолков обусловлена, прежде всего, привлекательным видом и возможностью создавать многоуровневые конструкции разнообразного дизайна. Но есть у них и другие достоинства.
- Под перекрытием скрываются инженерные коммуникации. Кабели электрической проводки, вентиляционные и отопительные каналы намного проще закрывать гипсокартонными потолками, чем штробить бетонные или кирпичные поверхности. Кроме того, есть беспрепятственный доступ ко всем элементам, что значительно облегчает их ремонт и периодический технический осмотр.
Подвесной потолок скрывает все коммуникационные системы
- Быстрота установки.
По скорости установки подвесные потолки намного опережают все используемые традиционные технологии. Два мастера за один рабочий день могут отделать потолок площадью не менее 20 м2, ни одна иная технология не обеспечивает такую производительность труда.Монтаж гипсокартона не требует много времени
- Идеально ровная поверхность. Добиться таких показателей с использованием цементно-песчаных растворов могут только очень опытные и добросовестные строители.
Гипсокартон обеспечивает идеальную ровность потолочной поверхности
- Технологичность. Плиты легко режутся, немного изгибаются, они готовы к использованию, не требуют предварительной подготовки. Могут храниться длительный период времени, не создают проблем при транспортировке.
Материал легко поддается резке
Еще одним плюсом является относительно низкая стоимость материала. Если принимать во внимание все затраты по отделке потолков с использованием гипсокартонных плит и традиционных строительных материалов, то первый вариант обойдется дешевле.
Имеет гипсокартон и недостатки, их не очень много, но они существенные.
- Невысокая механическая прочность. Мы имеем в виду обыкновенные дешевые гипсокартонные плиты, а не материалы, изготовленные с использованием цемента или специальных армирующих добавок. Прочность гипсокартона самая низкая из всех стройматериалов, применяемых для отделки потолков и стен.
- Отрицательная реакция на высокую влажность. Не стоит надеяться, что так называемые влагоустойчивые плиты можно применять в сложных условиях. Если вас затопил сосед сверху, то гипсокартонный потолок в большинстве случаев придется менять. Что касается обыкновенных плит, то они крайне негативно реагируют на увеличение параметров влажности.
При переувлажнении или механическом воздействии гипсокартонные потолки могут дать трещину
Устройство потолков
Это довольно сложные конструкции с инженерной точки зрения, и состоят они из нескольких элементов.
Таблица.
Составляющие подвесного потолка
| Наименование элемента | Назначение и краткое описание |
|---|---|
Крепежные и соединительные элементы | В зависимости от материала изготовления потолков и максимальных расчетных нагрузок для фиксации могут использоваться металлические или пластиковые анкеры, саморезы или дюбели. Между собой профили соединяются крабами. |
Подвесы | Применяются для выравнивания по плоскости и фиксации к потолкам профилей. Изготавливаются из перфорированных оцинкованных металлических пластин, могут быть прямыми и универсальными. Выбор делается мастером на месте с учетом физических характеристик потолков и типа подвесных конструкций. |
Направляющие и основные профили | Основные отличаются от направляющих линейными размерами и толщиной профиля, могут выдерживать различные нагрузки. Во время выбора марки профиля надо принимать во внимание максимальные усилия, тип гипсокартонных плит, назначение и условия эксплуатации помещения. Для увеличения показателей жесткости на профилях изменяется геометрия поверхностей, делаются дополнительные выступы и углубления и т. д. |
Гипсокартонные листы | Финишный слой отделки потолков, могут иметь различную толщину и физические характеристики. В некоторых помещениях рекомендуется использовать влагоустойчивые варианты. |
Виды гипсокартонных плит
В настоящее время промышленность освоила выпуск нескольких типов плит с различными физическими параметрами и эксплуатационными характеристиками. Перед принятием окончательного решения по выбору материалов следует ознакомиться с их описанием, такие знания помогут сделать оптимальный выбор и снизить сметную стоимость потолка.
- ГКЛ. Обыкновенный лист, самый дешевый и самый низкокачественный материал. Толщина от 9,5 мм, часто применяется именно для отделки потолков.
Стандартный гипсокартон
- ГКЛО. Может относительно длительное время противостоять открытому горению.
Рекомендуется использовать в производственных помещениях во время строительства различных вентиляционных шахт.Огнестойкий гипсокартон
- ГКЛВ. Считается влагоустойчивым материалом, Может непродолжительное время работать в условиях повышенной влажности воздуха. Прямой контакт с водой запрещается.
Влагостойкие плиты отличаются зеленым оттенком поверхности
- ГКЛВО. Самые дорогие листы с повышенной огне- и влагоустойчивостью. Специального назначения, по стоимости значительно превышают все вышеописанные виды материалов.
ГКЛВО тоже зеленый, но с маркировкой красного, а не синего цвета, как у ГКЛВ
В реализации есть более прочные гипсоволокнистые листы, для увеличения физических параметров которых в состав добавляются волокнистые армирующие наполнители. Окончательный выбор материала должен учитывать конкретные условия эксплуатации потолков.
Цены на гипсокартон и листовые материалы
Гипсокартон и листовые материалы
Пошаговая инструкция монтажа
Для проведения работ надо иметь довольно мощный перфоратор (придется сверлить большое количество отверстий в бетонном перекрытии), ножницы по металлу, ножовку или болгарку, водяной или лазерный уровень, монтажный нож и измерительные инструменты.
Мы рассмотрим пример самой простой конструкции – потолки ровные без перепадов по высоте и монтажа декоративных осветительных приборов.
Для монтажа понадобится полный набор инструментов
Цены на популярные модели перфораторов
Перфораторы
Монтаж потолочного каркаса
Шаг 1. Сделайте по стенам разметку горизонтали. Работать лучше лазерным уровнем, но если его у вас нет, то можно пользоваться обыкновенным водяным инструментом и отбивочной веревкой с синькой. По этим линиям будет фиксироваться направляющий профиль. На потолке надо разметить линии, по которым крепятся подвесы.
Разметка с помощью лазерного уровня будет наиболее точной
Цены на лазерные уровни
Лазерный уровень
Как работать с водяным уровнем?
- Под потолком на стене сделайте крестообразную метку, это будет стартовая точка.
- Проверьте состояние водяного уровня. В шлангах должны отсутствовать воздушные пробки. Вода в стеклянных колбах должна занимать не более половины объема.
Проверьте работоспособность инструмента: приставьте колбы друг к другу, уровень жидкости должен быть абсолютно одинаковым. Если это не так – ищите и удаляйте воздух. - Прислоните стеклянную колбу к начальной метке, помощник с другой колбой должен стоять у стены, на которой делается новая метка.
- Пусть он медленно приподнимает или опускает колбу, а вы наблюдайте за уровнем жидкости. Она будет подниматься/опускаться, надо поймать момент, когда вода расположится точно по метке.
- Помощник должен сделать метку расположения своего уровня воды.
Для разметки водяным уровнем требуется помощник
По такому алгоритму надо нарисовать минимум две метки на каждой стене, а потом соединить их отбивочной веревкой. Лазерным уровнем работать проще. После его установки можно фиксировать профили к стенам по линиям луча.
Важно. Уровень потолка из гипсокартона должен располагаться на расстоянии не менее 4 см от самой низкой точки. Это пространство нужно для установки металлических конструкций.
Если под потолком располагаются габаритные инженерные системы, то свободное пространство увеличивается на их размеры.
Для гарантии проверьте расположение плоскости в нескольких точках помещения, нигде не должно быть менее четырех сантиметров. Пользуйтесь рулеткой или линейкой. Это, кстати, один из недостатков потолков из гипсокартона — они уменьшают высоту помещений минимум на 4 см.
Расстояние от чернового потолка до финишного не должен быть меньше 4 см
Шаг 2. Если использовать лазер длительный период времени по каким-либо причинам невозможно, то при помощи малярного шнура отбейте сплошные линии.
Намечают уровень потолка мелованным шнуром
Шаг 3. На одинаковом расстоянии друг от друга на потолке отбейте линии установки подвесов. Шаг зависит от толщины гипсокартонных плит, на практике рекомендуется не более 40–50 см. Чем меньше шаг, тем прочнее потолок, тем меньше вероятность его деформации.
На самом потолке намечают линии для крепления подвесов
Шаг 4.
По горизонтальным меткам на стенах зафиксируйте прочный удерживающий профиль. Метизы прикручиваются с шагом примерно 25–30 см, вид крепежа зависит от материалов изготовления межкомнатных перемычек и фасадных стен. Есть случаи, когда в одном помещении надо применять металлические дюбели для сплошного бетона и саморезы по дереву. Хуже всего ситуация, когда межкомнатные перегородки сделаны также из гипсокартонных плит. Надо использовать специальные дюбели, но и они не гарантируют надлежащей прочности. Профессиональные строители рекомендуют монтировать металлические планки, это долго и трудно, не все строители соглашаются на выполнения таких мероприятий.
По периметру стен прикручивают профиль для гипсокартона
Шаг 5. К потолочному перекрытию прикрепите подвесы с шагом примерно 40–50 см. Для каждого требуется два метиза, если потолки бетонные, то придется использовать пластиковые дюбели.
Монтируют каркас из профилей и прикручивают к потолку подвесы
Шаг 6.
Прикрепите профили к подвесам. Работать надо внимательно, выбирать такое отверстие, чтобы саморез располагался как можно ближе к центру профиля.
Прикручивают профили к подвесам
Важно. Во время фиксации не допускайте искривления плоскости конструкции. Самый доступный метод – контролируйте положение по натянутой шнурке.
Шаг 7. Если по ровному гипсокартонному потолку будут дополнительно монтироваться различные конструкции, то в этих местах надо планировать более прочный каркас. Как мы выше упоминали, гипсокартон не отличается высокими значениями физической прочности и может прогибаться под собственным весом. По возможности устанавливайте подвесы с запасом несущих возможностей.
Усиливают каркас перемычками в местах повышенной нагрузки
В нашем примере дополнительную конструкцию надо делать около окна в месте фиксации штор, по центру комнаты под установку светильника и с противоположной стороны для встроенного шкафа.
На этом работы по монтажу металлических удерживающих профилей закончены, можно начинать прикручивать гипсокартонные плиты.
Правила раскроя гипсокартона
Монтаж плит
Работать надо вдвоем с помощником, это не только облегчает процесс, но и делает его безопасным и быстрым. Профессионалы имеют специальный механизм для поднимания и фиксации плит, все остальные работают руками.
Шаг 1. Для удобства установки новичкам рекомендуется обозначить места вкручивания саморезов линиями, отбейте их веревкой. Если вы правильно смонтировали несущую конструкцию, то на замеры уйдет минимальное количество времени. Не забывайте, что стыки между плитами должны в обязательном порядке прикручиваться, а не оставляться свободными без фиксации.
Прямо на листе намечают линии крепления к профилям
Шаг 2. По очереди поднимайте листы и крепите на потолке. Саморезы закручивайте аккуратно. Если усилия будут очень большими, то шляпки метизов проделают в гипсе сквозные отверстия.
В таком случае надо использовать новый метиз и фиксировать его с учетом допущенных ошибок.
Каждый лист прикручивают по периметру и по линиям прохождения профилей
Практический совет. Если вам сложно фиксировать стыки из-за небольшой ширины свободного технологического пространства, то можно в этих местах ставить дополнительные перемычки. За счет этого упростится процесс фиксации и повысится общая прочность конструкции.
Шаг 3. После того как все гипсокартонные плиты установлены на свои места, можно приступать к шпаклевке стыков и мест прикручивания. Работать несложно, ровные поверхности плит намного облегчают процесс.
Швы на потолке и места вкручивания саморезов нужно зашпаклевать
Цены на популярные виды шпатлевки
Шпатлевки
Стыки надо визуально осмотреть на наличие трещин и заломов краев гипсокартонных плит. Если такие проблемы есть, то придется швы очистить от потерявшего целостность материала, а шпаклевку делать с применением армирующей ленты.
После застывания раствора поверхности ровняются шлифовальными шкурками и готовятся под покраску.
Как правильно шпаклевать стыки
Универсальные советы
Вне зависимости от особенностей конструкций и типов используемых материалов нужно выполнять универсальные рекомендации.
- Стыки листов вне зависимости от их длины обязательно должны располагаться только на металлических профилях. Если его в данном месте нет, то надо приостановить фиксацию плит и прикрутить в нужном месте дополнительную перемычку. Не надо надеяться, что небольшие по длине примыкания могут оставаться незафиксированными, гипсокартонные плиты обязательно под собственным весом провиснут. Степень деформации зависит только от времени. Как следствие – требуется сложный ремонт, необходимо демонтировать несколько смежных листов и вносить изменения в расположение профилей.
Все стыки должны располагаться на металлических профилях
- Гипсокартон должен акклиматизироваться в помещениях. Для этого нужно несколько дней, за это время должна уравняться температура и влажность материалов.

Гипсокартон нужно занести в помещение и оставить на несколько дней для акклиматизации
- Около стен стыки шпаклевать не надо, они позволяют компенсировать изменения линейных размеров потолка, возникающие из-за колебаний температуры в помещении. А чтобы скрыть эти небольшие зазоры, можно использовать потолочный плинтус.
Зазор по периметру потолка лучше закрыть декоративным багетом
Если все работы делать с учетом требований строительных норм и правил, а во время эксплуатации не допускать механических повреждений поверхностей, то такие потолки будут служить несколько десятилетий.
Видео — Потолки из гипсокартона своими руками
Потолки из гипсокартона – отличное решение для различных помещений, и не только жилых.
Есть много вариантов их исполнения, они бывают простыми или многоуровневыми. Дизайнеры настоятельно рекомендуют монтировать их в кухнях без верхних шкафов. Как делать такую кухню, подробно описано на страницах нашего сайта.
Как сделать потолок из гипсокартона своими руками
1. Приготовьте материалы
- Гипсокартон 12,5 мм;
- профили ПП 60×27;
- профили ПН 28×27;
- удлинители профилей;
- соединители одноуровневые;
- прямые подвесы;
- шурупы 3,5×9 мм;
- шурупы 3,5×25 мм;
- дюбель‑гвозди 6×40 мм;
- анкер‑клин 6×40 мм;
- армирующая лента;
- грунтовка;
- шпаклёвка;
- гидроуровень или лазерный уровень;
- пузырьковый уровень;
- отбивочный шнур;
- ножницы по металлу;
- шуруповёрт;
- перфоратор;
- нож для гипсокартона;
- рубанок;
- кисть;
- шпатель.
2. Рассчитайте положение подвесного потолка
YouTube‑канал «Парни из камня»Первым делом необходимо определить, на каком уровне будет располагаться потолок.
Для этого нужно найти самую низкую точку перекрытия, добавить к ней толщину каркаса.
Используя гидроуровень, сделайте в одном из углов отметку на произвольной высоте, а затем поочерёдно перенесите её на остальные. При наличии лазерного уровня просто включите его и пометьте положение горизонта в каждом из углов.
Соедините все риски в одну линию по периметру комнаты с помощью отбивочного шнура. Измерьте расстояние от опорной линии до перекрытия в углах и нескольких местах по каждой из стен. Самое маленькое расстояние и покажет низшую точку.
Если нет нужды специально опускать потолок, то отметьте вниз от найденной точки 40 мм: 30 на толщину каркаса и ещё 10 — на зазор для монтажа. При установке больших встроенных светильников добавьте высоту, на которую они будут выступать за пределы каркаса.
В нашем примере низшая точка — 1 640 мм. Опускаемся от неё на 40 мм и получаем уровень потолка на расстоянии 1 600 мм от опорной линии.
3. Сделайте разметку каркаса
YouTube‑канал «Парни из камня»Для правильной установки нужно точно разметить положение всех элементов каркаса.
Он состоит из смонтированных на стены направляющих, куда устанавливаются основные профили, а те в свою очередь крепятся к перекрытию подвесами. Поперёк основных монтируются несущие профили, на которые непосредственно прикручивается гипсокартон.
- Направляющие профили. Их положение мы уже отметили в предыдущем шаге.
- Основные профили устанавливаются с промежутками 1200 мм по осям. При этом крайние от стен балки располагаются на расстоянии ≤ 1170 мм.
- Подвесы монтируются с шагом 650–1000 мм.
- Несущие профили устанавливаются через каждые 500 мм.
Для примера разметим комнату 3,5 на 3,6 м. Три целых листа чётко перекрывают всю ширину помещения. По длине не хватает 1 м, поэтому в каждый ряд добавим куски 1 × 1,2 м. По технологии монтажа стыки соседних листов должны идти вразбежку, на манер кирпичной кладки. Значит, первый ряд начинаем с целого листа, второй — с куска, а третий — снова с целого.
Отмерьте рулеткой все необходимые промежутки. Поставьте в нужных местах отметки, а затем соедините их в линии с помощью отбивочного шнура. Крепления подвесов распределите таким образом, чтобы между ними было не более 1 м, а лучше меньше.
4. Смонтируйте направляющие профили
YouTube‑канал «КНАУФ Россия»Закрепите по периметру комнаты профили ПН 28×27 так, чтобы их нижняя часть совпадала с отмеченной ранее линией. Если стена бетонная или кирпичная, приложите профиль и отметьте карандашом места крепежа. Затем просверлите перфоратором отверстие, вставьте через профиль дюбель и забейте внутрь гвоздь молотком. К деревянным стенам можно крепить направляющие саморезами с помощью шуруповёрта без предварительного сверления.
При необходимости соединяйте профили встык, без нахлёста друг на друга. Шаг креплений — 250–500 мм, но не менее трёх штук на один кусок профиля.
Для шумоизоляции перед установкой на профили можно наклеить специальную уплотнительную ленту или нанести силиконовый герметик.
5. Закрепите подвесы
YouTube‑канал «КНАУФ Россия»Далее по размеченным ранее точкам установите подвесы для основных профилей каркаса. В железобетонных перекрытиях — с помощью металлических клиновых анкеров и перфоратора, в деревянных — саморезами и шуруповёртом. После монтажа загните подвесы вниз.
Для шумоизоляции на них также можно наклеить уплотнительную ленту или промазать силиконом. Ещё больший эффект достигается при использовании специальных антивибрационных подвесов с эластичными вставками.
6. Установите основные профили каркаса
YouTube‑канал «КНАУФ Россия»Вырежьте необходимые куски из профиля ПП 60×27 и вставьте в направляющие. Расположите их таким образом, чтобы центры балок совпадали с нанесёнными ранее метками.
YouTube‑канал «КНАУФ Россия»Если длины одного профиля не хватает — добавьте дополнительный отрезок и состыкуйте их между собой с помощью специального соединителя.
7. Закрепите основные профили в одной плоскости
YouTube‑канал «Парни из камня»Для получения идеально ровной плоскости под облицовку гипсокартоном нужно выровнять все балки в одну линию.
Проще всего это сделать обычной ниткой.
Приподнимите все профили на 10–15 мм вверх и зафиксируйте, вставив в отверстия подвесов шурупы. Поперёк профилей между стенами натяните нитку и закрепите саморезами на направляющих вровень с последними.
Также правильность установки профилей можно контролировать пузырьковым уровнем / YouTube‑канал «КНАУФ Россия»Начиная с крайнего от стены, по одному освобождайте профили и, выровняв их так, чтобы они едва‑едва касались нитки, закрепляйте четырьмя шурупами 3,5 × 9 мм — по два с каждой стороны.
Сначала зафиксируйте подвесы посередине балок, чтобы убрать провисание. После этого основные профили почти чётко встанут в своё положение. Останется лишь свериться с ниткой и закрутить шурупы в подвесы.
8. Установите несущие профили
YouTube‑канал «КНАУФ Россия»Теперь поперёк основных необходимо смонтировать несущие профили, которые будут удерживать гипсокартон. Нарезайте балки в размер из того же профиля ПП 60 × 27 и крепите с помощью одноуровневых соединителей («крабов»).
Если специальной фурнитуры под рукой нет, можно использовать обрезки ПН‑профиля длиной около 100 мм в качестве импровизированных направляющих. Их нужно прикрепить к основным профилям шурупами, а уже в них вставить несущие и тоже зафиксировать саморезами.
9. Смонтируйте проводку и шумоизоляцию
Electroas.ruПеред облицовкой каркаса гипсокартоном нужно проложить электрические кабели. Как правило, их крепят к перекрытию или подвесам. Укладывать провода внутри каркаса ни в коем случае нельзя, поскольку есть риск повредить их шурупами при монтаже листов.
YouTube‑канал «КНАУФ Россия»Для повышения звукоизоляции потолка между профилями каркаса или поверх него укладывают плиты минеральной ваты. При достаточной длине свободных концов подвесов их загибают, удерживая тем самым слой шумоизоляции.
10. Раскроите листы
YouTube‑канал «КНАУФ Россия»Для раскроя панелей отмечайте нужный размер рулеткой и, прикладывая профиль или правило, прорезайте картон ножом.
Вывешивайте и надламывайте отрезанную часть, а затем просекайте бумагу с нижней стороны. После подровняйте рубанком кромку по линии отреза.
Также перед монтажом не забудьте снять рубанком или ножом фаски под углом 22,5° на краях, которые будут примыкать к другим листам. Это нужно, чтобы в дальнейшем качественно заделать стыки шпаклёвкой.
Обязательно отмерьте и обозначьте на листах места, где находятся провода освещения. После окончания работ гипсокартон можно будет легко прорезать и достать кабели.
11. Облицуйте каркас гипсокартоном
YouTube‑канал «КНАУФ Россия»Вдвоём с помощником поднимите лист и установите на своё место. Закрепите по контуру ко всем профилям каркаса. Листы в одном ряду стыкуйте только на несущих профилях, не допуская чтобы края гипсокартона висели в воздухе. Плиты в смежных рядах монтируйте со смещением не менее, чем на шаг каркаса.
knauf.ruШурупы заворачивайте ровно, не допуская перекосов. Не оставляйте их шляпки торчащими над поверхностью листа, но и не утапливайте слишком сильно: они должны быть вровень с плоскостью гипсокартона или на 1 мм ниже.
Крепите шурупы с шагом 150 мм, отступая от оклеенных бумагой краёв на 10 мм, а от открытых — на 15 мм. Саморезы на соседних листах смещайте относительно друг друга на 10 мм.
12. Заделайте стыки
YouTube‑канал «КНАУФ Россия»По окончании монтажа все стыки листов покрываются шпаклёвкой с использованием армирующей ленты. Для этого сначала убедитесь в надёжности крепления шурупов и при необходимости докрутите выступающие головки отвёрткой.
Затем кисточкой смахните пыль в стыках листов и обработайте грунтовкой все обрезанные края. Заполните швы шпаклёвкой с помощью шпателя. Приклейте по центру стыка армирующую ленту и вдавите её шпателем. Следом нанесите второй слой шпаклёвки. Тем же составом заделайте места крепления всех саморезов.
13. Выполните отделку
YouTube‑канал «КНАУФ Россия»После заделки швов облицованная поверхность готова для любого вида финишной отделки: потолок можно окрасить, оклеить обоями или нанести декоративную шпаклёвку.
Читайте также 🛠🛠🛠
Монтаж гипсокартона на потолок своими руками
Итак, Вы определились с тем, как будет выглядеть Ваша квартира.
Теперь необходимо подготовиться к тому, чтобы осуществить монтаж гипсокартона на потолок. Сделать это можно собственноручно, не прибегая к помощи профессионалов. Однако для этого потребуется не только ГКЛ, но и множество инструментов и материалов. Для начала определимся с инструментом. Подготовьте:
- дрель;
- шуруповерт;
- ножницы по металлу;
- нож для ГКЛ;
- шпатель;
- молоток;
- наждачная бумага;
- валик и кисти;
- строительный уровень;
- рулетку;
- карандаш.
Из материалов потребуются два вида профилей (UD и CD), одноуровневые соединители («крабы»), вертикальные подвесы (или анкерный подвес с зажимом), шурупы и дюбели. Такого набора вам будет достаточно, чтобы своими руками осуществить монтаж гипсокартона на потолок.
Особенности монтажа, которые следует знать
Подвесные конструкции пользуются особой популярностью, поскольку лучше всего маскируют неровности. Они не требуют заделки трещин, отчего работа по установке гипсокартона на потолок своими руками проходит быстро.
Но стоит учитывать некоторые нюансы. Во-первых, высоту потолков в доме. Многие типовые постройки не позволяют слишком низко опускать каркас. А это делает невозможным создание многоуровневых потолков.
Во-вторых, обратите внимание на расстояние, на котором будет осуществляться монтаж ГКЛ на потолок. От этого зависит, какие материалы будут применяться. Для крепления профилей на высоте до 12 см используют подвесы. Если же сооружение необходимо опустить значительно ниже, то в ход идут анкерные подвесы с зажимом, которые позволяют крепить профили даже в метре от уровня потолка.
Схема монтажа каркаса для гипсокартонного потолка
ГКЛ не любит влагу. Подвесные потолки в кухне или ванной комнате должны выполняться из влагостойких листов. Но даже их в случае затопления соседями придется демонтировать и заменять.
К содержанию↑Подготовка и расчет проекта по установке потолка из гипсокартона
Если вы правильно спланируете и рассчитаете проект, то не только сэкономите деньги на закупке материалов, но и с легкостью потом ответите на вопросы друзей и родственников, как монтировать гипсокартон на потолок.
Для создания дизайн-проекта вам потребуется перенести на бумагу точную копию помещения в уменьшенном масштабе. Отметьте места прохождения коммуникаций, если таковые имеются. Это позволит Вам рассчитать необходимое количество материалов и изобразить схему расположения ГКЛ.
Для простоты расчетов Вы можете воспользоваться нашей таблицей. Она показывает средний расход материалов на 1 кв. м. потолка.
| Наименование | Расход |
|---|---|
| Профиль ПП 60х27 | 2,9 пог. м. |
| Профиль ПН 28х27 | Соответствует периметру комнаты |
| Лента уплотнительная (30 мм) | Соответствует периметру комнаты |
| Соединитель одноуровневый для профилей ПП («краб») | 1,7 шт |
| Удлинитель профилей ПП 60х27 | 0,2 шт |
| Подвес вертикальный | 0,7 шт |
| Дюбель анкерный | 0,7 шт |
| Дюбель для крепления профилей ПН 28х27 | 3 шт |
| Шуруп TN 25 | 23 шт |
| Лента армирующая | 1,2 пог м |
Проработка проекта потолка позволит точно оценить необходимое количество стройматериалов, а также избежать ошибок при сооружении каркаса.
Ведь от его качества зависит простота укладки гипсокартона на потолок.
Правила разметки основания
Первым делом на стены наносится разметка, по которой в будущем будет проходить направляющий профиль. Ставится точка, от которой при помощи гидроуровня проводят горизонтальную прямую. Если все было выполнено верно, то конец линии замкнется в ее начале. Для разметки мест крепления подвесов необходимо сделать предварительные расчеты. Они позволят понять, как оптимально прикрепить гипсокартон к потолку.
Разметка основания гидроуровнем
Для разметки необходимо провести ряд параллельных линий на расстоянии 60 см друг от друга. Расстояние от крайних линий до стен должно быть приблизительно равным. По ним будут крепиться несущие профили. Места крепления подвесов для них определяются путем проведения перпендикулярных линий на расстоянии 50 см друг от друга.
В результате у Вас получится сетка с ячейками 50х60 см. В местах их пересечений и крепятся подвесы. Для лучшего понимания можете взглянуть на видео монтажа гипсокартона на потолок.
Установка подвесов для монтажа гипсокартона
Места креплений вертикальных подвесов у нас уже обозначены, поэтому остается лишь выбрать подходящие материалы и правильной их закрепить. Как мы уже говорили, если высота каркаса будет больше 12 см, то необходимо использовать анкерный подвес. Но в нашем случае рассмотрим крепление более распространенных вертикальных подвесов. Именно их использование чаще всего подразумевает технология гипсокартонных потолков.
Каркас потолка с анкерными подвесами
Подвес представляет собой пластину, которая крепится к основанию при помощи трех дюбелей, которые ввинчиваются строго под прямым углом. После чего вниз отгибаются специальные «крылья». Они служат для закрепления несущего профиля. Длина «крыльев» составляет 12 см.
Если профиль будет закреплен на уровне 7-10 см, то после монтажа концы «крыльев» либо отгибают вверх, чтобы они не мешали работе, либо вовсе срезают ножницами по металлу.
Теперь рассмотрим, как установить каркас и гипсокартон на потолок.
К содержанию↑Монтаж профиля
Первым монтируют направляющий профиль (UD). Для этого его прикладывают к линии на стене нижним к раме и при помощи дрели делают отверстия в стене. Крепление дюбелей осуществляют на расстоянии 50 см друг от друга. Необходимо выполнять еще одно условие: технология монтажа гипсокартона на потолок подразумевает под собой использование как минимум трех дюбелей на один профиль.
Затем идет этап крепления каркаса. Для этого обязательно используйте уровень, чтобы каждый несущий потолочный профиль (CD) был зафиксирован идеально ровно. Для крепления ПП к подвесам используют 4 самореза по металлу, по два с каждой стороны. Для крепления перемычек используют соединители «крабы». Если все профили были выставлены горизонтально, то прикрутить гипсокартон к потолку будет легко.
Финальный этап монтажа гипсокартона на потолок
Если Вы следовали нашим советам, то у Вас уже будет план крепления ГКЛ к каркасу. Он позволяет произвести быстрый монтаж и заранее подготовить панели нужных размеров. В большинстве случаев перед установкой некоторые листы необходимо обрезать. Для этого на ГКЛ наносится разметка, а затем при помощи специального ножа делается ровный надрез по линии. Можете использовать для этого металлическую линейку. Главное, чтобы надрез шел строго по линии. После этого проведите ножом несколько раз до тех пор, пока глубина надреза не достигнет 3-4 мм. Теперь положите ГКЛ на край стола и резким движением обломайте лист по надрезу — и можно приступать к монтажу подготовленного гипсокартона на потолок.
Резка гипсокартонных листов
Поднимите и зафиксируйте ГКЛ у каркаса. Попросите кого-нибудь Вам помочь, или используйте специальный подъемник. Теперь при помощи шуруповерта и саморезов с шагом в 15 см прикрепите лист к металлическому каркасу.
Следите за тем, чтобы листы крепились вразбежку друг относительно друга. Шаг крепления должен быть не менее шага несущего профиля. Вот и все премудрости технологии монтажа потолка из гипсокартона, которые Вам необходимо знать для работы в одиночку.
Последний штрих – отделка
Самым распространенным способом отделки подвесных потолков является окрашивание. Однако поверхность необходимо предварительно обработать и подготовить. Для этого используют армирующую ленту и шпаклевку. Все стыки ГКЛ и шапки саморезов шпаклуются, швы дополнительно оклеивают армирующей лентой. Затем наверх наносится выравнивающий слой шпаклевки. После высыхания поверхность выравнивается при помощи наждачной бумаги. В местах соприкосновения ГКЛ с несущими конструкциями (стенами) используется уплотнительная лента, которая наклеивается на поверхность стен до монтажа листов. После заделки всех зазоров шпаклевкой лента обрезается. Это финальный этап монтажа гипсокартона на потолок.
Теперь вы можете обработать поверхность грунтовкой и после ее высыхания нанести вододисперсионную краску.
А какой потолок Вы хотите установить: одноуровневый или двухуровневый? Мы ждем ответов в комментариях под статьей.
Автор статьи
31 год
профессиональный строитель, стаж работы 8 лет
Поделись статьей с друзьями:Отделка потолка гипсокартоном своими руками: материалы, технология, секреты
Что нужно знать для самостоятельной отделки гипсокартоном потолка собственной квартиры? Ответ на этот вопрос можно структурно разложить на несколько частей: материалы, инструменты, технология и нюансы сборки. В этой статье последовательно рассмотрены все эти составляющие части.
На что нужно обратить внимание перед монтажом гипсокартона
Во-первых, в одиночку гипсокартонные потолки никто не собирает. У вас обязательно должен быть напарник. Почему? Да потому что вы не сможете одновременно держать 4-метровый профиль, шуруповёрт и саморез, которым этот профиль надо прикрутить к кронштейну.
Это пример. И таких примеров в процессе работы вы насобираете много, поверьте.
Во-вторых, у вас должен быть чёткий план того, что и как вы собираетесь делать. Хотя бы в голове. Вы должны хорошо знать, сколько и какие материалы у вас должны быть в наличии. Какой нужен инструмент. С какими нюансами вы можете столкнуться в процессе работы.
В-третьих, сразу определитесь, кто и как будет поднимать все материалы к вам в квартиру. Гипсокартон вещь достаточно тяжёлая и крупногабаритная. А не в каждом доме есть грузовые лифты. Поэтому учтите это сразу.
В-четвёртых, если вы впервые будете собирать потолок из гипсокартона своими руками – фото и видео этого процесса вам очень помогут. Найдите пару роликов в интернете и внимательно их посмотрите. Из фото и видео вы сможете почерпнуть много информации о том, как отделать потолок гипсокартоном.
В-пятых, если вы решились делать всё самостоятельно, то действуйте спокойно, уверенно и без спешки. Ничего сверхсложного в сборке потолка нет.
Если вы умеете держать в руке шуруповёрт и при слове «болгарка» вас не начинается трясти, то у вас всё получится. Будьте уверены в себе и верьте в свой успех.
Какие материалы нужны для отделки гипсокартонного потолка?
Потолочный гипсокартон
Потолочные листы отличаются от стеновых листов гипсокартона толщиной и весом. Потолочный лист легче стенового.
Для ванной или туалетной комнаты обязательно используйте влагостойкий гипсокартон. Гипс хорошо тянет влагу. Поэтому в будущем, при неправильном выборе, могут возникнуть проблемы связанные с разбуханием и деформацией поверхности.
Металлический гипсокартонный профиль
Бывает всего двух видов:
- UD-профиль
- CD-профиль
UD-профиль ещё иногда называют стартовым или направляющим. Он крепится к стене, а в него торцом вставляется CD и закрепляется саморезами.
Все профили делают с разной толщиной металла. Вам нужен тонкостенный облегчённый потолочный профиль.
Фурнитура для крепления металлического профиля
Для крепления к потолку:
- Металлические п-образные подвесы или кронштейны. Бывают разной длины. От 120 мм и больше. Вместо них можно использовать подвесной зажим с тягой.
- Подвес с зажимом и тягой. Этот конструктивный элемент позволяет регулировать разноуровневую высоту потолка. Зажим крепится к CD-профилю, а тяга к зажиму и к потолку. Тяга представляет собой металлическую спицу с одной проушиной под саморез. Если вы никогда не видели конструкции этого подвеса, то найдите его фото в сети.
- Быстрый монтаж, потолочные дюбели или анкера.
Соединительные элементы для профиля:
- Удлинители для профиля.
- Одноуровневые крестообразные соединители – «крабы».
- Двухуровневые соединители.
- Саморезы по металлу.
Материалы для крепежа листов гипсокартона и заделки швов
Для закрепления листов гипсокартона:
- Саморезы. Используются обычные чёрные саморезы по дереву длиною 25 мм.

Для заделки швов между листами:
- Армировочная сетка «серпянка».
- Специальная шпаклёвка для швов. Использование любой другой шпаклёвки недопустимо. Швы обязательно растрескаются.
Инструменты для сборки потолка из гипсокартона
Для отделки потолков гипсокартоном своими руками вам потребуется:
- Водный или лазерный уровень
- Металлический уровень длиной 1,5–2 метра
- Разметочная нить с цветным мелом
- Перфоратор
- Болгарка
- Шуруповёрт или маленькая электродрель
- Нож для гипсокартона
- Ножницы по металлу
- Рулетка
- Маркер и карандаш
- Рубанок по гипсокартону
- Плоскогубцы
- Отвёртка
- Молоток
- Шпатель
- Стремянка
Учтите, что для работы перфоратором вам ещё потребуется удлинитель. Вместо или вместе со стремянкой можно использовать обычный крепкий стол или строительные козлы. Всё будет зависеть от высоты потолков.
Монтаж потолка из гипсокартона
Все работы по монтажу можно условно разделить на три этапа:
- Сборка несущей металлической конструкции.
- Монтаж гипсокартонных листов.
- Заделка швов.
Сборка несущей металлоконструкции
1. Разметка стен
В первую очередь определите высоту, на которую вы опустите свой потолок. Обычно это 7–10 сантиметров. Этого зазора вполне достаточно для разводки электропроводки и установки светильников.
Лазерным или водяным уровнем на стены под потолком нанесите разметку уровня горизонта. Маркером делайте разметку прямо по световой лини лазера.
Лазерный уровень можно взять в аренду на один день. Его использование очень себя оправдает. Потому что с ним вы очень быстро получите точную горизонтальную плоскость.
Для качественной работы с водяным уровнем нужен небольшой навык. С его помощью нанесите на стене реперные точки и соедините их с помощью разметочной нитки. Для этого натяните нитку вдоль стены по точкам, оттяните её как струну и резко отпустите.
На стене останется яркий длинный след от цветного мела.
2. Разметка потолка
Для разметки потолка вам понадобятся рулетка, маркер и разметочная нитка.
Сначала, вдоль одной из коротких стен нанесите на потолок точечную разметку с шагом 600 мм. Ширина листа гипсокартона составляет 1200 мм. На один лист нужно два профиля для закрепления. Поэтому шаг составляет 600 мм.
Затем, симметрично первой сделайте вторую точечную разметку на противоположной стороне потолка. Теперь разметочной ниткой соедените точки длинными линиями. У вас на потолке получится «зебра» из линий.
По этим линиям будут лежать цельные длинные профили. Поэтому разметку в 600 мм надо делать на коротких стенах.
Теперь повторите весь цикл операций с разметкой по длинным стенам. Но, шаг разметки делайте 0,5 метра. Длина одного листа гипсокартона составляет 2,5 метра. Поэтому нужен именно такой кратный шаг в разметке.
У вас на потолке должна получится сетка из цветных линий.
3. Закрепление UD-профиля
По разметке периметра стен закрепите под потолком UD-профиль. Для этого используйте перфоратор, быстрый монтаж и молоток. Разрезать профиль можно ножницами по металлу или болгаркой.
4. Закрепление подвесов
По узлам разметочной сетки на потолке закрепите с помощью перфоратора подвесы, на которые будет вешаться металлический CD-профиль. Если вы делаете простой одноуровневый потолок, то используйте для этого обычные стеновые п-образные кронштейны. Они дешевле и проще в монтаже.
Помните, центральная ось кронштейна должна чётко лежать на линии разметки. Иначе ваш профиль начнёт «гулять». А вам нужны прямые линии для правильного монтажа листов гипсокартона. Край листа должен чётко ложиться в середину профиля по его длине. Иначе вы его не сможете закрепить.
4. Установка CD-профиля по длине комнаты
Начните установку от одной из длинных стен. Один конец CD-профиля закрепите в стартовом UD-профиле на стене, а другой в любом дальнем подвесе до которого достанет CD-профиль.
Используйте металлический уровень для выравнивания профиля по горизонту.
Продолжайте линию установки пока не упрётесь в противоположную стену. Лишний профиль отрежьте. Места соединения по длине профиля усильте специальными удлинителями.
Сделайте 3–4 ряда от одной стены и перейдите на другую стену. От неё также закрепите 3–4 ряда профилей. Это нужно делать для того, чтобы не потерять плоскость горизонта в центре потолка. Если идти от одной стены к другой сплошной установкой, то может накопиться погрешность.
5. Установка поперечных участков профиля.
Теперь надо связать длинные установленные CD-профили в единую конструкцию. Для этого предварительно нарежьте короткие куски. Длина этих кусков должна чётко укладываться между длинными профилями.
По разметке с шагом 0,5 метра начните соединять короткие куски перпендикулярно длинным профилям в шахматную сетку. Для этого используйте крестообразные «крабы».
В итоге у вас получится прочная решетчатая конструкция под потолком.
6. Монтаж электропроводки.
К заранее определённым местам установки светильников и других приборов, которые будут вмонтированы в потолок, протяните все необходимые провода. После монтажа листов это будет сделать очень трудно.
7. Закрепление листов гипсокартона
Начните закреплять листы из угла комнаты. Саморезами прихватите лист по углам и после этого с шагом 20–25 см прикрепите лист к металлическим профилям.
Обратите внимание! Торцы коротких сторон гипсокартона обязательно срежьте под углом примерно 45 градусов. Используйте для этого специальный гипсокартонный рубанок или нож. На стыке двух листов у вас должно получится углубление для заделки шпаклёвкой. Иначе в этих появятся трещины.
Следующий ряд закрепляйте обязательно со сдвигом примерно в половину листа или меньше. Нельзя делать крестообразные соединения листов друг с другом, потому что они являются естественными концентраторами напряжений. И в дальнейшем в таких местах могут появиться трещины.
Прорежьте отверстия в местах закрепления светильников. Делайте это сразу после установки того листа, в котором будет стоять светильник.
8. Заделка швов гипсокартона специальной шпаклёвкой
Приклейте армировочную ленту «серпянку» по швам. Это самоклеящаяся лента, поэтому проблем с этим у вас не возникнет. Подготовьте шпаклёвку и заделайте ею швы. Лишнее уберите шпателем. Дайте шпаклёвке высохнуть.
9. Отделка потолка шпаклёвкой
Прогрунтуйте потолок из гипсокартона. Дайте грунту просохнуть. После этого зашпаклюйте всю поверхность. Зачистите абразивной сеткой.
Ваш потолок из гипсокартона готов!
Конечно, для монтажа многоуровневого потолка или каких-то круглых форм вам понадобятся более серьёзные знания и навыки. Но как говорится, главное — это начать. Всё остальное приложиться.
Например, найдите в интернете как собрать потолок из гипсокартона своими руками фото-мастерклассы. Из них вы узнаете очень много полезной информации. Или поищите фото сборки сложных разноуровневых потолков разной формы.
Базовые навыки вы уже освоили. Всё остальное досмотрите сами. А ещё лучше найдите как монтировать потолок из гипсокартона своими руками видео-уроки.
Маленькие хитрости при монтаже потолков из гипсокартона своими руками
- Вместо «крабов» можно использовать кусочки UD-профиля. Их длинна должна быть немного больше ширины CD-профиля – чтобы было место для крепежа саморезов. CD торцом вставляется в кусочек UD и стягивается саморезами. После этого т-образная конструкция крепится к навесной системе как перемычка. Это позволит хорошо сэкономить на «крабах».
- Обычно, для крепежа фурнитуры предлагают маленькие специальные саморезы для профиля, которые называются «блоха». Лучше взять самые короткие саморезы по металлу с круглой широкой шляпкой. Они будут немного дороже, но зато с ними удобней работать – они резвее ввинчиваются в металл.
- Для разрезания листов гипсокартона используйте разделочный стол и нож.
Вместо линейки возьмите кусок профиля. По разметке листа сделайте надрез ножом. Положите лист на стол так, чтобы линия надреза совпала с краем стола. Теперь резко надавите на край листа. Гипсокартон лопнет чётко по линии. Оставшуюся на сгибе бумагу отрежьте ножом. В остальных случаях пользуйтесь специальной ножовкой по гипсокартону.
Устройство потолка из гипсокартона. Описание материалов, рекомендации по монтажу.
Описание работ
Если вы новичок, то самостоятельный монтаж подвесных потолков из гкл будет для вас довольно непростым занятием.
Но изучив статью: Устройство потолка из гипсокартона. Описание материалов, рекомендации по монтажу вы сможете самостоятельно выполнить эту работу.
Потолок из гипсокартона имеет ряд неоспоримых преимуществ. Во-первых, в итоге получается очень ровная поверхность. Гипсокартон скроет любые неровности и трещины вашего потолка. Под такой потолок очень удобно прятать коммуникации и провода.
Дизайны потолка из гипсокартона довольно многочисленны и разнообразны. Вы всегда можете сделать подвесной потолок из ГКЛ по своему вкусу. Полет фантазии может быть безграничен. Одноуровневые,
многоуровневые потолки из гипрока, различная цветовая гамма. В конце концов, можно нанять дизайнера. Не забудьте про светильники. Если вы хотите поэкспериментировать со светом в помещении, то навесной потолок из гипсокартона позволит вам расположить сами светильники и направление света по вашему вкусу.
Потолок из гипрока пригоден для любых помещений. Даже в ванне вы можете обработать гипсокартон специальным водоотталкивающим составом и бед не знать.
Как делается потолок из гипсокартона?
Основополагающих технологий по монтажу гипсокартона (не только потолков, но и стен, фигурных конструкций) в природе существует две. Это технология Кнауф и технология Гипрок.
Опытные мастера с недоверием относятся к Кнауф и предпочитают технологию Гипрок. Сходятся все в одном: отечественные подвесы и профиля (направляющие), из которых состоит несущая конструкция потолка и на которые крепятся листы гипсокартона , мягко говоря не дотягивают до европейских стандартов.
Проще говоря чтобы качественно произвести монтаж потолка из гипсокартона надо всячески изворачиваться и включать сооброжалку.
Какой в первую очередь должна быть конструкция потолка из ГКЛ? Правильно, прочной. Вернее максимально прочной. Следовательно, все несущие части (подвесы и крепления) должны быть максимально закреплены к основанию так и на таком расстоянии, чтобы не дать провиснуть гипрочным листам. Именно провисание гипсокартона (вернее креплений к основанию) может привести к трещинам между стыками и некрасивым буграм. Соответственно под крепление гипсокартонных листов подбираем качественные и технологичные материалы.
Основные материалы и инструменты, необходимые для монтажа потолка из гипсокартона…
Это, прежде всего специальные подвесы, которые крепятся к основанию (на фото справа). Для их прочного крепления используют специальные металлические дюбель-гвозди или металлические анкер-клины. Важно: не крепите подвесы на пластиковые дюбеля. Их использование при монтаже потолка из ГКЛ чревато постепенным вылезанием самореза и провисанием крепежа.
К подвесам крепятся профиля (направляющие) шириной 70 мм.
Далее идут сами листы гипсокартона шириной 12,5 мм фирмы Gyproc. Некоторые советуют еще и листы шириной 9,5 мм. Споров по этому поводу множество. 12,5 мм все же более предпочтительнее за счет большей прочности, сопротивления на изгиб и соответственно меньшего провисания. По длине можете выбрать сами. Здесь 2,5 м. Также если необходимо, то есть влагостойкие и огнеупорные листы гипсокартона. Дело в цене.
Не скупитесь и потратьтесь на лазерный уровень. Также не забудьте про необходимые в таких случаях рулетку и карандаш. Ну и конечно перфоратор и шуруповерт.
Рассмотрим монтаж простейшего одноуровневого потолка.
Прежде всего, намечаем линию для начального профиля нашей конструкции, с помощью лазерного или водяного уровня на нужном нам расстоянии от потолка (10 – 20 см). Берите в расчет такие детали, как необходимость скрыть за конструкцией потолка электропроводку, коммуникации и др.Уровень ставьте на возвышение.
Отмечаем контур этой линии карандашом по стене. Далее крепим направляющие по периметру комнаты по этой горизонтальной линии дюбелями шагом 400 – 600 мм.
Следующий этап – это разметка потолка под наши основные несущие направляющие. Проводим параллельные линии с шагом чуть больше 1250 мм (половина листа гипсокартона). Почему чуть больше? Листы гипсокартона мы будем крепить с небольшим зазором между ними, чтобы при шпатлевании можно было вдавить в него смесь для заделки швов. То есть основные профиля будут проходить посередине листа и по краям. По этим линиям закрепляем подвесы на металлические анкер-клины с шагом 400 мм.
Теперь берем наши несущие профиля (направляющие) и вставляем их в стартовый каркас, который закреплен по периметру помещения. Главное вставляйте не впритык к стене, а оставляйте небольшой зазор, чтобы впоследствии избежать деформации потолка от всяческих непредвиденных обстоятельств в виде температурных расширений. Соответственно вставляем направляющие и в наши подвесы.
Направляющие к подвесам крепятся саморезами по металлу по два с каждой стороны профиля. Горизонтальность несущих профилей проверяйте или уровнем или для полной уверенности опять же лазером.
Дальнейший монтаж потолка из гипсокартона своими руками предполагает разметку продольных профилей. Компания Gyproc рекомендует при поперечном монтаже листов гипсокартона шаг направляющих 600 мм, а при продольном – 400 мм. Вы можете сами выбрать вариант конструкции. Здесь рассматриваем поперечное крепление. Продольные профиля без проблем можно нарезать из направляющих ножницами по металлу нужной вам длины. Вставляем продольные профиля между направляющими также с шагом примерно 500 мм (600 многовато). Почему примерно? Продольные профиля должны располагаться так, чтобы не попадать концами на места крепления направляющих профилей с подвесами.
Крепятся продольные профиля к направляющим с помощью специальных крабов, как показано на фото справа. Для более прочной конструкции народные умельцы придумали и с успехом используют другую конструкцию для крепления продольных профилей.
Просто к несущему профилю крепят два отрезка стартового профиля и
вставляют в них продольный.Фото справа. Такой способ значительно укрепляет конструкцию, да и «крабы», купленные в магазине могут быть бракованные, а сделанные своими руками… Далее необходимо закрепить продольные профиля с помощью все тех же подвесов для большей надежности по середине каждого.
К сожалению, термин «бракованный» в нашей стране можно применить не только к «крабам», но и к подвесам. Со временем они просто могут начать провисать под весом листов гипрока и не исключено появление трещин на потолке. К счастью такие неприятности заставляют все больше применять народную смекалку… Так и для подвесов многие мастера используют народный метод. Для более крепкого и качественного крепления профилей к потолку применяются эти же самые профиля, только загнутые букой Г, как показано на фото. Так называемые «башмаки». Данный способ хорош еще и тем, что подвесы можно сделать любой длины, а соответственно и потолок можно опустить или приподнять на любое нужное расстояние.
Итак, основной несущий каркас для потолка из ГКЛ готов. Теперь обшиваем его листами гипсокартона. Предварительно необходимо каждый лист обработать специальной грунтовкой Aquastop производства Эстонии для лучшей гидроизоляции с двух сторон. Проверенное средство. От стены отступаем пару мм, чтобы гипсокартон «дышал». Листы крепим поперек продольных профилей и вдоль несущих в шахматном порядке. То есть первый лист крепим от стены, а следующий, начиная с первого продольного профиля. Расстояние между стеной и продольным профилем заделываем половиной листа гипрока. И так весь потолок. Листы гипсокартона крепятся ко всем профилям саморезами по металлу с шагом 200 мм. Шляпки саморезов не утапливаем, они должны быть заподлицо. Для этого при вворачивании саморезов лучше использовать шуруповерт с ограничителем глубины вкручивания самореза. Между листами оставляем зазор в 2 – 3мм.
Теперь остается только заделать стыки между листами и зашпаклевать потолок целиком. Для заделки стыков лучше использовать специальные смеси для заделки швов.
Как то: SEMIN CE 86, Vetonit Gyproc Siloite, KREISEL 601. На нанесённую на швы смесь накладывается специальная армирующая сетка из стекловолокна. Далее разравниваем все широким шпателем. После высыхания зашкуриваем участок стыка мелкой шкуркой. Таким же макаром обрабатываются и зазоры между стеной и листами гипрока. Целиком потолок шпаклюется обычной Шпаклевкой LR.
Далее можете делать с вашим потолком все, что душе угодно: красить, клеить обои и т. д. Если вы все сделали правильно, то потолок из гипсокартона прослужит вам очень долго.
Похожие материалы:
Профиль потолочный для потолочных конструкций из гипсокартона. Создание каркаса под потолок из гипсокартона: инструкция по сборке и установке
Потолок, созданный из GC-листов, имеет прочную металлическую основу. Он создается из основных и дополнительных металлических элементов и различных креплений. Для приобретения металлических компонентов каркаса необходимы материалы, исходя из Performance.
Это гарантия долговечности потолка из ГКЛ и его срока службы. Привлекательный Потолок из гипсокартона — неотъемлемая часть общего фона комнаты.Далее рассмотрим, какой профиль для потолка из гипсокартона нужен.
Создание каркасной основы под гипсокартон
Ремонтные работы имеют монтаж гипсокартона 2-х видов: каркасный и безрамный. Для выравнивания потолка из гипсокартона, а также для создания многоуровневых потолочных конструкций применяется только каркасная основа из гипсокартона.
Бескаркасный способ крепленияЛисты на клее «садятся» при выравнивании стен или создании декоративных конструкций.
Созданный фреймворк позволяет:
- Выровняйте потолок внахлест.
- Спрячьте электрические шнуры и создайте дополнительное освещение.
- Создайте многоуровневую подсветку из гипсокартона c подсветкой, которая будет долговечной, качественной, украшающей комнату.
Способ прокатки профиля
Профиль, используемый для создания ГКЛ, обрешетки изготавливаются из стальной полосы холодной прокатки.
Монтаж потолка из гипсокартона Профиль должен соответствовать всем нормам ГОСТ, во избежание быстрого износа всей конструкции.
Какой профиль вы хотите получить для потолка
Construction Market предлагает множество типов профилей. Нам нужно понять, подойдет ли профиль для потолка из гипсокартона? Они различаются по внешнему виду и своим функциональным свойствам. Чтобы приобрести нужный профиль, требуется проработка маркировки, габаритов, комплектующих. Имеет размеры по длине, ширине и толщине. Какой профиль потребуется для потолка из гипсокартона? Для несущего каркаса под GC-листы следует выбирать более толстый профиль, чем для декоративного элемента внутренней обшивки.
Основные и дополнительные профили для каркасаОсновные типы профиля для каркаса на потолке
Для создания металлического каркаса потолка из листов гипсокартона используются два вида профиля: направляющие и элементы потолка. Но, помимо этих видов, для металлической основы используются также и другие элементы, о которых будет сказано ниже.
- Направляющие профили для каркасной обрешетки на потолке. Этот потолочный профиль из гипсокартона имеет маркировку ПНП или УД-27. Направляющий элемент — это металлический элемент при создании обшивки.Под гипсокартон вставляется потолочный профиль PP (CD).
Размеры профиля: ширина — 27 мм, высота ребра — 28 мм., Толщина стенки 0,37-0,45 мм., Длина от 3 до 4 метров. толщина металла зависит от завода-изготовителя. Компания «КНАУФ» производит профиль АНП из высококачественной стали толщиной 0,6 мм. Таким образом, эти профили отличаются прочностью и качеством.
Крепление в направляющую потолочного профиля PP- Профиль потолочного гипсокартона PP (CD).Этот элемент вставляется в направляющие профили и крепится к подвесам. Он имеет габариты: длина — от 3 до 4 м, ширина — 60 мм., Высота — 27 мм. Толщина профиля варьируется от 0,4 до 0,55 мм. «Кнауф» производит потолочный профиль толщиной 0,6 мм.

Какой профиль лучше всего подходит для потолка из гипсокартона? Из Performance видно, что профиль Knauf более толстый, а значит более прочный и долговечный. Этот профиль используется в помещениях с повышенной влажностью, не опасаясь, что ржавчина быстро поразит его, ведь элементы потолка выполнены из антикоррозийного цинкового покрытия.
дополнительных профилей, закрепленных в каркасе на потолке
Помимо основных профилей, из которых образуется прочный каркас для HA-листов, также применяются дополнительные профили.
- ПА арочный профиль (CD). Создавал фигурные узоры на потолке. Имеет габаритные допустимые нормы: ширина — 60 мм., Высота 27 мм., Толщина профиля 0,4-0,6 мм. Разные производители выпускают арочные профили с разными размерами и толщиной металла. Профиль Knauf самый прочный и качественный.
Арочный профиль Knauf
- Угловой профиль CP. Применяется для защиты внешних углов гипсокартонных конструкций.
он перфорированный, имеет размеры: толщина от 0,22 до 0,5 мм., ширина 20-35 мм., длина 2,5-3 м.Угловой профиль CP
- Уголок ПВХ перфорированный 25х25х3000 мм для криволинейных конструкций. Создает защиту для фигурных элементов на потолке. Изготовлен из прочного качественного ПВХ-материала. Отличительный уголок недвижимости — гибкость, легкость, несложность монтажа.
Уголок перфорированный ПВХ
Дополнительные специализированные компоненты монтируются в зависимости от того, какой дизайн выполнен на потолке. Чем сложнее изогнутые элементы и чем больше ярусов в потолке, тем больше используется дополнительных профилей.
Прочие монтажные элементы для создания каркаса на потолке
Для производства каркаса на потолке потребуются следующие компоненты:
Прямые вешалки — из прочного металла, имеют перфорацию.Подвеска должна быть прочной, как несущий элемент каркаса. Длина сборки 12,5 см.
Прямой подвес к каркасу под гипсокартон Подвес с тягой.
применимо, если потолок нужно опустить на расстояние больше стандартной тяги. Изделие крепится к потолку грубо, вдевается штифтом в отверстие и надевается на остальную подвеску. Шпилька имеет максимальный размер 100 см.
Приставка для профилей. Применяется в том случае, если длина помещения превышает длину потолочного профиля PP (CD).
Удлинитель для профилейКрабы фиксируют несколько профилей в одной точке на одном уровне. крабы используются при необходимости на нескольких уровнях. Крабы фиксируются защелками, для большей прочности конструкции используются саморезы.
Краб для соединения профилей PP, крепеж:
Без этих элементов невозможно создание кадра. Все изделия выполнены из цельного металла. Крепеж должен быть плоским и соответствовать ГОСТу.
Монтажная конструкция
Перед тем, как изготовить каркас из профилей для гипсокартонного потолка, необходимо определиться с типом каркасных оснований: ячеистый, поперечный каркас.
Последние производятся, в основном, в помещениях малой квадратуры (балкон, уборная) для выравнивания потолка.
Чертежи, маркировка профилей для ГКЛ
Перед тем, как приступить к монтажу каркаса на потолке Вам необходимо сделать чертеж на бумаге и сделать отметки на потолке и стенах. Для этого необходимо измерить периметр комнаты. Все данные должны быть записаны на бумаге. Далее идет низкий угол. Для этого в каждом углу комнаты измеряется высота. Отмечается на листе.
Чертеж на потолок из ГКЛПри одноярусном выравнивании потолка, в самом нижнем углу отступая от черновой плиты фундамента 3-5 см.Он отмечает точку, ее параллель проводится по всем стенам комнаты. Эти строчки используются для крепления профиля НП. На листе выполняется электрическая схема для основного и вспомогательного освещения. Для размещения выключателя, там где огни, розетки. Все данные с учетом замеров необходимо перенести на поверхность и разметить.
Перегородка для потолочных профилей На основании грубого грунта размечаются линии ПП с шагом 60 см.
Им через 50 см. отмечены места крепления вешалок. Для поперечного шага между элементами обрешетки потолка ПП 40 см.
Границы 2 листа гипсокартона приходятся на один профиль. Горизонтальные границы списков Гражданского кодекса не совпадают. Это основа прочности гипсокартонных конструкций.
После расчетов и чертежей потолка можно рассчитать, сколько материала потребуется для металлических прогонов и ГК-листов. Если вы планируете закупить материал заранее, то можете воспользоваться онлайн-калькулятором потолка из гипсокартона, который даст точные данные о покупке.
Создание каркаса для кросс-FCL
Для изготовления поперечного каркаса из профилей для гипсокартона, допустим, на потолке балкона крабы и перемычки не требуются.Такой способ строительства является бюджетным для данной обрешетки. Каркасный профиль для гипсокартонного потолка
Пошаговая последовательность действий, при которой деталь обозначена , как профиль крепится к потолку из гипсокартона:
- по линиям, обозначенным на стенах, при закреплении направляющих профилей дюбелями, гвоздями.
Плоскостность крепления следует проверять сразу же на строительном уровне. Не допускаются качели даже на 0,5 см.Монтажный направляющий профиль для потолка
- На выровненных линиях, прицельных точках с помощью анкерных подвесов устанавливаются клинья.Эти элементы должны быть жесткими и прочными.
Подвес прямой монтаж анкер Клин
- В направляющие профили вставляем потолок, закрепляем винтами. Шаг профиля для потолка из гипсокартона составляет 40-60 см. Теперь, чтобы без провисания правильно закрепить потолочный профиль на подвесе, нужно протянуть нить контроля от стены к стене. Производится установка индексного профиля потолка под гипсокартон с подвешиванием небольшими шурупиками. Торчащая сторона подвески разгибается в разные стороны.
При обшивке ГКЛ, на стыке между листами, фиксируется вырезанный профиль.
Перед тем как приступить к отделке гипсокартоном, основание каркаса проверяется на прочность, жесткость и плоскостность.
Как сделать сотовый каркасный профиль для потолка
Металлический каркас напоминает ячейку из металлических профилей. Монтажный профиль для гипсокартонного потолка изготавливается в следующем порядке:
- На обозначенных линиях закрепляются дюбелями-гвоздями направляющие металлические элементы.
- На основе проекта потолка, закрепленного анкерно-подвесными клиньями.
- Рельсы на стенах и потолке вставляются, крепятся к подвесам.
- Далее, печатные платы вырезаются из сегментов профиля, через равные промежутки между интегрированным гипсокартоном PP (CD).
- Эти перемычки фиксируются крабами. На расстоянии друг от друга 40-60 см.
Перемычки расположены в шахматном порядке, так что они не совпадают в 1 строке.
Видео:
Штатная база обшита обрешеткой ГК-листами.Крепление гипсокартона к потолку в профиле производится саморезами.
От края листа следует отступить 2 см. ибо, к краю ГКЛ не лопнет. Каждый саморез вкручивается в лист на расстоянии 10-15 см друг от друга. Гипсокартон монтируется не только по краю, но и во всех местах, где находятся профили.
Торцы листов соединения заколоты под углом 90 градусов. Все стыки заделываются специальной шпатлевкой. Компаунды армируют листовыми и шпаклюют.
После всего гипсокартон покрывается финишным акриловым герметиком и производится отделка.
Чтобы каркас был прочным, а потолок из гипсокартона радовал долгие годы правильно подобранными профилями и фурнитурой. Если тонкий профиль для потолка из гипсокартона, то есть риск растрескать потолок. Прочный каркас профилей от Knauf от 10 до 20 лет.
Видео:
Видео:
youtube.com/embed/GZPZFO2X6TM?rel=0″ frameborder=»0″ allowfullscreen=»»/>
Видео:
Описание гипсовых потолков — планка и гипс или гипсокартон
Обычно встречаются две штукатурки:
В более старом доме потолки из оштукатуренных и оштукатуренных можно противопоставить, в 1950-х гг. Эта техника была заменена гипсокартоном.Когда потолок требует ремонта, важно понимать различия между двумя типами и знать, какой метод использовался при возведении потолка. Любой ремонт нужно будет провести с использованием тех же техник и материалов, что и оригинал. Традиционная известковая шпатлевка, используемая для обрешетки и штукатурных потолков, мягче, чем современные гипсовые штукатурки, и они не работают вместе.
Рейка и гипс
С начала восемнадцатого века до середины 1950-х годов потолки обычно делали с помощью планки и штукатурки, прикрепленных к деревянным балкам.Справа показано сечение потолка из обрешетки и штукатурки.
Рейки представляют собой тонкие деревянные полоски (обычно примерно 25 мм на 6 мм (1 на 1/4 дюйма), прибитые к нижней стороне деревянных балок с зазором примерно 6 мм (1/4 дюйма) между каждой планкой.
Штукатурка традиционно наносилась на рейки тремя слоями известковой замазки:
- Первый слой (он же слой штукатурки) был вдавлен в зазоры между планками, чтобы получить прочное соединение с планками, этот слой обычно имел толщину около 6 мм (1/4 дюйма).
- Второй слой (он же плавающее покрытие), который должен был быть нанесен, обеспечивал относительно гладкую отделку для третьего слоя, этот слой обычно имел толщину около 6 мм (1/4 дюйма).
- Третий и последний слой (также известный как закрепляющий слой) обеспечивал гладкую отделку, подходящую для украшения (обычно отделка была побелкой или темперой), этот слой обычно имел толщину около 3 мм (1/8 дюйма).
Известковая смесь первого и второго слоев обычно представляет собой известковую замазку 1: 3 для чистого, острого песка; В смесь часто добавляли шерсть животных, чтобы помочь ей склеиться.Смесь для закрепляющего слоя представляла собой смесь извести и мелкого песка 3: 1 (примечание: не SHARP) или просто известковую замазку.
Эти смеси изменились к концу 1800-х годов с добавлением гипса или цемента, такая практика увеличила время схватывания, что уменьшило задержку между нанесением каждого слоя. Такие смеси обычно составляли 1: 1: 6 (гипс / цемент: известковая замазка: острый песок) для штукатурных и флоат-покрытий и равные части гипса и известковой замазки для затвердевающего слоя.
Установка реечных и гипсовых потолков требовала квалифицированных рабочих и занимала много времени; они были в значительной степени заменены использованием готового гипсокартона, когда он стал широко доступен в середине двадцатого века.
Потолки из гипсокартона
Использование искусственного гипсокартона для облицовки потолков в середине двадцатого века в значительной степени заменило использование обрешетки и штукатурки. Справа показано поперечное сечение потолка из гипсокартона.
Облицовка потолка гипсокартоном происходит намного быстрее и требует меньших навыков, чем при использовании реечных и штукатурных методов.
Гипсокартон просто разрезается по размеру, поднимается на место к нижней стороне балок потолка и прибивается гвоздями.
Когда впервые был представлен гипсокартон, листы часто просто стыковались, и весь потолок отделывался слоем штукатурки — это, однако, часто приводило к растрескиванию гипсового слоя по краям гипсокартона при прогибе балок. . Чтобы предотвратить образование трещин, практика была изменена с введением «холста» (довольно узкой (50 мм (2 дюйма)) тонкой, гибкой джутовой ткани с переплетением или пластиковой лентой), накладываемой на стыки перед нанесением слоя штукатурки. применяется; это придавало штукатурке большую прочность и, как правило, предотвращало растрескивание штукатурки вдоль стыков между частями гипсокартона.
Согласно современной практике (21 век) гипсокартон прикручивается к балкам (а не прибивается гвоздями) и стыки герметизируются холстом, при этом весь потолок покрывается текстурированной или простой эластичной краской.
См.Также: Ремонт больших дыр в стенах и потолках из гипсокартона
Обшивка потолка
Найдите продавца
… или получите 3 предложения без обязательств
Ваш почтовый индекс:
3D ModellersAcrow проп suppliersAir Conditioning SpecialistsAntenna SpecialistsAppliance RepairersAppliance suppliersArboristsArchitectsArt Работа ResellersArtistsAsbestos RemoversAwning Поставщики и InstallersBarbeque SuppliersBathroom DesignersBathroom Монтаж SuppliersBathroom ремонт specialistsBathroom Тщеславие SuppliersBathroom SpecialistsBed SuppliersBlind Поставщики и InstallersBricklayersBuildersBuilding Сертификация SpecialistsBuilding ConsultantsBuilding Стоимость EstimatorsBuilding DesignersBuilding InspectorsBuilding Продукт SuppliersBuilding промышленности SuppliersCabinet двери SuppliersCabinet MakersCarpentersCarpet Очистка SpecialistsCarpet Ремонт SpecialistsCarpet Поставщики и InstallersCarport ПоставщикиТрубочистителиПоставщики облицовкиПоставщики средств для чисткиУслуги по очисткеКонсультанты по цвету Перепродавцы бетонных блоковПрофессионалы по резке бетонаПолировщики по бетонуБетоносмесителиКурсы и семинарыПроизводители стеновых панелейСпециалисты по производству шторСтроители настиловДекоративный экран M anufacturersDemolition SpecialistsDoor и Window SuppliersDoor Оборудование SpecialistsDoor SuppliersDrafting ProfessionalsDucted Вакуумный SpecialistsEcological assessorsEdible Сад ExpertsElectrical ConsultantsElectriciansEnergy Рейтинг ConsultantsEnvironmental Дизайн ConsultantsEquipment Прокат ServicesExcavation ExpertsExtension и дополнения SpecialistsFencing Поставщики и InstallersFeng Шуй ExpertsFire Защита ExpertsFireplace Поставщики и InstallersFloating пола SuppliersFloor Покрытие SpecialistsFloor Ремонт CompaniesFloor Шлифовка и полировка ServicesFloor SpecialistsCarpet полы specialistsConcrete полы specialistsTimber Специалисты по напольным покрытиямСпециалисты по виниловым поламПоставщики каркасов и фермПоставщики мебели на заказПоставщики наружной мебелиРозничные торговцы мебельюПоставщики секонд-хендМебельщикиПоставщики гаражных воротСпециалисты по гаражуДизайнеры садовПрофессионалы по уходу за садомПоставщики садовых инструментовПоставщики садовых стенПоставщики садовых стенГазовая фурнитура ersGate SuppliersGazebo SpecialistsGlass SuppliersGlaziersgranny flatsGranny Квартира Утверждение specialistsGranny Квартира BuildersGranny Квартира SpecialistsGrass CompaniesSynthetic трава resellersGuttering Поставщики и InstallersGyprockersHandymenHardware Поставщики и RetailersHeating системы Поставщики и давления ExpertsHigh очистка servicesHome автоматизации Поставщики и ExpertsHome EstimatorsHome офиса manufacturesHome театр Поставщики и ExpertsHomeware SuppliersHot воды Системы Поставщики и Экраны ExpertsHouse План ProvidersInsect Поставщики и МонтажникиПоставщики и установщики теплоизоляцииДекораторы интерьеровДизайнеры интерьеровПоставщики и установщики ирригационных системСпециалисты по изготовлению комплектов для домаПоставщики кухонь и ванных комнатРемонтаторы для кухонь и ванных комнатПоставщики бытовой техники для кухниСпециалисты по ремонту кухонь andscaping SuppliersLaser Cut экрана ManufacturersLaundry DesignersLawn SuppliersLawn Стрижка ServicesLift SpecialistsLighting Ритейлеры и SuppliersEnergy эффективное освещение suppliersLocksmithsModular Главная ManufacturersMould Удаление SpecialistsPlant NurseriesPaint SuppliersPaintersPatio SpecialistsPaving Поставщики и InstallersPaving resellersPergola SpecialistsPest управления ServicesPest InspectorsPlasterering SpecialistsPlumbersPlumbing SuppliersPolished бетонные полы SpecialistsPool Ограждение SpecialistsPool Обслуживание SpecialistsPool ShopsPool SpecialistsPool стол retailersPool & Spa suppliersPowder покрытие companiesPrefabricated Главная ПроизводителиСпециалисты по очистке под давлениемПоставщики экранов конфиденциальностиКонсультанты по управлению проектамиКонсультанты по недвижимости s
Потолок из гипсокартона, перегородки из гипсокартона, перегородки в Сингапуре
easeInOut» data-easeout=»Power4.easeInOut» data-masterspeed=»2000″ data-thumb=»https://plasterceil.sg/wp-content/uploads/2018/04/false-ceiling-contractor-100×50.jpg» data-rotate=»0″ data-saveperformance=»off» data-title=»False Ceiling Contractor» data-param1=»» data-param2=»» data-param3=»» data-param4=»» data-param5=»» data-param6=»» data-param7=»» data-param8=»» data-param9=»» data-param10=»» data-description=»»>Эксперты по дизайну потолков
Конструкция подвесного потолка.Дизайн домашнего потолка. Дизайн офисных потолков. Сетка потолочная
Качественные офисные перегородки
Перегородка из гипсокартона.
Гипсокартон. Гипсокартон . Офисные перегородки. Домашние перегородки
Специалист по подвесным потолкам и перегородкам в Сингапуре
Дизайн потолка. Перегородка из гипсокартона. Гипсокартон. Гипсокартон . Противопожарная защита
Внутренний пакет Изоляция и гипсокартон Полы и потолки R-38 Стены R-21 5/8 «огнестойкие потолки из гипсокартона типа X 1/2» стены из гипсокартона
КОНЦЕПЦИИ ПАНЕЛИ LLLP.
Компания Small Cottage Company DO-IT-YOURSELF КАЮТЫ И КОТТЕДЖИ PANEL CONCEPTS INC. PANEL CONCEPTS LLLP. 2826 Gold 331 Creek N. M-33, Road Mio, Gold Michigan Creek, Монтана 4864759733 (989) 826-6511 (406) 288-8585
Дополнительная информацияСерия Cabin Shell
The Columbia 816 кв. Футов 1 Этаж 2 спальни 1 ванная комната Дата вступления в силу июнь 2014 г. Columbia ПРИМЕР СТАНДАРТНОЙ ОТДЕЛКИ ЭТАЖА Варианты ценообразования Описание Розничная торговля Палуба Единицы измерения температуры Деревянный пол — снаружи 2×6, обработанный давлением
Дополнительная информацияСравнение значений сопротивления изоляции
Сравнение значений сопротивления изоляции Компонентные панели American Ingenuity для куполов 22 48 содержат жесткий пенополистирол толщиной семь дюймов (E.
P.S.) изоляция со значением R 28. American Ingenuity
Контрольный список для оценки базы данных
Контрольный список оценочной базы данных Если вы создаете новую оценочную базу данных для проектов, следующий список предлагает подробный список основных и подкатегорий. Вы также можете использовать его как контрольный список для
Дополнительная информацияУСТАНОВКА ОКНА ОТСЕКА
УСТАНОВКА ОКНА ОТСЕКА Установка окна-эркера Эти инструкции касаются замены существующего окна-эркера или замены прямого окна новым эркером в проеме
Дополнительная информацияTechPractices: Дома перед домом:
TechPractices: Home Front Homes: Практические технологии PATH — это крупномасштабные жилищные проекты по всей территории США.S., где внедряются и используются инновационные технологии.
Информация представлена
Ориентировочная стоимость ремонта
1 Заявитель: Имущество: Дом: Бизнес: Оценщик: Номер заявителя: Тип убытка: Ураган Дата обращения: 18.01.2014 Дата потери: 29.10.2012 Дата получения: 14.01.2014 Дата проверки: 2/4 / 2014 Дата ввода:
Дополнительная информацияЛучшая книга по сборке сараев США
Книга по сборке Best Barns USA, пересмотренная 27 ноября 2013 г., Easton — R 12’x 20 ‘, произведенная Reynolds Building Systems, Inc.205 Arlington Drive Greenville, PA 16125 724-646-3775 Это руководство защищено авторским правом.
Дополнительная информацияГлава 6 СИСТЕМЫ КРЫШИ-ПОТОЛКА
Глава 6 СИСТЕМЫ КРЫШИ-ПОТОЛКА В этой главе основное внимание уделяется системам крыши-потолка с деревянным каркасом.
Холодногнутый стальной каркас для системы кровля-потолок также разрешен IRC, но не будет обсуждаться;
ПЕЛИКАН БАЙЛДЕРС, ИНК.План А
J: \ Memorial Green_1298 \ Drawings \ Current \ UNIT A \ A-3 \ 1298_A-3_ELEV.dwg, 20.05.2015 10:19:29 J: \ Memorial Green_1298 \ Drawings \ Current \ UNIT A \ A-5 \ 1298_A-5_ELEV.dwg, 20.05.2015 10:25:17 A-1 A-2 A-4 A-3 A-5
Дополнительная информацияКрышки для патио / навесы для автомобилей
Навесы для патио / Руководства по строительству навесов для домовладельцев Зачем мне нужно разрешение? ВЫ ЗНАЛИ? Как собственник-застройщик вы несете ответственность за такое разрешение.Если ваша работа выполняется
Дополнительная информацияСТАНДАРТНАЯ ОТКРЫТАЯ КРЫШКА ПАТИО
СТАНДАРТНОЕ ОТКРЫТОЕ ЗДАНИЕ КРЫШКИ PATIO И ОТДЕЛ БЕЗОПАСНОСТИ 201 E.
LA HABRA BLVD. LA HABRA, CA 90631 62-90-9710 Позвоните, прежде чем копать 1-800-227-2600. ПОЖАЛУЙСТА, ОБРАТИТЕ ВНИМАНИЕ: этот информационный бюллетень предназначен для помощи
Разрешения на жилое строительство
ОБЩЕСТВЕННЫЕ РАБОТЫ ЛЕЙН ГРАЙН Разрешения на строительство жилых домов ОТДЕЛ УПРАВЛЕНИЯ ЗЕМЕЛЬНЫМИ ЗЕМЛЯМИ 3050 N.DELTA HWY, EUGENE OR 97408 i КОНТАКТНЫЕ ТЕЛЕФОННЫЕ НОМЕРА: Программа строительства: (541) 682-4651 Запросы на осмотр: (888) 299-2821
Дополнительная информацияДополнения и Изменения
Дополнения и изменения Строительство пристроек и переделок представляет собой разную группу проектов улучшения и ремонта дома, которые обычно направлены на улучшение существующей основной
Дополнительная информацияДЖЕФФ ПОЛ ТАМОЖЕННЫЕ ДОМА Беркшир
J EFF PAUL CUSTOM HOMES ПРОИЗВОДИЛ ОТЛИЧИТЕЛЬНЫЕ индивидуальные дома в районе Хьюстона более 33 лет, добиваясь баланса между творческими, функциональными и структурными элементами.
Джефф закончил
Планы домов серии 5000 и цены
Планы домов серии 5000 и цены (все районы) 4701-A Oleander Drive Myrtle Beach, SC 29577 Телефон: (843) 449-8900 Факс: (843) 497-5325 21.02.13 Nations Homes II заработал репутацию из
Дополнительная информацияАМЕРИКАНСКАЯ ГОТИЧЕСКАЯ ИГРОВКА
План проекта AMERICAN GOTHIC PLAYHOUSE № 856 Лист 1 из 5 Выберите место и начните с того прекрасного, которое понравится вашим детям.Дизайн домика включает 35 квадратных футов внутреннего пространства плюс
квадратных метра. Дополнительная информацияС т е п е н А л е кс и н д е р
B y S tephenalexanderhomes.com Коллекция коттеджей Коллекция коттеджей — это уникальная группа домов, разработанная
-м годом, после того, как Стефан-757-449-2478 mralexander@stephenalexanderhomes.
com.
Дополнительная информация Осмотр на более высоком уровне.
Осмотр на более высоком уровне. Роб Хопкин Сильвер Спринг, Мэриленд 20902 Понедельник, 2 июня 2014 г. ProTec Inspection Services Inc. 19736 Selby Ave Poolesville, MD 20837 301-972-8531 www.protec-inspections.com [email protected]
Дополнительная информацияПОДРОБНОЕ РУКОВОДСТВО ПО УСТАНОВКЕ
ПОДРОБНОЕ РУКОВОДСТВО ПО УСТАНОВКЕ Предупреждение: риск поражения электрическим током, пожара или травм После установки и прокладки проводки через систему SMARTWALL существует риск поражения электрическим током, пожара или травм.
Дополнительная информацияPDmB, Inc.Определения
Стр. 1 из 11 Определения S Удовлетворительно Отвечает отраслевым стандартам по надлежащим материалам и установке NP Отсутствует Состояние или элемент не присутствовал во время проверки NI Состояние Не проверено или
Дополнительная информацияРуководство по финансированию строительства
Марк Негенман, специалист по ипотеке Axiom Mortgage Partners Руководство по финансированию строительства www.
mark.urbanmortgage.ca [email protected] 403.390.0887 i Руководство по финансированию строительства Марк Негенман Городская ипотека
Уведомление для владельцев недвижимости
Модификация или ремонт вашего подверженного наводнению имущества Уведомление для владельцев недвижимости Восстановление или реконструкция вашего дома Если вашему дому или бизнесу был нанесен ущерб, или если вы вносите улучшения в структуру
Дополнительная информацияФОРМА ОЦЕНКИ ЗАМЕНЫ СТОИМОСТИ
ЗАМЕНА ФОРМА ОЦЕНКИ РАСХОДОВ ОБЩАЯ ИНФОРМАЦИЯ Номер полиса: Текущее покрытие: Застрахованное имя: Адрес собственности: Почтовый индекс собственности: Davis, Clark & Latham Ins.Агентство 1 Pleasant Street, Suite 3 Reading,
Дополнительная информацияСТРОИТЕЛЬСТВО БЛОКА БЕЗОПАСНОСТИ
ПОЛИТИКА Стр.
1 из 5 ПРЕДСТАВИТЕЛЬНЫЕ ТРЕБОВАНИЯ ДЛЯ ОДНОГО И ДВУХ СЕМЕЙНЫХ ЖИЛЫХ, ДОПОЛНИТЕЛЬНЫХ И РЕМОНТОВ Все заявки должны быть привязаны к конкретному участку и составлены в соответствии с положениями International Residential
Добро пожаловать в парк кряквы
Номер плана Welcome To Mallard Park Цена продажи 1360 118 490 долларов 1465 124 990 долларов 1520 126 990 долларов 1600 127 990 долларов 1650 129 490 долларов 1715 130 490 1782 132 490 долларов 1824 133 990 долларов 1865 136 990 2125 151 490 2210 154 490
Дополнительная информацияОБЩИЕ ПРАВИЛА ЭЛЕКТРОПРОВОДКИ ДОМОВ
ОБЩИЕ ПРАВИЛА ЭЛЕКТРОПРОВОДКИ ДОМОВ 1.Romex должен устанавливаться в просверленные отверстия в балках или стойках даже над подвесными потолками — не скреплять скобами нижние края балок или стоек. Вы можете прикрепить проволоку скобами к плоской
Дополнительная информацияСОСТОЯНИЕ КАЧЕСТВА ПРЕДМЕТОВ
СОСТОЯНИЕ КАЧЕСТВА ФУНДАМЕНТОВ Всегда обращайте внимание на проблемы с влажностью и любые выпуклости или неровности в стенах.
Линии на стенах или полу могут указывать на проблемы с водой. Это было вылечено? Если
Выбор и технические характеристики Holz
21 марта 2011 г. 0.ПРОДАЖА И ПРОЕКТИРОВАНИЕ 1. КОММУНАЛЬНЫЕ ОБОРУДОВАНИЯ И РАЗРЕШЕНИЯ Holz Choices & Specifications 2. РАБОЧИЕ РАБОТЫ И ПОДГОТОВКА ЛЮТА Дата начала понедельника 2 мая 2011 года. Дополнительная информация
Вопросы и ответы о SIP
QS T R U C T U R A L I N S U L A T E D P A N E L A S S O C I A T I O N & A Вопросы и ответы о SIP Q: Что такое структурно изолированные панели A: Структурно изолированные панели (SIP) — это высокоэффективное здание
Дополнительная информацияСекция А Кровельная ферма
Раздел A Типы фермы крыши Wisconsin Truss, Inc.можно строить фермы различных типов, ниже приведены некоторые распространенные примеры.
Обычный бобтейл Scissor Mono Studio Dual Slope Cathedral Tray Vault Parallel
NAHB 1-00-0000 ОПРЕДЕЛЕНИЕ ПРОДУКТА
Стандартные коды затрат для жилищного строительства NAHB Код стоимости Описание 1-00-0000 ОПРЕДЕЛЕНИЕ ИЗДЕЛИЯ 1-01-0000 ПРЕДВАРИТЕЛЬНЫЕ РАСХОДЫ 1-01-0110 Технико-экономическое обоснование 1-01-0120 Исследование воздействия на окружающую среду 1-01-0130 Опционные сборы
Дополнительная информация .
С его помощью глубину сверления можно будет регулировать, благодаря чему пропадет риск деформации гипсокартонных листов;
В первую очередь это касается тех конструкций, которые будут служить местом фиксации вентиляции;
По скорости установки подвесные потолки намного опережают все используемые традиционные технологии. Два мастера за один рабочий день могут отделать потолок площадью не менее 20 м2, ни одна иная технология не обеспечивает такую производительность труда.
Для увеличения показателей жесткости на профилях изменяется геометрия поверхностей, делаются дополнительные выступы и углубления и т. д.
Рекомендуется использовать в производственных помещениях во время строительства различных вентиляционных шахт.
Проверьте работоспособность инструмента: приставьте колбы друг к другу, уровень жидкости должен быть абсолютно одинаковым. Если это не так – ищите и удаляйте воздух.
Если под потолком располагаются габаритные инженерные системы, то свободное пространство увеличивается на их размеры.
Есть много вариантов их исполнения, они бывают простыми или многоуровневыми. Дизайнеры настоятельно рекомендуют монтировать их в кухнях без верхних шкафов. Как делать такую кухню, подробно описано на страницах нашего сайта.
Вместо линейки возьмите кусок профиля. По разметке листа сделайте надрез ножом. Положите лист на стол так, чтобы линия надреза совпала с краем стола. Теперь резко надавите на край листа. Гипсокартон лопнет чётко по линии. Оставшуюся на сгибе бумагу отрежьте ножом. В остальных случаях пользуйтесь специальной ножовкой по гипсокартону.
он перфорированный, имеет размеры: толщина от 0,22 до 0,5 мм., ширина 20-35 мм., длина 2,5-3 м.
Плоскостность крепления следует проверять сразу же на строительном уровне. Не допускаются качели даже на 0,5 см.
Также: Ремонт больших дыр в стенах и потолках из гипсокартона